Portafolio

Page 1

Architecture

Portafolio Luis Miguel Mozzo Lozada Universidad Católica de Colombia 2018-2021

Introduction

This is an architectural portfolio that includes a complete selection of the projects designed by me throughout my career as a student. It presents in a graphic and technical way the works from the first semester to the sixth semester, which They are focused on solving problems based on three cores main ones: Space, Place and Habitat, this helps my approach as a professional, I stand out for my ability when it comes to work in various situations and contexts concurrently, that is, taking into account architectural design at all times, its relationship with its urban environment and the city, and technology used always seeking performance, efficiency and an image appropriate design. In addition to the graphic and technical part of the projects to explain, brief introductions and explanations will be made to the project, which allow me to argue my intentions of design. The portafolio organices by nucleus, as seen in the carrer.

Content

Space Place Habitat Independent Work Degree Work Contest

How to conceive an architectural project? Architecture is not created, it is conceived, it is the result of a process energy between man and the material world. The architect then, is not a simple creator, but stands out for his experience and memory, is a historical being. However, man needs a space and time to conceive his projects. The architectural project is a set of variables that are defined and occupy a place. On paper it is just an idea, but when it becomes something physical, it transforms into art. Although architecture is a formal intention of composition, They are the social and cultural framework, complementary behaviors of architecture. So, the conception of an architectural project is based on 5 variables: the physical environment, the formalization of the activity, symbolization cultural, ideological symbolization and form.

Luis Miguel Mozzo Lozada

Space N1

This was the initial nucleus of the carrer. It was my first approach to the concept of space, seen from a general approach.

Place N2

The project of the thirt semester, where the natural context and the relationship with the bodies of plants and water begin to stand out, is a forest ranger's house. First, a master plan was designed together with 3 other colleagues, where a sector of the national park, located on Carrera Septima and Calle 34, in Bogotá, Colombia, was chosen to encompass a set of projects with social and cultural intentions based on the Bogotá citizenship. All projects were carried out with a direct relationship with nature.

Hand-made
Planimetry
Planta baja Cortes

La Típica cultural center was designed in the fourth semester. It is a place of tradition, there are various activities recreational, social and cultural activities that are wrapped in a medium-sized public environment scale. It has various spaces that I will detail later, which respond to the needs of visitors to the sector, needs that go beyond the economic in a sense more directed to the person and their identity.

Spaces such as a reading room with Colombian literature and a dance classroom typical are willing to return to the citizen of Bogotá the identity that he has lost in recent years. This project is located in La Concordia, a town in the Candelaria in Bogotá, Colombia. cradle of the country's culture and democracy.

CENTRO
.
CULTURAL LA TÍPICA / CENTRO HISTÓRICO LA CANDELARIA

Lower Plan

First Level

Second level

Roof

Sections

Sections

Habitat N3

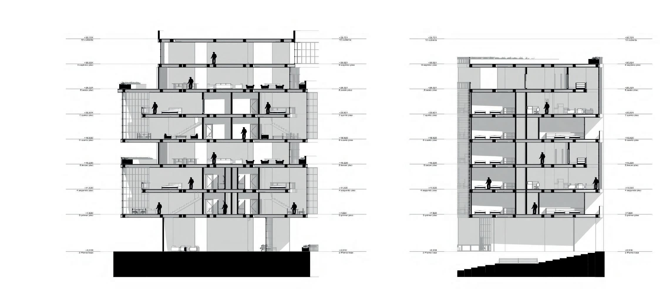
Fifth semester. Modification and adaptation of a set of blocks in the Sosiego neighborhood in the town of San Cristóbal in Bogotá. With the modification of 4 blocks, a large block was created with 3 collective housing buildings that function together. This will serve the inhabitants of the area and the users for whom the housing space is intended, in a cultural, social, commercial and recreational way. With spaces for sports, recreation, rest, cultural events in outdoor and indoor spaces, local commerce centers, libraries, among others, the social inclusion of communities disadvantaged by the armed conflict in Colombia is sought, and the good development of the urban life in the capital. The shape of the buildings is based on the towers of the Park by the Colombian architect Rogelio Salmona, who with circular and fanned figures takes great advantage of the visuals of the environment and the empty spaces of the city. This fan shape in the 3 projects rises to highlight the views of the Fucha River and the eastern hills, and at the same time, its orientation takes advantage of the entry of light into the apartments and the distribution of air within them. The block typology is of blocks isolated from the facing, since it moves away from the edges of the block to give way to public life.

Type plant oors 1 and 4

Type plant oors 2 and 5

3
Floor

The distribution of simplex and duplex apartments is proposed alternately on the floors of the building. On the third and sixth levels, social and play areas are generated in the central tower, and the terraces function as social spaces for all residents.

Floor 6 Floor 7
North facade

Hábitat

South facade

Section

Sections

Projected facade cut

Facade cut

Lower plan

Due to its shape and its urban relationship with the environment, it appears to be a block typology, however, its true building typology is 3 attached towers that function independently from the first to the fifth level, on the ground floor they share the urban space, but without However, they also have equally independent entrances and separate fixed vertical connection points. On the sixth and seventh levels, the fixed points meet in the same private social space, with the design of 2 terraces and 2 communal rooms. The ground floor is double height to intensify the permeable character, there are 3 urban stairs that connect the different levels and within the private access area to the towers, there are small terraces with views of the main sports area and the trading center. In the northern part of the building there is an axis of elder trees that accompany the urban furniture proposed to enjoy the views of the river in the public space, this furniture also functions as a container for the arborization. Already inside the towers, there is a fixed elevator and staircase point to access the different levels, where different standard apartments are mixed to give movement to the facades. The typology of the apartments is a porch, opening the spaces to both southwestern and northeastern views, in the common areas and in the rooms. Furthermore, this concept is supported by the distribution of spaces and furniture. The furniture is directed seeking the entry of light towards the large windows that are proposed.

Urban skyline

Independent work

San Fransisco bus station analysis

AVENID A JIMENEZ

Cauce del río San Francisco

Falso pimiento y Caucho sabanero Palma de cera Main Species Other species Ciprés Acacias Nogal Sietecueros Guayacán de Manizales Eucalipto
Rogelio Salmona´s
Cerezo
environmental axis analysis
Detail

Building located in San Gil, Santander

Degree Work DW

The last two semesters of the carrer i did my degree work. It was the compilation of 3 descriptive design reports, along with plans, models, cuts and other deliverables.

The project presents a research developed during the ninth and tenth semesters of architecture, focused on improving the Juan José Rondón neighborhood in Usme. The project methodology is detailed, including urban, architectural and social aspects. Problems were identified such as economic vulnerability and lack of habitability in self-construction and temporary housing. Key questions arose about how to address these needs and improve quality of life holistically. The proposed response was permaculture, which seeks sustainable solutions addressing social, economic and environmental aspects. Principles such as productivity, sustainability, collectivity and pedagogy are highlighted. Permacultural strategies are mentioned such as passive solar design, construction with local materials, among others. References are taken from permacultural communities worldwide. A challenge arises in reducing urban density due to the permacultural proposal. Finally, objectives are established to change the lifestyle in the neighborhood, promoting urban agricultural work and economic freedom through productive spaces.

Contest

Wattice

Lugar del concurso

Puntos jos Zonas de relajación Salón de reuniones

Puntos jos Zonas de relajación Restaurante bar Terrazas

Puntos jos Zonas de relajación

Contemplación Circularidad y paramentación Permeabilidad

Principios de orden

Centralidad Urbana

Axialidad en plantas

Apartamentos tipo

Conceptos
R R R
Axonometría Plantas tipo

Turn static files into dynamic content formats.

Create a flipbook
Issuu converts static files into: digital portfolios, online yearbooks, online catalogs, digital photo albums and more. Sign up and create your flipbook.