ANALISIS Y PROPUESTA BIOCLIMATICA EN HUANCAVELICA

Page 1

DEPARTAMENTO DE HUANCAVELICA

INTEGRANTES:

DE LA CADENA FATIMA

DOMPER SHAPIAMA ASTRID

ISLA MORALES LUIS

FINAL
AMBIENTAL 2 0 2 3 - I
ACONDICIONAMIENTO FISICO
Índice 01.HUANCAVELICA 04.UBICACIÓNYZONACLIMATICA 05.GRÁFICOPSI,ANALISISYESTRATEGIAS 02.ANALISISGENERALES Y ENTORNO 03.ANALISISCLIMATICO 06.SUSTENTACIÓN 07.ARROJODESOMBRAS 08.AZIMUTEINCIDENCIASOLAR 09.ZONIFICACIÓN,PLANOSY CORTES

DEPARTAMENTO DE

Huancavelica

SUPERFICIE 22,131 47 KM2

CLIMA: 5° C A 18°C - TEMPERATURA ANUAL

ALTITUD: 1,950 Y LOS 4,500 M S N M

LALITUD: -12° 38'

LONGITUD: -74° 16'

POBLACIÓN 59 435 RURAL 77 540

ANALISIS TECNOLOGIAS Y MATERIAL

Humedad(%) Precipit.(mm) VIento(km/h) Radiación(UV)

MES MENOS FRÍO - ENERO

MES MAS FRÍO - JULIO

MES MENOS HUMEDAD - SETIEMBRE

MES MAS HUMEDAD - ENERO

MES MÁS RADIACIÓN - NOVIEMNRE

MES MENOS RADIACIÓN - FEBRERO

MES MENOS VIENTO - JULIO

MES MAS VIENTO - ENERO

ANALISIS HISTORIA

WARA

AQSU

ALQAY WALLAS

LUYKUS UNKU

LLICLLA

PULLU

WALI Y UKUWALI

KUTILLA

Temp.(Cº)
150 100 50 0
Mínima Media Máxima
ADOBE MADERA TAPIAL LADRILLO BLOQUETA CONCRETO PIEDRA ARENA

DEPARTAMENTO DE

Huancavelica

SUPERFICIE 22,131 47 KM2

CLIMA: 5° C A 18°C - TEMPERATURA ANUAL

ALTITUD: 1,950 Y LOS 4,500 M S N M

LALITUD: -12° 38'

LONGITUD: 74° 16

POBLACIÓN 59 435 RURAL 77 540

CUADRO DE GIVONI - ESTR. Y PRO.

13° C

PROBABILIDAD DE PRECIPIATCIÓN: 70%

HUMEDAD 62%

VIENTO : A 13 KM/H

CLIMA JUEVES CHAPORRONES DISPERSOS

CUADRO DE TEMPERATURA Y HUMEDAD RELATIVA

SE NECESITA:

GANANCIAS INTERNAS CALEFACCIÓN PASIVA, ACTIVA Y

CONVENCIONAL

ACUMULADORES

ENTORNO
ANALISIS CLIMATICOS Y DATOS DE INVESTIGACIÓN ANALISIS DEL
DE CALOR Y EVITAR SALIDA DE CALOR

DEPARTAMENTO DE

Huancavelica -Ubicación

UBICACIÓN DEL TERRENO :

EL TERRENO CUENTA CON UN ARÉA DE 600M2,UBICADO ENTRE EL MALECON HUAYNA CAPAC Y VIRGEN DE CANDELARIA PRESENTA LAS SIGUIENTES

COORDENADAS 12° 47' ,03 24" AL SUR 74° 58' 17 24"AL OESTE CON UNA ELE VACIÓN DE 3678M Y UNA ALTURA DEL OJO DE 3.98K

-

SUPERFICIE : 22,131.47 KM2

CLIMA: 5° C A 18°C - TEMPERATURA ANUAL

ZONA CLIMATICA

HUANCAVELICA

ALTITUD: 1,950 Y LOS 4,500 M S N M

CONTINENTAL FRIO

CONTINENTAL MUY

FRIO

LALITUD: -12° 38'

LONGITUD: -74° 16'

POBLACIÓN: 59,435

RURAL:77,540

CUADRO ESTRATEGICO CLIMATICO

ESTRATEGIAS

ESTRATEGIAS

SE NECESITA:

CAPTACION SOLAR

GANANCIAS INTERNAS

PROTECCION DE VIENTOS

INERCIA TERMICA

CONTROL DE RADIACION MODERADA

SE DEBE EVITAR:

VENTILACION DIURNA (REGULADA).

VENTILACION NOCTURNA.

Huancavelica DEPARTAMENTO DE
CUADRO ESTRATEGICO CLIMÁTICO

GRÁFICO PSICOMETRICO DE

GIVONI ANÁLISIS

SEGUN CUADRO DE GIVONNI

SE NECESITA:

GANANCIAS INTERNAS

CALEFACCIÓN PASIVA, ACTIVA.

CALEFACCION CONVENCIONAL Huancavelica DEPARTAMENTO DE

HERRAMIENTAS

Huancavelica

proyeccion polar equidistante LATITUD: -12.30°

DEPARTAMENTO DE
21 DE JUNIO 21 DE JULIO / MAYO 21 DE AGOSTO / ABRIL 21 DE SETIEMBRE / MARZO 21 DE OCTUBRE / FEBRERO 21 DE NOVIEMBRE / ENERO 21 DE DICIEMBRE

Huancavelica

DIAGRAMA RUTA DEL SOL 21 DE JUNIO-10AM

SOLSTICIO DE INVIERNO

DIA JULIANO

DECLINACION APROX

SALIDA DE SOL

PUESTA DE SOL

21 DE MAR / SET -10AM

EQUINOCCION DE OTOÑO

EQUINOCCIO DE PRIMAVERA

21 DE DICIEMBRE-10AM

SOLSTICIO DE VERANO

DEPARTAMENTO DE AZIMUT YALTURA

Huancavelica

INCIDENCIA SOLAR EN LA SUPERFICIE A

DEPARTAMENTO DE INCIDENCIA SOLAR 21 DE JUNIO SOLSTICIO DE INVIERNO 21 DE DICIEMBRE SOLSTICIO DE VERANO 6 HRS DE SOL 6 HRS DE SOL

Huancavelica

INCIDENCIA SOLAR EN LA SUPERFICIE B

21 DE JUNIO SOLSTICIO DE INVIERNO 11 HRS DE SOL

21 DE DICIEMBRE

SOLSTICIO DE VERANO

2 HRS DE SOL

DEPARTAMENTO DE INCIDENCIA SOLAR

Huancavelica

INCIDENCIA SOLAR EN LA SUPERFICIE C

21 DE JUNIO SOLSTICIO DE INVIERNO 5 HRS DE SOL

21 DE DICIEMBRE

SOLSTICIO DE VERANO

7 HRS DE SOL

DEPARTAMENTO DE INCIDENCIA SOLAR

Huancavelica

INCIDENCIA SOLAR EN LA SUPERFICIE D

21 DE JUNIO SOLSTICIO DE INVIERNO 0 HRS DE SOL

21 DE DICIEMBRE

SOLSTICIO DE VERANO

12 HRS DE SOL

DEPARTAMENTO DE INCIDENCIA SOLAR

Huancavelica

CORTE ACIMUTAL 21 DE JUNIO 10 AM

DEPARTAMENTO DE ARROJO DE SOMBRAS

Huancavelica

CORTE ACIMUTAL 21 DE DICIEMBRE 10 AM

DEPARTAMENTO DE
ARROJO DE SOMBRAS

Huancavelica

CORTE ACIMUTAL 21 DE SETIEMBRE / 21 DE MARZO 10 AM

DEPARTAMENTO DE ARROJO DE SOMBRAS

21 DE DICIEMBRE PROYECCIÓN

21 DE JUNIO

21 DE MARZO DE SOMBRAS POR CADA MES

PROYECTO

PROYECTO

muro trombe para el exterior

ES UN SISTEMA PASIVO DE RECOLECCION DE ENERGIA SOLAR DE FORMA INDIRECTA.QUE

TRABAJA BAJO LOS PRINCIPIOS BASICOS DE ALMACENAAMIENTO Y RESTITUCION DE LA ENERGIA.

ENTRE SUS VENTAJAS ESTA:

BAJO COSTO FACILIDADES DE CONSTRUCCION

CREA TEMPERATURAS INTERIORES MAS ESTABLES PARA EL CONFORT TERMINCO.

funcionamiento

componentes

¿CON QUÉ MATERIALES SE CONSTRUYE EL MURO TROMBE? PARA ELLO SE DEBE EMPLEAR UN MURO CORTINA DE VIDRIO, QUE EN MUCHAS OCASIONES SE HACE CON CRISTAL DOBLE O TRIPLE, DE MODO QUE ASEGURE UN GRAN AISLAMIENTO ADEMÁS, ESTOS CRISTALES PUEDEN TENER UNA FUNCIÓN ADICIONAL COMO CELDAS FOTOVOLTAICAS QUE NOS PROPORCIONEN ELECTRICIDAD.

HUANCAVELICA DEPARTAMENTO

PARA ENTENDER EL FUNCIONAMIENTO DEL MURO TROMBE, PRIMERO DEBES CONOCER EN QUÉ CONSISTE:

LA FACHADA ES UNA COMBINACIÓN DE DOBLE HOJA FORMADA POR UNA

SUPERFICIE ACRISTALADA EXTERIOR Y UN PARAMENTO OPACO INTERIOR, SEPARADOS POR UNA CÁMARA DE AIRE NO VENTILADA

LA SUPERFICIE EN CONTACTO CON EL EXTERIOR ES NORMALMENTE UN VIDRIO DOBLE LA EFICIENCIA AUMENTA SI ES BAJO EMISIVO Y LA INSTALACIÓN SE REALIZA ESTANCA AL AIRE.

LA HOJA INTERIOR ESTÁ COMPUESTA POR UNA PARED OPACA DE MATERIAL MASIVO

ENTRE AMBAS HOJAS EXISTE UNA CÁMARA DE AIRE NO VENTILADA ENTRE 2 A 5 CENTÍMETROS.

SUSTENTACIÓN DE MATERIALES PARA EL
DE

HUANCAVELICA

ES UN MATERIAL QUE CONSISTE EN NUMEROSOS Y EXTREMADAMENTE FINAS FIBRAS DE VIDRIO

SE UTILIZA COMUNMENTE COMO MATERIAL AISLANTE

TERMICAS:

LAS FIBRAS DE VIDRIO SON UTILES AISLANTES TERMIICOS DEBIDO A SU ALTA PROPORCION DE SUPERFICIE RESPECTO AL PESO UNA CONDUCTIVIDAD TERMICA DEL ORDEN DE 0 5 W(M K)

TENSION:

LAS FIBRAS RECIEN HECHAS MAS DELGADAS, SON LAS MAS FUERTES DEBIDO A

QUE SON MAS DUCTILES

DEBIDO A QUE EL VIDRIO PRESENTA UNA ESTRUCTURA AMORFA, SUS PROPIEDADES SON ISOTROPICAS

componentes

.

RESPETUOSO CON EL MEDIO AMBIENTE, RENTABLE Y TECNOLOGÍA DE CONSTRUCCIÓN.

IGNÍFUGO.

RESISTENTE A LAS CEPAS

RESISTENTE AL FUEGO

GFRC NO REQUIERE NINGÚN REFUERZO ADICIONAL

50–70 % MÁS LIGERO QUE EL HORMIGÓN TRADICIONAL

PROPORCIONADA UN AMBIENTE DE CONFORT

MINIMIZA LOS DECIBELES

ES UN AISLANTE ACUSTICO

PROYECTO SUSTENTACIÓN DE MATERIALES PARA EL
DEPARTAMENTO DE
muros interiores con lana de vidrio y drywall
concreto reforzado con lana de vidrio.

techos con area verde

LOS TECGOS VERDES SON UN ESPACIO CREADO PARA UNA CASA O UN EDIFICIO, EN EL QUE SE APROVECHA CON LA IMPLEMENTACION DE PLANTAS, ADEMAS

ESTOS ESPACIOS SE HAN CONVERTIDO EN ATERNATIVAS PARA:

ES UN AISLANTE TERMICO QUE SE PRODUCEEN AHORRO DE ENERGIA. ES UN AISLANTE ACUSTICO QUE DISMINUYE HASTA EN 401 DECIBELES EL RUIDO EN EL INTERIRO DEL INMUEBLE

CAPTURA LAS PARTICULAS SUSPENDIDASEN EL AIRE, REDUCE LA CONTAMINACION AMBIENTAL Y PRODUCE OXIGENO

CONSUME DIOXIDO DE CARBONO, ES UNO DE LOS PRINCIPALES GASES DE EFECTO INVERNADERO.DISMINUYE EL EFECTO DE CALOR AJO COSTO

CREA TEMPERATURAS INTERIORES MAS ESTABLES PARA EL CONFORT TERMINCO.

HUANCAVELICA DEPARTAMENTO

LA PRIMERA CAPA DE UN TECHO VERDE ES LA DE VEGETACIÓN QUE ES

LA NATURACIÓN CONFORMADA POR PLANTAS ADAPTABLES AL AMBIENTE POSTERIOR A ÉSTA SE ENCUENTRA EL SUSTRATO QUE CORRESPONDE A LA CAPA FUNDAMENTAL DEL SISTEMA PUES EN ÉL SE CONCENTRAN LOS NUTRIENTES, EL AGUA Y EL SOPORTE PARA LA VEGETACIÓN INSTALADA EN SEGUIDA SE LOCALIZA LA CAPA FILTRANTE LA CUAL TIENE COMO FUNCIÓN PRINCIPAL LAVAR LAS PARTÍCULAS MÁS PEQUEÑAS PROVENIENTES DEL SUSTRATO, EVITANDO ASÍ QUE PASEN AL DRENAJE.

LA SIGUIENTE CAPA ES LA DE DRENAJE Y RETENCIÓN DE AGUA QUE PRINCIPALMENTE RECOPILA EL AGUA SUFICIENTE PARA ABASTECER A LA VEGETACIÓN. LA CAPA POSTERIOR ES LA DE PROTECCIÓN QUE PERMITE PROTEGER LA CAPA DE AISLAMIENTO TÉRMICO.

LA SIGUIENTE CAPA ES LA IMPERMEABILIZANTE QUE EVITA QUE SE PASE EL AGUA QUE PUDIERA FILTRARSE EN LA CAPA DE DRENAJE.

POSTERIORMENTE, ESTÁ LA CAPA DE AISLAMIENTO TÉRMICO QUE CUMPLE LA FUNCIÓN DE TRANSPORTAR LA CARGA Y DE ELIMINAR LOS PUENTES TÉRMICOS EXISTENTES. FINALMENTE, ESTÁ UBICADA LA BARRERA DE VAPOR QUE EVITA EL PASO DEL VAPOR DE AGUA HACIA EL TECHO DE LA CONSTRUCCIÓN.

LA COMPOSICIÓN DE UN TECHO VERDE ES DE GRAN

IMPORTANCIA, PUES DE ELLO DEPENDERÁ EL ÉXITO EN EL FUNCIONAMIENTO Y LA VIDA ÚTIL DEL MISMO

SUSTENTACIÓN DE MATERIALES PARA EL
PROYECTO componentes
DE

DE MATERIALES PARA EL

Adobe

REGULADOR DE LAS TEMPERATURAS

INTERIORES DE ESPACIOS HABITABLES EN CLIMAS SEMIFRIOS

Doble Vidrio

SE COLOCARAN DOS VIDRIOS CON UN ESPACIO DE AIRE QUE AISLARA EL SONIDO

HUANCAVELICA DEPARTAMENTO

Madera

ESTE SISTEMA TAMBIEN PERMITE RETENER

LA MADERA ES UN MATERIAL RENOVABLE, RECICLABLE Y BIODEGRADABLE

SU ESPESOR MANTENDRA EL CALOR

OBTENIDO DURANTE EL DIA PARA EMITIRLO

DURANTE LA NOCHE

MAYOR TIEMPO EL CALOR DENTRO DE LA EDIFICACION

LA MADERA ES UN BUEN AISLANTE TÉRMICO.

PROPORCIONA MAYOR COMPACIDAD POR EL ESPESOR QUE ESTE TIENE.

SUSTENTACIÓN
PROYECTO
DE

PLANIMETRIA

Huancavelica

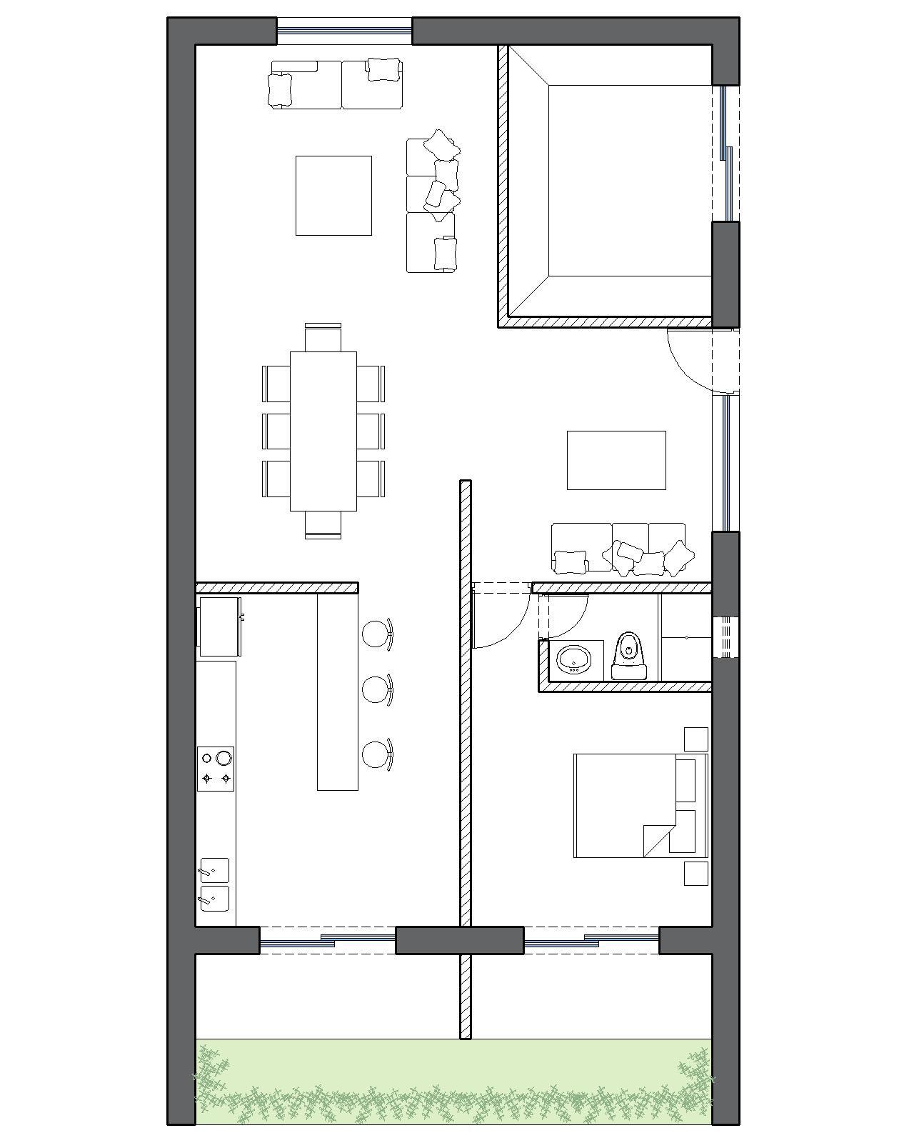
Z O N I F I C A C I Ó N TALLER HABITACION SALA COMEDOR RECIBIDOR TERRAZA PLANTA - PRIMER PISO
DEPARTAMENTO DE PLANIMETRIA AREA SOCIAL AREA DE TRABAJO AREA DE SERVICIOS AREA PRIVADA COCINA TERRAZA 8.40 8.40 1 6 2 5 1 6 2 5
P L A N O P L A N T A PLANTA - PRIMER PISO TALLER HABITACION MURO TROMBE RECIBIDOR TERRAZA COCINA TERRAZA 8.40 8.40 1 6 . 2 5 1 6 2 5 PLANTA - TECHO 8.40 8.40 1 6 . 2 5 1 6 . 2 5 TECHO VERDE AISLANTE TERMICO VIDRIO CAPTADOR SOLAR MADERA AISLANTE TERMICO MURO INTERIOR CON LANA DE VIDRIO Y DRYBALL PISO REFORZADO EN CONCRETO CON LANA DE VIDRIO A A A A B B B

TECHO DE MADERA

TECHO A DOS AGUAS

TECHO VERDE

CORTE A-A

VIDRIO 8MM

SALA COMEDOR

VIDRIO 8MM

EFECTO INVERNADERO EN CUBIERTA

ADOBE E: 0.40M

RETENCION DE CALOR

AISLANTE TERMICO

CORTE B-B

DOBLE VIDRIO

COCINA TERRAZA

TECHO DE MADERA

RETENCION DE CALOR

AISLANTE TERMICO

P L A N O D E C O
T E
R

RENDERIZADOS

Turn static files into dynamic content formats.

Create a flipbook
Issuu converts static files into: digital portfolios, online yearbooks, online catalogs, digital photo albums and more. Sign up and create your flipbook.