
T E M A 4.2



2 0 2 5





E N M A D E R A





C O N S T R U C C Ó N



C I M E N T A C I O N E S


Mgtr.Arq. Luis Fernando Ruano Paz


![]()




2 0 2 5





E N M A D E R A





C O N S T R U C C Ó N



C I M E N T A C I O N E S


Mgtr.Arq. Luis Fernando Ruano Paz




























(evita ingreso de animales y permite ventilación)






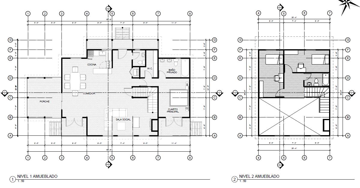
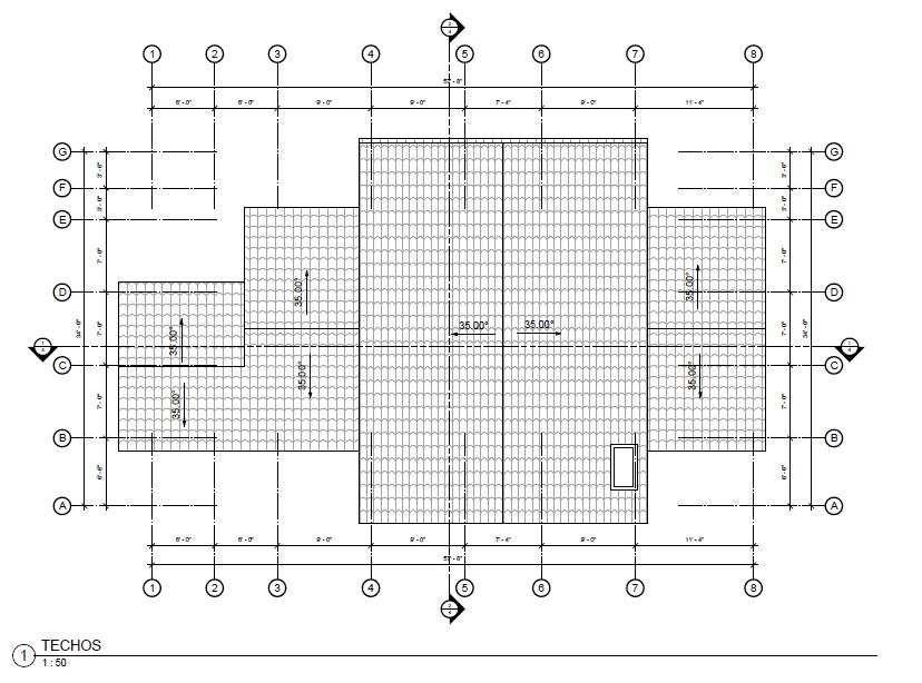
DEFINIR EJES VERTICALES
Y HORIZONTALES DE ACUERDO A
MUROS PRINCIPALES
SI HAY MÁS DE 6’ ENTRE EJES
COLOCAR INTERMEDIOS

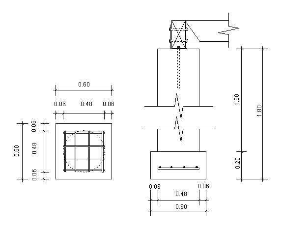
DEFINIR PILOTES
EN INTERSECCIONES

DEFINIR UBICACIÓN DE:
> EJES HORIZONTALES Y VERTICALES DE ACUERDO A MUROS PRINCIPALES
> UBICAR EJES INTERMEDIOS CUANDO HAY MÁS DE 6’
> COLOCAR PILOTES EN INTERSECCIONES





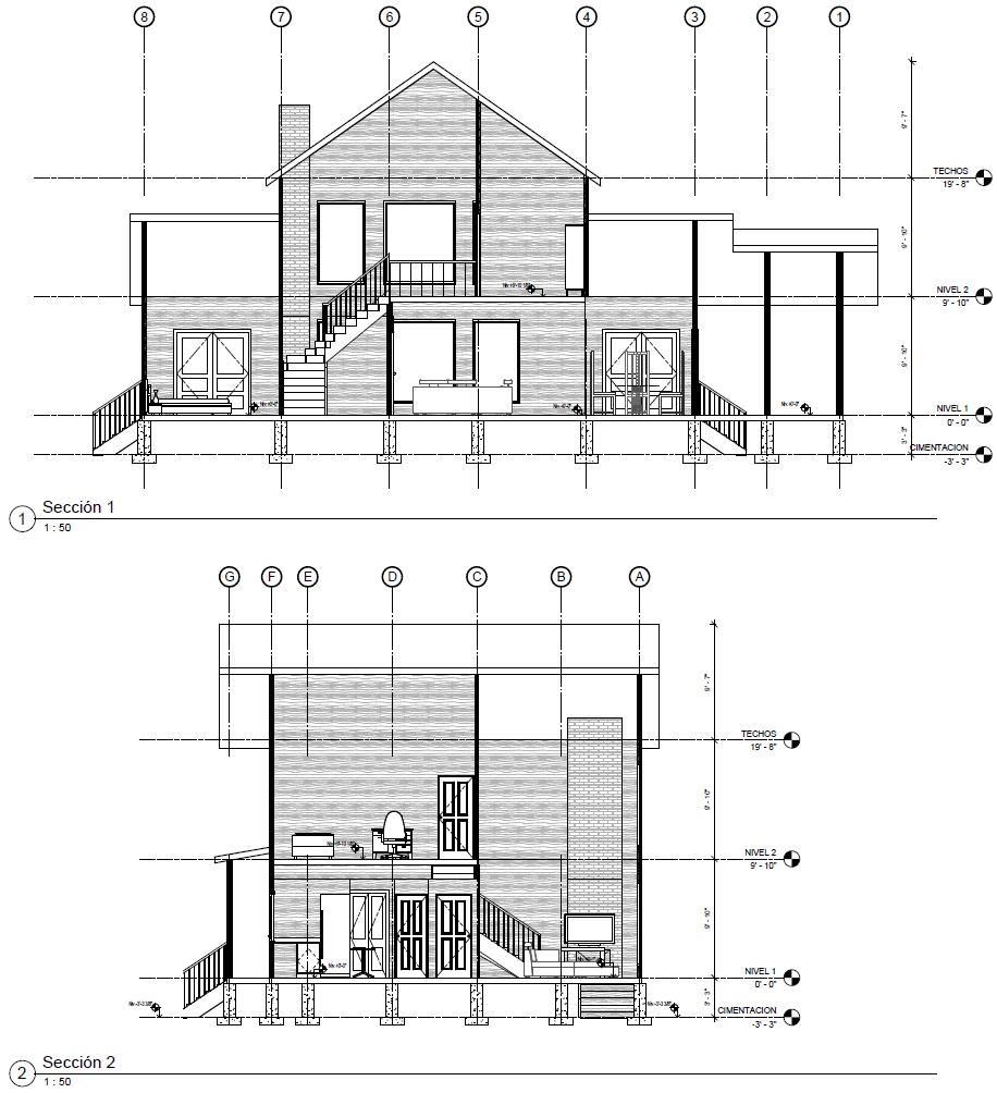
VIGAS 4” x 8”














UNIÓN A TOPE
VIGAS PRINCIPALES
UNIÓN EN TEE
VIGA PRINCIPAL Y VIGUETA
UNIÓN EN L
VIGAS PRINCIPALES

UNIÓN EN TEE
VIGAS PRINCIPALES
UNIÓN EN CRUZ
VIGAS PRINCIPALES














G R A C I A S

T E M A







