CONFERENCIA: La representación gráfica del proyecto arquitectónico PG2 2025

Page 1


C O N F E R E N C I A

La representación gráfica del proyecto arquitectónico

AUDITORIUM

Lunes 11/8 – 18:30 horas

Objetivo principal del proyecto de grado:

Validar que el alumno tiene los conocimientos básicos y esenciales para ejercer la profesión de arquitecto.

• Para poder validar esto se realiza un proyecto individual el cual el alumno desarrolla a lo largo de 2 semestres en acompañamiento de un asesor, siendo estos PG1 y PG2, el cual se somete posteriormente a una terna conformada por 3 arquitectos ante los cuales el estudiante deberá defender su proyecto basándose en fundamentos claros y concisos.

Parámetros a calificar por la terna:

• Validación de los objetivos y conclusiones del proyecto

• Conocimiento claro y profundo de su proyecto de grado

• Diseño de un proyecto (arquitectónico, urbano ó de investigación) que responda a una necesidad real, presentando todos los planos, vistas, esquemas y renders necesarios para su desarrollo y comprensión de parte de un profesional externo, en base a fundamentos teórico investigados.

• Representación grafica del proyecto (planos, esquemas, cuadros comparativos, etc)

• Presentación final de resultados

Los alumnos son responsables del material que presenten, los asesores únicamente “Asesoran temas puntuales, pero el proyecto general es responsabilidad del estudiante quien al asignarse al curso de PG2 esta indicando que domina todos los conocimientos

RESPONSABILIDAD DEL ALUMNO

Los alumnos son responsables de su proyecto, es decir de poder transmitir de forma clara y coherente su proyecto ante otros profesionales, por ende material que presenten es responsabilidad única y exclusiva del alumno. Al asignarse al curso de PG2 el estudiante esta indicando que domina todos los conocimientos dados a lo largo de la carrera y esta solicitando demostrar ese conocimiento adquirido por medio del desarrollo de un proyecto final,

Estos conocimientos son:

• Planimetría

• Diseño

• Instalaciones (eléctricas, hidrosanitarias, estructuras, especiales, etc)

• Representación grafica de temas relacionados a la arquitectura (renders, animaciones, etc)

• Elaboración de esquemas y diagramas necesarios para plantear su idea

• Elaboración de presupuesto

• Entre otros,

Los asesores únicamente Guían al estudiante y asesoran temas puntuales, mas no es labor del asesor enseñar temas que el alumno no domina por completo.

CONTENIDO

1. Diagramación y diseño del documento.

Planimetría 1. Esquemas y detalles

Vistas y perspectivas

Consejos para presentar

Errores comunes

Recomendaciones finales

1.Diagramación y diseño del documento.

FORMATO Y RETÍCULA

Tamaño físico: 420 mm ancho × 297 mm alto (± 0 mm).

Márgenes vivos: 8 mm perimetrales (quedan dentro del área de impresión de la mayoría de plotters A3).

Retícula modular: 6 columnas × 4 filas con espaciamiento de 6 mm; permite composiciones simétricas o asimétricas sin perder alineación.

Cajetín: franja continua de 35 mm de alto en la esquina inferior-derecha. Incluye: nombre del proyecto, autor, fecha, escala, norte y número de lámina/plano

1.Diagramación y diseño del documento.

TIPOGRAFÍA Y JERARQUÍA

Sans-serif (Helvetica Neue, Inter o similar). Mantener máximo tres pesos (Bold, Regular, Light).

Jerarquía Altura impresa Equivalente digital Uso

Nombre del plano Subtítulo

Niveles, zonas, vistas

Leyendas, notas

1.Diagramación y diseño del documento.

GROSORES DE LÍNEA

ESTÁNDAR

0.40 mm – elementos cortados (muros, losas, sección estructural).

0.25 mm – contornos principales (fachadas, muros vistos, bordes de planta).

0.18 mm – carpinterías, mobiliario, proyecciones.

0.10 mm – cotas, ejes, textura de sombreado.

* Dependiendo de la escala del dibujo puede ser necesario disminuir el grosor para facilitar la lectura del plano.

NOTA: HACER UN ENSAYO DE IMPRESION

1.Diagramación y diseño del documento.

Dibujo Escala Recomendada en A3 Contenido indispensable Distribución sugerida en retícula

Planta de conjunto 1:400 (urbano) / 1:250 (predio aislado)

Planta arquitectónica 1:100 (vivienda) / 1:75 (equipamiento)

Límites, retiros, topografía simplificada, accesos, vegetación principal, huella edificada (techos), norte, cuadro de áreas permeables / ocupadas, etc.

Corte a 1.20 m; nombres de recinto, ejes, mobiliario esquemático, cotas totales y parciales, niveles ± 0.00, radios de giro (∅ 1.50 m) para accesibilidad.

Ocupa ancho completo de 4-5 columnas; leyenda y barra gráfica en la columna 6.

Elevaciones 1:100 general / 1:75 si el volumen lo permite

Secciones 1:100 global + recuadro 1:50 para detalles relevantes

Ejes, cotas de nivel, materiales rotulados, líneas ocultas, siluetas humanas a 40% de opacidad para escala.

Ejes, sistema estructural, alturas libres, cotas verticales, hatch sólido en elementos cortados; indicar iluminación y ventilación pasiva si aplica.

Plano centrado en 4 columnas; lista de superficies y clave de símbolos en lateral derecho.

Hasta 3 elevaciones apiladas en banda de 3 filas; título y escala en franja superior.

Sección general 3 columnas; ampliaciones a escala 1:50 en columnas restantes.

Isométricos Escala libre (referenciar con escala gráfica de 5, 10, 15 ó 20 m)

Renders Resolución mínima 300 dpi

Volumen completo o explotado; uso de color de acento para enfatizar tema; sin mobiliario excesivo.

3-5 vistas clave (urbano, peatonal, interior); HDRI 6500 K; vegetación nativa; corrección de color ligera.

Ubicar vista principal en 4 columnas; explotar niveles con ligero desplazamiento vertical.

Una imagen ocupa tres columnas; pequeña planta de referencia (1:2000) en la esquina superior izquierda/derecha.

NOTAS / SIMBOLOGÍA

DATOS

GENERALES

No. / CÓDIGO

PLANTA DE CONJUNTO

No. / CÓDIGO

DATOS GENERALES

PLANTA ARQUITECTÓNICA

NOTAS / SIMBOLOGÍA

No. / CÓDIGO

DATOS

GENERALES

PLANTA ARQUITECTÓNICA

/ CÓDIGO

INFORMACIÓN COMPLEMENTARIA

DATOS GENERALES

No.

ELAVACIÓN NORTE

ELEVACIÓN SUR

No. / CÓDIGO

DATOS GENERALES

SECCIÓN GENERAL A - A’

SECCIÓN GENERAL B - B’

SECCIÓN DETALLE A ESCALA

MAYOR CON REFERENCIA EN A - A’

No. / CÓDIGO

DATOS

GENERALES

ISOMÉTRICO EXPLOTADO

NOTAS / SIMBOLOGÍA

No. / CÓDIGO

DATOS

GENERALES

RENDER

No. / CÓDIGO

INFORMACIÓN COMPLEMENTARIA

PLANTA DE REFERENCIA

DATOS GENERALES

RENDER VERTICAL

RENDER VERTICAL

No. / CÓDIGO

PLANTA DE REFERENCIA

DATOS GENERALES

PLANIMETRIA

Es el conjunto de representaciones gráficas técnicas que describen con precisión el diseño arquitectónico del proyecto. Estas láminas permiten comprender la distribución espacial, dimensiones, relaciones funcionales y constructivas del edificio.

ORDENADA COMPLETA CONGRUENTE

Debe estar presentada en orden según se indico anteriormente

Cada plano debe llevar los elementos correspondientes al tipo de plano o elemento a representar

Enfocado en persuadir a los clientes para que compren un producto o servicio.

ASPECTOS A CONSIDERAR

• Los planos deben contener la información mínima necesaria según el plano a elaborar.

• Los planos deben tener congruencia entre si.

• Todos los planos deben estar dentro de un formato con cajetín

• Todos los elementos del plano deben llevar titulo y escala.

• Desde el inicio valide como va a presentar sus planos y haga pruebas de impresión.

• Los planos se revisan impresos, es decir toda la información debe ser legible en el formato que elijan (Tabloide, A1, A2, etc.)

• Si utiliza colores piense que tendrá que imprimir a color para que se entienda su plano

• Un plano que tiene mala la escala NO SIRVE

Planimetría Proyecto de Arquitectura

Plantas

• Croquis de terreno

• Situación actual (si aplica)

• Áreas a intervenir (si aplica)

• Planta de conjunto

• Planta de techos

• Planta machote

• Planta de áreas

• Planta (s) de arquitectura

• Planta acotada

• Secciones

• Elevaciones

• Detalles arquitectónicos

• Gabaritos (si aplica)

• Entre otros

Estructuras

• Planta de cimentación + detalles

• Planta de columnas + detalles

• Planta de vigas y losa + detalles

• Planta de cubiertas + detalles

• Detalles estructurales / Constructivos (estructura secundaria, montaje de pieles, etc)

Instalaciones

• Planta de agua potable + detalles

• Planta de drenaje sanitario + detalles

• Planta de drenaje pluvial + detalles

• Planta de iluminación

• Planta de fuerza

• Planta de instalaciones especiales.

ANALICE E INVESTIGUE QUE INFORMACION BASICA DEBE LLEVAR CADA UNO DE ESTOS PLANOS

Planimetría Proyecto Urbano

Plantas

• Planta del área a intervenir

• Plan Maestro por fases

• Plantas arquitectónicas por tramos

• Gabaritos

• Elevaciones arquitectónicas (si aplica)

• Visualización de renders (antes y después)

• Detalles arquitectónicos / constructivos

• Esquemas, detalles y/o material de apoyo para representar el proyecto de forma clara.

• Planta de agua potable + detalles

• Planta de drenaje sanitario + detalles

• Planta de drenaje pluvial + detalles

• Planta de iluminación

• Planta de fuerza

• Planta de instalaciones especiales. Instalaciones

PLANTA DE CONJUNTO

Apartado Indicaciones

Objetivo Mostrar implantación, accesos y relación con el contexto inmediato.

Escala 1:500 (urbano) ó 1:200 (predio aislado).

Contenido mínimo Límites del predio, topografía simplificada (curvas @ 0.50m ó 1.00 m), vialidades colindantes con nombres, retiros, vegetación principal, áreas libres/permeables (%), huella edificada (techos), circulaciones peatonales y vehiculares diferenciadas y norte.

Convenciones Espacios exteriores en tramas grises claras; edificación en sombreado 10–20 % negro; vegetación con símbolos estilizados.

Espacios exteriores con colores claros, opacidad entre el 20 y 30% máximo. Caminamientos en color blanco o gris con opacidad del 5% máximo.

Anotaciones Cotas generales (largo–ancho de predio), pendientes clave, nombres de calles y alineamientos oficiales.

Gráfica recomendada Suprimir cotas secundarias; enfatizar propuesta con línea más gruesa o color de acento.

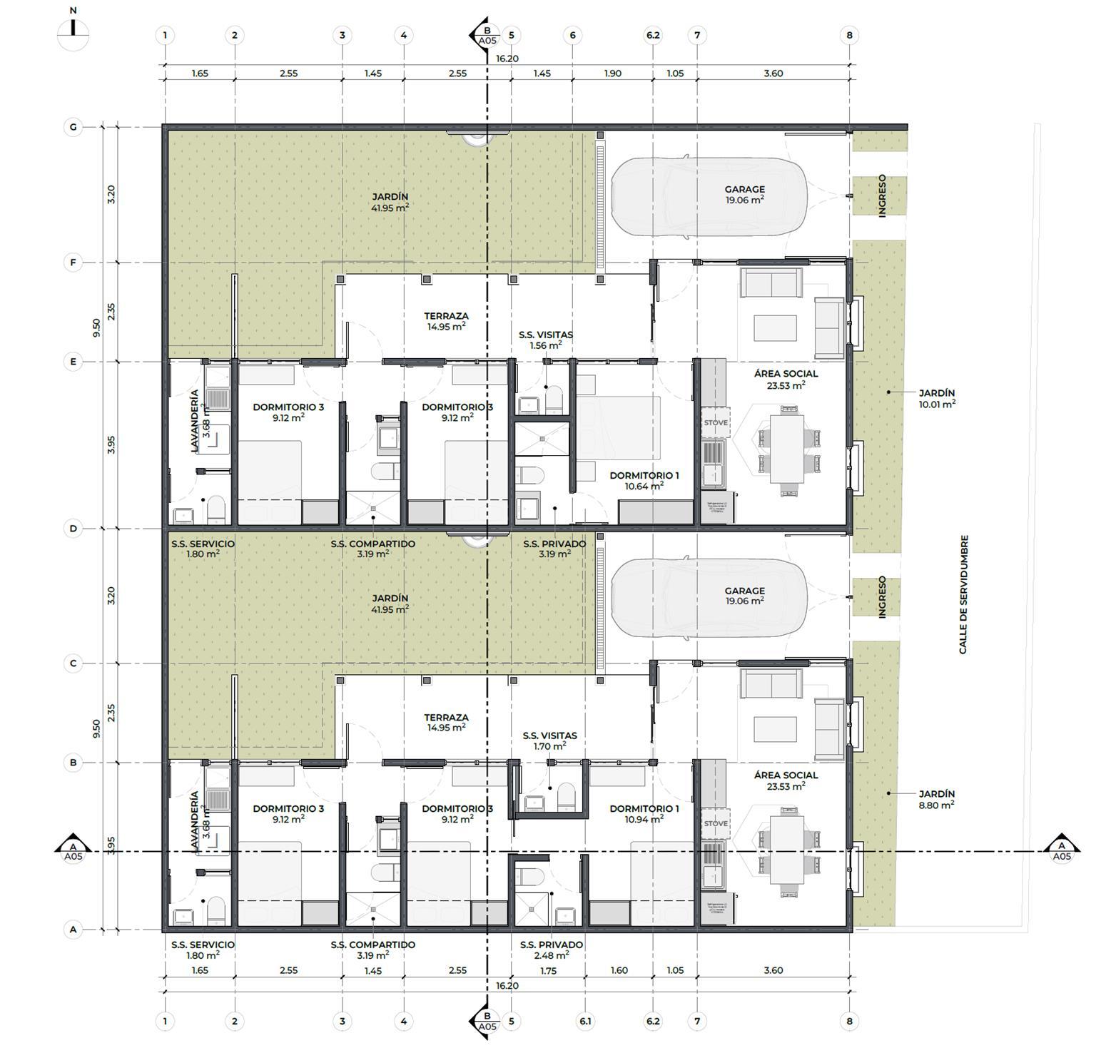
PLANTA ARQUITECTÓNICA

Apartado Indicaciones

Objetivo Exponer distribución funcional, circulaciones y relaciones espaciales internas.

Escala 1:100 (vivienda) o 1:75 (equipamiento).

Corte de plano 1.20 m sobre nivel terminado. Dibujar espesor real de muros; ventanas a altura del corte y ventanas por encima del corte en proyección con línea fina.

Contenido mínimo Nomenclatura de ambientes, superficies útiles (m²), ejes estructurales, mobiliario esquemático, cotas totales y parciales (módulos), niveles de piso ±0.00.

Convenciones Muros de carga 0.35 mm; tabiques 0.25 mm; mobiliario 0.18 mm; sanitarios y equipamiento con símbolos estándar.

Diagramación Centrar la planta y ubicar leyendas de superficies en el margen derecho; usar sombreado tenue para circulaciones principales.

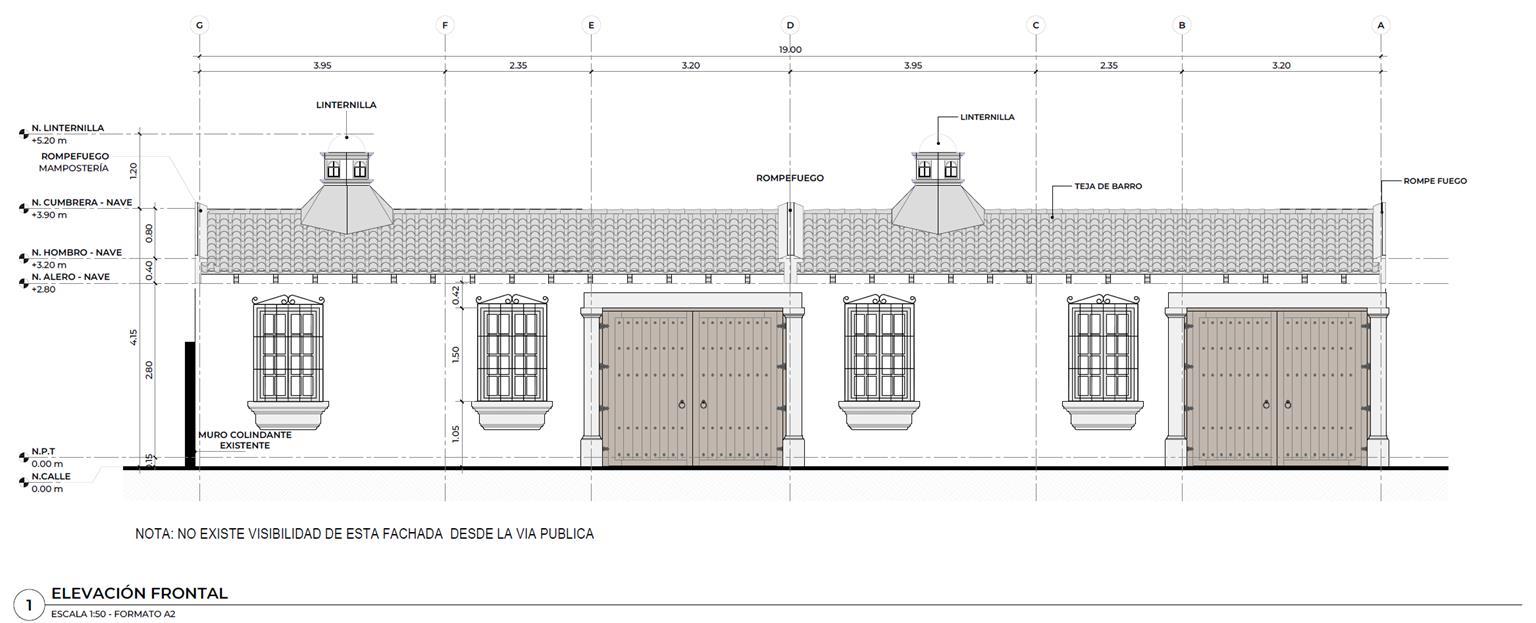
ELEVACIONES

Apartado Indicaciones

Objetivo Comunicar proporción, ritmo de vanos, materiales y relación con cota natural.

Escala La misma escala que en planta (1:100–1:75).

Contenido mínimo Cotas de niveles (terreno, planta baja, entrepisos, cubierta), ejes, materiales rotulados, proyección de planos posteriores con línea de 0.10 mm de grosor.

Convenciones Grosor uniforme 0.25 mm; relleno sólido o hatch 25 % para planos en sobras; líneas punteadas para elementos ocultos.

Anotaciones Textos horizontales; indicación de fachada Norte, Sur, etc.

Gráfica Añadir siluetas humanas y vegetación a 50 % de opacidad para referencia de escala sin distraer.

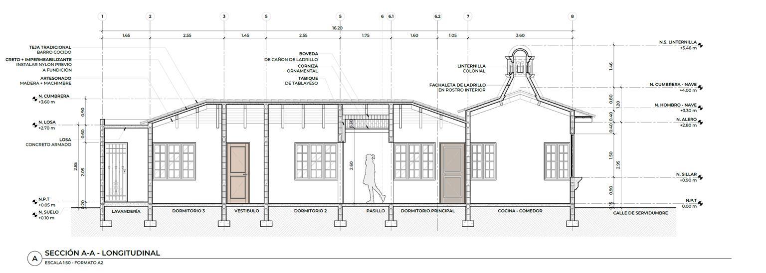
SECCIONES

Apartado Indicaciones

Objetivo Describir relaciones de altura, estructura, niveles y luz natural.

Escala 1:100 a 1:50 dependiendo de la complejidad.

Línea de corte Marcada en planta con flecha y código (A - A’, B - B’).

Contenido mínimo Sistema estructural (vigas, columnas), alturas libres, pendientes de cubierta o rampas, rellenos de suelo, ejes, niveles, cotas verticales, mobiliario clave.

Convenciones Elementos cortados 0.50 mm; fondo 0.10 mm; hatch sólido negro en muros portantes; hatch 45° en terreno.

Detalles Indicar entradas de luz cenital; diagramar flujo de aire si es pertinente.

Gráfica Se puede agregar un diagrama conceptual superpuesto en color tenue para ilustrar el concepto espacial (opcional).

ISOMÉTRICOS

Apartado Indicaciones

Objetivo Sintetizar forma volumétrica y secuencia espacial en una vista legible.

Tipo Axonometría explotada (despiece de niveles) o isométrico sombreado.

Escala digital Libre, se recomienda utilizar escala humana o escala gráfica para referencia

Contenido mínimo Muros exteriores, vacíos, circulaciones verticales, servicios. Evitar mobiliario excesivo.

Convenciones Línea de contorno 0.35 mm; aristas internas 0.18 mm; superficies en gris 20 – 40 % o colores con muy baja saturación.

Colores Utilizar color de acento para resaltar áreas programáticas, flujos, etc.

Composición Alinear con planta o secciones en lámina; usar fondo blanco o degradado muy suave.

RENDERS

Apartado Indicaciones

Objetivo Transmitir atmósfera, materialidad y experiencia de usuario.

Enfoques clave a) Perspectiva urbana (contexto), b) Perspectiva peatonal (fachada), c) Interior significativo.

Storyboard Definir recorrido: llegada, estancia, transición, detalle. 3–5 imágenes finales.

Parámetros técnicos Resolución 3500 px lado mayor mínimo; formato TIFF/PNG (impresión) y JPG (web).

Ambientación Vegetación endémica (o lo más similar posible), mobiliario realista, escala humana coherente (contexto social).

Composición Lámina A3 horizontal combinando render + keyplan (planta de referencia) esquina inferior.

EJEMPLOS

Los elementos gráficos de apoyo que se tiene al momento de hacer planos son: colores, rellenos, tipos y grosores de línea, esto nos ayuda a mejorar la presentación del plano a modo que este se lea por si solo.

Así mismo tenemos que considerar los elementos básicos que debe llevar un plano dependiendo de su tipo:

• Título + Escala / formato

• Ejes + cotas parciales y totales

• Norte

• Muros rellenos para comprender mejor la distribución de los ambientes

• Nombre de ambientes

• Mobiliario

• Indicación de secciones

• Cuando la planta sea muy grande se puede hacer una general y posterior dividir por ambientes a modo de hacer zoom en cada elemento.

• Optar por colores en tonalidad de grises utilizando colores fuertes para resaltar elementos de división.

Mientras mayor la escala nos debemos enfocar más en tipos de línea y grosores, no tanto en rellenos y colores.

Después tendremos que hacer vistas mas cercanas de cada elemento arquitectónico.

EJEMPLO ELEVACIONES

Las secciones y elevaciones tienen que tener la información básica necesaria, como lo son alturas, niveles, indicaciones, pendientes, etc. En ellas tenemos que ver reflejada la estructura principal, cimentación, contrapisos, así como los elementos secundarios (cielo falso, proyecciones, estructuras secundarias, etc.)

EJEMPLO ELEVACIONES

EJEMPLO ELEVACIONES

EJEMPLO SECCIONES

Las secciones y elevaciones tienen que tener la información básica necesaria, como lo son alturas, niveles, indicaciones, pendientes, etc. En ellas tenemos que ver reflejada la estructura principal, cimentación, contrapisos, así como los elementos secundarios (cielo falso, proyecciones, estructuras secundarias, etc.)

EJEMPLO SECCIONES

EJEMPLO SECCIONES

ESQUEMAS Y DETALLES

Esquemas: diagramas o representaciones graficas no paramétricas, es decir no tienen escala y no se pueden medir (perspectivas, dibujos, etc).

Detalle: Dibujo paramétrico de algún elemento especifico de la planificación.

Ambos sirven de complemento para comprender mejor la información reflejada en los planos y ambos llevan información básica de lo que se esta representando. No confundir detalles con vistas de elementos 3d generadas en Revit o descargadas de internet.

ESQUEMAS Y DETALLES

VISTA ELEMENTO 3D

ESQUEMA NO ME DA INFORMACION, NO TIENE ESCALA, NO

ME PERMITE IDENTIFICAR SUS ELEMENTOS, PERO ME DA UNA

IDEA DE COMO ESTA FUNCIONANDO

DETALLE / ESQUEMA

ME DA INFORMACION DEL ELEMENTO, TIENE ESCALA, ME

PERMITE IDENTIFICAR TECNICAMENTE SUS ELEMENTOS

Gracias.

Turn static files into dynamic content formats.

Create a flipbook
Issuu converts static files into: digital portfolios, online yearbooks, online catalogs, digital photo albums and more. Sign up and create your flipbook.