TEMA 7 Vigas y Losas prefabricadas ADMINISTRACIÓN Y GESTIÓN 1 URL 2023

Page 1

Vigas y Losas Prefabricadas
2 0 2 3 Facultad Arquitectura y Diseño ADMINISTRACIÓN
CUANTIFICACIÓN
PRESUPUESTACIÓN
. Arq. Luis Fernando Ruano Paz
Y GESTIÓN 1
Y

Fundición normal (monolit)

Normal:

Concreto > 4,000 psi

Acero > 40 a 60,000 psi

Pretensada:

Concreto > 5,000 psi

Acero preesfuerzo > 250 a 270,000 psi

Cordón superior > 70,000 psi

TIPOS DE VIGUETA

Pretensada (precon)

LOSAS DE CONCRETO PREFABRICADAS

Cercha

VIGUETA TIPO CERCHA

Pastilla

Cables

LOSAS
DE CONCRETO PREFABRICADAS

t=0.10 m

t=0.15 m

t=0.20 m

BOVEDILLA PÓMEZ

LOSAS DE CONCRETO

BOVEDILLA ARCILLA

LOSAS
DE CONCRETO PREFABRICADAS

BOVEDILLA POLIESTIRENO

LOSAS DE CONCRETO
PREFABRICADAS
4’ x 6’

MOLDE METÁLICO RECUPERABLE

LOSAS DE CONCRETO PREFABRICADAS

CARGADOR CON BISAGRA

MOLDE METÁLICO RECUPERABLE

LOSAS DE CONCRETO PREFABRICADAS

Capa de compresión concreto

Solera de anclaje

Vigueta

Electromalla

Bovedilla

PREFABRICADAS
FUNCIONAMIENTO INTEGRAL
LOSAS DE CONCRETO

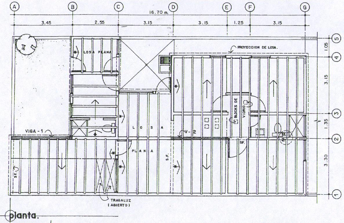
REPRESENTACIÓN EN DIBUJO

LOSAS
CONCRETO
DE
PREFABRICADAS

* Apoyo en sentido corto

Solera Final

Viguetas Prefabricadas (montadas 4 cms)

Vigas

Bastones (@ vigueta y L/4)

LOSAS
CONCRETO
REPRESENTACIÓN EN DIBUJO PREFABRICADAS
DE

REPRESENTACIÓN EN DIBUJO

LOSAS
CONCRETO
DE
PREFABRICADAS

Marcar inicio de modulación

Muros tabique

REPRESENTACIÓN EN DIBUJO

LOSAS
DE CONCRETO PREFABRICADAS

REPRESENTACIÓN EN DIBUJO: VIGAS

LOSAS
CONCRETO
DE
PREFABRICADAS

REPRESENTACIÓN EN DIBUJO: DOMOS

LOSAS
CONCRETO
DE
PREFABRICADAS

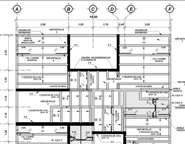
EMPOTRAMIENTOS TÍPICOS VIGUETA Y BOVEDILLA

LOSAS DE CONCRETO PREFABRICADAS

Fundición de concreto de 0.05 de espesor:

Vigueta de 0.10

hasta 5.00 m. de luz

espesor t= 0.15

Vigueta de 0.15 de 5.00 m. – 7.50 m. de luz

espesor t= 0.20

Vigueta de 0.20 de 7.50 m. – 10.00 m. de luz

espesor t= 0.25

ESPESOR DE LOSA DE ACUERDO A LUZ

LOSAS DE CONCRETO PREFABRICADAS

> A partir de los 4.00 m. se debe de colocar viga rigidizante a L/2

> Opciones de armado:

-

Sección 0.10 x 0.15 >> 2 no. 3 + esl. no. 2 @ 0.20

-

Sección 0.15 x 0.15 >> 4 no. 3 + est. no. 2 @ 0.20

RIGIDIZANTE (perpendicular a viguetas)

LOSAS DE CONCRETO PREFABRICADAS

RIGIDIZANTE

LOSAS
CONCRETO
DE
PREFABRICADAS

RIGIDIZANTE

LOSAS
DE CONCRETO PREFABRICADAS

RIGIDIZANTE

LOSAS
DE CONCRETO PREFABRICADAS

La contra flecha deberá bajar en dos etapas:

1. Peso de la bovedilla

2. Peso de la capa de compresión

ENTARIMADOS

LOSAS DE CONCRETO PREFABRICADAS

MONTAJE

LOSAS DE CONCRETO PREFABRICADAS

MONTAJE

LOSAS DE CONCRETO PREFABRICADAS

MONTAJE

LOSAS DE CONCRETO PREFABRICADAS

VIGUETA DOBLE BAJO MURO TABIQUE

LOSAS
DE CONCRETO PREFABRICADAS

TECHOS INCLINADOS

LOSAS
CONCRETO PREFABRICADAS
DE

TECHOS INCLINADOS

LOSAS
CONCRETO PREFABRICADAS
DE

TECHOS INCLINADOS

LOSAS
DE CONCRETO PREFABRICADAS

TECHOS INCLINADOS

Viga cumbrera

Bastones

LOSAS DE CONCRETO PREFABRICADAS

Moldura tipo pecho de paloma de poliestireno

TECHOS INCLINADOS

LOSAS
CONCRETO PREFABRICADAS
DE

Electromalla:

> 6.00 m de largo x 2.35 m de ancho

> 14.10 m² de área bruta

> Traslape por temperatura 0.15 m

Casas: > 10/10 y 9/9

Edificios: > 7/7 y 6/6

Electromalla:

> 11.68 ≈ 12 m² de área útil

> Cuadros de 15 x 15 cm. (6” x 6”)

> Fabricada con varilla de acero Grado 70

ARMADOS: ELECTROMALLA

LOSAS DE CONCRETO PREFABRICADAS

Aplicaciones Sugeridas

• 10/10 Banquetas delgadas, cenefas, planchas prefabricadas.

• 9/9 Refuerzo para losas prefabricadas 5-6 cms. Prefabricados en general. Pisos: tráfico liviano hasta 5cms.

• 8/8 Refuerzo para losas prefabricadas 5-6 cms. Tabiques de concreto. Pisos: 7-8 cms.

• 7/7 Refuerzo para losas prefabricadas 7-8 cms. Paredes de tabique y carga. Pisos: tráfico liviano

8-9 cms.

• 6/6 Refuerzo para fundiciones de 9 . Paredes de Carga. Losas de techo (chequear diseño). Pisos tráfico medio 10 cms. Paredes de piscinas y cisternas. Seguridad techos de bodegas, balcones y rejas.

• 4.5/4.5 Refuerzo estructural para fundiciones de 10 a 12 . Losas de techo (chequear diseño).

Pisos tráfico semipesado 12-15 cms

• NOTA: Para espesores mayores a 12 electromalla:

Espesores: 15 cms. = 2 mallas 7/7 >> . = 2 mallas 4.5/4.5 • Traslapes: Se traslapa según se indica en las figuras siguientes: (ACI 318 11, Sección 12.7)

ELECTROMALLA

LOSAS DE CONCRETO PREFABRICADAS

Silletas

ARMADOS: ELECTROMALLA > separadores

LOSAS
DE CONCRETO PREFABRICADAS

> Electromalla 6”x6” 9/9

> Bastones Ø 1/2“ x L/4 @ vigueta

ARMADOS

LOSAS DE CONCRETO PREFABRICADAS

INSTALACIONES

LOSAS DE CONCRETO PREFABRICADAS

FUNDICIÓN

Revenimiento

LOSAS DE CONCRETO PREFABRICADAS

FUNDICIÓN

LOSAS
DE CONCRETO PREFABRICADAS

FUNDICIÓN Y CURADO

LOSAS
DE CONCRETO PREFABRICADAS

FUNDICIÓN Y CURADO

LOSAS
CONCRETO PREFABRICADAS
DE
Antisol

CUANTIFICACIÓN

1. AMBIENTE: 4.75 m x 7.50 m (ejes)

LOSAS
DE CONCRETO PREFABRICADAS

2. VIGUETAS: APOYADAS EN “SENTIDO CORTO”

Separación entre viguetas: @ 0.65 según detalle (a ejes)

LOSAS DE CONCRETO PREFABRICADAS

2. VIGUETAS: APOYADAS EN “SENTIDO CORTO”

Longitud = 7.75 m - 0.15 m (muros) = 7.60 m

7.60 m / 0.65 m (separación entre viguetas) = 11.69 ≈ 11 viguetas

Largo vigueta: 4.75 m + 0.08 m (0.04 m c/lado apoyo vigueta en extremos en solera) - 0.15 m (muros) = 4.68 m

11 viguetas de 4.68 m

LOSAS DE CONCRETO PREFABRICADAS

3. BOVEDILLAS: 0.24 X 0.55 X 0.10 m

En el sentido de los 4.75 m: 4.75 m - 0.15 m (muros) / 0.24 (ancho bovedilla ) = 19.17 ≈ 20 bovedillas por c/espacio. 20 bovedillas por c/espacio x 12 espacios = 240 bovedillas

* Del total se deberán ajustar (cortar) 31 bovedillas

LOSAS DE CONCRETO PREFABRICADAS

4. BASTONES: L/4 @ VIGUETA  1/2”

Longitud bastón:

4.75 m / 4 = 1.19 m

1.19 m + 0.075 m (mitad muro) + 0.138 (doblez) = 1.40 ml longitud total

11 viguetas x 2 lados x 1.40 m = 30.81 ml

30.81 m / 5.60 m (traslape) = 5.50 ≈ 6 varillas  1/2“

LOSAS
CONCRETO PREFABRICADAS
DE

5. RIGIDIZANTE: L = 4.75 m > 4 m >> si lleva

* Cuantificación hierro y concreto por método conocido

LOSAS DE CONCRETO PREFABRICADAS

6. ELECTROMALLA: 6 m x 2.35 m > 6” x 6” > 9/9

Área útil: 6 m x 2.35 m - 0.15 m (traslape por temperatura en todos los sentidos) =

5.70 m x 2.05 m = 11.685 m2

Área interior del ambiente: 7.35 m x 4.60 m = 33.81 m2

33.81 m2 / 11.685 m2 = 2.89 ≈ 3 electromallas

Silletas: 33.81 m2 x 3u / m2 = 102 u

LOSAS DE CONCRETO PREFABRICADAS

7. CONCRETO: Rendimiento

Luz = 4.60 m

Rendimiento = 0.070 m3/m2

LOSAS DE CONCRETO PREFABRICADAS
Vigueta bw (cm) d (cm) B (cm) h (cm) t (cm) Peso propio (kg/m2) Cantidad de concreto (m3/m2) Luz máxima (m) JX - 10 10 4 65 10 5 225 0.062 4.50 JX - 15 10 4 65 15 5 280 0.070 5.15 J4 - 10 16 4 71 10 5 240 0.067 5.40 J4 - 15 16 4 71 15 5 275 0.079 6.25 JJ - 10 16 6 71 10 5 240 0.062 5.90 JJ - 15 16 6 71 15 5 275 0.074 6.80 JJ - 20 16 6 71 20 5 320 0.086 7.55 J - 20 16 10 71 20 5 320 0.076 10.10 TABLA DE DIMENSIONES LOSA DE VIGUETA Y BOVEDILLA PRECON RENDIMIENTO DE CONCRETO M3 / M2

7. CONCRETO: Rendimiento

Área = 4.60 m x 7.35 m = 33.81 m2

33.81 m2 x 0.070 m3/m2 = 2.37 m3

* Cuantificación materiales concreto por método conocido

LOSAS DE CONCRETO PREFABRICADAS

8. SOLERA FINAL O DE CORONA:

* Cuantificación materiales: formaleta, hierro, alambre y concreto por método conocido

9. VIGAS:

* Cuantificación materiales: formaleta, hierro, alambre y concreto por método conocido

LOSAS DE CONCRETO PREFABRICADAS

Turn static files into dynamic content formats.

Create a flipbook
Issuu converts static files into: digital portfolios, online yearbooks, online catalogs, digital photo albums and more. Sign up and create your flipbook.