

![]()



01

TRUCK CENTER REQUE

02 03
COLEGIO PRIVADO
LA PURISIMA

HOSPITAL TIPO II FERREÑAFE-PUEBLO NUEVO

PROYECTO LAS ALAMEDAS

05 06

VIVIENDA NUEVA ERA 04 07
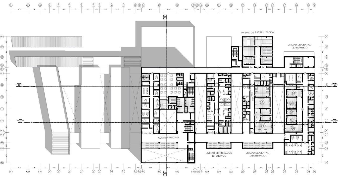
CENTRO MEDICO LUNA VICTORIA

RENDERS INTERIORES Y EXTERIORES








Lambayeque- Perú 942929243 @luisbaltazar.arq
Luis Baltazar baltazarluis56@gmail.com
www.linkedin.com/in/luis-baltazar-5b51b2153
https://www.behance.net/luisbaltazar3
Bienvenido a mi portafolio de arquitectura.
Me llamo Luis, soy bachiller de la Escuela Profesional de Arquitectura de la Universidad Nacional Pedro Ruiz Gallo, Lambayeque- Perú.
Me apasiona el diseño creativo, la construcción de espacios funcionales y estéticamente atractivos, mi experiencia abarca desde proyectos residenciales, comerciales hasta proyectos institucionales y de diseño urbano. He trabajado en equipos multidisciplinarios, lo que me ha brindado una perspectiva integral de la arquitectura y una capacidad para colaborar eficazmente con profesionales de diferentes campos.
Además, me considero una persona con habilidades sólidas en software de diseño asistido por computadora (CAD) y renderizado arquitectónico, lo que me permite comunicar mis ideas de manera efectiva y precisa. Soy consciente de la importancia de mantenerme actualizado con las últimas tendencias y avances en la industria, por lo que estoy constantemente buscando oportunidades de aprendizaje y desarrollo profesional.
Este portafolio reúne una selección de proyectos que desarrolle a lo largo de mi formación académica y profesional, que reflejan mi estilo y quien soy.
Les agradezco su atención y quedo a su disposición para ampliar cualquier información o para discutir posibles colaboraciones, pueden ver mas de mi trabajo en mi pagina de Instagram, adjunto el QR.

FORMACION
• Bachiller en Arquitectura
Universidad Nacional Pedro Ruiz Gallo Lambayeque- Perú (2016-2023).
APTITUDES
• Responsable
• Creativo
• Trabajo en equipo
• Honesto
SOFTWARE
• AutoCAD
• Sketchup
• Archicad
• Revit
• Adobe Photoshop
• Trabajo bajo presión
• Organizado
• Comunicación efectiva
• Empático
• Lumion
• Enscape
• V-ray
• Filmora
• Microsoft Office
IDIOMAS
• Español – Idioma nativo
• Ingles - Básico
EXPERIENCIA LABORAL
Constructora e Inmobiliaria MART S.A.C.(2024- actualidad)- Chiclayo- Perú
. Asistente en el área de arquitectura
• Diseño y desarrollo de proyectos arquitectónicos
• Elaboración de planos y documentación técnica de expedientes públicos ( programa de empleo temporal Llankasun).
• Modelado arquitectónico 3d.
• Renderización y recorrido virtual de calidad para presentación y marketing de proyectos.
Freelancer. (2022- actualidad)- Chiclayo- Perú / Bogotá- Colombia.
• Diseño y desarrollo de proyectos arquitectónicos
• Elaboración de planos y documentación técnica
• Modelado arquitectónico 3d.
• Renderizacion y recorrido virtual de calidad para presentación y marketing de proyectos.
SD Constructora S.A.C.- (2021-2022) - Chiclayo- Perú Practicas pre profesionales
• Elaboración de planos y documentación técnica.
• Diseño interior de proyectos residenciales y comerciales.
• Modelado arquitectónico y de muebles 3d.
• Renderizacion de calidad para presentación y marketing de proyectos.
Constructora y Consultoría REBS.- (2018-2019) -Chiclayo- Perú
• Diseño interior de proyectos residenciales y comerciales.
• Modelado arquitectónico 3d.
• Renderizacion y recorrido virtual de calidad para presentación y marketing de proyectos.
D y C Arquitectos- (2018) -Chiclayo- Perú
• Diseño interior de proyectos residenciales y comerciales.
• Modelado arquitectónico 3d.
• Renderizacion de calidad para presentación y marketing de proyectos.
Este proyecto académico lo desarrolle en el Taller de Diseño Arquitectónico V, en la Escuela Profesional de Arquitectura de la Universidad Nacional Pedro Ruiz Gallo.
Se propone este proyecto después de un trabajo de campo estudiando el flujo vehicular de la ciudad de reque- Chiclayo , concluyendo que el mayor flujo es de autos es de carga pesada , ya que por esta ciudad pasa la panamericana norte , por lo que se propone un proyecto conectado a la futura autopista el sol para evitar así evitar el recorrido de estos camiones de carga pesada , contribuyendo a la seguridad de los pobladores.
Este proyecto tiene como objetivo ayudar a brindar seguridad a los pobladores y evitar el desorden en la carretera.









Este proyecto académico lo desarrolle en el Taller de Diseño Arquitectónico V, en la Escuela Profesional de Arquitectura de la Universidad Nacional Pedro Ruiz Gallo.
Se propone este proyecto después de un trabajo de campo estudiando el flujo vehicular de la ciudad de reque- Chiclayo , concluyendo que el mayor flujo es de autos es de carga pesada , ya que por esta ciudad pasa la panamericana norte , por lo que se propone un proyecto conectado a la futura autopista el sol para evitar así evitar el recorrido de estos camiones de carga pesada , contribuyendo a la seguridad de los pobladores.
Este proyecte tiene como objetivo ayudar a brindar seguridad a los pobladores y evitar el desorden en la carretera.


ELEVACION PRINCIPAL

ELEVACION LATERAL






SEGUNDO NIVEL









Este proyecto académico lo desarrolle en el Taller de Diseño Arquitectónico V, en la Escuela Profesional de Arquitectura de la Universidad Nacional Pedro Ruiz Gallo.
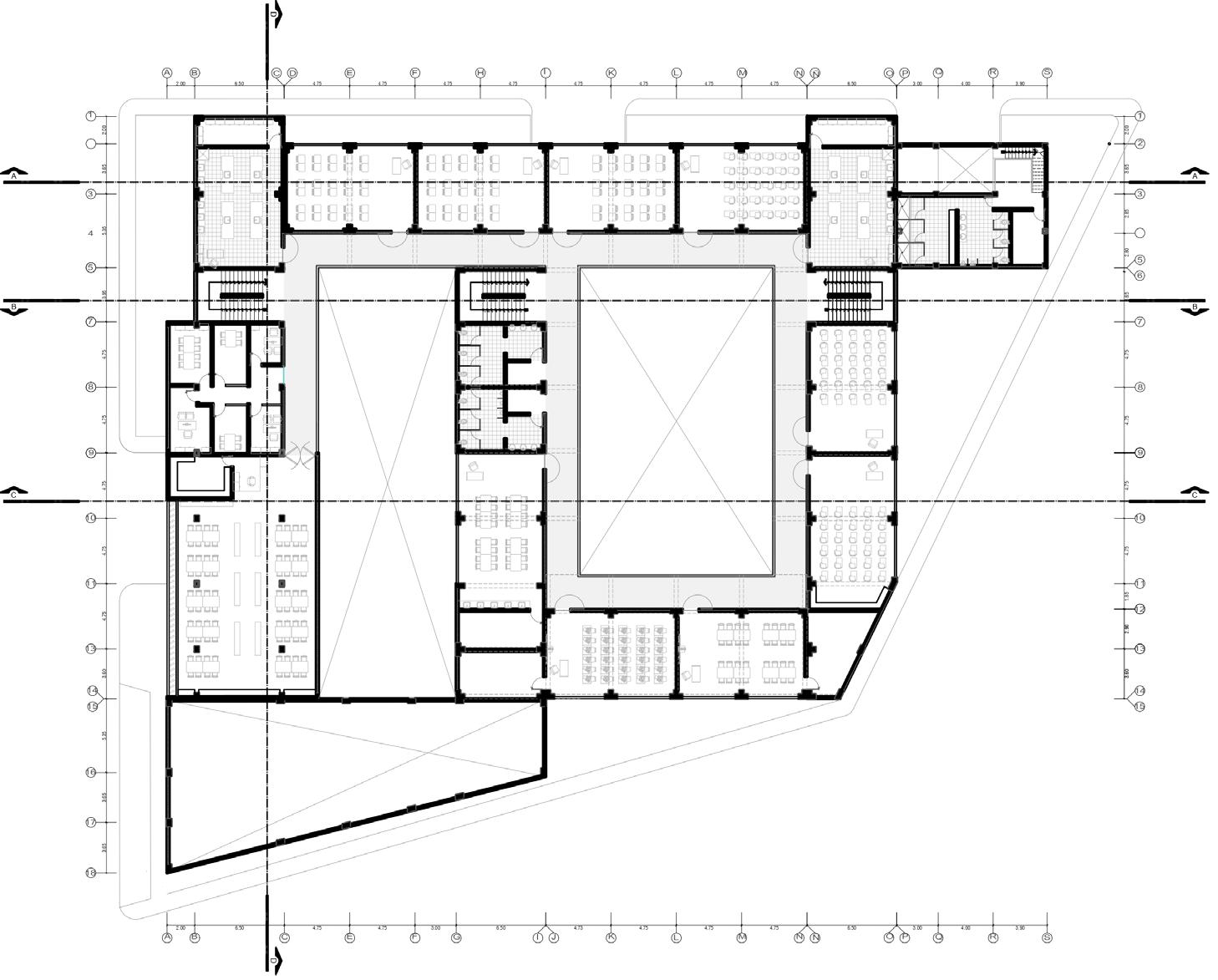
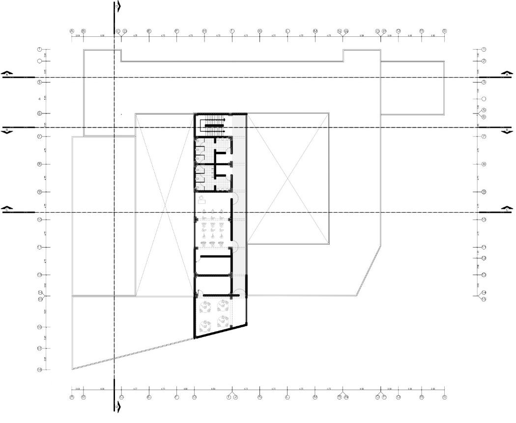
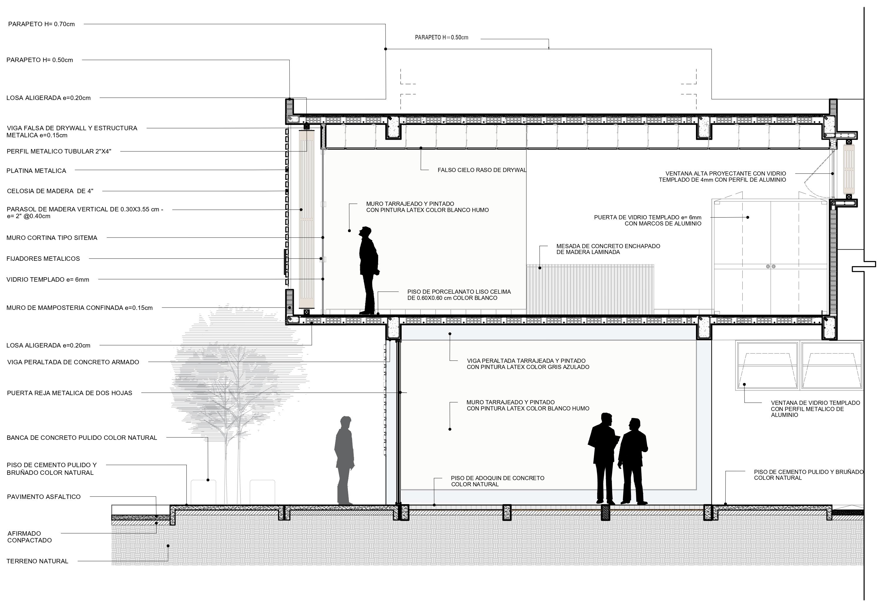
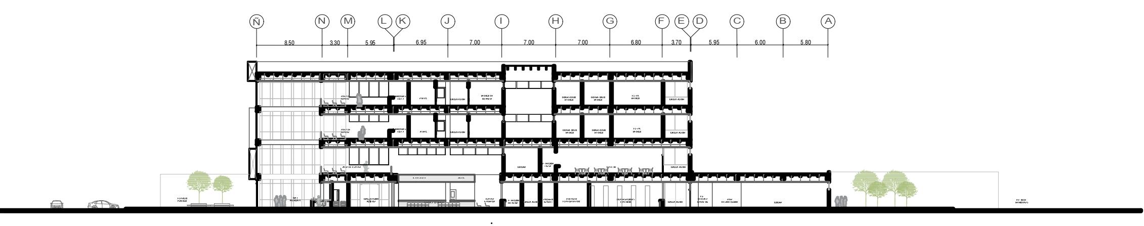
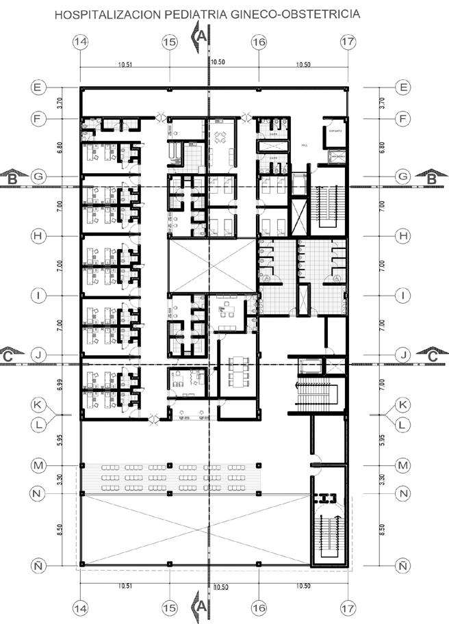
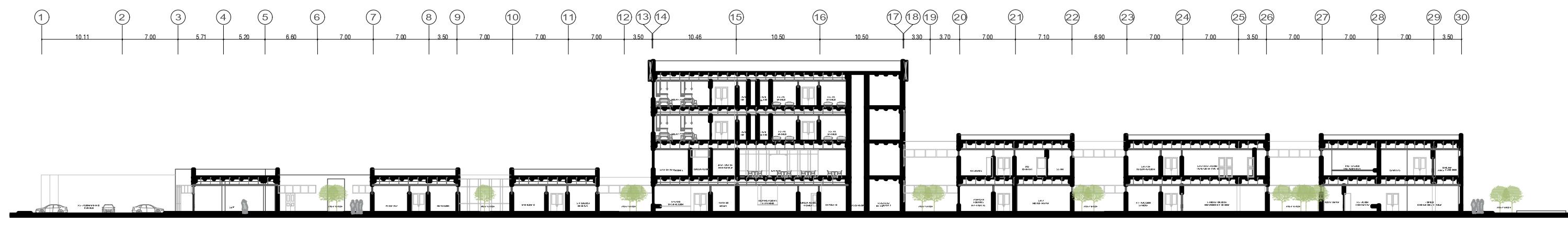
Se propone este proyecto después de un trabajo de campo estudiando el flujo vehicular de la ciudad de Ferreñafe- Chiclayo , teniendo como objetivo prestar un mejor servicio de salud, enfocado en la prevención y atención de las enfermedades que mas aquejan a la población, así como también busca modernizar la infraestructura de los establecimientos de salud y mejorar la calidad de atención brindada a la población.

PRIMER NIVEL


SEGUNDO NIVEL












Este proyecto consistió en el diseño interior de un departamento completo siguiendo las indicaciones y paleta de colores de las dos clientas que deseaban vivir en un departamento que se vea moderno, minimalista y que se sienta confortable.
La siguiente edificación cuenta con ambientes como: Recibidor
• Sala-comedor
• Comedor
• Cocina-lavandería
• SS. HH
• Dormitorio Principal+ SS. HH
• Dormitorio secundario
















Este interesante proyecto fue realizado para la Constructora e Inmobiliaria Nueva Era, ubicada en la ciudad de Chiclayo- Lambayeque.
El proyecto consistió en el modelado 3d de un modulo de vivienda de dos niveles, así como también la realización de imágenes 3d(renders) en calidad HD de cada uno de sus ambientes y por ultimo se realizo un video recorrido 3d de alta calidad para su posterior uso publicitario, con el fin de promocionar y vender estos módulos de viviendas ofrecidas en el proyecto de habilitación urbana.












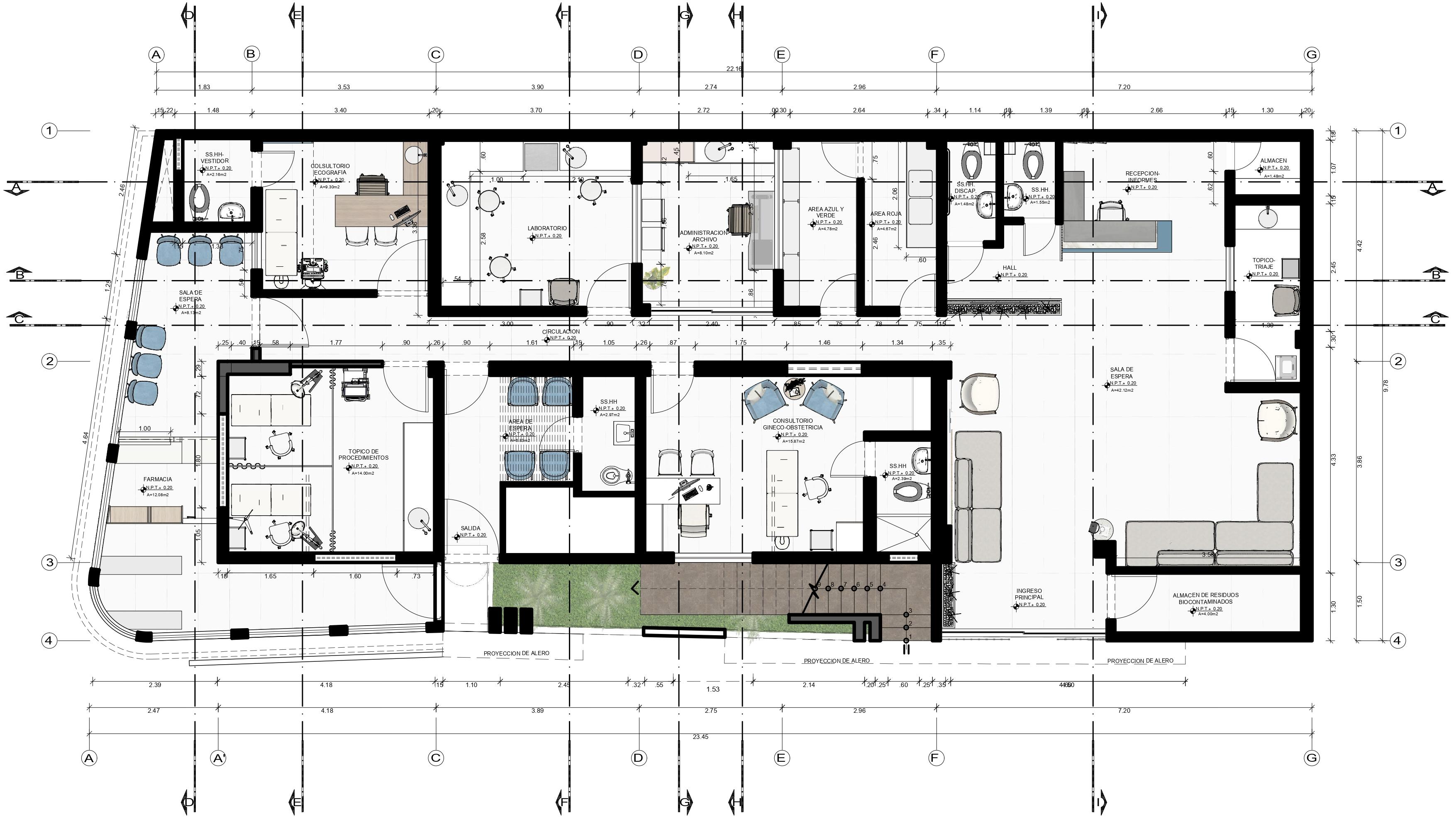
Este proyecto consistió en el rediseño de las dos fachadas del centro médico, así como también el diseño interior de los ambientes, siguiendo las indicaciones y necesidades del cliente que deseaban renovar y reubicar los ambientes de su clínica ya que en un principio solo era la adaptación del primer piso de su vivienda.
La siguiente edificación cuenta con ambientes como:
• Sala de espera
• Tópico- triaje
• Recepción
• Administraciónarchivo
• Consultorio ginecoobstetricia
• Laboratorio
• Sala de espera
• Área de estudio
• Tópico de procedimientos
• Consultorio ecografía
• SS. HH-vestidor
• Farmacia
• Almacén
• SS. HH












A continuación muestro una serie de renders tanto exteriores como interiores realizados para diferentes empezar del área de la construcción.
Cada una de estos renders fueron un desafío ya que pusieron a prueba diferentes habilidades del área de la visualización, logrando como resultados renders fotorrealistas, que puedan dar la sensación de apreciar y entender un proyecto a todas las personas de manera clara y sencilla.






























