taller v-upc

Page 1

CENTRO

ARQUITECTOS: • UGARTE, Mauricio • VARILLAS, Federico
DE EDUCACIÓN NATURAL LUIS ALDAIR AR5P
• Terreno. 600m2 ………………1 • Hotel GHL Lago Titicaca…..…2 • Circulación 5m de ancho…….3 • Ciudad………………………….4 1 2 3 4 Lago Titicaca MASTER PLAN

UPC

FACULTAD

ARQUITECTURA ARQUITECTURA

UGARTE, Mauricio Federico

ESCALA GRAFICA. 0 1 3 6 11 1
CIENCIAS
DE
CENTRO DE 11 JULIO 2022 PROYECTO
Sardinel h=.10m Sardinel h=.10m DOBLE PUERTA Barandah=.10m Ramp xx% 2 1 3 4 ÁQUINAS Sardinel h=.10m ÓNDE TERRAZA PISO2 DOBLE PUERTA PLANTA 1ER PISO ESCALA 1/ PLANO PISO 1 PLANTA PISO 1

UPC

0 1 3 6 11 NUM DE PLANO. 2FECHA. JUN/2022
UNIVERSIDAD DECIENCIAS APLICADAS FACULTAD DE ARQUITECTURA CURSO TV ARQUITECTURA Y MEDIO AMBIENTE SECCIÓN AR5P ARQUITECTOS: UGARTE, Mauricio VARILLAS, Federico ALUMNO LLACTARIMAYMINAYA, Luis Aldair Barandah=.90m 3 4 Barandah=.90m Barandah=.90m ÓNDELPISO3 ÓNDELPISO3 2 1 ÓNDELPISO1 ÁQUINAS PLANTA 2DO PISO ESCALA 1/ FECHA 11 JULIO 2022 PROYECTO CENTRO DE EDUCACIÓN NATURAL PLANO PLANO PISO 2 PLANO PISO 2 PLANTA PISO 1PLANTA PISO 2

UPC

DE ARQUITECTURA ARQUITECTURA

UGARTE, Mauricio VARILLAS, Federico

LLACTARIMAYMINAYA,

ESCALA GRAFICA. 0 1 3 6 11 3
CIENCIAS FACULTAD
PROYECTO CENTRO DE Barandah=.90m 3 4 Sardinel h=.90m PROYECCIÓN DE P2 2 1 PROYECCIÓN DE MUROP2 ÁQUINAS ARQUITECTOS:
ALUMNO
Luis Aldair PLANTA 3ER PISO ESCALA 1/ FECHA 11 JULIO 2022 PLANO PISO 3 PLANTA PISO 3

FACULTAD DE ARQUITECTURA ARQUITECTURA

Mauricio Federico

4 UPC CIENCIAS
CENTRO DE UGARTE,
ESCALA GRAFICA. 0 1 3 6 113 4 2 1 PROYECCIÓN DE TECHO PISO1 PROYECCIÓN DE TERRAZA PISO1 PROYECCIÓN DE TECHO PISO1 PROYECCIÓN DE TERRAZA PISO2 PLANTA TECHO ESCALA 1/ FECHA 11 JULIO 2022 PROYECTO PLANO TECHO PLANTA TECHO

PRINCIPAL

ELEVACIÓN ELEVACIÓN 1 NPT: 3.00 INGRESO
REVESTIMIENTO N PIEDRA FACHADA VIDRIADA
ELEVACIÓN ELEVACIÓN 2 NTT: 12.00 NPT:8.00 NPT: 4.00 NPT: 3.00
ELEVACIÓN 4 ELEVACIÓN NPT: 4.00 NPT: 8.00 NPT:12.00 NPT: 12.00 NTT: 16.00
CORTE A A CORTE NPT: 4.00 NPT: 8 00 NPT: 12.00

NPT:

NPT:

NPT:

NPT:

NPT:

CORTE B B CORTE
12.00
8.00 NPT: 4..00
14.00
10.00
6 00 NPT: 2.00

SALÓN 2

CAFETERÍA/ SNACK

SALA DE PROFESORES

DEPÓSITO

SALÓN 3

DESNIVEL DE 2M

ADMINISTRACIÓN RECEPCIÓN

C. GUARDIÁN

INGRESO PRINCIPAL

CORTE ISOMÉTRICO 3D
SSHH
VISTAS 3D
FACHADA PRINCIPAL
VISTAS 3D
VISTAS 3D
VISTAS 3D
VISTAS 3D
VISTAS 3D
VISTAS 3D
VISTAS 3D
VISTAS 3D
VISTAS 3D
VISTAS 3D
VISTAS 3D
RESTAURANTE
VISTAS 3D
VISTAS 3D
VISTAS 3D
VISTAS 3D
VISTAS 3D

BIBLIOTECAS

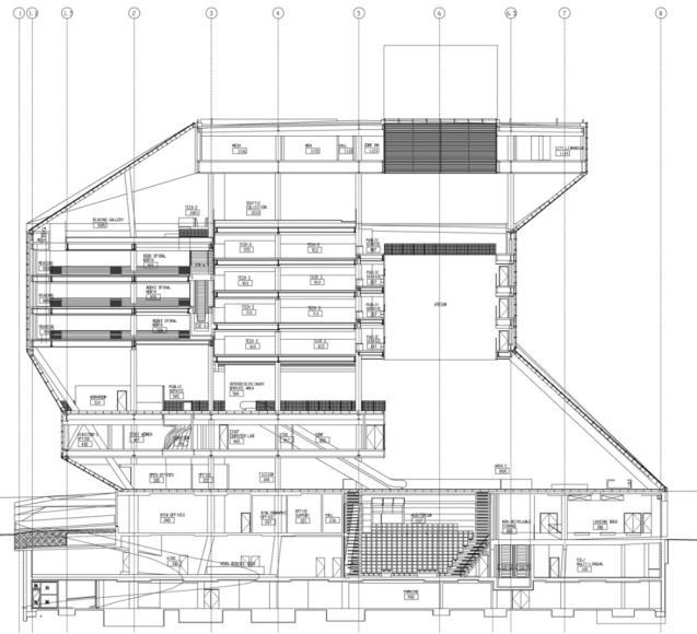
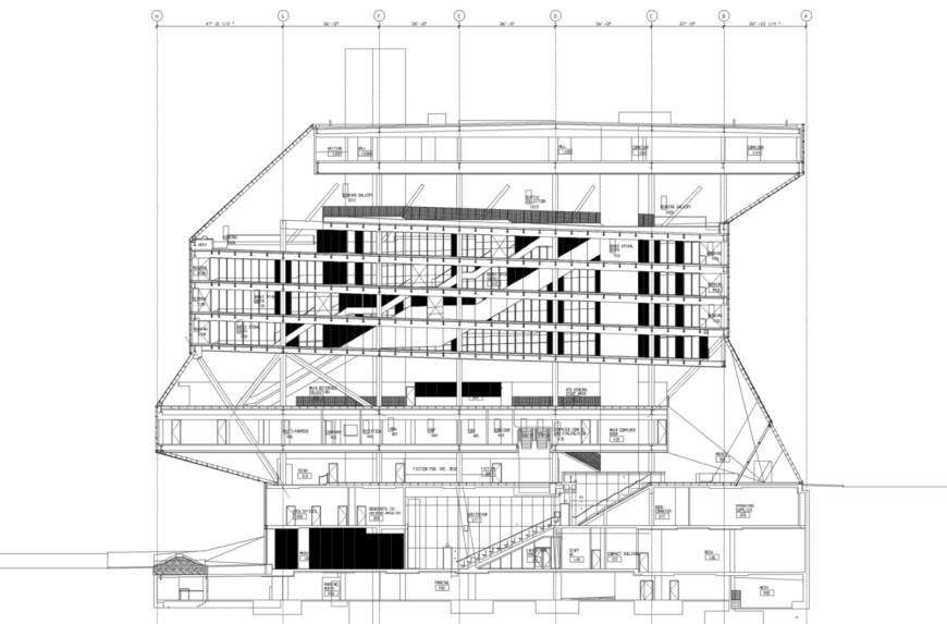
SEATTLE, ESTADOS UNIDOS

Arquitectos: LMN, OMA; LMN, OMA

Año : 2004

Fotografías :Philippe Ruault

REFERENTE

FORMA (INCLINADA)

Programa: Biblioteca Central para la red de bibliotecas de 28 sucursales de Seattle, incluyendo 33.700 metros cuadrados de oficinas, sala de lectura, espiral de libros, plataforma de reuniones, sala de estar, piso de personal, colección de niños, y auditorio, además de 4.600 metros cuadrados de estacionamientos.

• La idea principal es crear un concepto del primer museo submarino del mundo. Estará ubicado frente a la costa de Egipto, cerca de la nueva Biblioteca de Alejandría, donde Cleopatra una vez tuvo un palacio en una isla en una de las bahías más grandes del mundo construidas por humanos en el pasado, sumergida por terremotos en el siglo IV. .

1. Ref: BIBLIOTECA SEATLE
https://www.inspireli.com/en/awards/detail/3286

Arquitectos: LEE MUNDWILER ARQUITECTOS Área : 6200 m² Año : 2015

Ubicación: CHINA SHENZHEN

REFERENTE ESPACIALIDAD (DOS BLOQUES)

• El proyecto se divide en dos volúmenes.

• La linealidad y los ángulos extraños hacen referencia al telón de las raíces de los árboles y los giros en la laguna cerca que se encuentra al terreno.

CONCLUSIONES

El proyecto muestra una toma de partida a la idea que mencionaré en las próximas diapositivas, este hace referencia a la linealidad y curvo justificado.

2. Ref: CENTRO DE INVESTIGACIÓN Y MUSEO DE GEOLOGÍA DE DAPENG

Turn static files into dynamic content formats.

Create a flipbook
Issuu converts static files into: digital portfolios, online yearbooks, online catalogs, digital photo albums and more. Sign up and create your flipbook.
taller v-upc by Luis Aldair - Issuu