GESTION DE PROYECTO - PROYECTO INTEGRADOR - TORRE ALPHATA

Page 1

PROYECTO DE VIVIENDA PARA ESTUDIANTES EN EL DISTRITO CULTURAL UNIVERSITARIO

TORRE ALPHATA

EQUIPO: Bonilla Hurtado, Luis Enrique Meza Pérez Víctor Manuel Rios Preciado, Alan Raul PROFESOR: Martínez Carrazco Raúl Edilberto

UNIVERSIDAD DE GUADALAJARA Centro Universitario de Arte, Arquitectura y Diseño

1RA ETAPA

ÍNDICE DE CONTENIDO ETAPA DE INVESTIGACIÓN.............................................4 PROYECTO............................................................................5 LOCALIZACIÓN.....................................................................7 PREDIO..................................................................................8 CONTEXTO URBANO............................................................9 EQUIPAMIENTO..................................................................10 MEDIO FÍSICO NATURAL....................................................11 MEDIO FÍSICO TRANSFORMADO.......................................13 MEDIO SOCIO-ECONÓMICO...............................................14 INFRAESTRUCTURA...........................................................20 NORMATIVIDAD..................................................................27 EJEMPLOS ANÁLOGOS......................................................29 PROCESO CONCEPTUAL Y CREATIVO...........................35 PROGRAMA DE NECESIDADES..........................................36 EJES RECTORES Y CONCEPTO .........................................39 MAQUETA VOLUMÉTRICA..................................................41 PROYECTO ARQUITECTÓNICO...........................................43 PLANTAS.................................................................................44 CORTES....................................................................................51 ALZADOS.................................................................................53 RENDERS..................................................................................58 2DA ETAPA.......................................................................64 JUSTIFICACIÓN.......................................................................65 OBJETIVOS..............................................................................66 ACTORES Y RECURSOS...........................................................68 ESTIMACIÓN DE PROYECTO...................................................78 VIABILIDAD TÉCNICA Y OPERATIVA.......................................82 ANÁLISIS COSTO BENEFICIO..................................................86 3RA ETAPA.......................................................................92 ESTRATEGIA DE VENTA..........................................................93 PLANEACIÓN...........................................................................99

1.ETAPA DE INVESTIGACIÓN

T A L L E R D E G E S T I Ó N Y G
R E N C I A
E

PROYECTO DE VIVIENDA PARA ESTUDIANTES

La vivienda para estudiantes no es solo un espacio multicultural que alberga a los estudiantes durante el período en que están inscritos en instituciones educativas; representan, a través de su ocupación y utilización, los ideales educativos de sus diseñadores. Estos edificios, que además de los dormitorios son espacios de estudio, ocio y convivencia, buscan soluciones para conciliar una relación público / privado. Es posible percibir estas dinámicas en las soluciones internas, donde el espacio de lectura, la cocina comunitaria, la sala de juegos, etc. se suman a las habitaciones luminosas con espacio de estudio, que pueden incluir un baño privado, para permitir tanto la privacidad y la comodidad de un hogar como la coexistencia e intercambio de experiencias de una escuela o universidad.

EL PROYECTO

El proyecto consta de la implementación de un desarrollo de vivienda para estudiantes dentro del Distrito Cultural Universitario de la Universidad de Guadalajara, formando parte del "Plan Maestro Belenes", un proyecto urbano que busca fortalecer la vida cultural y universitaria en un punto estratégico para la población. Como un aporte de la Universidad de Guadalajara por promover e impulsar la cultura y las artes de Jalisco a nivel nacional e internacional, se constituyó el Fideicomiso Maestro para desarrollar el Proyecto del Centro Cultural Universitario, integrado por un programa urbano-arquitectónico consistente en equipamientos culturales y de entretenimiento, complementado por usos mixtos de tipo comercial, habitacional y de oficinas. Siendo preocupación de la Universidad de Guadalajara el contribuir en el desarrollo local, regional y nacional.

El Centro Cultural Universitario se constituye como un proyecto urbano de nivel metropolitano de la mayor trascendencia cultural y artística en la región del Occidente de México, y un hito urbano de vocación pública que servirá de foro a las aspiraciones culturales y artísticas de los jaliscienses

LOCALIZACIÓN

El proyecto del Centro Cultural Universitario se desarrolla en un predio de 26 hectáreas que integra y forma parte de la cobertura del Distrito Cultural “Los Belenes” polígono propiedad de la Universidad de Guadalajara con una extensión total de 173 hectáreas. Este se encuentra ubicado en las confluencias de la Av. Enrique Díaz de León y Anillo Periférico. Al norte colinda con un Centro Universitario; igual al poniente; además tiene como ventaja una conectividad a través de diversos medios de transporte público tales como una red de ciclovías, Mi Macro Periférico, rutas de transporte público urbano, Sistema de Bicicleta Pública y a 500 m. La linea 3 del tren ligero.

EL PREDIO

Topográficamente el terreno es prácticamente plano, se encuentra justo frente a un cruce peatonal a nivel sobre el periférico.

El polígono está conformado por 3 predios de dimensiones distintas, dando un total, según los datos cartográficos de 11,921,72 m2.

CONTEXTO URBANO

EQUIPAMIENTO URBANO Y DOSIFICACIÓN

EQUIPAMIENTO

MEDIO FÍSICO NATURAL

TOPOGRAFÍA,HIDROLOGÍA Y FLORA Y FAUNA

MEDIO FÍSICO NATURAL

A S O L E
T O
A M I E N

MEDIO FÍSICO TRANSFORMADO

RIESGOS Y VULNERABILIDADES

MEDIO SOCIO-ECONÓMICO

Extranjeros 28,341

Tomando en cuenta los últimos datos de la población foránea de la UdeG (2020), se puede estimar que alrededor del 10% de los alumnos de la Red Universitaria provienen de fuera de la ZMG.

Fuente: Union Jalisco (2020). UDG: 9% de admitidos al ciclo 2020 A son foráneos .Recuperado de: https://www.unionjalisco.mx/2020/01/17/udg 9 de admitidos al ciclo 2020 a son foraneos/

Locales 283,412

MEDIO SOCIO-ECONÓMICO

Dentro de la comunidad de estudiantes que provienen fuera de la ZMG, más de la mitad provienen del extranjero, cerca del 54%.

Nacionales 46%

Extranjeros 54%

Fuente: Universidad de Guadalajara (2018). Más estudiantes de intercambio llegan a estudiar a la UdeG. Recuperado de: https://www.udg.mx/es/noticia/mas estudiantes intercambio llegan estudiar udeg

MEDIO SOCIO-ECONÓMICO

De los estadosde orígenes de los alumnos nacionales, los más comunes eran de Sinaloa (13%), seguido por Chiapas (10%) y Ciudad de México (9%)

Fuente: Universidad de Guadalajara (2018). Más estudiantes de intercambio llegan a estudiar a la UdeG. Recuperado de: https://www.udg.mx/es/noticia/mas estudiantes intercambio llegan estudiar udeg

Otros 68% Sinaloa 13% Chiapas 10% CDMX 9%

MEDIO SOCIO-ECONÓMICO

Colombia

De los países de orígenes de los alumnos extranjeros, los más comunes eran de Colombia (40%), seguido por Peru (19%) y Alemania (18%)

Fuente: Universidad de Guadalajara (2018). Más estudiantes de intercambio llegan a estudiar a la UdeG. Recuperado de: https://www.udg.mx/es/noticia/mas estudiantes intercambio llegan estudiar udeg

40% Peru 19% Alemania 18% Francia 13% España 6% Otros 3%

MEDIO SOCIO-ECONÓMICO

Los alumnos no locales eligen con mayor frecuencia a carreras del CUCEA (33%), seguido por el CUCSH (23%), en tercer lugar el CUCS (16%), y el CUAAD en cuarto lugar (15%); el resto se reparte en los demás campus metropolitanos y regionales.

CUAAD 15%

Otros 13%

CUCS 16%

Fuente: Universidad de Guadalajara (2018). Más estudiantes de intercambio llegan a estudiar a la UdeG. Recuperado de: https://www.udg.mx/es/noticia/mas estudiantes intercambio llegan estudiar udeg

CUCEA 33% CUCSH 23%

Considerando que nuestro proyecto puede ofrecer espacio para un total de 440 alumnos, tomando en cuenta que en total se tienen 28,341 alumnos extranjeros, el proyecto podría albergar el 1.5% de esos alumnos extranjeros.

INFRAESTRUCTURA

DRENAJE Y ELECTRICIDAD

CUCEA (0.5KM) 5
minutos 2 minutos 1 minuto
7
CUCSH (0.7KM)
minutos 3 minutos 2 minutos
CUAAD (8.8KM) 48 minutos 33 minutos 18 minutos
CUCS (9.4KM) 58 minutos 28 minutos 21 minutos
CUCEI (16.8KM) 57 minutos 46 minutos 34 minutos
CUCBA (20.2KM) 1:42 horas 51 minutos 22 minutos
DISTRITO URBANO 2 "ARROYO HONDO" ZONIFICACIÓN USOS PERMITIDOS C.O.S C.U.S SUPERFICIE EN CARTOGRAFÍA AU-RN/CS-C4 (1) CS-B4,CS-D4, EI-B, EI-C, EI-D, EV-B. EV-C, EV-D 0.8 | 5,990M2 2.4 | 17,969M2 2.4 | 17,969M2 Comercial y Servicios Centrales Intensidad Alta
NORMATIVIDAD

NORMATIVIDAD

Artículo 136. La determinación de la superficie de las áreas de cesión para equipamiento, se efectuará considerando el tipo de zona de que se trate, determinadas en los Planes de Desarrollo Urbano de Centros de Población y en los Planes Parciales de Desarrollo Urbano, aplicándose los siguientes porcentajes:

Para las zonas habitacional plurifamiliar vertical densidad alta, (H4-V), la superficie relativa a la cesión se calculará a razón de 4.50 metros cuadrados por habitante (tomando en estos casos cinco habitantes por unidad de vivienda), ó 22.50 m2 por vivienda.

Artículo 337. Se requerirá de estudios de impacto en el tránsito como parte integral de los planes parciales o del proyecto definitivo de urbanización, en aquellas acciones urbanísticas y de edificación que por su naturaleza o la magnitud de sus efectos en el contexto urbano, se prevea que presenten impactos significativos de alcance zonal, urbano o regional.

VIVIENDA DE ESTUDIANTES / C.F MOLLER

El diseño de las nuevas viviendas de estudiantes de la Universidad del Sur de Dinamarca en Odense se basa en un fuerte espíritu de comunidad. Las 250 residencias de estudiantes se encuentran en tres edificios de 15 plantas conectados entre sí. Esto significa que el establecimiento no dispone de un lado delantero o trasero, sino que es atractivo desde los 360 grados. La forma distintiva del edificio hará que sea fácilmente reconocible en el campus, y anunciará claramente su contenido residencial.

El terreno se inclina suavemente hacia un humedal alargado hacia el sur y el edificio residencial se convierte en parte de la estructura del parque científico, con las tres torres que forman un punto de referencia claro en el extremo oriental del desarrollo. Las tres torres se rotan una respecto a la otra, inscribiéndolas en ángulos facetados del parque científico, mientras que la dirección de la plaza que une las torres se refiere al modernismo lineal del campus universitario.

Los dormitorios están situados en las caras exteriores de las tres torres, donde todos disfrutan de vistas al campo sin toparse con las habitaciones vecinas, debido a las vueltas y giros del edificio. Cada habitación tiene un balcón privado, que ayuda tanto a que las casas sean atractivas, como a que tengan una función ambiental: Los balcones internos de sombreado ayudan a controlar el aumento de energía solar, lo que contribuye a un importante ahorro energético.

Moviéndose hacia el interior de las habitaciones privadas hacia la cocina común en el centro, las zonas se vuelven gradualmente más y más colectivas: Una sala de estar compartida actúa como un lugar de reunión social para un pequeño grupo de siete habitaciones. Las cocinas en el centro de cada piso son compartidas por todos, y cuentan con fachadas acristaladas que garantizan la luz y vistas en tres direcciones.

Las zonas comunes no sólo están presentes en las plantas residenciales: El Pasillo del Campus también cuenta con una cafetería en la planta baja, así como salas independientes, áreas de estudio y espacios de fiesta en las plantas superiores, con terrazas en varios niveles, tiene una magnífica vista de la ciudad y la universidad.

SÍNTESIS

Los elementos a destacar de este ejemplo análogo es el sentido de comunidad y el espacio común. Lo más importante que se quería rescatar es el generar un espacio en el que los estudiantes puedan formar parte de una comunidad, así como generar un espacio primordial para la convivencia colectiva de todos los miembros del conjunto. Igualmente, otro elemento volumetrico que se quiere rescatar es la sensación del movimiento de los edificios. Como se van rotando los elementos para dar la alusión de movimiento.

2. PROCESO CONCEPTUAL Y CREATIVO

T A L L E R D E G E S T I Ó N
G
R E
C I A
Y
E
N

PROGRAMA DE NECESIDAD

PROGRAMA DE NECESIDADES

PROGRAMA DE NECESIDADES

EJES RECTORES Y CONCEPTO

Como primera instancia y tomando en cuando el análisis previo realizado, se comienza definiendo los ejes principales que definirán el proyecto, en este caso, el primer eje siguiendo una orientación norte-sur; este genera una circulación de manera transversal sobre el predio, además marca una de las rutas para que sea posible integrar una conexión con el CUCSH Belenes, lo mismo sucede con el segundo eje definido de oriente a poniente. Se establecen zonificaciones generales en las que el área administrativa y social están juntas en un núcleo, siendo los servicios complementarios y el área de ocio espacios secundarios que pueden ser conectados por puentes.

El área de acceso para vehículos al igual que la deportiva son planteadas al frente del proyecto, además, se propone un gran espacio verde central que funja como remate visual.

En cuanto al área en la que se desarrollará el ámbito habitacional, se propone que se trate de una sola torre que esté conformada por dos volúmenes iguales los cuales sean conectados por un puente en cada nivel que ayude a la circulación vertical y área de servicios necesarios, sin embargo, para no generar monotoneidad en el conjunto, una de estas será desplazada generando un giro de aproximadamente 15° que permita un sentido de movimiento y que a su vez rompa con la ortogonalidad. Siendo así, el ángulo de visión hacia el área poniente del Distrito Cultural Universitario sería más visible, generando uno de los principales atractivos del proyecto.

Lo mencionado con anterioridad queda integrado en el conjunto, desarrollándo caminamientos que crucen norte-sur y oriente-poniente a lo largo del predio, para generar conectividades a lo largo del complejo.

En el resto de los espacios se desarrollan el área principal habitacional en el sector norponiente del terreno, mientras que con la ayuda de puentes unos edificios secundarios ayudan a desarrollar los espacios de servicio y recreación faltantes. Cabe mencionar que el proyecto en su zona exterior estará abierto a todos fungiendo como espacio público y de aprovechamiento para la sociedad.

EJ

EJES RECTORES Y CONCEPTO

MAQUETA VOLUMÉTRICA

MAQUETA VOLUMÉTRICA

3. PROYECTO ARQUITECTÓNICO

T A L L E R D E G E S T I Ó N
G
R E
C I A
Y
E
N

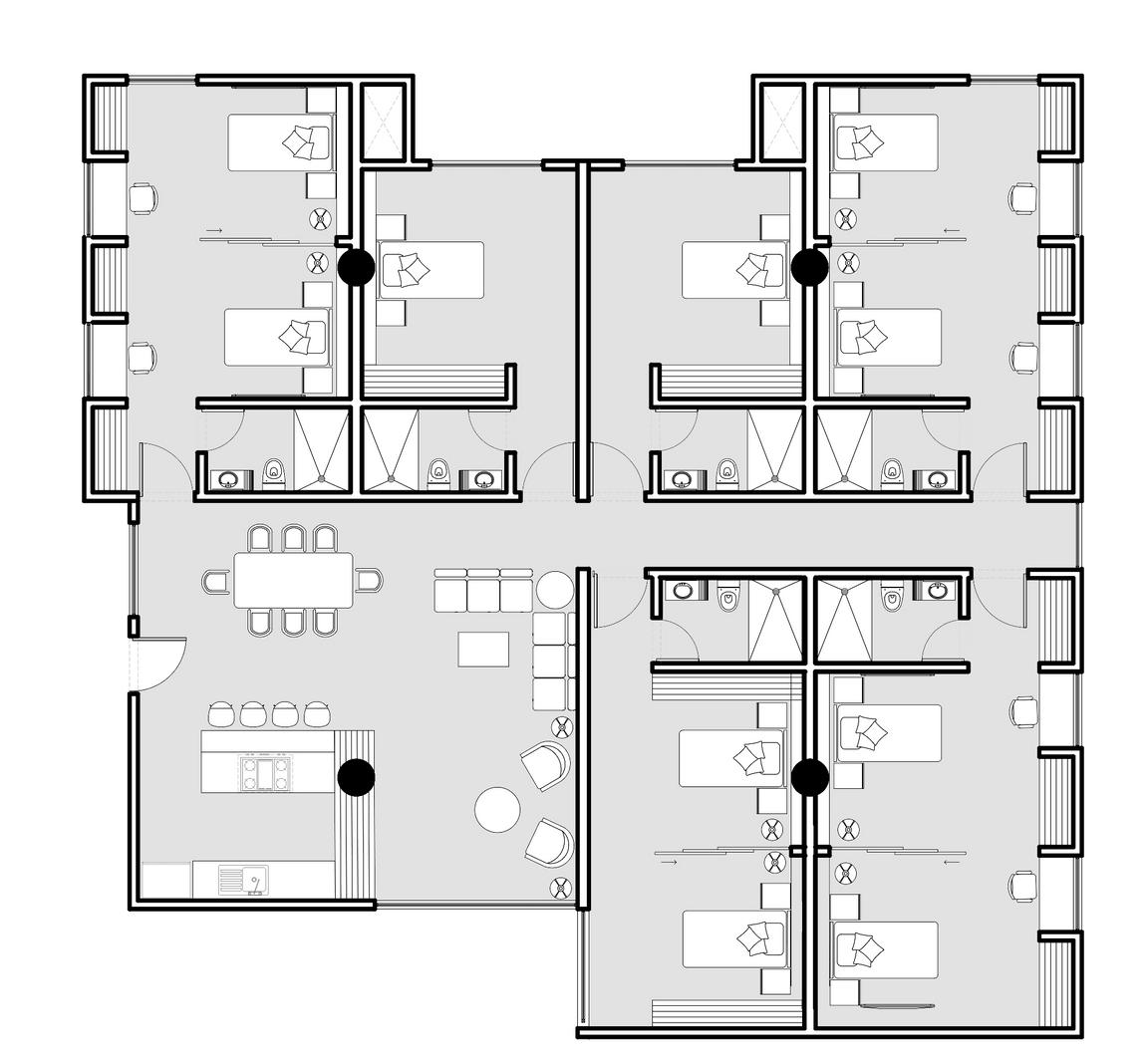
A N T A S A R Q U I T E C T Ó N I C A S

P L
PLANTA SÓTANO
PLANTA
DEPARTAMENTO
ESTUDIANTES P L
TIPO
PARA
A N T A S A R Q U I T E C T Ó N I C A S
ANTA TIPO PARTAMENTOS -5, N7-10 Y N12-14)
TA TIPO SERVICIOS Y N11)

A N T A S A R Q U I T E C T Ó N I C A S

P L

A N T A S A R Q U I T E C T Ó N I C A S

PLANTA DE CONJUNTO P L
CIÓN A-A'
SECCIÓN B-B'
CORTES
ALZADO PPAL
ALZADO LATERAL ESTE
ALZADO POSTERIOR
ATERAL OESTE

ZONIFICACIÓN

RENDERS

FACHADA PRINCIPAL VISTA DESDE PERIFERICO

RENDERS

FACHADA LAT. DERECHA VISTA DESDE BELENES

FACHADA LAT. DERECHA VISTA DESDE BELENES

RENDERS

FACHADA PRINCIPAL VISTA NORESTE

RENDERS

FACHADA PRINCIPAL

VISTA NOROESTE

RENDERS

FACHADA PRINCIPAL VISTA NORTE

RENDERS

INTERIOR RECEPCIÓN

2DA ETAPA

JUSTIFICACIÓN

Actualmente en la Zona Metropolitana de Guadalajara existe una escasez de lugares dignos para la vivienda, y sobre todo si se habla con lo que respecta a los estudiantes. Actualmente se puede estimar que tan solo en la red de la Universidad de Guadalajara existen alrededor de 900 alumnos que provienen del extranjero, los cuales requieren de una vivienda digna y accesible que cumpla sus necesidades. A pesar de que existe infraestructura en la ZMG que atiende a la vivienda exclusivamente estudiantil, muchas de estas carecen de servicios o las consideraciones necesarias para estos, como lo son las zonas de estudio, servicios recreativos, entre otros.

Fuente: Universidad de Guadalajara (2018). Más estudiantes de intercambio llegan a estudiar a la UdeG. Recuperado de: https://www.udg.mx/es/noticia/mas estudiantes intercambio-llegan-estudiar-udeg

OBJETIVOS

OBJETIVO GENERAL:

Generar un proyecto de vivienda digna para todos los tipos de estudiantes que lo requieran, con el fin de proporcionar todos los recursos y servicios básicos que necesiten, tomando en cuenta su vida académica, así como el descanso y la recreación, todo de manera accesible y segura para los alumnos.

OBJETIVOS

OBJETIVOS PARTICULARES:

·Proporcionar vivienda de calidad a todo tipo de estudiantes independientemente de su origen, locales, nacionales y extranjeros.

·Ofrecer viviendas accesibles y completas a los alumnos, considerando su situación y sus necesidades.

·Garantizar a los residentes de todos los servicios básicos y necesarios, tomando en cuenta sus necesidades como estudiantes.

·Facilitar espacios recreativos para promover las interacciones sociales y la convivencia comunitaria de los alumnos.

·Abastecer de espacios adecuados para el estudio y el trabajo de los estudiantes.

·Brindar una vivienda segura en todo momento, protegiendo el bienestar de todos los que ahí habitan.

·Proveer de viviendas y lugares tranquilos para el descanso correcto de los residentes.

E S T U D I O S P R O Y E C T O E J E C U T I V O I N G E N I E R Í A S F A C T I B I L I D A D T R A M I T O L O G Í A O B R A P R EC I E R R E 1 2 3 4 5 6 7 8 E N T R E G A 9
ETAPAS ANÁLISIS DE ACTORES Y RECURSOS
ESTUDIOS PREVIOS ANÁLISIS DE ACTORES Y RECURSOS PROTECCIÓN CIVIL IMPACTO AMBIENTAL CERTIFICACIONES IMPACTO VIAL ESPECIALISTA CONSULTOR ESPECIALISTA CONSULTOR MECÁNICA DE SUELOS CALIDAD DE INSUMOS INGENIERO ESPECIALISTA TOPOGRAFÍA TOPOGRAFO ETAPA 1 7 personas *subcontratación *subcontratación *subcontratación *subcontratación *subcontratación *subcontratación *subcontratación
PROYECTO
ACTORES
RECURSOS CONCEPTUAL ARQUITECTÓNICO ARQUITECTO PROYECTISTA DIBUJANTE D. INTERIORES ING. COSTOS CALCULISTA CONTRATISTA ANTEPROYECTO PROYECTISTA DIBUJANTE ETAPA 2 8 personas
ANÁLISIS DE
Y
EJECUTIVOS
ACABADOS HERRERÍA CARPINTERÍA PROYECTISTA DIBUJANTE PROYECTISTA DIBUJANTE ARQUITECTO ESPECIALISTA DIBUJANTE JARDINERÍA PAISAJISTA DIBUJANTE ALBAÑILERÍA PROYECTISTA DIBUJANTE ALUMINIO PROYECTISTA DIBUJANTE VENTANERÍA PROYECTISTA DIBUJANTE ETAPA 3 14 personas
ANÁLISIS DE ACTORES Y RECURSOS
INGENIERÍAS ANÁLISIS DE ACTORES Y RECURSOS ESTRUCTURAS ELÉCTRICO HIDROSANITARIO INTERCOMUNICACIÓN GAS AIRE ACONDICIONADO INGENIERO ESTRUCTURAL SISTEMA CONTRA INCENDIOS ESPECIALISTA EN SISTEMAS ELÉCTRICOS ESPECIALISTA EN SISTEMAS HIDROSANITARIOS ESPECIALISTA EN SISTEMAS DE INTERCOM. ESPECIALISTA EN SISTEMAS DE GAS ESPECIALISTA EN SISTEMAS DE A.C. ESPECIALISTA EN SISTEMAS CONTRA INCENDIOS ETAPA 4 7 personas *subcontratación *subcontratación *subcontratación *subcontratación *subcontratación *subcontratación *subcontratación
FACTIBILIDAD
DE ACTORES
RECURSOS SIAPA CFE AUXILIAR ADMINISTRATIVO AUXILIAR ADMINISTRATIVO USO DE SUELO AUXILIAR ADMINISTRATIVO ETAPA 5 3 personas *subcontratación *subcontratación *subcontratación
ANÁLISIS
Y

ANÁLISIS DE ACTORES Y RECURSOS

TRAMITOLOGÍA
TRAZOS, USOS Y DESTINOS MOVIMIENTOS DE TIERRA LICENCIA DE CONTRUCCIÓN SEGURO DE TRABAJADORES AUXILIAR ADMINISTRATIVO AUXILIAR ADMINISTRATIVO AUXILIAR ADMINISTRATIVO AUXILIAR ADMINISTRATIVO LICENCIA DE EXCAVACIÓN AUXILIAR ADMINISTRATIVO
6 5 personas
ETAPA
OBRA
RECURSOS PREELIMINARES CIMENTACIÓN ALBAÑILERÍA INSTALACIONES ACABADOS LIMPIEZA RESIDENTE DE OBRA CONTRATISTA ALBAÑIL ELECTRICISTA PINTOR TOPOGRAFO MAESTRO DE OBRA ENCARGADOS DE SUMINISTROS FONTANERO ALUMINERO AZULEJERO HERRERO CARPINTERO TÉCNICO DE INSTALACIONES PERSONAL DE LIMPIEZA HERRERO CARPINTERO ETAPA 7 17 personas
ANÁLISIS DE ACTORES Y

ANÁLISIS DE ACTORES Y RECURSOS

TRAMITOLOGÍA
HABITABILIDAD DICTÁMENES DE PROTECCIÓN CIVIL AUXILIAR ADMINISTRATIVO AUXILIAR ADMINISTRATIVO
2 personas *subcontratación *subcontratación
ETAPA 8

ANÁLISIS DE ACTORES Y RECURSOS

FIN DE OBRA

ETAPA 9 2 personas

ENTREGA DE OBRA RESIDENTE DE OBRA CONTRATISTA

ESTIMACIÓN Y EVALUACIÓN DEL PROYECTO

Este ultimo ciclo 2022B, la universidad de guadalajara recibio un total de 343 estudiantes extranjeros y 149 estudiantes de intercambio dentro del mismo pais. Es por esto que el conjunto habitacional busca:

Que los estudiantes foraneos puedan acceder a una vivienda asequible y de facil mobilidad que les permita desarrollar sus actividades universitarias de manera mas comoda. Que los estudiantes extranjeros que utilicen el complejo para vivir durante su estadia en el pais, puedan aprovechar el transporte publico cercano al mismo, para moverse facilmente por la ciudad.

1 2 ESTIMACIÓN Y EVALUACIÓN DEL PROYECTO Se busca tambien, que los estudiantes locales que busquen reducir los tiempos de transporte a sus centros educativos puedan contemplar el mudarse al complejo como una alternativa. 3 1 CUCEA 2 CUAAD HUENTITAN 3 CUCSH 4 CUCS 5 CUCEI 11 min - pie $9.50/$19.00 - 40 min - Macrobús calzada - Macrobús $9.50/$19.00 - 35 min - Macrobús calzada - Linea 3 Tren ligero $9.50/$19.00 52 min Macrobús calzada Macrobús parador $9.50/$19.00 - 45 min - Macrobús calzada - Linea 3 tren ligero 4 5

ESTIMACIÓN Y EVALUACIÓN DEL PROYECTO

Lo que pide el mercado

Lo que proponemos

Lo que otros no ofrecen

Se contemplan departamentos ded vivienda para estudiantes, modulos de departamentos para estos, y recamaras en venta dentro de casas ajenas.

Ameniddades para estudiantes Seguridad Cercania a transporte publico Precios adecuados

Areas de estudio Vigilancia 24/7 Accesibilidad de transporte publico

Ubicacion accesible Areas de descanso Cafeterias Comercio

Hab. compartidas Comunidad estudiantil Ingreso 24/7

Areas de comercio Areas de recreacion Areas de estudio Accesibilidad

Cafeteria en Azotea Ingresos seguros Areas de actividad fisica Planes de renta flexibles

Roof garden Controles de acceso Gimnasio

ESTIMACIÓN Y EVALUACIÓN DEL PROYECTO

La ubicacion cuenta con transporte publico regional y local Se ubica conectada con el CUCHS, y hay alta aluencia estudiantil Se cuenta con areas de estudio Facilita la habitabilidad de estudiantes extranjeros y foraneos Los departmentos compartidos permiten generar una comunidad sana

El proyecto respeta el arbolado existente en el predio. Diferentes tipos de habitacion segun las posibilidades de los estudiantes Contamos con atractivos comerciales y al aire libre

FORTALEZAS DEBILIDADES

El precio de renta por una habitacion puede no ser accesible para todo publico

El depender de transporte publico para el alumnado genera falta de movilidad en la noche La vialidad principal es peligrosa para el transito en bicicleta

AMENAZAS

Posible bajo flujo de estudiantes en temporadas vacacionales (estudiantes locales vacacionando en casa de familiares) Existe el riesgo de que los costos esten fuera de gran parte del mercado objetivo riesgos a la seguridad en altas horas de la noche peligro al transitar en bicicleta por cualquiera de las vialidades conectadas al complejo

OPORTUNIDADES

Complementar con amenidades que permitan la obtencion de material escolar o servicios de computacion para el complejo Impulsar un plan de renovacion urbana que permita una ciclovia que los usuarios puedan utilizar para su circulacion generar diferentes planes de renta mensual para acomodar los costos segun la situacion del alumnado Realizar programas de intercambio de idiomas que fomenten el interes y participacion de la comunidad local y extranjera

VIABILIDAD TÉCNICA Y OPERATIVA

A S P E C T O S A E V A L U A R

VIABILIDAD TÉCNICA Y OPERATIVA

SISTEMA CONSTRUCTIVO PROPUESTO

El criterio constructivo del proyecto está basado en juego de estructura metálica y concreto, conocido como losacero. Debido a las particularidades volumétricas que son presentadas en la plasticidad de este, es necesario implementar un sistema que sea capaz de generar el movimiento expresado en los volúmenes base del complejo, los cuales presentan principales irrgularidades.

Entre los materiales que conforman el sistema de la losacero se encuentran:

Deck metálico dentado Acero de refuerzo Acero por temperatura Pernos Concreto

V I A B I L I D A D T É C N I C A

DISEÑO DE ENVOLVENTE | CORTASOLES FIJOS DE MADERA

El cortasol que se suministra en secciones perfiladas, no sólo es ideal para aplicaciones como el revestimiento de fachada, sino también para otras aplicaciones exteriores; como celosías o control solar.

Son una novedosa solución arquitectónica muy estética gracias a la belleza de la madera natural. Estos cortasoles son diseñados para cubrir los espacios acristalados (vidrio) u otras superficies. Además, permiten controlar térmicamente las edificaciones donde son instalados.

Los listones regularmente tienen una longitud estándar de 2 metros, pero se pueden producir, bajo petición, hasta una longitud máxima de 5.8 m, y con dimensiones hasta de 30 x 30 cm. Sus propiedades mecánicas (flexión, tensión, compresión, cizalladura) lo capacitan para las aplicaciones en la construcción.

V I A B I L I D A D T É C N I C A
CORTASOL

CRITERIO

CONSTRUCTIVO | TECHOS VERDES

Una parte importante dentro de las implicaciones de este proyecto son los techos verdes y terrazas que fueron implementados, en los que se esperan que se desarrollen jardines transitables y espacios comunes para el disfrute de los estudiantes.

Esto resulta en la necesidad de implementar y adaptar techos verdes en el complejo, el cual se estructura de la siguiente manera:

•Estructura soportante (techo) + inclinación

•Impermeabilización

•Drenaje de agua

•Protección Anti-raíz

•Filtro

•Medio de crecimiento

•Capa Vegetal (plantas)

V I A B I L I D A D T É C N I C A

IMPLEMENTACIÓN MÁS SISTEMAS / TECNOLOGÍAS

SISTEMAS PASIVOS SISTEMAS ACTIVOS

SISTEMA DE CAPTACIÓN DE AGUA DE LLUVIA

C A

VENTAJAS

DESVENTAJAS

Sistema constructivo y materiales eficientes y comunes dentro de la región.

Posibilidad de circulación vehicular de servicio por medio de andadores peatonalizados a lo largo de todo el complejo.

Cortasoles: Material con propiedades térmicas eficientes, barato y presente. Modulación en todo el complejo.

Techos verdes: Compensar el impacto ambiental generado. Reduce el efecto de isla de calor dentro del entorno, reducción de contaminación auditiva.

Peso de la estructura en general..

Especialidad en juntas constructivas, cálculos especiales.

Transporte y traslado de material para techos, equipo especial.

Mayor gasto en mantenimiento

Sistema de captación: ayudar al ciclo del agua.

Mayores beneficios a largo plazo por parte de los sistemas pasivos implementados.

V I A B I L I D A D T É C N I C A

VIABILIDAD EN BASE A LAS TECNOLOGÍAS Y ESPECIALIDADES PRESENTES

SISTEMA CONSTRUCTIVO PROPUESTO

DISEÑO DE ENVOLVENTE

TECHOS VERDES MÁS Y MEJORES TECNOLOGÍAS

V I A B I L I D A D T É C N I C A

CAPACIDAD DE LA ORGANIZACIÓN FRENTE A LAS OPERACIONES

En base a las particularidades que necesita el proyecto para poder llevarse a cabo, será necesario contar con personal capacitado para la realización de tareas tales como la implementación de los sistemas de techos verdes, captación de agua de lluvia (considerando las dimensiones del proyecto), instalación de cortasoles modulares, y un estricto cálculo estructural que se apegue a los características formales que presenta el proyecto, especialmente ante el concepto de "apertura" y el sistema de juntas constructivas que se busca implementar.

CAPACITACIÓN DEL PERSONAL

CONTRATACIÓN DE ESPECIALIDADES

V I A B I L I D A D O P E R A T I V A

ANÁLISIS COSTO BENEFICIO

CARACTERÍSTICA RESULTADO

La modulación de las plantas tipo permite eficientar procesos constructivos y costos en el momento de la construcción.

La plasticidad y formalidad del proyecto hace posible más fácil la ejecución del mismo.

Fachadas continuas y constantes.

Uso de materiales no muy costosos y aparentes.

Apertura de visuales hacia el Distrito Cultural Universitario.

Plusvalía debido a la presencia de diversas amenidades.

Permanencia de la vegetación preexistente a la intervención del proyecto.

Mayor eficacia, ahorro de tiempo y presupuesto al momento de ejecutar la obra.

Mayores posibilidades de tipos de permanencia dentro del proyecto para los estudiantes que deseen establecerse.

Plusvalía en el proyecto.

Certificaciones nacionales e internacionales.

Posible excedencia sobre lo existente actualmente dentro del mercado inmobiliario.

Menor impacto al medio ambiente y al contexto sobre el que está emplazado este proyecto.

1. Vivienda Multifamiliar de Semilujo 10320.48m2

2. Comercio de Interés Medio 1345.96 m2

3. Estacionamiento 2197.62 m2

CUANTIFICACIÓN DE ÁREAS

4. Alberca Residencial Sencilla45.90 m2

5. Gimnasio 596.15 m2

6. Cancha Basquet 460.11 m2

7. Cisterna105 m2

8. Calle con iluminación de 12m 513.15 m2

9. Jardín con arbolado 6927.04 m2

ANÁLISIS COSTO BENEFICIO

USO

SUPERFICIE COSTO DIRECTO POR M2 P.U POR M2 INCLUYE 28% DE INDIRECTOS + UTILIDAD

COSTO TOTAL PARAMÉTRICO + UTILIDADES E INDIRECTOS

1. Vivienda Multifamiliar de Semilujo 5. Gimnasio

2. Comercio de Interés Medio

3. Estacionamiento 4. Alberca Residencial Sencilla 6. Cancha Basquet 7. Cisterna 8. Calle con iluminación de 12m 9. Jardín con arbolado

TOTAL

1345.96 m2

15985.04 m2 596.15 m2

2197.72 m2 45.90 m2 460.11 m2 105 m2 513.15 m2 6927.04 m2

$9600.56 $7500.44

$21232.60 $16587.97 $8509.77 $6648.26

$5685.88 $4442.09 $9253.89 $7229.60 $580.99 $453.90 $3922.15 $3064.18 $713.06 $557.08 $327.92 $327.92

$12,921,969.74

$339,403,960.3 $5,073,099.386

$12,485,972.19 $424,753.551 $267,319.30 $411,825.75 $365,906.739 $2,271,514.95 $373,626,321.9 - - -

3RA ETAPA

ESTRATEGIA DE VENTA

ANALISIS DE MERCADO

Complejo Para estudiantes, Cercano a Universidad Popular Autonoma del Estado de Puebla

$5,800 Mensualidad Habitaciones individuales para estudiantes $2,000 extras por personas adicionales en habitacion Incluye base colchon, baño privado, perchero cuenta con servicio de agua, electricidad, gas e internet no cuenta con area de lavanderia cuenta con 45 habitaciones para 1-3 personas / recamara Cuenta con: areas sociales, Roof garden, barras desayunador y area de mesas

ESTRATEGIA DE VENTA

ANALISIS DE MERCADO

Recamaras Suite para estudiantes cerca de Universidad de Anahuac de Queretaro

$9,000 Mensualidad Area de 58m2 por habitacion

Habitaciones individuales para estudiantes

Totalmente amueblada y equipada con baño propio cama Queen size, cocina compartida, estancia, terraza, cuarto de estudios, BBQ garden y estancias de tv Cuenta con servicio de electricidad, agua, gas e internet, estacionamiento, tambien servicio de mantenimiento una vez por semana, y servicio de lavanderia requiere un mes de anticipo

ESTRATEGIA DE VENTA

ANALISIS DE MERCADO Gimnasios

$1,000 - $4,000 Mensualidad Servicio de Nutriologia Servicio de instructor Servicio 24/7

Area de duchas, lockers, venta de insumos deportivos

Planes compartidos

Cuentan con diversas areas de trabajo fisico, y en algunos casos con areas de talleres de Yoga, insanity, entre otros

ESTRATEGIA DE VENTA

ESTRATEGIAS

Se propone una renta mensual de locales de $8,000 contemplando el promedio de costo por locales cercanos y con areas similares. Se propone una renta mensual de los 4 locales dobles, de $14,000 contemplando el promedio de costo por locales cercanos y con areas similares.

Los locales pueden ser utilizados aun si el complejo se encuentra en construccion, por lo que permitira generar ingresos pasivos mientras el complejo es terminado.

ESTRATEGIA DE VENTA

ESTRATEGIAS

Se busca que el gimnasio opere desde antes que termine de construirse el complejo, y que a su vez, este no sea unicamente para los ocupantes

El precio al publico sera de $3,000 mensuales, con la posibilidad de aplicar a un paquete en parejas de $2,500 por persona, incluyendo todos los servicios de asesoria y nutriologia.

Se busca generar un plan de $1,500 para estudiantes y docentes que incluya todos los servicios del gimnasio siempre y cuando presenten su identificacion estudiantil al momento de la inscripcion.

Se contara con un paquete en pareja que costara $1,000 a los estudiantes y docentes mientras presenten sus credenciales al momento de la inscripcion

Las areas de locales comerciales y comedores estaran abiertas desde un pricipio para generar ganancia durane el periodo de construccion

ESTRATEGIA DE VENTA

ESTRATEGIAS

Se proponen $3,500 por la recamara compartida de renta mensual. Incluye cama individual,area de trabajo personal, closet, baño compartido entre 2 ocupantes, areas comunes de departamentos cuenta con servicio de gimnasio incluido por $500 extras, se contara con acceso a nutriologo, instructor y sesiones personalizadas al gimnasio

ESTRATEGIA DE VENTA

ESTRATEGIAS

Se proponen $4,500 por la recamara compartida de renta mensual. Incluye cama individual, closet amplio, baño personal, areas comunes de departamentos y acceso a todaslas amenidades cuenta con servicio de gimnasio incluido por $500 extras, se contara con acceso a nutriologo, instructor y sesiones personalizadas al gimnasio

ESTRATEGIA DE VENTA

ESTRATEGIAS

Hay un total de 96 habitaciones individuales, que contando con renta completa, generan un retorno mensual de $960,000.00.

Hay un total de 192 habitaciones compartidas, dando abasto a 384 alumnos, que contando con renta completa generan un retorno mensual de $1,536,000.00.

Hay un total de 18 locales individuales que contaran con una renta mensual de $144,000.00.

Hay un total de 4 locales dobles, que contaran con una renta mensual de $56,000.00.

El gimnasio espera recibir al menos 220 suscriptores mensuales eternos a los estudiantes, dando un total de 700 usuarios que pagarian como maximo $660,000.00.

PLANTA BAJA

ESTRATEGIA DE VENTA

ESTRATEGIAS

El costo total de obra será de $373,626,321.90, contemplando todas las areas que involucren al proyecto.

La cantidad mensual recuperada por el uso de todas las instalaciones segun lo estimado en el analisis y estrategias de venta equivale a $3,356,000.00.

La cantidad mensual de ganancia es equivalente a un 0.89% del total de inversion por la construccion. se habra cubierto en un 100% la inversion inicial al cabo de 112 meses de operaciones. se habra cubierto en un 100% la inversion inicial al cabo de 9 años y 4 meses de operaciones.

$373,626,321.9

PLANTA N-02

PLANEACIÓN DE ETAPA DE OBRA

PROGRAMA GENERAL

PLANEACIÓN DE ETAPA DE OBRA

PROGRAMA DE PROYECTO

PLANEACIÓN DE ETAPA DE OBRA

PROGRAMA DE OBRA

REFERENCIAS BIBLIOGRÁFICAS

ArchDaily. (2014). "Vivenda de Estudiantes / C.F. Møller". Recuperado de: https://www.archdaily.mx/mx/02-325854/grupo-escolar-yvivienda-estudiantil-atelier-phileas?utm_medium=website&utm_source=archdaily.mx

ArchDaily (2014). "School Group and Student Housing / Atelier Phileas". México. Recuperado de: https://www.archdaily.mx/mx/02325854/grupo-escolar-y-vivienda-estudiantil-atelier-phileas?utm_medium=website&utm_source=archdaily.mx https://architectural.hunterdouglas.com.co/lineas/cortasoles-de-madera/ http://www.ptolomeo.unam.mx:8080/xmlui/bitstream/handle/132.248.52.100/2456/TESIS.pdf

Turn static files into dynamic content formats.

Create a flipbook
Issuu converts static files into: digital portfolios, online yearbooks, online catalogs, digital photo albums and more. Sign up and create your flipbook.