PORTFÓLIO
arquitetura & urbanismo
L UIANA C ARDOZO
![]()
arquitetura & urbanismo
L UIANA C ARDOZO
MAQUETES “CASAS DE VIDRO”
Projeto Exposição Casas de Vidro - 2017
MOBILIDADE E PAISAGEM: ESPAÇOS PÚBLICOS NA
REGIÃO DA ÁGUA ESPRAIADA, SÃO PAULO
Trabalho de Graduação Integrado - 2017
RESIDÊNCIA UNIFAMILIAR EM VOTUPORANGA|SP
Casa Cardozo - 2016 / 2018
RESIDÊNCIA UNIFAMILIAR EM MACEDÔNIA| SP
Daluma Engenharia e Saneamento - 2018
UNIDADE CARTÃO DE TODOS - SÃO CARLOS| SP
Plano Arquitetura - 2021
RESIDÊNCIA UNIFAMILIAR EM SÃO CARLOS| SP
Plano Arquitetura - 2021
MAQUETE ELETRÔNICA DE RESIÊNCIA UNIFAMILIAR
LC Studio 3D - 2022

Produção para a Exposição “Casas de Vidro” realizada na Casa de Vidro de Lina Bo Bardi entre 12 de outubro de 2017 e 4 de março de 2018 e organizada pelo Instituto Bardi – Casa De Vidro / Instituto de Arquitetura e Urbanismo da Universidade de São Paulo / Secretaria da Cultura do Estado de São Paulo, com apoio da AGC.
INTEGRANTES: Luiana Cardozo, José Renato Dibo e Isadora Leôncio
ANO: 2017
SOFTWARES: Autocad, Laser Work


Atualmente as maquetes encontram-se no Elmhurst Art Museum, região metropolitana de Chicago, como parte da exposição de Barry Bergdoll, em comemoração ao restauro da casa McKormick, de Mies van der Rohe.
Este trabalho contemplou a confecção de modelos físicos na escala 1:200 e 1:100 e colaboração para a produção de modelos de detalhe em 1:5 das construções: Casa de Vidro de Lina Bo Bardi, Farnsworth de Mies van der Rohe, Glass House de Philip Johnson e Eames House de Ray e Charles Eames.


PROJETO: Mies van der Rohe
LOCAL: Plano, Illinois, EUA
MAQUETE: Escala 1:100 confeccionada em acrílico com detalhes em madeira. Base/terreno em MDF.
TÉCNICA UTILIZADA:
Peças cortadas em cortadora a laser, coladas e acabadas manualmente.
GLASS HOUSE (1945 - 1947)

PROJETO: Philip Johnson
LOCAL: New Canaan, EUA
MAQUETE: Escala 1:100 confeccionada em acrílico com detalhes em madeira.
Base/terreno em MDF.
TÉCNICA UTILIZADA:
Peças cortadas em cortadora a laser, coladas e acabadas manualmente.

PROJETO: Charles e Ray Eames
LOCAL: Los Angeles, EUA
MAQUETE: Escala 1:100 confeccionada em acrílico com detalhes em papel cartão e madeira.
Base/terreno em MDF.
TÉCNICA UTILIZADA:
Peças cortadas em cortadora a laser, coladas e acabadas manualmente.

PROJETO: Lina Bo Bardi
LOCAL: São Paulo, Brasil
MAQUETE: Escala 1:100 confeccionada em acrílico com detalhes em papel cartão e madeira e pilotis representados em arame.
Base/terreno em MDF.
TÉCNICA UTILIZADA: Peças cortadas em cortadora a laser, coladas e acabadas manualmente.

Espaços Públicos na Região da Água Espraiada, São Paulo
Projeto de intervenção urbana desenvolvido para a disciplina “Trabalho de Graduação Integrado II” como requisito para a conclusão do curso de Arquitetura e Urbanismo junto ao Instituto de Arquitetura e Urbanismo - IAU | USP - São Carlos
INTEGRANTES: Luiana Cardozo
ORIENTAÇÃO: Profs. Luciana Schenk e Tomás Moreira
LOCAL DO PROJETO: São Paulo|SP ANO: 2017
SOFTWARES: Autocad, Sketchup, Corel Draw, Photoshop LINK DO TRABALHO: https://issuu.com/luianacardozo/docs/luiana_caderno_tgi2



Partindo de um estudo iniciado em um trabalho de iniciação científica desenvolvido em 2016 -2017, intitulado “Aspectos da Produção do Espaço Urbano de São Paulo: o Caso da Operação Urbana Água Espraiada” , despertou-se o interesse em investigar e desenvolver uma proposta alternativa de diretrizes e desenho urbano para um contexto onde a atual lógica de produção urbana é questionável.
Tal interesse surge sob uma inquietação pessoal relacionada a um quadro negativo esboçado por alguns autores a respeito da produção de cidades na contemporaneidade em contraponto a alguns estudos e iniciativas presentes em debates do urbanismo contemporâneo mundial, que estão buscando repensar a construção do espaço urbano a partir de uma perspectiva das necessidades humanas e ambientais.








OPERAÇÃO URBANA ÁGUA ESPRAIADA
“É evidente que lojas, restaurantes, monumentos e funções públicas devem estar localizados onde as pessoas deverão passar. Desse modo, as distâncias feitas a pé parecem mais curtas e o trajeto, algo mais do que uma simples experiência. Tem-se a oportunidade de combinar o útil ao agradável – e tudo a pé. (Trecho retirado do livro “Cidade para Pessoas de Jan Gehl)
ÁREA 2

ÁREA 1
SISTEMA DE ESPAÇOS PÚBLICOS PROPOSTO



RECORTE DE PROJETO RECORTE DE PROJETO

DIAGRAMA DE POSSÍVEIS FORMAS DE APROPRIAÇÃO DO ESPAÇO LEITURAS
PONTO DE ÔNIBUS SOB ESTAÇÃO DO MONOTRILHO

TRAVESSIAS EM NÍVEL
RAMPA | MARQUISE (acesso ao terraço)
COMÉRCIO E LANCHOETES (abaixo da marquise)
TERRAÇO | MIRANTE (área proposta sobre estação Campo Belo (linha 5 lilás do metrô)







VISTA DA TRAVESSIA DE PEDESTRES PROJETADA SOBRE A AV. JORNALISTA ROBERTO MARINHO E PONTO DE ESPERA DE ÔNIBUS ABAIXO DA ESTAÇÃO DO MONOTRILHO
VISTA DO HALF DE SKATE PARA AS ESTAÇÕES DO MONOTRILHO E DA LINHA 17 OURO DO METRÔ


Projeto de sobrado desenvolvido para cliente particular na cidade de Votuporanga, interior do estado de São Paulo.
INTEGRANTES: Luiana Cardozo
ANO: 2016 - 2018
STATUS: Entregue
SOFTWARES: Revit, Sketchup, Vray, Corel Draw, Photoshop

PAVIMENTO TÉRREO
ÁREA DO TERRENO: 800m2 ÁREA CONSTRUÍDA:
O projeto desta casa foi elaborado a partir de uma composição de volumes que vão delimitando as áreas livres, resultando em uma ampla área ajardinada, conforme o desejo do cliente.
Além disso, o desenho da cobertura em telha cerâmica assume um papel de destaque nesta residência, tendo como inspiração uma arquitetura de estilo campestre associada à arquitetura interiorana corriqueira.
O terreno é composto pela junção de quatro lotes de 200m2 cada, permitindo o acesso à residência pelos dois lados da quadra



SUÍTE DE HÓSPEDES RENDER NOTURNOS
BANHO DA SUÍTE DE HÓSPEDES RENDER NOTURNOS




ÁREA DE LAZER - RENDER NOTURNO

JARDIM DA ENTRADA PRINCIPAL - RENDER NOTURNO

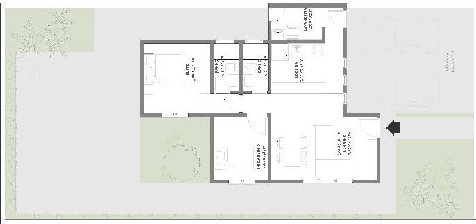
Projeto de casa térrea desenvolvida para venda de imóvel na planta junto à Daluma Engenharia e Saneamento, empreiteira e incorporadora com escritório localizaado em Fernandópolis, SP.
INTEGRANTES: Luiana Cardozo
LOCAL DO PROJETO: Macedônia|SP
ANO: 2018
STATUS: Pausado
SOFTWARES: Autocad, Sketchup, Vray, Corel Draw, Photoshop

SALAS DE JANTAR E TV INTEGRADAS
COZINHA ESTILO AMERICANA
LAVANDERIA
VAGA PARA 2 CARROS

Projeto de adequação de edicicação comercial para unidade da empresa Cartão de Todos, desenvolvido junto ao escritório Plano Arquitetura em São Carlos.
INTEGRANTES: Luiana Cardozo e Renato Pitta ANO: 2021
STATUS: Em execução
SOFTWARES: Archicad, Enscape, Photoshop


Projeto de casa térrea desenvolvida junto ao escritório Plano Arquitetura para construção no condomínio Residencial Faber IV em São Carlos.
INTEGRANTES: Luiana Cardozo e Renato Pitta
ANO: 2021
STATUS: Pausado
SOFTWARES: Archicad, Enscape





PROETO: Eng. Rodrigo Lazarini
INTERIORES: Luiana Cardozo
MODELAGEM 3D| RENDER: LC Studio 3D
ANO: 2022
STATUS: Entregue
SOFTWARES: Sketchup, Enscape, Photoshop

TÉRREO










Modelagem 3D e produção de imagens fotorrealistas para cliente particular em São Carlos, SP junto ao LC Studio 3D.


PAV. SUPERIOR

ÁREA DO TERRENO: 250m² ÁREA CONSTRUÍDA: 195,70m²






