Portfolio_Ludmila_2025

Page 1


2025 P O R T F O L I O

LUDMILA CESARIO

CONTACT INFO

Email Lud.cesario@gmail.com

phone 0422 515 053

I’m Luda, a Architecture Graduate with 5 years of experience across residential, commercial, and urban planning projects.

WORK EXPERIENCE

Casual Draftsperson | Building Designer

Gabriela Mayrink

Jan 2025 - Now

Lighting Design Consultant | About Space

October 2023 - Nov 2024

Draftsperson | Inpro Engineering

January 2020 - August 2022

Collaboration in residential architecture projects.

Architecture Intern | GGA Architecture

Studio

January 2018 - September 2019

Collaboration in architectural and urban planning projects: Paulista avenue bike lane; Parklet project; Residential renovation project.

Architecture Intern | Pura Arquitetura

Studio

January 2017 - December 2017

Collaboration in commercial project Senac Sao Paulo.

Architecture Intern | E-dau Studio

January 2015 - September 2015

Collaboration in Architecture competition: Expo Milan Pavillion; Urban planning project for the town of Tupa and Rodoanel beltway project in Sao Paulo.

EDUCATION

2015 - 2020 - Bachelor in Architecture and Landscape Design at Senac University Centre - Brazil

2015 to 2017 – Exchange Student: Bachelor of Design in Architecture at University of Technology Sydney (UTS) - Australia

2023 Revit for Designers At Sydney Design School

2024 Certificate IV in Residential Drafting at Tafe NSW

PUBLICATIONS

Two case studies of the application of wood laminated plywood in architecture. Published in Senac Science Magazine, 2015.

SOFTWARES

Archicad

Revit

Autocad

Sketchup

Lumion

DiaLux

Photoshop

Illustrator

Indesign

VISA

Australian Permanent Resident Full-time availability

CHIPPENDALE PROJECT 01

Typology: Residential

Location: Chippendale, Sydney

This project, now in the development application stage, is the result of my semester-winning design for a terrace house on a south-facing site, submitted as part of the Residential Drafting course at TAFE. The design focuses on optimizing solar access and sustainability through features like a central courtyard, passive design strategies, and strategically arranged living spaces across three levels. It is currently being developed collaboratively by all students in the course.

Site Analysis

Property Details

Addres:16-22 Dick Street Chippendale 2008

Lot/Section/Plan No: 1/-/DP234884

Council: Council of City of Sydney

GROUND FLOOR

VIEW FROM LIVING TO THE COURTYARD

BACKYARD RENDER

SOUTH ELEVATION

KITCHEN RENDER

02CAMMERAY

Typology: Residential

Location: Cammeray, Sydney

Located in a heritage precinct at 123 Bellevue Street, Cammeray, this project involves extending the first floor of an existing family residence, along with a new BBQ area and swimming pool. As a draftsperson collaborating with building designer Gabriela Mayrink, I have prepared the DA documentation, ensuring compliance with strict heritage and landscape regulations while addressing site constraints. The project is currently under council review, and I will also be drafting the CC documentation to support its next development phase.

SITE PLAN

03BORONIA

Typology: Residential

Location: Hunters Hill, Sydney

This project is part of the first assessment for the Certificate in Residential Drafting course at TAFE NSW. The task was to transform an old wooden Scout Hall into a one-family residence without demolition. The design preserves the hall’s main structure while introducing elements that connect the old building with new additions. The accompanying set of drawings was prepared for a Development Application (DA) combined with a Construction Certificate (CC) application, ensuring the design meets both planning and building regulations.

04

ART GALLERY

Typology: Art gallery/ event hire space

Location: Middlemiss Street, Milsons Point

The project involves creating the interior design for a heritage building’s existing warehouse space, transforming it into a three-storey art gallery. The space, a single bay within the heritage structure with two facades facing the street, boasts a towering height of 21 meters.

Softwares: Revit + Lumion+ Photophop

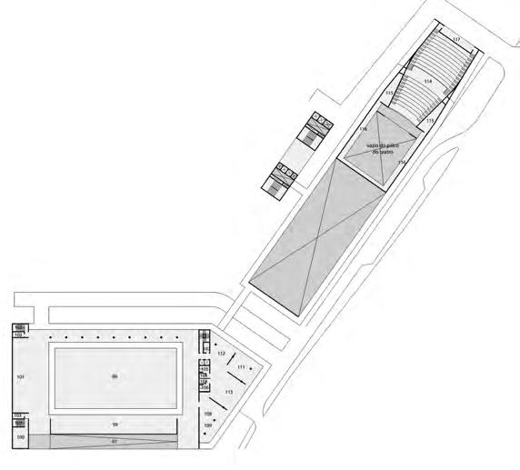
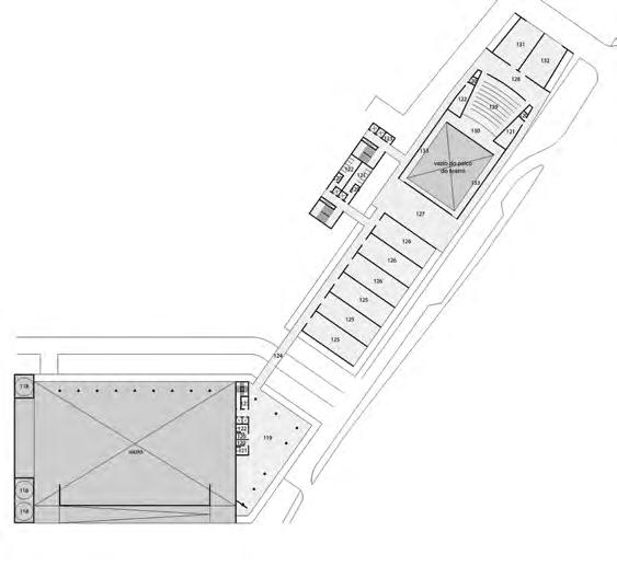
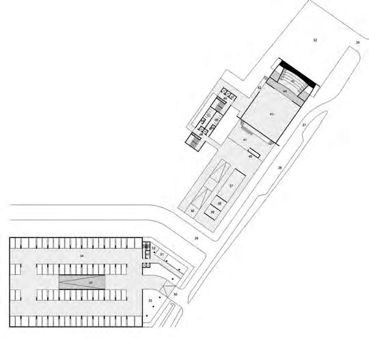
05CULTURAL CENTER

Typology: Cultural and sports entre

Location: Osaco, Sao Paulo

In my 9th-semester of Bachelor’s in Architecture studies, I worked on an assignment that reimagined a design challenge from a national competition. The task was to create a new cultural and sports center for Osasco. The proposed design featured a versatile building with a theater, auditorium, music room, library, art studios, exhibition spaces, and computer worksta-

tions. For physical activities, the sports complex included both indoor and outdoor pools, a gymnasium, and various indoor and outdoor sports fields. To complement these facilities, we also incorporated a dental clinic, restaurant, and cafeteria.

Ground Level
Covered Aquatic Complex

06FREELANCE WORK

The following images showcase three render projects I completed as freelance work, collaborating with both an architect and a designer.

1. The images below are renders/photo montage created for a Development Application (DA) submission for a Sydney-based architect.

2. The second set of images presents interior renders for a Sydney café design project commissioned by a design studio in Alexandria. The visuals capture the intended ambiance and spatial layout, aligning with the studio’s vision for a cozy yet modern café experience.

Sketchup/Twin Motion/ Photoshop

Turn static files into dynamic content formats.

Create a flipbook
Issuu converts static files into: digital portfolios, online yearbooks, online catalogs, digital photo albums and more. Sign up and create your flipbook.