Lucy Fellows Issuu Portfolio 2023

Page 1

Interior Architecture BA(Hons) Liverpool John Moores University
PORTFOLIO: 2023 LUCY FELLOWS

BA Level 6 Semester 2: Integrated Design 3: Comprehensive Design Project - Lost Souls Boutique Hotel

BA Level 6 Semester 1: Integrated Design 2: Digital Webform - Offices/Social Hub

BA Level 5 Summer Break: Work Experience: Hospitality Project Elevations BA Level 5 Semester 2: Experimental Design: Music Venue

CONTENTS
BA
Building: Retail Project 2023 2022 2021 BA Level
Semester
Crafting: Workshop Project 2020 2 3-7 7-18 19 20-22 23 24-25
Level 5 Semester 1: The Ashcroft
4
2: A Place For
Enrolled at Liverpool John Moores University

BA Level 6 Semester 2: Integrated Design 3: Comprehensive Design Project - Lost Souls Boutique Hotel

Ground Floor Level Basement Spa Level 3

BA Level 6 Semester 2: Integrated Design 3:

Comprehensive Design Project - Lost Souls Boutique Hotel

Basement Spa Ground Floor Lobby Mezzanine Floor Restaurant First Floor Bedroom Suites Second Floor Bedroom Suites Third Floor Roof Bar Fourth Floor Bedroom Suites Penthouse Suite 4

BA Level 6 Semester 2: Integrated Design 3: Comprehensive Design Project - Lost Souls Boutique Hotel

Basement Spa Level

5

BA Level 6 Semester 2: Integrated Design 3: Comprehensive Design Project - Lost Souls Boutique Hotel

Environmental Strategies & Construction Detail

6

BA Level 6 Semester 2: Integrated Design 3: Comprehensive Design Project - Lost Souls Boutique Hotel

Hotel Visuals

7

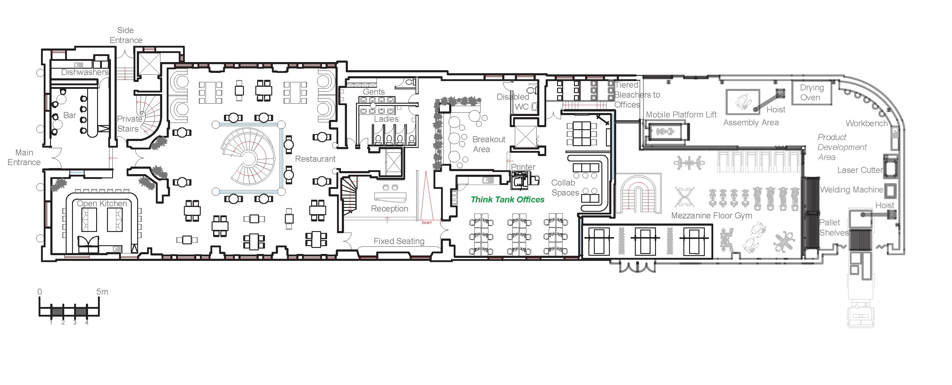
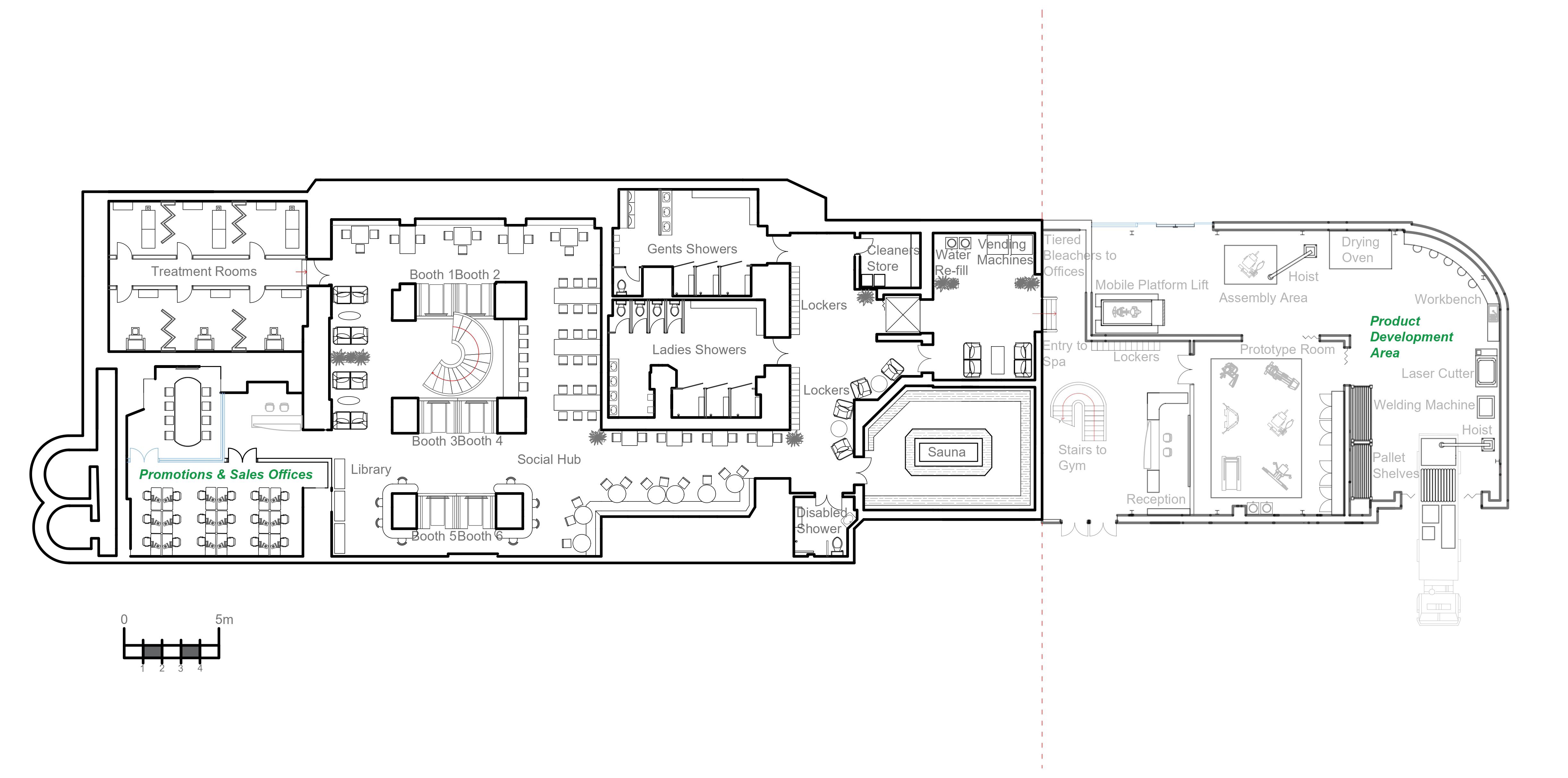
BA Level 6 Semester 1: Integrated Design 2: Digital Webform - Offices/Social Hub

Basement Level Social Hub & Offices

8

BA Level 6 Semester 1: Integrated Design 2: Digital Webform - Offices/Social Hub

Basement Level Rendered Plan

9
BA Level 6 Semester 1: Integrated Design 2: Digital Webform - Offices/Social Hub
10
3D Section

BA Level 6 Semester 1: Integrated Design 2: Digital Webform - Offices/Social Hub

Ground Level Restaurant and Offices

11

BA Level 6 Semester 1: Integrated Design 2: Digital Webform - Offices/Social Hub

12

BA Level 6 Semester 1: Integrated Design 2: Digital Webform - Offices/Social Hub

13

BA Level 6 Semester 1: Integrated Design 2: Digital Webform - Offices/Social Hub

Ground Level Restaurant Visual

14

BA Level 6 Semester 1: Integrated Design 2: Digital Webform - Offices/Social Hub

Ground Level Restaurant Visual

15

BA Level 6 Semester 1: Integrated Design 2: Digital Webform - Offices/Social Hub

Basement Social Hub Visual

16

BA Level 6 Semester 1: Integrated Design 2: Digital Webform - Offices/Social Hub

Basement Social Hub Visual

17

BA Level 6 Semester 1: Integrated Design 2: Digital Webform - Offices/Social Hub

Laser Cut Staircase Model

18

BA Level 5 Semester 2: Work Experience: Hospitality Project Elevations

Outdoor Pub Seating/Patio

19

BA Level 5 Semester 2: Experimental Design: Music Venue

20 Basement Ground Mezzanine Roof

BA Level 5 Semester 2: Experimental Design: Music

Venue

Full Length Section

21

BA Level 5 Semester 2: Experimental Design: Music Venue

22

BA Level 5 Semester 1: The Ashcroft Building: Retail Project - Lighting Solutions

23

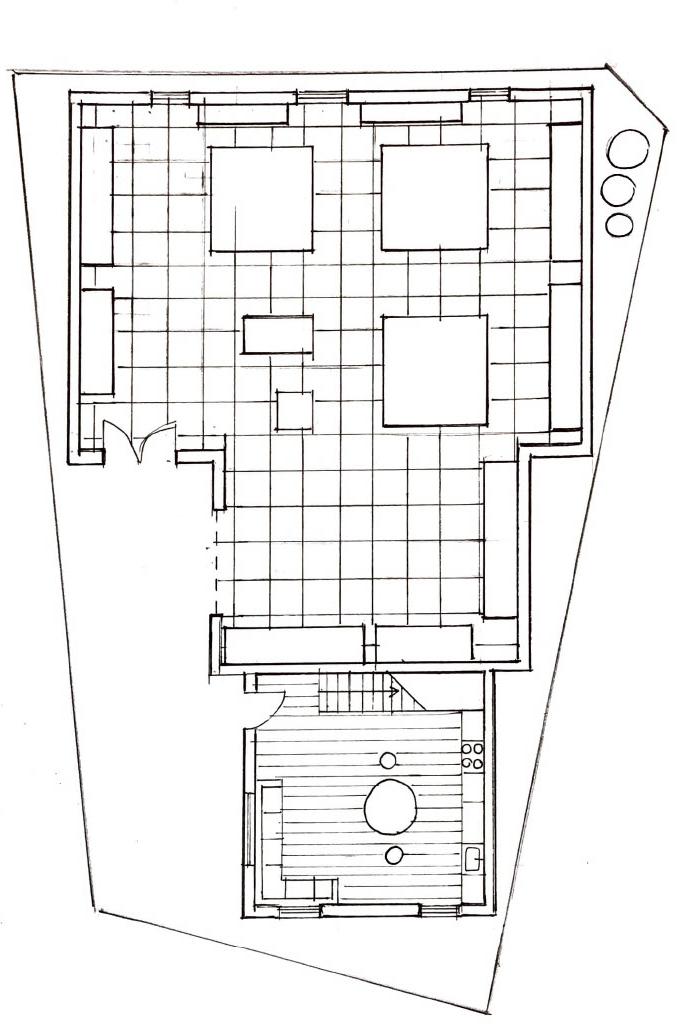
BA Level 4 Semester 2: A Place For Crafting: Workshop Project - Perspective Hand Drawings

24

BA Level 4 Semester 2: A Place For Crafting: Workshop Project - Hand Drawn Plans

25
EMAIL: lucyfellows55@gmail.com MOB: 07506 879107

Turn static files into dynamic content formats.

Create a flipbook
Issuu converts static files into: digital portfolios, online yearbooks, online catalogs, digital photo albums and more. Sign up and create your flipbook.