ALYS BEACH LOT AC-16
FRONT ELEVEVATION RENDERING
Table of
INTERIOR SPECIFICATIONS
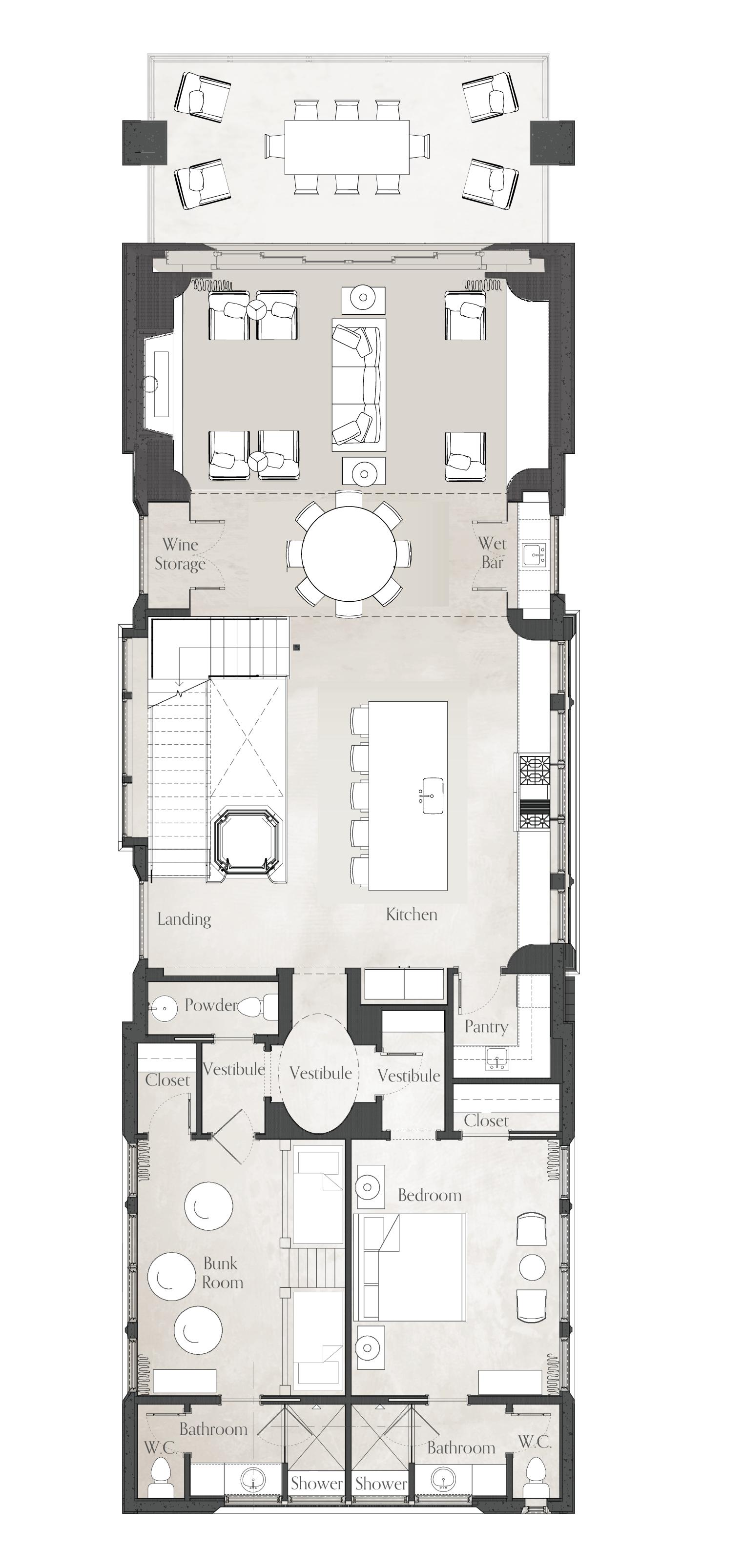
PROJECT INTRODUCTION COMPREHENSIVE FLOORPLANS
SECOND LEVEL RENDERING
1 13 2 14 4 18 6 24 8 27
INTERIOR FINISHES
INTRODUCTION TO INTERIORS COMPREHENSIVE EXTERIOR RENDERINGS
INTRODUCTION TO EXTERIORS ANIMATED RENDERING
When our team at Christopher Architecture & Interiors began working on the initial design, the priority was for the home to execute exceptional planning. We wanted the home to be an unparalleled escape for guests and residents, therefore, carefully designed to not sacrifice functionality for architectural ornament. In an area rich with great architecture and detailing, we gravitated towards simplicity and sophistication.
Conceptual Renderings for
ALYS BEACH LOT AC-16
The interiors of the home were designed to be a modern oasis. Designing for a community such as Alys Beach, there is an iconic contextual design language to respect. We developed this inspiration to add a modern elegance, sophistication, and signature Christopher flair. The interiors are adorned with ample texture and natural materials, creating the dramatic aesthetic. Much consideration was given to the way residents and guests would move and entertain through the home.

The first and ground floor offers a full guest suite, kitchenette, laundry room, pool bathroom, and access to the courtyard and cocktail pool through floor to ceiling pivot doors. The second floor hosts the main entertainment areas; kitchen, dining room, great room, wet bar, and outdoor porch. The second floor also boasts a full guest suite and bunk room for six. The third floor is home to two additional guest suites as well as the primary suite with a dedicated outdoor terrace. Guests can access the fourth-floor terrace by the outdoor staircase, the interior wood and metal stairs, or the fully glass enclosed elevator.


Take advantage of the Florida weather and entertain all year long. The ground floor contains a twenty-eight-foot cocktail pool, outdoor seating area, and floor to ceiling pivot doors connecting the outdoors to the interior passageways. The is an exterior staircase leads guests to the fourthfloor terrace, bypassing the private areas of the home. The terrace is a true fourth floor with identical dimensions to the rest of the floorplan with an additional rooftop pool, tanning ledge, outdoor kitchen, seating area and firepit. The home sits proudly on a corner lot, taking advantage of the sweeping views for sunset cocktails.


The exterior stucco forms are intentionally clean and simple. The sense of ornamentation and contextual belonging in the Alys community originates from special detailing of parapet, handrail, glazing and chimneys. These details complement the simple exterior forms creating the overall effect of subtle elegance. Each window was especially considered both within and without to absorb the beautiful surroundings. The entire roof is an accessible terrace complete with a pool, tanning ledge, firepit, lounge seating and outdoor kitchen, all purposefully designed to take in the ocean and neighborhood views at a higher and more private point.
Interior Specifications for
ALYS BEACH LOT AC-16
A modern oasis. Thoughtfully planned to entertain, relax, and live well.
CONDITIONED SPACE
First Floor - 1,491 sq. ft.
Second Floor - 2,142 sq. ft.
Third Floor - 2, 150 sq. ft.
Total - 5,783 sq. ft.
UNCONDITIONED SPACE
Terrace Pool - 438 sq. ft.
Garage - 640 sq. ft.
Porches - 809 sq. ft.
Courtyard - 1,024 sq. ft.
First Floor Pool - 180 sq. ft.
Terrace - 1,698 sq. ft.
Total - 4,792 sq. ft.
PRIMARY SUITE
Third Floor
Primary Bedroom - 15’-0” x 24’-2”
Primary Bathroom - 11’-0” x 5’-7”
Primary Wet Room - 7’-0” x 6’-9”
Primary Closet # 1 - 7’-1” x 8’-1”
Primary Closet # 2 - 9’-7” x 7’-6”
Primary Porch - 9’-7” x 24’-8”
ENTERTAINING AREAS
First Floor
Recreation Room - 29’-6” x
20’-1”
Pool Bathroom - 8’-8” x 12’-8”
Covered Porch - 29’-5” x 6’-2”
Second Floor
Kitchen - 22’-5” x 17’-4”
Dining Room - 7’-10” x 20’-3”
Living Room - 15’-0” x 24’-2”
Porch - 11’-8” x 25’-4”
Third Floor
Wet Bar - 6’-2” x 7’-10”
Pool Bathroom - 4’-4” x 12’-8”
GUEST SUITE
First Floor
Bedroom # 1 - 22’-0” x 12’-1”
Second Floor
Bedroom # 2 - 16’-4” x 13’-3”
Bunk Room - 16’-4” x 13’-3”
Third Floor
Bedroom # 3 - 16’-4” x 14’-3”
Bedroom # 4 - 16’-4” x 12’-5”
The living experience of the home was held in high esteem. We not only wanted to create an aesthetically chic and beautiful home, but also a livable beachside escape. The interior design carries the same line of thought – simplicity and functionality. Each floor features a glass elevator and wrapping grand staircase, all with the intention to obstruct as few exterior views as possible.
Many techniques were used to unite the interiors and exteriors. For example, sections of the exterior stucco detailing was captured in the ceiling forms over the wine storage and dining table. The result is an open kitchen and dining experience, juxtaposed with dramatic materiality. The rich and deep color palette contrasted with the white stucco exterior gives an unexpected, unique, and modern edge.
An entertainer’s dream. On the second level of the home, you are greeted by a stunning open concept layout of the kitchen, dining, and living areas boasting generous twelve-foot ceilings. The fourteen-foot-long kitchen island is adorned in a natural marble with dramatic veining and equipped with a built-in seating.
Integrated with the open concept kitchen, dining, and living areas, an adjacent wet bar enclosed behind custom doors is the perfect party trick. The intricate steel design is both form and function. Stowed away when not needed and open when entertaining, the moody colors and natural stone are sure to impress.
LIVING ROOM
LIVING ROOM ELEVATION
The great room is nothing short of a showstopper. The living space spans the entire width of the home and connects the adjacent porch and outdoor living space through French doors. With comfortable seating for nine, the space is punctuated by the incomparable floor to ceiling gas fireplace surrounded with fluted black stone, floating mantle and hearth. The space is complemented with a grand interior staircase touching each floor, and glass elevator beautifully filtering incoming light.
The primary bathroom brings a modern edge to the classical elements through the brass soaking tub, metal and wood accents, and custom steel doors to the shower and water closet.
A marriage of quality detail and design create this incomparable, luxury beach-side escape. This magnificent home was designed as a legacy piece with the highest quality specifications from Christopher Architecture & Interiors, and is currently under construction by Galvas Construction.
For more information, please contact the teams at Christopher Architecture & Interiors or Galvas Construction.
To view animations of our conceptual renderings, please scan the QR code below.
ALYS BEACH LOT AC-16