
ARCHITECTE D’INTÉRIEUR LUCILLE GRAVIER


![]()




Un dispositif spatial vers une réinsertion durable
La France et notamment Paris sa capitale n’est pas épargnée par la crise mondiale du mal-logement qu’on ne cesse de rappeler et de dénoncer chaque année, touchant divers cas de personnes et dont la situation s’est vue s’empirer avec la crise sanitaire actuelle. Ses retombées sont parfois irréversibles sur le plan humain, sanitaire, professionnel et social. Le mal logement isole, exclut. C’est pourquoi favoriser l’accès au logement et en faire un vecteur d’équité, de mixité et un rempart contre l’exclusion des personnes victimes du mal-logement constitue un enjeu majeur en tant que futur designer d’espace.
Le dispositif spatial de la pension de famille semble être une solution future à adopter pour tenter de résoudre l’exclusion en favorisant l’intégration, l’accompagnement, la stabilité vers une réinsertion durable des personnes exclues.


4,1

1,2
















POURQUOI AU 12 RUE OUDINOT ?

CONCEPT PROGRAMMATIQUE
la pension de famille : d’exclusion à réinsertion

C’est dans le 7e a de Paris, dans cette ancienne bâtisse située au 12 rue Oudinot abandonnée depuis 30 ans que le projet va s’implanter. Son emplacement central, permet une vie de quartier autonome par la proximité des transports et commerces essentiels pour les futurs résidents. S’implanter dans un quartier déficitaire en logements sociaux tel que le 7ème où encore aucune pension n’a été crée, permettrait d’homogénéiser et de suivre la répartition prédéfinit de 20 a 25% de logements sociaux par commune d’après la loi SRU. ponctuels




+ « RETOUR DU MARCHÉ » événement ponctuel avec l’AMAP et l’association Marché sur l’Eau



















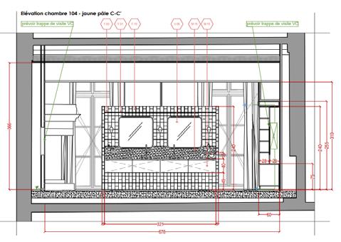
coupe transversale
échelle
élévation façade 2 sur cour
échelle non conventionnelle
élévation façade 1 sur cour
échelle non conventionnelle
plan rdc
échelle non conventionnelle


« chambre » type Studio 26 m2 pour 1 personne

bloc cuisine + salle d’eau Studio transformable T1
« chambre » type T1 / T2 40m2 pour 2 à 3 personnes

« CHAMBRE» TYPE STUDIO LIVRABLE 26M2
BLOC PRÉFABRIQUÉ CUISINE équipée pour un minimum d’autonomie
cuisine en aggloméré avec mélaminée collé finition blanc mat

plan de travail stratifié gris anthracite

parquet contre collé chêne massif


bloc cuisine + salle d’eau T2 transformable T3 / T4

BLOC PRÉFABRIQUÉ SALLE D’EAU + WC


carrelage gris anthracite


PIÈCE PRINCIPALE non meublée pour s’approprier le lieu
plans des « chambres » livrables échelle non conventionnelle SEUIL pour préserver l’intimité de l’in-
AVEC POSSIBILITÉ CRÉATION D’UN COIN CHAMBRE avec lit double




paroi en polycarbonate translucide
encadrement ossature aluminium gris anthracite

Chez Roland et son chien Filou « chambre » type Studio 26 m2 version T1

Chez Apolline « chambre » type Studio 26 m2 version studio

Chez Lou et Louis avec leur fille Louisa et leur chien Plume - « chambre » type T1 / T2 40m2 - pour 2 à 3 personnes

Chez Anne et Thierry avec leur fille Marie-Rose - « chambre » type T1 / T2 40m2 - pour 2 à 3 personnes





« Impénétrable comme une forêt, peuplé comme une ville, frissonnant comme un nid, sombre comme une cathédrale, odorant comme un bouquet, solitaire comme une tombe.»
Victor Hugo, Les Misérables, 1862



C’est au 1bis place des Vosges que dort depuis trop longtemps l’hôtel particulier dit ‘L’hôtel Coulanges».

Le projet fut de réhabilité cet édifice, bâti en 1607 chargé d’histoire et de propriétaires, en un hôtel accueillant un restaurant, des espaces de co-working, une salle de sports, un sauna et un hammam pour ses membres.
Projet réalisé au sein de l’agence PAB Architecture en collaboration avec l’architecte d’intérieur Victoria Maria et l’agence d’architecture ARTEFAK pour Xavier Niel.









espace lobbY perspectives 3D plan lobbY échelle non conventionnelle












plan mobilier sur mesure tête de lit échelle non conventionnelle


















legende finttions












Dans le 6e arrondissement de la capitale, Mr Capeillères achète le 4e et le 5e étage du 67 rue des Saints-Pères, immeuble datant de 1840.
L’objectif ? Réunir les deux appartements afin d’en faire une seule propriété tout en gardant la possibilité de rendre indépendante la partie du haut en cas de location.

L’autre demande fut de créer une terrasse au dernier étage donnant sur cour. Afin de démarrer les travaux, un dossier de permis de construire ainsi qu’un dossier à présenter à la copropriété ont été réalisé.
Projet réalisé au sein de l’agence Garcin Marty Perrin.
Plan masse échelle non conventionnelle
PC 3 / PC 5 - Coupe état futur / façade ouest document réalisé pour le permis de construire


Variateur Interrupteur Interrupteur
va-et-vient
Télérupteur
variateur interrupteur interuupteur va et vient télérupteur prise TV prise prise comandée prise téléphone
Variateur
Interrupteur Interrupteur
va-et-vient
Télérupteur
Prise téléphone
sortie de fils pour applique plafonnier spots encastrés
Sortie de fils pour applique
Plafonnier
Spots encastrés
Prise téléphone
Sortie de fils pour applique
Plafonnier Spots encastrés
cheminée en briques conservées
menuiserie : portes en contreplaqué de bouleau filmé Marron foncé de Forestmaine



récupération du parquet chevrons et repose sur chape neuve pour les chambres et le bureau
carrelage Mutina Pico Up Red 60 x 60 cm
plan et crédence des cuisines et des SDB en Comblanchien




récupération des tomettes existantes et reposées sur chape neuve
carrelage Mutina Pico Up Natural Argile 60 x 60 cm
banquette + table en béton ferraillé blanc étagères visibles en carreaux de plâtre 7cm





COUPE ETAT FUTUR BB’- façade nord est échelle non conventionnelle

COUPE ETAT FUTUR CC’ - façade sud ouest avec terrasse échelle non conventionnelle
DATE:
Les

carrelage Mutina Pico Red dots blanc 60 x 60 cm

Modifications: 4 juillet 2022
cuisne Hodwens ou équivalent Bréval super mat Marine DITO cuisine Howdens ou équivalent Chaley porcelaine DITO


TRANSFORMATION D’UN ENSEMBLE DE CHAMBRES DE SERVICE EN APPARTEMENT FAMILIAL
Projet de rénovation d’un ensemble d’appartements dans le 16e arrondissement de Paris a u 6e et dernier étage en un seul appartement pouvant accueillir la famille Pellerin.
Création des futurs espaces de vie ainsi que de la partie agencement sur mesure. Création d’un nouveau palier avec ascenseur montant jusqu’au 6e étage ainsi que d’ un escalier accédant au toit terrasse et d’une mezzanine sous comble pour l’une des chambres des enfants.







PLAN MEZZANINE R+6
échelle non conventionnelle

PLAN ETAT PROJETÉ R+6
échelle non conventionnelle
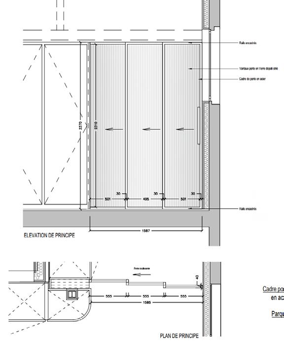
DESSINS D’AGENCEMENT PORTE COULISSANTE CUISINE

échelle non conventionnelle




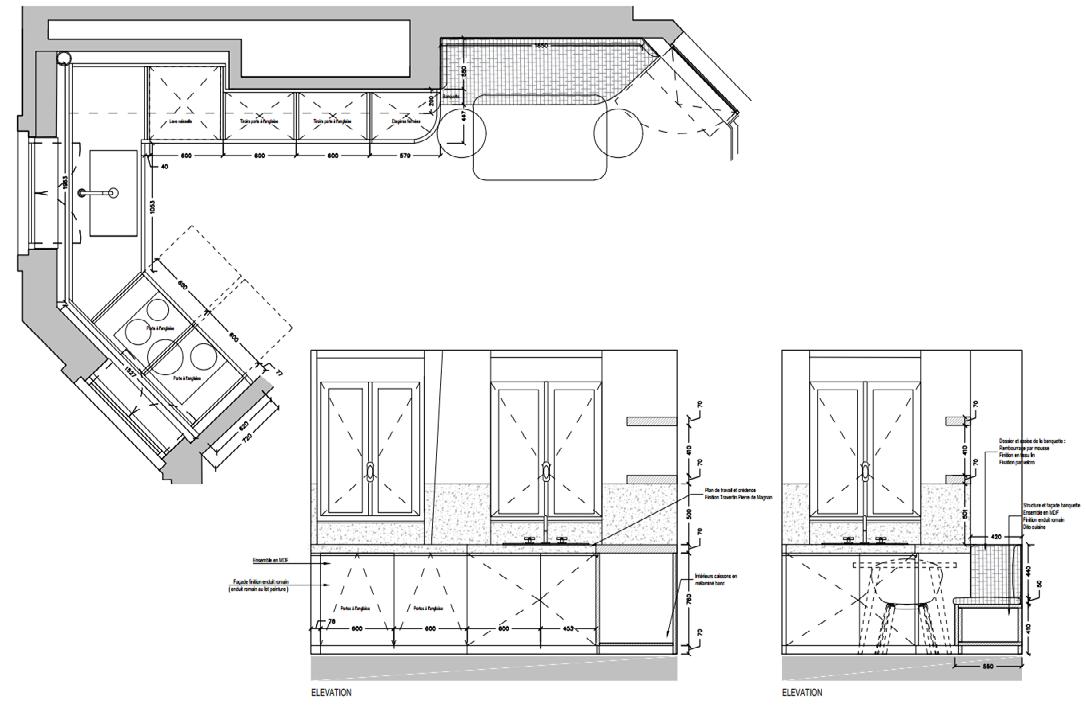
PLAN ELECTRIQUE PARTIE CUISINE R+6 échelle non conventionnelle PLAN ET ÉLÉVATIONS MEUBLE CUISINE - DESSINS D’AGENCEMENT
RÉSIDENCE AUX ATP : ATELIER-HABITATION POUR ARTISTES
Fondé en 1937 et inhabité depuis 2005, l’ancien Musée National des Arts et Traditions Populaires ( MNATP) jouxtant la Fondation Louis Vuitton dans le Bois de Boulogne à Paris, ouvre de nouveau ses portes afin d’accueillir artistes et créateurs. Ces nouveaux résidents logeront dans des unités d’habitations suivant le modèle établi par Le Corbusier dans la Cité Radieuse de Marseille pour concilier vie et travail.
Ce projet a été imaginé pour une artiste peintre, qui répond sous le nom d’artiste: MIMI. Mystérieuse, la légende raconte qu’elle serait née dans les années 1940 et pour seule famille deux chats. Accueillante et festive, elle reçoit fréquemment sans pour autant dévoiler son intimité. Artiste peintre reconnue, elle organise des vernissages dans son atelier.
Afin que Mimi puisse développer au mieux sa créativité et s’épanouir, il est souhaitable que le logement réponde à son mode de vie.
Artiste passionnée et d’humeur changeante, Mimi expérimente constamment en variant les tailles de ses toiles et les techniques avec une prédilection pour l’huile. Elle insiste sur son besoin d’espace pour accueillir ses proches et laisser libre court à son talent. Tout en écoutant de la musique brésilienne, elle a pour habitude de prendre du recul sur son travail suspendu lors de séchage.






acier pour structure et garde corps
grillage du garde corps en acier

enduit béton ciré mur/ plafond et mobilier

enduit Tadelakt pour mobilier SDB et cuisine

parquet contrecollé en chêne vieillit

panneaux en contreplaqué de chêne







Sa hantise ? Un intérieur obscure et pire encore : étroit. Il lui faut de la lumière, au mieux naturelle et de l’espace. Mimi a un penchant pour les intérieurs sobres, voire masculins qui ne correspondent pas à son image de femme coquette. Pas de chichi pour Mimi. Cela pour deux raisons : son travail coloré ressort et vient contraster sur un fond neutre, ce qui lui permet de mieux admirer, ou critiquer et également surprendre ses invités. De plus, elle préfère des sols robustes, qui ne craignent pas l’humidité, les chocs et le vernis.


coupe face mobilier de rangement
Ligne Leds
Plafonnier
Spots Led orientable
va et vient

Système bureaue dé-pliable
Interrupteur simple
Telerupteur Suspension
Prise TV
Prise Tel
Prise de courant
Bouton pousson
sonnette
USB Applique
Une fois replié, le bureau se fond dans l'alignement du meuble de rangement
Ligne Leds
Plafonnier
Ligne Leds
Plafonnier
Spots Led orientable
Spots Led orientable
va et vient
Telerupteur Suspension

va et vient
Interrupteur simple
Interrupteur simple
Prise TV
Telerupteur Suspension
Prise Tel
Prise TV
Prise de courant
Prise Tel
Bouton pousson
Prise de courant
sonnette
Bouton pousson
sonnette
USB Applique
USB Applique




« La splendeur de l'instant, son aveuglante révélation, en affirme le caractère éphémère. Le temps corrode la vie et l'exalte. En même temps que la connaissance et le désir, naît l'amour pour la fragilité de l'existence. [...] Le temps est notre. Nous sommes pétris de temps. Nous sommes le temps. [...] Nous voyons une chose, et déjà elle n'est plus. Là réside sa suprême beauté. Un rayon de soleil qui illumine la colonne d'un temple à Sélinonte, le dernier, alors que le soir descend doucement, le regard de celui qui t'aime, saisi dans son étonnement, le reflet dans une flaque des lignes d'une maison, juste avant que la pluie ne reprenne et n'en trouble la surface. Ce sont des instants fugitifs. Ils ne reviendront plus. Mais ils continuent cependant à remplir notre existence. Dans notre mémoire, la lumière de ce moment rayonne au-dessus de nous. Le temps, par vagues, nous la restitue, tel le ressac des grandes marées d'hiver sur les galets. »
Les Lieux et la poussière : Sur la beauté de l’imperfection, 2017 Roberto Peregalli

L’écriture de ce travail s’est construit autour de celle du temps. Le thème du temps est une notion qui fut mainte et mainte fois traitée dans l’histoire de l’art. Les artistes ont en vu une source inépuisable d’interprétation et d’appropriation : il peut être éternel (ou faussement éternel), instantané, lent (à travers le temps de l’âge), étiré, fragmenté, arrêté, suspendu,... Il y a différents temps dans le temps. L’art sous toutes ses formes n’en finira sans doute jamais de l’interroger tant il est vaste, complexe et insaisissable, aussi bien dans sa compréhension que physiquement. Il nous échappe sans cesse.
Le temps passe, c’est un fait inévitable. Peut-on alors capturer le temps ? Par son aspect éphémère, il nous renvoi à la fragilité de l’existence. «Tout est fragile, tout est poussière » écrivait Roberto Peregali dans son livre Les Lieux et la poussière : Sur la beauté de l’imperfection, dans lequel il aborde avec regret et nostalgie notre rapport au temps avec notre environnement.
Par ce travail, je tends à faire voire le témoin du temps, de la présence du passage du temps qui passe et est passée, mais également de la présence humaine, de la vie, de l’histoire qu’elle raconte. Soit, de cette boucle qui s’écrit sans cesse, se renouvelle perpétuellement et qui laisse derrière elle des traces, des marques, des empreintes, ... un témoignage.



Réalisations et expériences :
La notion du temps étant sujette à plusieurs visions, la première piste de recherche sur ce thème s’est axée sur la construction de l’imagination et de sa libre interprétation à travers le «distinct / indistinct». Chacun est libre de voir, d’imaginer et de reconnaître des formes dans une forme. Celles-ci varient en fonction des personnes.
L’artiste américaine Lisa ELLEY, habituée a utiliser le couteau pour appliquer la peinture, utilise dans un travail en série un tout autre procédé qui consiste à étaler la peinture à l’aide d’un objet plat (carton). Semblant être une technique plus contrôlée que la tâche ou le tampon, la forme laissée reste aléatoire. Même technique et jamais le même rendu. Formes apparaissent alors, laissant différentes interprétations possibles aux spectateurs.
En retraçant ce que je croyais voir sur les détails photographiés des tâches, formes et lignes se superposent, se croisent et se répondent stimulant alors la créativité et l’imagination chez le spectateur.
Cette première piste ma permise de travailler sur les limites qui permettent de reconnaître les caractéristiques d’une forme. A quel moment doit on arrêter de rajouter de la matière ou d’en enlever pour que les éléments qui caractérisent ce que je veux représenter soient perceptibles ?







L’ÉCRITURE DU TEMPS : DISTINCT / INDISTINCT -






Lucille GRAVIER
Ce travail s’est construit sur plusieurs temps. Chaque étape de son évolution y figure, il est par conséquent témoin de chaque moment. Cette revisite du palimpseste est amenée à se dégrader et se réinventer au fur et à mesure (comme son origine) par couches, collages, superpositions, effacements, déchirements, ...
Il renvoi au livre «Les lieux et la poussière» de Roberto Peregalli, cité dans la présentation du thème choisi. Dans son livre, qui est comme un arrêt du temps sur la beauté des lieux, Peregalli porte un regard sensible et nostalgique sur ce qui nous entoure et nous apprend à prendre le temps de regarder la beauté de celui ci.


réalisation finale 1 M X 4 M
les différentes étapes à la réalisation



25/11/2020 02/12/2020 06/12/2020



Finalement, ce n’était pas de capturer le temps qui m’intéressait dans ce travail ni de le figer, mais d’accepter l’inévitable : le temps qui passe.
Le temps qui passe se rassemble en instants se succédant et ne se dispersant pas mais s’articulant entre eux. Tous ces instants sont alors rassemblés sur ce seul et même support final du palimpseste.
Puis le temps ce n’est pas seulement une durée, il peut être un instant ou au contraire l’éternité. Le temps c’est aussi le mouvement, la représentation d’un déplacement dans l’espace qui s’inscrit par ce fait même dans le temps. Le temps c’est également la temporalité du récit qui s’installe dans l’image. Le temps c’est aussi l’imprévisible, cet instant indompté qui s’empare de l’image. Ce travail en est le témoin.
VIDÉO DE LA RÉALISATION DISPONIBLE SUR INSTAGRAM ( story à la une : Palympseste ) : lucillegravier



























plan r+1
échelle non conventionnelle


échelle non conventionnelle











visuels de recherches pour le projet
