PortafolioLucila

Page 1


Cuento con experiencia en diseño conceptual y dibujante. Proyectista y modeladora 3D. Me adapto fácilmente a cualquier circunstancia como fortaleza y cuento con mucha autocrítica.

Apasionada por la profesión, con un fuerte compromiso, responsabilidad y trabajo en equipo. Actualmente estoy motivada por aprender sobre dirección de obras y seguir creciendo en todas las etapas del proceso proyectual.

Currículum vitae

ANA LUCILA DEL GUERCIO

ESTUDIANTE

AVANZADA DE ARQUITECTURA 93.75%

Experiencia

DIBUJANTE PARA

ESTUDIO VENEZIALE-VEGA (Galicia- España)

Proyectos de departamentos.

Diseño de interiores cafetería (Juan Bautista Alberdi- Tucumán)

2025

2024

2023

Diseño de fachada e interiores en cafetería tradicional de la ciudad.

Diseño de interiores de vivienda (La Cocha - Tucumán.)

Proyecto AV -

Diseño de interiores de local comercial de niños (Juan Bautista Alberdi - TUCUMÁN)

Proyecto BPA -

reforma de gimnasio + casa + consultorios (Juan Bautista Alberdi - TUCUMÁN)

Proyecto FM abarca una reforma, reutilización de elementos constructivos, diseño de instalaciones, y diseño de interiores.

Formación académica

-DIPLOMATURA EN HUMEDADES EN EDIFICACIONES - UNT UNT -FACULTAD DE ARQUITECTURA Y URBANISMO - (en proceso) | 93.75%

Autocad.

Vray.

Herramientas

Lumion.

Photoshop

Word.

proyecto

SCHINDLER´ARK 1 tpa viii

proyecto

reforma - diseño

03 04

proyecto madrid reforma- diseño

proyecto san jorge reforma- diseño

SCHINDLER´ARK

TPA VIII - Combes -

Concurso basado en desarrollar un proyecto para transformar las necesidades del Arca de Schindler, donde fueron salvados 1.200 judíos a través de de la Lista de Schindler, en un Museo de los Supervivientes. La visión es crear un monumento, manteniendo el legado. Al mismo tiempo, se busca la reconstruccion del sector sur como un sector de viviendas comunitarias sostenibles para satisfacer las necesidades de la comunidad idea - concepto

Restauración y revitalización de la fábrica textil, otorgándole un nuevo significado a través de su transformación en museo. Se conserva la estructura resistente original y se le propone una nueva imagen exterior, manteniendo el profundo valor simbólico de sus espacios interiores. Una propuesta en diálogo con la arquitectura vernácula.

La fábrica se encuentra en el pueblo de Brnenec, que se encuentra sobre las vias de ferrocarril entre Brno, Praga y Viena. El pueblo está ubicado en el distrito de Svitavyv en la frontera sureste de la Region de Pardubice, Republica Checa - Region de Pardubice Distrito de Sivitavy - Brnenec Pardubice, Republica Checa.

Sector del Museo - Sector Norte

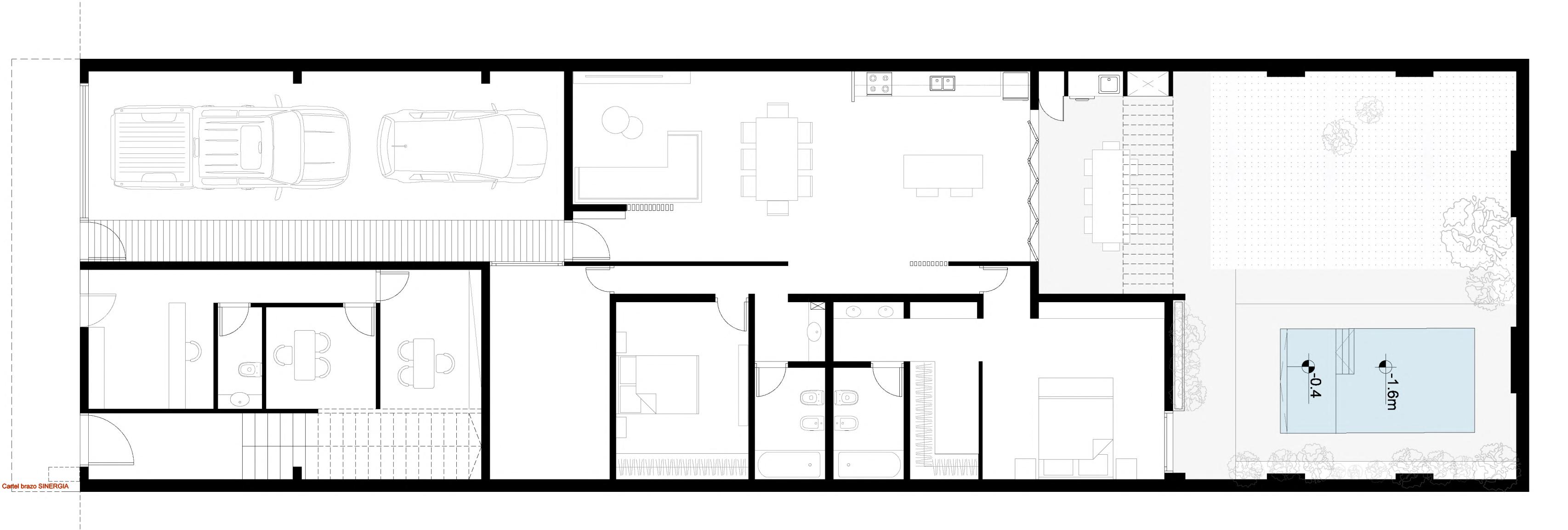
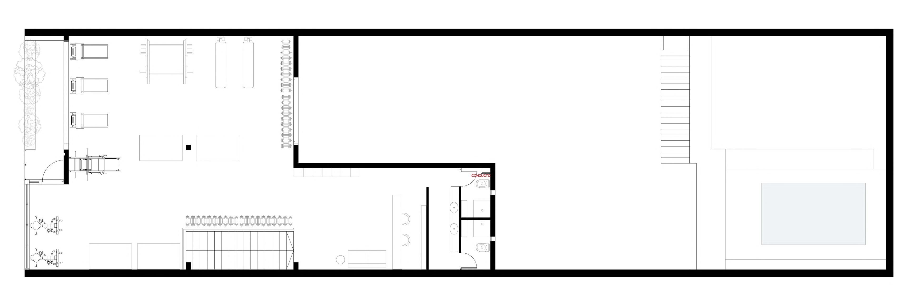
proyecto fm 1 juan bautista alberdi.

Diseñada para una pareja joven, ubicada en Juan Bautista Alberdi - Tucumán

Proyecto de reforma el cual, consiste en un gimnasio, una casa y consultorios en el mismo terreno de 10 x 35m

El desafío principal era reutilizar la estructura existente y lograr una fachada coherente a pesar de contar con 3 actividades diferentes.

El Gimnasio a pedido de los clientes esta planteado en PA y desfasado de la zona de descanso de la casa la cual está en PB.

Tonos calidos para el interior del hogar. La pareja busca un espacio de confort donde puedan sentirse contenidos ya que cuentan con una vida laboral muy activa.

PLANTA BAJA

Dado que el cliente deseaba priorizar su vejez y ubicar el gimnasio en la planta alta, se decidió situarlo desplazado del sector de descanso y del área privada, proyectándose en voladizo sobre la línea municipal.

PLANTA ALTA

proyecto madrid - españa 1 departamento.

Formé parte del equipo de trabajo desempeñándome como dibujante y modeladora

3D, participando activamenteen el proceso de documentación técnica y representación gráfica del p r o y e c t o . Colaboré en la elaboración de planos de replanteo, así como en los planos de instalaciones eléctricas, de fontanería y sanitarias, entre otros. Además, contribuí al desarrollo de modelos tridimensionales y visualizaciones, que permitieron optimizar la comprensión espacial y facilitar la toma de decisiones durante el diseño y la ejecución.

MODELADO

3D |

Se propuso reutilizar y simplificar la organización espacial del departamento, separando los núcleos húmedos y definiendo con claridad las áreas públicas y privadas.

Se aprovechó la cañería principal de las instalaciones sanitarias para optimizar recursos y reducir la complejidad de la obra. El proyecto contempla tres dormitorios, incluyendo una habitación principal de amplias dimensiones con vestidor. El espacio común se diseñó con una configuración abierta y flexible, pensada para un usuario con familia numerosa y que recibe visitas con frecuencia, priorizando la amplitud y la comodidad en las áreas sociales.

PLANO DE FONTANERÍA

PLANO DE SANEAMIENTO

Diseño de instalaciones, para lo cual debí aprender la nomenclatura y la normativa de otro país, proceso al que me adapté rápidamente.Si bien la remodelación fue integral, procuré priorizar y aprovechar las instalaciones existentes para agilizar el trabajo y optimizar la eficiencia en la nueva distribución.

proyecto san jorge 1 juan bautista alberdi.

Calle Mitre
Calle Laprida

San Jorge, ubicado en Juan Bautista Alberdi, es una cafetería tradicional que se ha convertido en un ícono esta ciudad. Este nuevo diseño representa la evolución de su marca, de su logo y, sobre todo, de su esencia. La incorporación de detalles color terracota simboliza el paso del tiempo, el arraigo, pero también la transformación. Es un homenaje a su historia y, al mismo tiempo, una apertura hacia el futuro. El espacio se reinventa sin perder aquello que lo hace único: su calidez, su identidad y su compromiso con la calidad.

San Jorge no cambia para ser otro. evoluciona para seguir siendo el mismo, pero aún mejor.

A partir de los elementos existentes que el propietario deseaba conservar —como los azulejos negros y el mobiliario original (mesas y sillas)— se desarrolló un diseño que dialoga con lo preexistente, aportando calidez al espacio. Se utilizó el color como un recurso simbólico, de manera sutil y equilibrada, evitando su uso excesivo.

Bancos de hormigón armado con cantero bajo

Se incorpora mobiliario ligero, como mesas de chapa naranja delgada. La intención es reforzar la idea de un espacio ‘al paso’, utilizando un lenguaje que se adapte a su esencia.

tira LED en todos los bancos parte inferior

Turn static files into dynamic content formats.

Create a flipbook
Issuu converts static files into: digital portfolios, online yearbooks, online catalogs, digital photo albums and more. Sign up and create your flipbook.
PortafolioLucila by Lucila Del Guercio - Issuu