TFC - Centro de salud mental | Josefina Godoy - Lucía Santos

Page 1

CENTRO DE SALUD MENTAL

Trabajo Final de Carrera TFC

Taller Martín

Facultad de Arquitectura, Diseño y Urbanismo

Universidad de la República

Marzo 2022 - Diciembre 2022

AUTORAS

Josefina Godoy Giordano Lucía Santos Alvez

EQUIPO DOCENTE

Docentes guías: Arq. Virginia Delgado Arq. Sebastián Berninzoni

Coordinador Arq. Bernardo Martín

Asesores: Estructura: Marcos Lowenstein Instalación Sanitaria: Daniel Garcén Instalación eléctrica: Alejandro Scopelli Acondicionamiento Lumínico: Alejandro Vidal Acondicionamiento Térmico: Santiago García Sustentabilidad: Martín Leymonie

ÍNDICE

08-41 pag. 42-85 pag. 86-129 pag. 132-141 pag. 142-153 pag. 154-161 pag. 162-169 pag. 170-175 pag. 176-183 pag. 184-189 pag. 190-193

00 01 02 03 04 05 06 07 08 09 10 Marco teórico Albañilería Detalles por sector Estructura Acondicionamiento Sanitario Acondicionamiento Eléctrico Acondicionamiento Térmico Acondicionamiento Lumínico Incendios Coordinación de sistemas Sustentabilidad ÍNDICE 09 Argumento 27 Proyecto 37 Idea fuerza 49 Plantas 55 Fachada 63 Cortes 78 Aproximación 88 Plantas Zoom 108 Cortes integrales 118 Detalles 136 Detalles 140 Plantas 144 Plantas 146 Cortes 150 Detalles 156 Cargas 158 Esquemas 160 Plantas 166 Dimensionado 167 Componentes 168 Plantas 172 Componentes 174 Plantas 178 Componentes 182 Plantas 186 Estrategias 188 Corte 193 Axonométrica
pag.

ARGUMENTO

La salud mental es un estado de bienestar mental que permite a las personas hacer frente a los momentos de estrés de la vida, desarro llar todas sus habilidades, poder aprender, trabajar adecuadamente y contribuir a la mejora de su comunidad. Es parte fundamental de la salud y el bienestar que sustenta nuestras capacidades indivi duales y colectivas para tomar decisiones, establecer relaciones y dar forma al mundo en el que vivimos. La salud mental es, además, un derecho humano fundamental. Y un elemento esencial para el de sarrollo personal, comunitario y socio económico.

(Organización Mundial de la Salud)

ARGUMENTO
9

La otra pandemia

La situación de pandemia del COVID 19, provocó un rotundo cambio socioeconómico en la vida de las per sonas a nivel mundial que produjo un trauma instan táneo e inesperado en la vida de muchas familias, que nunca antes se habían enfrentado a una situación similar.

El cierre de las escuelas, el miedo al contagio, la cercanía a la enfermedad y la muerte, la imposibili dad de realizar actividades físicas en el exterior, el trabajo online, el aumento de tiempo dedicado a las pantallas, el aislamiento y las dificultades económicas afectaron seriamente la salud mental de todos, principalmente, adolescentes y personas mayores que se encontraban solas.

La salud mental es un tema que antecede a la pande mia, pero esta situación puso en discusión la impor tancia del cuidado de la mente y de generar estra tegias de apoyo.

La ansiedad y la depresión dejaron al descubierto como los países no han desarrollado políticas espe cíficas para proteger la salud mental y que es mo mento de darle prioridad.

10
11

CONTEXTO URUGUAYO

En las últimas décadas la Salud Mental viene atrave sando diversas reformas promoviendo cambios y trans formaciones en su atención así como también en su abordaje. De este modo, se pasa desde un modelo cen trado en la enfermedad mental fundado en una pers pectiva asilar hacia un modelo basado en la Salud Mental integral y comunitaria sustentado en un en foque de derechos.

En el marco de estos procesos, la desinstitucionali zación se ha presentado como una parte sustancial y alternativa de superación al modelo asilar. Actual mente, la nueva Ley N° 19529 de Salud Mental apro bada en el año 2017, establece entre otros cambios el cierre progresivo de las estructuras asilares y monovalente para el año 2025, siendo sustituidas es tas por un sistema de estructuras alternativas.

Se trata de traspasar el modelo de institución asilar basada en el control, la coacción y la segregación. La nueva ley establece un nuevo marco normativo, impulsando un cambio de paradigma en la atención de Salud Mental, basado en una perspectiva de derechos, promoviendo la atención interdisciplinaria, un abor daje con base comunitaria.

12

Marcha por el Día Mundial de la Salud Mental en

10 de Agosto 2022. Fuente: Subrayado. Fotos:

/ Foco Uy

Marcha por el Día Mundial de la Salud Mental en Montevideo. 10 de Agosto 2022. Fuente: Subrayado. Fotos: Gastón Britos / Foco Uy
13
Marcha por el Día Mundial de la Salud Mental en Montevideo. 10 de Agosto 2022. Fuente: Subrayado. Fotos: Gastón Britos / Foco Uy Montevideo. Gastón Britos

Ley 19.529 Un nuevo modelo

El Parlamento aprobó la Ley de Salud Mental 19.529 el 24 de Agosto del 2017

En ese contexto es que dispuso que la hospitalización sea considerada “un recurso terapéutico de carácter restringido” al que se recurra “sólo cuando aporte mayores beneficios que el resto de las intervencio nes realizables en el entorno familiar, comunitario y social de la persona”, que sea “lo más breve posi ble” y en hospitales o sanatorios generales.

Es importante destacar que al momento actual coexis ten en Uruguay al menos tres modelos de atención: Modelo asilar, Modelo hospitalocéntrico y el Modelo de Salud Mental Comunitario. La coexistencia de to dos ellos en la órbita de ASSE implica una distribu ción de recursos humanos y materiales inequitativa y de baja eficiencia.

Es en este sentido, que la Ley plantea que los organismos realicen la tarea de promoción de planes y programas para favorecer la inclusión social erradi cando la estigmatización, ajustando y creando dispo sitivos de integración e inserción en la generación de mayor autonomía de las personas con trastornos mentales.

14
15
Marcha por el Día Mundial de la Salud Mental en Montevideo. 10 de Agosto 2022. Fuente: Subrayado. Fo tos: Gastón Britos / Foco Uy

Durante la mayor parte del período colonial, que se extendió hasta comienzos del siglo XIX, los pacientes mentales fueron tratados en Uru guay de la misma mane ra que en el resto del mundo: vagando por las calles, viviendo de la mendicidad y siendo re cluidos en prisión cuan do cometían actos anti sociales.

1788

Se funda el hospital de Cari dad donde su primer paciente fue un enfermo mental.

1817

1860

El 17 de junio de 1860 se abre la segunda etapa de la asistencia psiquiátrica al instalarse, con 28 enfermos trasladados del Hospital de Caridad, el Asilo de Demen tes.

1876

1880

Duplicada la población, se inauguró el Manicomio Nacio nal15, denominado Hospital Vilardebó a partir de 1910.

En ambos lugares los respon sables de la atención fue ron inicialmente médicos y homeópatas y progresivamen te médicos orientados hacia el estudio de la alienación mental.

Se agregan en el hospital de Caridad los primeros espa cios dedicados a estos pa cientes.

Se inauguró la “Facul tad de Medicina”

EVOLUCIÓN DE LA PSIQUIATRÍA EN URUGUAY
16

1908

Se crea la cá tedra de psi quiatría

1923 Se crea la “Sociedad de psiquiatría”

1900-1930

1939

Culminó la modernización esta bleciendo reformas sociales, económicas y políticas que transformaron al país en una sociedad equilibrada, progre sista, optimista y confiada, que fue denominada “la Suiza de América”

Se aprobó la ley es pecial N° 9.581 “Ley del psicópata” y el artículo 30 del Códi go Penal que reconoce la inimputabilidad por patología mental.

1986

El Ministerio de Salud Pública aprueba el Pro grama Nacional de Salud Mental con un fuerte componente de crítica al modelo asilar.

2017

Se promulgó la “Ley de Salud Mental” en Uru guay, y dejó de ser vi gente la Ley N° 9.851 “Ley de Psicópatas”.

17

ANTES

La arquitectura hospitalaria en épocas antiguas era sumamente funcional, los hospitales psi quiátricos tenían una configu ración espacial privativa, el equipamiento planteado consiste en módulos de habitaciones con ventanas y rejas según la com plejidad de la patología, ba ños, espacios administrativos y unidades de tratamiento.

En algunos casos contaban con patios internos, con poca ve getación o en su debido defecto carente de la misma, sin espa cios de rehabilitación y trata miento al aire libre, pues la extensión del terreno daba para la ocupación del edificio.

DESPUÉS

Actualmente los edificios de salud mental cuentan con otros avances, espacios mas acogedo res y diseñados para una reha bilitación adecuada.

Incluyen soluciones espaciales que implementan espacios senso riales, que involucren elemen tos perceptivos y sensitivos, como la luz, el color, la tex tura, y el componente natural, donde genera estimulaciones en los pacientes, que provoquen emociones que pueden condicionar su conducta.

Se busca garantizar el derecho a la protección de la salud men tal con una perspectiva de de rechos humanos.

18

Cómo enfrentarse desde el proyecto arqui tectónico a la resolución de problemas de la salud mental desde la innovación en contextos y usuarios reales

¿
?

OBJETIVO PRINCIPAL

Dentro del marco de la nueva Ley de salud mental 19529 se busca generar un proyecto que garantice el derecho a la protección de la salud mental con una perspectiva de derechos humanos, en que el usuario puede acceder a un entorno que le permitan lograr la mayor autonomía, así como a las que promuevan su re-inserción familiar, laboral y comunitaria.

El desafío se centra en encontrar desde la arquitec tura poder equilibrar la privacidad y la dignidad de los pacientes, mientras mantienen la supervisión de su propia seguridad, junto con la de sus compañeros pacientes, el personal que brinda atención y, en al gunos casos, la comunidad más allá.

Entendemos que la arquitectura afecta de manera po sitiva y ayuda a mejorar la conducta de una persona, tanto psicológica como social y física; por medio de la interacción con el espacio físico construido, las sensaciones y comportamientos que generan los espa cios urbanos y privados.

Se busca que los pacientes mediante los elementos formales del espacio experimentan estímulos senso riales que logren condicionar su conducta, a través de la luz, los colores, las texturas, el vínculo con la naturaleza, el aire fresco, entre otros.

20

OBJETIVOS ESPECÍFICOS

Formular estrategias para la articulación del espacio público y privado.

Generar armonía en tre el espacio físico construido y el aspec to sensorial y cognitivo.

Generar espacios ur banos, zonas de ac tividad pasiva (lec tura, percepción del paisaje urbano, entre otros) y ac tiva (juegos) donde se priorice la sa lud mental y física del paciente.

Vincular el medio natu ral, como apoyo al tra tamiento y rehabilita ción del paciente.

Que la progresión de los pacientes a lo largo de su tratamiento se refleje en la forma en que la arquitectura se comunica con los usuarios del hospital.

Lograr un entorno lo menos restrictivo posible en relación con la gravedad de su en fermedad y los requisitos legales (o de seguridad) relacionados con su atención

21

EL COMPORTAMIENTO HUMANO

Es condicionado por:

ENTORNO

SOCIO CULTURAL

ECONÓMICO

FÍSICO

Entorno físico hostil Entorno físico confortable

PROGRAMA

ARQUITECTURA COMO HERRAMIENTA TERAPÉUTICA

Contacto con la naturaleza Actividad fí sica/ ocio Privacidad

Contención Atención

Formas y tamaños Organización Disposición de elementos

Control de: Iluminación Ventilación Ruido Materialidades/ Colores

22
ESTRATEGIAS DE DISEÑO Seguridad Señalización

El medio físico no es sólo un escenario para nuestras con ductas, sino que aporta de forma activa estímulos para ellas. Estos estímulos, en conjunto con otras fuentes, principalmente provenientes del medio social y del propio individuo, configu ran el comportamiento de los individuos (Sangrador, 1986).

23
“ “

ESPACIO FÍSICO

02

Cuando hablamos de espacio físico nos referimos al am biente físico terapéutico y el efecto que tiene sobre las personas que conviven en él.

Para que el espacio físico sea considerado terapéuti co es primordial encontrar un equilibrio entre aspec tos como la seguridad, la privacidad y la dignidad, considerando el género y las diferencias culturales.

Se busca obtener espa cio que genere un ambiente no hospitalario, sin ocul tar su carácter de servi cio sanitario que este lleva a cabo. Con esto se busca que los pacientes obtengan la sensación de estar en casa y no en un hospital.

Respecto a la ubicación ur bana necesitamos considerar la ventaja de facilitar la accesibilidad y la inclusión social de las personas ingre sadas, así como la ubicación hospitalaria al facilitar el ingreso del suministro y mantenimiento.

EL COLOR

El color influye en el esta do de ánimo de las persona, ya que se produce una re acción física ante la sen sación que produce un color

Los colores cálidos son considerados como estimu lantes, alegres y exci tantes y los fríos como tranquilos, sedantes y en algunos casos deprimentes.

En un hospital se debe con siderar generar un ambien te el cual transmita calma, que ayude en su concentra ción y estimule se trata miento de recuperación.

Colores cálidos: Estos pueden ser utilizados en espacios donde haya mayor actividad y socialización ya que esti mulan, activan y energizan.

Colores fríos: Estos son im plementados en un espacio donde el nivel de movimiento y actividad sea reducido puesto que relajan y tranquilizan.

03

LA MATERIALIDAD

Los materiales juegan un rol muy importante al momento de determinar la atmósfera y el carácter del espacio hospi talario. Se deberá consi derar utilizar materiales, formas y patrones simples y sobrios, aquellos que no se puedan distorsionar por la vista del paciente y que ge nere un ambiente tranquilo.

Se debe conseguir que tan to los techos, pisos y muros sean visualmente diferencia dos, fáciles de mantener y estéticamente agradables al ojo humano, diferenciando con otro tipo de material los marcos de puertas y ventanas.

Se deberá considerar uti lizar materiales duraderos, ya que los pacientes tie nen afecciones mentales e interactúan en su mayoría, físicamente con el entorno de una forma más frecuente; este comportamiento es de manera inconsciente y produ ce una reducción de estrés.

A su vez se puede llegar a un caso en el que el daño sea mayor, por ello también se debe evitar objetos que podrían ser utilizados como armas.

La iluminación puede crear un espacio adecuado y con fortable, que cumpla con las necesidades de las persona, pero a su vez, mediante la iluminación podemos crear espacios de gozo emocional.

La iluminación natural y artificial son recursos que influyen en las perso nas de una manera emocio nal, visual y biológica.

Efecto emocional: En un en torno iluminado, el co lor, el brillo que se ge nera y la intensidad de la luz son los que actúan so bre nuestras sensaciones.

Efecto visual: Va direc tamente vinculado la can tidad y calidad de luz con el rendimiento en el desa rrollo de las actividades.

Efecto biológico: la luz in fluencia en nuestro reloj biológico a través de fo torreceptores los cuales se encuentran en nuestros ojos, mediante la regulación de las hormonas de cortisol, la cual es considerada como la hormona del estrés y la me latonina, considerada como la hormona del sueño.

01
LA ILUMINACIÓN 04 24

05SEGURIDAD

06 07

CONFORT ACÚSTICO

Se debe proponer medidas de seguridad tanto para los pa cientes como para los pro fesionales a cargo, buscan do una seguridad discreta y visible para la eventua lidad que así lo requiera.

Mediante el diseño se deben buscar la menor cantidad de obstrucciones visuales es de cir que el diseño con el que se cuenta debe tener facili dad de observación evitando las obstrucciones visuales y controlar los espacios cie gos mediante espejos con vexos o usos de cámaras.

Todo ello para amparar el derecho a la privacidad e intimidad de las personas usuarias, así mismo consi derar descartar objetos que puedan ser utilizados para la autoagresión.

Los hospitales son espacios críticos, en el cual los pa cientes necesitan lugares de reposo o descanso adecuado, los pabellones que lo inte gran deben contener un apro piado aislamiento acústico.

Una de las mayores causas de estrés en un entorno hospi talario es el ruido, llegan do en algunos casos a ser bastante elevado, esto gene ra en el paciente, aumento en la frecuencia cardíaca, la presión arterial, diversos grados de estrés e interfe rencias en el sueño, la cual tiene una función fisiológi ca necesaria para la curación y el bienestar psicológico.

Existen materiales que per miten la reducción sonora:

- Planchas de techo acústicas para la absorción del ruido.

- Planchas de cielo acústi cas absorbente de sonido.

- Implementación de alfombras ya sea en pisos o paredes.

- Terminaciones ab sorbentes de sonido.

- Salas mecánicas aisladas por ruido y vibración.

NECESIDADES PERSONALES

Se debe tener en consideración las necesidades individuales relacionadas a la privaci dad, dignidad e intimidad.

- Se debe contar con es pacios que transmitan tran quilidad durante el día, así como un espacio donde los pacientes puedan rezar, meditar o tener reflexio nes de manera tranquila.

- Tener estancias diurnas con el objetivo de poder intervenir a los pacientes que no puedan dormir median te intervenciones dirigidas.

- Contar con un espacio para ver Tv y desarrollar activi dades, esto ayuda a los pa cientes a mantener un nivel óptimo de interacción con otras personas y los pro fesionales, disminuyendo el riesgo de aparición de conduc tas disruptivas o violentas.

ÁREAS VERDES 08

Para la elección de la vege tación es recomendable que sea del mismo hábitat don de se encuentra ubicado el hospital, esto para que el paciente mantenga una re lación de familiaridad.

Se recomienda una vegetación exuberante y con variedad de colores la cual sea lla mativa, los árboles, flores ornamentales, dan un senti do de cambio estacional que afianza la conciencia de los ritmos y los ciclos de vida.

Los tipos de follaje, la forma, color que estos ten gan y que se muevan con la brisa generen tipos de som bra que den una sensación de relajación.

- Contar con ambientes privados para recibir vi sitas, realizar llamadas telefónicas y hablar con los profesionales a cargo.

25

PROYECTO

“La arquitectura trata realmente sobre el bienestar. Creo que la gente quiere sentirse bien en un espacio... Por un lado se trata de refugio pero también se trata de placer” (Zaha Hadid)

PROYECTO
27

ESTUDIO DE IMPLANTACIÓN

En el siguiente mapa se pueden ver los principales centros de salud mental del departamento de Montevideo, incluidos el Hos pital Vilardebó que es parte de la salud pública, el Centro Villa Carmen, un centro privado y el Hospital Pasteur que con tiene la primera ampliación de ASSE en donde se incluyen las normativas planteadas en la nueva ley.

Se puede ver como la mayoría de los centros de atención están concentrados en los barrios céntricos, dejando gran parte del departamento sin cobertura cercana.

Debido a las diferentes estrategias proyectuales, medidas de seguridad necesarias y la búsqueda de un contacto cercano con la luz natural, el aire fresco y la interacción de los usuarios con áreas verdes, el proyecto se implantó en el Hospital Saint Bois, dadas las características del predio.

28
29
HOSPITAL PASTEUR CENTRO VILLA CARMEN HOSPITAL VILARDEBÓ HOSPITAL SAINT BOIS 1.5km 2.3km 4.5km 8.5km 2.5km 6.0km

Hospital Saint Bois

El Hospital Saint Bois,es un centro de salud pública uruguayo gestionado por la Administración de los Servicios de Salud del Estado y asiste a la población de la zona noroeste de nuestra ciudad. Está integrado por un hospital general, el Hospital José Martirené y un centro de alojamiento. Fue inaugurado el 18 de noviembre de 1928 como forma de abordar la crisis sanitaria que conllevaba la tuberculosis en el país en ese entonces.

Actualmente brinda atención sanitaria de segundo nivel y atención ambulatoria y su área de influencia es el noroeste de Montevideo, con una población en el entorno de 100.000 habitantes.

De acuerdo el artículo 37 de la nueva ley de salud mental en que se establece que queda prohibida, a partir de la vigencia de la presente ley, la internación de personas en los establecimientos asilares existentes.

Se plantea un proyecto que pueda ser incluido dentro de un hos pital ya existente, integrándose al resto de los recursos que trabajan por la salud.

30

PLANTA DE UBICACIÓN Escala: 1.10000

PLANTA DE UBICACIÓN Escala: 1.3000

31

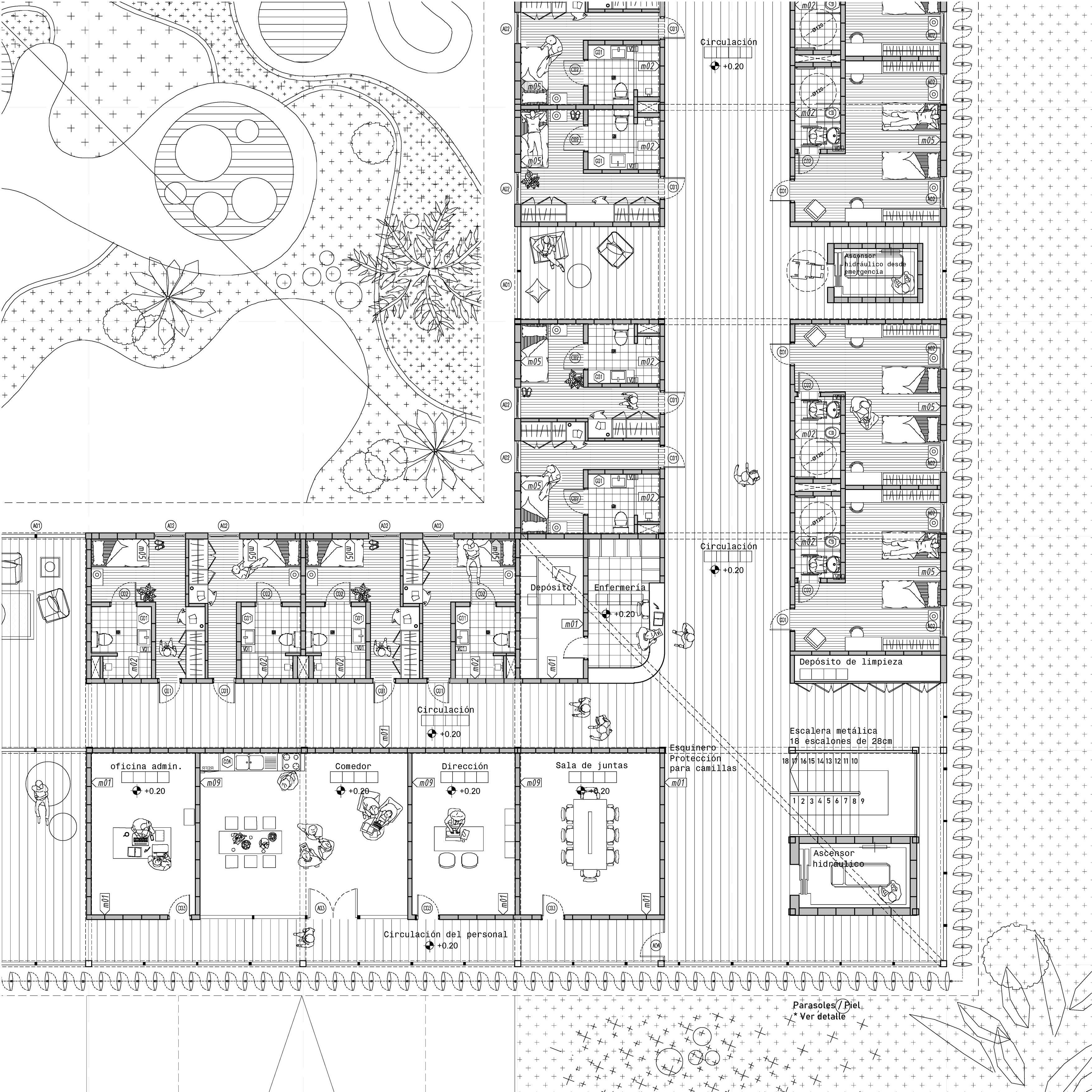
RECEPCIÓN DE ENTRADA CONTROL DE VISITAS RECEPCIÓN DE EMERGENCIA SALA DE OBSERVACIÓN ENFERMERÍA

ENFERMERÍA SUCIA DEPÓSITO DE MEDICAMENTOS DEPÓSITO GENERAL DEPÓSITO DE LIMPIEZA CUARTO DE ALIMENTOS COCINA COMEDOR HABITACIONES

SALAS DE CONTENCIÓN SALA DE MICRONARCOSIS SALA DE PSICOLOGÍA SALA DE PSIQUIATRÍA SALA DE NUTRICIÓN SALA DE TRATAMIENTO SENSORIAL SALA DE REHABILITACIÓN PSICOSOCIAL

SALA DE TERAPIA GRUPAL SALA DE TALLERES SALA DE LECTURA SALA DE ACTIVIDADES SALA DE VISITAS BIBLIOTECA

VESTUARIOS DEL PERSONAL OFICINA ADMINISTRATIVA COMEDOR DEL PERSONAL DIRECCIÓN SALA DE JUNTAS

TANQUES DE AGUA SALA DE GENERADORES SUB. ESTACIÓN DE UTE ALMACENAMIENTO DE EQUIPOS

PRIMERA ATENCIÓN

SERVICIOS

SALAS MÉDICAS SALAS DE ACTIVIDADES

ZONA TÉCNICA

ZONA DEL PERSONAL NECESIDADES PROGRAMÁTICAS 32

Se propone un programa hospitalario que busca la conciliación en tre un ambiente íntimo de rehabilitación, los servicios de aten ción médica y los espacios de rehabilitación en comunidad.

Para resolverlo se propone agrupar las áreas en diferentes paque tes de actividades. Las mismas se clasifican en: Área del perso nal, área de actividades, salas médicas, habitaciones y área de primera atención. Se busca dar igual importancia a los espacios íntimos que a los colectivos, entendiendo que la recuperación del paciente se da tanto en los tratamientos individuales como en las instancias de interacción social.

Habitaciones 520m² Salas de actividades 250m² Zona técnica 150m² Sala de observación 180m² Biblioteca 200m² Comedor 180m² Depósitos 70m² Salas médicas 170m² SS.HH 50m² Vestuarios 70m² Enfermería 100m² Sala de reunión 25m² Sala admin. 30m² Sala del personal 35m²
33

PEINE

Bloques que se organizan a lo largo de una cir culación central de ca rácter más público que conecta las diferentes áreas separadas según sus funciones.

Esta tipología da la posibilidad de la co nexión directa de cada área con en el exterior y la naturaleza

PATIO

Tipología donde las ha bitaciones se ubican en forma de anillo, gene rando un patio interior que mantiene un carác ter controlado.

A su vez permite una doble conexión, con el patio y con la vía pu blica.

PATIO DESFASADO

Esta tipología es una variante del tipo pei ne, en donde la cir culación central se desfaza y quedan conec tadas unicamente por una circulación per pendicular.

Da la posibilidad de generar dos zonas bien diferenciadas

PATIOS

Esta tipología es una variante del patio cen tral, en donde se da la posibilidad de dar di ferentes clasificacio nes a los patios inte riores.

ESTUDIO TIPOLÓGICO
34
REFERENCIAS
Centro Psiquiátrico en Alemania, Friedrichshafen / Huber Staudt Arquitectos. Año: 2011 Sanatorio y centro nacional de rehabilitación del Banco de Se guros del Estado de Uruguay. Fábrica de Paisaje. Hospital Psiquiátrico en Noruega, Kronstad Origo Arkitektgruppe. Centro de diabetes en Copenhague. Año: 2016
35
Centro de diabetes en Copenhague. Año: 2016

Idea fuerza

01 | VOLÚMEN BASE

Se parte de un volúmen de forma cuadrada, ubicado pa ralelo a dos alas existen tes del Saint Bois, con el fin de aprovechar servicios del edificio existente.

03 | CONTINUIDAD

Buscando el menor impac to posible a las visuales existentes y el entorno se genera una entrada princi pal permeable y continua acompañando el paisaje.

02 | PATIO CENTRAL

Se genera un patio central que funcione como un espa cio abierto pero controlado y seguro para los pacientes.

04 | CUBIERTA

Se proyecta un techo con forma de impluvium, gene rando zonas más privadas al interior, y amplias hacia el exterior.

36

ENTRADA PRINCIPAL

EMERGENCIA CENTRO OFTALMOLÓGICO SALA H

PENITENCIARIASALA PABELLÓN SIN USO

Como punto de partida el nuevo centro se ubica en la parte posterior del predio, generando un vínculo directo con el Hospital Saint Bois y con el recorrido de ingreso de las ambulancias. Siendo de gran tamaño la preexistencia, se busca diseñar un proyecto de baja altura que se mimetice con el entorno; por lo cual se propone un edificio en dos niveles, donde la planta baja se ubica un nivel descendido del nivel cero, que junto con la cubierta verde, se pierden en la naturaleza del entorno.

Se genera un juego tipográfico en que el terreno desciende, manteniendo una continuidad con el entorno y permitiendo obtener un espacio abierto interior en el centro del edificio en que la privacidad y el control están presentes.

IMPLANTACIÓN EN EL PREDIO
PABELLÓN MARTIRENÉ LAVANDERÍA GINECOLOGÍA ADMINISTRACIÓN DEPÓSITO DE SUMINISTROS
DEPTO.PSIQUIATRÍA 37

CIRCULACIONES

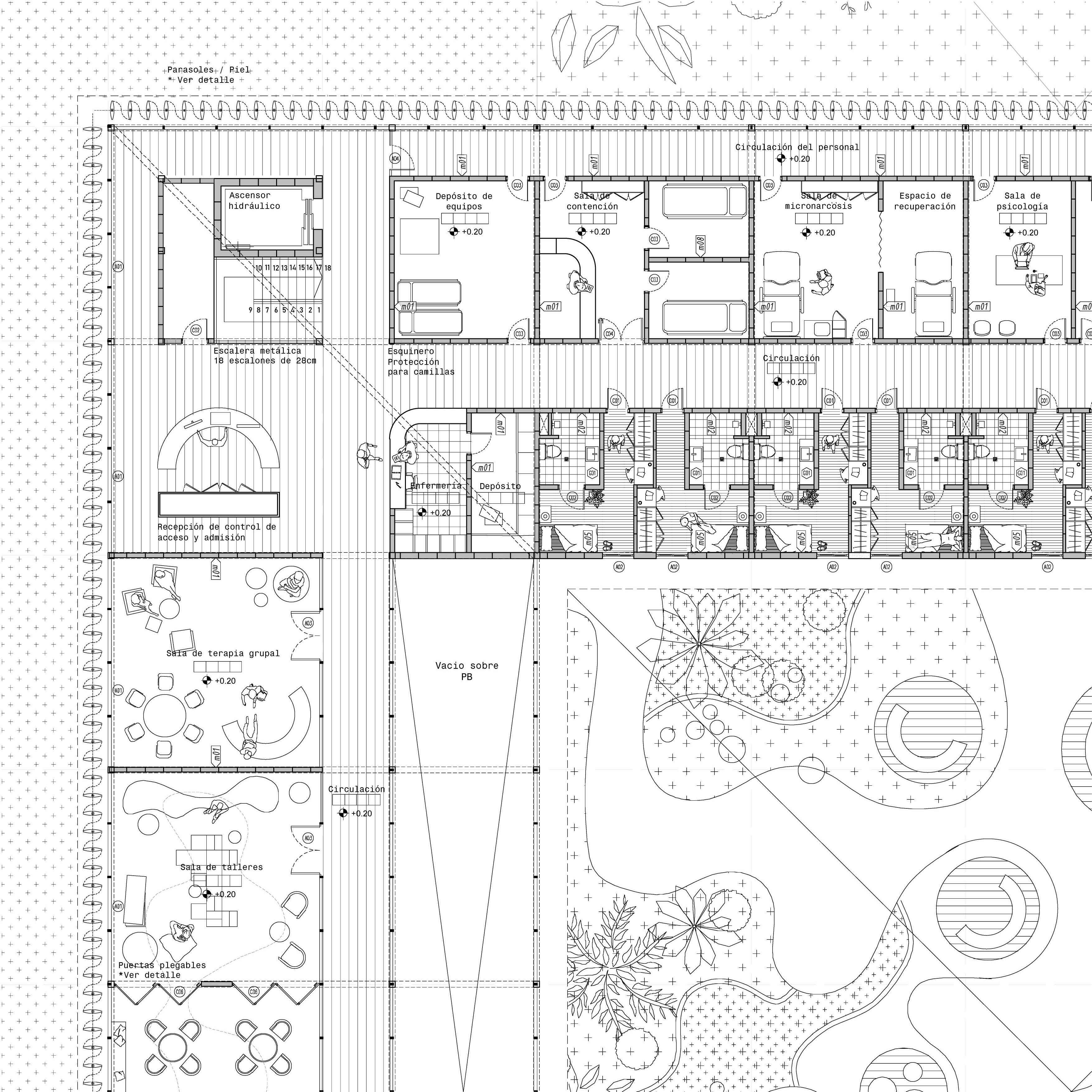
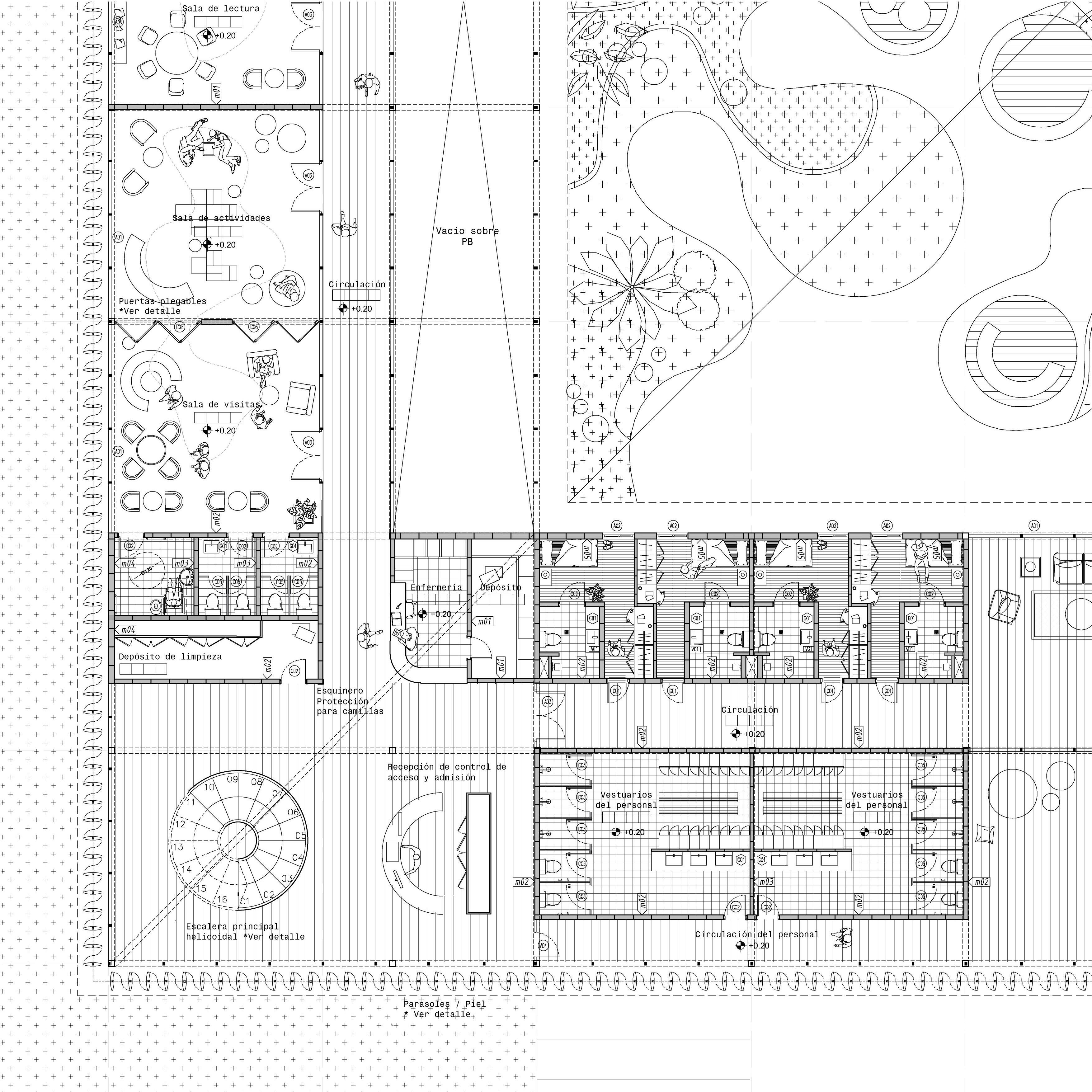
La forma cuadrada de la planta y el patio cen tral, dan lugar a blo ques circulatorios que se ubican en tres esquinas, conformados por escaleras de diferente porte y as censores, permitiendo un acceso directo al nivel superior luego de las en tradas de los diferentes usuarios.

HABITACIONES INDIVIDUALES

Debido a que el principal espacio de rehabilitación de los usuarios se da en la habitación, se busca que las mismas se encuentren en su mayoría en contacto directo con el patio cen tral y la naturaleza.

Las habitaciones dobles, se ubican en el lateral derecho del edificio bus cando que al ser más am plias se encuentren en el lado de la cubierta más alto, pero manteniendo el contacto con la na turaleza y la privacidad necesaria.

ZONA MÉDICA

Por un lado tenemos en el frente del edificio los espacios de descanso de los médicos y áreas ad ministrativas. Mientras que en la parte de atrás del edificio se encuen tran las zonas médicas de rehabilitación y tra tamiento directo con el paciente.

ZONAS DE ACTIVIDADES

La zona de actividades se encuentra en el lateral izquierdo del edificio, tanto en el nivel supe rior como en el inferior, y coincide con el lugar de ingreso de las visitas y familiares.

EMERGENCIA Y ZONA TÉCNICA

La emergencia se encuen tra en el lateral derecho del edificio en el nivel inferior, que cuenta con un ingreso vehicular di recto a la sala de pri mera atención y un área administrativa.

SISTEMA ORGANIZATIVO
38

EMERGENCIA

PACIENTE ingreso

ÁREA DEL PERSONAL

Situación en la que unos síntomas psicopatológicos son percibidos como per turbadores o amenazantes, de modo requieren atención psiquiátrica urgente.

ATENCIÓN MÉDICA

ingreso

PERSONAL VISITAS

CONTROL DE ADMISIÓN

SALA DE OBSERVACIÓN

HOSPITALIZACIÓN

Se lleva a cabo una eva luación inicial para ana lizar el estado del pa ciente.

Si se recomienda trata miento, el paciente será derivado al nivel de cui dados adecuado.

Espacios donde el paciente y el médico trabajan jun tos para identificar y re solver los problemas rela cionados con la enfermedad psiquiátrica.

SALA DE VISITAS

ingreso

Los visitantes deben anun ciarse en la recepción principal del edificio, donde les darán instruc ciones para llegar a la unidad del paciente.

Dentro del edificio la familia tiene dos posibilidades de encuen tro con los pacientes, dependiendo del estado del mismo, en las áreas comunes o en la privacidad de la habitación.

SALAS MÉDICAS

HABITACIONES

DE ACTIVIDADES

HABITACIONES HABITACIONES

HABITACIONES

ZONA DEL PERSONAL

RECORRIDOS ESPACIALES BIBLIOTECA + COMEDOR SALA DEOBSERVACIÓN ZONA TÉCNICA
SALA
01 02 01 01 02 03 02
Ambulancia Paciente Médico Médico Visitas Visitas Médico Médico
39

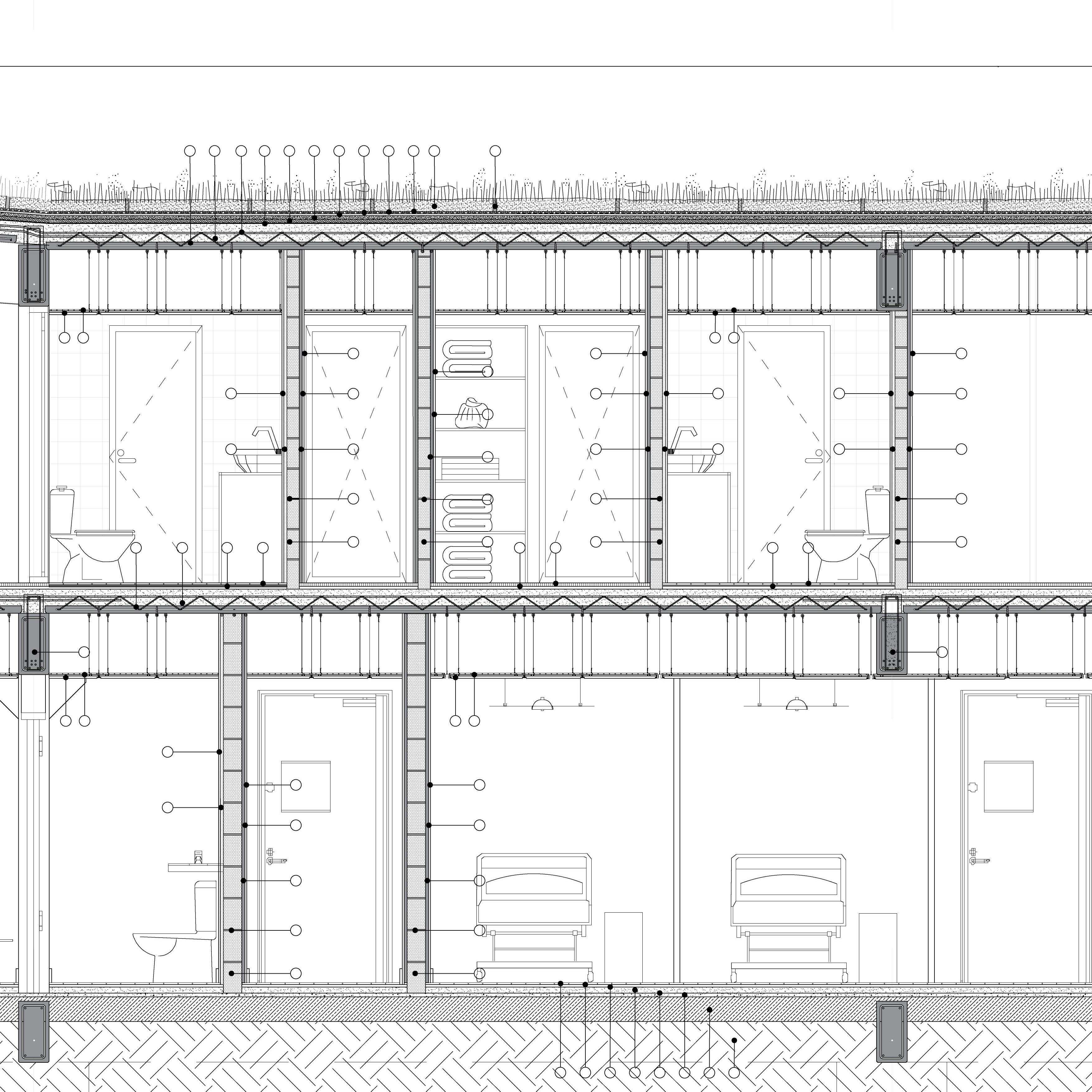
ALBAÑILERÍA

01
01

La estigmatización de la Salud Mental sucede de múltiples formas, entendemos que la arquitectura puede tener un rol clave para el cambio generando mayor inclusión. Se busca un diseño que pro mueva vínculos, contactos, y comunica ción de las personas hospitalizadas con sus familiares y el entorno.

De esta manera se evita una configu ración espacial privativa y meramente funcional, sin espacios para rehabilitación y tratamientos al aire libre.

44
45

CUBIERTA

Se implementa una cubierta verde con sistemas del tipo extensivos, que son livianos y de poca profundidad. No es accesible y presenta un bajo mantenimiento sin suministro de riego, siendo sistemas más hostiles para la vegetación en cuanto a condiciones de temperatura y humedad.

Portulaca gilliesii Gomphrena celosioides Gomphrena celosioides
48
Portulaca grandiflora Grahamia bracteata Sedum mexicanum

PLANTA DE TECHOS Escala: 1.350

49

PLANTA BAJA Escala: 1.350

ENTRADA PRINCIPAL

ESPACIO DE PACIENTES

L01 | RECEPCIÓN DE ENTRADA L02 | CONTROL DE VISITAS L03 | BATERÍA DE BAÑOS

L04 | BIBLIOTECA L05 | CUARTO DE ALIMENTOS L06 | COCINA L07 | COMEDOR

SERVICIOS

L08 | DEPÓSITO LAVANDERÍA SUCIA L09 | ENFERMERÍA

L10 | RECEPCIÓN DE EMERGENCIA L11 | BATERÍA DE BAÑOS L12 | DEPÓSITO DE MEDICAMENTOS L13 | SALA DE OBSERVACIÓN

L14 | GRUPO ELECTRÓGENO L15 | POZO DE BOMBEO L16 | SALA DE TANQUES L17 | SUB. ESTACIÓN DE UTE L18 | SALA DE MONITOREO L19 | DEPÓSITO DE EQUIPOS

PRIMERA ATENCIÓN ZONA TÉCNICA 50
01 02 03 04 05 06 07 08 09 10 11 12 13 14 15 16 17 18 19 51

PLANTA ALTA Escala: 1.350

SALAS MÉDICAS

L20 | DEPÓSITO

L21 | DEPÓSITO DE EQUIPOS L22 | ENFERMERÍA L23 | DEPÓSITO DE MEDICAMENTOS

L24 | SALA DE CONTENCIÓN L25 | SALA DE MICRONARCOSIS L26 | ESPACIO DE RECUPERACIÓN L27 | SALA DE PSICOLOGÍA L28 | SALA DE PSIQUIATRÍA L29 | SALA DE NUTRICIÓN L30 | SALA DE TRATAMIENTO SENSORIAL L31 | SALA DE REHABILITACIÓN PSICOSOCIAL L32 | DEPÓSITO DE CAMILLAS

ZONA DEL PERSONAL

L33 | SALA DE JUNTAS L34 | DIRECCIÓN L35 | COMEDOR DE PERSONAL L36 | OFICINA ADMINISTRATIVA L37 | VESTUARIOS DEL PERSONAL

L38 | RECEPCIÓN DE CONTROL L39 | DEPÓSITO DE LIMPIEZA L40 | BATERÍA DE BAÑOS

SALAS DE ACTIVIDADES

L41 | SALA DE VISITAS L42 | SALA DE ACTIVIDADES L43 | SALA DE LECTURA L44 | SALA DE TALLERES L45 | SALA DE TERAPIA GRUPAL

52
ALTA Escala: 1.350 20 21 24 23 26 27 28 29 30 31 22 25 23 22 32 23 22 33 33 34 35 36 37 38 39 40 41 42 43 44 45 23 22 53
PLANTA

CORTE FACHADA

Escala: 1.150

+4.65

PARASOLES MÓVILES

Aeroscreen Plus Material: Aluminio Espesor: 1,2 mm Color: Negro Terminación: Lisa

+0.20 -2.90

CUBIERTA VERDE

54

PILARES

De hormigón prefabricado Recubrimiento metálico negro.

MALLA DIVISORIA Chapa microperforada

55

CORTE FACHADA

Escala: 1.150

PARASOLES MÓVILES

Aeroscreen Plus Material: Aluminio Espesor: 1,2 mm Color: Negro Terminación: Lisa

CUBIERTA VERDE +4.65 +0.20 -2.90

56

PILARES

De hormigón prefabricado Recubrimiento metálico negro.

MALLA DIVISORIA Chapa microperforada

57

CORTE FACHADA

Escala: 1.150

PARASOLES MÓVILES

Aeroscreen Plus Material: Aluminio Espesor: 1,2 mm Color: Negro Terminación: Lisa

CUBIERTA VERDE +4.65 +0.20 -2.90

58

ESCALERA DE SERVICIO Metálica industrial

Acero tubular, acabado en polvo color negro.

UNIDADES EXTERIORES

VRV

Sistema de volumen refrigerante variable

59

CORTE FACHADA

Escala: 1.150

PARASOLES MÓVILES

Aeroscreen Plus

ESCALERA DE SERVICIO Metálica industrial

Acero tubular, acabado en polvo color negro. +4.65 +0.20 -2.90

Material: Aluminio Espesor: 1,2 mm Color: Negro Terminación: Lisa

60

CUBIERTA VERDE

61

L41-45 Salas de actividades

Cielorraso losa de hormigón visto Paramento muro de bloque HCCA. Ter minación pintura látex blanca. Muro cortina serie Summa, Aluminios del Uruguay.

Zócalo PVC imitación madera h: 7cm.

Pavimento tablas vinílicas imitación madera.

L07 Comedor

Cielorraso USG desmontable 61x61cm. Paramento muro de bloque HCCA. Ter minación pintura látex blanca. Muro cortina serie Summa, Aluminios del Uruguay.

Zócalo PVC imitación madera h: 7cm.

Pavimento tablas vinílicas imitación madera.

CORTE AA
Escala: 1.150 +4.65 +0.20 -2.90
Sala de terapia grupal Sala de talleres Comedor Comedor Sala de lectura
62

L06

Cocina

Cielorraso USG desmontable 61x61cm. Paramento muro de bloque HCCA. Termi nación porcelanato blanco 30x60. Zócalo porcelanato blanco h: 7cm. Pavimento cerámica blanca 60x60 cm e=2cm

L04

Biblioteca

Cielorraso USG desmontable 61x61cm. Paramento muro de bloque HCCA. Ter minación pintura látex blanca. Muro cortina serie Summa, Aluminios del Uruguay.

Zócalo PVC imitación madera h: 7cm. Pavimento tablas vinílicas imitación madera.

Biblioteca Biblioteca
Sala
SS.HH SS.HH
lectura Cocina
Sala de actividades
de visitas
Sala de espera
63

ZONAS DE ESTAR

Cielorraso losa de hormigón armado Paramento muro de bloque HCCA. Termi nación pintura látex blanca. Zócalo PVC imitación madera h: 7cm. Pavimento tablas vinílicas imitación madera. Zona de estar Zona de estar

CORTE BB
Escala: 1.150 +4.65 +0.20 -2.90
64

DORMITORIOS INDIVIDUALES 24 Unidades

Cielorraso USG desmontable 61x61cm. Paramento muro de bloque HCCA. Termi nación pintura látex blanca. Venta na fija linea Gala 66, Aluminios del Uruguay.

Zócalo PVC imitación madera h: 7cm.

Pavimento tablas vinílicas imitación madera.

L25-31 Salas de atención médica

Cielorraso USG desmontable 61x61cm. Paramento muro de bloque HCCA. Termi nación pintura látex blanca. Zócalo PVC imitación madera h: 7cm. Pavimento tablas vinílicas imitación madera.

65
Dormitorios Sala de psiquiatría

L33-36

Salas del personal

Cielorraso USG desmontable 61x61cm. Paramento muro de bloque HCCA. Termi nación pintura látex blanca. Zócalo PVC imitación madera h: 7cm. Pavimento tablas vinílicas imitación madera.

L13

Sala de observación

Cielorraso USG desmontable 61x61cm. Paramento muro de bloque HCCA. Termi nación pintura látex blanca. Diviso res tabique de yeso. Zócalo porcelanato blanco h: 7cm. Pavimento cerámica blanca 60x60 cm e=2cm.

CORTE CC
Escala: 1.150 +4.65 +0.20 -2.90
66
Sala de juntas Enfermería Recepción de emergencia
SS.HH SS.HH Sala de observación

L25-31

Salas de atención médica

Cielorraso USG desmontable 61x61cm. Paramento muro de bloque HCCA. Termi nación pintura látex blanca. Zócalo PVC imitación maderar h: 7cm. Pavimento vinílico imitación madera.

Grupo electrógeno Sala de tanques Sala de calderas Enfermería
67
Sala
de rehabilitación psicosocial Sala de
monitoreo

L18

Sala de monitoreo

Cielorraso USG desmontable 61x61cm. Paramento muro de bloque HCCA. Ter minación pintura látex blanca. Muro cortina, serie Summa, Aluminios del Uruguay

Zócalo porcelanato blanco h: 7cm. Pavimento cerámica blanca 60x60 cm e=2cm.

ZONAS DE ESTAR

Cielorraso losa de hormigón armado Paramento muro de bloque HCCA. Termi nación pintura látex blanca. Zócalo PVC imitación madera h: 7cm. Pavimento tablas vinílicas imitación madera.

CORTE DD
Escala: 1.150 +4.65 +0.20 -2.90
Sala de rehabilitación psicosocial Zona de estar Sala de tratamiento sensorial Sala de nutrición Sala de psiquiatría 68

L25-31

Salas de atención médica

Cielorraso USG desmontable 61x61cm. Paramento muro de bloque HCCA termina ción pintura látex blanca. Zócalo PVC imitación maderar h: 7cm. Pavimento vinílico imitación madera.

L24

Sala de contención

Cielorraso USG desmontable 61x61cm. Paramento muro de bloque HCCA con re vestimiento acolchado de seguridad Pavimento cerámico blanco 60x60 cm e=2cm

69
Sala de psicología Espacio de recuperación Sala de micronarcosis Sala de contención Depósito de equipos

Escala: 1.150 +4.65 +0.20 -2.90

L41-45

Salas de actividades

Cielorraso losa de hormigón visto Paramento muro de bloque HCCA. Ter minación pintura látex blanca. Muro cortina serie Summa, Aluminios del Uruguay.

Zócalo PVC imitación madera h: 7cm. Pavimento tablas vinílicas imitación madera.

Sala de lectura

Cocina Depósito de alimentos

CORTE EE
70

PASILLOS

Cielorraso losa de hormigón armado Paramento muro de bloque HCCA. Termi nación pintura látex blanca. Zócalo PVC imitación madera h: 7cm. Pavimento tablas vinílicas imitación madera.

DORMITORIOS DOBLES

6 Unidades

Cielorraso USG desmontable 61x61cm. Paramento muro de bloque HCCA. Termi nación pintura látex blanca. Venta na fija linea Gala 66, Aluminios del Uruguay.

Zócalo PVC imitación madera h: 7cm.

Pavimento tablas vinílicas imitación madera.

Dormitorios individuales Dormitorios dobles
71
Sala de observación

L01

Recepción de visitas

Cielorraso USG desmontable 61x61cm. Paramento muro de bloque HCCA termina ción pintura látex blanca. Zócalo PVC imitación maderar h: 7cm. Pavimento vinílico imitación madera.

L37 Vestuarios del personal

Cielorraso USG desmontable 61x61cm. Paramento muro de bloque HCCA termina ción cerámica 40x40 Zócalo porcelanato blanco h: 7cm. Pavimento cerámico blanco 60x60.

Recepción de visitas

CORTE FF
Escala: 1.150 +4.65 +0.20 -2.90
Enfermería Vestuarios femeninos Vestuarios masculinos
72

ZONAS DE ESTAR

Cielorraso losa de hormigón armado Paramento muro de bloque HCCA. Termi nación pintura látex blanca. Zócalo PVC imitación madera h: 7cm. Pavimento tablas vinílicas imitación madera.

L33-36

Salas del personal

Cielorraso USG desmontable 61x61cm. Paramento muro de bloque HCCA. Termi nación pintura látex blanca. Zócalo PVC imitación madera h: 7cm. Pavimento tablas vinílicas imitación madera.

73
Oficina administrativa Comedor Dirección Sala de juntas Recepción de emergencia
74

Desde el punto de vista de la expresión material del centro, el mismo se compone de diferentes subsistemas que conforman la materialización del mismo y acompañan las estrategias proyec tuales mencionadas anteriormente.

Se destacan entre ellos la cubierta verde, el sistema estructural y la piel.

01 | CUBIERTA VERDE:

La cubierta es considerada como la quinta fa chada del edificio ya que debido a su gran ta maño y la altura del hospital existente, desde el interior del mismo en niveles superiores se ve la misma en todo momento, es por esto que se busca generar una cubierta que acompañe y se mimetice con el entorno.

Por otro lado, se genera una cubierta tipo im pluvium en que cuenta con una pendiente en que el lado más bajo de la misma se encuentra del lado del patio y permite ver desde el interior el verde de la cubierta.

02 | SISTEMA ESTRUCTURAL:

El edificio se organiza en un módulo de 7m x 7m, generando una grilla tridimensional de vigas y pilares de hormigón prefabricado, capaz de al bergar el programa del hospital.

El proyecto está contenido en una grilla neu tra que se deja a la vista, y el programa toma las áreas correspondientes dentro de la misma buscando diferentes relaciones, de conexión y privacidad con el entorno.

03 | ENVOLVENTE:

La fachada cuenta con diferentes tipos de aber turas que permiten la ventilación e iluminación natural en el interior del edificio. Se coloca una piel compuesta por paños móviles metálicos que generan una unidad estética en la fachada del edificio, pero sobre todo permiten una protección contra la incidencia de radia ción solar directa y la lluvia.

04 | PATIO:

El patio es el corazón central del edificio, permite una ventilación cruzada e iluminación directa en las diferentes áreas, manteniendo a su vez un vínculo constante con la naturaleza. La vegetación que compone el mismo es un ele mento de carácter esencial para el paciente, ya que dan un sentido de cambio estacional que afianza la conciencia de los ritmos y los ciclos de vida y a su vez el contacto con la naturaleza es esencial para la recuperación.

75

“La arquitectura despierta sentimientos en el hombre. Por lo tanto la tarea del arquitecto, es hacer de esos sentimientos mas precisos”

(Adolf Loos)

77

APROXIMACIÓN.

Los espacios de salud mental tienen un impacto significativo en el proceso de recuperación de los trastornos de conducta.

La estigmatización de la enfermedad mental se refuerza a través de espacios de tratamiento todavía hoy con un carácter clínico e institu cional, diseñados para ser seguros y fáciles de limpiar, lo que a menudo resulta en espacios que perciben fríos y estériles.

Mediante un diseño consciente de los espacios se puede crear un entorno favorable para el paciente que complemente la práctica clínica y que fomente la reducción de la estadía.

79
HABITACIONES 15m201 1 2 3 4 5 6 7 8 9 5 8 3 4 80

01 | Pavimentos con terminación imitación madera, se bus ca generar ambientes acogedores que generen un ambiente no hospitalario.

02 | Se busca la máxima luz natural sin perder privacidad, con ventanas fijas de piso a techo de seguridad (vidrios la minados), que impidan su fragmentación.

03 | Estanterias fijadas a la pared.

04 | Sillas de material plástico y compacto, sin posibili dad de ser fragmentado.

05 | Es necesario que los colchones sean ignífugos.

06 | Luminaria para que el personal pueda moverse con fa cilidad dentro de la habitaciónsin perturbar el descanso del paciente.

07 | Las puertas de las habitaciones no deben contar con manilla ni pomo ni sistema alguno que pueda permitir su cie rre desde el interior.También deben abrir hacia fuera, para bevitar que los pacientes obstaculicen de forma intencionada la misma.

08 | Los espejos deben ser encastrados y no fraccionables.

09 | Se evitarán las duchas tipo teléfono con cable que el paciente pueda manipular.

81

CONSIDERACIONES MATERIALES

Proponemos una revisión de las asociaciones espaciales que se pueden producir en los hospitales, para despojar los centros de las connotaciones que contribuyen negativamente a vivir la experiencia hospitalaria, o que generan respuestas de incre mento del estrés y la ansiedad.

MADERA

HORMIGÓN

La madera se ha convertido en un material de construcción para los hospitales porque be neficia la recuperación de los pacientes, reduce el estrés y mejora el estado de ánimo de las personas.

PINTURA BLANCA

El acabado de hormigón u hor migón visto ofrece una serie de ventajas, usos y posibili dades decorativas. también es elegido por su simpleza, soli dez, durabilidad y rapidez de instalación.

PERFILERÍA NEGRA

Color neutro en contraste con la madera y hormigón. Aporta luminosidad a los espacios. Asociado a la limpieza y la pureza.

Se utiliza el color negro en la perfileriía de aberturas para enfatizar.

02
82

EL ESPACIO VERDE COMO RECURSO

Gran importancia de la naturaleza para la conexión del paciente a través del espacio público. Genera bienestar, estimula el uso de los sentidos y aporta espacios para sociabilizar. Se busca concebir el patio central como un espacio que genere seguridad y la sensación de control de su en torno.

VEGETACIÓN CIRCULACIÓN ESPACIOS DE PERMANENCIA ELEMENTOS ANTRÓPICOS

Vegetación selecciona da según sus colora ción, especie y flora ción.

Se busca poder circular a través del patio de froma cómoda, con sen deros amplios, lisos y parímetros bien defini dos.

Espacios de descanso y contemplación. Según la vegetación circundante estos estarán en sombra o al sol.

Estanque de agua cuyo ruido que se crea alre dedor genera un espacio contemplativo y deses tresante.

03
CEIBO LAVANDA MARGARITA GALATEA HIERBA EULALIA HIEDRA DE CANARIAS MARGARITA ORIENTAL MONINNA CUNEATA FLOR DE REINA HELECHO REAL IBIRAPITÁ
83
CURUPÍ

ESPACIOS COMUNES

Se promueve la actividad física, la relajación, control de la ira y el estrés, destrezas para comunicación y socialización, arte y otras ac tividades recreativas.

También la terapia grupal les brinda a los pa cientes la posibilidad de compartir inquietudes en común, aprender unos de otros y practicar nuevas destrezas.

85

DETALLES POR SECTOR

02
02

ESCALA: 1.120

CIERLORRASOS

1.1: Cielorraso USG desmontable 61x61cm. Terminación pintura vinílica lavable blanca.

1.2: Losa de Hormigón visto

PARAMENTOS

2.1: Muro de bloque HCCA. Revoque fino con Pintura Látex color blanca.

2.2: Muro de bloque HCCA + Mortero + Pas tina + Porcelanato color blanco 30x60 cm

2.3: Tabique de yeso enduido y pintado.

2.4: Muro de bloque HCCA con revestimien to acolchado de seguridad. 2.5: Muro cortina.

ZÓCALOS

3.1: Porcelanato color blanco h:7cm 3.2: PVC imitación madera h: 7cm

PAVIMENTOS

4.1: Tablas vinílicas imitación madera. 4.2: Terminación cerámica blanca 40x40 cm e=2cm

4.3: Terminación cerámica blanca 60x60 cm e=2cm

MUROS

M01: MURO INTERIOR - INTERIOR. e:20 cm Pintura látex + Revoque fino + Revoque grueso (2,5cm) + BLOQUE HCCA (Ladrillo Retak)15x25x60 + Revoque grueso (2,5cm) + Revoque fino + Pintura látex

M02: MURO INTERIOR - INTERIOR. e:20 cm Pintura látex + Revoque fino + Revoque grueso (2,5cm) + BLOQUE HCCA (Ladrillo Retak) 15x25x60 + Mortero cementicio + Pastina blanca + Porcelanato 30x60

M03: MURO INTERIOR - INTERIOR. e:20 cm Porcelanato 30x60 + Pastina blanca + Mor tero cementicio + BLOQUE HCCA + Mortero cementicio + Pastina blanca + Porcelanato

M04: MURO INTERIOR - EXTERIOR. e:27 cm Porcelanato + Pastina blanca + Mortero cementicio + BLOQUE HCCA + Arena y portland c/hidrófugo (2,5cm) + Revoque exterior 2 capas con enduido para exterio res y pintado.

M05: MURO INTERIOR - EXTERIOR. e:27 cm Pintura látex + Revoque fino + Revoque grueso (2,5cm) + BLOQUE HCCA + Arena y portland c/hidrófugo (2,5cm) + Revoque ex terior 2 capas con enduido para exteriores y pintado.

M06: MURO INTERIOR - EXTERIOR. e:34 cm Pintura látex + Revoque fino + Revoque grueso (2,5cm) + Muro de contención de H.A + Impermeabilización.

M07: MURO INTERIOR - EXTERIOR. e:34 cm Porcelanato + Pastina blanca + Mortero cementicio + Muro de contención de H.A + Impermeabilización

M08: MURO INTERIOR - INTERIOR. e:20 cm Pintura látex + Revoque fino + Revoque grueso (2,5cm) + BLOQUE HCCA + plancha OSB + Poliuretano de baja densidad + Poliure tano de alta densidad.

M09: MURO INTERIOR - INTERIOR. e:17cm Terminación enduido y pintado + Placa de yeso (12,5cm)+ Lana de vidrio c/montante + Placa de yeso (12,5cm)+ Terminación endui do y pintado.

CARPINTERÍA

C01: Puerta batiente interior en acceso a dormitorios, en madera de Eucaliptus con zócalo de acero inoxidable h:90cm (1.0 x 2.10m).

C02: Puerta batiente interior en acceso a baños y vestuarios, en madera de Eucalip tus (0.80 x 2.10m).

C03: Puerta batiente interior en acceso a salas, en madera de Eucaliptus con visor cuadrado de vidrio fijo. (0.8 x 2.10m). Amure con poliuretano.

C04: Puerta doble batiente interior en sa las en PB, en madera de Eucaliptus con vi sor cuadrado de vidrio fijo. (2.0 x 2.10m) *Con zócalo de aluminio y sin herraje en sala de observación.

C05: Paneles divisorios en SS.HH. Interior de polietileno de alta densidad con recu bride acero inoxidable, acabado electro pintado blanco e: 25,4 mm.

C06: Sistema de puertas plegables con ro damiento. Marco de madera y vidrio opaco. Tipo DN80 PL 4 hojas. Linea Segmenta.

ALUMINIOS

A01: En fachadas N,S,E,O. Paños fijos (1.65 x 3.85 m) / (1.65 x 2.85 m). Serie Summa de Aluminios del Uruguay

A02: Ventana con vidrio fijo en habitacio nes(1.0 x 2.0m)

A03: Puerta doble batiente en pasillos y entrada principal (2.0 x 2.5m)con paño fijo superior. Serie Summa de Aluminios del Uruguay.

A04: Puerta batiente en pasillos (1.0 x 2.5m) con paño fijo superior. Serie Summa de Aluminios del Uruguay.

A05: Puerta corrediza hacia patio exterior (2.0 x 2.1m). Serie Summa de Aluminios del Uruguay.

A06: Puerta doble batiente corta fuego en sala de calderas y cocina (2.0 x 2.1m). De acero de alta resistencia de 1,2mm, Abe lenda Hermanos.

A07: Puerta doble batiente exterior con marco y puerta metálica, terminación an tióxido blanco. Barral antipánico push. (2.0 x 2.1m)

HIERRO

H01: Puerta doble batiente para Subesta ción de UTE. Perfil de hierro sección 2X1 / 8” Terminación esmalte sintético negro. (1.4 x 2.5m)

H02: Portón batiente en malla divisoria de chapa microperforada. Marco con perfiles de hierro. (1.5 x 2.5m)

VIDRIO

V01:Espejo empotrado en pared e:6mm. (0.80 x 1.3m en baños)(2.75 x 1.3m en vestua rios)

GRANITO

G01: MESADAS Silestone pulido blanco

ZOOM 01 |
PLANTA BAJA
2.0 3.0 4.0
88
1.0
CUADRO DE TERMINACIONES
1.2 2.2 3.1 4.3 89

ESCALA: 1.120

CIERLORRASOS

1.1: Cielorraso USG desmontable 61x61cm. Terminación pintura vinílica lavable blanca.

1.2: Losa de Hormigón visto

PARAMENTOS

2.1: Muro de bloque HCCA. Revoque fino con Pintura Látex color blanca.

2.2: Muro de bloque HCCA + Mortero + Pas tina + Porcelanato color blanco 30x60 cm

2.3: Tabique de yeso enduido y pintado.

2.4: Muro de bloque HCCA con revestimien to acolchado de seguridad. 2.5: Muro cortina.

ZÓCALOS

3.1: Porcelanato color blanco h:7cm 3.2: PVC imitación madera h: 7cm

PAVIMENTOS

4.1: Tablas vinílicas imitación madera. 4.2: Terminación cerámica blanca 40x40 cm e=2cm

4.3: Terminación cerámica blanca 60x60 cm e=2cm

MUROS

M01: MURO INTERIOR - INTERIOR. e:20 cm Pintura látex + Revoque fino + Revoque grueso (2,5cm) + BLOQUE HCCA (Ladrillo Retak)15x25x60 + Revoque grueso (2,5cm) + Revoque fino + Pintura látex

M02: MURO INTERIOR - INTERIOR. e:20 cm Pintura látex + Revoque fino + Revoque grueso (2,5cm) + BLOQUE HCCA (Ladrillo Retak) 15x25x60 + Mortero cementicio + Pastina blanca + Porcelanato 30x60

M03: MURO INTERIOR - INTERIOR. e:20 cm Porcelanato 30x60 + Pastina blanca + Mor tero cementicio + BLOQUE HCCA + Mortero cementicio + Pastina blanca + Porcelanato

M04: MURO INTERIOR - EXTERIOR. e:27 cm Porcelanato + Pastina blanca + Mortero cementicio + BLOQUE HCCA + Arena y portland c/hidrófugo (2,5cm) + Revoque exterior 2 capas con enduido para exterio res y pintado.

M05: MURO INTERIOR - EXTERIOR. e:27 cm Pintura látex + Revoque fino + Revoque grueso (2,5cm) + BLOQUE HCCA + Arena y portland c/hidrófugo (2,5cm) + Revoque ex terior 2 capas con enduido para exteriores y pintado.

M06: MURO INTERIOR - EXTERIOR. e:34 cm Pintura látex + Revoque fino + Revoque grueso (2,5cm) + Muro de contención de H.A + Impermeabilización.

M07: MURO INTERIOR - EXTERIOR. e:34 cm Porcelanato + Pastina blanca + Mortero cementicio + Muro de contención de H.A + Impermeabilización

M08: MURO INTERIOR - INTERIOR. e:20 cm Pintura látex + Revoque fino + Revoque grueso (2,5cm) + BLOQUE HCCA + plancha OSB + Poliuretano de baja densidad + Poliure tano de alta densidad.

M09: MURO INTERIOR - INTERIOR. e:17cm Terminación enduido y pintado + Placa de yeso (12,5cm)+ Lana de vidrio c/montante + Placa de yeso (12,5cm)+ Terminación endui do y pintado.

CARPINTERÍA

C01: Puerta batiente interior en acceso a dormitorios, en madera de Eucaliptus con zócalo de acero inoxidable h:90cm (1.0 x 2.10m).

C02: Puerta batiente interior en acceso a baños y vestuarios, en madera de Eucalip tus (0.80 x 2.10m).

C03: Puerta batiente interior en acceso a salas, en madera de Eucaliptus con visor cuadrado de vidrio fijo. (0.8 x 2.10m). Amure con poliuretano.

C04: Puerta doble batiente interior en sa las en PB, en madera de Eucaliptus con vi sor cuadrado de vidrio fijo. (2.0 x 2.10m) *Con zócalo de aluminio y sin herraje en sala de observación.

C05: Paneles divisorios en SS.HH. Interior de polietileno de alta densidad con recu bride acero inoxidable, acabado electro pintado blanco e: 25,4 mm.

C06: Sistema de puertas plegables con ro damiento. Marco de madera y vidrio opaco. Tipo DN80 PL 4 hojas. Linea Segmenta.

ALUMINIOS

A01: En fachadas N,S,E,O. Paños fijos (1.65 x 3.85 m) / (1.65 x 2.85 m). Serie Summa de Aluminios del Uruguay

A02: Ventana con vidrio fijo en habitacio nes(1.0 x 2.0m)

A03: Puerta doble batiente en pasillos y entrada principal (2.0 x 2.5m)con paño fijo superior. Serie Summa de Aluminios del Uruguay.

A04: Puerta batiente en pasillos (1.0 x 2.5m) con paño fijo superior. Serie Summa de Aluminios del Uruguay.

A05: Puerta corrediza hacia patio exterior (2.0 x 2.1m). Serie Summa de Aluminios del Uruguay.

A06: Puerta doble batiente corta fuego en sala de calderas y cocina (2.0 x 2.1m). De acero de alta resistencia de 1,2mm, Abe lenda Hermanos.

A07: Puerta doble batiente exterior con marco y puerta metálica, terminación an tióxido blanco. Barral antipánico push. (2.0 x 2.1m)

HIERRO

H01: Puerta doble batiente para Subesta ción de UTE. Perfil de hierro sección 2X1 / 8” Terminación esmalte sintético negro. (1.4 x 2.5m)

H02: Portón batiente en malla divisoria de chapa microperforada. Marco con perfiles de hierro. (1.5 x 2.5m)

VIDRIO

V01:Espejo empotrado en pared e:6mm. (0.80 x 1.3m en baños)(2.75 x 1.3m en vestua rios)

GRANITO

G01: MESADAS Silestone pulido blanco

ZOOM 02 |
PLANTA BAJA
2.0 3.0 4.0
90
1.0
CUADRO DE TERMINACIONES

1.2 2.1 3.2 4.1 1.2 2.1 3.2 4.1

1.2 2.1 3.1 4.3

1.2 2.1 3.1 4.3 1.2 2.1 3.1 4.3

91

ESCALA: 1.120

CIERLORRASOS

1.1: Cielorraso USG desmontable 61x61cm. Terminación pintura vinílica lavable blanca.

1.2: Losa de Hormigón visto

PARAMENTOS

2.1: Muro de bloque HCCA. Revoque fino con Pintura Látex color blanca.

2.2: Muro de bloque HCCA + Mortero + Pas tina + Porcelanato color blanco 30x60 cm

2.3: Tabique de yeso enduido y pintado.

2.4: Muro de bloque HCCA con revestimien to acolchado de seguridad. 2.5: Muro cortina.

ZÓCALOS

3.1: Porcelanato color blanco h:7cm 3.2: PVC imitación madera h: 7cm

PAVIMENTOS

4.1: Tablas vinílicas imitación madera.

4.2: Terminación cerámica blanca 40x40 cm e=2cm

4.3: Terminación cerámica blanca 60x60 cm e=2cm

MUROS

M01: MURO INTERIOR - INTERIOR. e:20 cm Pintura látex + Revoque fino + Revoque grueso (2,5cm) + BLOQUE HCCA (Ladrillo Retak)15x25x60 + Revoque grueso (2,5cm) + Revoque fino + Pintura látex

M02: MURO INTERIOR - INTERIOR. e:20 cm Pintura látex + Revoque fino + Revoque grueso (2,5cm) + BLOQUE HCCA (Ladrillo Retak) 15x25x60 + Mortero cementicio + Pastina blanca + Porcelanato 30x60

M03: MURO INTERIOR - INTERIOR. e:20 cm Porcelanato 30x60 + Pastina blanca + Mor tero cementicio + BLOQUE HCCA + Mortero cementicio + Pastina blanca + Porcelanato

M04: MURO INTERIOR - EXTERIOR. e:27 cm Porcelanato + Pastina blanca + Mortero cementicio + BLOQUE HCCA + Arena y portland c/hidrófugo (2,5cm) + Revoque exterior 2 capas con enduido para exterio res y pintado.

M05: MURO INTERIOR - EXTERIOR. e:27 cm Pintura látex + Revoque fino + Revoque grueso (2,5cm) + BLOQUE HCCA + Arena y portland c/hidrófugo (2,5cm) + Revoque ex terior 2 capas con enduido para exteriores y pintado.

M06: MURO INTERIOR - EXTERIOR. e:34 cm Pintura látex + Revoque fino + Revoque grueso (2,5cm) + Muro de contención de H.A + Impermeabilización.

M07: MURO INTERIOR - EXTERIOR. e:34 cm Porcelanato + Pastina blanca + Mortero cementicio + Muro de contención de H.A + Impermeabilización

M08: MURO INTERIOR - INTERIOR. e:20 cm Pintura látex + Revoque fino + Revoque grueso (2,5cm) + BLOQUE HCCA + plancha OSB + Poliuretano de baja densidad + Poliure tano de alta densidad.

M09: MURO INTERIOR - INTERIOR. e:17cm Terminación enduido y pintado + Placa de yeso (12,5cm)+ Lana de vidrio c/montante + Placa de yeso (12,5cm)+ Terminación endui do y pintado.

CARPINTERÍA

C01: Puerta batiente interior en acceso a dormitorios, en madera de Eucaliptus con zócalo de acero inoxidable h:90cm (1.0 x 2.10m).

C02: Puerta batiente interior en acceso a baños y vestuarios, en madera de Eucalip tus (0.80 x 2.10m).

C03: Puerta batiente interior en acceso a salas, en madera de Eucaliptus con visor cuadrado de vidrio fijo. (0.8 x 2.10m). Amure con poliuretano.

C04: Puerta doble batiente interior en sa las en PB, en madera de Eucaliptus con vi sor cuadrado de vidrio fijo. (2.0 x 2.10m) *Con zócalo de aluminio y sin herraje en sala de observación.

C05: Paneles divisorios en SS.HH. Interior de polietileno de alta densidad con re cubrimiento de acero inoxidable, acabado electropintado blanco e: 25,4 mm.

C06: Sistema de puertas plegables con ro damiento. Marco de madera y vidrio opaco. Tipo DN80 PL 4 hojas. Linea Segmenta.

ALUMINIOS

A01: En fachadas N,S,E,O. Paños fijos (1.65 x 3.85 m) / (1.65 x 2.85 m). Serie Summa de Aluminios del Uruguay

A02: Ventana con vidrio fijo en habitacio nes(1.0 x 2.0m)

A03: Puerta doble batiente en pasillos y entrada principal (2.0 x 2.5m)con paño fijo superior. Serie Summa de Aluminios del Uruguay.

A04: Puerta batiente en pasillos (1.0 x 2.5m) con paño fijo superior. Serie Summa de Aluminios del Uruguay.

A05: Puerta corrediza hacia patio exterior (2.0 x 2.1m). Serie Summa de Aluminios del Uruguay.

A06: Puerta doble batiente corta fuego en sala de calderas y cocina (2.0 x 2.1m). De acero de alta resistencia de 1,2mm, Abe lenda Hermanos.

A07: Puerta doble batiente exterior con marco y puerta metálica, terminación an tióxido blanco. Barral antipánico push. (2.0 x 2.1m)

HIERRO

H01: Puerta doble batiente para Subesta ción de UTE. Perfil de hierro sección 2X1 / 8” Terminación esmalte sintético negro. (1.4 x 2.5m)

H02: Portón batiente en malla divisoria de chapa microperforada. Marco con perfiles de hierro. (1.5 x 2.5m)

VIDRIO

V01:Espejo empotrado en pared e:6mm. (0.80 x 1.3m en baños)(2.75 x 1.3m en vestua rios)

GRANITO

G01: MESADAS Silestone pulido blanco

ZOOM 03 |
PLANTA BAJA
2.0 3.0 4.0
92
1.0
CUADRO DE TERMINACIONES

1.2 2.1 3.2 4.1

1.2 2.1 3.2 4.1

1.1 2.2 3.1 4.3 93

PLANTA BAJA

ESCALA: 1.120

CIERLORRASOS

1.1: Cielorraso USG desmontable 61x61cm. Terminación pintura vinílica lavable blanca.

1.2: Losa de Hormigón visto

PARAMENTOS

2.1: Muro de bloque HCCA. Revoque fino con Pintura Látex color blanca.

2.2: Muro de bloque HCCA + Mortero + Pas tina + Porcelanato color blanco 30x60 cm

2.3: Tabique de yeso enduido y pintado.

2.4: Muro de bloque HCCA con revestimien to acolchado de seguridad. 2.5: Muro cortina.

ZÓCALOS

3.1: Porcelanato color blanco h:7cm 3.2: PVC imitación madera h: 7cm

PAVIMENTOS

4.1: Tablas vinílicas imitación madera. 4.2: Terminación cerámica blanca 40x40 cm e=2cm

4.3: Terminación cerámica blanca 60x60 cm e=2cm

MUROS

M01: MURO INTERIOR - INTERIOR. e:20 cm Pintura látex + Revoque fino + Revoque grueso (2,5cm) + BLOQUE HCCA (Ladrillo Retak)15x25x60 + Revoque grueso (2,5cm) + Revoque fino + Pintura látex

M02: MURO INTERIOR - INTERIOR. e:20 cm Pintura látex + Revoque fino + Revoque grueso (2,5cm) + BLOQUE HCCA (Ladrillo Retak) 15x25x60 + Mortero cementicio + Pastina blanca + Porcelanato 30x60

M03: MURO INTERIOR - INTERIOR. e:20 cm Porcelanato 30x60 + Pastina blanca + Mor tero cementicio + BLOQUE HCCA + Mortero cementicio + Pastina blanca + Porcelanato

M04: MURO INTERIOR - EXTERIOR. e:27 cm Porcelanato + Pastina blanca + Mortero cementicio + BLOQUE HCCA + Arena y portland c/hidrófugo (2,5cm) + Revoque exterior 2 capas con enduido para exterio res y pintado.

M05: MURO INTERIOR - EXTERIOR. e:27 cm Pintura látex + Revoque fino + Revoque grueso (2,5cm) + BLOQUE HCCA + Arena y portland c/hidrófugo (2,5cm) + Revoque ex terior 2 capas con enduido para exteriores y pintado.

M06: MURO INTERIOR - EXTERIOR. e:34 cm Pintura látex + Revoque fino + Revoque grueso (2,5cm) + Muro de contención de H.A + Impermeabilización.

M07: MURO INTERIOR - EXTERIOR. e:34 cm Porcelanato + Pastina blanca + Mortero cementicio + Muro de contención de H.A + Impermeabilización

M08: MURO INTERIOR - INTERIOR. e:20 cm Pintura látex + Revoque fino + Revoque grueso (2,5cm) + BLOQUE HCCA + plancha OSB + Poliuretano de baja densidad + Poliure tano de alta densidad.

M09: MURO INTERIOR - INTERIOR. e:17cm Terminación enduido y pintado + Placa de yeso (12,5cm)+ Lana de vidrio c/montante + Placa de yeso (12,5cm)+ Terminación endui do y pintado.

CARPINTERÍA

C01: Puerta batiente interior en acceso a dormitorios, en madera de Eucaliptus con zócalo de acero inoxidable h:90cm (1.0 x 2.10m).

C02: Puerta batiente interior en acceso a baños y vestuarios, en madera de Eucalip tus (0.80 x 2.10m).

C03: Puerta batiente interior en acceso a salas, en madera de Eucaliptus con visor cuadrado de vidrio fijo. (0.8 x 2.10m). Amure con poliuretano.

C04: Puerta doble batiente interior en sa las en PB, en madera de Eucaliptus con vi sor cuadrado de vidrio fijo. (2.0 x 2.10m) *Con zócalo de aluminio y sin herraje en sala de observación.

C05: Paneles divisorios en SS.HH. Interior de polietileno de alta densidad con recu bride acero inoxidable, acabado electro pintado blanco e: 25,4 mm.

C06: Sistema de puertas plegables con ro damiento. Marco de madera y vidrio opaco. Tipo DN80 PL 4 hojas. Linea Segmenta.

ALUMINIOS

A01: En fachadas N,S,E,O. Paños fijos (1.65 x 3.85 m) / (1.65 x 2.85 m). Serie Summa de Aluminios del Uruguay

A02: Ventana con vidrio fijo en habitacio nes(1.0 x 2.0m)

A03: Puerta doble batiente en pasillos y entrada principal (2.0 x 2.5m)con paño fijo superior. Serie Summa de Aluminios del Uruguay.

A04: Puerta batiente en pasillos (1.0 x 2.5m) con paño fijo superior. Serie Summa de Aluminios del Uruguay.

A05: Puerta corrediza hacia patio exterior (2.0 x 2.1m). Serie Summa de Aluminios del Uruguay.

A06: Puerta doble batiente corta fuego en sala de calderas y cocina (2.0 x 2.1m). De acero de alta resistencia de 1,2mm, Abe lenda Hermanos.

A07: Puerta doble batiente exterior con marco y puerta metálica, terminación an tióxido blanco. Barral antipánico push. (2.0 x 2.1m)

HIERRO

H01: Puerta doble batiente para Subesta ción de UTE. Perfil de hierro sección 2X1 / 8” Terminación esmalte sintético negro. (1.4 x 2.5m)

H02: Portón batiente en malla divisoria de chapa microperforada. Marco con perfiles de hierro. (1.5 x 2.5m)

VIDRIO

V01:Espejo empotrado en pared e:6mm. (0.80 x 1.3m en baños)(2.75 x 1.3m en vestua rios)

GRANITO

G01: MESADAS Silestone pulido blanco

04 |
ZOOM
2.0 3.0 4.0
94
1.0
CUADRO DE TERMINACIONES

1.1 2.1 3.1 4.3

1.1 2.1 3.1 4.3

1.1 2.2 3.1 4.3

95

ESCALA: 1.120

CIERLORRASOS

1.1: Cielorraso USG desmontable 61x61cm. Terminación pintura vinílica lavable blanca.

1.2: Losa de Hormigón visto

PARAMENTOS

2.1: Muro de bloque HCCA. Revoque fino con Pintura Látex color blanca.

2.2: Muro de bloque HCCA + Mortero + Pas tina + Porcelanato color blanco 30x60 cm

2.3: Tabique de yeso enduido y pintado.

2.4: Muro de bloque HCCA con revestimien to acolchado de seguridad. 2.5: Muro cortina.

ZÓCALOS

3.1: Porcelanato color blanco h:7cm 3.2: PVC imitación madera h: 7cm

PAVIMENTOS

4.1: Tablas vinílicas imitación madera.

4.2: Terminación cerámica blanca 40x40 cm e=2cm

4.3: Terminación cerámica blanca 60x60 cm e=2cm

MUROS

M01: MURO INTERIOR - INTERIOR. e:20 cm Pintura látex + Revoque fino + Revoque grueso (2,5cm) + BLOQUE HCCA (Ladrillo Retak)15x25x60 + Revoque grueso (2,5cm) + Revoque fino + Pintura látex

M02: MURO INTERIOR - INTERIOR. e:20 cm Pintura látex + Revoque fino + Revoque grueso (2,5cm) + BLOQUE HCCA (Ladrillo Retak) 15x25x60 + Mortero cementicio + Pastina blanca + Porcelanato 30x60

M03: MURO INTERIOR - INTERIOR. e:20 cm Porcelanato 30x60 + Pastina blanca + Mor tero cementicio + BLOQUE HCCA + Mortero cementicio + Pastina blanca + Porcelanato

M04: MURO INTERIOR - EXTERIOR. e:27 cm Porcelanato + Pastina blanca + Mortero cementicio + BLOQUE HCCA + Arena y portland c/hidrófugo (2,5cm) + Revoque exterior 2 capas con enduido para exterio res y pintado.

M05: MURO INTERIOR - EXTERIOR. e:27 cm Pintura látex + Revoque fino + Revoque grueso (2,5cm) + BLOQUE HCCA + Arena y portland c/hidrófugo (2,5cm) + Revoque ex terior 2 capas con enduido para exteriores y pintado.

M06: MURO INTERIOR - EXTERIOR. e:34 cm Pintura látex + Revoque fino + Revoque grueso (2,5cm) + Muro de contención de H.A + Impermeabilización.

M07: MURO INTERIOR - EXTERIOR. e:34 cm Porcelanato + Pastina blanca + Mortero cementicio + Muro de contención de H.A + Impermeabilización

M08: MURO INTERIOR - INTERIOR. e:20 cm Pintura látex + Revoque fino + Revoque grueso (2,5cm) + BLOQUE HCCA + plancha OSB + Poliuretano de baja densidad + Poliure tano de alta densidad.

M09: MURO INTERIOR - INTERIOR. e:17cm Terminación enduido y pintado + Placa de yeso (12,5cm)+ Lana de vidrio c/montante + Placa de yeso (12,5cm)+ Terminación endui do y pintado.

CARPINTERÍA

C01: Puerta batiente interior en acceso a dormitorios, en madera de Eucaliptus con zócalo de acero inoxidable h:90cm (1.0 x 2.10m).

C02: Puerta batiente interior en acceso a baños y vestuarios, en madera de Eucalip tus (0.80 x 2.10m).

C03: Puerta batiente interior en acceso a salas, en madera de Eucaliptus con visor cuadrado de vidrio fijo. (0.8 x 2.10m). Amure con poliuretano.

C04: Puerta doble batiente interior en sa las en PB, en madera de Eucaliptus con vi sor cuadrado de vidrio fijo. (2.0 x 2.10m) *Con zócalo de aluminio y sin herraje en sala de observación.

C05: Paneles divisorios en SS.HH. Interior de polietileno de alta densidad con recu bride acero inoxidable, acabado electro pintado blanco e: 25,4 mm.

C06: Sistema de puertas plegables con ro damiento. Marco de madera y vidrio opaco. Tipo DN80 PL 4 hojas. Linea Segmenta.

ALUMINIOS

A01: En fachadas N,S,E,O. Paños fijos (1.65 x 3.85 m) / (1.65 x 2.85 m). Serie Summa de Aluminios del Uruguay

A02: Ventana con vidrio fijo en habitacio nes(1.0 x 2.0m)

A03: Puerta doble batiente en pasillos y entrada principal (2.0 x 2.5m)con paño fijo superior. Serie Summa de Aluminios del Uruguay.

A04: Puerta batiente en pasillos (1.0 x 2.5m) con paño fijo superior. Serie Summa de Aluminios del Uruguay.

A05: Puerta corrediza hacia patio exterior (2.0 x 2.1m). Serie Summa de Aluminios del Uruguay.

A06: Puerta doble batiente corta fuego en sala de calderas y cocina (2.0 x 2.1m). De acero de alta resistencia de 1,2mm, Abe lenda Hermanos.

A07: Puerta doble batiente exterior con marco y puerta metálica, terminación an tióxido blanco. Barral antipánico push. (2.0 x 2.1m)

HIERRO

H01: Puerta doble batiente para Subesta ción de UTE. Perfil de hierro sección 2X1 / 8” Terminación esmalte sintético negro. (1.4 x 2.5m)

H02: Portón batiente en malla divisoria de chapa microperforada. Marco con perfiles de hierro. (1.5 x 2.5m)

VIDRIO

V01:Espejo empotrado en pared e:6mm. (0.80 x 1.3m en baños)(2.75 x 1.3m en vestua rios)

GRANITO

G01: MESADAS Silestone pulido blanco

ZOOM 01 | PLANTA
ALTA
2.0 3.0 4.0
96
1.0
CUADRO DE TERMINACIONES
1.2 2.1 3.2 4.1
97
1.1 2.1 3.1 4.3 1.1 2.3 3.1 4.3 1.1 2.2 3.1 4.3 1.1 2.1 3.2 4.1 1.1 2.1 3.1 4.2 1.1 2.1 3.1 4.2 1.2 2.1 3.2 4.1
1.2 2.5 3.2 4.1 1.2 2.5 3.2 4.1

ESCALA: 1.120

CIERLORRASOS

1.1: Cielorraso USG desmontable 61x61cm. Terminación pintura vinílica lavable blanca.

1.2: Losa de Hormigón visto

PARAMENTOS

2.1: Muro de bloque HCCA. Revoque fino con Pintura Látex color blanca.

2.2: Muro de bloque HCCA + Mortero + Pas tina + Porcelanato color blanco 30x60 cm

2.3: Tabique de yeso enduido y pintado.

2.4: Muro de bloque HCCA con revestimien to acolchado de seguridad. 2.5: Muro cortina.

ZÓCALOS

3.1: Porcelanato color blanco h:7cm 3.2: PVC imitación madera h: 7cm

PAVIMENTOS

4.1: Tablas vinílicas imitación madera. 4.2: Terminación cerámica blanca 40x40 cm e=2cm

4.3: Terminación cerámica blanca 60x60 cm e=2cm

MUROS

M01: MURO INTERIOR - INTERIOR. e:20 cm Pintura látex + Revoque fino + Revoque grueso (2,5cm) + BLOQUE HCCA (Ladrillo Retak)15x25x60 + Revoque grueso (2,5cm) + Revoque fino + Pintura látex

M02: MURO INTERIOR - INTERIOR. e:20 cm Pintura látex + Revoque fino + Revoque grueso (2,5cm) + BLOQUE HCCA (Ladrillo Retak) 15x25x60 + Mortero cementicio + Pastina blanca + Porcelanato 30x60

M03: MURO INTERIOR - INTERIOR. e:20 cm Porcelanato 30x60 + Pastina blanca + Mor tero cementicio + BLOQUE HCCA + Mortero cementicio + Pastina blanca + Porcelanato

M04: MURO INTERIOR - EXTERIOR. e:27 cm Porcelanato + Pastina blanca + Mortero cementicio + BLOQUE HCCA + Arena y portland c/hidrófugo (2,5cm) + Revoque exterior 2 capas con enduido para exterio res y pintado.

M05: MURO INTERIOR - EXTERIOR. e:27 cm Pintura látex + Revoque fino + Revoque grueso (2,5cm) + BLOQUE HCCA + Arena y portland c/hidrófugo (2,5cm) + Revoque ex terior 2 capas con enduido para exteriores y pintado.

M06: MURO INTERIOR - EXTERIOR. e:34 cm Pintura látex + Revoque fino + Revoque grueso (2,5cm) + Muro de contención de H.A + Impermeabilización.

M07: MURO INTERIOR - EXTERIOR. e:34 cm Porcelanato + Pastina blanca + Mortero cementicio + Muro de contención de H.A + Impermeabilización

M08: MURO INTERIOR - INTERIOR. e:20 cm Pintura látex + Revoque fino + Revoque grueso (2,5cm) + BLOQUE HCCA + plancha OSB + Poliuretano de baja densidad + Poliure tano de alta densidad.

M09: MURO INTERIOR - INTERIOR. e:17cm Terminación enduido y pintado + Placa de yeso (12,5cm)+ Lana de vidrio c/montante + Placa de yeso (12,5cm)+ Terminación endui do y pintado.

CARPINTERÍA

C01: Puerta batiente interior en acceso a dormitorios, en madera de Eucaliptus con zócalo de acero inoxidable h:90cm (1.0 x 2.10m).

C02: Puerta batiente interior en acceso a baños y vestuarios, en madera de Eucalip tus (0.80 x 2.10m).

C03: Puerta batiente interior en acceso a salas, en madera de Eucaliptus con visor cuadrado de vidrio fijo. (0.8 x 2.10m). Amure con poliuretano.

C04: Puerta doble batiente interior en sa las en PB, en madera de Eucaliptus con vi sor cuadrado de vidrio fijo. (2.0 x 2.10m) *Con zócalo de aluminio y sin herraje en sala de observación.

C05: Paneles divisorios en SS.HH. Interior de polietileno de alta densidad con recu bride acero inoxidable, acabado electro pintado blanco e: 25,4 mm.

C06: Sistema de puertas plegables con ro damiento. Marco de madera y vidrio opaco. Tipo DN80 PL 4 hojas. Linea Segmenta.

ALUMINIOS

A01: En fachadas N,S,E,O. Paños fijos (1.65 x 3.85 m) / (1.65 x 2.85 m). Serie Summa de Aluminios del Uruguay

A02: Ventana con vidrio fijo en habitacio nes(1.0 x 2.0m)

A03: Puerta doble batiente en pasillos y entrada principal (2.0 x 2.5m)con paño fijo superior. Serie Summa de Aluminios del Uruguay.

A04: Puerta batiente en pasillos (1.0 x 2.5m) con paño fijo superior. Serie Summa de Aluminios del Uruguay.

A05: Puerta corrediza hacia patio exterior (2.0 x 2.1m). Serie Summa de Aluminios del Uruguay.

A06: Puerta doble batiente corta fuego en sala de calderas y cocina (2.0 x 2.1m). De acero de alta resistencia de 1,2mm, Abe lenda Hermanos.

A07: Puerta doble batiente exterior con marco y puerta metálica, terminación an tióxido blanco. Barral antipánico push. (2.0 x 2.1m)

HIERRO

H01: Puerta doble batiente para Subesta ción de UTE. Perfil de hierro sección 2X1 / 8” Terminación esmalte sintético negro. (1.4 x 2.5m)

H02: Portón batiente en malla divisoria de chapa microperforada. Marco con perfiles de hierro. (1.5 x 2.5m)

VIDRIO

V01:Espejo empotrado en pared e:6mm. (0.80 x 1.3m en baños)(2.75 x 1.3m en vestua rios)

GRANITO

G01: MESADAS Silestone pulido blanco

ZOOM 02 |
PLANTA ALTA
2.0 3.0 4.0
98
1.0
CUADRO DE TERMINACIONES

1.1 2.1 3.2 4.1 1.1 2.1 3.2 4.1

1.1 2.1 3.2 4.1

1.1 2.1 3.2 4.1

1.2 2.5 3.2 4.1 1.2 2.5 3.2 4.1

1.1 2.1 3.1 4.2

1.1 2.1 3.1 4.2 1.1 2.1 3.1 4.2

99

ESCALA: 1.120

CIERLORRASOS

1.1: Cielorraso USG desmontable 61x61cm. Terminación pintura vinílica lavable blanca.

1.2: Losa de Hormigón visto

PARAMENTOS

2.1: Muro de bloque HCCA. Revoque fino con Pintura Látex color blanca.

2.2: Muro de bloque HCCA + Mortero + Pas tina + Porcelanato color blanco 30x60 cm

2.3: Tabique de yeso enduido y pintado.

2.4: Muro de bloque HCCA con revestimien to acolchado de seguridad. 2.5: Muro cortina.

ZÓCALOS

3.1: Porcelanato color blanco h:7cm 3.2: PVC imitación madera h: 7cm

PAVIMENTOS

4.1: Tablas vinílicas imitación madera. 4.2: Terminación cerámica blanca 40x40 cm e=2cm

4.3: Terminación cerámica blanca 60x60 cm e=2cm

MUROS

M01: MURO INTERIOR - INTERIOR. e:20 cm Pintura látex + Revoque fino + Revoque grueso (2,5cm) + BLOQUE HCCA (Ladrillo Retak)15x25x60 + Revoque grueso (2,5cm) + Revoque fino + Pintura látex

M02: MURO INTERIOR - INTERIOR. e:20 cm Pintura látex + Revoque fino + Revoque grueso (2,5cm) + BLOQUE HCCA (Ladrillo Retak) 15x25x60 + Mortero cementicio + Pastina blanca + Porcelanato 30x60

M03: MURO INTERIOR - INTERIOR. e:20 cm Porcelanato 30x60 + Pastina blanca + Mor tero cementicio + BLOQUE HCCA + Mortero cementicio + Pastina blanca + Porcelanato

M04: MURO INTERIOR - EXTERIOR. e:27 cm Porcelanato + Pastina blanca + Mortero cementicio + BLOQUE HCCA + Arena y portland c/hidrófugo (2,5cm) + Revoque exterior 2 capas con enduido para exterio res y pintado.

M05: MURO INTERIOR - EXTERIOR. e:27 cm Pintura látex + Revoque fino + Revoque grueso (2,5cm) + BLOQUE HCCA + Arena y portland c/hidrófugo (2,5cm) + Revoque ex terior 2 capas con enduido para exteriores y pintado.

M06: MURO INTERIOR - EXTERIOR. e:34 cm Pintura látex + Revoque fino + Revoque grueso (2,5cm) + Muro de contención de H.A + Impermeabilización.

M07: MURO INTERIOR - EXTERIOR. e:34 cm Porcelanato + Pastina blanca + Mortero cementicio + Muro de contención de H.A + Impermeabilización

M08: MURO INTERIOR - INTERIOR. e:20 cm Pintura látex + Revoque fino + Revoque grueso (2,5cm) + BLOQUE HCCA + plancha OSB + Poliuretano de baja densidad + Poliure tano de alta densidad.

M09: MURO INTERIOR - INTERIOR. e:17cm Terminación enduido y pintado + Placa de yeso (12,5cm)+ Lana de vidrio c/montante + Placa de yeso (12,5cm)+ Terminación endui do y pintado.

CARPINTERÍA

C01: Puerta batiente interior en acceso a dormitorios, en madera de Eucaliptus con zócalo de acero inoxidable h:90cm (1.0 x 2.10m).

C02: Puerta batiente interior en acceso a baños y vestuarios, en madera de Eucalip tus (0.80 x 2.10m).

C03: Puerta batiente interior en acceso a salas, en madera de Eucaliptus con visor cuadrado de vidrio fijo. (0.8 x 2.10m). Amure con poliuretano.

C04: Puerta doble batiente interior en sa las en PB, en madera de Eucaliptus con vi sor cuadrado de vidrio fijo. (2.0 x 2.10m) *Con zócalo de aluminio y sin herraje en sala de observación.

C05: Paneles divisorios en SS.HH. Interior de polietileno de alta densidad con recu bride acero inoxidable, acabado electro pintado blanco e: 25,4 mm.

C06: Sistema de puertas plegables con ro damiento. Marco de madera y vidrio opaco. Tipo DN80 PL 4 hojas. Linea Segmenta.

ALUMINIOS

A01: En fachadas N,S,E,O. Paños fijos (1.65 x 3.85 m) / (1.65 x 2.85 m). Serie Summa de Aluminios del Uruguay

A02: Ventana con vidrio fijo en habitacio nes(1.0 x 2.0m)

A03: Puerta doble batiente en pasillos y entrada principal (2.0 x 2.5m)con paño fijo superior. Serie Summa de Aluminios del Uruguay.

A04: Puerta batiente en pasillos (1.0 x 2.5m) con paño fijo superior. Serie Summa de Aluminios del Uruguay.

A05: Puerta corrediza hacia patio exterior (2.0 x 2.1m). Serie Summa de Aluminios del Uruguay.

A06: Puerta doble batiente corta fuego en sala de calderas y cocina (2.0 x 2.1m). De acero de alta resistencia de 1,2mm, Abe lenda Hermanos.

A07: Puerta doble batiente exterior con marco y puerta metálica, terminación an tióxido blanco. Barral antipánico push. (2.0 x 2.1m)

HIERRO

H01: Puerta doble batiente para Subesta ción de UTE. Perfil de hierro sección 2X1 / 8” Terminación esmalte sintético negro. (1.4 x 2.5m)

H02: Portón batiente en malla divisoria de chapa microperforada. Marco con perfiles de hierro. (1.5 x 2.5m)

VIDRIO

V01:Espejo empotrado en pared e:6mm. (0.80 x 1.3m en baños)(2.75 x 1.3m en vestua rios)

GRANITO

G01: MESADAS Silestone pulido blanco

ZOOM 03 |
PLANTA ALTA
1.0 2.0 3.0 4.0
100
CUADRO DE TERMINACIONES
4.1
101
1.2 2.1 3.2 4.1 1.2 2.1 3.2 4.1 1.2 2.1 3.2
1.2 2.5 3.2 4.1 1.2 2.5 3.2 4.1 1.1 2.1 3.1 4.2 1.1 2.1 3.1 4.2 1.1 2.1 3.1 4.2 1.1 2.1 3.1 4.2 1.1 2.1 3.1 4.2

ESCALA: 1.120

CIERLORRASOS

1.1: Cielorraso USG desmontable 61x61cm. Terminación pintura vinílica lavable blanca.

1.2: Losa de Hormigón visto

PARAMENTOS

2.1: Muro de bloque HCCA. Revoque fino con Pintura Látex color blanca.

2.2: Muro de bloque HCCA + Mortero + Pas tina + Porcelanato color blanco 30x60 cm

2.3: Tabique de yeso enduido y pintado.

2.4: Muro de bloque HCCA con revestimien to acolchado de seguridad. 2.5: Muro cortina.

ZÓCALOS

3.1: Porcelanato color blanco h:7cm 3.2: PVC imitación madera h: 7cm

PAVIMENTOS

4.1: Tablas vinílicas imitación madera. 4.2: Terminación cerámica blanca 40x40 cm e=2cm

4.3: Terminación cerámica blanca 60x60 cm e=2cm

MUROS

M01: MURO INTERIOR - INTERIOR. e:20 cm Pintura látex + Revoque fino + Revoque grueso (2,5cm) + BLOQUE HCCA (Ladrillo Retak)15x25x60 + Revoque grueso (2,5cm) + Revoque fino + Pintura látex

M02: MURO INTERIOR - INTERIOR. e:20 cm Pintura látex + Revoque fino + Revoque grueso (2,5cm) + BLOQUE HCCA (Ladrillo Retak) 15x25x60 + Mortero cementicio + Pastina blanca + Porcelanato 30x60

M03: MURO INTERIOR - INTERIOR. e:20 cm Porcelanato 30x60 + Pastina blanca + Mor tero cementicio + BLOQUE HCCA + Mortero cementicio + Pastina blanca + Porcelanato

M04: MURO INTERIOR - EXTERIOR. e:27 cm Porcelanato + Pastina blanca + Mortero cementicio + BLOQUE HCCA + Arena y portland c/hidrófugo (2,5cm) + Revoque exterior 2 capas con enduido para exterio res y pintado.

M05: MURO INTERIOR - EXTERIOR. e:27 cm Pintura látex + Revoque fino + Revoque grueso (2,5cm) + BLOQUE HCCA + Arena y portland c/hidrófugo (2,5cm) + Revoque ex terior 2 capas con enduido para exteriores y pintado.

M06: MURO INTERIOR - EXTERIOR. e:34 cm Pintura látex + Revoque fino + Revoque grueso (2,5cm) + Muro de contención de H.A + Impermeabilización.

M07: MURO INTERIOR - EXTERIOR. e:34 cm Porcelanato + Pastina blanca + Mortero cementicio + Muro de contención de H.A + Impermeabilización

M08: MURO INTERIOR - INTERIOR. e:20 cm Pintura látex + Revoque fino + Revoque grueso (2,5cm) + BLOQUE HCCA + plancha OSB + Poliuretano de baja densidad + Poliure tano de alta densidad.

M09: MURO INTERIOR - INTERIOR. e:17cm Terminación enduido y pintado + Placa de yeso (12,5cm)+ Lana de vidrio c/montante + Placa de yeso (12,5cm)+ Terminación endui do y pintado.

CARPINTERÍA

C01: Puerta batiente interior en acceso a dormitorios, en madera de Eucaliptus con zócalo de acero inoxidable h:90cm (1.0 x 2.10m).

C02: Puerta batiente interior en acceso a baños y vestuarios, en madera de Eucalip tus (0.80 x 2.10m).

C03: Puerta batiente interior en acceso a salas, en madera de Eucaliptus con visor cuadrado de vidrio fijo. (0.8 x 2.10m). Amure con poliuretano.

C04: Puerta doble batiente interior en sa las en PB, en madera de Eucaliptus con vi sor cuadrado de vidrio fijo. (2.0 x 2.10m) *Con zócalo de aluminio y sin herraje en sala de observación.

C05: Paneles divisorios en SS.HH. Interior de polietileno de alta densidad con recu bride acero inoxidable, acabado electro pintado blanco e: 25,4 mm.

C06: Sistema de puertas plegables con ro damiento. Marco de madera y vidrio opaco. Tipo DN80 PL 4 hojas. Linea Segmenta.

ALUMINIOS

A01: En fachadas N,S,E,O. Paños fijos (1.65 x 3.85 m) / (1.65 x 2.85 m). Serie Summa de Aluminios del Uruguay

A02: Ventana con vidrio fijo en habitacio nes(1.0 x 2.0m)

A03: Puerta doble batiente en pasillos y entrada principal (2.0 x 2.5m)con paño fijo superior. Serie Summa de Aluminios del Uruguay.

A04: Puerta batiente en pasillos (1.0 x 2.5m) con paño fijo superior. Serie Summa de Aluminios del Uruguay.

A05: Puerta corrediza hacia patio exterior (2.0 x 2.1m). Serie Summa de Aluminios del Uruguay.

A06: Puerta doble batiente corta fuego en sala de calderas y cocina (2.0 x 2.1m). De acero de alta resistencia de 1,2mm, Abe lenda Hermanos.

A07: Puerta doble batiente exterior con marco y puerta metálica, terminación an tióxido blanco. Barral antipánico push. (2.0 x 2.1m)

HIERRO

H01: Puerta doble batiente para Subesta ción de UTE. Perfil de hierro sección 2X1 / 8” Terminación esmalte sintético negro. (1.4 x 2.5m)

H02: Portón batiente en malla divisoria de chapa microperforada. Marco con perfiles de hierro. (1.5 x 2.5m)

VIDRIO

V01:Espejo empotrado en pared e:6mm. (0.80 x 1.3m en baños)(2.75 x 1.3m en vestua rios)

GRANITO

G01: MESADAS Silestone pulido blanco

ZOOM 04 |
PLANTA ALTA
2.0 3.0 4.0
102
1.0
CUADRO DE TERMINACIONES
1.1 2.1 3.2 4.1 1.1 2.1 3.2 4.1
3.2 4.1 103
1.2 2.5 3.2 4.1 1.2 2.5 3.2 4.1 1.1 2.1 3.1 4.2 1.1 2.1 3.1 4.2 1.1 2.1 3.1 4.2 1.1 2.1 3.2 4.1 1.1 2.1 3.2 4.1
1.2 2.5

CORTES INTEGRALES POR SECTOR Esc:1.30 Y DETALLES CONSTRUCTIVOS Esc:1.15

CORTE CC | CORTE EE

107
1 2 3 4 5 6 7 8 9 10 11 12 13 14 15 16 17 18 19
23 29 15 30 33 34 4 3 35 12 36 38 41 CORTE EE
108
20 22 21 23 29 30 3 31 32
Escala: 1.30 -2.90 +0.20

01 | Terminación ceramica 40x40 cm e=2cm 02 | Adhesivo cementicio impermeable e=3mm 03 | Mortero de nivelación arena y portland (3x1) e=2cm 04 | Contrapiso de hormigón e= 5cm con malla electrosoldada 15x15 05 | Film de polietileno 200 micrones 06 | Base de balasto natural e=3cm 07 | Relleno inorgánico compactado e=20cm 08 | Terreno: debe retirarse el suelo orgánico y reemplazarse con relleno inorgánico 09 | Viga de hormigón (hecha in situ) 10 | Lecho de asiento de hormigón 11 | Colector de drenaje de PVC 12 | Geotextil 13 | Impermeabilización con lamina asfáltica 14 | Muro de contención de hormigón armado 15 | Armadura 16 | Relleno de grava (diámetro menor arriba y mayor abajo) 17 | Mortero cementicio 18 | Revestimiento discontinuo e=2cm 19 | Pastina blanca 20 | Perfil T de armado mediante sistema de clip entre piezas. Se sujeta a la losa de H.A. Mediante un gancho de alambre ∅ 12 fijado a losa de H.A. Con anclaje universal con cáncamo abierto c/taco fisher 8 mm c/tope. 21 | Cielorraso USG desmontable. Placa de medida estándar 61x61cm de fibras minerales compactas. Terminación pintura vinílica lavable blanca. Estructura de perfilería metálica prepintada suspendida de la losa. 22 | Perfil perimetral L de aluminio atornillado a mampostería con tornillo de 8mmx22mm c/taco fisher de 8mm c/tope. 23 | Viga de hormigón prefabricada 24 | Bloque de hormigón celular - Retak 15x25x60 25 | Mortero de toma/ puede ser dun dun 26 |- Revoque grueso 4/5 Arena gruesa + 1/5 Cemento Portland (2,5 cm) 27 | Revoque fino (1 de cal + 5 de arena fina) 28 | Terminación pintura látex 29 | Losa prefabricada 30 | Armaduras hierro f 31

Manto de poliestireno bajo piso flotante, e:2mm 32

Piso flotante de madera encastrable 33

Relleno hormigón 34 | Barrera de vapor de polietileno 35 | Aislación térmica poliestireno expandido e=5cm 36

Membrana asfáltica aluminizada 37

Capa de drenaje (geodren) 38

Lámina filtrante 39

Capa de tierra 40

Vegetación 41 | Mecha de geotextil 1 cada 1m2 42

Canalón - Caño PVC 110 43

Grava de canto rodado

24 25 18
18 19 19
42 43 12
9 9
17
17 19 18 17 26 27 28 23 20 21 22 23 23
23
109
|
|
|
|
|
|
|
|
|
|
1 2 3 4 5 6 7 8 9 9 24 25 26 27 28 28 27 26 23 22 21 20 23 29 30 3 31 32 22 21 20 24 25 26 27 28 24 25 26 27 28 42 43 12 CORTE EE Escala: 1.30 D01 -2.90 +0.20 110

01 | Terminación ceramica 40x40 cm e=2cm 02 | Adhesivo cementicio impermeable e=3mm 03 | Mortero de nivelación arena y portland (3x1) e=2cm 04 | Contrapiso de hormigón e= 5cm con malla electrosoldada 15x15 05 | Film de polietileno 200 micrones 06 | Base de balasto natural e=3cm 07 | Relleno inorgánico compactado e=20cm 08 | Terreno: debe retirarse el suelo orgánico y reemplazarse con relleno inorgánico 09 | Viga de hormigón (hecha in situ) 10 | Lecho de asiento de hormigón 11 | Colector de drenaje de PVC 12 | Geotextil 13 | Impermeabilización con lamina asfáltica 14 | Muro de contención de hormigón armado 15 | Armadura 16 | Relleno de grava (diámetro menor arriba y mayor abajo) 17 | Mortero cementicio 18 | Revestimiento discontinuo e=2cm 19 | Pastina blanca 20 | Perfil T de armado mediante sistema de clip entre piezas. Se sujeta a la losa de H.A. Mediante un gancho de alambre ∅ 12 fijado a losa de H.A. Con anclaje universal con cáncamo abierto c/taco fisher 8 mm c/tope.

21 | Cielorraso USG desmontable. Placa de medida estándar 61x61cm de fibras minerales compac tas.

Terminación pintura vinílica lavable blanca. Estructura de perfilería metálica prepintada suspendida de la losa.

22 | Perfil perimetral L de aluminio atornillado a mampostería con tornillo de 8mmx22mm c/taco fisher de 8mm c/tope. 23 | Viga de hormigón prefabricada 24 | Bloque de hormigón celular - Retak 15x25x60 25 | Mortero de toma/ puede ser dun dun 26 | Revoque grueso 4/5 Arena gruesa + 1/5 Cemento Portland (2,5 cm) 27 | Revoque fino (1 de cal + 5 de arena fina) 28 | Terminación pintura látex 29 | Losa prefabricada 30 | Armaduras hierro f 31 | Manto de poliestireno bajo piso flotante, e:2mm 32 | Piso flotante de madera encastrable 33 | Relleno hormigón 34 | Barrera de vapor de polietileno 35 | Aislación térmica poliestireno expandido e=5cm 36 | Membrana asfáltica aluminizada 37 | Capa de drenaje (geodren) 38

Lámina filtrante 39

Capa de tierra 40

Vegetación 41 | Mecha de geotextil 1 cada 1m2 42 | Canalón - Caño PVC 110 43 | Grava de canto rodado

9 10 11 12 13 14 15 16
41 38 16 12 35 3 34 33 30 16 23 29 4
24 25 26 27 28 26 27 28
23 20 29 30 3 31 32
111
|
|
|
9 10 11 12 13 14 15 16 1 2 3 4 5 6 7 8 17 18 19 20 21 22 23 29 30 3 31 32 32 31 24 25 26 27 28 20 21 3 CORTE CC
1.30 D02 -2.90 +0.20 112
Escala:

01 | Terminación ceramica 40x40 cm e=2cm 02 | Adhesivo cementicio impermeable e=3mm 03 | Mortero de nivelación arena y portland (3x1) e=2cm 04 | Contrapiso de hormigón e= 5cm con malla electrosoldada 15x15 05 | Film de polietileno 200 micrones 06 | Base de balasto natural e=3cm 07 | Relleno inorgánico compactado e=20cm 08 | Terreno: debe retirarse el suelo orgánico y reemplazarse con relleno inorgánico 09 | Viga de hormigón (hecha in situ) 10 | Lecho de asiento de hormigón 11 | Colector de drenaje de PVC 12 | Geotextil 13 | Impermeabilización con lamina asfáltica 14 | Muro de contención de hormigón armado 15 | Armadura 16 | Relleno de grava (diámetro menor arriba y mayor abajo) 17 | Mortero cementicio 18 | Revestimiento discontinuo e=2cm 19 | Pastina blanca 20 | Perfil T de armado mediante sistema de clip entre piezas. Se sujeta a la losa de H.A. Mediante un gancho de alambre ∅ 12 fijado a losa de H.A. Con anclaje universal con cáncamo abierto c/taco fisher 8 mm c/tope.

21 | Cielorraso USG desmontable. Placa de medida estándar 61x61cm de fibras minerales compac tas.

Terminación pintura vinílica lavable blanca. Estructura de perfilería metálica prepintada suspendida de la losa.

22 | Perfil perimetral L de aluminio atornillado a mampostería con tornillo de 8mmx22mm c/taco fisher de 8mm c/tope. 23 | Viga de hormigón prefabricada 24 | Bloque de hormigón celular - Retak 15x25x60 25 | Mortero de toma/ puede ser dun dun 26 | Revoque grueso 4/5 Arena gruesa + 1/5 Cemento Portland (2,5 cm) 27

Revoque fino (1 de cal + 5 de arena fina) 28

Terminación pintura látex 29

Losa prefabricada 30

Armaduras hierro f 31

Manto de poliestireno bajo piso flotante, e:2mm 32

Piso flotante de madera encastrable 33

Relleno hormigón 34

Barrera de vapor de polietileno

Aislación térmica poliestireno expandido e=5cm

Membrana asfáltica aluminizada

Capa de drenaje (geodren)

Lámina filtrante

Capa de tierra 40

Vegetación 41

Mecha de geotextil 1 cada 1m2 42

Canalón - Caño PVC 110 43

Grava de canto rodado

1 2 3 4 5 6 7 8
29 16 30 33 34 4 3 35 12 36 41
44 20 21 24 25 26 27 28 23 24 25 26 27 28
113
|
|
|
|
|
|
|
|
35 |
36 |
37 |
38 |
39 |
|
|
|
|
1 2 3 4 5 6 7 8 24 25 26 27 28 24 25 26 27 28 18 17 20 21 23 21 20 29 30 2 1 24 25 26 27 28 18 17 20 21 24 25 26 27 28 31 32 24 25 26 27 28 18 17 20 21 17 18 1 2 24 25 26 27 28 23 29 16 30 33 34 4 3 35 12 36 38 41 CORTE CC Escala: 1.30 -2.90 +0.20 114

01 | Terminación ceramica 40x40 cm e=2cm 02 | Adhesivo cementicio impermeable e=3mm 03 | Mortero de nivelación arena y portland (3x1) e=2cm 04 | Contrapiso de hormigón e= 5cm con malla electrosoldada 15x15 05 | Film de polietileno 200 micrones 06 | Base de balasto natural e=3cm 07 | Relleno inorgánico compactado e=20cm 08 | Terreno: debe retirarse el suelo orgánico y reemplazarse con relleno inorgánico 09 | Viga de hormigón (hecha in situ) 10 | Lecho de asiento de hormigón 11 | Colector de drenaje de PVC 12 | Geotextil 13 | Impermeabilización con lamina asfáltica 14 | Muro de contención de hormigón armado 15 | Armadura 16 | Relleno de grava (diámetro menor arriba y mayor abajo) 17 | Mortero cementicio 18 | Revestimiento discontinuo e=2cm 19 | Pastina blanca

20 | Perfil T de armado mediante sistema de clip entre piezas. Se sujeta a la losa de H.A. Mediante un gancho de alambre ∅ 12 fijado a losa de H.A. Con anclaje universal con cáncamo abierto c/taco fisher 8 mm c/tope.

21 | Cielorraso USG desmontable. Placa de medida estándar 61x61cm de fibras minerales compac tas.

Terminación pintura vinílica lavable blanca. Estructura de perfilería metálica prepintada suspendida de la losa. 22 | Perfil perimetral L de aluminio atornillado a mampostería con tornillo de 8mmx22mm c/taco fisher de 8mm c/tope. 23 | Viga de hormigón prefabricada 24 | Bloque de hormigón celular - Retak 15x25x60 25 | Mortero de toma/ puede ser dun dun 26 | Revoque grueso 4/5 Arena gruesa + 1/5 Cemento Portland (2,5 cm)

Revoque fino (1 de cal + 5 de arena fina) 28

Terminación pintura látex 29

Losa prefabricada 30

Armaduras hierro f 31

Manto de poliestireno bajo piso flotante, e:2mm

Piso flotante de madera encastrable

Relleno hormigón

Barrera de vapor de polietileno

Aislación térmica poliestireno expandido e=5cm

Membrana asfáltica aluminizada

Capa de drenaje (geodren)

Lámina filtrante

Capa de tierra

Vegetación 41

Mecha de geotextil 1 cada 1m2 42

Canalón - Caño PVC 110

Grava de canto rodado

1 2 3 4 5 6 7 8
20 21
24 25 26 27 28 31 32 24 25 26 27 28 1 2 17 18 24 25 17 18 17 18 20 21 24 25 17 18
29 16 30 33 34 4 3 35 12 36 38 115
27 |
|
|
|
|
32 |
33 |
34 |
35 |
36 |
37 |
38 |
39 |
40 |
|
|
43 |

01 | Terminación ceramica 40x40 cm e=2cm 02 | Adhesivo cementicio impermeable e=3mm 03 | Mortero de nivelación arena y portland (3x1) e=2cm 04 | Contrapiso de hormigón e= 5cm con malla electrosoldada 15x15

05 | Film de polietileno 200 micrones 06 | Base de balasto natural e=3cm 07 | Relleno inorgánico compactado e=20cm 08 | Terreno: debe retirarse el suelo orgánico y reemplazarse con relleno inorgánico 09 | Viga de hormigón (hecha in situ) 10 | Lecho de asiento de hormigón 11 | Colector de drenaje de PVC 12 | Geotextil 13 | Impermeabilización con lamina asfáltica 14 | Muro de contención de hormigón armado 15 | Armadura

16 | Relleno de grava (diámetro menor arriba y mayor abajo) 17 | Mortero cementicio 18 | Revestimiento discontinuo e=2cm 19 | Pastina blanca

20 | Perfil T de armado mediante sistema de clip entre piezas. Se sujeta a la losa de H.A. Mediante un gancho de alambre ∅ 12 fijado a losa de H.A. Con anclaje universal con cáncamo abierto c/taco fisher 8 mm c/tope.

21 | Cielorraso USG desmontable. Placa de medida estándar 61x61cm de fibras minerales compac tas.

Terminación pintura vinílica lavable blanca. Estructura de perfilería metálica prepintada suspendida de la losa.

22 | Perfil perimetral L de aluminio atornillado a mampostería con tornillo de 8mmx22mm c/taco fisher de 8mm c/tope. 23 | Viga de hormigón prefabricada 24 | Bloque de hormigón celular - Retak 15x25x60 25 | Mortero de toma/ puede ser dun dun 26 | Revoque grueso 4/5 Arena gruesa + 1/5 Cemento Portland (2,5 cm) 27 | Revoque fino (1 de cal + 5 de arena fina) 28 | Terminación pintura látex 29 | Losa prefabricada 30 | Armaduras hierro f 31 | Manto de poliestireno bajo piso flotante, e:2mm 32 | Piso flotante de madera encastrable 33 | Relleno hormigón 34 | Barrera de vapor de polietileno 35 | Aislación térmica poliestireno expandido e=5cm 36 | Membrana asfáltica aluminizada 37 | Capa de drenaje (geodren) 38 | Lámina filtrante 39 | Capa de tierra 40 | Vegetación 41 | Mecha de geotextil 1 cada 1m2 42 | Canalón - Caño PVC 110 43 | Grava de canto rodado

+0.20

1 2 3 4 5 6 7 8 24 25 26 27 28 23 20 21 32 31 30 29
CORTE CC
Escala: 1.30 -2.90 116
1 2 3 4 5 6 7 8 10 11 12 13 14 15 16 17 18 19 32
29 25 24 26 27 28 27 26 21 20 29 16 30 33 34 4 3 35 36 41 117
31 30

Escala: 1.15

01

Losa de hormigón prefabricada 02

Armadura 03

Relleno hormigón in situ 04

Barrera de vapor: film de polietileno 05

Aislación térmica poliestireno expandido e=5cm 06

Relleno Hormigón pobre 07

Mortero de nivelación arena y portland (3x1 e=2cm 08

Membrana asfáltica aluminizada

Capa de tierra empobrecida

Grava canto rodado

Colector de drenaje de PVC

Mecha de geotextil, 1 cada 1m2

Viga hormigón prefabricado

Pilar hormigón prefabricado

|
|
|
|
|
|
|
|
|
|
|
|
|
|
|
|
|
09
Geotextil 10
Geodren 11
12
13
14
15
16
17
Gárgola DETALLE 01
118

DETALLE 02

Escala: 1.15

01 | Losa de hormigón prefabricada 02 | Armadura 03 | Relleno hormigón in situ 04 | Mortero de nivelación arena y portland (3x1) e=2cm 05 | Manta de polietileno 06 | Piso flotante de madera 07 | Perfil T de armado mediante sistema de clip entre pie zas. Se sujeta a la losa de H.A. Mediante un gancho de alam bre fi 12 08 | Cielorraso USG desmontable. 09 | Pintura látex

10 | Revoque fino (1 de cal + 5 de arena fina) 11 | Revoque grueso 4/5 Arena gruesa + 1/5 Cemento Portland (2,5 cm) 12 | Muro de contención 13 | Viga de hormigón prefabricado 14 | Abertura summa 15 | Cerramiento metálico 16 | Revoque grueso con hidrófugo 17 | Relleno de grava (diámetro menor arriba y mayor abajo)

119

ZONAS DE ESTAR

Zonas de esparcimiento libre, ambientes acoge dores que generen un ambiente no hospitalario.

121

PLANILLAS

Y DETALLES

CERRAMIENTOS

Para los cerramientos interiores del edificio de optó por utilizar ladrillos de hormigón ce lular (marca Retak) curado en autoclave.

Esto es debido a la imposibilidad de usar placas de yeso como divisores de ambientes por las ne cesidades del programa. Se tiene en cuenta que los pacientes en un estado de descomposición pueden dañar las mismas.

De esta manera se combina la seguridad del usua rio y la rapidez y limpieza de ejecución de la obra.

124

MURO INTERIOR - INTERIOR Escala: 1.10

BLOQUE HCCA (Ladrillo Retak)15x25x60

REVOQUE GRUESO

4/5 Arena gruesa + 1/5 Cemento Portland (2,5cm)

REVOQUE FINO Revoque fino (1 de cal + 5 de arena fina)

TERMINACIÓN Pintura látex

REVOQUE GRUESO

4/5 Arena gruesa + 1/5 Cemento Portland (2,5cm)

REVOQUE FINO Revoque fino (1 de cal + 5 de arena fina)

TERMINACIÓN Pintura látex

MURO INTERIOR - INTERIOR Escala: 1.10

BLOQUE HCCA (Ladrillo Retak)15x25x60

REVOQUE GRUESO

4/5 Arena gruesa + 1/5 Cemento Portland (2,5cm)

REVOQUE FINO Revoque fino (1 de cal + 5 de arena fina)

TERMINACIÓN Pintura látex

Mortero cementicio

MURO INTERIOR - INTERIOR Escala: 1.10

Mortero cementicio

Mortero cementicio

MURO INTERIOR - EXTERIOR Escala: 1.10

MURO INTERIOR - EXTERIOR Escala: 1.10

Mortero cementicio

Arena y Portland c/ hidrófugo (2.5cm)

BLOQUE HCCA (Ladrillo Retak)15x25x60

REVOQUE GRUESO 4/5 Arena gruesa + 1/5 Cemento Portland (2,5cm)

Pastina blanca

Revestimiento discontinuo (Porcelanato)

Pastina blanca

Revestimiento discontinuo (Porcelanato)

Pastina blanca

Revestimiento discontinuo (Porcelanato)

Arena y Portland c/ hidrófugo (2.5cm)

MURO INTERIOR - EXTERIOR Escala: 1.10

REVOQUE GRUESO 4/5 Arena gruesa + 1/5 Cemento Portland(2,5cm)

Pastina blanca

Revestimiento discontinuo (Porcelanato)

REVOQUE EXTERIOR 2 capas con enduido para exteriores + pintado

REVOQUE FINO Revoque fino (1 de cal + 5 de arena fina)

TERMINACIÓN Pintura látex

REVOQUE EXTERIOR 2 capas con enduido para exteriores + Pintado

REVOQUE FINO Revoque fino (1 de cal + 5 de arena fina)

TERMINACIÓN Pintura látex

MURO DE CONTENCIÓN DE H.A

IMPERMEABI LIZACIÓN

MURO INTERIOR - EXTERIOR Escala: 1.10

Mortero cementicio Pastina blanca

Revestimiento discontinuo (Porcelanato)

MURO DE CONTENCIÓN DE H.A

IMPERMEABI LIZACIÓN

MURO INTERIOR - INTERIOR Escala: 1.10

BLOQUE HCCA (Ladrillo Retak)15x25x60

REVOQUE GRUESO 4/5 Arena gruesa + 1/5 Cemento Portland (2,5cm)

REVOQUE FINO Revoque fino (1 de cal + 5 de arena fina)

TERMINACIÓN Pintura látex

PLANCHA OSB

POLIURETANO de baja densidad

POLIURETANO de alta densidad

MURO INTERIOR - INTERIOR Escala: 1.10

PLACA DE YESO esp: 12,5mm

LANA DE VIDRIO 90mm

PLACA DE YESO esp: 12,5mm

TERMINACIÓN Enduido y pintado

Fijación de placa a montante Tornillo T2 MONTANTE PGC Galvanizado

125

ESPECIE: Puerta interior

UBICACIÓN: Acceso de habitaciones CANTIDAD: 30

ANCLAJE: Poliuretano proyectado MODO DE ABRIR: Batiente MARCO: Eucaliptus colorado. Cajón HOJA: Tablero de MDF, blanco CONTRAMARCO: MDF hidrofugado

HERRAJES: Pestillo con cerradura de seguridad

*Zócalo de acero inoxidable h:90cm

ESPECIE: Puerta interior

UBICACIÓN: Baños y vestuarios CANTIDAD: 45

ANCLAJE: Poliuretano proyectado MODO DE ABRIR: Batiente MARCO: Eucaliptus colorado. Cajón HOJA: Tablero de MDF, blanco CONTRAMARCO: MDF hidrofugado HERRAJES: Pestillo con cerradura de seguridad

ESPECIE: Puerta interior UBICACIÓN: Salas CANTIDAD: 20 ANCLAJE: Poliuretano proyectado MODO DE ABRIR: Batiente MARCO: Eucaliptus colorado. Cajón HOJA: Tablero de MDF, blanco CONTRAMARCO: MDF hidrofugado HERRAJES: Pestillo con cerradura de seguridad

ESPECIE: Puerta interior

UBICACIÓN: Salas y pasillos CANTIDAD: 7

ANCLAJE: Poliuretano proyectado MODO DE ABRIR: Batiente MARCO: Eucaliptus colorado. Cajón HOJA: Tablero de MDF, blanco CONTRAMARCO: MDF hidrofugado HERRAJES: Pestillo con cerradura de seguridad *Con zócalo de aluminio y sin herra je en sala de observación

ESPECIE: Puerta interior

UBICACIÓN: SS.HH

CANTIDAD: 14

ANCLAJE: Fijado con montantes

MODO DE ABRIR: Batiente

MARCO: HOJA: Polietileno alta densidad CONTRAMARCO: -

HERRAJES: Pestillo con indicador

ESPECIE: Puerta interior

UBICACIÓN: Sala de actividades CANTIDAD: 4 ANCLAJE: Con guías y rodamiento

MODO DE ABRIR: Sistema plegable MARCO: Eucaliptus colorado HOJA: Vidrio fijo opaco

CONTRAMARCO:HERRAJES: Pestillo

ESPECIE: Paño fijo

UBICACIÓN: Fachadas CANTIDAD: 178

ANCLAJE: Fijación a sistema

MODO DE ABRIR: Fija

SERIE: Summa. Aluminios del Uruguay VIDRIO: DVH Laminado COLOR: Anoloc marrón

ESPECIE: Ventana exterior

UBICACIÓN: Habitaciones

CANTIDAD: 36

ANCLAJE: Arena y portland con hidró fugo

MODO DE ABRIR: Fija

SERIE: Probba. Aluminios del Uruguay VIDRIO: DVH Laminado COLOR: Anoloc marrón

126

ESPECIE: Puerta interior | exterior

UBICACIÓN: Pasillo | acceso principal CANTIDAD: 17

ANCLAJE: Fijación a sistema MODO DE ABRIR: Batiente

SERIE: Summa. Aluminios del Uruguay VIDRIO: 6mm Laminado COLOR: Anoloc marrón

*Vidrio DVH laminado en exteriores

ESPECIE: Puerta interior

UBICACIÓN: Pasillos CANTIDAD: 4 ANCLAJE: Fijación a sistema MODO DE ABRIR: Batiente SERIE: Summa. Aluminios del Uruguay VIDRIO: 6mm Laminado COLOR: Anoloc marrón

ESPECIE: Puerta exterior

UBICACIÓN: Salida al patio CANTIDAD: 2 ANCLAJE: Fijación a sistema MODO DE ABRIR: Corrediza SERIE: Summa. Aluminios del Uruguay VIDRIO: DVH Laminado COLOR: Anoloc marrón

ESPECIE: Puerta cortafuego UBICACIÓN: Cocina y sala de calderas CANTIDAD: 2

ANCLAJE: Arena y portland con hidró fugo

MODO DE ABRIR: Batiente

MARCO: En acero de alta resistencia de 1,2mm

HOJA: Acero galvanizado 0,7mm. Re llena de lana de roca VIDRIO: Fijo 32mm COLOR: Blanca

ESPECIE: Puerta de emergencia

UBICACIÓN: Pasillo planta baja CANTIDAD: 2 ANCLAJE: Arena y portland con hidró fugo

MODO DE ABRIR: Batiente

MARCO: Acero de alta resistencia de 1,2mm

HOJA: Acero galvanizado 0,7mm. Aisla miento de lana mineral COLOR: Blanca

ESPECIE: Puerta doble

UBICACIÓN: Subestación CANTIDAD: 1 ANCLAJE: Poliuretano proyectado MODO DE ABRIR: Batiente MARCO: Perfil de hierro HOJA: Celosía y zócalo de chapa COLOR: Negra

ESPECIE: Puerta exterior

UBICACIÓN: Fachada exterior CANTIDAD: 1

ANCLAJE: Fijación a sistema MODO DE ABRIR: Batiente MARCO: Perfil de hierro HOJA: Malla microperforada COLOR: Negra

127

DETALLE ESCALERA HELICOIDAL

Escala: 1.30

01 | Placa + pernos de anclaje

02 | Baranda de chapa plegada. Pintada con esmalte antioxidante blanco

03 | Pasamano de acero inoxidable en forma cilíndrica

04 | 16 escalones de madera

128

DETALLE PIEL | PANELES

Parasoles diseñados para revestir edificios como una doble piel y, a la vez, ser una solución eficaz en la protección solar pasiva.

Planta | Escala: 1.10

01 | Estructura metálica

Axonométrica | Escala: 1.30

02 | Panel de aluminio liso, pintado con esmalte antióxido negro 03 | Conjunto soporte 04 | Barra de accionamiento

129

ESTRUCTURA

03

SISTEMA ESTRUCTURAL

El proyecto estructural del edificio se organiza en una grilla con un módulo de 7m x 7m, generando que los elementos estructurales se repitan en todo el proyecto. Se busca un sistema que permita una construcción rá pida y seriada, es por eso que se opta por vigas, pilares y losas de hormigón prefabricada.

La prefabricación permite el fraguado del mortero en condiciones óptimas y la reducción del tiempo de construcción de la edificación. Estos sistemas tienen como característica principal que descomponen la estructura en piezas prefabrica das en fábrica mediante hormigón pretensado, y pos teriormente se ensamblan en la obra.

Su ventaja principal radica en la velocidad de mon taje y en la calidad del material, ya que las piezas fraguan en una fábrica bajo condiciones controladas. Los elementos se unen con machihembrados y pernos por lo que a pie de obra se simplifica el trabajo.

03
133

Viga de hormigón prefabricado 25x45

Viga de hormigón prefabricado 25x45

Viga de hormigón prefabricado 25x45

Viga de hormigón prefabricado 25x45

Viga de hormigón prefabricado 25x45

Pilar de hormigón prefabricado 25x25

Viga de hormigón prefabricado 25x45

Cabezal de pilote 100x100

Pilar de hormigón prefabricado 25x25

Cabezal de pilote 100x100

Pilar de hormigón prefabricado 25x25

Cabezal de pilote 100x100

Viga de hormigón prefabricado 25x45

Viga de hormigón prefabricado 25x45

Pilar de hormigón prefabricado 25x25

Cabezal de pilote 100x100

Cabezal de pilote 100x100

Pilar de hormigón prefabricado 25x25

Cabezal de pilote 100x100

Pilar de hormigón prefabricado 25x25

Viga de hormigón prefabricado 25x45

Viga de hormigón prefabricado 25x45

Pilar de hormigón prefabricado 25x25

Pilar de hormigón prefabricado 25x25

Cabezal de pilote 100x100

Cabezal de pilote 100x100

Cabezal de pilote 100x100

AXONOMÉTRICA GENERAL 134

01|

LOSA DE HORMIGÓN PREFABRICADA

VIGA DE HORMIGÓN PREFABRICADA

VIGA DE HORMIGÓN PREFABRICADA 02|

PILAR DE HORMIGÓN PREFABRICADA 03|

135

Los pilares prefabricados son de sección rectan gular con medidas que se adecuan de acuerdo a cada proyecto en especifico y llegan hasta los 30 me tros de altura.

Este tipo de producción prefabricada permite un proceso de llenado controlado y genera una exce lente terminación superficial, lo que permite que queden vistos. En caso necesario puede incluirse un desagüe de pluviales por dentro.

Los apoyos de vigas en pilares se realizan a tra vés de ménsulas, pudiéndose posicionar a cual quier cota sobre el pilar, además de en las caras necesarias. Se pueden fabricar con cualquier geo metría, siendo las más habituales las que aquí se muestran.

Además de las ménsulas para apoyo de vigas o pla cas, podemos realizar ménsulas largas, capiteles, ménsulas metálicas para apoyos ocultos y ménsulas ranuradas.

La estructura se organiza en una grilla de 7x7, por lo que la carga del edificio + la sobrecarga de uso cada 49m2 se divide de igual forma hacia cada pilar.

Aproximamos el cálculo en 50m2 que tienen una des carga de 1000 toneladas.

Por cada pilar bajan 100 Toneladas .

En un pilote de diámetro 50 pueden bajar 95 to neladas.

En un pilote de diámetro 60 pueden bajar 120 to neladas.

Nos quedamos del lado de la seguridad y vamos a utilizar un pilote de diámetro 60.

La unión entre el pilar y el pilote es un cabezal de 90x90, en el cual ingresan las armaduras de cada uno.

DETALLE DE MÉNSULA
136
ARMADURA DE PILAR + MÉNSULA

La pre losa schmidt es una losa de hormigón armado que combina las tecnologías del premoldeado pro ducido en fábrica con aquella usada por la cons trucción en sitio Pueden llegar a una longitud de hasta 14 m de lar go y 3 m de ancho, su grosor varía entre 5 y 7 cm

La pre losa sirva como encofrado permanente y se aplica para la construcción de entrepisos y cu biertas

Componentes:

- Placa de hormigón premoldeado

- Armadura de celosía de acero: La armadura sobre sale de la parte superior, cuenta con determinada cantidad de nervios dependiendo del ancho de la prelosa y es la que vincula con la pieza prefabri cada con el llenado en sitio

- Planchas de poliestireno rígido: alojadas en los espacios entre celosías. Estas planchas conforman un casetonado que aligera la estructura ahorrando hormigón

- Hormigón vertido en sitio: Este completara el espesor final de la pre losa

UNIÓN MURO-PRE LOSA VISTA

Se trata de vigas con geometría en T invertida que pueden ser armadas o pretensadas en función de sus luces y cargas, existe la posibilidad de colocar vigas rectangulares, en que la parte ancha de la T se realiza en planta pero la cabeza de la viga es hormigonada in situ junto con la capa de compresión.

El ancho de la viga lo determina el ancho del pi lar siendo su valor frecuente entre 30 y 70 cm. El canto total de la viga, lo determina el canto de la placa más el descuelgue necesario para dar a la viga el canto necesario,

ARMADURA DE VIGAS

137

1

Los pilotes son elementos estructurales que po demos clasificar dentro de la categoría de ci mentaciones profundas, tienen forma de columna que se emplean cuando el suelo donde se apoya la construcción no es lo suficientemente resistente o bien pudiera dar lugar a asientos inadmisibles, haciendo inviable la solución de una cimentación superficial.

Los pilotes son los encargados de trasladar las cargas de la estructura a capas más profundas del suelo hasta encontrar un terreno más firme. Un tipo de cimentación que puede alcanzar una pro fundidad de mas de 3,5 metros y tiene una forma de transmisión de carcas indirecta.

Difiera de la cimentación directa, por su capa cidad de transmitir una parte no despreciable de la carga vertical por fricción y la otra por la punta o apoyo .

1- Terminación Cerámica 40x40 cm e= 2cm 2- Adhesivo cementicio impermeable e = 3mm 3- Mortero de nivelación arena y portland (3x1) e=2cm 4- Contrapiso de Hormigón e=5cm c/ malla electro soldada 15x15 5- Film de polietileno 200 micrones 6- Base de Balasto natural 3 cm 7- Relleno inorgánico compactado e= 20cm TERRENO: debe retirarse el suelo correspondiente a suelo orgánico y reemplazarse el relleno inor gánico 8- Relleno de grava de menor diámetro arriba y mayor abajo 9- Armadura, Hierros horizontales y verticales 10- Muro de contención de hormigón armado 11- Impermeabilización con lamina asfáltica 12- Geotextil 13- Colector de drenaje de PVC 14- Lecho de asiento de hormigón

2 3 4 5 6 8 9 10 11 12 14 DETALLE DE MURO DE CONTENCIÓN DETALLE CABEZAL DE PILOTE 13
138

CABEZAL 100x100cm CABEZAL 100x100cm CABEZAL 100x100cm CABEZAL 100x100cm CABEZAL 100x100cm CABEZAL 100x100cm CABEZAL 100x100cm CABEZAL 100x100cm CABEZAL 100x100cm CABEZAL 100x100cm

PILAR 25X25cm PILAR 25X25cm PILAR 25X25cm PILAR 25X25cm PILAR 25X25cm PILAR 25X25cm PILAR 25X25cm PILAR 25X25cm PILAR 25X25cm PILAR 25X25cm

100x100cm

100x100cm

PILAR 25X25cm PILAR 25X25cm PILAR 25X25cm PILAR 25X25cm PILAR 25X25cm PILAR 25X25cm PILAR 25X25cm PILAR 25X25cm PILAR 25X25cm PILAR 25X25cm

CABEZAL 100x100cm CABEZAL 100x100cm CABEZAL 100x100cm CABEZAL 100x100cm CABEZAL 100x100cm CABEZAL 100x100cm CABEZAL 100x100cm CABEZAL 100x100cm CABEZAL 100x100cm CABEZAL 100x100cm

PILAR 25X25cm PILAR 25X25cm PILAR 25X25cm PILAR 25X25cm PILAR 25X25cm PILAR 25X25cm PILAR 25X25cm PILAR 25X25cm PILAR 25X25cm PILAR 25X25cm

CABEZAL 100x100cm CABEZAL 100x100cm CABEZAL 100x100cm

CABEZAL 100x100cm CABEZAL 100x100cm CABEZAL 100x100cm

PILAR 25X25cm PILAR 25X25cm PILAR 25X25cm PILAR 25X25cm

PILAR 25X25cm PILAR 25X25cm

CABEZAL 100x100cm CABEZAL 100x100cm CABEZAL 100x100cm

CABEZAL 100x100cm CABEZAL 100x100cm CABEZAL 100x100cm

PILAR 25X25cm PILAR 25X25cm PILAR 25X25cm PILAR 25X25cm

PILAR 25X25cm PILAR 25X25cm

CABEZAL 100x100cm CABEZAL 100x100cm CABEZAL 100x100cm

CABEZAL 100x100cm CABEZAL 100x100cm CABEZAL 100x100cm

PILAR 25X25cm PILAR 25X25cm PILAR 25X25cm PILAR 25X25cm

PILAR 25X25cm PILAR 25X25cm

CABEZAL 100x100cm CABEZAL 100x100cm CABEZAL 100x100cm

CABEZAL 100x100cm CABEZAL 100x100cm CABEZAL 100x100cm

PILAR 25X25cm PILAR 25X25cm PILAR 25X25cm PILAR 25X25cm

PLANTA CIMENTACIONES

Escala: 1.350

PILAR 25X25cm PILAR 25X25cm

CABEZAL 100x100cm CABEZAL 100x100cm CABEZAL 100x100cm CABEZAL 100x100cm CABEZAL 100x100cm CABEZAL 100x100cm CABEZAL 100x100cm CABEZAL 100x100cm CABEZAL 100x100cm PILAR 25X25cm PILAR 25X25cm PILAR 25X25cm PILAR 25X25cm PILAR 25X25cm PILAR 25X25cm PILAR 25X25cm PILAR 25X25cm PILAR 25X25cm PILAR 25X25cm CABEZAL 100x100cm CABEZAL 100x100cm CABEZAL 100x100cm CABEZAL 100x100cm CABEZAL 100x100cm CABEZAL 100x100cm CABEZAL 100x100cm CABEZAL 100x100cm CABEZAL 100x100cm CABEZAL 100x100cm PILAR 25X25cm PILAR 25X25cm PILAR 25X25cm PILAR 25X25cm PILAR 25X25cm PILAR 25X25cm PILAR 25X25cm PILAR 25X25cm PILAR 25X25cm PILAR 25X25cm CABEZAL 100x100cm CABEZAL 100x100cm CABEZAL 100x100cm CABEZAL 100x100cm CABEZAL 100x100cm CABEZAL 100x100cm CABEZAL 100x100cm CABEZAL
CABEZAL 100x100cm CABEZAL
CABEZAL
CABEZAL 100x100cm CABEZAL 100x100cm CABEZAL 100x100cm CABEZAL 100x100cm CABEZAL 100x100cm CABEZAL 100x100cm CABEZAL 100x100cm PILAR 25X25cm PILAR 25X25cm PILAR 25X25cm PILAR 25X25cm PILAR 25X25cm PILAR 25X25cm PILAR 25X25cm PILAR 25X25cm PILAR 25X25cm PILAR 25X25cm CABEZAL 100x100cm
100x100cm CABEZAL 100x100cm CABEZAL 100x100cm
139

VIGA

VIGA 45x25cm

VIGA 45x25cm

45x25cm VIGA 45x25cm VIGA 45x25cm VIGA 45x25cm VIGA 45x25cm VIGA 45x25cm

VIGA 45x25cm VIGA 45x25cm

VIGA 45x25cm

PILAR VIGA 45x25cm

VIGA 45x25cm

PILAR VIGA 45x25cm VIGA 45x25cm

VIGA 45x25cm VIGA 45x25cm

VIGA 45x25cm VIGA 45x25cm VIGA 45x25cm VIGA 45x25cm VIGA 45x25cm VIGA 45x25cm

VIGA 45x25cm VIGA 45x25cm

VIGA 45x25cm VIGA 45x25cm VIGA 45x25cm

VIGA 45x25cm VIGA 45x25cm

VIGA 45x25cm VIGA 45x25cm

VIGA 45x25cm VIGA 45x25cm VIGA 45x25cm VIGA 45x25cm VIGA 45x25cm VIGA 45x25cm VIGA 45x25cm

VIGA 45x25cm

VIGA 45x25cm

PILAR 25X25cm

VIGA 45x25cm

VIGA 45x25cm VIGA 45x25cm VIGA 45x25cm VIGA 45x25cm VIGA 45x25cm VIGA 45x25cm VIGA 45x25cm VIGA 45x25cm VIGA 45x25cm VIGA 45x25cm VIGA 45x25cm VIGA 45x25cm

25X25cm

VIGA 45x25cm VIGA 45x25cm

VIGA 45x25cm VIGA 45x25cm

25X25cm

VIGA 45x25cm

VIGA 45x25cm VIGA 45x25cm

25X25cm

25X25cm

VIGA 45x25cm PILAR PILAR

VIGA 45x25cm VIGA 45x25cm

VIGA 45x25cm

VIGA 45x25cm VIGA 45x25cm

PILAR 25X25cm PILAR 25X25cm PILAR 25X25cm

VIGA 45x25cm VIGA 45x25cm

VIGA 45x25cm

VIGA 45x25cm VIGA 45x25cm

VIGA 45x25cm VIGA 45x25cm

VIGA 45x25cm VIGA 45x25cm

VIGA 45x25cm

VIGA 45x25cm VIGA 45x25cm

PILAR 25X25cm PILAR 25X25cm PILAR 25X25cm

PILAR 25X25cm PILAR 25X25cm

VIGA 45x25cm VIGA 45x25cm VIGA 45x25cm

PILAR 25X25cm PILAR 25X25cm PILAR 25X25cm

PILAR PILAR

VIGA 45x25cm VIGA 45x25cm VIGA 45x25cm VIGA 45x25cm VIGA 45x25cm VIGA 45x25cm

PILAR 25X25cm

PILAR 25X25cm PILAR 25X25cm PILAR 25X25cm PILAR 25X25cm PILAR 25X25cm PILAR 25X25cm

141

SOBRE
PILAR 25X25cm PILAR
PILAR 25X25cm PILAR
PILAR
VIGA 45x25cm PILAR
PILAR
PILAR
VIGA 45x25cm VIGA 45x25cm VIGA 45x25cm VIGA 45x25cm VIGA 45x25cm VIGA 45x25cm
PLANTA ALTA Escala: 1.350
PILAR 25X25cm
25X25cm
25X25cm
25X25cm
25X25cm
25X25cm
PILAR 25X25cm PILAR 25X25cm PILAR 25X25cm PILAR 25X25cm PILAR 25X25cm PILAR 25X25cm PILAR 25X25cm PILAR 25X25cm PILAR 25X25cm PILAR 25X25cm PILAR 25X25cm PILAR 25X25cm PILAR 25X25cm PILAR 25X25cm PILAR 25X25cm PILAR 25X25cm PILAR 25X25cm PILAR 25X25cm PILAR 25X25cm PILAR 25X25cm PILAR 25X25cm PILAR 25X25cm PILAR 25X25cm PILAR 25X25cm PILAR 25X25cm PILAR 25X25cm PILAR 25X25cm PILAR 25X25cm PILAR
VIGA 45x25cm
PILAR 25X25cm PILAR 25X25cm PILAR 25X25cm PILAR 25X25cm PILAR 25X25cm PILAR 25X25cm PILAR 25X25cm PILAR 25X25cm PILAR 25X25cm PILAR 25X25cm PILAR 25X25cm PILAR 25X25cm PILAR 25X25cm PILAR 25X25cm PILAR 25X25cm PILAR 25X25cm PILAR 25X25cm PILAR 25X25cm
25X25cm PILAR 25X25cm PILAR 25X25cm PILAR
25X25cm PILAR 25X25cm
VIGA 45x25cm VIGA 45x25cm VIGA 45x25cm VIGA 45x25cm VIGA 45x25cm VIGA 45x25cm VIGA 45x25cm VIGA 45x25cm VIGA 45x25cm VIGA 45x25cm VIGA 45x25cm VIGA 45x25cm
VIGA 45x25cm VIGA 45x25cm
PILAR
25X25cm PILAR
PILAR
PILAR
PILAR
VIGA 45x25cm VIGA 45x25cm
VIGA 45x25cm VIGA 45x25cm PILAR
VIGA 45x25cm VIGA 45x25cm PILAR PILAR VIGA 45x25cm
VIGA 45x25cm VIGA 45x25cm VIGA 45x25cm
04
ACONDICIONAMIENTO SANITARIO

MEMORIA:

El abastecimiento se realiza desde la red del Hospital Saint Bois, hacia los tanques prefabricados ubicados en planta baja, con una capacidad de 5000 lt cada uno. Desde los mismos se bombea y abastecen todo el edificio con cañerías de PVC con diámetros según corresponda en cada caso.

El desagüe es canalizado hacia una fosa séptica, terminando en un sistema de tratamientos de aguas (wetland). Las cañerías son rea lizadas en PVC y suspendidas.

Las pluviales son canalizadas en un tanque para riego, y otro porcentaje va dirigido al tajamar natural ubicado en el patio interior. Debido al techo en impluvium, se diseña una serie de canalones que se evacuan por columnas de bajadas coincidiendo con los pilares vistos de la fachada.

04 143

Sistema de riego Sistema de riego

Bomba de desborde CI CI Bomba para riego

Perforación de agua

Caldera

PLANTA BAJA Escala: 1.350

Estanque para recolección de pluviales

TI 144

Pozo de bombeo TI PPA PPA PPA PPA VIENE DE RED EXISTENTE

Sistema de riego

Sistema de riego Sistema de riego
Sistema de riego PPA PPA PPA PPA PPA PPA PPA PPA PPA PPA PPA
CI CI CI CI CI CI TI TI TI TI TI TI SUBIDA DE PRIMARIA SUBIDA DE AGUA CI CI HACIA WETLAND CI PLANTA ALTA Escala: 1.350 145
IP IP IP IP IP IP Ventilación Ø100 PPA PPA PPA CI VIENE DE RED EXISTENTE CS CS CS CS CS CS Lo Lo Lo CORTE CC Escala: 1.150 146
IP IP IP IP Ventilación Ø100 Caldera Tanque Tanque Tanque Pozo de bombeo PPA PPA PPA TI CI CI CS CS CS CS Lo Lo Lo Lo Lo Ø200 Pend 1% Ø200 Pend 0.7% HACIA WETLAND 147

DETALLE WETLAND

SISTEMA DE DEPURACIÓN CON PLANTAS EMERGENTES - WETLAND

Aplicación del agua residual a la tierra luego de un tratamiento primario (cámara séptica) y uno secundario (wetland). Este fil tro considera los efluentes y nutrientes como recursos más que como productos para ser tratados y eliminados. El tratamiento se proporciona mediante procesos naturales biológicos y químicos a medida que el agua se mueve a través de un filtro viviente pro porcionado por el suelo, las plantas y microorganismos.

Escala: 1.50 01 | Entrada de efluentes de red primaria 02 | Cámara de inspección n°1 03 | Ventilación Ø110 04 | Tapa de inspección 05 | Fosa séptica 06 | Zona de sedimentación 07 | Lodo 08 | PVC Ø110 Pend 2% 09 | Impermeabilización. Film de polietileno 10 | Canto rodado 11 | Pedregullo

148
149

DETALLE SS.HH DE DORMITORIOS | PLANTA

09 | Desagüe primaria | Ramal Y Ø110 - Ø63

10 |

11 |

12 |

13 |

14 |

Escala: 1.20 01 | Abastecimiento de agua caliente 02 | 3/4’’Abastecimiento de agua fría 3/4’’ 03 | Abastecimiento | AF | Llave de paso 04 | Abastecimiento | AC | Llave de paso 05 | Desagüe primaria PVC Ø110 suspendida 06 | Desagüe primaria | ramal Y 07 | Desagüe primaria | codo 45° Ø110 08 | Ventilación primaria Ø100 150
Desagüe secundaria | Caja sifonada PVC
Desagüe secundaria | Codo 45° Ø63
Abastecimiento | conexión AF | Grifo
Abastecimiento | conexión AC | Grifo
Abastecimiento | AF | Conexión a IP

DETALLE SS.HH DE DORMITORIOS | CORTE

Escala: 1.20

09 | Abastecimiento | AF | Llave de paso 10 | Ventilación primaria Ø100

01 | Abastecimiento de agua caliente 02 | 3/4’’Abastecimiento de agua fría 3/4’’ 03 | Artefacto | Lavabo con sifón 04 | Desagüe secundaria | Codo 90° Ø63 05 | Desagüe secundaria | Caja sifonada PVC 06 | Desagüe primaria | codo 90° Ø110 07 | Artefacto | Inodoro con cisterna tipo mochila 08 | Abastecimiento | AF | Conexión a IP 151

DETALLE TANQUES DE ABASTECIMIENTO

Escala: 1.30

36 camas + 14 personas de personal x 400lt por día= 20.000 lt

01 | Abastecimiento de tanque (viene de OSE) 02 | Ruptor de vacío 03 | Flotador 04 | Purga

05 | Salida de abastecimiento de agua potable 06 | Bomba centrífuga 07 | Losa sobre poliestireno expandido 08 | Abastecimiento para incendio

EN
VISTA
CORTE
EN PLANTA
VISTA
152

DETALLE 01 | CÁMARA DE INSPECCIÓN N° 1

Escala: 1.30

01| Tapa de hormigón 60 x 60cm 02| Contratapa de hormigón 03| Rejilla de aspiración PPØ 110 04| Mampostería de ladrillo 05| Revoque interior lustrado

06| Tapón PVC Ø110 07| Caño de entrada 08| Base de hormigón 09| Sifón desconector 10| Salida a fosa séptica

DETALLE 02 | POZO DE BOMBEO

Escala: 1.30

01| Tapa de hormigón 60 x 60cm 02| Contratapa de hormigón 03| Hacia cámara de inspección 04| llave de paso 05| Cable a tablero 06| Ventilación PVC Ø110 07| PVC Ø110 desagüe 08| Flotadores 09| Electrobomba sumergible 10| Revoque interior lustrado

VISTA EN CORTE LONGITUDINAL VISTA EN CORTE TRANSVERSAL VISTA EN PLANTA
VISTA EN PLANTA 153
VISTA EN CORTE
05
ACONDICIONAMIENTO ELÉCTRICO

MEMORIA:

La carga eléctrica estimada para el funcionamiento del edificio requiere la instalación de una subestación de UTE, la cual ali mentará el total del predio y se ubicará en el nivel -1(Sector destinado a salas de máquinas, bombas, tanques y otras servicios necesarios para el funcionamiento del hospital)

Este sector cuenta con una entrada particular desde el exterior que permite la entrada independiente desde el espacio público, tal como solicita la normativa

Junto con la subestación de UTE se ubican los equipamientos necesarios según cálculos y previsiones, tales como, generador electrógeno y sala de tableros.

El grupo electrógeno permite al edificio continuar su funciona miento en caso de emergencia, cubre el funcionamiento del edificio en caso de posibles cortes de energía de UTE.

El tablero general se ubica dentro de la sala de tableros, el cual deriva su energía a tableros secundarios y además comprende al tablero de emergencia (utilizando una llave de doble vía que deriva a tres tableros secundarios de emergencia)

La totalidad de estos serán metálicos en chapa de hierro plegada con acabado de esmalte al horno.

Se prevé un espacio del 20% sin utilizar, para poder realizar po sibles ampliaciones y modificaciones a futuro. Comprenderán ade más cierre estanco con cerradura

La red general desde el tablero general hasta los tableros secundarios e intermedios se canalizó por bandejas suspendidas en los pasillos, por cielorraso en las salas de habitación, salas de tra bajo de personal y habitaciones, y la conexión entre el ala este y oeste del edificio se conectan por el patio de forma subterránea

05
155

SECTOR ARTEFACTOS N° Kw TOTAL

NIVEL -1

ALA ESTE

Tomas

Luminaria tipo 04

Luminaria tipo 01 Luminaria tipo 06 Televisión Computadora Ascensor VRV Exterior Bomba Impresora

39 60 17 06 03 05 02 12 01 04

0.30 0.52 0.15 0.27 0.20 0.20 17.5 15.8 0.70 0.15

Potencia total instalada: 275.3 Factor de simultaneidad 0.7: 192.7

11.7 31.2 2.55 1.62 0.60 1.00 35.0 190.3 0.70 0.60

SECTOR ARTEFACTOS N° Kw TOTAL

NIVEL PB Vestuarios Tomas Luminaria tipo 01 Luminaria tipo 04 Luminaria tipo 06 Secador de pelo

08 08 06 10 06

0.300 0.015 0.052 0.027 0.250

Potencia total instalada: 4.67 Factor de simultaneidad 0.7: 3.28

2.400 0.090 0.416 0.270 1.500

NIVEL -1

ALA OESTE

Tomas

Luminaria tipo 04

Luminaria tipo 01 Luminaria tipo 06 Televisión Computadora Ascensor Impresora Heladera Cocina Extractor Microondas Licuadora Batidora Procesadora

43 41 06 09 02 02 01 02 02 02 03 01 01 01 01

0.300 0.052 0.015 0.027 0.200 0.200 17.50 0.150 0.250 0.620 0.350 0.900 0.600 0.200 0.100

Potencia total instalada: 38.5 Factor de simultaneidad 0.7: 26.9

12.90 2.132 0.090 0.243 0.400 0.400 17.50 0.300 0.500 1.240 1.050 0.900 0.600 0.200 0.100

NIVEL PB Á personal Tomas Luminaria tipo 04 Heladera Microondas Cocina Cafetera Computadora

13 10 01 01 01 01 04

0.300 0.052 0.250 0.900 0.620 0.250 0.200

3.90 0.52 0.25 0.90 0.62 0.25 0.80

Potencia total instalada: 7.24 Factor de simultaneidad 0.7: 5.07

NIVEL PB Á atención Tomas Luminaria tipo 04 Computadora Impresora

16 22 06 43

0.300 0.052 0.200 0.150

Potencia total instalada: 7.59 Factor de simultaneidad 0.7: 5.13

NIVEL PB Á actividades

NIVEL PB Hab ind Tomas

Luminarias tipo 01 Luminarias tipo 02

04 02 01

0.300 0.015 0.014

Total habitaciones ind: 24 Kw:1.244 Total Kw:29.8 Factor de simultaneidad 0.7: 21

1.200 0.030 0.014

NIVEL PB Circula ción

Tomas Luminaria tipo 04 Televisión Computadora

4.80 1.19 1.20 0.45

15 23 04 04

0.300 0.052 0.200 0.200

Potencia total instalada: 7.29 Factor de simultaneidad 0.7: 5.10

Tomas Luminaria tipo 04 Ascensores Computadora Impresora

05 99 03 03 03

0.300 0.052 17.50 0.200 0.150

4.50 1.19 0.80 0.80

1.50 5.15 52.0 0.60 0.45

NIVEL PB

Hab dob Tomas

Luminarias tipo 01 Luminarias tipo 02

04 03 01

0.300 0.015 0.014

Total habitaciones dob: 6 Kw:1.259 Total Kw:7.554 Factor de simultaneidad 0.7: 5.29

1.200 0.045 0.014

Potencia total instalada: 60.2 Factor de simultaneidad 0.7: 42.1

Potencia total del edificio: 438.4 Factor de simultaneidad 0.7: 307.0

156

Centro Brazo Interruptor unipolar Interruptor bipolar Interruptor tripolar Interruptor 2 secciones Interruptor combinación

Botón pulsador Tomacorrientes monofásico Tomacorrientes schuko Tomacorrientes trifásico Tomacorrientes c/ interruptor Tomacorrientes especial Célula fotoeléctrica Tomacorrientes especial Sensor de pared Sensor de techo Fusible Medidor Centralización

Caja de registro Centralización

Subida y bajada de conductores Bandeja portacables Descarga a tierra Fluorescente Luminaria asimétrica Reclector Calefactor Luminaria embutida en piso Campanilla Portero eléctrico Televisión Internet Teléfono urbano Teléfono interno Datos de computación Motor monofásico Cámara CCTV mobil color

157

Nivel - 0.00

Nivel - 3.00

Descarga a tierra

ESQUEMA DE TABLEROS
158

T16 - Habitaciónes Nivel +3.10

T16 - Habitaciónes Nivel +3.10

ESQUEMA UNIFILAR
159
160
PLANTA BAJA Escala: 1.350

PLANTA ALTA Escala: 1.350

161
06
ACONDICIONAMIENTO TÉRMICO

MEMORIA:

El sistema elegido para el acondicionamiento térmico del edificio fue el sistema de volumen refrigerante variable (VRV). Se selecciona debido a sus beneficios en eficiencia energética para edi ficios de gran tamaño, ya que permite climatizar grandes super ficies como hoteles, escuelas y centros comerciales, reduciendo entre un 11 y un 20% del consumo.

Se compone de una unidad exterior que se sitúa afuera del edificio y que se conecta por medio de tubos de cobre a muchas unidades interiores ubicadas dentro del local, enviando refrigerante frío o caliente, permitiendo regular el flujo de refrigerante según la necesidad de cada unidad, dependiendo de las actividades a desarrollarse, cantidad de usuarios y requerimientos particulares.

El funcionamiento del VRV es bastante similar al de cualquiera de los tipos de aire acondicionado tradicionales: un gas refrigeran te es sometido a cambios de presión y, con ello, de temperatura para absorber el calor del aire de la sala y expulsarlo al exte rior y, al contrario si trabaja en modo calor.

La gran diferencia es que cuenta con una caja de control entre la unidad exterior y las interiores que regula el flujo del refrigerante, según la demanda de frío o calor captada por los sensores de termostato que tienen las unidades interiores.

06
163
ACCESO EMERGENCIA ACCESO BIBLIOTECA COCINA COMEDOR ACCESO CIRCULACIÓN MANTENIMIENTO ÁREA DE AC TIVI ACCESO SECUN DARIO ACCESO PRINCIPAL ÁREA DE DORMITORIOS DORMITO RIOS INDIVI DORMITORIOS INDIVIDUALES ÁREA DE ATEN DORMITO RIOS DOBLES SECTORIZACIÓN PLANTA BAJA PLANTA ALTA 164

Unidad exterior VRV

Aire acondicionado inverter

Campana industrial Cassete Unidad interior frío

Cassete Unidad interior caliente

La instalación de climatización en un hospital, que permite el control de la temperatura ambiente interior es necesario, cuenta con más ob jetivos que los habituales ya que debe mantener unas condiciones de confort adecuadas en las diferentes áreas del mismo a pesar de su gran tamaño, teniendo en cuenta los siguientes requisitos:

1. Condiciones generales de confort.

2. Reducción de microorganismos, polvo, olores, etc.

3. Colaborar a la curación de determinadas patologías.

4. Mantener una alta ventilación.

5. Controlar el flujo direccional del aire.

6. Mantener estables la temperatura y humedad relativa.

7. Protección del personal que trabaja en el hospital.

MCU Unidad de control
165

ÁREA TOTAL A ACONDICIONAR

ÁREA TOTAL PLANTA BAJA:................1810m2 ÁREA TOTAL PLANTA ALTA:................2763m2 ÁREA TOTAL:............................4573m2

23m2 = 1TR 4573m2/23m2 = 198,8 = 199TR (2388000 btu/h)

DVMS water standard R410a = 16TR 199TR/16TR = 12,4 = 13 Unidades exteriores

NIVEL 1 - ZONA SUR

R Necesarias = 199 Cantidad de unidades exteriores= 13 Capacidad de la unidad exterior (KW).....24,4 Tamaño de la tubería en mm Tubería de liquido ......................9,52 Tubería de gas...........................19,0

LOCAL: Recepción Sala de reuniones Sala de trabajadores Sala administrativa Sala administrativa Vestuarios 2 Enfermerías 2 Bloque de baños Sala de actividades 2 Dormitorios individuales 12 Dormitorios individuales Dormitorios dobles 3 Dormitorios dobles Circulaciones

ÁREA: 24,2m2 24,0m2 36,0m2 18,0m2 18,0m2 74,0m2 40,0m2 32,0m2 96,0m2 18,0m2 216 m2 28,0m2 84,0m2 535 m2

TR Necesarias = 1 TR Unidad interior mini Cassette = 1,5 TR Unidad interior grande Cassette= TR Equipos=

TR: 1,05 1,04 1,57 0,78 0,78 3,22 1,74 1,39 2,09 0,78 9,39 1,22 3,65 23,3 50 31 18 58

PLANTA BAJA

LOCAL:

Acceso emergencia Área de emergencia Acceso mantenimiento Comedor/ biblioteca Acceso principal Acceso secundario Circulación

ÁREA: 145m2 165m2 84 m2 443m2 143m2 143m2 143m2

TR Necesarias =

1 TR Unidad interior mini Cassette = 1,5 TR Unidad interior grande Cassette= TR Equipos=

TR: 06,30 07,17 03,65 19,26 06,22 06,22 06,22 55,0 24,0 21,0 55,5

NIVEL 1 - ZONA NORTE

LOCAL: 3 Salas de actividades Dormitorios dobles 3 Dormitorios dobles Dormitorios individuales 11 Dormitorios individuales 2 Enfermerías Consultorio grande 3 Consultorio chico Sala tratamientos colectivos Sala de micronarcosis Camas post tratamientos Deposito Circulaciones

ÁREA: 144 m2 28,0m2 84,0m2 18,0m2 198 m2 40,0m2 20,0m2 54,0m2 20,0m2 17,0m2 28,0m2 42,0m2 612 m2

TR Necesarias = 1 TR Unidad interior mini Cassette = 1,5 TR Unidad interior grande Cassette= TR Equipos=

TR: 6,20 1,20 3,65 0,78 8,60 1,73 0,86 2,34 0,86 0,73 1,20 1,82 26,6 57 31 18 58

166

Unidad exterior VRV Modelo DVM S Water estándar Cantidad 13

Samsung MCU

Unidad de control de modo Modelo: MCU - S6NCK3N Dimensiones 114 x 628 x 252 mm Ubicación: Sectorización por uso Potencia: 16,5 TR

Unidad Interior Cassette Modelo: AJ012NBN0CI/A/ Dimensiones: 623 x 298 x 653 mm Ubicación: Oficinas, salas de atención chicas, dormitorios Potencia: 1 TR

Ducto de extracción de aire: Ducto flexible de acero galvanizado flexible Revestimiento de aluminio y poliéster que envuelve armazón helicoidal de hilo de acero

Unidad interior Cassette Modelo: AJ018NBN0CH/A/ Dimensiones: 623 x 298 x 653 mm Ubicación: Comedor, biblioteca, circu laciones, etc Potencia: 1,5 TR

Ductor de inyección

Prefabricados de acero galvanizado Dimensiones según planta de acondicio namiento térmico Sección: rectangular

Unidad interior: Modelo: Samsung Dimensiones: 1240 x 470 x 1040 mm

Extractor de aire Modelo: Soler y palau Dimensiones: 395 x 220 mm Ubicación: Servicios higiénicos

Campana industrial Modelo: Soluciones industriales Uy Cantidad: 1 Ubicación: Cocina

01 02 03. 04. 05 LISTADO DE COMPONENTES 06 07 08. 09. 167
1.350 168
PLANTA BAJA Escala:
169
PLANTA ALTA Escala: 1.350
07
ACONDICIONAMIENTO LUMÍNICO

MEMORIA:

La elección de las luminarias está determinada por las necesidades de cada espacio programático.

Se busca iluminar durante el día los pasillos, salas de activida des, zonas de estar y habitaciones con la mayor cantidad de luz natural posible a partir de una piel vidriada. Para regular los rayos solares y la privacidad de los pacientes se colocan paraso les en todo el exterior del edificio.

La iluminación artificial se compone por luminarias LED en pasi llos, esquinas, zonas de estar, habitaciones y salas del edificio empotradas. En casos particulares como pasillos y salas de activi dades en planta alta se colocan lámparas colgantes al no disponer de cielorraso.

Para destacar el recorrido del hospital se instala iluminación lineal en los pasillos, y para resaltar la entrada principal del edificio spots empotrados en el pavimento.

07 171

Marca: iGuzzini Iluminazione Modelo: R509.F6: Ø 153 mm Potencia: 15 W Colocación: En cielorraso Flujo luminoso: 2050 lm Temperatura: 3000 K

Marca: LTS Licht & Leuchten Modelo: CSAFL 43.1027.15 Potencia: 14 W Colocación: En cielorraso Flujo luminoso: 1370 lm Temperatura: 2700 K

Marca: iGuzzini Iluminazione Modelo: M824 + Perfil + difusor Potencia: 24W Colocación: Atornillado Flujo luminoso: 2150 lm Temperatura: 2400 K

Marca: LTS Licht & Leuchten Modelo: PLL 57.625.30.2/DAL Potencia: 52W Colocación: En cielorraso Flujo luminoso: 3540 lm Temperatura: 3000 K

Marca: iGuzzini Iluminazione Modelo: E983: Foco con soporte Potencia: 84W Colocación: Patio exterior Flujo luminoso: 12800 lm Temperatura: 4000 K

L01. L02. L03 L04. L05. LISTADO DE COMPONENTES 172

Marca: LTS Licht & Leuchten Modelo: CAPL 300.2030.55 Potencia: 27W Colocación: Colgante Flujo luminoso: 2820 lm Temperatura: 3000 K

Marca: iGuzzini Iluminazione Modelo: ME068:de suelo Potencia: 1W Colocación: En pavimento Flujo luminoso: 120 lm Temperatura: 3000 K

Marca: iGuzzini Iluminazione Modelo: QY42 de emergencia Potencia: 3,3W Colocación: En pared Flujo luminoso: 150 lm Temperatura: 5000 K

Marca: iGuzzini Iluminazione Modelo: EI32.01 Potencia: 11.5W Colocación: En pared Flujo luminoso: 636 lm Temperatura: 3000 K

L06 L07. L09. L08
.
173
L04 L04 L04
L04 L04 L04 L04 L04 L04 L04 L04 L04 L04 L04 L04 L04 L04 L01 L01 L01 L01 L04 L04 L04 L04 L04 L04 L04 L04 L04 L04 L04 L04 L04 L04 L04 L04 L04 L04 L04 L04 L04 L04 L04 L04 L04 L04 L04 L04 L04 L04 L04 L04 L04 L04 L04 L04 L04 L04 L04 L04 L04 L04 L04 L04 L04 L04 L04 L04 L04 L04 L04 L04 L01 L01 L01 L01 L01 L01 L01 L01 L01 L01 L01 L01 L01 L01 L01 L01 L01 L06 L06 L06 L06 L06 L06 L06 L06 L06 L04 L04 L04 L04 L04 L04 L04 L04 L04 L04 L04 L04 L04 L04 L04 L04 L04 L04 L04 L04 L04 L04 L04 L04 L04 L04 L01 L01 L06 L06 L06 L06 L07 L07 L07 L07 L07 L07 L07 L07 L07 L07 L07 L07 L07 L07 L07 L07 L07 L07 L07 L07 L07 L07 L07 L07 L07 L07 L07 L07 L07 L07 L07 L07 L07 L07 L07 L07 L07 L07 L07 L07 L07 L07 L07 L07 L07 L07 L07 L07 L07 L07 L08 L08 L08 L08 L08 L08 L08 L08 L08 L08 L08 L08 L08 L08 L08 L04 L04 L01 L01 L01 L01 L01 L01 L01 L01 L01 L01 L01 L01 L01 L01 L01 L01 PLANTA BAJA Escala: 1.350 174
L04 L04 L04 L04 L04 L04
175
PLANTA ALTA Escala: 1.350

INCENDIOS

08

MEMORIA:

Las principales causas de incendio en predios hospitalarios son los equipos de cocina, basura o desechos, cableado eléctrico y de iluminación, equipo médico y electrónico.

Se distribuyen a lo largo del edificio detectores de humo, extin tores y alarmas manuales. Para casos particulares como cocinas y salas de calderas se instalan detectores de temperatura y puertas cortafuego. Según la normativa, para los hospitales psiquiátricos y similares, se debe instalar detección de incendio en todos los cuartos.

Las bocas de incendio se colocan estratégicamente con mangueras de 25m de largo. También se instalarán luces de emergencia en todos los pasillos con un autonomía de 3h.

En las sala de subestación de UTE y Grupo electrógeno se utilizan placas ignífugas

08 177

Nichos para extintores

Los nichos para extintores los protegen de posibles daños o hur tos por parte de los pacientes.

Extintores polvo ABC 8kg

Clase A, B y C (Apto para todo tipo de fuegos)Ideal para edi ficios, casas, locales comercia les, locales industriales, etc.

Nichos para manguera

En Acero Inoxidable, ventana en acrílico. Capacidad hasta dos tramos de manguera de 45mm o 65mm.Medidas: 60x60x20.

Manguera contra Incendio

Marca RYLJET. Medidas: Ø 45mm x 25 metros. Construida con teji dos sintéticos 100% poliéster, sin costura ni uniones. Interior revestido de elastómero.

Detector de humo

LED duales para visibilidad de 360 grados. Bajo consumo de co rriente. Bases equipadas con un resorte de cortocircuito para permitir el mantenimiento sin desconectar.

L06. L07 L08 L09 L10.

Pulsador de incendio Diseñado para presionar la alar ma en caso de incendio, activa inmediatamente la señal de alar ma.

Cartelería de señalización Colocadas junto a cada equipo de emergencia, extintores, boca de incendio, ascensores, escaleras y salidas de emergencia.

Luminaria de emergencia

Marca: iGuzzini Iluminazione Luz de emergencia con fuente LED y pantalla difusora. Colocada cada 21 m. Autonomía de 3h.

Detectores de Temperatura

Funciona según el principio de detección diferencial de tempe ratura. Adecuado para ubicacio nes con diferenciales de altas temperaturas, como cocinas.

Caños para Red de Incendio Galvanizado, pintados electroes taticamente y ranurados

L05. LISTADO DE COMPONENTES
L01 L02. L03. L04.
178

Nichos para extintores

Los nichos para extintores los protegen de posibles daños o hur tos por parte de los pacientes.

L11

L14

Pulsador de incendio Diseñado para presionar la alar ma en caso de incendio, activa inmediatamente la señal de alar ma.

Extintores polvo ABC 8kg

Clase A, B y C (Apto para todo tipo de fuegos)Ideal para edi ficios, casas, locales comercia les, locales industriales, etc.

L12.

L15.

Cartelería de señalización Colocadas junto a cada equipo de emergencia, extintores, boca de incendio, ascensores, escaleras y salidas de emergencia.

Nichos para manguera

En Acero Inoxidable, ventana en acrílico. Capacidad hasta dos tramos de manguera de 45mm o 65mm

L13.

179

DETALLE BOCA DE INCENDIO EMPOTRADA EN PARED

Escala: 1.10

01 | Manómetro

02 | Llave de paso

03 | Manguera diámetro 45mm, 25 metros de longitud

04 | Puntero profesional 45mm

05 | Nicho de incendio -60x60x20

180

REFERENCIAS

BOCA DE INCENDIO BOMBA DE INCENDIO RESERVA DE INCENDIO

EXTINTOR CARGA DE POLVO ABC

ACCIONADOR MANUAL (PULSADOR)

CARTEL DE SALIDA LUMINISCENTE

ROCIADOR AUTÓMATICO

BALDE DE ARENA

SENSOR DE CALOR S/CIELORRASO

SENSOR DE HUMO S/CIELORRASO

181
182
PLANTA BAJA Escala: 1.350
183
PLANTA ALTA Escala: 1.350
09
SUSTENTABILIDAD

MEMORIA:

Los centros de salud y programas hospitalarios requieren para su funcionamiento un alto consumo energético y generan una gran can tidad de residuos, por esta razón se entiende que en primer lugar el centro debe implementar prácticas que busquen impactar de forma positiva en el medio ambiente.

Se debe buscar mejorar la eficiencia energética, reducir el con sumo y generar medidas de conservación. Utilizar menos agua y evitar desperdicios utilizando medidas alternativas a la incineración de residuos tales como reducir, reutilizar y reciclar.

Desde el diseño arquitectónico se generan estrategias que colabo ran de forma pasiva con la reducción del impacto ambiental, teniendo en cuenta el control solar, la ventilación, la orientación y la recolección y reutilización de pluviales.

A su vez, se genera una cubierta verde que colabora con la re ducción de CO2 y ayuda a controlar la temperatura interior, entre otros múltiples beneficios.

Se utiliza un sistema constructivo prefabricado que reduce la can tidad de desperdicios y se emplean instalaciones que tienen en cuenta la eficiencia energética.

09
CONTROL SOLAR 01 02 03 04 CUBIERTA VERDE RECOLECCIÓN DE AGUA ESTRUCTURA PREFABRICADA 185

VEGETACIÓN

GEODREN FILM DE POLIETILENO

POLIESTILENO EXPANDIDO 186

01 | CONTROL SOLAR

El proyecto se encuentra ubicado exento en un gran parque y cuenta con grandes superficies vidriadas en sus cuatro fachadas, por lo que el control solar se vuelve fundamental.

Por esta razón se colocan parasoles verticales metáli cos que funcionan como dispositivos de regulación en la entrada de la lluvia y del sol. Los mismos logran un control solar pasivo ya que los rayos no inciden directamente contra los ventanales y, a través de las ranuras, puede entrar la luz para que no se pierda la claridad en los espacios interiores.

Por otro lado, el uso de parasoles en fachadas genera una unidad estética al conjunto.

02 | CUBIERTA VERDE

La elección de utilizar una cubierta verde está vincu lada con decisiones estéticas y de impacto en el entor no existente, pero también se tiene en cuenta por los múltiples beneficios ambientales que tiene la misma.

Por un lado la cubierta verde retiene el agua de lluvia a través de las plantas, del sustrato y de la lámina de drenaje, esto retarda la caída de agua al sistema de recolección.

A su vez purifica el aire, las plantas en una cubierta vegetal filtran las partículas de aire y convierten el CO2 en oxígeno.

Las plantas reducen la temperatura ambiente, absorben la luz solar en un 50% y el 30% lo reflejan, esto ayu da a crear un clima más frío y agradable. En ambien tes interiores esto significa un menor uso de aires acondicionados, por lo tanto un ahorro de energía. Las plantas y las flores que crecen en la cubierta, aumen tan la biodiversidad.

LOSADEHORMIGÓN

03 |RECOLECCIÓN DE PLUVIALES

Dada la forma inclinada de la cubierta, se propone recolectar el agua proveniente de las lluvias para reutilizarla posteriormente para el riego del patio interior.

El caudal de agua recolectado desemboca en un estan que y mediante un sistema de bombeo se distribuye por un sistema de riego.

La presencia del estanque contribuye a la imagen pai sajística del proyecto y se prevé a su vez una perfo ración subterránea que abastece el mismo en periodo de sequías en que el agua de pluviales no sea suficiente.

04 | ESTRUCTURA PREFABRICADA

El proyecto se organiza en un módulo de 7x7 que permite la utilización de un sistema estructural de hormigón prefabricado.

Los sistemas prefabricados tienen beneficios ambienta les, ya que se diseñan todas las piezas estructurales previamente y reduce por un lado la cantidad de des perdicios de obra in situ, ya que los elementos vienen prontos para ser encastrados en obra.

Por otro lado, la construcción con elementos prefa bricados sustituye la gran cantidad de componentes hú medos que se utilizan en la construcción tradicional.

PERFORACIÓN
187
BOMBA POR DESBORDE

CONTROL SOLAR:

Los parasoles verticales metálicos que recubren el exterior del edifi cio funcionan como dispositivos de regulación en la entrada de la lluvia y del sol.

Los mismos logran un control solar pasivo ya que los rayos no inciden directamente contra los ventanales

ESTRUCTURA PREFABRICADA:

El proyecto se organiza en un módulo de 7x7 que permite la utilización de un sistema estructural de hormigón prefabricado.

En los sistemas prefabricados, se di señan todas las piezas estructurales previamente y reduce la cantidad de desperdicios de obra

188

PATIO CENTRAL:

El patio central cumple la función de permitir el ingreso de la luz y el aire en forma controlada y directa a todas las áreas del edificios

A su vez la vegetación colabora con la regulación de la humedad y la tem peratura ambiente

VENTILACIÓN CRUZADA:

El diseño de la planta permite la óptima ventilación cruzada por ubi carse aberturas móviles en la fachada exterior e interior al patio de forma paralela

CUBIERTA VERDE:

La cubierta presenta multiples benefi cios, ya que retiene el agua de lluvia a través de las plantas, purifica el aire, reduce la temperatura ambiente, aumenta la biodiversidad, entre otros

189
COORDINACIÓNN 10

MEMORIA:

Luego de haber estudiado los diferentes subsistemas se propone estudiar uno de los sectores del edificio que contiene mayor can tidad de instalaciones para evitar interferencias e incoherencias tanto en los trazados de cañerías como instalación y ubicación de diversos sistemas. De esta manera se presenta una pieza axonométrica de un sector del edificio para comprobar dicha coordinación.

10
191

PROYECTO ESTRUCTURAL

El proyecto estructural, se compone de una grilla tridi mensional de pilares, vigas y losas prefabricadas orga nizados en un módulo de 7m x 7m, capaz de albergar el programa del centro de salud mental.

Los muros interiores y exteriores se componen de bloques de hormigón celular y están revestidos por diferentes capas que buscan cumplir con las aislaciones y barreras necesarias para responder al confort térmico y acústico en el interior de los locales.

A su vez, se busca que las terminaciones interiores, tanto de pavimentos como de muros, cumplan con los re querimientos del programa pero que generen un ambiente confortable y acogedor.

ACONDICIONAMIENTO SANITARIO

En el caso del abastecimiento sanitario, se trata de un sistema se encuentra conectado a la red de agua potable de OSE. El medidor se encuentra en un nicho en el parque exterior del edificio, dentro del cual está la llave de paso que cierra la entrada de agua al mismo.

Luego la red continua hacia los tanque se reserva de agua y luego se bombea hacia el nivel superior y se distribuye hacia las diferentes habitaciones y servicios. El sistema de desagüe se compone de tuberías que permiten la eva cuación de las aguas servidas y de lluvia del edificio.

ACONDICIONAMIENTO TÉRMICO Y VENTILACIÓN

Los locales utilizan un sistema de acondicionamiento ar tificial llamado VRV para alcanzar el confort térmico requerido por el usuario. El mismo está integrado por unidades exteriores que se conectan a diferentes unida des interiores y difusores de aire mediante ductos de chapa galvanizada que van suspendidos por cielorraso o a la vista.

INSTALACIÓN ELÉCTRICA

El edificio se abastece de energía eléctrica desde una subestación de ute ubicada en el subsuelo junto con una sala de tableros. Luego la instalación se distribuye ha cia tableros derivados segur requerimientos funcionales mediante bandejas portacables suspendidas o por cielo rraso.

Se cuenta con un grupo electrógeno como equipo de emer gencia en caso de cortarse la energía eléctrica que man tendrá la totalidad de la energía requerida por el pro grama.

REFERENCIAS

Abastecimiento agua fría

Abastecimiento agua caliente Desagüe secundaria Desagüe primaria Ventilación

Acondicionamiento térmico vrv Bandejas de eléctrica Luminarias

192
193

Luengo, S. (2019). Tesis Licenciatura en Trabajo Social. Salud mental en Uruguay: historia y marco legal.

Garcia, M. S. (2019). Tesis Licenciatura en Trabajo Social. La desinstitucionalización en el campo de la salud mental en Uru guay. Desafíos y realidades de una transición actual.

Porteiro , D. F. (2018). Presentación al directorio ley de salud mental Asse. Equipo de trabajo: Por UdelaR F.Med.: Dra. Sandra Romano Por ASSE: Dra. Magdalena García, Dr. Juan Triaca, Dra. Gabriela Lopez Mesa, Dra. Ma. Celia Barrios y Lic. Ps. Gabriela Novoa.

Gómez Saldaña, E. M. (2020). Efectos sensoriales de la arqui tectura para el tratamiento y rehabilitación de pacientes psi quiátricos en el Hospital Domingo Olavegoya-Jauja.

Torres Buelvas, : A. T. B. (2021). La arquitectura como agen te que condiciona la conducta en pacientes con enfermedades mentales. Universidad Católica de Colombia. Bogotá (Colombia) Facultad de Diseño, Programa de Arquitectura.

Becerra Verdugo, L. (2017). Arquitectura como herramienta te rapéutica en el campo de la salud mental Nuevas configuracio nes arquitectónicas para el paradigma actual de integración en psiquiatría. Universidad de Chile, Facultad de Arquitectura y Urbanismo.

Ley N° 19529 - Normativa de avisos legales. (2017, septiembre 19). Extraido el 12 de Marzo de 2022,de https://www.impo.com. uy/bases/leyes/19529-2017.

Mclaughlan, R., Lyon, C., & Jaskolska, D. (2021, diciembre 1). Architecture as change-agent? looking for innovation in Con temporary Forensic Psychiatric Hospital design. Medical Huma nities. Extraido el 17 de Marzo de 2022, de https://mh.bmj.com/ content/47/4/e11.

Muñoz, A. (2021, julio 6). Sobre el cumplimiento de la ley de salud mental: Tres largos años. la diaria. Extraido el 20 de Mar zo de 2022, de https://ladiaria.com.uy/salud/articulo/2020/8/ sobre-el-cumplimiento-de-la-ley-de-salud-mental-tres-largosanos/ Asse Avanza en la Atención de la Salud Mental: Quedó in augurada Casa Pando y Comenzaron Obras en el hospital pasteur.

ASSE. (2022, Febrero 14). Extraido el 1 de abril de 2022 April de https://www.asse.com.uy/contenido/ASSE-avanza-en-la-aten cion-de-la-Salud-Mental-Quedo-inaugurada-Casa-Pando-y-comenza ron-obras-en-el-Hospital-Pasteurr-13559

World Health Organization. (n.d.). Por Qué La Salud mental debe ser una prioridad Al Adoptar medidas relacionadas con el Cambio Climático. World Health Organization. Extraido el 1 de abril de 2022, de https://www.who.int/es/news/item/03-06-2022-whymental-health-is-a-priority-for-action-on-climate-change#:~: text=La%20OMS%20define%20la%20salud,aportar%20algo%20a%20su%20 comunidad%C2%BB.

Salud mental. Ministerio de Salud Pública. (n.d.). Extraido el 5 de abril de 2022, de https://www.gub.uy/ministerio-salud-pu blica/tematica/salud-mental

Parlamento del Uruguay. (2022, Diciembre 2). Parlamento del Uruguay. Retrieved March 15, 2022, from https://parlamento.gub. uy/

BIBLIOGRAFÍA 196

AGRADECIMIENTOS

En diciembre de 2022 finaliza un ciclo luego de 5 años de carrera, un año de intensidad de trabajo y esfuerzo compartido. Consideramos necesario dedicar un espacio para agradecer a varias personas que desde distintos lugares fueron fundamentales para el desarrollo de este trabajo.

En primer lugar, a nuestras familias, amigos y compañeros por el apoyo incondicional y el cariño durante esta etapa de formación profesional.

En particular a La Dra en psiquiatría Veronica Santos por la guía teórica. A la Arq María Acuña por su asesoría técnica en cuanto al diseño de las distintas instalaciones y dibujo técnico.

Y por último a nuestros docentes por la motivación permanente, orientación y enseñanza en estos años.

Muchas gracias a todos, Josefina y Lucía.

“Hacer más humana la arquitectura significa ha cer mejor arquitectura y conseguir un funciona lismo mucho más amplio que el puramente técnico”

(Alvar Aalto)

Turn static files into dynamic content formats.

Create a flipbook
Issuu converts static files into: digital portfolios, online yearbooks, online catalogs, digital photo albums and more. Sign up and create your flipbook.