LARCH& LU DESIGN.
PORTAFOLIO
Recopilaciónde
Diseños
LucianaAlvarado Briceño
EstudiantedeArquitectura 9noSemestre

FormaciónAcadémica
LicenciaturaenArquitectura
UniversidadAnáhuac
2020-Presente(9noSemestre)
PublicidadIMinor
UniversidadAnáhuac
2023-Presente
ManejodeSoftwares
ExperienciaLaboral
MFAArquitectosI2022-2023
Dibujante
LuArch&DesignI2023-2024
Independiente
Idiomas
EspañolNativo
InglesProfesional
FrancesBásico







04 05 MFAARQUITECTOS



NIDPUERTOCANCÚN
PROYECTOEJECUTIVOOFICINAS
Año:2024
Ubicación:Blvd.Kukulcan,PuertoJuarez,ZonaHotelera,77500Cancún,Q.R.,México
Tipodeedificación:Comercial
Se proyecta una oficina en NID Puerto Cancún que fusiona funcionalidad, diseño contemporáneo y confort, creando un espacio laboral que promueve la productividad y el bienestar. Este proyecto busca ofrecer un entorno de trabajo moderno, adaptable y eficiente,sincomprometerlaestéticayelequilibrioconelentorno.
Laoficinasedistribuyeentresáreasprincipales:eláreadetrabajo,eláreasocialyelárea privada. El área de trabajo está diseñada para maximizar la eficiencia operativa, con espacios abiertos que facilitan la colaboración y la comunicación entre los equipos, mientras que las oficinas privadas y salas de reuniones ofrecen un ambiente tranquilo paratareasquerequierenconcentración.

DISEÑO
El diseño de esta oficina en NID Puerto Cancún no solo responde a las necesidades operativas de una empresamoderna,sinoquetambién creaunespacioqueinspira,motivay mejora la calidad de vida de quienes lohabitan

MATERIALES
Los materiales seleccionados, como la madera, el vidrio y el metal, se combinan para crear un equilibrio entre lo industrial y lo acogedor La madera aporta una sensación de calidez y naturalidad, mientras que el vidrio y el metal añaden modernidad y transparencia, fomentando un entorno de trabajo colaborativoydinámico

MOBILIARIO
El mobiliario ha sido cuidadosamente elegido para ser ergonómico y funcional, asegurando el confort de los empleados durante largas jornadas laborales Además, se han incorporado elementos de diseño biofílico, como plantas y texturas naturales, que mejoran la calidad del aire y el bienestar general













EDIFICIODEUSOSMIXTOS
PROYECTOARQUITECTÓNICO
Año:2022
Ubicación:QuintaAvenida,PlayadelCarmen.
Tipodeedificación:Habitacional/Comercial
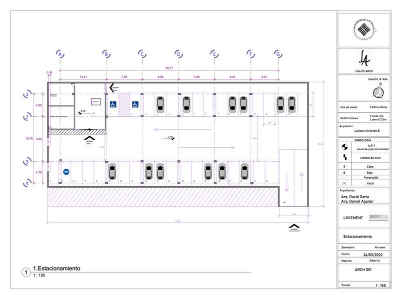
LOGEMENT es un edificio de uso mixto estratégicamente ubicado en Playa del Carmen, justoalladodelafamosaQuintaAvenida,unadelaszonasmásturísticasyvibrantesdela Riviera Maya. Este complejo ofrece una experiencia de vida única al combinar espacios residencialesconopcionescomerciales,todoenunsololugar.
El edificio cuenta con estacionamientos subterráneos, brindando seguridad y comodidad a los residentes y visitantes. En la planta baja, alberga una variedad de locales comerciales que incluyen boutiques, restaurantes y otros servicios, lo que crea un entorno dinámicoyconveniente.
Losdepartamentos,disponiblesenconfiguracionesde2y3habitaciones,estándiseñados con un enfoque en la comodidad y el estilo moderno. Además, el Roof Top es uno de los principalesatractivosdeledificio,ofreciendounapiscinainfinityconimpresionantesvistas almarCaribe,unáreadeBBQparareunionessociales,yunskybaridealparadisfrutardel atardecer.
LOGEMENT también cuenta con una amplia gama de amenidades, como un gimnasio totalmente equipado, una piscina para niños, un spa para relajarse, un área de yoga, una sala de videojuegos, un lounge ejecutivo para reuniones de negocios, y varias áreas sociales para eventos. Este edificio está diseñado para ofrecer una vida de lujo y comodidad,perfectamenteintegradaconlabellezayculturadelaRivieraMaya.













CENTROCULTURAL
PROYECTOARQUITECTÓNICO
Año:2022
Ubicación:ResidencialMarinaCondos.Blvd.Kukulcan-Av.PuertoCancún,N.Interior303.
Tipodeedificación:Habitacional
Eyes of the World es un centro cultural diseñado para celebrar y representar las diversas culturas del mundo, con un enfoque especial en la cultura mexicana como su principal atractivo. Este centro busca ser un punto de encuentro global, donde visitantes de todas las nacionalidades puedan sumergirse en una experiencia cultural rica y variada, destacandolariquezaydiversidaddeMéxicocomounpuentehaciaelrestodelmundo.
Se eligió este enfoque internacional debido a que Cancún es un destino turístico de renombremundialqueatraeapersonasdetodoslosrinconesdelplaneta.Cancúnnosolo es un referente en el ámbito turístico global, sino que también sirve como una puerta de entrada para quienes desean conocer y apreciar la cultura mexicana. Este centro cultural tiene como objetivo ser un punto de convergencia para diversas culturas, ofreciendo a los visitantes una visión amplia y enriquecedora que fomente el entendimiento y la apreciaciónmutuaentrelospueblos.



DISTRIBUCIÓNDEESPACIOS EYESOFTHEWORLD DISEÑO
El centro cuenta con espacios abiertos para eventos, galerías de arte, salas de proyección multimedia, y áreas interactivas donde los visitantes pueden participarenactividadesculturales.

El corazón del centro está dedicado a la cultura mexicana, con una amplia exposición que destaca su arte, historia, gastronomía y tradiciones. Este espacio central actúa como un núcleo que conecta las demás áreas temáticas, simbolizando el papel de México comounpuentecultural
El centro cultural se organiza en áreas temáticas que representan diferentes culturas del mundo, cada una con su propio espacio dedicado, permitiendo a los visitantes explorar y experimentar la riqueza cultural de diversasregiones.








PROYECTOARQUITECTÓNICO
Año:2023
Ubicación:ResidencialMarinaCondos.Blvd.Kukulcan-Av.PuertoCancún,N.Interior303.
Tipodeedificación:Habitacional
El proyecto arquitectónico para el techo de la terraza en Residencial Marina Condos se diseñó con el objetivo de crear un espacio multifuncional, cómodo y estéticamente agradable,quesirvieracomounlugardeesparcimientoyrelajaciónparalosresidentes.
Se diseñó un techo ligero y moderno en la terraza, utilizando acero y deck de madera. Los maceteros, distribuidos a lo largo del perímetro, contienen plantas autóctonas de bajo mantenimiento. Se instaló un jacuzzi en una esquina, integrado al paisaje con revestimientos de piedra natural. El área de comedor, ubicada bajo el techo, cuenta con muebles resistentes al clima marino e iluminación suave. También se incluyó un área de bar con barra de mármol, y una zona de sala con sofás cómodos y un proyector con sistemadesonidoenvolvente.


DISTRIBUCIÓNDEESPACIOS TECHUMBRETERRAZA
La terraza se organiza en cuatro zonas principales: un jacuzzi en la esquina, una sala exterior central que conecta todas las áreas, un comedor y bar alineados a la derecha, y maceteros perimetrales queañadenprivacidad Lasáreasde apoyo (recámara, bodega, baño) están al sur, separadas de las zonas sociales.
El diseño de la terraza utiliza un techo con paneles rectangulares simétricos que permiten ajustar la luz natural. El perímetro está rodeado de vegetación, añadiendo privacidad y un toque natural al espacio

ISOMÉTRICOS
Las vistas isométricas muestran una terraza con pérgolas de madera, áreas de bar, jacuzzi y sala exterior, creando un espacio moderno y bien integrado para el disfrute al aire libre El diseño incluye vegetación que aporta un ambiente natural y frescoalespacio.





RESTAURANTETEMÁTICO
PROYECTOARQUITECTÓNICO
Año:2023
Ubicación:MalecónTajamar,Av.Rbla.Fonatur,ZonaHotelera,77500Cancún,Q.R.
Tipodeedificación:Comercial
ElCentoGastronómicoTemáticoCenttaesunproyectoinnovadorquebuscaofreceralos visitantes una experiencia culinaria única en el pintoresco entorno de la laguna Nichupté, específicamente en el Malecón Tajamar. Este enclave estratégico brinda vistas espectaculares de la laguna, creando un ambiente relajado y atractivo para locales y turistasporigual.
El objetivo general del Centro Gastronómico Temático es establecerse como un destino culinario destacado en el Malecón Tajamar, ofreciendo una experiencia gastronómica únicaqueresalteladiversidaddesaboreslocaleseinternacionales,mientrasaprovechala ubicación privilegiada frente a la laguna Nichupté para crear un ambiente distintivo y atractivoparalocalesyturistas.

RESTAURANTE

DISEÑO

MATERIALES
CENTTA es un innovador centro gastronómico temático ubicado en el Malecón Tajamar, que ofrece una experiencia culinaria única. Con restaurantes especializados, diseño arquitectónico inspirado en la cultura local y vistas panorámicas a lalagunaNichupté.
El diseño se inspira en la vegetación, sus columnas en forma de árbol junto a su ramificación principal en el medio nos dan una sensación de paz y glamour Fucionando la elegancia y la naturaleza, la tranquilidad que nos da la laguna y susincreiblesvistas.
La paleta de materiales es acorde al contexto para generar mayores sensaciones, de igual manera se busca que sean materiales de la región para evitar el transporte de materiales internacionales y evitemos dañar al medio ambiente conexportaciónyasílaconstrucción seamuchomáseficiente.
LáminaProyectoArquitectónico
SMZA06I SMZA06ICENTTA CENTTA
DESCRIPCIÓNDELPROYECTO

FORTALEZAS
1Personassientearragoporasupermanzana06
2Esunhitourbano
3Tenebuenosrematesvisuales
4Unalocaizacónmuytranstada
OPORTUNIDADES
1Elproyectotendrácontnuidad
2Vncuacónconlazona
3Pazasdeacceso
4Espacosfuncionales
5Abundanciadelavegetacióndearegón
6Espacoabiertoydeusopúbico
7Aportadiferentesrematesvsuaes
8Generarecorrdosconungranenrequesimento
9Restructuracóndelazona






E CentoGastronómcoTemáticoCenttaes unproyectoinnovadorquebuscaofreceraos vstantesunaexperiencacunaraúnicaene pntoresco entorno de la laguna Nichupté específicamenteene MalecónTaamar Este enclave estratégco brnda vistas espectaculares de la aguna, creando un ambentereajadoyatractvoparalocaesy turstasporigua
OBJETIVOGENERAL

Elobetvogenera de CentroGastronómico Temático es estabecerse como un destno cuinario destacado en e Maecón Taamar, ofreciendo una experenca gastronómca única que resate a dversdad de sabores locaeseinternacionales mientrasaprovecha la ubicacón prvlegiada frente a la laguna Nchuptéparacrearunambientedistntivoy atractvoparaocalesyturstas
OBJETIVOPRINCIPAL
CENTTAesunnnovadorcentrogastronómco temátcoubcadoenelMaecónTajamar,que ofrece una experenca cuinaria única Con restaurantes especaizados dseño arqutectóncoinspradoenlacultura oca y vstaspanorámcasalaagunaNchupté,busca convertrse en e referente gastronómco destacado, fusonando autenticidad diversdad y un entorno encantador para atraeraocalesyturstasporgual


Espacofunconakl10




TIPOSDEUSUARIO



PALETADEMATERIALES
La paeta de materales es acorde al contexto para generar mayores sensaciones,de gua manerasebusca queseanmateraesde aregiónpara evitar el transporte de materales internacionales y evtemos dañar al medoambienteconexportaciónyasíla construccónseamuchomásefcente








3.2ProgramaArquitóctonico
ÁreasInterioresRestaurante PROGRAMAARQUITECTÓNICORESTAURANTETEMÁTICO
ÁreasExteriores-Estacionamiento
ÁreaTotal
32ProgramaArquitóctonico
PROGRAMAARQUITECTÓNICORESTAURANTETEMÁTICO
ÁreasdeAmenidadesyEsparcimiento ÁreaTotal ÁreasdeServicio
ÁreaTotal
lucianalvaarado@gmailcom +529984776854/+593997213998