Portafolio - GRAFICA DIGITAL

Page 1

PORTAFOLIO 2022 -2 GRÁFICA DIGITAL FACULTAD DE INGENIERIA Y ARQUITECTURA CARRERA DE ARQUITECTURA Área de Comunicaciones CICLO 2022 -2 P R O F E S O R A S : C l a u d i a A l e j a n d r a S a n c h e z G r a d o s F i o r e l l a S i l v a n a A r i s p e S e v i l l a LUCIANA NASHIRA ARANDA OCSAS 20210152

Existen tres respuestas a un diseño: si, no y ¡wow! Wow es a la que hay que aspirar.

S 1

CG1 CG3 CG7

Análisis Entrega 1. 2.

S 1

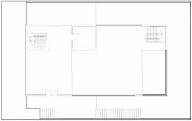
PLANIMETRÍA AMBIENTADA CG1 - CG3-CG7 Análisis Entrega 1. 2.

C O
N T E N I D O S
FOTOMONTAJE

S 2

CG1 CG3 CG5 CG7

Análisis Entrega 1. 2.

S 2

DIAGRAMAS CG1 CG3 CG5 CG7 Análisis Entrega 1. 2.

PANEL
PLANIMETRÍA AMBIENTADA CG1 - CG3-CG7 S 1 p.08 p.12 p.16 Análisis referente Planta Corte

ANÁLISIS DE REFERENTE Artista PROCESO

Este ejercicio de introducción al curso tenía que escoger un artista y realizar el análisis de una de una de sus obras. En este caso, elegí a la artista Tatiana Bilboa y lo relacione con la propuesta arquitectónica "The art rendezvous". El estilo de Bilbao se caracteriza por la ausencia de experimentación con las formas geométricas y los materiales

ANÁLISIS

Se trató de buscar un proyecto que se pareciera a la obra del artista escogida sobretodo en el color, atmósfera , textura y ambientación .

aEn la obra del artista se aprecian collages en las que resalta la vegetación y la implementación de las estructuras arquitectónicas. Debido a esto y en las diferentes formas de la composición siempre logra resaltar algo diferente pero sin que destaque por completo de todo lo demás b

En el proyecto también se puede ver un poco de vegetación y la distribución de los espacios.

Este análisis fue sumamente importante y de gran ayuda para poder entender los aspectos que tengo que tener en cuenta para poder componer un proyecto arquitectónico o una obra.

ANÁLISIS DE REFERENTE

Película PROCESO

En este segundo ejercicio tenía que escoger una película y realizar el análisis de esta. En este caso, elegí la película Spider man no way home y lo relacione con la propuesta arquitectónica "Royal theatre".

ANÁLISIS

Se trató de buscar un proyecto que se pareciera a la película escogida sobretodo en el color, atmósfera , textura y ambientación .

a

En la película se aprecia mucho los colores que hacen un buen contraste resaltando las partes importantes en las diferentes escenas.

b

En el proyecto también se puede ver un poco el uso de los colores al hacer un contraste en las partes más importantes.

Este análisis también me ayudo a entender mejor como hacer un análisis y como componer un proyecto arquitectónico o una película. Además, de como encontrar varias diferencias y semejanzas al hacer un análisis.

PLANIMETRIA AMBIENTADA Planta

Residencia 900 m2

Playa los pulpos, Perú

PROCESO

En este primero ejercicio consistió en la ambientación de la planta de un proyecto realizado el ciclo pasado. El programa Photoshop fue el que utilice para realizar este trabajo.

madera oscura

tela

Se utilizaron varias texturas para los ambientes y para el mobiliario

Para el mobiliario de los sillones de la mayoría de los espacios, se utilizaron una tela color crema casi blanca más neutral que hace contraste con las textura del piso

El primer paso fue exportar las líneas base en autocad Se quito el mobiliario, hatch y anotaciones complementarias que serán luego agregadas en el mismo documento de photoshop. tierra vidrio

Para el mobiliario de las mesas y muebles se utilizó una textura de madera oscura que combinará con los colores de los otros mobiliares.

TIPOLOGÍA ÁREA UBICACIÓN 1 Preparación del archivo 2 Texturas y mobiliario arena madera clara concreto
porcelanato

Se agregaron plantas en la parte de adentro de la vivienda que le dio vida y ayudo a darle un poco de realismo al proyecto

Asimismo, se fue cambiando la iluminación y la opacidad para que se pueda dar importancia a las profundidades y se entienda la iluminación.

También se añadieron monigotes en algunas partes del interior de la vivienda. Con esto se ayuda a que la escala del proyecto se entienda mejor.

Primero, se agregaron texturas en los ambientes de la residencia.

Se utilizo una gama de colores marrones y grises con algunos tonos más fríos que otros para el proyecto

Luego, se agregó el mobiliario que utilizó texturas que se complementaban con las texturas de los ambientes

Asimismo, se agregaron arboles y personas en distintas partes del proyecto para que se entienda la escala

Por último, se agregaron sombras tanto al interior como al exterior del proyecto para darle realismo y darle dimension

Además, se agregó las cotas, los ejes, niveles de piso y los nombres de los ambientes para un mayor entendimiento de la planta

3 4
Evolución
CG1 - CG3-CG7

PLANIMETRIA AMBIENTADA Corte

Residencia 900 m2 Playa los pulpos, Perú

PROCESO

En este primero ejercicio consistió en la ambientación del corte de un proyecto realizado el ciclo pasado. El programa Photoshop fue el que utilice para realizar este trabajo.

piedra

tierra vidrio

El primer paso fue exportar las líneas base en autocad Se quito el mobiliario, hatch y anotaciones complementarias que serán luego agregadas en el mismo documento de photoshop.

cielo madera clara

cemento

Para el mobiliario de los sillones de la mayoría de los espacios, se utilizaron una tela color crema casi blanca más neutral que hace contraste con las textura del piso

tela

madera oscura cuero

Se utilizaron varias texturas para los ambientes y para el mobiliario.

Para el mobiliario del escritorio se utilizo madera y para la silla se utilizo cuero negro. Estos hacen contraste entre si y con la textura de la pared.

TIPOLOGÍA ÁREA UBICACIÓN 1 Preparación del archivo 2 Texturas y mobiliario

Ambientación

Se agregaron plantas en la parte exterior de la vivienda que le dio vida y ayudo a darle un poco de realismo al proyecto

Asimismo, se fue cambiando la iluminación y la opacidad para que se pueda dar importancia a las profundidades y se entienda la iluminación.

También se añadieron monigotes en algunas partes del interior de la vivienda. Con esto se ayuda a que la escala del proyecto se entienda mejor.

Evolución

Primero, se agregaron texturas en los ambientes de la residencia.

Se utilizo una gama de colores marrones y grises con algunos tonos más fríos que otros para el proyecto

Luego, se agregó el mobiliario que utilizó texturas que se complementaban con las texturas de los ambientes

Asimismo, se agregaron arboles y personas en distintas partes del proyecto para que se entienda la escala

Por último, se agregaron sombras tanto al interior como al exterior del proyecto para darle realismo y darle dimension

Además, se agregó las cotas, los ejes, niveles de piso y los nombres de los ambientes para un mayor entendimiento de la planta

3
4 CG1 - CG3-CG7
FOTOMONTAJE CG1 - CG3-CG7 S 1 p.22 p.24 Análisis referente Fotomontaje

ANÁLISIS DE REFERENTE Fotomontaje

PROCESO

Este análisis de referente es de suma importancia porque nos permite entender cómo se desarrollan las distintas formas de composición de imagen: regla de tercios, peso visual, zona áurea y ley del horizonte

ANÁLISIS

Se trató de buscar un proyecto que se pareciera a mi propuesta de planimetría ambientada sobre todo los colores para poder tener un referente de composición.

aFue importante analizar el peso visual teniendo en cuenta la regla de tercios Se puede apreciar que destacan partes importantes como la sombra en la fachada.

b

En la composición se pudo analizar la ley del horizonte También es que se distinguen gran cantidad de planos, lo que da una sensación real de profundidad y amplitud.

Este análisis me ayudo un montón para entender los aspectos que tengo que tomar en cuenta para generar una composición coherente

CG1 - CG3-CG7

FOTOMONTAJE TRABAJO

Residencia 900 m2 Playa los pulpos, Perú

PROCESO

En este primero ejercicio consistió en la ambientación del corte de un proyecto realizado el ciclo pasado. El programa Photoshop fue el que utilice para realizar este trabajo.

En

El primer paso fue exportar el render de revit para poder ayudarnos con la perspectiva y marcar la vista final que tendría el fotomontaje

Se agregaron aves en el cielo, ya que en la playa siempre se ven en las platas y también se agregaron personas en distintas partes de contexto

TIPOLOGÍA ÁREA UBICACIÓN 1 Preparación del archivo 2 Texturas y ambientación
cielo mar cemento
esta etapa se agregaron texturas similares a las del corte y la planta ambientada montaña vidrio arena

Cuadrar la vista del fotomontaje fue uno de los pasos más importantes de este proyecto. Es por eso que se tomó en cuenta la teoría de la regla de tercios y la ley del horizonte

Primero, se agregaron el cielo, la arena y el mar Luego, se añadieron texturas a ambos que siguieron el estilo planteado.

Se utilizo una gama de colores cálidos con fríos para el proyecto Luego, se agregaron los elementos que ambientaran el contexto de la vivienda Asimismo, se agregaron aves y personas en distintas partes del proyecto para que se entienda la escala

Por último, se agregaron sombras tanto al interior como al exterior del proyecto para darle realismo y darle dimension

Además, se agregaron efectos para poder corregir algunas fallas en el color y el tono final del fotomontaje

3
4
Composición
Evolución
CG1 - CG3-CG7
DIAGRAMAS CG1 - CG3-CG5-CG7 S 2 p.30 p.32 Análisis referente Diagramas

ANÁLISIS DE REFERENTE Diagramas

PROCESO

Realizar este análisis de referente me permitió diferenciar que diagrama es adecuado usar dependiendo de la información que se desea expresar

ANÁLISIS

Se trató de buscar un diagrama con estilos y colores que que sean parecidos con los de mi propuesta Asimismo, se buscaron algunos diagramas que informaran con gráficos simples y claros

aEn el diagram volumétrico escogido se puede ver la manera en que decidieron comunicar el emplazamiento y forma del proyecto. En esta se utilizaron composiciones solidas para que se entienda mejor las partes que conforman el proyecto.

b

En el diagrama programático se observa el uso de la axonometria explotada como forma de comunicar cada piso del proyecto

Este análisis me sirvió un montón para terminar de comprender la importancia de realizar un diagrama que comunique todas las partes esenciales del proyecto, pero de una manera clara y ordenada.

CG1 - CG3-CG7

DIAGRAMAS DIAGRAMA PROGRAMÁTICO

Residencia 900 m2

Playa los pulpos, Perú

PROCESO

Este ejercicio fue de suma importancia realizar debido a que los diagramas son una forma muy fácil de hacer que un cliente comprenda lo planteado

Modelo básico en isometría

Este modelo isométrico lo realice en revit y luego lo pase a photoshop para arreglar algunos detalles que no se apreciaban bien. Además, como es proyecto realizado en el curso de taller el ciclo anterior, ya tenía bastante información en isometría de la vivienda

1 Tracé los pisos y muros para que resalte más, ya que es lo principal de este diagrama 2 Dibuje las lines punteadas que sirven de guía como unión de los niveles 3 Arregle algunas mamparas y puertas que no se notaban mucho.

Líneas para unir iconos

Una vez que logre exportar el archivo a illustrator, empece por poner la información correspondiente que ayuda a identificar los distintos espacios y los niveles

Asimismo, agregué iconos para facilitar la comprensión del diagrama, Estos ayudan a reconocer el ambiente sin necesidad de poner texto

Por último, complete el gráfico con líneas para unir las nomenclaturas e iconos con las partes señaladas, y para enlazar los distintos niveles.

ÁREA
TIPOLOGÍA
UBICACIÓN 1 2 Información
iconos

Siguiendo con lo planteado hasta el momento en cuanto al estilo, decidí trabajar con colores sólidos para analizar y diferenciar los espacios. Los colores usados iban acorde a la paleta de colores usados en la planimetría y fotomontaje

También, organice los ambientes por áreas iconos

espacios

Líneas de union de niveles

número de nivel

CG1 - CG3-CG7
ambientes
PANEL S 2 p.38 p.40 Análisis referente Panel CG1 - CG3-CG5-CG7

ANÁLISIS DE REFERENTE Panel

PROCESO

Poder analizar un panel fue un poco complicado pero esencial para la etapa final del curso.

Al ser el último análisis y tema del ciclo se tomó en cuenta todo lo aprendido y se pudo analizar con mayo detalle las partes más importantes de la composición

ANÁLISIS

Para este análisis use el proyecto que analice en los diagramas

b

aEl mayor peso visual recae en el diagrama programático del proyecto Es coherente que este sea el más llamativo, pues es el que más comunica de la mejor forma las partes del proyecto

El segundo elemento con mayor peso visual en la composición es la vista del proyecto. Se encuentra en la posición adecuada, sin embargo, genera un contraste muy marcado.

Este análisis me fue sumamente útil porque pude darme cuenta de todas las variables que deben ser analizadas con anterioridad para realizar un panel coherente

CG1 - CG3-CG7

PLANIMETRIA AMBIENTADA Panel

Residencia 900 m2 Playa los pulpos, Perú

PROCESO

Creación de la grilla

b

Este ejercicio final sin duda fue complejo, pues se tuvieron que tomar en cuenta todos los aprendizajes del ciclo para poder realizarlo Al terminar el proyecto puedo decir que me gusto realizar el panel, pues en la carrera es necesario tener una lámina que resuma el proyecto o trabajo realizado Para trabajar el panel, debíamos empezar por crear una grilla que nos ayudaría a componer de manera equitativa la lámina a a b b

b c c c c d d d

a Información básica de la arquitectura: ficha técnica, descripción y localización

b Diagramas: programa, volumétrico y contexto

c Vistas: para la entrega nos pidieron dos o tres vistas del proyecto

d Peso visual: planimetría ambientada

Para la elaboración del panel, en primer lugar, se tenían que corregir los diagramas, fotomontajes y planimetrías ambientadas entregadas anteriormente

Teniendo esto en cuenta, se empleó la vista externa arreglada como elementos de mayor peso visual Esta esta colocada en la parte media baja de la composición para que el cielo se vaya difuminando con blanco y sirva como fondo.

ÁREA
TIPOLOGÍA
UBICACIÓN 1 2 Fondo

Organización 4

Complementos

El siguiente paso fue organizar el resto de información que ya teníamos : planimetría, diagramas, etc

Como la lectura que tenemos es de izquierda a derecha y de arriba abajo, lo primero que se colocaron fueron los elementos descriptivos de la vivienda

Decide poner el fotomontaje como la vista interior en la parte superior derecha porque le contraste que generaba sobre el fondo comparado con la planimetría era mínimo.

Colocar las plantas y el corte en la parte inferior con la arena cortada hacia el exterior del panel, ayudo a cerrar la imagen que se estaba componiendo

Las vistas interiores fueron sacadas de revit y arregladas en Photoshop. Además, arreglé un poco la iluminación de la vivienda.

La localización se trabajo a líneas con un poco de colores sólidos para representar el agua

3
CG1 - CG3-CG7
a b

REFLEXIÓN FINAL DEL CURSO

El curso de gráfica digital sin duda ha sido uno de los cursos que más llamó mi atención, ya que es un curso donde poner en marcha toda tu creatividad. No solo me enseñaron nuevos programas que me van a servir a lo largo de mi carrera, sino también a representar de una manera gráfica adecuada a mis proyectos

Recién este ciclo aprendi a usar Photoshop e illustrator, al principio me parecía un poco complicado de usarlo pero mientras más los usaba más iba aprendiendo hasta lo termine dominando por completo. En la primera parte del ciclo me enseñaron cómo usar Photoshop, en el cual realice toda mi planimetría y también me ayudo a limpiar algunas imperfecciones de mi trabajo

Luego en la segunda parte del curso pude obtener conocimientos sobre el programa de illustrator, el cual considero muy importante, ya que con este realizamos los distintos tipos de diagramas y el trabajo final del panel.

INFORMACIÓN DEL CURSO

Nombre del curso

Grafica digital Docentes

l. Sumilla del curso

Es una asignatura teórico práctica donde se desarrollarán formatos y estrategias que potencien la presentación de conceptos y propuestas arquitectónicas El curso está dirigido a situar y complementar los conocimientos de representación arquitectónica asistida por herramientas digitales, de tal manera que se desarrollen habilidades gráficas útiles para la presentación y comunicación de anteproyectos y propuestas arquitectónicas

ll. Objetivo general

Suministrar a los alumnos un instrumental conceptual y operativo que permita expresar conceptos y planteamientos de diseño con creatividad, expresividad, coherencia, síntesis e impacto visual.

lll. Objetivos específicos

Desarrollar criterios de composición gráfica para la presentación arquitectónica

Explotar diversas herramientas digitales para la expresión de propuestas arquitectónicas y la exposición de ideas y conceptos asociados a estas propuestas

Desarrollar habilidades de diseño gráfico que permitan presentar las propuestas arquitectónicas considerando la creatividad de la presentación , la coherencia e impacto visual.

1 2 3

Para mí ser arquitecta es una forma de utilizar la creatividad y poder lograr cosas extraordinarias Además, me apasiona el arte en todos sus aspectos y se que en esta carrera puedo canalizar esa pasión hacia objetivos profesionas.

C O
T A C T O
958 536 019
R
F I L E
LUCIANA NASHIRA ARANDA OCSAS
N
Ca. San Sebastian 174 urb. El sol de Ła Molina, Lima 20210152@ULIMA.EDU.PE
P
O
EDUCACIÓN 2008 - 2013 ESTUDIANTE DE ARQUITECTURA 2014 - 2020 2021 Actualidad CV Colegio Villa Maria Miraflores Colegio Villa Maria La Planicie Universidad de Lima IDIOMAS Inglés Español INTERESES Dibujar y pintar - Fotografía Viajar Tenis PROGRAMAS Adobe Ilustrator Adobe Photoshop imovie Autocad Revit

Turn static files into dynamic content formats.

Create a flipbook
Issuu converts static files into: digital portfolios, online yearbooks, online catalogs, digital photo albums and more. Sign up and create your flipbook.
Portafolio - GRAFICA DIGITAL by Luciana Nashira Aranda Ocsas - Issuu