Portafolio_Lucía Álvarez

Page 1


Claudia Lucía Álvarez Bernal

pág.2-9 Hoja de vida pág.1 Centro tecnológico comunitario pág.10-17 Centro corporal pág.18-21 Concurso ARKsite pág.22-25 Proyecto residencial pág.26-28

Como estudiante, adquirí sólidas bases teóricas, conceptuales, analíticas y prácticas en el diseño de soluciones arquitectónicas, urbanas y paisajísticas a diversas escalas. Mi formación también incluyó el desarrollo de sistemas para plantear proyectos de manera eficiente y colaborativa en equipos de trabajo, con un enfoque en el diseño arquitectónico. Además, he cultivado habilidades como el trabajo en equipo, la comunicación asertiva, el manejo efectivo de relaciones interpersonales, la resolución de problemas, el análisis y la argumentación y la atención a los detalles. Mis intereses se centran en el desarrollo de conceptos innovadores, el diseño interior y de mobiliario, las remodelaciones arquitectónicas, el paisajismo y la arquitectura escolar.

Colegio Corazonista de Bogotá 2005 - 2023 Primaria y secundaria

Universidad Nacional de Colombia - Sede Bogotá 2018 - 2023 Pregrado de Arquitectura Concurso Site Bathhouse ARKXSITE 2022. Concurso de ideas para el diseño de una casa de baños en la Fortaleza de Milreu en Ericeira, Portugal.

Participaciones y reconocimientos

Salón de octubre - Universidad Nacional de Colombia 2019. Reconocimiento al mejor proyecto de Taller III. Proyecto de vivienda y comercio. Escalar Veinte 18 Febrero - Agosto 2024. Practicante y Arquitecta Junior Apoyo en campos de dotación, paisajismo, edición fotográfica y audiovisual, modelado y planimetría.

David Delgado Arquitectos Noviembre - Febrero 2025. Arquitecta BIM Junior

Proyecto “Diseño de envolventes de fachada del Proyecto Metro línea 1, Bogotá D. C” y propuesta de diseño de espacio público. Diseño, mdelado y producción de planimetría.

Proyecto residencial - Diseño de interiores Diseño de remodelación para apartamento en obra gris. Diseño, modelado y producción de planimetría.

Español Nativo

Arq. Jorge Andrés Álvarez Arq, Mateo Soto

Inglés B1

Arq. Laura Echavarría Arq. Francisco Angulo

Revit Rhinoceros 3D Grasshopper
Modelado

Fragmentación del límite en la infraestructura escolar

Trabajo de grado

Énfasis en proyecto arquitectónico

Universidad Nacional de Colombia

Director: Leonardo Álvarez

Ubicación:

Localidad Bosa, Bogotá D.C., Colombia

Año: 2023

El proyecto consiste en una propuesta arquitectónica de infraestructura escolar, parque y CEFE (Centro de felicidad), Este surge como respuesta a los impactos negativos de la arquitectura educativa estandar en la actualidad que presenta poblemáticas a diferentes escalas para la ciudad y quienes habitan el proyecto, los estudiantes.

La infraestructura escolar actual estandar principalmente la pública, que esta limitada a temas presupuestales y a la normativa genera diferentes problemáticas para los estudiantes y ciudadanos. Estos son: Monofuncionalidad Lo colegios no se plantean inicialmente como edificios híbridos o mixtos donde pueda haber distintos programas y usos, esto ocasiona que el proyecto sea inactivo en rangos horarios extensos y se pierda la opción de llevar acabo diferentes actividades sociales, colectivas, urbanas, deportivas, comunitarias, entre otras que la misma infraestructura puede posibilitar. Segregación de usos y usuarios Genera reducidas formas de habitar los espacios y por su arquitectura rígida y estricta. Reducidas tipologías Están principalmente enfocadas a la funcionalidad, economía y control de los estudiantes, sin propiciar otras dinámicas que enriquezcan la vida escolar. Niega la ciudad y su entorno próximo Esta arquitectura no suele brindar espacios que enriquezcan las actividades urbanas y comunitarias.

Programa

Caracterización del programa

Fragmentación del límite en distintos niveles

Educativo-Comunitario Incluir programa comunitario (cultural y deportivo).

Incorporaciónde componentenatural

Educativo-Urbano Construcción de seres sociales.

Piezas urbanas

Extractos urbanos en Bogotá

El proyecto está ubicado en el Parque Villa de Río en la localidad de Bosa en Bogotá, esta ubicación parte del mappeo de la ciudad en tres aspectos, Equipamientos culturales, deportivos y principalmete, el análisis de las zonas con mayor demanda educativa de la ciudad. Tras este mapeo se puede concluir que Bosa es la loclidad con mayor desproporción sn cuando a oferta y demanda de insfraestructura educativa pública. Así mismo las zonas de la ciudad con mayor concentración de áreas culturales y comunitarias es el sector central y hacia el oeste y sus alrededores.

Campo de estudio

Mapping

Sector Bosa - Villa del río

Comunitario cultural

Naturales

Educativos

Culturales

Demanda educativa Equipamientos deportivos metropolitanos Zonas culturales metropolitanas

Acciones urbanas

Perfiles urbanos Continuidades peatonales Aforos Vacíos

Naturales

Educativos Culturales

Comunitario deportivo

Superficie Aforo

Tunjuelo 1. Salón comunal Bolita Sector II 2. Aulas deporticas 3. Parque el cuadro 4. Gimnasio Santa Rocío 5. Liceo Prescolar Abeja Maya 6.

Tipología de aula

La aulas del colegio son modulos planteados según las necesidades y diferentes formas de aprendizaje y métodos de enseñanza, constan de 4 tipologías

Aulas flexibles para grados de primero a once,

Aulas rígidas para actividades qe requieren maquinaria y mobiliarios específicos,

Aulas adaptables que funcionan como aulas múltiples con áreas de extensión al exterior,

Aulas para preescolar, estas aulas constan de espacios de menor escala y con máyor flexibilidad para actividades lúdicas.

Vista de jardín con dobe altura
Vista pasaje exterior Circulación colegio
Jardines perimetrales
Aulas
Circulación
Zona de expansión
Aulas
Doble altura

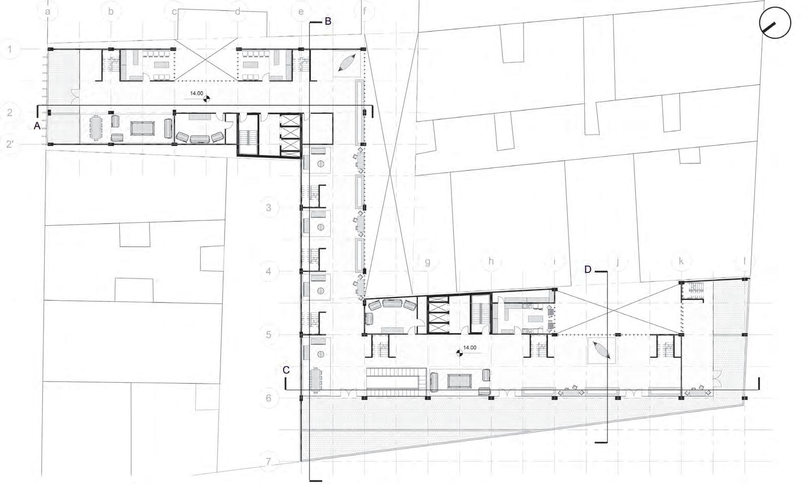
Centro tecnológico comunitario

Académico

Énfasis en proyecto arquitectónico I

Universidad Nacional de Colombia

Profesor:

Arq. Memet Charum Bayaz

Integrantes: Miguel Gónzalez

Lucía Álvarez

Ubicación:

Localidad Antonio Nariño, Barrio restrepo. Bogotá D.C, Colombia.

Año: 2022

Este proyecto es un edificio híbrido compuesto por un centro tecnológico y vivienda. Su desarrollo se realizó por medio del analisis de programa, sus componentes, tipologías de relaciones y la caracterización sistemática de cada espacio, donde la fachada, materialidad, estructura, distribución, geometría , entre otros aspectos más específicos. Este sistema permitió un acercamiento más detallado al diseño coherente según la funcionalidad, la actividad y confort de cada espacio. En cuanto al componente urbano, se realizó un mapping de edificaciones semejantes al proyecto en términos culturales, educativos y de vivienda, para tomar estrategias efectivas acordes a los principios planteados, asimismo, se ubicó en un sector donde el proyecto podría tener un impacto positivo para su entorno próximo.

Caracterización del programa

Vista exterior, sistema de fachada.
Barajeo del programa y conectores Agrupaciones
Consolidado

Para el concepto del proyecto se realizó una caracterización del prograna, teniendo en cuenta niveles de privacidad, necesidades de diferentes tipos de iluminación, materialidad, espacios programables o no programables. Posteriormente se realizó un barajeo de estas agrupaciones, esto permite que se creen distintas relaciones entre usuarios y usos. Por úlltimo estas agrupaciones se conectan entre sí con cuatro tipos de jardines.

Análisis Urbano

Piedepágina
Nivel 4
Sección AA’
Sección BB’
Nivel 2
Nivel 3
Vista delvacío interior, nivel1
Vistaexterior aniveldepeatón

Centro Corporal

Académico

Énfasis en proyecto arquitectónico II

Universidad Nacional de Colombia

Profesor:

Arq. Leonardo Álvarez

Arq. Gabriel Felipe Rodríguez

Integrantes:

Camila Segura

Lucía Álvarez

Ubicación:

Localidad Santa Fé, Cra. 5 No. 18 Bogotá D.C, Colombia. Año: 2022

Concepto y principios compositivos

El concepto del proyecto es franjas programáticas, este consiste en categorizar el programa según las siguientes categorías: Publico o privado, necesidad de luz natural o artificial, arquitectura rígida o flexible, espacio programático o no programático y tipo de programa (vivienda, comercio, bienestar, entretenimiento, centro corporal).

Estas clasificaciones permiten ubicar el programa en el edificio por niveles y en planta según las característas del lote, asoleación y su entorno próximo, asimismo, se establecen aspectos como materialidad, estructura, fachada, geometría, según las características de las agrupaciones, Por otro lado, el mapear el sector permitió entender formas de recorrer la zona y se replicaron aspectos como atravesar las manzanas mediante el edificio y crear pasajes públicos

Se establecieron los siguiente principios de diseño:

1. Accesibilidad múltiple que se desarrola en relaciones de dos tipos:

a. Exterior - Interior (Diferentes formas de acceder y salir del proyecto para un mismo usuario)

b. Interior - Interior (Umbrales no programáticos entre franjas)

c. Exterior - Exterior (Pasaje en la cota cero para usuarios indirectos)

2. El planteamiento de las franjas debe facilitar la interacción entre los múltiples actores del proyecto.

3. Zonificación programática en sección.

4. Duplicar el espacio público para vivienda.

Categorización del programa

El proyecto es un edificio híbrido compuesto de vivienda, comercio, oficinas y como equipamiento un centro corporal.

La propuesta surge tras mapear el lugar y las dinámicas del entorno como las soluciones urbanas, formas de habitar, actividades de la zona, recorridos y necesidades. Se planteó un sistema para categorizar el programa y los usuarios, que permita desarrollar las actividades específicas y así mismo, propicie interacción de estos mismos en áreas comunes,

Diagrama
Axonometría general
Memoria
Usuarios

Tipologías de vivienda

Las viviendas se ubican en los niveles superiores del proyecto, que permiten mayor privacidad.

El nivel de acceso a las viviendas consiste en una franja común para diferenciar las fránjas publicas, asimismo, este concepto se toma al replicar las dinámicas de barrio residencial popular del sector donde las viviendas convergen en un área semipública, que permite interaccion de los habitantes, más que la circulación.

El proyecto tiene 3 tipos de vivienda multifamiliar y apartaestudios, son apartamentos tríplex y de un nivel.

Planimetría de vivienda

Site Bathhouse ARKXSITE

Concurso

Propuesta conceptual para el diseño de una casa de baños en la Fortaleza de Milreu

Integrantes:

Jorge Álvarez Bernal

Santiago Cely Sandoval

Lucía Álvarez

Ubicación: Ericeira, Portugal. Año: 2022

I walk up the mountain and observe a sandy terrain with bushy vegetation and a cliff that overlooks the sea. Towards this limit, in the distance, can perceive the ruins of the Milreu Fort in harmony with a large box protruding from the slope.

As I get closer I notice how the concrete box extends from the landscape and is buried in the mountain.

I walk on the roof that generates a harmonious contrast between the slope of the mountain and the flatness of the baths. The roof subtly insinuates the interior and in the background I observe the great horizon.

A transition to intimacy begins as I descend a spiral staircase. Moving forward, I’m able to realize that the space itself guides my path and prepare myself for the experience.

I perceive a change in temperature as I enter a space that opens to the immense sky, I plunge into the cold bath. As I continue the path I notice the ambience has changed. I’m now entering a warm, closed and introspective space of contemplation and rest, in which I’m able to descend into the hot plunge bath. I submerge myself and walk to the window that frames the infinite horizon.

To finalize my contemplative route, I continue down some broad stairs, oriented towards the ruins, allowing an exterior and intimate tour at the same time. prepare my body to finish the

Vista cubierta Pasillo
Planta
Sección

Proyecto residencial

Proyecto personal Diseño de remodelación para apartamento en obra gris

Ubicación: Bogotá D.C, Colombia. Año:

El proyecto consiste en la remodelación del apartamento que se entrega en obra gris con planos y documentos de interés. Abarca acabados, carpintería e instalaciones eléctricas de iluminación en sala, cocina, baño, lavadero y habitaciones. El apartamento tiene 40,7 m2 en total.

Áreas

Vista área principal
Vistas cocina
Planimetría - Carpintería
Cocina
Sección
Planta detalle
Sección isla
Habitación principal
Habitación principal
Baño
Habitación visitantes
Notas al final
Muchas gracias por haber tomado su tiempo para leer mi portafolio
Claudia Lucía Álvarez Bernal

Turn static files into dynamic content formats.

Create a flipbook
Issuu converts static files into: digital portfolios, online yearbooks, online catalogs, digital photo albums and more. Sign up and create your flipbook.
Portafolio_Lucía Álvarez by Claudia Lucia Alvarez Bernal - Issuu