My portfolio(apply for Bartlett)

Page 1

ZHENG FANG

TEL

86 13564889642 954961136@qq.com

E-MAIL ADDRESS

Room 201, No.23 Lane 368, Fengzhou Rd, Jiading District, Shanghai, China (201801)

EDUCATIONAL BACKGROUND

09/2017-06/2022

Major: Architecture Degree: Bachelor’s Degree

GPA:3.5 (85/100) Ranking: 1/50

01

——A public building design in Mumbai’s Dharavi slum

Date:2021.9-2022.1

Individual work(Academic)

02

Home of the city

——A public building design in the EXPO Park,Shanghai

Date:2020.9-2021.1

Individual work(Academic)

Sancturay of light 03

Rhythm of the ‘Flower Drum’

——A performance centre design in Anhui

Date:2021.3-2021.6

Individual work(Academic)

Memory of the piers 04

INTERNSHIP EXPERIENCE

Date:2022.3-2022.7

Individual work (Academic)

PUBLICATIONS

01/2019-02/2019 University Of Cambridge (Clare Hall) 10/2021-12/2022 Assistant Architect Shanghai Hyp-Arch Architectural Design Consultant Co., Ltd. 03/2020 AWARDS

The fate of the monster 05

——An immersive theatre design based on a drama plot

Date:2022.3-2022.4

Individual work (Academic)

Other works 06

Date:2018-2022

Individual work& Team work

03 11 17 25
33
37 CONTENT
2022 2021 2020 2020 2019 2019 2019 2018 The First Prize of School Scholarship The Second Prize of School Scholarship The Second Prize of School Scholarship Outstanding Student The Second Prize of School Scholarship The Third Prize of School Scholarship
01
Date:2021.9-2022.1 Personal work A public building design in Mumbai’s Dharavi slum ‘Sancturay of light ’
Child care centre Mart Site Piles of industrial waste Tiny living space Radical Hindus Hinduism Islam Challenge Religions Site analysis Big wealth gap and large number of Illegal dwellings Excluded Muslims MSW without proper treatment MSW in Mumbai Natural resources Material analysis Part Strategy Material experiment Process Strength Flame retardance Erosion Bagasse Jute Rice-husk ash Coir Scrap metal Waste glass Coconut palm Basalt Mangrove Red sandstone Sugarcane Rice Canopy(dome) Archade Roof Aggregate Motar main part surface column External Interior Material Bagasse mix wasted cement mortar Recycled glass&metal rib Bagasse board Bagasse mix wasted cement morta Local marble In the worship hall In the reading room In the ’Ghusl’ room Bagasse board&local marble Component In the worship hall Local stones Natural plant The project is based on the sequence of Islamic religious elements of Islamic buildings, providing social places and spiritual spaces for Muslims in Dharavi. local stones and municipal solid waste as the main materials for the project to their psychology 1 Take an empty mold 2 Add gtpsum and bagasse 3 Mix 4 Spread the mortar all over 6 Repeat the steps Materials
Dharavi
Original Canopy Surface Hollowed-out arch Details 500mm Recycled metal Prototype Origin Element Concept Openess Courtyard Volume Pool Dome Terrace Form Symbol of India Fill the garphics -1 edge -2 edges Developing Original block Creat a courtyard Raise the inner space Add arch element Hollow arch spaces Corridors and terraces Add column element +Women’s streamline Men’s streamline + + 1 2 3 4 5 6 8 9 10 11 12 13 7 14 15 1 Entrance hall 3 Lounge Reading room 7.Corridor 8 Worship hall (male) 9 Worship chamber 10 Corridor 11 Worship chamber 12 Worship hall (Female) 13 Terrace 14 Terrace 15 Worship hall (mezzanine) Main entrance N 15 10m N 15 10m N 15 10m

as well as many vagrants. This architecture can provide

leisure services for tourists, as well as places for sanitserve as the temporary residence for the vagrants. In A public building design in the EXPO Park,Shanghai

‘Home of the city’

02

Begging in the plaza

Sleeping in the bus stop Working on the

Randomly

idea The weather is comfortable, ’d ke to hang out in the city centre That dangerous and they even haven’t place fo rest
There are so many tourists in Shanghai and it looks crowded. Background The vagrants can only spend the night in the street The sanitaton workers have to est on the side of the road, which is dangerous and exhausted Too many tourists can rowd public spaces and they also need
space
the journey. Huangpu River Ring road Secondary road ad in the park 0-17 years old 18-40 years old 41-65years old Sympathize but don‘t give money Give them money Regard them as cheaters Female Male Profession-oriented Long-term homeless local people Buske Suspected mental disorders Frequently Occasionally Seldom How do you treat vagrant beggars? Data research 58.9% 8.2% 32.9% 30% 8% 14% 48% 74% 26% 19.3% 10.9% 39.7% 30.1% 9% 21% 43% 27% Working
pouring rain
Source of the
Emm...Actually,I think the beggars who just lie on the ground has spoiled the landscape of the urban park, but we should not discriminate them. erhaps space can be constructed fo the common use of the three groups of people, so that the impact of the city can be reduced and discr-
a
take rest during
in the
roadside
distribute the blocks in the site. according to the distrilines. Orient the main block towards the river and extend the branching blocks on both sides of the main block.
Establish
Provide supply
Separate
crowd Establish shelters Problems Strategies Main zone
Vagrants Working Having meals Convert zone Concept
Timeline 9:00-11:00
15:00-17:00 17:00-19:00
Randomly distribute the blocks in the site. Creat interspaces in each block in order to lead a view toward the waterfront landscape. The space above the ground is mainly for the visitors and the semi-underground space is for vagrants. There is also a small space above the ground used as a rest workers. Keep away from busy roads
rest areas
areas
from the
Tourists
developing
11:00-1:00 13:00-15:00
19:00-21:00 Tourist workers Vagrants
Main entrance Entrance for vagrants and Design development PM. AM. Winter Summer Block Underground space Divide Stretch Slant The roof slope Trees go through the holes in the roofs 0 10 20 50m Roof plan N Entrance Hall Shop Children’s Viewing Viewing Cafe Outdoor lounge Reading area Reading area Main entrance Entrance for Entrance for vagrants Down We can just put the brooms aside ,take a seat and have a rest. Also we enjoy the riverside landscape very much. We finally settle down! When resting in this area we will not influence the tourists and we will not be discriminated. 10 20 50m come here to get a more comfortable rest environment , you know a few moments of relaxation can work wonders! It’s much more better than sleeping on the street. Besides, there are also outdoor areas for activities. We can even get some supplies here while we relax. Up ± ± Entrance Hall Tool storage Supply Lounge Restaurant Severy Entrance Hall Check-in N

‘Rhythm of the Flower Drum’

A performance centre design in Anhui

Date:2021.3-2021.6 Personal work

in Anhui,China , which has come down from the Qing dynasty. This design project is a performance center , located in Bozhou, Anhui . In the design process , I ana yzed the instruments and me odies in the piece of musi , and translated them into archite-ctural languages, which can be c ear y expressed

03

Fengyang Flower drum is one of the inta-ng ble cu tura heritage in Anhui Province, which has a long history and rich va ue. However it is aced with the dilemma of inheritance and deve opment.

This project aims to design a studio heat-er in Bozhou, Anhui Province by translat- ing the musical elements o Fengyang Flower Drum an Anhui olk song into

SITE f3 d4 A ff mf f - ff p - mp mf s 4 Contrast Rhythemed Powerful Percussion group Theme Accompaniment Timbre Features Musica Instruments Architectura Element Musica Dynamucs Block Glass box Colum Grid Red &White Facade Terrace Skylight Stairs Small glass boxes Gong (Flower drum) Suona Erhu Dulcimer Elements in the Music Fengyang Flower Dance’
Residenti ciial Audience area & Staff area Push Scenery & crowd impacts Glassboxes Transformation Theconcert hall Platform Devide indoor and outdoor spaces with the glass The crowd movement Waterfront landscape Resting area Green plants Design Development Terrace Details
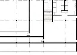
First Floor Plan 1 2 3 5 6 8 1 2 3 5 6 8 A B C D E F A B C D E F 1 2 3 4 5 6 7 8 9 10 11 12 13 9 9 9 8 12 4 4 1 1.Entrance hall 2.Checkroom 4.Restroom 5.Lounge 6. Cafe 7.Souvenir store 9. Piano room 10.Rehearsal room 11. Instrument storage 12. Dressing room 13. Stage property room 14..Auditorium 15.Backstage 16.VIP Lounge 17.Lobby 18.Terrace 19.Equipment room 1F 2F 1 2 3 5 6 8 1 2 3 5 6 8 A B C D E F A B C D E F 14 15 16 17 18 19 4 Second Floor Plan Auditorium Entrance Hall VIP Lounge N 10M 5M 1M 4 7 4 7 4 7 4 7
SITE Shopping mall School Hospita Parks&Gardens Pier Lujiabang Pier Dongjiadu Pier Tangqiao Pier Shiliupu Pier Dongchanglu Pier The
hou Site analysis 1850 1900 1950 2000 1847 1864 1970 1980 2004
Refugee crisis Reform and opening up 1970s-1980s Late 1900s Early 2000s Establish concession Chaos caused by war Open the commercial port 1840S-1860S Late 1800s Early 1900s Around 1949
piers used to be the most important -anghai before the advent of the road as vehicles and sub-ways and the pier carries many valuable memories of the city. Therefore, in this design, I retained part of the original struc-ture of the building which was used as a shipping warehouse and renovated it nto of pier cultures.
History of the Piers in Shanghai
5m 10m 50m N Plan 1 1 2 2 Entrance hall Gallery1 Gallery2 Gallery3 room Gallery4 area Lounge Souvenir stor Cafe 1 2 3 4 5 6 7 8 9 10 1 3 5 9 10 emove the skylight structur Insert glass oxes Elements 1 Roof of the dock 2 Pontoon bridge 3 Containers on the freighte 4 Undocking 5 The mast 6 Chinese ship 1 Pitched roof 2 Wooden plank road 3 Courtyard space 4 Removable glass boxes 5 Grille 6 Using wood on the facade Strategies 1 Preserve the original structure 2 Combine the wooden pathway with the waterscape 3 Creat courtyard outdoor spaces 5 Using grilles as ornaments 6 Combine wood with glass and metal to creat spaces Concepts Block the river view No gathering space in fron of the entrance Narrow building interva Dilapidated concrete facades Problem analysis
1
Pushing
the
box
to
direct
the
1 2 Pushing in the glass box in order to
2
out
glass
in order
have
access to
exterior
DECONSTRUCTION OF BEHAVIOURS PLOT SEQUENCE DECONSTRUCTION OF BEHAVIOURS PLOT SEQUENCE The beginning Got a deal The end Turning point Turning point Turning point Turning point Created the reature. -pearance of the creature. Created by Frankenstein. Went into wood and began to adapt to the natural surroundings. Learnt intellectura knowledge from Draco. Beanten by Felix(Draco’ son). for revenge. Killed William to threaten Frankenstein Convince rankenstein to creat female reature. Got furious because of what Frankenstein had done. Raped and murdered Elizabeth. Lead Frankenstein to the rozen, northern regions. Decided to kill the female creature Planed to marry Elzabeth. Try to catch and kill the creature Granted the creature request Went to Scotland to creat a female creature. Founded William’ body. Helped the couple with their daily work He was able to un-derstand the diary -nstein Draco wanted to introduce him to Felix and Agatha. STORY LINE CONCEPT SOURCE Date: Individual work An immersive theatre design based on drama plot ‘The Fate of the Monster’ 05 2022.3-2022.4
1.Entrance hall 2.Atrium(Open stage) 3.Two-story immersive theatre 1 6.Two-story immersive theatre 2 4.Lounge 7.Immersive theatre 3 8.Escalator 5.Terrace Atrium(Open stage) Two-story immersive theatre 1 Two-story immersive theatre 2 Two-story immersive theatre 2 A A B B C C 1 2 3 4 1 2 3 4
Roof garden
06
Commercial street Wedding square
Group work (Internship project) ——Chengdu Rongtong Jinhe Hotel comprehensive design
Jinhe Hotel Date:2021.10-2022.1 This project includes the design of high- rise hotel and commercial podium.
1 2 2 3 5 4 3.9m 9.1m Stairwell& antechamber Passenger elevator Linen room Cargo lift Hotel room plan 01 02 03 04 06 05 08 07 09 11 10 12 Metro exit Waterspace Jinhe Waterstreet Wedding square General Stela The pool 3D Forest The Corridor Exhibition hall Commercial street General Archway Entertainment area 1 2 3 4 5 6 7 8 9 10 11 12 Dark G reyP olished Concrete Light Grey Polished Concrete Brass Flat Tile Mid Grey B ush Hammered Granite Dark Grey Flamed Granite Light Grey Flamed Granite Light Grey Flamed Granite Dark Grey Flamed Granite Light Grey Bush HammeredG ranite Color Safe Plas c Roof garden 13 Materials Roof plan 4 5 1 2 3
Other works

Turn static files into dynamic content formats.

Create a flipbook
Issuu converts static files into: digital portfolios, online yearbooks, online catalogs, digital photo albums and more. Sign up and create your flipbook.