TFC - RAUSA / Toledo + Crizul

Page 1

OBSOLESCENCIA:

Nombre femenino

Es la condición o estado en que se encuentra un producto que ya ha cumplido con una vigencia o tiempo programado para que siga funcionando.

TFC - TRABAJO FINAL DE CARRERA

Facultad de arquitectura, Diseño y Urbanismo. UNIVERSIDAD DE LA REPÚBLICA

TALLER MARTIN

Diciembre 2022 Montevideo, Uruguay.

AUTORES

Lucas Toledo German Crizul

UNIVERSIDAD DE LA REPUBLICA

Lic. Rodrigo Arim Rector

FACULTAD DE ARQUITECTURA, DISEÑO Y URBANISMO

Arq. Marcelo Danza Decano

COORDINADOR

Arq. Bernardo Martin Director TUTORES

Arq. Javier Diaz Arq. Nicolas Borges

ASESORES

Construcción: Enrique Facal Estructura: Marcos Lowenstein Sanitario: Daniel Garcén Termico: Santiago Garcia Luminico: Alejandro Vidal Electrico: Alejandro Scopelli

4 RAUSA

Facultad de Arquitectura, Diseño y Urbanismo

Diciembre 2022. Montevideo, Uruguay.

5 RAUSA

Marco teorico

Aproximaciones. Breve historia. Mundo pos-industrial Érase una vez... La micro región. Referencias Estrategia Lo sustentable

Plantas
Cortes
Térmico
Componentes Plantas
Luminarias
Cargas
Plantas Coordinación Axonométricas Indice 08-43 48-71 76-95 100-113 116-133 136-149 152-165 168-183 186-189 6 RAUSA
Proyecto Plantas Fachadas Cortes Axonometricas Construcción Unidades de proyecto:
Cortes axonometricas Detalles Estructura Axonométrica Plantas Detalles Sanitaria Axonométrica Plantas
Detalles
Axonométrica Dimensionado Aparatos y
Lumínico Axonométrica Catálogo de
Plantas Eléctrico Axonométrica
Unifilar
7 RAUSA

Reconocer el cambio

OBSOLESCENCIA: Es la condición o estado en que se encuentra un producto que ya ha cumplido con una vigencia o tiempo programado para que siga funcionando.

Basandonos en este concepto y tomando como ejemplo la ex fabrica de azucar a base de remolacha Rausa, ubicada en el km 89 de la ruta 9 en la localidad de Maldonado comenzamos a ficcionar sobre los diferentes programas que podrían ocupar la infraestructura abandonada, devolviendole al pueblo Gregorio Aznarez una razón para no dejar la fabrica en un punto muerto, sino dotarla de nueva actividad para revivir el recuerdo de lo que una vez fue.

En esta tematica del OBSOLETISMO, el trabajador es directamente afectado y queda en modo obsoleto luego de que el edificio lo hace en primer instancia. Por lo tanto la edificación DEBE tener la capacidad de reinventarse, de adaptarse a los cambios y a la crisis, de ser flexible a alteraciones programáticas en el tiempo, notándose su RESPONSABILIDAD ante el transcurso del tiempo y las consecuencias que conlleva. NO solo afecta el aspecto económico, sino que cambia la vida de una comunidad, dejando a estos individuos obsoletos en el proceso instantáneamente, sin poder aplicar el conocimiento adquirido durante vida del edificio en otros ámbitos.

REVOLUCIÓN COGNITIVA

“De una visión predecible de la realidad hemos pasado a una medible, y ahora a una diferencial”.

Necesitamos poner la sustentabilidad en juego y readaptar programaticamente las infraestructuras obsoletas, revisar la historia y entender que desde los principios de la humanidad, la crisis nos hace mas eficientes, estandarizamos y repetimos, ahora debemos reutilizar, reprogramar, adaptar

“Naturalmente, hay varios descenlaces posibles... En la obra de Ts´iu Pen, todos los descenlaces ocurren, cada uno es un punto de partida para otras bifurca ciones. Alguna vez los senderos de ese laberinto convergen...”

“...-El jardin?

+ El jardin de los senderos que se bifurcan

Algo agiro mi recuerdo y pronuncié con incomprensible seguridad:

+ El jardin de mi antepasado Ts´iu Pen

- Su antepasado? Su ilustre antepasado? Adelante...”

El jardin de los senderos que se bifurcan. Jose Luís Borges

8 RAUSA
9 RAUSA

Un poco de historia

Readaptar el programa para reinventar el estado de la comunidad, en lógicas contemporáneas. En el entorno de 1996, se vuelve inviable la producción de maíz y de remolacha, vale mas generarlo que importarlo, hay una limitación no solo del edificio, sino de la producción. A pesar de ello, toda la tecnología y conocimiento adquirido queda congelado. Por ello la CAPACITACIÓN debe ser mas generalizada, no solo aplicable a un tipo de producción, la AGRICULTURA, los CULTIVOS ROTATI VOS pueden ser una industria formidable para la formación generalizada median te el trabajo.

El cierre de la planta condicionó a aproximadamente 3000 personas, directa e indirectamente.

¿Que dejo el edificio en las personas? Conocimiento solo para Rausa, solo para esa industria, las personas no tienen capacidad de flexibilizar y adaptar su cono cimiento a los cambios, siendo victimas de un quiebre instantaneo en sus modos de vida.

La Fabrica tenia servicios incluidos de carpintería, herrería, tornería, etc. Todo al servicio del pueblo, así como servicio medico y hasta predios para tener anima les. Se construyeron cines y centros sociales. ¿Como podemos esto interpretarlo en logicas contemporáneas? Hoy no es tan limitado el acceso a los servicios, no hay dependencia total, la edificación debe reinterpretar esta mentalidad innova dora.

Los trabajadores hasta jugaban al futbol, eran torneros, carpinteros, etc. El traba jador representaba a la empresa en todos los ámbitos. Era un pueblo autoabaste cido. Formaba, mantenía, producía. Era tan autónoma que es difícil acceder a la información, muy introvertida. No solo tenia talleres y servicios para la comuni dad (correo, Bps, cine), sino que hasta producían su propia cal en hornos a partir de piedra caliza para brindar servicios de albañilería.

En conclusión, esta infraestructura generaba comunidad.

EN ESTE MUNDO POS-INDUSTRIAL

Actualmente la ruina industrial se define como ex-funcional y contemplativo, donde la espacialidad denota de manera explicita la resolución técnica que hoy se confunde con lo museístico.

En este mundo pos-industrial la fábrica se transforma en monumento, pero en este caso particular no cumple con esta caracteristica en su totalidad por ser privatizado. El ciudadano de a pie no puede acceder a ese lugar que tantos recuerdos guarda. Por lo tanto se hace necesaria la reintepretación funcional del edificio y su revinculación con el entorno, mas alla del limite de la fábrica, darle nuevamente el lugar al pueblo.

10 RAUSA
11 RAUSA

La Problemática

Para relacionar la tematica del obsoletismo en este contexto, trabajamos sobre la responsabilidad de la edificación. El trabajador queda en modo obsoleto luego de que el edificio lo hace en primer instancia. Por lo tanto la edificación DEBE tener la capacidad de reinventarse, de adaptarse a los cambios y a la crisis, de ser flexi ble a alteraciones programáticas en el tiempo, notándose su RESPONSABILIDAD ante el transcurso del tiempo y las consecuencias que conlleva. No solo afecta el aspecto económico, sino que cambia la vida de una comunidad, dejando a estos individuos obsoletos en el proceso instantáneamente, sin poder aplicar el cono cimiento adquirido en vida del edificio en otros ámbitos.

Readaptar el programa para reinventar el estado de la comunidad, en lógicas contemporáneas.

EL COMIENZO DEL FIN

Todo comienza cuando se vuelve inviable la producción de maíz y de remolacha, vale mas generarlo que importarlo, hay una limitación no solo del edificio, sino de la producción. A pesar de ello, toda la tecnología y conocimiento adquirido queda congelado. Por ello la CAPACITACIÓN debe ser mas generalizada, no solo aplica ble a un tipo de producción, la AGRICULTURA, los CULTIVOS ROTATIVOS pueden ser una industria formidable para la formación generalizada mediante el trabajo.

“El cierre de la planta condicionó a aproximadamente 3000 personas, directa e indirectamente.”

Que dejo el edificio en las personas? Conocimiento solo para Rausa, solo para esa industria, las personas no tienen capacidad de flexibilizar y adaptar su conoci miento a los cambios.

+INFO

El costo de transporte de insumos y personas se vuelve critico para la accesibili dad, para rápidamente recomponerse. Dejar la afectación menos critica en el tiempo generando un programa flexible.

Hay un ejemplo claro en la planta, un deje que permite formalizar esta idea en el hecho preciso, que es por ejemplo el sistema de saneamiento y tratamiento de aguas residuales, una infraestructura innovadora para la época que se mantiene en funcionamiento y puede adaptarse a las lógicas contemporáneas. En la época fue innovador no solamente para el pueblo sino para la región, saneamiento y salubridad desde un punto de partida. Un pensamiento innovador para reinter pretar en la actualidad.

Las cañerías de corriente de agua aguantan mas de 12000 lts por minuto, un caudal muy eficiente para utilizar en varias industrias de diferente índole. La alimentación de agua tiene 3 pozos impermeables subterráneos para sacar 20000 lts de agua por hora. A 2km hacia el noroeste hay dos represas hacia el Arrollo Solis Grande para extraer y devolver agua a disposición. También cuenta con linea directa desde la Central de Los Cardos para abastecer eléctricamente a la fabrica. Hay dos turbinas para generar 85 y 50kw, llamados “Los turbos”, mediante vapor se genera energía eléctrica.

Con esto se sigue afirmando la hipótesis de readaptar el edificio a las logicas fabriles contemporáneas, desde el punto de vista de la arquitectura se ataca al programa, a la estructura, al dialogo entre el pasado y el presente, a poder darle vida al edificio pero sin contar la historia que lleva consigo para así mostrarle a la comunidad como este “PUEBLO DURMIENTE” puede despertarse, puede volver a vibrar y hacer vibrar el entorno.

La fabrica cierra en el 96´, desde ahí muere y queda obsoleta. La capacitación en diferentes países por parte de la empresa para las personas, queda también obsoleta.

Como lo llaman algunos, “El pueblo de los tres nombres”. La Sierra (zona del ferro carril), Gregorio Aznarez (Fundador del pueblo), Rausa (empresa remolachera y azucarera) Tres diferentes zonas de expansión en el tiempo progresivamente. La fabrica como NÚCLEO ACTIVADOR y organizador del crecimiento constante.

12 RAUSA
13 RAUSA

Érase una vez...

En este recorrido basado basicamente en el dialogo constante con personas del pueblo Gregorio Aznarez, que experimentaron la euforia que la Fábrica generaba en la región, obtuvimos muchas historias, intentamos con todas ellas resumir un imaginario de lo que fue. Vale aclarar, la melancolía abundaba en cada palabra que escuchamos...

Contaban, algo dificil de interpretar en el contexto actual, que la fábrica funcio naba “de adentro hacia afuera”, notando esto que hoy no se encuentra, GENERO SIDAD. Con los recursos e infraestructura innovadora que tenía, no solo se dedia ba a formar a sus trabajadores, ya sea en contaduría, quimica, albañilería, maqui naria especializada, agricultura, etc, sino que con esos mismos recursos intenta ban siempre que sus trabajadores, los cuales vivían en los alrededores en casas construídas por la misma planta, puedan solucionar sus probelmas basicos con su ayuda. Construir un cerco, movilizar ganado, arreglar imperfecciones en su vivienda, incluso ampliarla.

Además, se funda RAUSA F.C, el club de fútbol fundado en esa misma epoca cons tituido por los mismos trabajadores, que contaban con horas de libres para poder entrenar y prepararse de la mejor manera para la competencia.No solo eso, la fábrica tembien fundó escuelas, comisiones de fomento, salones comunales, estaciones policiales, luz e infraestructura vial, entreo otros. En si, creo comuni dad, creo ciudad por mera inciativa.

Rausa, para la región era muy particular, un pequeño pueblo lleno de actividad, un pueblo que vibró. Algo que todo el mundo recuerda es la actividad de la estación de tren. Este era el punto terminal del recorrido en donde se concentraba la actividad social de la zona. No solo era el punto final, sino tambien el punto de partida.

Hoy el pueblo sufre en cierta medida el “síndrome de la bella durmiente”, sin funcionalidad, sin actividad, con una población de edad elevada. Sigue siendo un lugar bello paisajisticamente, aunque todos los habitantes sueñan con que alguna vez este lugar vuelva a despertarse.

14 RAUSA
15 RAUSA
16 RAUSA
17 RAUSA

LO MACRO

La microrregión Solis Grande esta limitada al Oeste por el arroyo Solis Grande, Al norte por el arroyo Sauce y la Sierra de las Animas, al este por el arroyo Las Flores y la ruta 9, y finalmente al sur por el Río de la Plata. Ocupa una superficie de 217km2 y 2.710 habitantes según el censo del 2004, en continuo crecmiento. Esta región presenta un variado relieve con interesantes contrastes, moviendosé desde las dunas y la costa al sur con una cota baja, hacia el NE donde se encuen tra la Sierra de las Animas, con su cota superior. Además de esto, a medida que nos envaminamos a la Sierra comienzan a aparecer ciertos puntos singulares, los cerros que aparecen dispersos a lo largo de la zona que dotan esta microrregión de una identidad partiuclar.

A todo esto, se le suman las zonas pobladas ubicadas a lo largo de la costa y la ruta 9, lo cual denota una cualidad de ordenamiento según FAJAS territoriales, que se extienden a modo de degradé hacia la zona rural y la Sierra, y entre ellas aparecen estos puntos de interes como los cerros y arroyos.

La
región Gregorio Aznarez Cerros Azules Jaureguiberry Solis Bella Vista Las Flores Estación Las Flores Ruta 10 Ruta9
Ruta10 Castillo Pitamiglio Paseo Cerro de las Animas Océano Atlántico Arroyo Solis Pozos Azules Playa Verde Cerro del Burro Cerro Pan de Azucar Cerro Negro Cerro chico Cierra de las Animas Cerro Vichadero chico Cerro de la Virgen Cerro Viera Cerro Feo Cerro Betete Cerro de las Víboras Playa Hermosa Playa Grande 18 RAUSA
Micro-
Ruta9

LO MICRO

En 1959 se crea este pequeño pueblo llamada Gregorio Aznarez, o popularmente llamado Rausa. El primero haciendo referencia a su fundador, el segundo hacien do referencia a su razon de ser, la fábrica azucarera a base de remolacha RAUSA. Variando mucho en el tiempo, en la actualidad cuenta con poco mas de 900 habi tantes, y la particularidad regional se vuelca hacia el pueblo. Al igual que en la microrregión, esta zona se descontractura progresivamente hacia el agua, en este caso el arroyo solis. En primer lugar la Ruta 9, luego el nucleo principal del pueblo, despues aparece la vieja vía de tren con su respecti va estación y por ultimo la Fábrica, la cual cuenta con una linea perpendicular a las fajas, un camino que llega directamente al arroyo.

Lo particular de este pueblo es que con su poca población y dimensiones cuenta con excelentes servicios de vivienda y obra pública, contando con saneamiento y vivienda saludable para todos sus habitantes, ideología que nacio con la creación del pueblo y se heredó a traves de los años.

Un pueblo de característica rural, con verde pleno en todos sus alrededores y parcialmente aislado del resto de las zonas pobladas, pero con una constante paisajistica de gran atracción, iniciativa del pueblo por compartir su mano de obra y conocimiento agricultor para mantener esta imagen romántica de lo que siempre fue.

19 RAUSA
Espacio Verde Servicios básicos Servicios culturales

FAJAS TERRITORIALES

El territorio incentiva a fraccionarlo mediante fajas que se caracterizan de manera diferente, rural, poblado hacia ruta y hacia el agua, y la franja costera. Cada una de ellas genera una atmosfera continua a lo largo de la faja y ademas de eso, diferentes linas que de manera perpendicular las cortan, generando asi limites difusos que no se detectan facilmente a pesar de estar siempre presen tes.

Sumado a esto aparecen los puntos singulares, cada uno de ellos esta relaciona do directamente con cada faja, por sus cualidades paisajisticas, y al mismo tiempo presentan diferentes caracterisiticas dependiendo de su proximidad con el limite territorial.

Gregorio Aznarez Cerros Azules Jaureguiberry Solis Bella Vista Las Flores Estación Las Flores Ruta 10 Ruta9 Ruta9 Ruta10 Castillo Pitamiglio Paseo Cerro de las Animas Océano Atlántico Arroyo Solis Pozos Azules Playa Verde Cerro del Burro Cerro Pan de Azucar Cerro Negro Cerro chico Cierra de las Animas Cerro Vichadero chico Cerro de la Virgen Cerro Viera Cerro Feo Cerro Betete Cerro de las Víboras Playa Hermosa Playa Grande RURAL TREN AGUA
20 RAUSA
POBLADOHACIARUTA POBLADOHACIAAGUA

RUTA TREN LIMITEFÁBRICA

PUEBLO PUEBLO

RURAL

RURAL

DENTRO DEL PUEBLO

LLevando estas estrategias hacia el pueblo, notamos que la fabrica es un limite mismo, en conjunto con la vía de tren.

Particularmente se ubica entre el pueblo y la costa, y en conjunto con una gran alfombra verde compone este paisaje particular.

Comienza densamente edificado, por la fabrica y la zona pueblerina, y se va extendiendo en forma de degradé hacia el arroyo Solis. Reclama y resalta la presencia, tiene intenciones de llegar a la costa para utilizar sus recursos, gene rando así una gran linea perpendicular que cortanorablemente en forma de recla mo esta gran faja plana y superficial.

21 RAUSA
COSTA AGUA
Padron 30279 Padron 30279
Acceso a Ruta Interbalnearia
Ruta9
22 RAUSA
Gregorio Aznárez Fundación_ 1900 Población: 944 hab.
Padron30279 AreaDelimitada:8.8Ha Ex industria Rausa y Agroindustrias “ La Sierra” Ser vicios Preexistentes_ _Sistema de Saneamiento (Drenaje +12 mil Litros) _Planta de tratamientos de aguas _Abastecimiento de Agua (Pozos subterraneos, por bombeo) _Energia Electrica desde Sub-Estacion “Los Cardos” _Generadores de Energia (85Kw - 50 Kw) Galpones ex Rausa Hoy_ Reciclaje plasticos _ Oficinas Talleres _ Cilos _Molienda _Refineria _Depositos Primer Area Poblada Gregorio Asnarez 23 RAUSA

BERNARD TSCHUMI Referencias /

Siguiendo con la temática, se toman dos proyectos que trabajan sobre el edificio obsoleto y su reinterpretación proyectual, ambos fabriles, como son el PTI Cerro en Montevideo y el ex Frigorífico Anglo, en Fray Bentos.

Por otro lado, cuando hablamos de trabajar sobre la superficie como una gran alfombra ordenadora, tomamos dos proyectos que mediante sus diferentes estrategias proyectual, ordenan y dan sentido a esta lamina de grandes dimen siones, que ordena y vincula la infraestructura de manera eficiente y cargandola de programa. Estos son los proyectos para el Parc de la Villette de Oma y de Bernard Tchumi. El primero trabajando la tematica de las fajas programaticas en el paisaje, el segundo tomando la estratega de las lineas, puntos y superficies, a estilo de “malla” ordenadora del territorio.

ANGLO
24 RAUSA

Parc de la Villette

Parc de la Villette

OMA
OMA
PTI
ANGLO Ex Frigorífico
Zollverein
Cerro.
BERNARD TSCHUMI
25 RAUSA

Estrategia

Se plantea pensar a fondo la idea de la insustria trans parente hacia el pueblo.

Recordando la influencia sociocultural de la estacion de tren , con la influencia que tuvo historicamente con respecto a la región, la esfervescencia de la fabrica, se decide desplazar y denominar un unico elemento como primordial y articulador de la totalidad del proyecto, con cualidades socioculturales y de interaccion constante entre la activiadad del polo agrotecnológico y el pueblo, dandole lugar al mismo en la implantacion. Luego se decide colocar elementos mas pelqueños a los cuales se los nombra como “puntos de llegada”, que se encuentran conectados con el articulador

principal mediante recorridos que van cambiando de cualidades espaciales segun el vínculo inmediato con la infraestructura existente.

La estrategia es ubicar estos puntos de llegada segun parte de la division estrategica de todo el conjunto mediante fajas programaticas que toman lo nuevo y lo preexistente para localizarse.

Luego se sobrepone una grilla de 10x10m para organi zar la infraestructura en base a la cercanía con las actividades representativas del polo agrotecnologico.

Es asi como estos puntos de llegada son eficientes para el uso del visitante, que nota la transparencia de la actividad llegando a los puntos criticos del programa planteado, y asi mismo puede generar una interacciòn directa entre el funcionario del dia a dia con el conector mediante simples recorridos, interac

tuando constantemente con el exterior de la fábrica, es decir, el pueblo.

Las actividades principales estaran ubicadas en el conector, las cuales seran flexibles para servir al pueblo y a la industria conjuntamente.

Actividades culturales, de ocio, de esparcimiento, ludicas y de usos multiples.

En la vieja estación de tren, donde actualmente se tiene intencionespor parte del municipio, se colocara el museo Gregorio Aznarez, dando apoyo a las actividades culturales del conector.

Este edificio conector será nuestro punto de enfoque. Una infraestructura que intenta generar una interac ción constante con el pueblo, intentando melancolica mente recordar los tiempos pasados.

26 RAUSA
27 RAUSA

Entre puntos, líneas, superficies... y fajas.

PROGRAMA EX-FÁBRICA

Emprendimientos Emprendimientos Laboratorio Oficinas Comidas Taller de Estacionamiento Oficinas
28 RAUSA
PROGRAMÁTICAS CONECTOR PUEBLO/FÁBRICA CAPACITACIÓN CULTURAL Agro + Oficinas PRODUCCIÓN PUNTOS LINEAS 29 RAUSA
FAJAS

PUEBLO

CONECTOR
30 RAUSA
CONECTOR FÁBRICA
NODO 1 NODO 2 NODO 3
4 CONECTOR VÍNCULOS 31 RAUSA
NODO
32 RAUSA
33 RAUSA
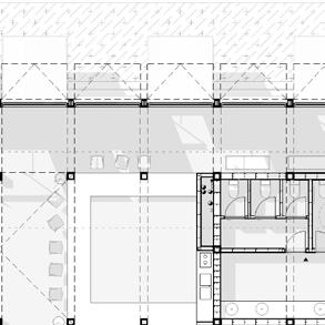
            CANCHAS GRADAS ACCESO CIRCULACIÓN PEATONAL CIRCULACIÓN PEATONAL FABRICA DEPÓSITOS BALDIO- PLAZA CALLE 7 34 RAUSA Planta General Esc. 1/250
                N ANFITEATRO PLAZA PÚBLICA CIRCULACIÓN PEATONAL CIRCULACIÓN PEATONAL CIRCULACIÓN PEATONAL CIRCULACIÓN PEATONAL CALLE 7 PARQUE LINEAL ESTACIONAMIENTO PLAZA PÚBLICA CALLE 7 35 RAUSA
Planta baja N+0.80 plaza cafeteria Nivel 1 +5.00 eventos expo 36 RAUSA
+5.00
37 RAUSA
Nivel 2 +9.20 plaza aerea mirador
38 RAUSA
39 RAUSA
Lo Sustentable
            Diciembre
40 RAUSA
asoleamiento
Junio Marzo
                            41 RAUSA

Tratamiento de aguas residuales

Planta de tratamiento + infiltración a terreno.

Tratamiento de aguas Pluviales

Estanque + bombeo+ abastecimiento de inodoros

42 RAUSA

Protección solar mediante toldos móviles.

Enfriamiento natural de fachada.

Ventilación natural cruzada.

43 RAUSA
01

El edificio esta planteado como una superposi ción de partes que permiten dotar al edificio de flexibilidad ante posibles crecimientos y atera ciones. Una reticula cargada de elementos que en conjunto definen el sistema constructivo. Los diferentes niveles se resuelven con una losa colaborante de Steel Deck, por encima de la misma se cominenza a elaborar los diferentes sistemas de pavimentos y cubiertas. Los muros interiores se apoyan en esta losa, siendo de estructura liviana en el caso de baños , cafeteìa y administraciòn, utilizando el sistema Steel Frame, constituido de montantes de acero galvanizado y placas de diferentes caracteristicas.

En el caso de la caja de escaera y ascensores, se opta por una estructura de muros pesada, de bloques de hormigon vibrado con sus respecti vas terminaciones.

ESCALA 1:150 CONTENIDO Axonometricas Planta N+0.80 Planta N+5.00 Planta N+9.20 Planta N+13.40 Fachada Norte Fachada Sur Fachada Este Fachada Oeste Corte X01 Corte X02 Corte Y01 Corte Y02
PROYECTO DOCENTE ASCESOR Enrique Facal UBICACIÓN Gregorio Aznarez, Maldonado. AREA fábrica: 111.664 m2 intervención: 600m2
                                                       Proyecto 50 RAUSA Planta Baja +0.80 Esc. 1/150 Programa_ Recepción Cafeteria Servicios Playroom
                                                                       Proyecto 51 RAUSA N
                                                    Proyecto 52 RAUSA Planta Nivel 1 +5.00 Esc. 1/150 Programa_
Servicios
Mirador Ludico
Eventos/Reunion
                                                                        Proyecto 53 RAUSA N
                                                  Proyecto 54 RAUSA Planta Nivel 2 +9.20 Esc. 1/150 Programa_
Mirador Area Expositiva Servicios Eventos/Reunion
                                                                                    Proyecto 55 RAUSA N
                                               Proyecto 56 RAUSA Planta Azotea +13.40 Esc. 1/150
Programa_ Azotea Tanques y unidades exteriores
                                                                  Proyecto 57 RAUSA N
Fachada Norte Esc 1:150 Proyecto 58 RAUSA Fachada Norte Esc. 1/150
     Proyecto 59 RAUSA
Fachada Sur Esc 1:150 Proyecto 60 RAUSA Fachada Sur Esc. 1/150
     Proyecto 61 RAUSA
Sección X01 Esc 1:150 Proyecto 62 RAUSA Sección X01 Esc. 1/150
     Proyecto 63 RAUSA
Sección X02 Esc 1:150 Proyecto 64 RAUSA Sección X02 Esc. 1/150
     Proyecto 65 RAUSA
     Fachada ESTE Esc 1:100 Proyecto 66 RAUSA Fachada Este Esc. 1/100
     Fachada OESTE Esc 1:100 Proyecto 67 RAUSA Fachada Oeste Esc. 1/100
     Sección Y01 Esc 1:100 Proyecto 68 RAUSA Sección Y01 Esc. 1/100
     Sección Y02 Esc 1:100 Proyecto 69 RAUSA Sección Y02 Esc. 1/100
70 RAUSA
71 RAUSA
02

DOCENTE ASCESOR Enrique Facal

UBICACIÓN

Gregorio Aznarez, Maldonado.

AREA

fábrica: 111.664 m2

intervención: 600m2

ESCALA

1:150

CONTENIDO

Unidad de proyecto UP01: Planta

Axonometrica

Corte integral Detalle esc 1:25

Unidad de proyecto UP02: Planta

Axonometrica

Corte integral Detalle esc 1:25

Unidad de proyecto UP03: Planta

Axonometrica

Corte integral Detalle esc 1:25

Mediante un sistema de elementos estandarizados, como es la perfileria devigas y pilares metalicos, los muros livia nos acero galvanizado, se resuelve el edificio en su totali dad.

El sistema de aberturas sera de Aluminio, con perfilería de Aluminios del Uruguay, contando con un sistema de vidriado DVH para mayor confort termico. La carpintería estará constituida de placas de madera de abedul con terminacion polistén. Las mesadas serán de Dekton, los pavimentos en interior serán de hormigón lustrado y al exterior, con losetas de hormigon prefabricado. Por ultimo los paramentos verticales serán de placas de abedul en espacios comunes y en baños de yeso.

CONSTRUCCIÓN

CARPINTERÍA x.x x.x x.x x.x

Cielorrasos

Paramentos Pavimentos

Zócalos H HERRERÍA GRANITOS XX G XX

1.1 - Placa de yeso verde 12,5 mm + pintura blanca antihongos

1.2 - Cara inferior chapa de sistema Steel Deck

1.3 - Rejilla de hierro electrosoldada tipo orsogril

PARAMENTOS

3.1 - Placa de madera abedul 12,5mm con vetas + terminación polistén.

3.2 - Placa de yeso verde 12,5 mm + pintura blanca antihongos

3.3 - Placa de yeso verde 12,5 mm + cerámico 30x30mm con junta continua.

3.4 - Cortina movil con tela opaca coloreada.

ALUMINIOS

AL01 - Serie Gala de Aluminios del Uruguay. 3 paños proyectante. Vidrios DVH 8+12+8. Terminación pintura color blanco

AL02 - Puerta de acceso. Dos paños batientes. Serie Gala de aluminios del Uruguay 6+12+6. Terminación pintura color blanco.

AL03 - Serie Gala de Aluminios del Uruguay. 2 paños fijos, 1 proyectante. Vidrios DVH 8+12+8. Terminación pintura color blanco

HERRERÍA

H01 - Baranda de hierro soldada h:0.90m con pasamanos de metal plegado de 50x100mm.

H02 - Rejilla electrosoldada tipo orsogril.

H03 - Escalera metálica exterior.

GRANITOS

G01 - Mesada de baños Silestone Miami White e: 1,2cm

G02 - Mesada de cafetería Dekton Sirius negro e:1,2cm

XX C XX

PLANTA ESC 1:50 AL MOO

ALUMINIOS TIPOS DE MUROS

PAVIMENTOS

2.2 - Hormigón llaneado mecanicamente para exteriores

2.3 - Rejilla de hierro electrosoldada tipo orsogril

2.4 - Empalomado de hormigón armado con microfibra.

ZÓCALOS

4.1 - Perfil de aluminio 6cm

CARPINTERÍA

Construcción 78 RAUSA

CP01 - Mueble administracion. Mostrador + guardado. Estructura de madera con paneles separadores y estantería en placa de abedul terminación polistén con herrajes de alumino.

CP02 - Mueble cafetería. Mostrador + guardado. Estructura de madera con paneles separadores y estantería en placa de abedul terminación polistén con herrajes de alumino.

CP03 - Placard lavabos. Estructura de madera con paneles separadores y estantería en placa de abedul terminación polistén con herrajes de alumino.

CP04 - Placard depósito. Estructura de madera con paneles separadores, estantería y puertas batientes en placa de abedul terminación polistén con herrajes de alumino.

CP05 - Puerta batiente cortafuegos.

CP06 - Puerta interior en baños 70x270cm revestida en ambas caras con placa de abedul + terminación polistén.

UP01 X01 X02 X03 X04 X05 A C
B
Cuadro de terminaciones
2.1 - Hormigón llaneado con terminación pulida para interiores.
CIELORRASOS
RECEPCIÓN Pavimento hormigon lustrado 100m2 +0.80m X01 X02 Escalera exterior Area de Rescat e Sala de espera Galeria 0 1 Pilar HEB 240 02 03 04 05 06 07 08 09 10 11 12 13 25 24 23 22 21 20 19 18 17 16 15 14 13 26 Pilar HEB 240 Pilar HEB 240 Pilar HEB 240 Pilar HEB 240 Pilar HEB 240 Pilar HEB 240 Pilar HEB 240 Pilar HEB 240 Pilar HEB 240 Pilar HEB 240 Pilar HEB 240 Pilar HEB 240 Pilar HEB 240 Pilar HEB 240 Pilar HEB 240 Pilar HEB 240 Pilar HEB 240 Pilar HEB 240 Pilar HEB 240 Galeria Galeria Acceso CP 01 H 01 H 01 H 02 H 01 H 01 H 01 H 02 H 01 H 01 H 01 H 01 H 01 H 01 H 01 1.2 2.1 2.2 2.3 AL 03 AL 03 AL 03 AL 03 1.2 2.1 H 03 Construcción 79 RAUSA

CORTE ESC 1:75

DETALLE ESC 1:25

REFERENCIAS

1. Pavimento empalomado de hormigón armado con microfibra

2. Contrapiso de Hormigón aligerado

3. Steel Deck con malla electrosoldada e: 12,5cm

4. UPN 30 soldado a HEB 5. Viga HEB 240

6. UNION. Pletina metálica con planchuela de espera y anclaje químico.

7. Baranda de hierro soldada h:0.90m con pasamanos de metal plegado de 50x100mm

8. Abertura de aluminio con doble vidriado y camara de aire DVH 6+12+6

9. Pilar metálico HEB 240 con relleno de lana de roca para puente térmico

10. Roller exterior Screen Zip color blanco con protección UV.

11. Abertura con dos paños batientes y doble vidriado hermético.

12. Pilar metálico 10x10cm

13. Vigas metálicas PNI 100

14. Pavimento antideslizante para plataforma de acceso

15. Rampa metalica antideslizante para acceso

16. Pavimento de rejilla metalica electrosoldada tipo orsogril

17. Patin de fundación 1,35x1,35m 18. Viga de fundación 20x30cm 19. Carpintería de abedul para administración 20. Abertura de aluminio con DVH 6+12+6. Dos paños proyectantes y dos fijos. 21. Baranda de hierro soldada h:0.90m con pasamanos de metal plegado de 50x100mm para escalera 22. Escalera metálica exterior 23. Recubrimiento escalera. Chapa aluminizada ondulada 24. Terreno natural. Pasto. 25. Superficie natural para cimentación. Tierra. 26. Hormigón llaneado mecanicamente para exteriores 27. Barrera de vapor. Film de Polietileno 28. Aislante térmico. Poliestireno expandido e:4cm 29. Contrapiso armado. Hormigón. 30. Alisado 2cm + imprimación de emulsión asfáltica 31. Membrana asfáltica. Barrera humídica. 32. Separador geotextil + alisado para colocar torretas 33. Torretas o plots extensibles para empalomado 36. Lana de roca.

UP01
7 9
23
Construcción 80 RAUSA
7 9 5 5 3 3 27 28 6
23 23 6 4 4 29 29 22 21 30 30 31 32 33 1 1 36
        1 7 7 2 3 4 5 20 19 21 22 24 25 26 D01 23 9 6 D01 26 Construcción 81 RAUSA

REFERENCIAS

1. Pavimento empalomado de hormigón armado con microfibra 2. Contrapiso de Hormigón aligerado 3. Steel Deck con malla electrosoldada e: 12,5cm 4. UPN 30 soldado a HEB 5. Viga HEB 240 6. UNION. Pletina metálica con planchuela de espera y anclaje químico. 7. Baranda de hierro soldada h:0.90m con pasamanos de metal plegado de 50x100mm 8. Abertura de aluminio con doble vidriado y camara de aire DVH 6+12+6 9. Pilar metálico HEB 240 con relleno de lana de roca para puente térmico 10. Roller exterior Screen Zip color blanco con protección UV. 11. Abertura con dos paños batientes y doble vidriado hermético. 12. Pilar metálico 10x10cm 13. Vigas metálicas PNI 100 14. Pavimento antideslizante para plataforma de acceso 15. Rampa metalica antideslizante para acceso 16. Pavimento de rejilla metalica electrosoldada tipo orsogril 17. Patin de fundación 1,35x1,35m 18. Viga de fundación 20x30cm 19. Carpintería de abedul para administración 20. Abertura de aluminio con DVH 6+12+6. Dos paños proyectantes y dos fijos. 21. Baranda de hierro soldada h:0.90m con pasamanos de metal plegado de 50x100mm para escalera 22. Escalera metálica exterior 23. Recubrimiento escalera. Chapa aluminizada ondulada 24. Terreno natural. Pasto. 25. Superficie natural para cimentación. Tierra. 26. Hormigón llaneado mecanicamente para exteriores

UP01
CORTE AXONOMÉTRICO
7 20
Construcción 82 RAUSA
Construcción 83 RAUSA

Paramentos Pavimentos

CIELORRASOS

1.1 - Placa de yeso verde 12,5 mm + pintura blanca antihongos

1.2 - Cara inferior chapa de sistema Steel Deck

1.3 - Rejilla de hierro electrosoldada tipo orsogril

PARAMENTOS

3.1 - Placa de madera abedul 12,5mm con vetas + terminación polistén.

3.2 - Placa de yeso verde 12,5 mm + pintura blanca antihongos

3.3 - Placa de yeso verde 12,5 mm + cerámico 30x30mm con junta continua.

3.4 - Cortina movil con tela opaca coloreada.

ALUMINIOS

AL01 - Serie Gala de Aluminios del Uruguay. 3 paños proyectante. Vidrios DVH 8+12+8. Terminación pintura color blanco

AL02 - Puerta de acceso. Dos paños batientes. Serie Gala de aluminios del Uruguay 6+12+6. Terminación pintura color blanco.

AL03 - Serie Gala de Aluminios del Uruguay. 2 paños fijos, 1 proyectante. Vidrios DVH 8+12+8. Terminación pintura color blanco

HERRERÍA

H01 - Baranda de hierro soldada h:0.90m con pasamanos de metal plegado de 50x100mm.

H02 - Rejilla electrosoldada tipo orsogril.

H03 - Escalera metálica exterior.

GRANITOS

G01 - Mesada de baños Silestone Miami White e: 1,2cm

G02 - Mesada de cafetería Dekton Sirius negro e:1,2cm

PAVIMENTOS

2.1 - Hormigón llaneado con terminación pulida para interiores.

2.2 - Hormigón llaneado mecanicamente para exteriores

2.3 - Rejilla de hierro electrosoldada tipo orsogril

2.4 - Empalomado de hormigón armado con microfibra.

ZÓCALOS

4.1 - Perfil de aluminio 6cm

RECEPCIÓN

CARPINTERÍA

Pavimento hormigon lustrado 100m2 +0.80m

CP01 - Mueble administracion. Mostrador + guardado. Estructura de madera con paneles separadores y estantería en placa de abedul terminación polistén con herrajes de alumino.

CP02 - Mueble cafetería. Mostrador + guardado. Estructura de madera con paneles separadores y estantería en placa de abedul terminación polistén con herrajes de alumino.

CP03 - Placard lavabos. Estructura de madera con paneles separadores y estantería en placa de abedul terminación polistén con herrajes de alumino.

CP04 - Placard depósito. Estructura de madera con paneles separadores, estantería y puertas batientes en placa de abedul terminación polistén con herrajes de alumino.

CP05 - Puerta batiente cortafuegos.

CP06 - Puerta interior en baños 70x270cm revestida en ambas caras con placa de abedul + terminación polistén.

UP02
X01 X02 X03 X04 X05
Pilar HEB 240 Pilar HEB 240 Pilar HEB 240 Pilar HEB 240 Pilar HEB 240 Pilar HEB
Pilar HEB 240 Pilar HEB 240 Pilar HEB 240 Pilar HEB 240 Pilar HEB
Pilar HEB 240 Pilar HEB 240 Pilar
240 VRV de piso conducto sistema vrv Por
AL
AL
AL
AL
H 01 H 01 H 01 H 01 H 01 H 01 H 01 CP
PLANTA
AL
x.x x.x x.x x.x
240
240
HEB
piso
03
03
03
02
01 1.2 2.1 Cuadro de terminaciones
ESC 1:50
MOO ALUMINIOS TIPOS DE MUROS CARPINTERÍA XX C XX
Cielorrasos
Construcción 84 RAUSA
Zócalos H HERRERÍA GRANITOS XX G XX

CAFETERÍA

Pavimento
+0.80m Pilar HEB 240 Pilar HEB 240 Pilar HEB 240 Pilar HEB 240 Pilar HEB 240 Pilar HEB 240 Pilar HEB 240 Pilar HEB 240 Pilar HEB 240 RAMPA METALICA DE ACCESO Pend 8% RAMPA METALICA DE ACCESO Pend 8% VRV UI conducto sistema vrv conducto sistema AL 01 Pilar metalico 10x10 Pilar metalico 10x10 Pilar metalico 10x10 Pilar metalico 10x10 Pilar metalico 10x10 Pilar metalico 10x10 AL 01 AL 01 AL 01 AL 01 AL 02 AL 01 AL 01 Rejilla de hierro electrosoldada orsogril +0.80m 1.2 2.1 1.22.1 Construcción 85 RAUSA
hormigon lustrado 175m2

CORTE ESC 1:75

DETALLE ESC 1:25

1. Pavimento empalomado de hormigón armado con microfibra

2. Contrapiso de Hormigón aligerado

3. Steel Deck con malla electrosoldada e: 12,5cm

4. UPN 30 soldado a HEB

5. Viga HEB 240

6. UNION. Pletina metálica con planchuela de espera y anclaje químico.

7. Baranda de hierro soldada h:0.90m con pasamanos de metal plegado de 50x100mm

8. Abertura de aluminio con doble vidriado y camara de aire DVH 6+12+6.

9. Pilar metálico HEB 240 con relleno de lana de roca para puente térmico

10. Roller exterior Screen Zip color blanco con protección UV.

11. Abertura con dos paños batientes y doble vidriado hermético.

12. Pilar metálico 10x10cm

13. Vigas metálicas PNI 100

14. Pavimento antideslizante para plataforma de acceso

15. Rampa metalica antideslizante para acceso

16. Pavimento de rejilla metalica electrosoldada tipo orsogril

17. Patin de fundación 1,35x1,35m

18. Viga de fundación 20x30cm

19. Carpintería de abedul para administración

20. Abertura de aluminio con DVH 6+12+6. Dos paños proyectantes y dos fijos.

21. Baranda de hierro soldada h:0.90m con pasamanos de metal plegado de 50x100mm para escalera

22. Escalera metálica exterior

23. Recubrimiento escalera. Chapa aluminizada ondulada 24. Terreno natural. Pasto. 25. Superficie natural para cimentación. Tierra. 26. Hormigón llaneado mecanicamente para exteriores

27. Barrera de vapor. Film de Polietileno 28. Aislante térmico. Poliestireno expandido e:4cm 29. Contrapiso armado. Hormigón. 30. Alisado 2cm + imprimación de emulsión asfáltica 31. Membrana asfáltica. Barrera humídica. 32. Separador geotextil + alisado para colocar torretas 33. Torretas o plots extensibles para empalomado 34. Pavimento de hormogón lustrado 35. Soleras de acero galvanizado 36. Placa de yeso para cielorraso pintada de blanco 37. Espuma poliuretanica 38. Angulo C de aluminio 6cm

34 RAUSA

38

2 28

37

2 3 5 6 8 9 8

6 35 36

34 3 5 Construcción 86

UP02
REFERENCIAS
  1 7 7 2 3 5 8 24 25 9 6 D02 D03 13 12 10 26 4 Construcción 87 RAUSA

REFERENCIAS

1. Pavimento empalomado de hormigón armado con microfibra 2. Contrapiso de Hormigón aligerado 3. Steel Deck con malla electrosoldada e: 12,5cm 4. UPN 30 soldado a HEB 5. Viga HEB 240 6. UNION. Pletina metálica con planchuela de espera y anclaje químico. 7. Baranda de hierro soldada h:0.90m con pasamanos de metal plegado de 50x100mm 8. Abertura de aluminio con doble vidriado y camara de aire DVH 6+12+6 9. Pilar metálico HEB 240 con relleno de lana de roca para puente térmico 10. Roller exterior Screen Zip color blanco con protección UV. 11. Abertura con dos paños batientes y doble vidriado hermético. 12. Pilar metálico 10x10cm 13. Vigas metálicas PNI 100 14. Pavimento antideslizante para plataforma de acceso 15. Rampa metalica antideslizante para acceso 16. Pavimento de rejilla metalica electrosoldada tipo orsogril 17. Patin de fundación 1,35x1,35m 18. Viga de fundación 20x30cm 19. Carpintería de abedul para administración 20. Abertura de aluminio con DVH 6+12+6. Dos paños proyectantes y uno fijo. 21. Baranda de hierro soldada h:0.90m con pasamanos de metal plegado de 50x100mm para escalera 22. Escalera metálica exterior 23. Recubrimiento escalera. Chapa aluminizada ondulada 24. Terreno natural. Pasto. 25. Superficie natural para cimentación. Tierra. 26. Hormigón llaneado mecanicamente para exteriores

UP02 CORTE
AXONOMÉTRICO
1 7 7 2
15 16 17 18 20 24 25 10
6
3 4 5 8
9
Construcción 88 RAUSA
Construcción 89 RAUSA

Cielorrasos

Paramentos Pavimentos

CIELORRASOS

1.1 - Placa de yeso verde 12,5 mm + pintura blanca antihongos

1.2 - Cara inferior chapa de sistema Steel Deck

1.3 - Rejilla de hierro electrosoldada tipo orsogril

PARAMENTOS

3.1 - Placa de madera abedul 12,5mm con vetas + terminación polistén.

3.2 - Placa de yeso verde 12,5 mm + pintura blanca antihongos

3.3 - Placa de yeso verde 12,5 mm + cerámico 30x30mm con junta continua.

3.4 - Cortina movil con tela opaca coloreada.

ALUMINIOS

AL01 - Serie Gala de Aluminios del Uruguay. 3 paños proyectante. Vidrios DVH 8+12+8. Terminación pintura color blanco

AL02 - Puerta de acceso. Dos paños batientes. Serie Gala de aluminios del Uruguay 6+12+6. Terminación pintura color blanco.

AL03 - Serie Gala de Aluminios del Uruguay. 2 paños fijos, 1 proyectante. Vidrios DVH 8+12+8. Terminación pintura color blanco

HERRERÍA

H01 - Baranda de hierro soldada h:0.90m con pasamanos de metal plegado de 50x100mm.

H02 - Rejilla electrosoldada tipo orsogril.

H03 - Escalera metálica exterior.

GRANITOS

G01 - Mesada de baños Silestone Miami White e: 1,2cm

G02 - Mesada de cafetería Dekton Sirius negro e:1,2cm

PAVIMENTOS

2.1 - Hormigón llaneado con terminación pulida para interiores.

2.2 - Hormigón llaneado mecanicamente para exteriores

2.3 - Rejilla de hierro electrosoldada tipo orsogril

2.4 - Empalomado de hormigón armado con microfibra.

ZÓCALOS

4.1 - Perfil de aluminio 6cm

CARPINTERÍA

CP01 - Mueble administracion. Mostrador + guardado. Estructura de madera con paneles separadores y estantería en placa de abedul terminación polistén con herrajes de alumino.

CP02 - Mueble cafetería. Mostrador + guardado. Estructura de madera con paneles separadores y estantería en placa de abedul terminación polistén con herrajes de alumino.

CP03 - Placard lavabos. Estructura de madera con paneles separadores y estantería en placa de abedul terminación polistén con herrajes de alumino.

CP04 - Placard depósito. Estructura de madera con paneles separadores, estantería y puertas batientes en placa de abedul terminación polistén con herrajes de alumino.

CP05 - Puerta batiente cortafuegos.

CP06 - Puerta interior en baños 70x270cm revestida en ambas caras con placa de abedul + terminación polistén.

UP03 X01
X05 Pilar HEB 240 AL 01 Pilar HEB 240 Cortina plegable Pilar HEB 240 Pilar HEB 240 Pilar HEB 240 Pilar HEB 240 Pilar HEB 240 Pilar HEB 240 1.2 Cortina plegable Mesas Cafetería AL 01 Cuadro
PLANTA ESC 1:50 AL
x.x x.x x.x x.x
X02 X03 X04
de terminaciones
MOO ALUMINIOS TIPOS DE MUROS CARPINTERÍA XX C XX
Construcción 90 RAUSA
Zócalos H HERRERÍA GRANITOS XX G XX
Pavimento hormigon lustrado 175m2 +0.80m SSHH Ascensor OTIS Servicios Pavimento hormigon lustrado 87,5m2 +0.80m Residuos Banco SSHH accesible Baranda Lavabos Lavabos Anafe Bacha BAR BAR BAR Pilar HEB 240 Pilar HEB 240 Pilar HEB 240 Pilar HEB 240 Pilar HEB 240 Pilar HEB 240 Pilar HEB 240 Pilar HEB 240 ducto Pilar HEB 240 Pilar HEB 240 Pilar HEB 240 Pilar HEB 240 Pilar HEB 240 Pilar HEB 240 Pilar HEB 240 Pilar HEB 240 Pilar HEB 240 Pilar HEB 240 Pilar HEB 240 Pilar HEB 240 Pilar HEB 240 2.1 1.2 2.1 3.2 1.1 2.1 3.2 4.1 M1 M1 M2 M2 M3 M4 M1 M1 M1 M1 M5 M1 1.2 2.1 3.2 1.2 2.1 3.2 1.12.1 3.2 4.1 1.12.1 3.2 4.1 CP 02 CP 03 G 01 VRV UI Casette conducto sistema vrv conducto sistema vrv VRV UI conducto sistema vrv AL 01 AL 01 AL 01 AL 01 AL 01 AL 01 AL 01 AL 01 AL 01 AL 01 AL 01 AL 01 M3 CP 06 CP 06 CP 06 CP 06 CP 06 Construcción 91 RAUSA
CAFETERÍA

CORTE ESC 1:75

DETALLE ESC 1:25

1. Pavimento empalomado de hormigón armado con microfibra

2. Contrapiso de Hormigón aligerado

3. Steel Deck con malla electrosoldada e: 12,5cm

4. UPN 30 soldado a HEB 5. Viga HEB 240

6. UNION. Pletina metálica con planchuela de espera y anclaje químico.

7. Baranda de hierro soldada h:0.90m con pasamanos de metal plegado de 50x100mm

8. Abertura de aluminio con doble vidriado y camara de aire DVH 6+12+6

9. Pilar metálico HEB 240 con relleno de lana de roca para puente térmico

10. Roller exterior Screen Zip color blanco con protección UV.

11. Abertura con dos paños batientes y doble vidriado hermético.

12. Pilar metálico 10x10cm

13. Vigas metálicas PNI 100

14. Pavimento antideslizante para plataforma de acceso

15. Rampa metalica antideslizante para acceso

16. Pavimento de rejilla metalica electrosoldada tipo orsogril

7 REFERENCIAS 7

3 27 36

28 6 10

4 4 28

31 32 33 1 1 3 20 10 RAUSA

30 30 Construcción 92

5 5

8

29 29

UP03
17. Patin de fundación 1,35x1,35m 18. Viga de fundación 20x30cm 19. Carpintería de abedul. Placas 1.22x2.44 20. Abertura de aluminio con DVH 6+12+6. Dos paños proyectantes y dos fijos. 21. Baranda de hierro soldada h:0.90m con pasamanos de metal plegado de 50x100mm para escalera 22. Escalera metálica exterior 23. Recubrimiento escalera. Chapa aluminizada ondulada 24. Terreno natural. Pasto. 25. Superficie natural para cimentación. Tierra. 26. Hormigón llaneado mecanicamente para exteriores 27. Barrera de vapor. Film de Polietileno 28. Aislante térmico. Poliestireno expandido e:4cm 29. Contrapiso armado. Hormigón. 30. Alisado 2cm + imprimación de emulsión asfáltica 31. Membrana asfáltica. Barrera humídica. 32. Separador geotextil + alisado para colocar torretas 33. Torretas o plots extensibles para empalomado 34. Cortina plegable opaca 35. Cortina movil corrediza. Tela translucida de color. 36. Lana de roca.
   1 7 2 3 4 5 19 24 25 9 6 D04 8 19 34 35 35 2 3 4 5 6 10 D04 Construcción 93 RAUSA

REFERENCIAS

1. Pavimento empalomado de hormigón armado con microfibra 2. Contrapiso de Hormigón aligerado 3. Steel Deck con malla electrosoldada e: 12,5cm 4. UPN 30 soldado a HEB 5. Viga HEB 240 6. UNION. Pletina metálica con planchuela de espera y anclaje químico. 7. Baranda de hierro soldada h:0.90m con pasamanos de metal plegado de 50x100mm 8. Abertura de aluminio con doble vidriado y camara de aire DVH 8+12+8 9. Pilar metálico HEB 240 con relleno de lana de roca para puente térmico 10. Roller exterior Screen Zip color blanco con protección UV. 11. Abertura con dos paños batientes y doble vidriado hermético. 12. Pilar metálico 10x10cm 13. Vigas metálicas PNI 100 14. Pavimento antideslizante para plataforma de acceso 15. Rampa metalica antideslizante para acceso 16. Pavimento de rejilla metalica electrosoldada tipo orsogril 17. Patin de fundación 1,35x1,35m 18. Viga de fundación 20x30cm 19. Carpintería de abedul. Placas 1.22x2.44 20. Abertura de aluminio con DVH 6+12+6. Dos paños proyectantes y uno fijo. 21. Baranda de hierro soldada h:0.90m con pasamanos de metal plegado de 50x100mm para escalera 22. Escalera metálica exterior 23. Recubrimiento escalera. Chapa aluminizada ondulada 24. Terreno natural. Pasto. 25. Superficie natural para cimentación. Tierra. 26. Hormigón llaneado mecanicamente para exteriores 27. Barrera de vapor. Film de Polietileno 28. Aislante térmico. Poliestireno expandido e:4cm 29. Contrapiso armado. Hormigón. 30. Alisado 2cm + imprimación de emulsión asfáltica 31. Membrana asfáltica. Barrera humídica. 32. Separador geotextil + alisado para colocar torretas 33. Torretas o plots extensibles para empalomado 34. Cortina plegable opaca 35. Cortina movil corrediza. Tela translucida de color. 36. Estructura metalica perimetral para tanques. 37. Cortina movil translucida de colo38. 38. Tabiquería de acero galvanizado+yeso 12,5mm revestido con placa de abedul en cara exterior. 39. Cielorraso de yeso + pintura blanca antihongos.

37 6

9

36 38 39

1

7 2 3 3

10

24 25

18

4 5 8 17

UP03 CORTE
AXONOMÉTRICO
94 RAUSA
Construcción
Construcción 95 RAUSA
03

DOCENTE ASCESOR

Marcos Lewenstein

UBICACIÓN

Gregorio Aznarez, Maldonado.

AREA

fábrica: 111.664 m2

intervención: 600m2

ESCALA 1:150

CONTENIDO

Cimentación

Planta sobre N+0.80

Planta sobre N+5.00

Planta sobre N+9.20

Planta sobre N+13.40

Detalles constructivos

El esqueleto del proyecto se presenta como un siste ma de vigas y pilares metálicos estandarizados apo yados sobre patines. Este sistema se adapta perfec tamente a la premisa del proyecto de incrustarse en una grilla proyectual, adaptándose a un módulo repli cable en todos los ejes (xyz).

La dimensión de estos perfiles se encontrará dentro de la curva de seguridad, se prevé la posibilidad de expansión, permitiendo construir rápidamente más niveles, sin dejar de lado el carácter resistente de la estructura.

Se terminara por completar el sistema utilizando losas mixtas de Steel deck, sumado al resto de siste mas, como lo son aberturas, tabiquerías y demás.

ESTRUCTURA

Estructura 102 RAUSA
Estructura 103 RAUSA

2.50 2.50

2.50 2.50 2.50 2.50 2.50 2.50 2.50 2.50 5.00 5.00 1,38 1,38

V.FHEB240 RAUSA Estructura sobre PB Esc. 1/150

1,38 2.50 2.50 2.50

Riostra HEB240

HEB240 HEB240

HEB240 HEB240 HEB240 HEB240

HEB240

HEB240 HEB240

HEB240

HEB240 V.FHEB240

P17 HEB240

HEB240

HEB240 HEB240 HEB240 V.FHEB240 V.FHEB240

HEB240

HEB240

1,38 1,38 1,38

V.F - HEB240 HEB240 HEB240 HEB240 HEB240

V.FHEB240 V.FHEB240 V.FHEB240 HEB240 HEB240

P04 HEB240 P05 HEB240 P21 HEB240 P52 HEB240 P53 HEB240 P54 HEB240 P22 HEB240 P23 HEB240 P06 HEB240 P70 HEB240 P71 HEB240 P20 HEB240 P51 HEB240 P69 HEB240 P38 HEB240 P01 HEB240 P02 HEB240 P03 HEB240 P16 HEB240 P18 HEB240 P47 HEB240 P15 HEB240 P37 HEB240 P44 HEB240 P45 HEB240 P46 HEB240 P14 HEB240 P48 HEB240 P49 HEB240 P67 HEB240 P66 HEB240 P19 HEB240 P50 HEB240 P68 HEB240

V.F - HEB240 V.F - HEB240 HEB240

V.FHEB240 HEB240

HEB240 HEB240 HEB240 HEB240 V.FHEB240

V.FHEB240

V.FHEB240

STEEL DECK STEEL DECK STEEL DECK STEEL DECK STEEL DECK STEEL DECK STEEL DECK STEEL DECK

V.FHEB240 HEB240 STEEL DECK STEEL DECK STEEL DECK STEEL DECK STEEL DECK STEEL DECK STEEL DECK STEEL DECK

HEB240 HEB240 HEB240 V.F - HEB240 HEB240 HEB240 HEB240

V.FHEB240

HEB240 Estructura 104

1,38 1,38

HEB240 HEB240 HEB240
HEB240 HEB240 HEB240

2.50 2.50 2.50 2.50 2.50 2.50 2.50 2.50 2.50 2.50 2.50 2.50 2.50

P24 HEB240 P25 HEB240 P26 HEB240

HEB240

V.FHEB240 HEB240 HEB240

HEB240

V.FHEB240 HEB240

V.FHEB240

HEB240

HEB240 HEB240 HEB240 HEB240

V.FHEB240 HEB240 V.FHEB240 HEB240

P07 HEB240 P08 HEB240 P72 HEB240

STEEL DECK STEEL DECK STEEL DECK

HEB240 HEB240 HEB240

HEB240

P39 HEB240 P40 HEB240 P41 HEB240 P55 HEB240

HEB240

HEB240 HEB240

HEB240

HEB240 HEB240 V.FHEB240 HEB240 HEB240

HEB240

P27 HEB240 P28 HEB240 P73 HEB240 RAUSA

P09 HEB240 P10 HEB240 P29 HEB240 P30 HEB240 P60 HEB240 P74 HEB240 P75 HEB240

P11 HEB240 P31 HEB240

HEB240 HEB240 HEB240 HEB240 HEB240 V.F - HEB240 HEB240 HEB240 HEB240 HEB240

HEB240 HEB240

HEB240

P42 HEB240 P43 HEB240

HEB240 HEB240 V.FHEB240 HEB240 HEB240

STEEL DECK STEEL DECK STEEL DECK STEEL DECK STEEL DECK

1,38 1,38 1,38

P32 HEB240 P33 HEB240 P62 HEB240 P61 HEB240 P76 HEB240

HEB240

1,38

HEB240 HEB240 HEB240 HEB240 HEB240

HEB240 HEB240 HEB240 HEB240 HEB240 V.F - HEB240 HEB240

HEB240

1,38 1,38

P12 HEB240 P13 HEB240 P63 HEB240 P64 HEB240 P65 HEB240

P34 HEB240 P35 HEB240 P36 HEB240 P77 HEB240 P78 HEB240

HEB240

P56 HEB240 P57 HEB240 P58 HEB240 P59 HEB240 Estructura 105

Fachada Sur

STEEL DECK STEEL DECK STEEL DECK STEEL DECK STEEL DECK STEEL DECK STEEL DECK STEEL DECK STEEL DECK STEEL DECK

2.50 2.50 2.50 2.50 2.50

P15 HEB240 P37 HEB240 P44 HEB240 P45 HEB240

VHEB240 VHEB240 VHEB240

Tubular 10x10 P68 HEB240 RAUSA Estructura sobre N1 Esc. 1/150

P01 HEB240 P02 HEB240 P03 HEB240 P16 HEB240 P17 HEB240 P18 HEB240 P47 HEB240

VHEB240 VHEB240 VHEB240 VHEB240 VHEB240

P38 HEB240

V - HEB240 V HEB240 V - HEB240 V - HEB240 V - HEB240 V - HEB240 V - HEB240

P19 HEB240 P50 HEB240 Tubular 10x10 Tubular 10x10 Tubular 10x10 Tubular 10x10 Tubular 10x10 Estructura 106

P14 HEB240 P48 HEB240 P49 HEB240 P67 HEB240 P66 HEB240

P46 HEB240

VHEB240

VHEB240 VHEB240 VHEB240 VHEB240 VHEB240 VHEB240 VHEB240 VPNI100 VPNI100 VPNI100 VHEB240

V - PNI100 V - PNI100

VHEB240

VHEB240 VHEB240 VHEB240 VHEB240 VHEB240

P22 HEB240 P23 HEB240

2.50 2.50 2.50 2.50 2.50 2.50 2.50 2.50 2.50 2.50 2.50 2.50 V - HEB240 VHEB240 V 154HEB240

P06 HEB240 P70 HEB240 P71 HEB240

STEEL DECK STEEL DECK STEEL DECK STEEL DECK STEEL DECK STEEL DECK STEEL DECK STEEL DECK

VHEB240

VHEB240 VHEB240 VHEB240 VHEB240

V - HEB240 V - HEB240 V - HEB240 V - HEB240

P05 HEB240 P21 HEB240 P52 HEB240 P53 HEB240 P54 HEB240

2.50 2.50 2.50 2.50 2.50 2.50 2.50 2.50 2.50 2.50 2.50 2.50 2.50

V - HEB240 V - HEB240

P24 HEB240 P25 HEB240

STEEL DECK STEEL DECK STEEL DECK STEEL DECK

V - HEB240 V - HEB240

P26 HEB240

STEEL DECK STEEL DECK STEEL DECK STEEL DECK

P12 HEB240 P13 HEB240

VHEB240 VHEB240 VHEB240 VHEB240 VHEB240 VHEB240 VHEB240

VHEB240 VHEB240

VHEB240 VHEB240 VHEB240

P07 HEB240 P08 HEB240 P72 HEB240

VHEB240 VHEB240 VHEB240 VHEB240 VHEB240 VHEB240

P11 HEB240 P31 HEB240

P39 HEB240 P40 HEB240 P41 HEB240 P55 HEB240

STEEL DECK STEEL DECK STEEL DECK STEEL DECK STEEL DECK STEEL DECK

VHEB240

P27 HEB240 P28 HEB240 P73 HEB240 RAUSA

VHEB240 VHEB240 VHEB240 VHEB240 VHEB240 VHEB240 VHEB240 VHEB240

P42 HEB240 P43 HEB240

P32 HEB240 P33 HEB240 P62 HEB240 P61 HEB240 P76 HEB240

STEEL DECK STEEL DECK STEEL DECK STEEL DECK

VHEB240

VHEB240 VHEB240 VHEB240 VHEB240 VHEB240

HEB240 V - HEB240 V - HEB240 V - HEB240 V - HEB240 V - HEB240 V - HEB240 V - HEB240 V - HEB240 V - HEB240 V - HEB240 V - HEB240 V - HEB240 HEB240

Fachada Sur

VHEB240

VHEB240 VHEB240 VHEB240 VHEB240

P34 HEB240 P35 HEB240 P36 HEB240 P77 HEB240 P78 HEB240

P56 HEB240 P57 HEB240 P58 HEB240 P59 HEB240 Estructura 107

P63 HEB240 P64 HEB240 P65 HEB240

P09 HEB240 P10 HEB240 P29 HEB240 P30 HEB240 P60 HEB240 P74 HEB240 P75 HEB240

2.50 2.50 2.50 2.50 2.50

2.50 2.50 2.50 2.50 2.50 2.50 2.50 2.50 2.50 2.50 2.50 2.50

V - HEB240 V - HEB240

V - HEB240 V - HEB240

VHEB240 VHEB240 VHEB240 VHEB240

V - HEB240

V - HEB240 V - HEB240

STEEL DECK STEEL DECK STEEL DECK STEEL DECK

VHEB240 VHEB240 VHEB240 VHEB240 VHEB240 VHEB240

V - HEB240 V - HEB240

STEEL DECK STEEL DECK STEEL DECK STEEL DECK STEEL DECK

VHEB240

Tubular 10x10 RAUSA Estructura sobre N2 Esc. 1/150

V - HEB240 V - HEB240 V - HEB240 V - HEB240

VHEB240 VHEB240 VHEB240 VHEB240 VHEB240

STEEL DECK

VHEB240

Tubular 10x10 Tubular 10x10 Tubular 10x10 Tubular 10x10 Tubular 10x10 Estructura 108

VPNI100 VPNI100 VPNI100

VHEB240 VHEB240 VHEB240 VHEB240 VHEB240

VHEB240

VHEB240 VHEB240 VHEB240 VHEB240

V - HEB240 V - HEB240

V - PNI100 V - PNI100

2.50 2.50 2.50 2.50 2.50 2.50 2.50 2.50 2.50 2.50 2.50 2.50 2.50

V - HEB240 V - HEB240 V - HEB240 V - HEB240 V - HEB240 V - HEB240 HEB240

VHEB240

VHEB240

VHEB240 VHEB240 VHEB240 VHEB240 VHEB240

VHEB240

VHEB240 VHEB240 VHEB240 VHEB240 VHEB240

VHEB240 VHEB240

VHEB240

VHEB240

VHEB240 VHEB240 VHEB240 VHEB240 VHEB240

V - HEB240 V - HEB240 V - HEB240 V - HEB240 V - HEB240 V - HEB240

STEEL DECK STEEL DECK STEEL DECK STEEL DECK STEEL DECK STEEL DECK RAUSA

VHEB240

VHEB240 VHEB240 VHEB240 VHEB240 VHEB240

VHEB240

VHEB240 VHEB240 VHEB240 VHEB240 VHEB240 VHEB240

VHEB240 VHEB240 VHEB240

HEB240 V - HEB240 V - HEB240 V - HEB240 V - HEB240 V - HEB240 V - HEB240

VHEB240

Fachada Sur

STEEL DECK Estructura 109

STEEL DECK STEEL DECK STEEL DECK STEEL DECK STEEL DECK STEEL DECK STEEL DECK STEEL DECK STEEL DECK

2.50 2.50 2.50 2.50 2.50

2.50 2.50 2.50 2.50 2.50 2.50 2.50 2.50 2.50 2.50 2.50 2.50

V - HEB240 V - HEB240

P15 HEB240 P37 HEB240 P44 HEB240 P45 HEB240

V - HEB240

VHEB240

V - HEB240 V - HEB240

P38 HEB240

P46 HEB240

VHEB240 VHEB240 VHEB240 VHEB240 VHEB240

P14 HEB240 P48 HEB240 P49 HEB240 P67 HEB240 P66 HEB240 Estructura 110

P19 HEB240 P50 HEB240 P68 HEB240 RAUSA Estructura sobre Azotea Esc. 1/150

V HEB240 V HEB240

P01 HEB240 P02 HEB240 P03 HEB240 P16 HEB240 P17 HEB240 P18 HEB240 P47 HEB240

V - HEB240 V - HEB240 V - HEB240 V - HEB240

VHEB240 VHEB240 VHEB240 VHEB240 VHEB240 VHEB240

P05 HEB240 P21 HEB240

VHEB240

VHEB240

VHEB240 VHEB240 VHEB240 VHEB240 VHEB240

P22 HEB240 P23 HEB240

VHEB240

P06 HEB240 P70 HEB240 P71 HEB240

V - HEB240 V - HEB240 VHEB240 VHEB240 VHEB240 VHEB240

VHEB240 VHEB240 VHEB240 VHEB240

V - HEB240 V - HEB240

P52 HEB240 P53 HEB240 P54 HEB240

2.50 2.50 2.50 2.50 2.50 2.50 2.50 2.50 2.50 2.50 2.50 2.50 2.50

P24 HEB240 P25 HEB240

VHEB240

VHEB240

P26 HEB240

VHEB240

HEB240 V - HEB240

P07 HEB240 P08 HEB240 P72 HEB240

V - HEB240 V - HEB240 V - HEB240 V - HEB240 V - HEB240 V - HEB240 HEB240

VHEB240 VHEB240 VHEB240 VHEB240 VHEB240

VHEB240 VHEB240 VHEB240 VHEB240 VHEB240

STEEL DECK STEEL DECK

VHEB240 VHEB240

VHEB240

P39 HEB240 P40 HEB240 P41 HEB240 P55 HEB240

VHEB240

VHEB240 VHEB240 VHEB240 VHEB240 VHEB240

V HEB240 V HEB240 V HEB240

P11 HEB240 P31 HEB240

P12 HEB240 P13 HEB240

V - HEB240 V - HEB240 V - HEB240

STEEL DECK STEEL DECK STEEL DECK STEEL DECK STEEL DECK

VHEB240

P27 HEB240 P28 HEB240 P73 HEB240 RAUSA

P42 HEB240 P43 HEB240

VHEB240 VHEB240 VHEB240 VHEB240 VHEB240

VHEB240

VHEB240 VHEB240 VHEB240 VHEB240 VHEB240 VHEB240

P32 HEB240 P33 HEB240 P62 HEB240 P61 HEB240 P76 HEB240

VHEB240 VHEB240 VHEB240

VHEB240

P63 HEB240 P64 HEB240 P65 HEB240

V - HEB240 V - HEB240 V - HEB240 V - HEB240 V - HEB240

P34 HEB240 P35 HEB240 P36 HEB240 P77 HEB240 P78 HEB240

P56 HEB240 P57 HEB240 P58 HEB240 P59 HEB240 Estructura 111

Fachada Sur

P09 HEB240 P10 HEB240 P29 HEB240 P30 HEB240 P60 HEB240 P74 HEB240 P75 HEB240

Detalle 01

HEB240 01 _ Cesped 02 _Sustrato de suelo, mecla de suelo organico y mineral 03 _Capa intermedia de arena 04 _Tierra Compactada 05 _Pilar metalico HEB 240 06 _Platina metalica de espera 07 _Platina de fiación metalica con varillas roscadas 08 _Anclaje de platina metalica con varillas roscadas 09 _Tuerca y contratuerca de fijación para nivelar altura 10 _Espacio para mortero de nivelación 11 _Rigidizadores metalicos soldados a pilar 12 _Armadura pilar de fundación Hormigon Armado 13 _Armadura secundaria pilar H.A estribos Φ8 cada 14cm 14 _Fundación patin de Hormigon Armado( 1,38x1,38m ) 15 _Armadura inferior patin con recubrimiento de 4cm 16 _Relleno de suelo organico compacto 17 _Hormigon C20 de limpieza 18 _Suelo Organico 19 _Platina Metalica para conformar seccion Cuadrada

Metalico

06 07 RAUSA

04

44cm 138cm

05 11 19

06 09 08 09 10 11

05 02 03 18 17 18 16

44cm 138cm 138cm

16

08

01 12 14 15 14 15

13 Estructura 112

12 13

Conexión Patin Hormigon Armado con Pilar

Detalle 02

Solución constructiva Losa mixta, Steel Deck

Un conector por Valle

Ancho de cada Chapa Perfil HEB240

Stud Bolt

Stud Bolt

Relleno Hormigon

Armadura Superior

Perfil HEB240

Chapa de Steel Deck Calibre 0.9mm

Fijación lateral de la chapa a las vigas en todos los valles

Perfil HEB240

Fijación a las viguetas en todoslos valles mediante clavo de disparo

Malla Electrosoldada Ø4.2/0.15

Stud Bolt 150 76 25 74

Perfil HEB240 Perfil HEB240

Relleno Hormigon

Estructura 113 RAUSA
04

DOCENTE ASCESOR

Daniel Garcén

UBICACIÓN

Gregorio Aznarez, Maldonado.

AREA

fábrica: 111.664 m2 intervención: 600m2

El sistema de desagues será suspendido utulizando cañerias de PVC con sus respectivas características. Para evitar problematicas de coordinacion, el sistema pasa por debajo del nivel de viga, contenida en un cie lorraso de yeso. Los desagues se direccionan hacia la camará de inspección correspondiente, luego hacia una fosa séptica para el tratamiento de los solidos, y por ultimo hacia un campo de infiltración. En el sistema de abastecimiento de agua, las ruberías estarán dentro de la tabiquería liviana, perforando la perfilería de acero galvanizado cuando sera necesario, y por contrapiso en los sectores que sae necesario. La cañería será de polipropileno termousionado (PPT) con sus respectivos espesores. Para el agua caliente sanitaria, se utilizará unicamen te un termotanque de 1000lts, debido a que solo abastecerá al sector de cafetería.

SANITARIO

ESCALA 1:150 CONTENIDO Axonometrica Conexión a linea de OSE + ubicacion fosa séptica Planta N+0.00 Planta N+0.80 Planta N+5.00 Planta N+9.20 Planta N+13.40 Detalle baños Detalle fosa séptica
Sanitario 118 RAUSA
Sanitario 119 RAUSA

REFERENCIAS

SD

Abastecimiento de agua directa Abastecimiento de agua derivada Agua caliente sanitaria Pluviales

Desague primaria Desague secundaria Ventilación

Cámara de inspección 60x60cm Cámara de inspección 110x60cm

Cámara de inspección 110x60cm con sifón desconector

Boca de desague abierta Boca de desague tapada Pileta de patio abierta Caja sifonada abierta Caja sifonada cerrada Interceptor de grasas Pileta de baño Inodoro

Medidor OSE. Consumo de agua Desvío pluvial Bomba Llave de paso Grifo de agua

Sanitario 120 RAUSA

CONEXIÓN A OSE POR CALLE 7

TRATAMIENTO DE AGUAS NEGRAS SANITARIAS Fosa Séptica + infiltracion a terreno Sanitario 121
CI NRO 1 RAUSA

TANQUE INFERIOR + BOMBEO 2500LTS

CÁMARA PARA BOMBA DE DESAGUE

BDT BDT

                                                    LLP
BDT BDT
Sanitario 122 RAUSA Planta Baja +0.80 Esc. 1/150
BDT
BDT
                                                                   
C.I.
D.PVC 110 P:2% L: 9.72m. D.PVC 110 P:2%
CSA IP Lo IP IP IP Lo Lo Lo Lo D.PVC 110 pend 2% D.PVC63pend2% D.PVC 40 D.PVC 40 CSA IG BDT PPT V.PVC 50 R.E. PVCØ50 h: 13.9m. sobre NPT BDT PLUVIALES Ø110 AREA DE INFILTRAICON 70m2 SD. PLANTA DE TRATAMIENTO
R.A. VØ50 R.A. VØ50 VENTILACION FOSA BAJADA PRIMARIA PVCØ110 LLP LLP TERMOTANQUE 110 LTS Sanitario 123 RAUSA
C.I. No. T= Ze= Zs= 01 0.60x0.60 0.00 -0.40 -0.46
No. T= Ze= Zs= 02 0.60x0.60 0.00 -0.19 -0.25
L: 7.30m.
ESTANQUE DE ALMACENAMIENTO DE AGUAS PLUVIALES POZO DE BOMBEO HACIA TANQUE SUPERIOR
                                                    Sanitario 124 RAUSA Planta Nivel 1 +5.00 Esc. 1/150
                                                                       CSA IP Lo IP IP IP Lo Lo Lo D.PVC 110 pend 2% D.PVC63pend2% D.PVC 40 D.PVC 40 CSA R.E. PVCØ50 h: 13.9m. sobre NPT BAJADA PRIMARIA PVCØ110 LLP LLP Sanitario 125 RAUSA
                                         Sanitario 126 RAUSA Planta Nivel 2 +9.20 Esc. 1/150
                                                                           CSA IP Lo IP IP IP Lo Lo D.PVC63pend2% D.PVC 40 D.PVC 40 CSA R.E. PVCØ50 h: 13.9m. sobre NPT BAJADA PRIMARIA PVCØ110 LLP LLP PLUVIALES 2 PVC Ø160 Reguera Pend. 1% reguera Pend. 1% reguera Pend. 1% reguera Pend. 1% Sanitario 127 RAUSA
  
                                      Sanitario 128 RAUSA Planta Azotea +13.40 Esc. 1/150

PLUVIALES

reguera Pend. 1% RAUSA

reguera Pend. 1% reguera Pend. 1% Sanitario 129

                                
                        
  
3 tanques de 2500 lts bypass 1 tanque de 2500 lts para aguas pluviales
Dren Dren Dren Dren 2 VRV unidades ext. CSA IP Lo IP IP IP Lo Lo D.PVC63pend2%
2 PVC Ø160 Reguera Pend. 1% reguera Pend. 1% 3 tanques de 2500 lts bypass 1 tanque de 2500 lts para aguas pluviales reguera Pend. 1% reguera Pend. 1%
Dren Dren Dren Dren 2 VRV unidades ext.
D.PVC 40 D.PVC 40 CSA R.E. PVCØ50 h: 13.9m. sobre NPT
BAJADA PRIMARIA PVCØ110 LLP LLP
PLUVIALES 2 PVC Ø160 Reguera Pend. 1%
PLANTA DE TRATAMIENTO CI Nro 1 CI Nro 2 RA fosa RA ci nro 1 RE ventilacion final IG BDT BDT RA Sec. BDT Agua cal. Agua fria. Agua fria. Agua fria. Agua fria. Agua fria. Agua fria. PVC 110 PVC 110 PVC 110 CSA CSA Sanitario 130 RAUSA Sección Esc. 1/150
ESTANQUE DE ALMACENAMIENTO DE AGUAS PLUVIALES Sanitario 131 RAUSA

PLANTA DE TAPAS ESCALA 1/25

PVCØ160 DE RED PREDIAL

A

PVC Ø110(V) A REJILLA DE ASPIRACION

SIFON DESCONECTOR PVC Ø 160

TEE PVC Ø160 p=10%

PLANTA ESCALA 1/25

TAPA Y CONTRATAPA 60x60 (INSPECCION)

PVC Ø110(V) A REJILLA DE ASPIRACION

PVCØ160

SIFON DESCONECTOR PVC Ø 160

CORTE A-A ESCALA 1/25

CORTE B-B ESCALA 1/25

TAPA Y CONTRATAPA 60x60 (INSPECCION)

TAPA 60x60

B B

PVCØ110 DESCARGA SISTEMA DE INFILTRACION

PVC Ø110(V) A REJILLA DE ASPIRACION

PVC Ø110(V) A COLUMNA DE VENTILACION

LOSA H.A. e=0.12

PVC Ø110(V) A COLUMNA DE VENTILACION

TEE PVC Ø160 (DESOBSTRUCCION)

LOSA H.A. e=0.12

PVC Ø110(V) A COLUMNA DE VENTILACION

p=10% P=10%

TAPA Y CONTRATAPA 60x60 (INSPECCION)

TAPA Y CONTRATAPA 60x60 (INSPECCION)

A TI

PVC Ø110(V) A REJILLA DE ASPIRACION

V útil=7.2m³

P=10%

TEE PVC Ø110 (DESOBSTRUCCION)

PVC Ø110 A SISTEMA DE INFILTRACION

TAPA Y CONTRATAPA 60x60 (INSPECCION)

TEE PVC Ø160 (DESOBSTRUCCION)

V útil=7.2m³

PLANTA DE TRATAMIENTO A INFILTRACION
Sanitario 132 RAUSA Detalle Planta Tratamiento Esc. 1/50
PLANTA DE TRATAMIENTO TERRENO NATURAL MATERIAL DRENANTE GEOTEXTIL PANTALLA DE HORMIGON RELLENO CON MATERIAL DE LA ZONA PLANTA ESCALA 1/50 CORTE A-A ESCALA 1/50 A A B B 1.80 1.6 1.60 5.90 7.44 0.15 7.41 Z=-6.07 CAMARA INSPECCION SISTEMA DE INFILTRACION CAMARA INSPECCION SISTEMA DE INFILTRACION CAMARA INSPECCION SISTEMA DE INFILTRACION SISTEMA DE INFILTRACION CORTE B-B ESCALA 1/50 7.77 MATERIAL DRENANTE TERRENO NATURAL RELLENO CON MATERIAL DE LA ZONA CAMARA INSPECCION SISTEMA DE INFILTRACION CAMARA INSPECCION SISTEMA DE INFILTRACION 1 1.5 1 1.5 CUNETA 0.90 AREA DE INFILTRAICON 70m2 CAMARA INSPECCION SISTEMA DE INFILTRACION CAMARA INSPECCION SISTEMA DE INFILTRACION 7.00 12.92 16.00 A Sanitario 133 RAUSA Detalle Campo de Infiltración Esc. 1/50
05

DOCENTE ASCESOR

Santiago García

UBICACIÓN

Gregorio Aznarez, Maldonado.

AREA

fábrica: 111.664 m2

intervención: 600m2

ESCALA 1:150

CONTENIDO

Axonométrica

Dimensionado de equipos

Catálogo

Planta N+0.80

Planta N+5.00

Planta N+9.20

Planta N+13.40

Para el proyecto se utilizara un sistema vrv, ambien tando todo el edifico térmicamente a partir de la utili zación de diferentes tipos de unidades interiores, dando así una flexibilidad prevista, dependiendo del espacio, el uso y sus usuarios. Se tendrá en cuenta el acondicionamiento natural como un recurso a ser aprovechado. El proyecto adopta estrategias proyectuales de implantación, tecnologías de aberturas, y enfriamientos de fachadas, a modo de complementar el acond. Artificial. Renovación de aire, ventilación cruzada, aclimatación se generaran a partir de estrategias proyectuales.

TÉRMICO

Térmico 138 RAUSA
Térmico 139 RAUSA

Sector 01

Hall Acceso_ Área: 27.3m2 TR:1.4

x1 Unidad de piso Daikin TR:1.6 (FXLQ50MAVE)

Total_ TR:1.6

Sector 03

Circulación / Servicio Área: 81m2 TR:4.05

Sector 02

Sector 01

Sector 02

Unidades Interiores_

x2 Cassete Techo Suspendida 4Vias TR:3.6 (FXUQ100AVEB)

Cafeteria_ Área: 145m2 TR:7.2 Total_ TR:7.2

Sector 04

Unidades Interiores_ Unidades Interiores_

x4 Unidad de techo Suspendida TR:1.03 (FXLQ50MAVE)

Total_ TR:4.12

Unidad Exterior 1

Sector 01_ TR: 1.4

Sector 02_ TR: 7.2

Sector 03_ TR: 4.12

Sector 04_ TR: 7.2

Total_ TR: 19.92

Unidad Exterior 1

VRV Daikin, Bomba de Calor (RHXYQ26AYL)

Total_ TR: 20.75

Extracción Mecanica

Sección (m2)= Caudal / Velocidad

Caudal = Vol. de Local x Cambio por Hora (CPH)

A- Cafeteria

Vol.:23.3 x 3.8= 88.54m3

CPH:10

Caudal: 88.54m3 x 10 cph = 885.4

Sección: (885.4m3/h) / (21.600m/h)= 0.04m2

Ramal: √ 0.04 = 20x20cm

x2 Cassete Techo Suspendida 4Vias TR:3.6 (FXUQ100AVEB)

Play Room_ Área: 120m2 TR:6.0 Total_ TR:7.2

B- Baños PB

Vol.:22.86 x 2.7= 61.7m3

CPH:10

Caudal: 61.7m3 x 10 cph = 617 Sección: (617m3/h) / (21.600m/h)= 0.02m2

Ramal: √ 0.02 = 17x17cm

Unidades Interiores_

x3 Cassete Techo Suspendida 4Vias TR:2.5 (FXUQ100AVEB)

Mesas Cafe_ Área: 145m2 TR:7.2 Total_ TR:7.5

Sector 03

Eventos / Reunion_

Circulación / Servicio

Área: 81m2 TR:4.05

Unidades Interiores_ Total_ TR:4.12

x4 Unidad de techo Suspendida TR:1.03 (FXLQ50MAVE)

Unidades Interiores_

x2 Cassete Techo Suspendida 4Vias TR:3.6 (FXUQ100AVEB)

Área: 120m2 TR:6.0 Total_ TR:7.2

Unidad Exterior 2

Sector 01_ TR: 7.5

Sector 02_ TR: 7.2

Sector 03_ TR: 4.12

Total_ TR: 18.82

Unidad Exterior 2

VRV Daikin, Bomba de Calor (RHXYQ26AYL)

Total_ TR: 20.75

C- Baños N1

Vol.:46.6 x 2.7= 125.8m3

CPH:10

Caudal: 125.8m3 x 10 cph = 1258 Sección: (1258m3/h) / (21.600m/h)= 0.06m2

Ramal: √ 0.06 = 25x25cm

D- Baños N2

Vol.:68.58 x 2.7= 185.1m3

CPH:10

Caudal: 185.1m3 x 10 cph = 1851 Sección: (1851m3/h) / (21.600m/h)= 0.08m2 Ramal: √ 0.08 = 30x30cm

Diagrama general de distribución Planta
Baja Nivel 01 Sector 01 Sector 02 Sector 03 Sector 04 Sector 01 Sector 02 Sector 03
Térmico 140 RAUSA

Unidad Exterior

Marca: DAIKIN

Modelo: 26HP RHXYQ28AYL

Dimensiones: 1657 x 930 x 765

Capacidad de Enfriamiento: 249.000 btu/h

Capacidad de Calentamiento: 278.000 btu/h

Consumo: 16.7 Kw - 17.8 Kw

Cantidad: 2 unidades

Unidad Interior

Marca: DAIKIN

Modelo: Unidad de piso vista (FXLQ50MAVE)

Dimensiones: 600 x 1140 x 222

Capacidad de Enfriamiento: 19.100 btu/h

Capacidad de Calentamiento: 21.500 btu/h

Consumo: 0.105 Kw - 0.105 Kw

Cantidad: 1 unidad

Ducto Ventilación

Tipo: Ducto de ventilación prefrabricado en acero galvanizado

Dimensiones: según plantas de acond. térmico.

Ubicación: Servicios PB, Cafeteria PB, Servicios N1, Servicios N2 Suspendido bajo Steel Deck.

Ventilador Extracción

Marca: Greenheck

Modelo: G 120HP - C 5

Caudal Maximo: 1179 m³ / h

Ubicación: Cafeteria Planta Baja Consumo: 0.09 Kw

Unidad Interior

Marca: DAIKIN

Modelo: Cassete Techo Suspendida 4 vias (FXUQ100A) - (FXUQ71AVEB)

Dimensiones: 198 x 950 x 950

Capacidad de Enfriamiento: 27300 btu/h - 38200 btu/h Capacidad de Calentamiento: 30700 btu/h - 42700 btu/h

Consumo: 0.200 Kw - 0.179 Kw

Cantidad: 9 unidades

Unidad Interior

Marca: DAIKIN

Modelo: Unidad en techo suspendido (FXHQ32MAVE)

Dimensiones: 195 x 960 x 680 Capacidad de Enfriamiento: 12,300 btu/h

Capacidad de Calentamiento: 13,600 btu/h

Consumo: 0.142 Kw - 0.142 Kw

Cantidad: 8 unidades

Ventilador Extracción

Marca: Greenheck

Modelo: G 120HP - B 5

Caudal Maximo: 2045 m³ / h

Ubicación: Baños Planta Baja, Nivel 1 y Nivel 2

Consumo: 0.09 Kw

Rejilla Extracción Aire

Marca: Trox

Modelo: TRS - R

Dimensiones: 825x125 mm

Ubicación: Ductos de ventilacón en Cafeteria y Baños

Térmico 141 RAUSA

U.I Tipo Cassete

Conducto de liq.

Térmico 142 RAUSA Planta Baja +0.80 Esc. 1/150

Refrigerante

Ducto Extracción RAUSA

U.I Tipo Cassete U.I Tipo Cassete

U.I de Techo U.I de Techo U.I de Techo Térmico 143

U.I Tipo Cassete U.I de Techo

Conducto de RAUSA Planta Nivel 1 +5.00 Esc. 1/150

U.I Tipo Cassete U.I Cassete Térmico 144

U.I de Techo U.I de Techo de liq. Refrigerante Ducto Extracción

Tipo Cassete U.I Tipo Cassete

U.I de Techo U.I de Techo

U.I Tipo Cassete U.I Tipo Cassete

Térmico 145 RAUSA
Térmico 146 RAUSA Planta Nivel 2 +9.20 Esc. 1/150
Térmico 147 RAUSA
Ducto Extracción
Térmico 148 RAUSA Planta Azotea +13.40 Esc. 1/150

Conducto de liq. Refrigerante

Unidades Exteriores. 2 VRV

Térmico 149 RAUSA
06

DOCENTE ASCESOR

Alejandro Vidal

UBICACIÓN

Gregorio Aznarez, Maldonado.

AREA fábrica: 111.664 m2 intervención: 600m2

ESCALA

Entendemos la iluminación como un factor de am bientación importante a la hora de completar los espacios, tanto interiores como exteriores.

La iluminación se conformará entre luminarias de diseño y luminarias complementaria de servicio.

En el interior se realiza un trabajo sobre las fachadas, aprovechando el carácter vidriado, para iluminar y resaltar todo el perímetro del edificio, sumado a la combinación de iluminación puntual y difusa en los espacios de actividad.

Se opta por un sistema de luminarias adosadas en todo el espacio público del edificio, solo optando por luminarias empotradas en cielorraso en ficha de ser vicio.

En el exterior se resaltará tanto las camineras y espa cios de transición como los espacios de actividad e interacción, optando por la misma lógica interior, luminarias de diseño, realzando espacios puntuales complementadas con luminarias de servicio.

LUMÍNICO

luminarias
1:150 CONTENIDO Axonometrica Catálogo de
Planta N+0.00 Planta N+0.80 Planta N+5.00 Planta N+9.20 Planta N+13.40
Lumínico 154 RAUSA
Lumínico 155 RAUSA

PLAY SURFACE

Colocación: Adosado en Steel Deck

Dimensiones: 7,3 x 20 cm

Color: Blanco

Potencia: 14.9W

Flujo Luminico: 1311Lm

Rendimiento Luminico: 87.9 Lm/W

CCT: 3000K

INTERIOR

Ubicación: Hall Acceso, Fachadas, Cafeteria

AL_02

PLAY DECO

LEDS C4

Colocación: Adosado en Steel Deck

Dimensiones: 7,2 x 20 cm

Color: Blanco Potencia: 8.6W

Flujo Luminico: 1319Lm Rendimiento Luminico: 153.4 Lm/W CCT: 2700K

INTERIOR

Ubicación: Fachada acceso , Ficha Servicio

AL_03

ATOM TRACK

LEDS C4

Colocación: Suspendida en Riel

Dimensiones: 7,5 x 18.5 cm

Color: Blanco Potencia: 28W

Flujo Luminico: 1567Lm

Rendimiento Luminico: 55.9 Lm/W CCT: 3000K

INTERIOR

Ubicación: Hall acceso, Play Room, Exposición

AL_04

LUNO / VOL

AL_06 LEDS C4

Colocación: Adosado en Steel Deck

Empotrada en Cielorraso

Dimensiones: 40 x 12.7 cm

Color: Blanco Potencia: 27.16W

Flujo Luminico: 2388Lm Rendimiento Luminico: 87.9 Lm/W

CCT: 4000K

INTERIOR

Ubicación: General, Servicios, Baños

AL_05

PIPE

LEDS C4

Colocación: Adosado en Steel Deck

Dimensiones: 6.8X17.2 cm

Color: Negro Potencia: 50W

Flujo Luminico: 370Lm Rendimiento Luminico: 7.4 Lm/W CCT: 3000K

INTERIOR

Ubicación: Cafeteria

AL_07

PLAY SURFACE

LEDS C4

Colocación: Empotrado en Cielorraso

Dimensiones: 9x11 cm

Color: Blanco Potencia: 14.9W

Flujo Luminico: 1311Lm Rendimiento Luminico: 87.9 Lm/W CCT: 3000K

INTERIOR

Ubicación: Baños

0° 15° 30° 45° 45° 30° 15° 1600 2000 2400 η = 100 %
45° 30° 15° 4000 6000 8000 10000 η
% 0° 15° 30° 45°
75° 60° 45° 30° 15° 1000 1500 2000 2500 3000 η
%
0° 15° 30° 45° 60° 75° 90° 90° 75° 60° 45° 30° 15° 160 240 320 400 η = 100 %
0° 15° 30° 45° 60° 75° 90° 90° 75° 60°
= 100
60° 75° 90°
= 100
0° 15° 30° 45° 60° 75° 90° 105° 105° 90° 75° 60° 45° 30° 15° 800 1200 1600 2000 η = 100 % 0° 15° 30° 45° 60° 75° 90° 90° 75° 60° 45° 30° 15° 2000 3000 4000 5000 η = 100 %
C4
AL_01 LEDS
Lumínico 156 RAUSA

AL_11

LEDS C4

Colocación: Empotrada en suelo

Dimensiones: 12.5cm

Color: Acero Inox.

Potencia: 1W

Flujo Luminico: 39Lm

Rendimiento Luminico: 39 Lm/W

CCT: 3500K

EXTERIOR

Ubicación: Acceso, Plaza

Publica

AL_12

INFINITE LED

LEDS C4

Colocación: Adosada a Vigas

Dimensiones: 170 x 9 x 5 cm

Color: Blanco

Potencia: 26W

Flujo Luminico: 3406Lm

Rendimiento Luminico: 131Lm/W

CCT: 3000K

EXTERIOR

Ubicación: Acceso, Nivel 3

AL_13

NEWTON

LEDS C4

Colocación: De pie

Dimensiones: 16 x 80 cm

Color: Blanco

Potencia: 16.71W

Flujo Luminico: 572Lm

Rendimiento Luminico: 34.25Lm/W

CCT: 3000K

EXTERIOR

Ubicación: Camineria

AL_14 LEDS

LYON

C4

Colocación: De Pie

Dimensiones: 94x12.6 cm

Color: Negro Potencia: 59W

Flujo Luminico: 3237 Lm

Rendimiento Luminico: 54.9 Lm/W CCT: 3000K Ubicación: Faja Verde

EXTERIOR

AL_15

PROUD Symmetrical

LEDS C4

Colocación: De Pie

Dimensiones: 44x46.5 cm

Color: Negro Potencia: 92.28W

Flujo Luminico: 6328Lm

Rendimiento Luminico: 68.57 Lm/W CCT: 3000K

EXTERIOR

Ubicación: Plaza

FLAG

Colocación: En pared, Suspendida

Dimensiones: 30.8x23.4 cm

Color: Blanco Potencia: 3W CCT: 4000K

Ubicación: Todo el Edificio

15° 30° 45° 60° 75° 90° 90° 75° 60° 45° 30° 15° 100 150 200 250 300 η = 100 % 0° 15° 30° 45° 60° 75° 90° 105° 120° 135° 150° 165° 180° 165° 150° 135° 120° 105° 90° 75° 60° 45° 30° 15° 40 60 80 100 η = 100 % 0° 15° 30° 45° 60° 75° 90° 90° 75° 60° 45° 30° 15° 200 300 400 500 η = 100 % 0° 15° 30° 45° 60° 75° 90° 105° 105° 90° 75° 60° 45° 30° 15° 200 300 η = 100 % 0° 15° 30° 45° 60° 75° 90° 105° 120° 135° 150° 165° 180° 165° 150° 135° 120° 105° 90° 75° 60° 45° 30° 15° 20 30 40 50 η = 34 %
AL_00
LEDS C4 INTERIOR GEA LED STEP
Lumínico 157 RAUSA

AL_15

AL_15

AL_15

AL_14 AL_14 AL_14

AL_15 AL_15

AL_12

AL_15 AL_13 Lumínico 158

AL_11 AL_11 AL_11 AL_11 AL_11 AL_11 AL_11 AL_11 AL_12 AL_12 AL_15 AL_15 AL_15

AL_15

AL_13

AL_14 AL_14 AL_14 AL_14 AL_14 AL_14 AL_13 AL_13 AL_13 AL_13 AL_13 AL_13 AL_13 AL_13 AL_13

AL_13 AL_13 AL_13 RAUSA Planta General Esc. 1/250

AL_13 AL_13
Lumínico 159 RAUSA N
AL_14 AL_14 AL_14 AL_14 AL_14 AL_14 AL_14 AL_14 AL_14 AL_14 AL_14 AL_14 AL_14 AL_14 AL_11 AL_11 AL_11 AL_11 AL_11 AL_11 AL_11 AL_11 AL_15 AL_15 AL_15 AL_15 AL_15 AL_15 AL_15 AL_15 AL_15 AL_15 AL_15 AL_15 AL_15 AL_15 AL_15 AL_15 AL_15 AL_15 AL_13 AL_13 AL_13 AL_13 AL_13 AL_13 AL_13 AL_13 AL_13 AL_13 AL_13 AL_13 AL_13 AL_13

AL_04

AL_04

AL_04

AL_01 AL_01

AL_03 AL_03 AL_03 AL_03 RAUSA Planta Baja +0.80 Esc. 1/150

AL_01 AL_01

AL_04 AL_11 AL_11 AL_11 AL_11 AL_11 AL_11 AL_11 AL_11 AL_11

AL_04

AL_01 AL_01

AL_01 AL_01

AL_04 AL_04

AL_04 AL_12 AL_12 AL_12

AL_01

AL_01

AL_01 AL_01 AL_01 AL_01 AL_04 AL_04

AL_05

AL_01

AL_01

AL_01

AL_05

AL_04

AL_05 AL_05

AL_04 AL_04

AL_05

AL_05

AL_05 AL_05

AL_01 AL_05

AL_04

AL_01 AL_01 AL_01

AL_03 AL_03 AL_03 AL_03 Lumínico 160

AL_01 AL_01 AL_01 AL_01

AL_01 AL_01 AL_01 AL_01 AL_01 AL_01 AL_01 AL_01 AL_04 AL_04 AL_04 AL_04 AL_04 AL_04 AL_02 AL_02 AL_02 AL_02 AL_02 AL_02 AL_02 AL_02 AL_02 AL_02

AL_04 AL_05 AL_05

AL_01 AL_01 AL_01 AL_01

AL_06 AL_06 AL_06 AL_06 AL_06 AL_06 RAUSA

AL_03 AL_03 AL_03 AL_03

AL_01

AL_01 AL_01 AL_01

AL_05 AL_04 AL_04

AL_06 AL_06 AL_06 AL_06

AL_03 AL_03 AL_03 AL_03

AL_03 AL_03 AL_03 AL_03

AL_11 AL_11 AL_11 AL_11 AL_11 AL_11 AL_11 AL_11

AL_07 AL_07 AL_07

AL_02 AL_02 AL_02 AL_02

AL_03 AL_03 AL_03 AL_03

AL_04 AL_04 AL_04 AL_04

AL_02 AL_02 AL_02 AL_02 AL_04 AL_04 AL_04

AL_01 AL_01 AL_01 AL_01 AL_01 AL_01 AL_01 AL_01 AL_01 AL_01

AL_01 AL_01

AL_06 Lumínico 161

AL_01 AL_01 AL_01 AL_01 AL_01 AL_01

AL_04 AL_04

AL_04

AL_04 AL_04

AL_01 AL_01 AL_01

AL_04 AL_04

AL_01

AL_04

AL_01 AL_01 AL_01

AL_01

AL_04 AL_04

AL_04 AL_04 AL_12 AL_12 AL_12 RAUSA Planta Nivel 1 +5.00 Esc. 1/150

AL_04 AL_04 Lumínico 162

AL_01

AL_01 AL_01 AL_01 AL_01

AL_01 AL_01 AL_01 AL_01 AL_04 AL_04 AL_04 AL_04

AL_01 AL_01 AL_01 AL_01 AL_01 AL_01 AL_01 AL_01 AL_01 AL_01 AL_01 AL_01

AL_04 AL_04 AL_04 AL_04 AL_04 AL_04

AL_06 AL_06 AL_06 AL_06 AL_06 AL_06

AL_03 AL_03 AL_03 AL_03

AL_02

AL_04 AL_04 RAUSA

AL_06

AL_06 AL_06 AL_06 AL_06 AL_07 AL_07 AL_07

AL_02 AL_02 AL_02 AL_02

AL_02 AL_02 AL_02 AL_02

AL_03 AL_03 AL_03 AL_03

AL_04 AL_03 AL_03 AL_03 AL_03

AL_03 AL_03 AL_03 AL_03

AL_04 AL_04 AL_04 AL_04 AL_04 AL_04

AL_01 AL_01 AL_01 AL_01 AL_01 AL_01 AL_01 AL_01 AL_01 AL_01 AL_01

AL_01 AL_01 AL_01

AL_04 AL_04 AL_04 Lumínico 163

AL_02 AL_02 AL_02 AL_02 AL_02 AL_02 AL_02 AL_02 AL_02 AL_02 AL_02

AL_01 AL_01 AL_01

AL_01 AL_01 AL_01 AL_01

AL_01 AL_01 AL_01

AL_04 AL_04

AL_04

AL_04 AL_04

AL_01 AL_01 AL_01

AL_04 AL_04

AL_01 AL_01 AL_01

AL_04 AL_04

AL_04

AL_12 AL_12

AL_12 AL_12

AL_12 AL_12

AL_12 AL_12

AL_04 AL_04

AL_01 AL_01 AL_01 AL_01

Lumínico 164 RAUSA Planta Nivel 2 +9.20 Esc. 1/150

AL_12 AL_12

AL_01 AL_01 AL_01 AL_01 AL_01 AL_01 AL_01 AL_01 AL_01 AL_01 AL_01

AL_04 AL_04 AL_04 AL_04 AL_04 AL_04

AL_12 AL_12

AL_06 AL_06 AL_06 AL_06 AL_06 AL_06 RAUSA

AL_12 AL_12

AL_12 AL_12

AL_12 AL_12

AL_01 AL_01 AL_01 AL_01 AL_01 AL_01 AL_01 AL_01 AL_01 AL_01 AL_01 AL_01

AL_06 Lumínico 165

AL_06 AL_06 AL_06 AL_06 AL_07 AL_07 AL_07

AL_04 AL_04 AL_04 AL_04 AL_04 AL_04
07

DOCENTE ASCESOR

Alejandro Scopelli

UBICACIÓN

Gregorio Aznarez, Maldonado.

AREA

fábrica: 111.664 m2

intervención: 600m2

ESCALA

1:150

CONTENIDO

Axonometrica

Estimación de cargas

Diagrama unifilar general Diagrama unifilar tablero derivado

Planta N+0.00 Planta N+0.80 Planta N+5.00

Planta N+9.20 Planta N+13.40

El edificio, al encontrarse por encima de los 50 KW de potencia, es suministrado por energía eléctrica a partir de una subestación dispuesta en el predio, la cual se encuentra en un local ventilado, no inundable.

El proyecto de eléctrico se organiza a partir de un tablero general en sala de servicio a partir del cual se conectarán los distintos tableros administrados por zona y función.

Se dispondrá un grupo electrógeno para emergencias ante posibles cortes de energías. Este sistema abastecerá la sala técnica, bombas de incendio e iluminación básica de servicio. Se abastecerá los sistemas necesarios para un funcionamiento mínimo básico del edificio

Las canalizaciones del proyecto se realizarán a partir de caños galvanizados Daisa vistos, la premisa del proyecto pasa por dejar las instalaciones como parte estética, mostrando el sistema.

ELÉCTRICO

Eléctrico 170 RAUSA
Eléctrico 171 RAUSA

Referencias

Tablero General

Registro R

Tablero Secundario

Rack de Datos

Conexion Extractor

Tomacorriente Comun 3 En linea.

Caja Honda

En general h:0.35m Sobre N.P.T. En baños y cocinas h:1.10 sobre N.P.T

Tomacorriente Schuko

Caja Honda

En general h:0.35m Sobre N.P.T. En baños y cocinas h:1.10 Sobre N.P.T

Tomacorriente con Llave

Caja Honda

En general h:0.35m Sobre N.P.T. En baños y cocinas h:1.10m Sobre N.P.T

Tomacorriente Comun 3 En linea. Caja Honda Empotrado en suelo.

Conjunto Computadora

Tomacorriente Schuko

Tomacorriente comun 3 en Linea Conexión de datos Línea Telefónica

Caja de Centro

Interruptor Unipolar

Interruptor Unipolar de 2/3 Secciones

Caja Honda h:1.10m Sobre N.P.T.

Canalización por Techo

En general por caños Daisa En Servicios por Cielorraso

Canalización por Piso

S

Datos 2/3 s

Secador de Manos Conectado a Corriente

Sensor de Presencia

Caja Honda En Baños h:1.10 Sobre N.P.T.

Bomba

Sirena acustica con luz Estroboscópica

Iluminación de Emergencia

Detector de Humo Fotoeléctrico

Jaladora

T D
T D
Iluminación
Emergencia
de
Eléctrico 172 RAUSA

Estimación de Cargas RAUSA

L o cal

Planta B aja H all R ec epc ión

Artefacto s U K w T o tal

Tomas 16 0, 3 4, 8

Comput adora 1 0, 2 0, 02

Impres ora 1 0, 15 0, 15

C afeteria Tomas 13 0, 3 3, 9

Frez er 1 0, 35 0, 35

Heladera 1 0, 4 0, 4

Lic uadora 1 0, 4 0, 4

Mic roondas 1 0, 7 0, 7

Horno E lec t ric o 1 1, 1 1, 1

Tos t adora 1 0, 5 0, 5

Cafet era 1 0, 7 0, 7

B at idora 1 0, 25 0, 25

Lavavajillas 1 0, 5 0, 5

Mix er 1 0, 15 0, 15

P lanc ha Coc ina 2 1, 1 2, 2

Comput adora 1 0, 2 0, 2

Impres ora 1 0, 15 0, 15

Serv ic ios Tomas 3 0, 3 0, 9

S ec amanos 2 0, 8 1, 6

Calefon 1 1, 5 1, 5

Play room Tomas 6 0, 3 1, 8

C irc ulac ión Tomas 4 0, 3 1, 2

Aco n d . Artefacto s U K w T o tal

Extr as Term ic o U. E V RV Daik in 1 17, 8 17, 8

U E V RV Daik in 1 16, 8 16, 8

U. I de P is o 1 0, 1 0, 1 U I Cas s et e 9 0, 2 1, 8 U. I de Tec ho 8 0, 15 1, 2

Lum inic o L01 110 0, 014 1, 54

L02 42 0, 008 0, 336 L03 40 0, 028 1, 12 L04 93 0, 027 2, 511 L05 12 0, 05 0, 6 L06 27 0, 028 0, 756 L07 9 0, 014 0, 126 L11 17 0, 001 0, 017 L12 6 0, 014 0, 084 L13 44 0, 016 0, 704 L14 25 0, 059 1, 475 L15 37 0, 092 3, 404 Sanitario B ombas 2 0, 7 1, 4 A s c ens ores 1 17, 5 17, 5

N ivel 1

_ M irador

Tomas 4 0, 3 1, 2

Ludic o Tomas 6 0, 3 1, 8

Serv ic ios Tomas 3 0, 3 0, 9 S ec amanos 2 0, 8 1, 6

Ev entos Tomas 6 0, 3 1, 8

C irc ulac ión Tomas 4 0, 3 1, 2

N ivel 2 _ M irador

Tomas 4 0, 3 1, 2

Sala Ex pos itiv a Tomas 8 0, 3 2, 4

Serv ic ios Tomas 3 0, 3 0, 9

S ec amanos 2 0, 8 1, 6

Terraza Tomas 4 0, 3 1, 2

C irc ulac ión Tomas 4 0, 3 1, 2

Total _ Term ic o 38 R es to 72 Si mul tane i dad si n Te rmi co ( 0, 7) 50 Total _ 88

Aco n d . Artefacto s U K w T o tal

Grupo Electrogeno_

Luz Servicio 50% (L04) 0, 027 1,255

46

Luz Servicio (L06) 0, 028 0, 756 27 B ombas Computadora 2 0, 7 1, 4 1 0, 2 0,2 Servidor 1 0, 2 0,2 Heladera 1 0, 4 0,4 Freezer 1 0, 35 0,3 4,6 Total _ Eléctrico 173

TABLEROS GENERALES

TABLEROS SECUNDARIOS

TABLEROS GENERALES

TD3 GENERAL N3

TABLEROS SECUNDARIOS

TD3a sala expositiva zona 1

Tablero general Termico

TD3b depositos TD3d sala expositiva zona 2

SUBESTACIÓN UTE

TD3c baños

TD1 GENERAL PB NIVEL 1

TD2a eventos y circulación

TD2b depositos

TD2c baños

TD2d playroom

TD1a playroom y circulación

TD1b luminarias exteriores

TD1c baños

TABLERO GENERAL

M

TD2 GENERAL N2 TDTO

TD1d cafetería

TD1e administración

TDT2 Térmico nivel 2

TGE

descarga a tierra

GRUPO ELECTRÓGENO

TDT1 Térmico PB

TDT3 Térmico nivel 3 descarga a tierra

00
NIVEL 2 +5
NIVEL 3 +9 20
Esquema gral. de líneas y tableros
NIVEL 4 +13 40
+ 0 00
PB +0 80
T G G RUPO U TE E LE CT RO GENO T D1 S S EE K wh T D2 T D TO T D3 Eléctrico 174 RAUSA
I NTER RU PTOR TER MO MA GN ÉTICO TG b año disca pacitados D IS YU NTOR s ervi cios y cafe D IS YU NTOR TG TD1d P B D IFER EN CIAL d epósito TER MO MA GN ÉTICO x 24 co rredor D IFER EN CIAL TD1a P B TD1e P B D IFER EN CIAL l umin arias cafe c ircul acion I NTER RU PTOR D IS YU NTOR TD1c P B D IFER EN CIAL x 18 ser vicios TG I NTER RU PTOR D IS YU NTOR x 24 c ircu lacion lavabos x 30 ci rcula ciones l umin arias e xter iores e scalera I NTER RU PTOR TER MO MA GN ÉTICO TD1B P B mesas cafe I NTER RU PTOR x 16 a dmin istr ación TER MO MA GN ÉTICO TG baño TG D IFER EN CIAL l umin aria s ex teri ores mesas cafe t oma l avabos D IS YU NTOR p layroom TER MO MA GN ÉTICO a dmin istr acion Eléctrico 175 RAUSA
D T Eléctrico 176 RAUSA Planta Baja +0.80 Esc. 1/150
D T
Eléctrico 177 RAUSA
Datos 2/3 2/3 s 2/3 s
S
Eléctrico 178 RAUSA Planta Nivel 1 +5.00 Esc. 1/150
S 2/3 s2/3 s 2/3 Eléctrico 179 RAUSA
Eléctrico 180 RAUSA Planta Nivel 2 +9.20 Esc. 1/150
S 2/3 s 2/3 s Eléctrico 181 RAUSA
Eléctrico 182 RAUSA

VRV RAUSA

VRV Eléctrico 183
08

CONTENIDO

Axonometrica Sanitario Axonometrica Electrico Axonometrica Termico Axonometrica Luminico Axonometrica coordinación

COORDINACIÓN

188 RAUSA
Axo. Térmico Axo. Eléctrico Axo. Lumínico
Coordinación
Axo. Sanitario
189 RAUSA Axo. Coordinación Coordinación

EPÍLOGO

Creemos que, mediante este proyecto ponemos en juego una temática que se repite constantemente y frente a la cual no notamos la iniciativa de reflexionar desde nuestra visón del mundo.

Lo rico de involucrarse en una historia y hacer el esfuerzo de entender esa nos talgia, para luego con ojo crítico intentar reinterpretarlo puede traer consigo algo que notamos perdido, el sentimiento de pertenencia que tiene una comuni dad con respecto a la edificación, algo que no se debe pensar como superficial. Nuestro servicio para la comunidad.

El entorno construido, la arquitectura como identidad.

RAUSA

TRABAJO FINAL DE CARRERA Diciembre 2022. Montevideo, Uruguay.

Lucas Toledo German Crizul

Gracias,

A nuestras familias, por apoyarnos durante esta larga y compleja carrera, sin cuestionamientos, confiando en todo momento a pesar de no entender mucho de lo que hablamos.

A nuestros amigos, por estar preguntando en todo momento y poniendo la oreja para escucharnos en las situaciones limite.

Al pueblo Gregorio Aznarez y su gente, por compartirnos emocionadamente sus anecdotas y experiencias. Por mostrarnos el humilde museo y contarnos un recuerdo a partir de cada foto. Son ellos los que cargan con la historia.

A todos aquellos que supieron entender, que fueron parte del camino y que se implicaron de alguna manera en nuestras vidas, apoyando, conteniendo y simplemente estando.

Turn static files into dynamic content formats.

Create a flipbook
Issuu converts static files into: digital portfolios, online yearbooks, online catalogs, digital photo albums and more. Sign up and create your flipbook.