Liam Tepen Architecture Portfolio

Page 1

ARCHITECTURE PORTFOLIO LIAM TEPEN | UNIVERSITY OF KANSAS | SELECTED WORKS
2 CONTACT liamtepen.kc@gmail.com (913) 800 0653 Lawrence, Kansas

EXPERIENCE

2022 7 month internship at Oculus, Inc. Completed formal design intent and construction documentation.

2022 2022 AIA AAH STERIS Student Design Charrette Develop a Health Care Clinic within the span of 48 hours

2018-2023 University of Kansas Master of Arts in Architecture 2014-2018 Shawnee Mission Northwest

3
EDUCATION
SKILLS CAD Revit | SketchUp | AutoCAD | Rhino Rendering Lumion | Enscape | Twinmotion Adobe CC Photoshop | Illustrator | InDesign Microsoft Word | Excel | PowerPoint
4
5 Projects Armourdale Plaza | 06 Aspen Behavioral Health Clinic | 16 Tectonic | 28 48 Hour Design Charrette | 36

Armourdale Plaza

Year: 2021

Team: Liam Tepen, Ethan Sandburg, Katie Neyer

Software: Revit, SketchUp, Lumion, Rhino, Photoshop

Studio 608 was responsible for designing a mixed-use facility on a chosen site alongside Osage Avenue in Armourdale, Kansas. Two sites were chosen to create an urban entrance to one of the most diverse communities Kansas has to offer. The storied facilities set a precedent for a dense commercial corridor that will serve as Armourdale’s economic core. The plaza, with patterns inspired by the Osage Nation tribe, encourage culturally-driven events.

6

Existing Osage Avenue

8

Existing Site Conditions

The studio’s sites were all located alongside Osage Avenue in Armourdale, Kansas, serving as the commercial avenue for the neighborhood. Despite this, Osage suffers from empty lots, abandoned buildings, and repeated businesses that hold the street back from being the potential economic driver it could be.

OsageAvenue SouthPyleStreet

Existing site between S 8th and S Pyle Street

Residential

The residential space will house different size families with a community space on the second floor to be used for enjoying events or every day life.

Retail Shops

Commercial Corridor

Creating a precedent of compact, mixed-use, commercial buildings to create a corridor that will serve as an economic driver for Armourdale.

Based on community needs and wants, retail shops can vary but will bring in clients from various locations.

Grocery Store

This will serve as the only grocery store in town, so the products will vary. Local merchants can sell product within.

Community Center

Existing building on the corner of Osage and 7th Street. The parking lot to the west has been converted to a green space with paths.

12 Floor
Floor 2
1
1 2 3 4 Site Axonometric Put together
by: Katie Neyer
1" = 20' 0" 1 Section 4

Aspen Behavioral Health Clinic

Year: 2022

Team: Liam Tepen and Ethan Sandburg

Software: Revit, SketchUp, Lumion, Rhino, Photoshop

The Aspen Behavioral Health Clinic is an adolescent psychiatric hospital located on the northwest end of the Kansas Univsersity Medcical campus. Serving as a transitory building between residential and commercial, it was important to provide a place where adolescents could feel at ease. To do so, this behavioral health clinic designed by myself and Ethan Sandburg set out to use playful colors, materials, and furniture to enhance the user experience.

16
17
18 L O C A
A T I O N
20 Floor 1 Section
21 First Floor
22 Second Floor
23 Third Floor

Patient Unit

Inpatient Block

25
Patient Outdoor Community Recreation
26
27

Tectonic

Year: 2020

Team: Studio 509 Collaborate Design Build

Software: SketchUp, Rhino, Grasshopper, Twinmotion

Tectonic is a terracotta facade located on the Interdisciplinary Ceramic Research Center in Lawrence, Kansas, and uses the site as an inspiration for the project throughout the development process. When researching the material that was going to be used for the project, it was discovered the creative potential clay had at the microscopic level. Combining the patterns that could be found in clay and the context of the site itself, it was decided early on that the facade would be designed with the microscopic level of clay in mind.

28
29

Plaster Mold

Deciding to use plaster blocks for the mold, a several blocks were poured for each pattern.

Pressing Mold

Once the CNC is finished, the mold can than be used for hand-pressed clay.

CNC Router

A CNC machine takes a digital file for each pattern and cuts into the plaster mold.

Pressed Tile

After being pressed, each tile is set to dry for several days before being fired in a kiln.

30

West Elevation South Elevation

20’-4” 10’-9” 2’-10” 8’-9” 3’-10”

31
32
Using a CNC machine to carve out patterns for tiles. Hand pressing clay into mold before firing them in the kiln.

Using a CNC machine to carve out patterns for tiles. Hand pressing clay into mold before firing them in the kiln.

©2020 University of Kansas/Meg Kumin ©2020 University of Kansas/Meg Kumin
34

48 Hour Design Charrette

Year: 2022

Team: Liam Tepen,Bridgett Espino, Natalia Acosta, Isiah Gallegos

Software: Revit, SketchUp, Lumion

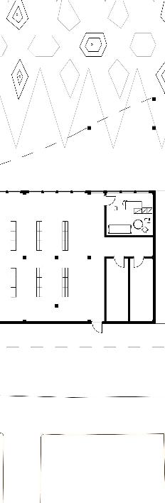
Within the span of 48 hours our group was responsible for developing a master plan for a healthcare clinic to be used by adolescent victims of sexual abuse. In addition to the master plan, our group was tasked with creating a plan for the primary care portion of the clinic. For this project, I was responsible for developing the floor plan and renders for the final presentation.

36
37
Parkway
Interstate-10 1 2 3 4 1 2 3 WIC PUBLIC PRIMARY CARE ALTERNATIVE CARE DENTAL IMMUN. PHARMACY SUPPORT 38
McClendon
39
40
42
43
LIAM TEPEN | UNIVERSITY OF KANSAS | SELECTED WORKS

Turn static files into dynamic content formats.

Create a flipbook
Issuu converts static files into: digital portfolios, online yearbooks, online catalogs, digital photo albums and more. Sign up and create your flipbook.