PORTAFOLIO LUIS SANDOVAL

Page 1

PORTAFOLIO DE ARQUITECTURA

LUIS FERNANDO SANDOVAL GARZON

LUIS SANDOVAL ARQUITECTO

Arquitecto por la Universidad Central del Ecuador, mi experiencia laboral se enmarca en la línea arquitectónica de la intervención de edificaciones en áreas urbanas consolidadas, la vivienda de carácter colectivo, comunitario o privado, el diseño del paisaje en función a su entorno, el diseño interior de espacios comerciales y residenciales.

01 T R A B A J O D E F I N D E C A R R E R A 02 E D I F I C I O D E V I V I E N D A S H A M I L T O N 03 C A S A E N T R E P A T I O S 04 C A S A P R O D U C T I V A S U S H I S A Y O N A R A 05 C A S A S H A M I L T O N
01

Estrategias Proyectuales

01 Lectura Urbana

02 Valoracion

03 Area de oportunidad

04 Corazon de manzana

05 Valoracion rol del barrio

06 Integracion espacial

07 Geometria base arquetipo

08 Fragmentacion del volumen

09 Espacios dinamicos diferentes alturas

93
3.2. Anteproyecto Arquitectónico Planta Baja Planta de Viviendas Planta de Viviendas
Elevacion General
Seccion general
93
3.2. Anteproyecto Arquitectónico Detalle Arquitectonico

Plazas y recorridos internos al corazon de la manzana

Zonas de encuentro en espacios colectivos

Unidades de vivienda y relacion exterior vegetado

Espacios comunitarios a diferentes alturas

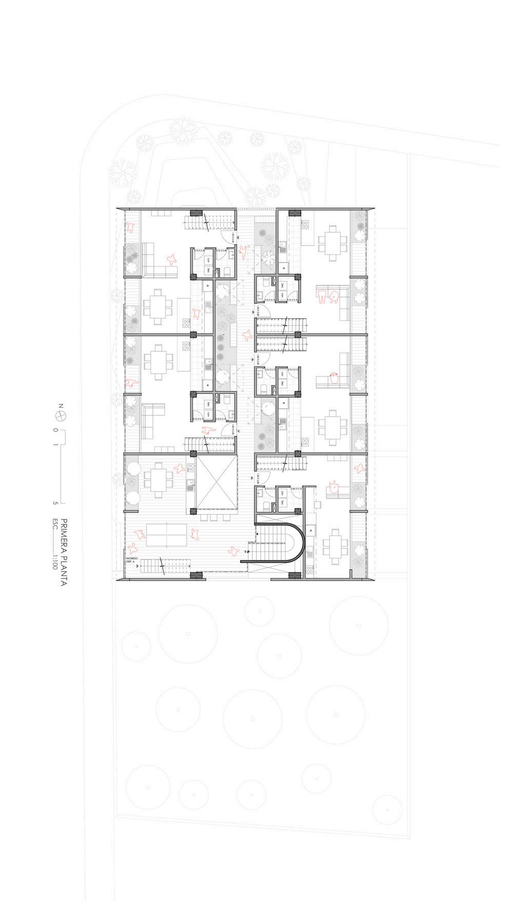
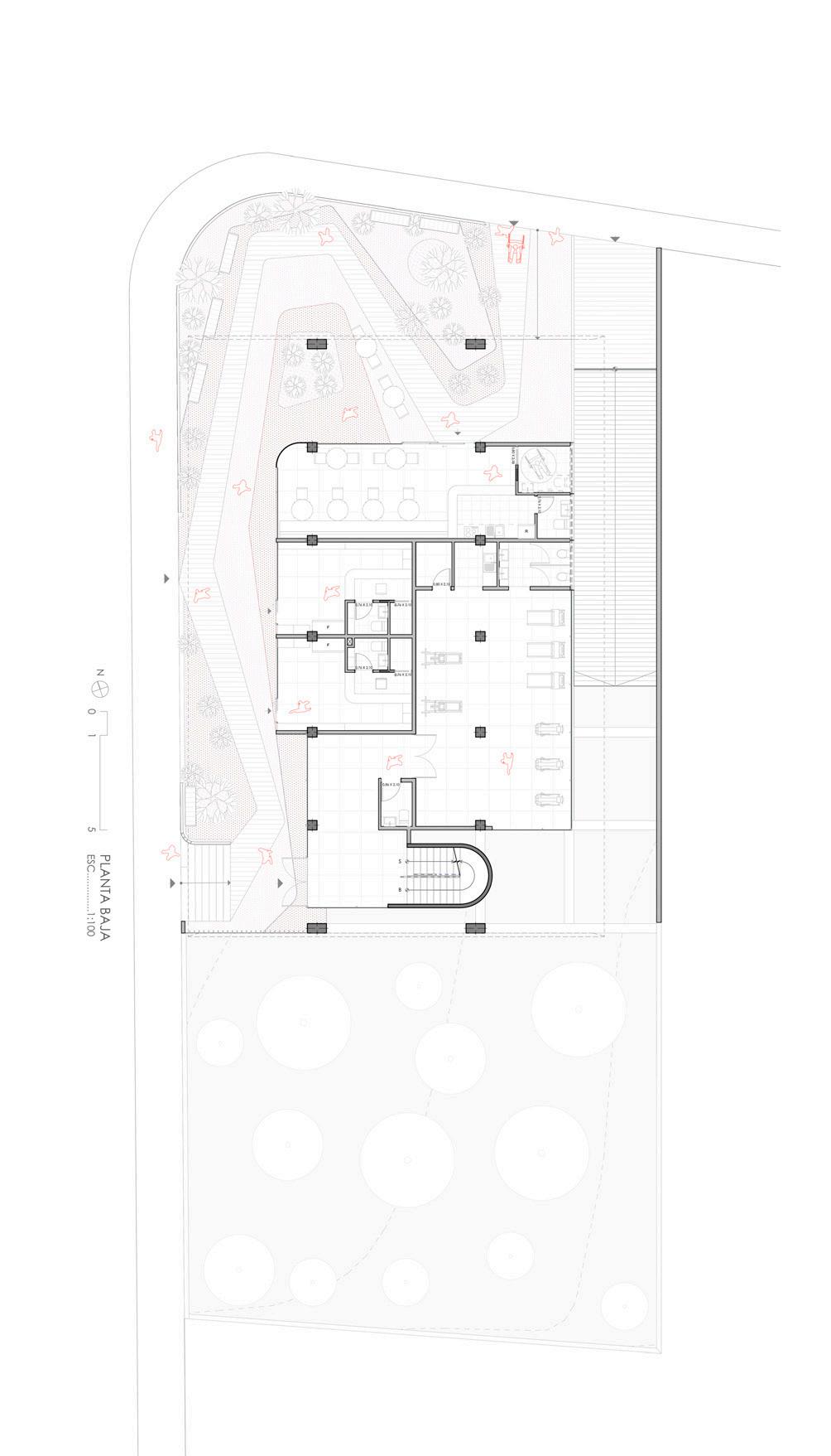
02

VIVIENDAS HAMILTON

Promotor: Richar Erazo

Ubicacion: Conocoto Pichincha, Quito

Diseño: Arq. Luis Sandoval- Arq. Alison Alvear

El proyecto viviendas Hamilton, se lo realiza con el encargo del Sr. Richar Erazo, con la necesidad de establecer un proyecto de viviendas para el mercado inmobiliario, la concepción arquitectónica nace desde la lectura de su entorno, al tener una topografía compleja, se aprovecha los desniveles estableciendo plazas destinadas al espacio publico que sirven de punto de encuentro y recorridos para el habitante, al igual que se optimiza y aprovecha la luz natural en todos los unidades de viviendas, teniendo en cuenta la relación con la naturaleza la vegetación es una necesidad en los espacios interiores.

Ensamble Volumetrico de unidades de vivienda

Las unidades de vivienda, funcionan al rededor de un patio central la cual acoje espacios comunitarios, creando una dinámica en la relación social del proyecto.

02
01 02

Las unidades de vivienda se traslapan una con otra con el fin de optimizar las visuales e iluminación tanto de la mañana y la tarde.

06 03 04 05

Unidades de vivienda

Plantas Arquitectonicas
Secciones generales
Seccion 1 Seccion 2 Patio interior como circulación horizontal. Iluminación natural y relación espacial. Aprobechamiento de la ilumanción y visuales del entorno. Vegatación interior como extencion de la habitación.
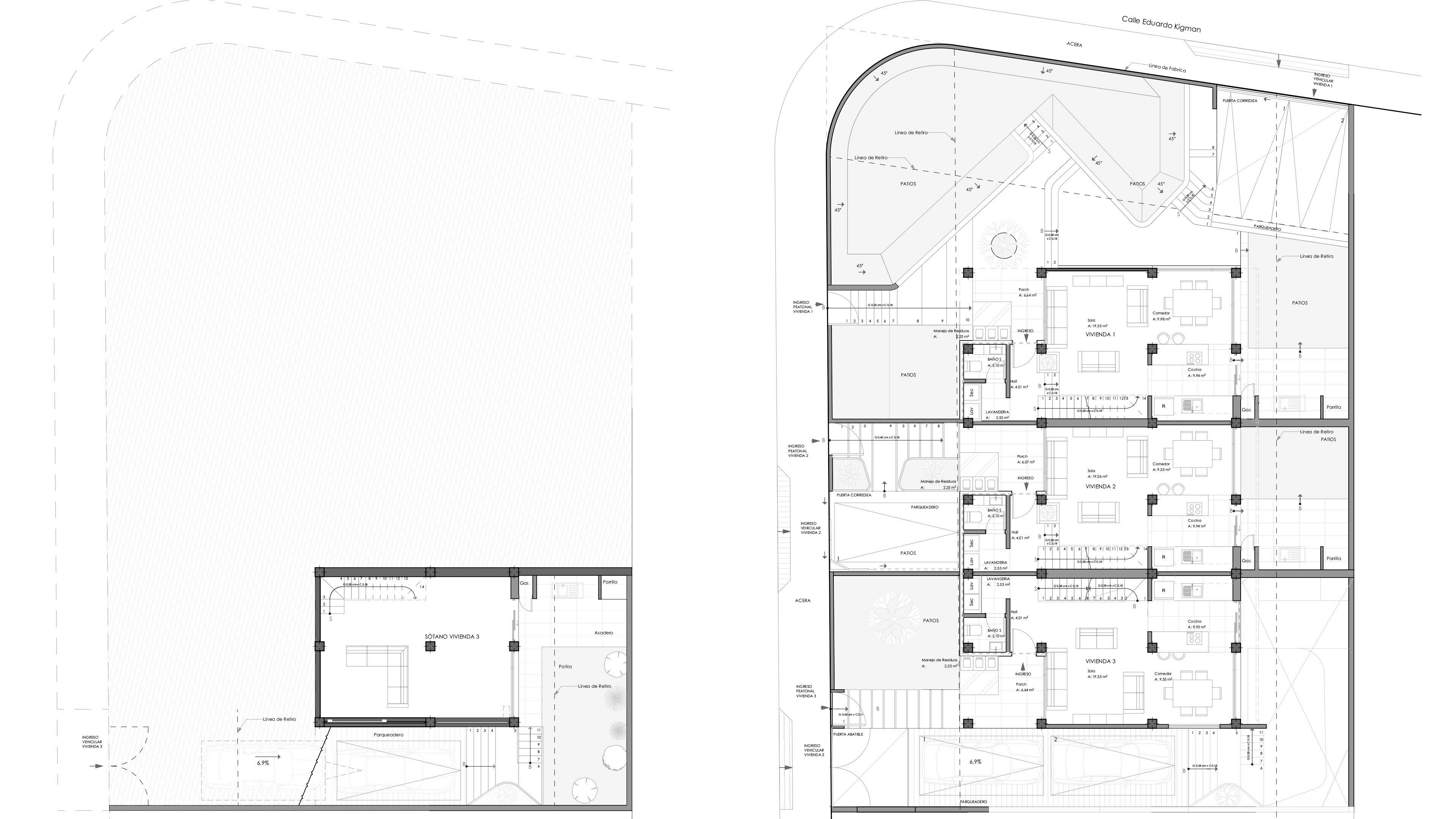
03

CASA ENTRE PATIOS

Promotor: Richar Molina

Ubicacion: El calvario Latacunga, Cotopaxi

Diseño: Arq. Luis Sandoval

Casa entre patios se implanta en una realidad consolidada en la cual, la iluminación, ventilación y el manejo de la privacidad son los puntos principales en el desarrollo del proyecto. Además como elemento de la pre existencia, a petición de sus habitantes requieren un espacio donde observar el desfile de la " Mama Negra" festividad de la ciudad de latacunga.

El desarrollo de la planta alta es una ampliación de la vivienda existente, el modo de habitar pertenece a una familia nuclear, en la cual prioriza la relación interior y exterior por medio de patios, los cuales solucionan las necesidades de ventilación e iluminación y se dispone de estos espacios como puntos diáfanos para cualquier actividad de la familia.

Estrategias proyectuales

03

Estrategias proyectuales

Plantas Arquitectónicas

Vista del área social y patio como extensión de la sala Vista del patio de iluminación Vista del área social y patio como extensión de la sala Vista del área social y patio como extensión de la sala
04

CASA PRODUCTIVA SUSHI SAYONARA

Promotor: Elvia Garzon

Ubicacion: El Carmen Latacunga, Cotopaxi

Diseño: Arq. Luis Sandoval

Casa Productiva, se encuentra implantada en un contexto consolidado, en la cual las necesidades de sus habitantes requieren de espacios para habitar y trabajar. Por ello se toma la decisión de aprovechar el retiro frontal para ampliar la zona de la vivienda y anexar un lugar de trabajo. La solución arquitectónica, toma como puntos iniciales, la estructura y puntos de instalaciones, la cual facilita la intervención en los espacios eliminando tabiquerías, ampliando la planta baja anexando un local comercial, en las plantas superiores incrementando los espacios de habitaciones y en la zona de la terraza se planteó un espacio de descanso y ocio.

Estrategias proyectuales

04
Vista de la terraza, elemento de recreación para el habitar. Vista del área social de la familia. Vista del área de trabajo y restaurante. Vista del área de trabajo y restaurante.
05

CASAS HAMILTON

Promotor: Richar Erazo

Ubicacion: Conocoto, Quito Pichincha

Diseño: Arq. Luis Sandoval- Arq. Alison Alvear

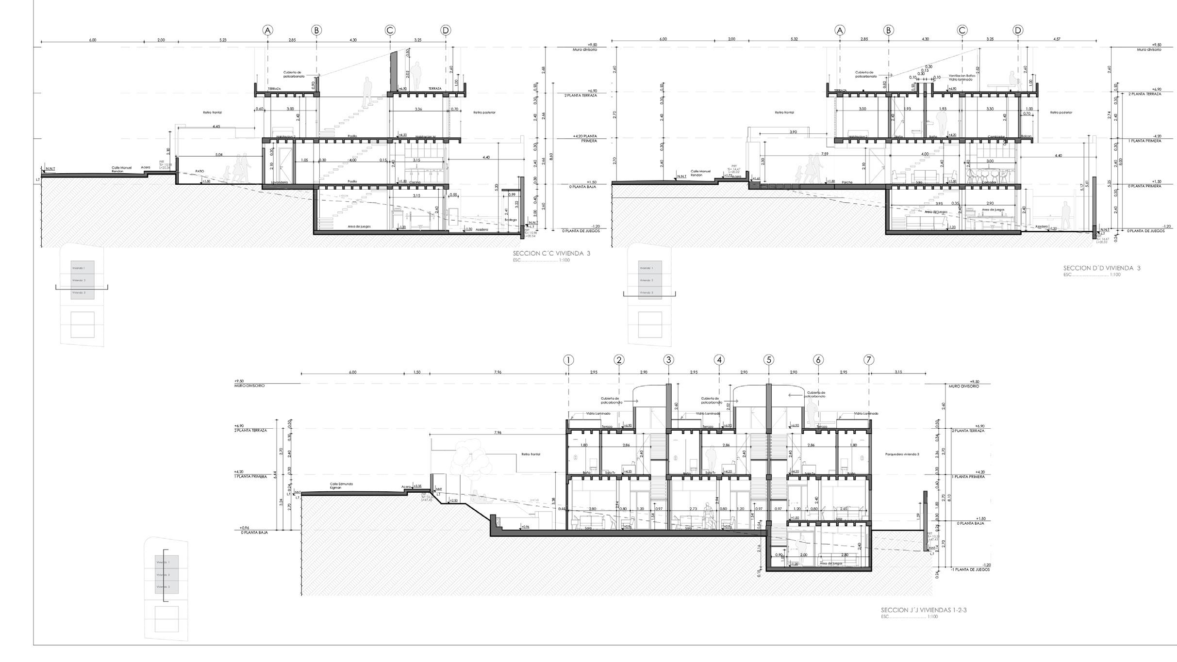
El proyecto Casas Hamilton aprovecha la compleja topografía existente en la cual se desarrolla mediante plataformas que se acoplan a los diferentes niveles del proyecto, la topografía es aprovechada en relación al desarrollo del programa arquitectónico en la cual se requiere de viviendas compactas de una área reducida pero con la mayor habitabilidad de todos sus espacios, sin descuidar la relación con el entorno y el contacto con la naturaleza.

Planta arquitectónicas

La planta de subsuelo surge por el aprovechamiento de la topografía, en la cual se dispone de un cuarto de recreación.

05

Planta arquitectónicas

La planta baja, es desarrollada con el fin de aprovechar al máximo el espacio a utilizar ya que es un proyecto para la venta inmobiliaria.

Planta arquitectónicas

La planta alta, aprovecha al máximo la iluminación natural y las visuales del entorno, pero al mismo tiempo cuida la visuales entre sus habitantes generando privacidad.

Planta arquitectónicas

La planta de terraza, se desarrollo con la idea de generar mas áreas verdes, teniendo así una terraza jardín la cual devuelve el área verde que la arquitectura toma.

Sección General

Al tener una sección general se puede obtener una vista de los diferentes niveles y plataformas, en las que desarrolla la viviendas, evidenciando como el proyecto se acopla a la topografía.

Vista del estudio o espacio de recreación. Vista del patio posterior. Vista del área social. Vista del área social.

Turn static files into dynamic content formats.

Create a flipbook
Issuu converts static files into: digital portfolios, online yearbooks, online catalogs, digital photo albums and more. Sign up and create your flipbook.
PORTAFOLIO LUIS SANDOVAL by Luis Sandoval - Issuu