BIM-Portfolio

Page 1

Louma Taloub,Arch.

Selected work 2022 -2023

Technical Skills:

About me :

I came to Architecture by choice and during transitional times. Over tow decades, I perfected, and still doing so, my cra and scienti c arts.

- Drawing tables, free hand and, set of eyes

- Screen & vectors, light and camera and free imagination

To me, Architecture is a second birth, a re-naissance of my being in a de ned space.

Revit, Lumion, 3Ds Max, AutoCAD, vRay, Photoshop

Am Excellent at: Architectural Design, Interior Design, Landscape Design

contents :

- Elementary and Secondary School

- Italian-Inspiration villa

- Qilwa Mosque in KSA

- Packaging and Grain Storehouse

- A Multi-Floor Villa

- Mosque in Ethiopia

- Miscellaneous

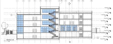
Elementary and Secondary School

Concept: wide façades of glass ensure natural light penetration to the core. Security of students while Entering or exiting the school from/to adjacent streets was at the heart of students movement during school hours. Available locally, Natural stone was used for its aesthetic and insulation qualities.

BIM DESIGN PORTOFOLIO
BIM DESIGN PORTOFOLIO
BIM DESIGN PORTOFOLIO

Italian-Inspiration villa

Designed as a harbour of peace in the country where users can enjoy 2 swimming pools, a gazebo and horses to ride around. Natural light and surrounding green spaces o er peaceful moments of day and night on several balconies and the high walls ensure privacy.

BIM DESIGN PORTOFOLIO
BIM DESIGN PORTOFOLIO

Qilwa Mosque

I designed Qilwa Mosque in KSA to re ect the rural area simplicity and people believes.

BIM DESIGN PORTOFOLIO
BIM DESIGN PORTOFOLIO

Packaging and Grain Storehouse

BIM
DESIGN PORTOFOLIO
BIM DESIGN PORTOFOLIO

A Multi-Floor Villa

As reqested by the client, I redesigned these 2 lots atow- oor villa for an extended family.

BIM DESIGN PORTOFOLIO
BIM DESIGN PORTOFOLIO

Mosque in Ethiopia

BIM DESIGN PORTOFOLIO
BIM DESIGN PORTOFOLIO
Al gadra Mosque 1. Najdy Mosque 2. Mashlha Mosque
3. Miscellaneous

4.

Two-Floor residential building.

5.

A four-Floor residential building.

6.

case study

Miscellaneous
arc.taloub@gmail.com

Turn static files into dynamic content formats.

Create a flipbook
Issuu converts static files into: digital portfolios, online yearbooks, online catalogs, digital photo albums and more. Sign up and create your flipbook.
BIM-Portfolio by Louma-79 - Issuu