Skip to main content

Portfolio | Architecture | Louis Hébert

Page 1

PORTFOLIO. LOUIS HÉBERT

ARCHITECTURE & DESIGN

Sélection de travaux

Sélection de travaux 1
2024

À PROPOS DE MOI

Je suis Louis, j'ai 25 ans et je suis diplômé d'un BTS Design d'Espace de l'école Boulle en 2019 et d'une licence en architecture de l'Ecole Nationale Supérieure d'Architecture de Versailles (ENSAV) en 2022.

Attiré depuis mon adolescence par l’architecture d’intérieur, c’est avec passion que je me suis lancée dans des études dans ce domaine.

Durant mes études j’ai effectué des d’alternances dans des agences parisienne d’architecture d’intérieur.

Ma formation à l’école Boulle et à l’ENSAV et mes diverses expériences professionnelles, me permettent de mener des projets divers et riches : aménagements intérieurs pour particuliers et professionnels, designs de mobilier, réhabilitations, scénographies, microarchitectures, création de chartes graphiques etc.

LOUIS HÉBERT

ÉTUDIANT EN ARCHITECTURE

hebertlouis@hotmail.com

+33 6 87 96 40 31

bit.ly/hebertlouis

Saint-Cloud, île-de-France

FORMATION

MASTER EN ARCHITECTURE

ENSA-V, Versailles

2021 à aujourd’hui

LICENCE EN ARCHITECTURE

ENSA-V, Versailles

2019 - 2021

BTS DESIGN D’ESPACE

ÉCOLE BOULLE, Paris

2017 - 2019

Portfolio | Louis Hébert 2

01. ÉLARGIR L’ESPACE

RÉNOVATION D’UNE MAISON

Saint-Cloud, banlieue Parisienne - 2023

02. EXISTANT, MATIÈRE À TRANSFORMATION

L’ÉTABLISSEMENT PUBLIC DE SANTÉ DE VILLE-ÉVRARD

Neuilly-sur-Marne, banlieue Parisienne - 2022

03. MISE EN PLACE D’UN DÉTAIL CONSTRUCTIF

AARHUS Ø, LOGEMENT, BIG Aarhus, Danemark - 2021

04. HABITER APRÈS LA PROSPÉRITÉ

«SERRE HABITÉE» EXTENSION

Châtenay-Malabry, banlieue Parisienne - 2021

05. LE THÉÂTRE DU MONDE

«MODULARITÉ»

Clichy-Montfermeil, banlieue Parisienne - 2020

06. LIEU ET TERRITOIRE

«LE POTAGER SUSPENDU»

Argenteuil, banlieue Parisienne - 2020

07. LES MAISONS MONDE

«TRAVAILLER SEUL, TRAVAILLER À PLUSIEURS» - 2020

08. THÉÂTRE DU VOYAGE

«LA COULÉE DOUCE»

Asnières-sur-Seines, banlieue Parisienne - 2019

09. PULP FESTIVAL

SCÉNOGRAPHIE

Noisiel, banlieue Parisienne - 2018

p. 04 à 07

p. 08 à 13

p. 14 à 17

p. 18 à 21

p. 22 à 25

p. 26 à 29

p. 30 à 31

p. 32 à 35

p. 36 à 37

Sélection de travaux 3
CONTENU

01.

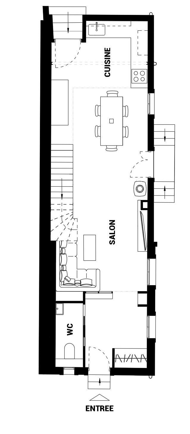
Lieu : Saint-Cloud, banlieue Parisienne 2023

ÉLARGIR L’ESPACE RÉNOVATION D’UNE MAISON

Située à quelques kilomètres de Paris, cette maison du 20ème siècle a subi une rénovation complète afin de pouvoir y accueillir une famille et leurs deux enfants. Deux extensions ont été réalisées, augmentant la surface habitable de cette maison de 65m² à 85m². L'espace étant très limité et en longueur, il a fallu repenser totalement l'agencement et profiter des moindres recoins pour créer des rangements et aussi donner une perception d’élargissement de l’espace.

Portfolio | Louis Hébert 4
RDC R+1
Sélection de travaux 5
Portfolio | Louis Hébert 6
Sélection de travaux 7 AVANT TRAVAUX

02.

EXISTANT, MATIÈRE À TRANSFORMATION L’ÉTABLISSEMENT PUBLIC DE SANTÉ DE VILLE-ÉVRARD

Lieu : Neuilly-sur-Marne, banlieue Parisienne

Enseignants : B.Drossart, J.Boitard

L’établissement Public de Santé (EPS) de Ville-Évrard est situé dans un grand parc verdoyant à Neuilly-sur-Marne dans l’Est parisien. Plusieurs corps de bâtiment construit en différentes phases pendant plus d’un siècle sont présents sur le site. Mais aujourd’hui, suite à l’évolution du secteur médical de nombreux bâtiments sont inutilisés. Se pose ainsi la question de leur transformation. Comment réorganiser ce site et le redynamiser avec un nouveau programme autour de la culture et de l’artisanat ?

Le site entretient par ailleurs un rapport privilégié avec le calme et la nature. Ce dialogue participera à instaurer un climat apaisé, propice à la pratique artistique et l’évasion des esprits créatifs et sensibles.

La ferme, cœur historique de ce site ne réponds plus aux nouvelles attentes et nécessite des changements pour s’adapter à notre époque. Pour cause l’accumulation de petites constructions, c’est fait au fil du temps de manière désordonné. C’est sur ce corps de bâtiment que porte le projet. Les enjeux sont de trouver une nouvelle logique de circulation, de désenclaver la cour intérieure et de manière générale, de retrouver une cohérence architecturale.

Pour ce faire, plusieurs modifications sont à prévoir, comme la démolition de deux ailes, l’une composée de plusieurs bâtiments en ruine et l’autre d’une ancienne grange. Pour ainsi créer un nouvel accès direct depuis l’allée principale du site, agrandir la cour et créer des percées visuelles permettent ainsi de mettre un lien certains bâtiments avoisinant actuellement isolé. Certaines touches contemporaines viennent se mêler à l’ancien comme l’ouverture d’un pignon de l’ancienne étable et le remplacement de toutes les menuiseries. L’idée est d’apporter quelques changements dans l’air du temps, mais de préserver au maximum le caractère originel du lieu. Des modifications extérieures sont effectuées sur une grande partie de la cour pour la végétaliser et l’équiper de mobilier urbain.

Portfolio | Louis Hébert 8
2022
PLAN DE MASSE
Sélection de travaux 9
Avant intervention Après intervention

plan du rez-de-chaussée

RDC

plan du rez-de-chaussée 1:300 plan du rez-de-chaussée

Portfolio | Louis Hébert 10 logis écuries p avillon p avillon p ou l a ill e r bergerie co coloomb m ie ier gr an ge e loca c l assso s ci ciat a f caféété t ria oge g m meentts po pour ur art r isstetes Fa F b Laab Ve Veststia i ires es Ve V sttia i ires e attel e ieers po p ur u artrtis i tees saalle polyvaalante saalle e d’ex e position
1:300
logis écuries p avillon p avillon p ou l a ill e r bergerie co coloomb m ie ier gr an ge e loca c l assso s ci ciat a f caféété t ria oge g m meentts po pour ur art r isstetes Fa F b Laab Ve Veststia i ires es
V sttia i ires e attel e ieers po p ur u artrtis i tees saalle polyvaalante saalle e d’ex e position
plan du rez-de-chaussée
Ve

LOCAUX ASSOCIATIFS, SALLE DE SÉMINAIRE, CAFÉERIA, LOGEMENTS POUR ARTISTES

Sélection de travaux 11 élévation nord-ouest 1:150 coupe longitudinale 1:150 logis, écuries plan R+1 1:200 Lo L gementts poour artisstetes Lo Local asso s ciatif Sa S lle de réuuninioon R+1 élévation nord-ouest coupe longitudinale
logis, écuries

FAB-LAB, LABO-PHOTO, ATELIERS, ESPACES POLYVALANTS

Portfolio 12 étables, poulailler, pavillons ouvriers élévation sud-est 1:150 plan R+1 1:200 coupe longitudinale 1:150 Labo-Photo Ve Vest s iaair s es e V Veest s iaairres es sa s lle polyyvalante salle polyyvalante R+1 étables, poulailler, pavillons ouvriers
élévation sud-est coupe longitudinale

détail constructif 1:20

détail constructif 1:20

- Linteau en brique arcé

- Châssis bois fixe

- Couvertine aluminium

- Châssis bois ouvrant

- Linteau en brique arcé

- Châssis bois fixe

détail constructif

détail constructif 1:20

- Appuis de fenêtre pierre

- Montant bois

- Couvertine aluminium

- Châssis bois ouvrant

- Appuis de fenêtre pierre

- Montant bois

- Linteau en brique arcé

- Châssis bois fixe

- Couvertine aluminium

- Châssis bois ouvrant

- Appuis de fenêtre pierre

- Montant bois

- Linteau en brique arcé

- Châssis bois fixe

- Couvertine aluminium

- Châssis bois ouvrant

- Appuis de fenêtre pierre

- Montant bois

Sélection de travaux 13
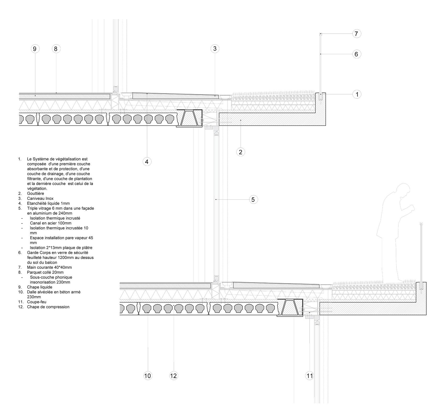
1 2 3 4 5 6 7 - Plaque de plâtre - Laine de chanvre - Traverse bois - Moellons - Pare-vapeur - Pare-pluie HPV - Enduit à la chaux 8 9 10 11 12 13
1 2 3 4 5 6 7 - Plaque de plâtre - Laine de chanvre - Traverse bois - Moellons - Pare-vapeur - Pare-pluie HPV - Enduit à la chaux 8 9 10 11 12 13
1 2 3 4 5 6 7 - Plaque de plâtre - Laine de chanvre - Traverse bois - Moellons - Pare-vapeur - Pare-pluie HPV - Enduit à la chaux 8 9 10 11 12 13
1 2 3 4 5 6 7 - Plaque de plâtre - Laine de chanvre - Traverse bois - Moellons - Pare-vapeur - Pare-pluie HPV - Enduit à la chaux 8 9 10 11 12 13

03.

2021

T32 - Mise en place d’un détail constructif

MISE EN PLACE D’UN DÉTAIL CONSTRUCTIF AARHUS Ø, LOGEMENT, BIG

«Aarhus Ø, Logement, BIG»

Enseignent : Thorsten Saahlmann

Lieu : Aarhus, Danemark

Enseignant : T.Saahlmann

Cet exercice avait pour but de nous faire nous questionner sur les principes structurels d’un bâtiment et leur fonctionnement. Mais également appendre à les représenter correctement graphiquement.

Cet exercice avait pour but de nous faire nous questionner sur les principes structurels d’un bâtiment et leur fonctionnement. Mais également apprendre à les représenter correctement graphiquement.

Portfolio | Louis Hébert 14
Sélection de travaux
Portfolio | Louis Hébert
Sélection de travaux 17

04.

HABITER APRÈS LA PROSPÉRITÉ «SERRE HABITÉE» EXTENSION

Lieu : Châtenay-Malabry, banlieue Parisienne

Enseignant : E.Lambert

Dans le quartier de la Butte rouge à Châtenay-Malabry, nous devions proposer une solution pour une réhabilitation respectueuse de l’ensemble presque centenaire. Nous devions choisir 6 logements à réhabiliter. J’ai choisi deux bâtiments accolés datant de la première tranche de construction, car c’est la tranche de construction qui a le moins bien vieilli. J’ai choisi particulièrement ces bâtiments, car j’ai trouvé leur implantation très particulière par rapport aux autres bâtiments de la même tranche. Ils sont isolés et positionnés en lisière de la forêt.

Ce projet est essentiellement porté sur l’enjeu thermique, afin de protéger ces bâtiments de l’humidité et du froid. La façade ouest, la plus exposée à l’humidité est protégée par la création d’une extension autoportante en structure bois avec des balcons continus, et est complétée par deux autres extensions au nord-est et sud-est. Ce qui permet également d’unifier les deux bâtiments, de supprimer tous les nombreux décalages inutiles en façade, pour simplifier le bâtiment. Des protections solaires extérieures variables, de type store à projection, sont installées pour éviter un excès de rayonnement solaire en été. Et peuvent t’être totalement rabattue en hiver pour en profiter au maximum. Les arbres sont en majorités caduques et permettent également en partie, en été de laisser passer le rayonnement et en hiver de la filtrer.

La ventilation se fait manuellement en ouvrant les baies vitrées coulissantes pour les appartements avec un séjour traversant et pour les autres un conduit de ventilation jusqu’en toiture est prévu. Ceci permet en été de rafraîchir les façades. De plus, les pièces humides sont placées à l’ouest, du côté de la serre pour réduire leur l’humidité.

La création de ces jardins d’hiver totalement translucide, permet d’agrandir les séjours. Du printemps à l’automne, ils font partie de l’espace de vie, et peuvent être utilisés comme espaces pour travailler ou déjeuner. Et toute l’année, ils peuvent être utilisés comme séchoirs pour le linge. Comme l’air est sec dans ces espaces, des plantes par évapotranspiration assurent une ambiance plus humide et plus agréable à vivre.

Portfolio | Louis Hébert 18
2021
PLAN DE MASSE
Sélection de travaux 19 RDC
Extensions
R+1

DÉTAIL TECHNIQUE

Portfolio | Louis Hébert 20
Sélection de travaux 21

05.

LE THÉÂTRE DU MONDE «MODULARITÉ»

Lieu : Clichy-Montfermeil, banlieue Parisienne Enseignants : V.Guichardaz, J.P.Calori

Le théâtre du monde est pensé comme un espace accueillant une pluridisciplinarité de pratiques tout en favorisant l’émergence de pratiques plus spontanées, des échanges, des débats.

Mon inspiration a été la ville et son fonctionnement, notamment la spontanéité et la continuité des interactions. C’est ce qui m’a donné envie de proposer un théâtre pouvant accueillir tous les types de représentation et de performance, comme de l’improvisation et du stand-up.

Ainsi, j’ai imaginé un lieu-dispositif, semblable à une machine dont les rouages seraient les différents éléments qui composent le lieu. Les gradins seraient télescopiques, pouvant donc occuper la salle selon le besoin, et seraient abrités par un système d’échafaudages. Ce système nous permet de ceinturer la salle et d’en délimiter les contours avec un élément de langage urbain qui conserve une grande part de modularité. Les échafaudages seraient libres d’accès pour le public qui peut ainsi flâner dans la salle et trouver le point de vue qui l’intéresse, mais accueille aussi de petites salles pour le personnel du lieu.

La scène pourrait se déplacer aux hauteurs des plateformes d’échafaudages grâce à un système de vérins, et occupe donc toute la salle de représentation. Cette scène dynamique permet d’engager le public dans la pièce et en particulier la performance.

L’idée est d’en faire un programme public en lui donnant une fonction de parvis couvert, qui accueille par un grand escalier menant au premier étage, étant l’étage de réception du public.

Portfolio | Louis Hébert 22
2020
PLAN DE MASSE

Maquette 1/20

MAQUETTE 1:20

Sélection de travaux 2020
ENSA-V Licence 3

MAQUETTE 1:20

Portfolio | Louis Hébert 24
Sélection de travaux Maquette 1/20 RDC
R+1

piétons et dans lequel l’emplacement est inferrée menant au distincts et peu accesd’un pont, dont les mènerait directement au ou à vélo. Les halotissements résidenamenant, par conséquent, d’attraction, d’échange solidarité, la mixité et est accessible pont permettant de accéder depuis le sol ou exposition au sud-est permettent d’accéder à

06.

LIEU ET TERRITOIRE

«LE POTAGER SUSPENDU»

Lieu : Argenteuil, banlieue Parisienne Enseignants : L.Vilan, R.Borghi

L’axe entre la commune d’Argen teuil et de Sannois présente des flux de circulation automobile importants. Constatant que le phénomène du tout automo bile influait sur le territoire, dans lequel on observait peu de dé placements piétons et dans le quel les activités commerciales liées à l’automobile abondaient.

Au début de cet axe un conces sionnaire abandonné et à moitié détruit, dont l’emplacement est intéressant est donc transformé. Sa destruction est donc actée afin d’établir de nouveaux usages.

Son implantation atypique encla vée entre 2 voies ferrées. Parmi celles-ci, la voie ferrée menant au nord représente une fracture sur ce territoire puisqu’elle créait 2 territoires distincts et peu acces sibles l’un à l’autre dont la jonc tion automobile se fait unique ment par le biais d’un pont, dont les trottoirs étroits excluent des déplacements piétons réguliers et denses.

L’objectif était donc de créer une nouvelle liaison entre ces 2 terri toires qui mènerait directement au site du projet et dont la voiture serait exclue. En effet, cette liaison se ferait à pied ou à vélo. Les habi tants du grand ensemble situé en bord de voie ferrée et les habitants des lotissements résidentiels situés plus à l’ouest seraient les principaux concernés. Cette liaison amenant, par conséquent, de nouvelles populations. Ceci permettrait également de concevoir un lieu d’attraction, d’échange et de partage destiné à tous.

Portfolio | Louis Hébert 26
2020
PLAN DE MASSE
Sélection de travaux 27
Portfolio | Louis Hébert 28
RDC R+1 R+2
Sélection de travaux 29

Enseignant : E.Lemercier 2020

LES MAISONS MONDE «TRAVAILLER SEUL, TRAVAILLER À PLUSIEURS»

L’objectif est d’explorer le potentiel compositionnel des paramètres physiques et techniques de l’espace. Chauffer, abriter, connecter, éclairer, hydrater, isoler, refroidir, ventiler, manger. Chacun d’eux est à la base de plusieurs projets expérimentaux et minimaux, donnant naissance au fil des ans à trois catalogues avec 138 possibilités d’habiter l’espace.

Ce projet personnel porte sur la fonction «travailler». L’objet d’études a été la conception d’une maison autour de cette fonction. Il a donc été question de faire en sorte que l’espace de travail devienne l’élément central. Ont alors été pensées deux pièces dont le positionnement permet une déserte rapide pour l’usager, et signifie le changement de fonction. Leurs hauteurs et porte-à-faux permettent de se sentir comme dans un cocon, leurs fenêtres permettent de garder contact avec l’espace de séjour lorsqu’on le souhaite.

Portfolio | Louis Hébert 30
07.
MAQUETTE
Sélection de travaux 31 L Lieux T R A V A I L L E R P Pièces T R A V A L L E R O Objets T R A V A L L E R P21- Elisabeth Lemercier Julia GUIRAMAND Chaewoon HA Victoria BERTAUD Plateau Echelle 1:1 30 cm 60cm 30cm L Lieux T R A V A L L E R P21- Elisabeth Lemercier Julia GUIRAMAND Chaewoon HA Victoria BERTAUD La maison Lemoine de Rem Koolhaas Echelle 1:333 P Pièces T R A V A L L E R P21- Elisabeth Lemercier Julia GUIRAMAND Chaewoon HA Victoria BERTAUD Chambre Echelle 1:33 T R A V A I L L E R 90cm 157 cm 150cm 105 cm
d’architecture Table d’architecte Bureau Chambre
maison de Rem Koolhass LIEUX OBJETS PIÈCES
Agence d’architecture Atelier
La

08.

THÉÂTRE DU VOYAGE

«LA COULÉE DOUCE»

Lieu : Asnières-sur-Seines, banlieue Parisienne Enseignants : V.De Gasquet, G.Martin 2019

Ce théâtre est accolé à des locaux SNCF de la gare d’Asnières-sur-Seines. Également situé face à une butte incongrue servant de parking illégal, et a l’origine de passage du personnel de la SNCF. C’est transformé au fil du temps en un passage emprunté par les voyageurs. En effet, il dessert directement une ligne de bus, et est emprunté des centaines de milliers de fois chaque année.

Ce projet vise donc à adoucir de manière à diminuer la perception d’obstacle. Les pieds ; centre de l’équilibre sont posés à l’horizontale pour une meilleure stabilité et appréciation de l’espace, le nombre de marches permet une ascension confortable et la pente dessinée correspond à l’angle de montée le plus faible possible pour ce terrain.

-Rythmé le déplacement du corps par un double rythme de marches et de gradins. Les marches permettent un rythme régulier aux passagers pressés. Opposé à cet escalier, les gradins proposent un second rythme de déambulation. Un rythme appropriable par chacun alternant jeux dynamiques pour les enfants et espace de repos.

-Faire une transition de l’imaginaire urbain à l’imaginaire théâtral. Cette transition passe notamment par la transition des fonctions. Espace rural : Abribus, attente du bus, repos Espace Transitoire : Se reposer, Jouer, Déambuler, Entré dans l’imaginaire Espace théâtrale : Échanger, Se restaurer

-Créer une signalisation du théâtre par son dégagement depuis la rue. Des bandes lumineuses sont proposées sous la contremarche et au niveau de la végétation créant un univers particulier à la nuit signalant d’autant plus le théâtre. Des signalisations sonores sont proposées.

Portfolio | Louis Hébert 32
PLAN DE MASSE
Sélection de travaux 33 MAQUETTE
Portfolio | Louis Hébert 34

50 marches de 14cm de hauteur avec 1 ou 2 palier(s) toutes les 6 marches

Sélection de travaux 35

09.

PULP FESTIVAL SCÉNOGRAPHIE

Lieu : Noisiel, banlieue Parisienne

Enseignants : V.De Gasquet, G.Martin 2018

Le PULP Festival situé à la ferme du buisson dans la commune de Noisiel, est dédié à la bande dessinée. Il accueille chaque année des expositions d’auteurs et de dessinateurs de bandes dessinées.

Ce projet scénographique dans une salle d’exposition doit présenter de nombreux dessins réalisés par le dessinateur de BD Alberto Breccia. Cette exposition est pensée sous forme de parcours comportant un préambule ainsi qu’un postambule. Il est basé sur le principe d’espaces visuellement délimités par des marquises. Le visiteur passe en dessous d’imposants panneaux suspendus accrochés aux grilles techniques du plafond qui marquent le début et la fin de chaque espace. Derrière chaque marquise, la perspective donne sur une grande affiche qui marque le début de chaque nouvel univers.

Portfolio | Louis Hébert 36
MAQUETTE
Sélection de travaux 37
Portfolio | Louis Hébert 38 hebertlouis@hotmail.com +33 6 87 96 40 31 bit.ly/hebertlouis PORTFOLIO. LOUIS HÉBERT 2024 ARCHITECTURE & DESIGN SITE INTERNET :

Turn static files into dynamic content formats.

Create a flipbook