ARCHITECTURE PORTFOLIO LOUISE CARMES

Page 1

LOUISE CARMES

-
2018 - 2023 PORTFOLIO D’ARCHITECTURE

PROFIL

CARMES Louise Architecte DE

17/10/2000 - 23 ans

266 rue des Pyrénées, 75020 PARIS louisecarmes@gmail.com

linkedin.com/in/louise-carmès/ (+33) 6 48 31 05 27

Mon parcours comprend des expériences qui ont inspiré le travail que je souhaite poursuivre dans l’architecture. Je porte une attention à toute les échelles ainsi qu’à tous les paramètres attenants au projet, jusqu’au moindre détail.

L’architecture me permet de m’épanouir ainsi que d’exprimer mes goûts et mes principes à travers une discipline qui me passionne et dans laquelle je trouve du sens. Passionnée par les cultures étrangères, le voyage est pour moi un moyen d’alimenter ma culture et mes références par l’expérimentation physique de l’espace, la matière, la lumière, et de rendre compte de l’architecture dans son contexte.

Ce portfolio regroupe une sélection de travaux effectués au sein de ma formation académique. Par le biais de ceux-ci, il s’agit de vous présenter mes références, intérêts et constantes.

SITES WEB

linkedin.com/in/louise-carmès/

issuu.com/louisecrms/docs/book_ louise_carm_s

PERMIS B

PERMIS BATEAU

CENTRES D’INTERETS

Sport

Planche-à-voile (8 ans en club), Equitation (niveau Galop 5), Course à pied.

Grâce au sport : dépassement de soi, force mentale, précision, confiance en moi.

Voyages

Angleterre, Danemark, EtatsUnis, Espagne, Grèce, Hongrie, Irlande, Indonésie, Italie, Japon, Lettonie, Norvège, Pays-Bas, Portugal, RoyaumeUni, République-Tchèque, Suède.

Voyager seule : autonomie, organisation, ouverture culturelle.

Photographie

Cuisine

PARCOURS UNIVERSITAIRE

2022-2023

Ecole Nationale Supérieure d’Architecture de Montpellier Diplome d’Etat d’architecte (DEA). Domaine d’étude: Littoralité.

2021-2022

Chalmers University of Technology, Göteborg, Suède Master 1 MPDSD: Architecture and Planning Beyond Sustainability

2018-2021

Ecole Nationale Supérieure d’Architecture de Montpellier Obtention du Diplôme d’études en architecture (DEEA)

2015-2018

Lycée Saint-Joseph, Sète Baccalauréat Economique et Social option anglais européen, mention Très Bien

EXPERIENCES PROFESSIONNELLES

Eliet & Lehmann / Paris (75)

Agence d’architecture - CDD - Janvier 2024 - en cours

Missions : Mission chef de projet sur projet de réhabilitation et construction neuve à Versailles. Dessin phase esquisse. Réalisation d’un permis de construire modificatif d’une réhabilitation de 587 logements. Concours réhabilitation d’une tour R+15.

Festival Bellastock / Evry Courcouronnes (91)

Fabrication collective d’une ville éphémère, construction grandeur réelle - juillet 2023

AAFC - Atelier d’Architecture Faustine Chaignaud / Montpellier (34)

Agence d’architecture - alternance 2j/sem - Septembre à Décembre 2022

Missions : Composition façades ext. maison médicale Bissy. Réalisation de carnets de détails phases PRO. Réalisation de permis de construire et de démollition.

Corinne Vezzoni & Associés / Marseille (13)

Agence d’architecture - Juin/Juillet 2022

Missions : Composition façades int. et ext. de lots projet logements ICAD Le Havre phases APS à APD. Composition façades sur rue, reprise de plans du pôle culturel d’Ollioules, phase PRO.

Ateliers UP+ / Montpellier (34)

Agence d’urbanisme et de paysage - Janvier/Février 2021

Missions : Reprise du plan d’aménagement d’un quartier résidenciel de 16 hectares, relevés de terrain et cartographie des enjeux territoriaux pour le projet de SCoT de Sophia Antipolis, réalisation de planches de référencements.

Bouygues Bâtiment Sud-Est / Lyon (69)

Stage chantier - construction de 4 bâtiments à Confluence - Janvier 2020

Missions : Contrôle des tours de coffrage, contrôle des murs à ossature bois (MOB), participation aux réunions chantiers et participation au chantier.

COMPETENCES

CAO

AutoCad - Avancé

ArchiCad - Expert Revit - Intermédiaire

Sketchup - Intermédiaire

Twinmotion - Expert

QGIS - Intermédiaire

Autre

Langues

Photoshop - Avancé

InDesign - Expert

Illustrator - Expert

AdobePremierePro - Avancé

Anglais - C2

Espagnol - B1

3
Modélisation Rendu Graphisme

SOMMAIRE

PFE Habiter la Pierre PAGE 6

Ecole Maternelle PAGE 14

Habiter le littoral PAGE 18

Réveler le paysage PAGE 24

Ville verticale PAGE 30

PROJETS PAGE 5

TRAVAUX CONNEXES PAGE 31

Travaux personnels PAGE 33

Maquettes PAGE 36

Mémoire PAGE 40

• S10 PFE - Habiter la Pierre

• S8 Ecole Maternelle

• S6 Habiter le littoral

• S5 Révéler le paysage

• S4 Ville verticale

5
A R C H I T E C T U R E

HABITER LA PIERRE

Sète, France (34)

Enseignant : Michel Maraval

PFE - Semestre 10 - Master 2

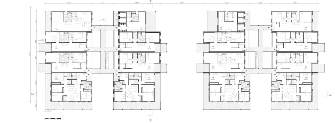
C’est à Sète, ville baignée par les eaux de la Méditerranée, que s’épanouit un projet urbain et architectural sur un site au passé industriel et portuaire inoccupé. Ce projet est le résultat d’une réflexion de l’échelle territoriale à l’échelle de la typologie, visant à créer un environnement harmonieux où l’habitat collectif et la pierre sont en symbiose. Le projet s’étend le long du quai, offrant ainsi une vue panoramique sur les canaux et les environs pittoresques. Les rues, soigneusement aménagées, sont conçues pour encourager la promenade et faciliter les interactions sociales. Les rez-de-chaussée, sont reservés aux halls d’entrées, commerces, espaces communautaires... créant une interface dynamique avec l’espace public. Les typologies de logements sont à caractère évolutif et modulaire, rendu possible grâce à la mise à disposition d’une pièce supplémentaire.

Tous les logements sont traversants et permettent des qualités visuelles et thermiques, completé par les loggias sur la facade ouest. Les logements sont accessibles via une circulation horizontale extérieure, puis par une loggia privative, permetant l’accès à son logement de manière sequencée. L’utilisation de la pierre de Beaulieu, donne aux bâtiments une identité unique et une connexion avec l’histoire et la culture de la région. Habiter la pierre devient alors un véritable héritage, un lien tangible avec le passé et une affirmation de l’identité locale. Sète

Balaruc-les-Bains

Frontignan

7 Plan de masse
Coupe perspective sur la rue
9
1,17 m2 ML ML T4 92m2 T3 72m2 42m2 T3 72m2 42m2 Coupe T1 bis T1 bis 113,63 m2 87,37 m2 86,10 m2 Local vélo Local commercial Local tech. Local encombrants Local vélo Salle de sport Salle de formation Coupe
Plan RDC
Plan R+1
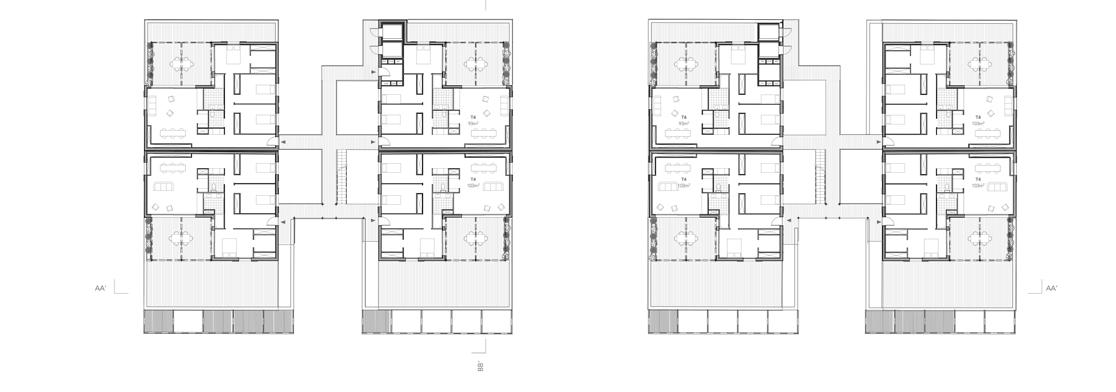
11 ML T4 92m2 T3 80m2 T4 92m2 R+1 café/restaurant 92m2 39,95 m2 67,99 m2 83,66 m2 39,65 m2 Réserve Café restaurant duplex Local associatif Local vélo Local tech. Local encombrants Atelier Commerce Laverie

Façade Ouest

Séquence d’entrée: 1) vue sur le porche

Vue depuis la terrasse en R+4

13
3) Vue depuis l’entrée sur la rue habitée 2) Passage double hauteur La pierre habitée Maquette de calpinage: plâtre teinté

FÖRSKOLA - ECOLE MATERNELLE

Göteborg, Suède

Enseignant : Walter Unterrainer

Semestre 8 - Master 1

L’enjeu premier du projet est l’orientation des volumes permettant un ensoleillement optimal pour chacune des unités d’enseignement, ainsi que pour les circulations et les salles d’activités (gym, bibliothèque, vestiaires) au RDC et au R+1. Le projet est caracterisé par un atrium en ETFE, offrant un espace de récréation intérieur pour les jours de pluie et de froid intense, caractéristique de la région. Cette disposition donne naissance à une cour intérieure couverte, avec 1 unité, des vestaires, un espace enseignants et la salle de gymnastique. Au R+1, 3 unités d’enseignements et des espaces communs.

Le projet permet à toutes les unités d’enseignement de bénéficier à minima de deux orientations pour offrir des conditions d’apprentissage optimales. L’environnement topograpique peu ensoleillé et très dense, a fortement influencé le choix du parti architectural de ce projet.

En termes de structure et de matérialité, nous avons travaillé avec une structure en bois issue des forêts suédoises, une isolation en bottes de paille et des panneaux d’argile comme revêtement intérieur.

Göteborg

15
AA Plan RDC
Plan R+1 Vue sur l’atrium central Coupe AA

Façade Nord

Façade Ouest

17

HABITER LE LITTORAL

Frontignan, France (34)

Enseignant : Emannuel Nebout

Semestre 6 - Licence 3

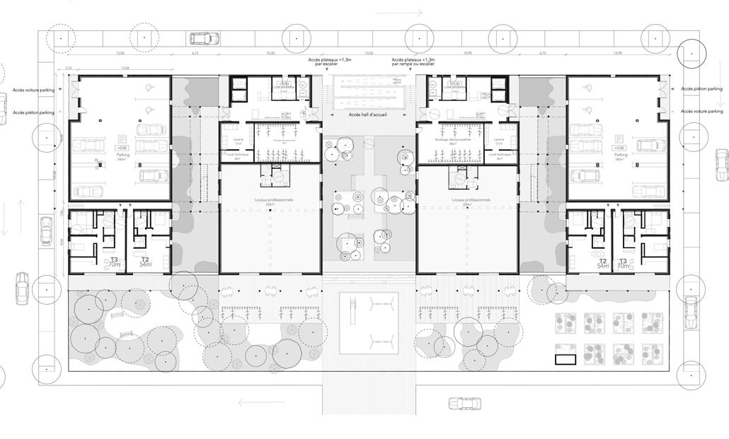
Le territoire dans lequel le projet s’inscrit présente de forts enjeux : l’enjeu démographique lié à la proximité avec le centre historique et l’enjeu climatique avec une position sur un terrain soumis à d’importants risques d’inondations. Le PPRI au plus fort de ses estimations admet une élévation de la mer et des risques d’inondations pouvant accéder à 2.50 NGF. Pour répondre à la zone de PPRI forte, les 4 volumes de logements (60 logements au total) culminant à 15,6m de haut sont accessibles via des plateformes à 1,3m au dessus du sol, ce qui correspond au niveau des plus hautes eaux.

Nous pouvons distinguer 3 échelles d’espaces : l’espace public, l’espace semi-public et enfin les espaces communs.

Les circulations verticales mènent à des passerelles au nombre de 4, superposées, chaque branche desservant un maximum de 2 logements dans une volonté d’individualisation des entrées. Ce projet dispose d’une triple matérialité : un socle en béton pour la massivité, suivit de 3 niveaux (R+1 au R+3) munis d’un revêtement en bardage bois et enfin un revêtement en bardage aluminium en attique (R+4) pour marquer le dernier niveau avec légèreté.

Frontignan

19
Rez-de-chaussée
Plan R+1 Plan R+4

Coupe AA

Façade Est

Vue depuis les cours intérieures

21 Bande bitumeuse Menuiserie bois double vitrage Ga de corps acier axé soudé sur poutre IPN périphérique Pout le acier galvanisé Da le sur plots Ba dage étanche à 'eau Couvertine Pare vapeur couche de p otec ion Fixations par corniè es acier galvanisé Tube acier galvanisé Seme les béton armé Chaînage béton armé Coupu e de capilarité Pout e périphérique Armatu e de la da le Membrane géotextile Remblais Rail volet Plane le de p otec ion acier galvanisé Structu e acier boulonnée à la structu primai Caniveau écoulement des eaux Bac acier co laborant et chape béton 200mm Pa e vapeur Bande bitumeuse Volet bois Plane le de p otec ion acier galvanisé Gri le d'aération vide sanitai e Système d'obturation de lame d'air (en cas d'incendie) Composition plancher Bois flottant 12mm Membrane insonorisante Béton 38mm Carton fib e goud onné 12mm CLT 5 p is 175mm Support type "Z" 90mm à 600mm C/C Laine insonorisante 90mm Vide 60mm CLT 3 p is 60mm Composition plancher Bois flottant 12mm Membrane insonorisante Béton 38mm Carton fibre goudronné 12mm CLT 5 p is 175mm Support type "Z" 90mm à 600mm C/C Laine insonorisante 90mm Vide 60mm CLT 3 p is 60mm Composition plancher Bois flottant 12mm Membrane insonorisante Béton 38mm Carton fibre goudronné 12mm CLT 5 p is 175mm Support type "Z" 90mm à 600mm C/C Laine insonorisante 90mm Vide 60mm CLT 3 p is 60mm Composition plancher Revêtement de sol 10mm Isolation acous ique 5cm Chappe béton 5cm Béton banché 23cm Vide Sanitaire : transparence hydrau ique INT EXT Sol naturel. RDC bas. +0,00m Toiture +15,40m R+3 +12,60m R+2 +9,80m R+1 +7,00m RDC haut +1,30 Composition mur Revêtement extérieur bardage bois Lattage métallique horizontal 22mm Isolant laine de roche 90mm Membrane pa e-air autoco lante (joints sce lés) CLT 175mm Gypse 16mm Gypse 16mm

REVELER LE PAYSAGE

Portes, France (30)

Enseignant : Marina Ramirez

Semestre 5 - Licence 3

Projet realisé en duo

A la demande de la municipalité du village typiquement Cévenol de Portes, ce projet met en oeuvre un complex socio-économique aux multiples enjeux : ralentissement de la départementale traversante qui en fait une des caractéristiques principale du village, redynamisation du coeur de village et création d’espaces publics adaptés dans un esprit de soulignement des différents niveaux du village et de cohésion sociale entre habitants et touristes.

Dans ce projet, l’habitant retrouvera la place qu’il a perdu au détriment de la voiture dans le temps. Diverses échelles seront mobilisées : l’échelle territoriale, l’échelle du village et l’échelle du projet. Les filières locales seront mises en avant : matériaux et savoir faire locaux aux circuits courts (tavaillon bois de châtaignier, portiques en pin maritime...) et vente de produits locaux. Le bois et le béton de site mêleront expressivité structurelle et architecturale forte. Le bois apporte au projet une intégration respectueuse de l’image du village tout en favorisant les performances thermiques, accoustiques et lumineuses de celui-ci. Alès

Portes

6 - Espace restauration

7 - Zone de stockage

8 - Point d’information

9 - Terrasse extérieure

10 - Salle des loisirs

11 - Point de vue

1 - Supermarché

2 - Commerce indépendant

3 - Espace de stockage

4 - Bureaux

5 - Marché couvert

6 7 8 9 10 11
Plan R+1
1 2 3 4 5
Plan RDC

Axonométrie générale

LEGENDE:

1 - Portique en lamellé croisé

Pin maritime

60 x 10 cm

2 A - Isolation en ouate de cellulose

2 B- Isolation en laine minérale étanche

3 - Panneaux de contre-plaqué bois + pare-vapeur

4 - Tavaillon en bois - châtaignier

5 - Pare- pluie

6- Liteau en bois horizontal

7 - Liteau en bois vertical

8- Lattes de bois

12 - Platine métallique

14 - Solives en bois

15 - Chappe de béton armée

25
12 1 2 A 8 23 13 1 2 5 2B 7 6 4 15 2A 6 14 3 1 2
Coupe A’

LA VILLE VERTICALE : REHABILITATION D’UNE TOUR

Nimes, France (30)

Enseignant : Laurent Duport, architecte

Semestre 4 - Licence 2

Projet realisé en duo

En parallèle du travail d’extension de commune, nous avons travaillé sur la réhabilitation de la tour BRL (Compagnie du Bas Rhône Languedoc) haute de 14 étages et d’une surface totale de 4420m2 .

Pour ce projet, nous avons pensé un programme multifonctionnel composé à 50% de logements traversants et en duplex. La seconde partie de la tour abritera des fonctions diverses pour que cette tour nouvelle devienne un pôle d’activité majeur et multigénérationnel de la ville de Nîmes (des nourrissons en crèche, étudiants et adultes jusqu’aux résidents de la maison de retraite à l’échelle de la ville horizontale). Pour répondre aux problèmes de surchauffe rencontrés lorsque la tour fut en fonction, nous avons décidé de prolonger les planchers afin de créer des débords de plancher qui protègeront du soleil en été et illumineront les pièces en hiver ce qui composera l’identité architecturale et structurelle principale de la tour.

Ces débords de planchers créeront des coursives permettant de desservir les niveaux de la tour.

Les abords de la tour sont aménagés de sorte à créer des espaces de vie extérieurs confortables et ombragés.

Nîmes

11
Façade Est Plan R+5 Plan R+4

Façade Sud

Façade Sud

Logements

Logements Logements

Logements Logements

Ecole d’art

Salle de sport + laboratoire médical

Accueil + crèche

Salle d’exposition Parking

31
+3,5 +5,75 +8 +10,25 +12,5 +14,75 +17 +19,25 +21,25 23,75 +26 +28,25 +30,5 +32,75 +32,75
collective
Terrace
Restaurant Bureaux Logements
Coupe AA’
23

PROJETS PERSONNELS

33

RENOVATION STUDIO 30M 2

Sète, France (34)

2022-2023

La mission qui m’a été confiée fut celle de la rénovation d’un studio de 30m2 à des fins locatives, studio attelé à une maison située dans la pinède sur la ville de Sète. Le studio anciennement utilisé comme espace de rangement ne disposait pas d’espaces définis. L’enjeu fut de créer des espaces sans pour autant cloisonner la pièce, permettant un apport de lumière naturelle optimisé et une continuité visuelle vers la pinède ou que l’on se trouve dans le studio. L’entièreté du projet fut pensé pour qu’une fois realisé, les clients n’aient à ajouter que le moins de mobilier possible, la matière se chargeant de suggérer les espaces. Les matériaux utilisés, béton ciré et bois brut ont participé à l’ancrage du projet dans son environnement méditerrannéen si caractéristique.

Ce projet m’a permis ma première expérience de suivi de chantier, et donc d’expérimenter toutes les étapes du chantier, de la phase esquisse à la phase exe.

Plan du studio
35
Coupe transversale Vue générale du studio

MAQUETTES

La maquette est pour moi un medium de représentation, d’exploration, d’expérimentation, de représentation de l’espace important dans le processus de conception du projet. Dès la phase esquisse, la maquette intervient comme moyen de matérialiser l’espace, les volumes et les proportions dans le réel via l’utilisation de matériaux simples. J’utilise la maquette comme outil de représentation de l’espace, tandis que le dessin transmettra les données techniques et la materialité.

Analyse extension d’un cimetière, Atelier A6A

Maquette avec détail sur rue

Nexus World Housing, Rem Koolhaas

MEMOIRE

INONDATIONS ET MONTÉE DES EAUX EN SUÈDE:

Comment anticiper les conséquences d’une montée du niveau de l’océan mondial et du risque inondation : Göteborg et sa politique urbaine multiscalaire.

41
louisecarmes@gmail.com

Turn static files into dynamic content formats.

Create a flipbook
Issuu converts static files into: digital portfolios, online yearbooks, online catalogs, digital photo albums and more. Sign up and create your flipbook.
ARCHITECTURE PORTFOLIO LOUISE CARMES by Louise Carmès - Issuu