



![]()




Paragraph to be written. The following paragraph is as per the previous broker:
Triple mint 22 foot wide townhouse, fully renovated top to bottom and offering significant space, volume, light, and quality.
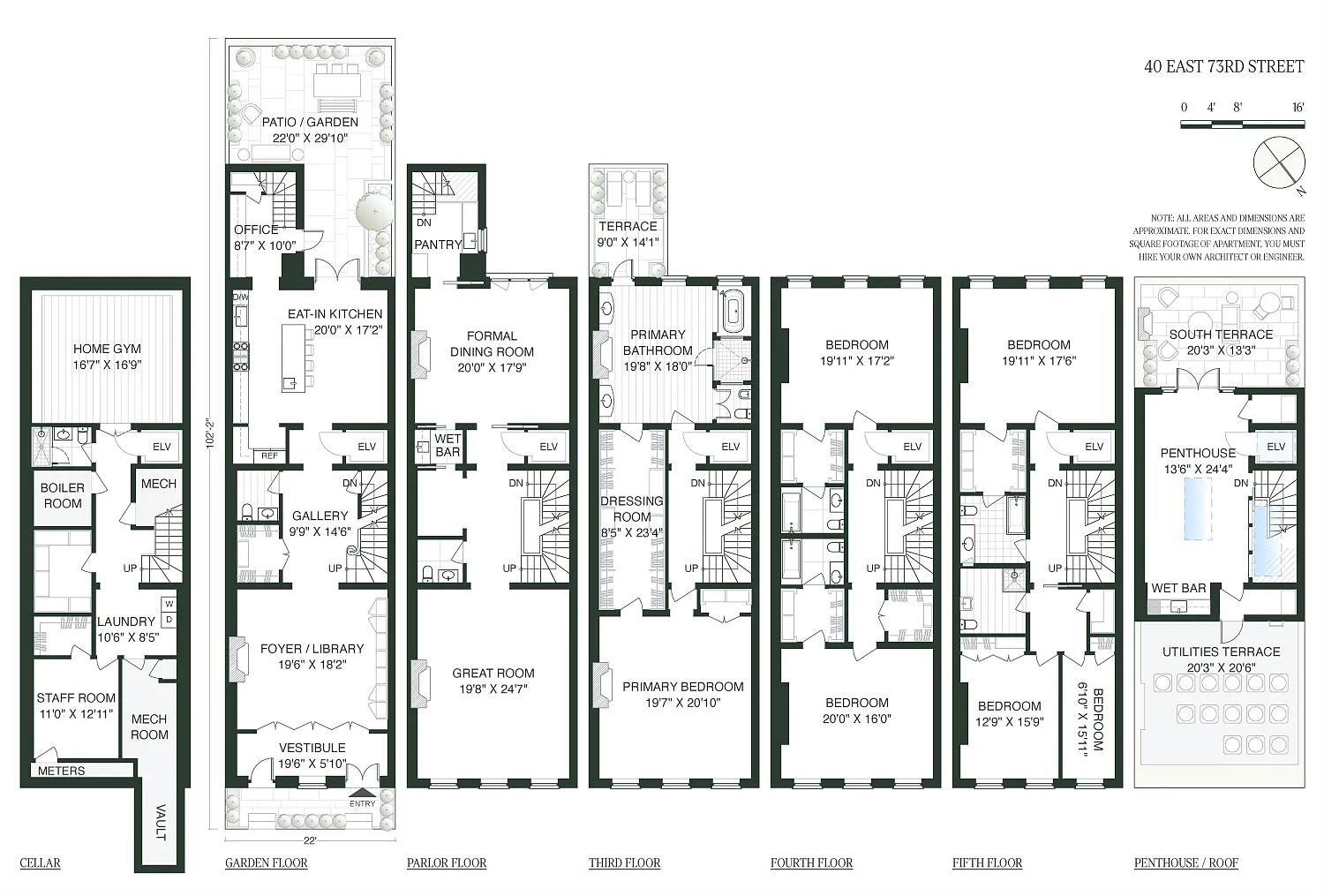
In a market of homes in need of renovation, this is the elusive "turnkey" home. The current owner gut renovated the home over the course of nearly a decade; it has been meticulously maintained, and is now prepared for its new owner. The house is approximately 9,000 square feet (8,200 above grade), situated on a 100 foot deep lot, and sits on the south side of 73rd Street just east of fashionable Madison Avenue. There are six stories, six bedrooms, six full bathrooms, and three powder rooms.
Originally built in 1885, the facade is Neo-Grec Brownstone, fully restored. Enter through a securitized gate to a private foyer entry, and up we go.
GARDEN LEVEL: You are greeted by an enormous, full-width gallery and library with a wood-burning fireplace and significant cloak storage. A grand, steel (hardwood wrapped) staircase leads all the way up through the house, and opens to a crowning skylight allowing light through the entire core. Additionally, an elevator goes from bottom to top. Through here is the eat-in kitchen, complete with Sub-Zero and Miele appliances, quartz countertops, significant custom cabinetry, a pantry, and a back office and stair. The kitchen leads graciously to a back garden bathed in southern light and ultra-quiet and private.
PARLOUR FLOOR: Entered either via the main stair or rear secondary stair, the parlour floor is an open entertaining space with significant ceiling height and is appointed with perfect luxury touches. There is a formal living room and dining room, each with its own fireplace, a butler's pantry, juliet balcony, wine room,and powder room.
THIRD FLOOR: The primary suite occupies this entire floor. Here lies a large, north-facing full-width bedroom with fireplace, a custom built-out dressing room, and a windowed bathroom with a private terrace and all spa-like features: a Jacuzzi tub, steam shower, water closet, and separate vanities.
FOURTH FLOOR: Twin guest suites occupy this floor, each with a custom built-out closet, and their own three-piece bath. There is a laundry room on this floor as well.
FIFTH FLOOR: On this floor are three bedrooms and two full bathrooms, as well as additional closet space. This floor can easily be used for guests, children, or for additional in-house amenities such as an office, gym, pilates room, or additional storage.
SIXTH FLOOR: Added on by the current owner, the sixth floor is a penthouse-like entertaining and recreation room with a private terrace. Bathed in light from multiple skylights, this room can be used for gaming, exercise, recreation, or as additional sleeping space. It has a wet bar and powder room as well.
The CELLAR of the house was dug out and contains a staff room, significant amounts of storage, a gym, and bathroom.
The mechanicals of the house are second to none in the market today. There is state-of-the-art infrastructure such as an independent generator, a water filtration system, full soundproofing throughout, individually controlled HVAC in each room, a full-home speaker system, smarthome, and 600 amps of electrical service. Truly, a purchaser need not do any renovation, and can simply "bring their toothbrush" to this magnificent Upper East Side mansion.
Located in the absolute heart of Manhattan's most famous, glamorous, and elegant neighborhood, the Upper East Side, 40 East 73rd Street boasts simple and immediate access to world-class shopping, culture, restaurants, foundations, organizations, transportation, and of course, Central Park.


40 East 73rd Street | Townhouse
Madison Avenue / Park Avenue

ASKING PRICE: $29,950,000
REAL ESTATE TAXES: $14,246
BUILDING SIZE: 22 ft. x 77 ft.
LOT SIZE: 22 ft. x 102 ft.
ROOMS: 16
BEDS: 6
BATHS: 6
POWDER ROOMS: 2
STORIES: 6 stories plus lower level
ELEVATOR: Yes
APPROXIMATE SIZE: 9,000 square feet
PRICE PER SQUARE FT: $3,333 per square foot
CONDITION: Excellent
COMMENTS: Built in 1885, Architect - Richard W. Buckley Patio/Garden/ Multiple Terraces/Private Penthouse
LISTED: June 27, 2023

• Rare offering of a prime luxury townhouse one block from Central Park in one of the most prime locations on the Upper East Side
• Located between Madison Avenue and Park Avenue on a charming treelined street
• Built in 1885 by architect Richard W. Buckley, of McCafferty & Buckley, who “built many of the handsomest private dwellings on the east side of the city”, as per The New York Times.
• Rare offering of a mint condition townhouse
• The townhouse is built 22’ x 77’ on a lot 22’ x 102’,
• A Neo-Grec brownstone masterpiece, characterized by a lovely brownstone front, deep cornice at the top, and articulated entryway and window details with enormous curb appeal
• Approximately 9,000 sq. ft. spanning 7 levels
• Approximately 1,470 sq. ft. of outdoor space including a garden, terrace, and landscaped rooftop terrace with a fireplace, seating area and city views.
• 16 rooms, 6 bedrooms, staff room, 6 baths, 3 powder rooms
• Lovely architectural details include beautifully proportioned rooms with wonderful scale, nearly all rooms spanning the full width of the townhouse, excellent entertaining flow, 5 fireplaces, high ceilings, spectacular hardwood wrapped steel staircase, lovely moldings, large pristine skylight
• North and south exposures offer beautiful light illuminating the townhouse throughout the day.
• Sophisticated townhouse has state-of-the infrastructure
• Individually controlled HVAC in each room
• Entire home speaker system
• Smart home
• 600 amps of electrical service
• Independent generator
• Elevator
• Prime location on Upper East Side surrounded by world-class museums, cultural institutions and events, shopping, restaurants, and private schools.

A long enfilade of rooms emanate from the 19’ wide entrance foyer
The library with fireplace and booklined walls is the welcome room to the townhouse from the entrance foyer
Beyond the library is a large gallery with a striking staircase gracefully leading up to the top of the townhouse, which is illuminated by the large skylight.
Off the large gallery is a lovely guest powder room, large cloak room, and elevator to all floors including the basement
The dine-in 20’ x 17’ kitchen is wonderfully warm, inviting and streamlined with custom cabinetry with quartz countertops, cooking/dining island with seating, top-of-the-line Miele and SubZero appliances and large double doors leading to the garden
Off of the kitchen is a private office with stairs leading to the butler ’s pantry on the second floor
The quiet and private landscaped garden off the kitchen has tall trees, plantings and seating and is the perfect setting for outdoor dining.
The parlor floor is wonderful for entertaining with living room, gallery and dining room in perfect succession
Stunning 24’ living room the full width of the townhouse offers a fireplace, high ceiling, moldings and three tall windows overlooking the tree lined street with townhouse facades
Lovely expansive gallery with gracious staircase, wet bar, guest powder room, and elevator
The 20’ dining room has an elegant fireplace, high ceiling, moldings and lovely floor to ceiling doors opening to a Juliet balcony overlooking the garden below
Off the dining room is the butler’s pantry/warming kitchen with stairs leading to the kitchen below
The entire third floor comprises the luxurious primary bedroom suite
The large private 20’ primary bedroom with fireplace and high ceiling has three windows over the tree-lined street and is the full width of the townhouse
An enormous 23’ dressing room is adjacent to the bedroom
The room-size primary spa-like bath offers luxurious space with a fireplace, oak floor, high ceiling, moldings, two separate vanity sinks, Jacuzzi tub, separate glass enclosed steam shower, enclosed water closet, and floor to ceiling door leading to a 14’ terrace overlooking the garden.

Lovely large 20’ north bedroom has two large closets, en-suite bath and is the width of the townhouse with 3 windows overlooking the tree-lined street
Large 19’ south facing bedroom has three windows overlooking the garden and offers a large closet and en-suite bath
Charming 15’ x 12’ north bedroom and adjacent small bedroom have a bath and overlook the treelined street, and can be used as an office, exercise room or storage
Sunny 19’ south facing bedroom overlooks the garden and has an en-suite bath and large closet
Rooftop penthouse with multiple skylights can be used for entertaining or family room and has a kitchen/wet bar, powder room, and lovely south-facing landscaped terrace with seating and city views
Impressive gym
Staff room
Bath
Laundry
Large storage room
Mechanicals
40 East 73rd Street, Townhouse
CLOSEST COMPARABLE TOWNHOUSES CURRENTLY ON THE MARKET
Fifth Avenue - Park Avenue
East 60th Street - East 86th Street
$20,000,000 -$30,000,000
2022 to Present
Louise C. Beit
Senior Global Real Estate Advisor, Associate Broker
Realty
$26,770,000$26,770,000$26,770,000$10,4408,200$3,264
Excellent Condition
$35,000,000$29,500,000$29,500,000$21,6709,200$3,207
Excellent


Madison Avenue / Park Avenue

ASKING PRICE: $26,770,000
REAL ESTATE TAXES: $10,440
BUILDING SIZE: 20 ft. x 55 ft.
LOT SIZE: 20 ft. x 100 ft.
ROOMS: 15
BEDS: 5
BATHS: 7
POWDER ROOMS: 2
STORIES: 5 stories plus lower level
ELEVATOR: Yes
APPROXIMATE SIZE: 9000 square feet
PRICE PER SQUARE FT: $3,333 per square foot
CONDITION: Excellent
COMMENTS: Built in 1885 / Architect Richard W. Buckley 291 sq. ft. Garden / 190 sq. ft. Terrace
LISTED: October 21, 2024


Park Avenue / Lexington Avenue

ASKING PRICE: $24,995,000 REAL ESTATE TAXES: $2,733
BUILDING SIZE: 18 ft. x 55 ft. LOT SIZE: 18 ft. x 102 ft. ROOMS: 15 BEDS: 9
POWDER ROOMS: 3
STORIES: 7 stories plus lower level ELEVATOR: Yes
APPROXIMATE SIZE: 13,000 square feet
PRICE PER SQUARE FT: $1,923 per square foot
CONDITION: Excellent
COMMENTS: Built in 1899, Architect -Delano and Aldrich Garden/Terrace/Balcony/Rootop Terrace
6 Fireplaces
LISTED: March 15, 2024


Madison Avenue / Park Avenue

ASKING PRICE: $29,500,000
REAL ESTATE TAXES: $21,670
BUILDING SIZE: 20 ft. x 60 ft.
LOT SIZE: 20 ft. x 100 ft. ROOMS: 12
BEDS: 5 BATHS: 7
POWDER ROOMS: 0
STORIES: 5 stories plus lower level
ELEVATOR: Yes
APPROXIMATE SIZE: 9,200 square feet
PRICE PER SQUARE FT: $3,207 per square foot
CONDITION: Pristine
COMMENTS: Built in 2017 Garden/Rooftop Terrace/Elevator
LISTED: April 4th, 2024

40 East 73rd Street, Townhouse
CLOSEST COMPARABLE SOLD TOWNHOUSES
Fifth Avenue - Park Avenue
East 60th Street - East 86th Street
$20,000,000 -$30,000,000
2022 to Present
Louise C. Beit
Senior Global Real Estate Advisor, Associate Broker
Sotheby's International Realty
Comparable Townhouses Park Avenue
East 86th Street -$30,000,000 November 7, 2024
$32,000,000$25,500,000$23,375,000$11,18110,325$2,663
$15,581 12,000$2,208
$20,000,000$16,8259,000$2,222
Excellent Condition
Built in 1869 / Architect: Steven Harris Lap Pool/Japanese Garden/Landscaped Roof Garden/Gym
3 Wood-burning Fireplaces Elevator/Georgian Brick
Excellent Condition
Built in 1907/Architect: Diamond Barrata Garden/Multiple Terraces/Gym/Basketball Court/Terrace Jacuzzi
8 Fireplaces Elevator
Pristine Condition
Built in 1879/ Architect: James E. Ware / Reimagined in 2012/Architect: Joseph Pell Lombardi Pool/Sauna/Garden/Multiple Terraces/Rooftop Garden 2 Fireplaces/Smarthome Features by Crestron Elevator
$14,246 9,000$3,333
Excellent Condition
Built in 1885/Architect: Richard W. Buckley Neo-Grec Brownstone, fully restored
Patio/Garden/ Multiple Terraces/Private Penthouse Elevator/Smart Home Features/Full Sound proof rooms
5 Wood-burning Fireplaces/Backup Generator
6 plus lower level 9/22/202378 Days


110 East 70th Street
Park Avenue / Lexington Avenue SOLD PRICE: $23,375,000

PRICE PER SQUARE FT: $2,663 per square foot
CONDITION: Excellent
COMMENTS: Built in 1869 / Architect: Steven Harris Pool, Japanese Garden, Landscaped Roof/ Georgian Brick 3 Wood-burning Fireplaces, Elevator
SOLD: June 16, 2024


129 East 73rd Street | Townhouse Park Avenue / Lexington Avenue

APPROXIMATE SIZE: 12,000 square feet
PRICE PER SQUARE FT: $2,208 per square foot
CONDITION: Excellent
COMMMENTS: Built in 1907, Architect - Diamond Barrata Garden/Terraces/Basketball Court/Gym 8 Fireplaces
SOLD: September 22, 2023


45 East 74th Street | Townhouse
Madison Avenue / Park Avenue

SOLD PRICE: $20,000,000
REAL ESTATE TAXES: $16,825
BUILDING SIZE: 19 ft. x 55 ft.
LOT SIZE: 20 ft. x 102.17 ft.
ROOMS: 13
BEDS: 6
BATHS: 6
POWDER ROOMS: 3
STORIES: 5 stories plus lower level and rooftop terrace
ELEVATOR: Yes
APPROXIMATE SIZE: 9,000 square feet
PRICE PER SQUARE FT: $2,222 per square foot
CONDITION: Excellent
COMMMENTS: Built in 1979 / Reimagined in 2012 by Joseph Pell Lombardi Pool/Sauna/Garden/Terraces/Rooftop Garden/Smarthome
2 Fireplaces, Elevator
SOLD: October 7, 2024

We will prepare the following spreadsheets:
Closest comparable active townhouses, with photos and floorplans
Closest comparable sold townhouses, with photos and floorplans
From the statistics of the above spreadsheets, and objective evaluation, we will discuss three pricing strategies.

• Prices are stable and deals are happening
• New properties on the market priced well are moving
• Properties needing renovation that have been on the market and priced well are selling quickly
• Supply falling more than demand
• Tight supply in some areas of the market putting pressure on buyer
• Sellers have adjusted prices
• Inventory consisting of interesting and original properties is selling
• Mix of domestic and foreign customers
• Internationals have returned
• New York is back

If the townhouse at 40 East 73rd Street is priced correctly, it should sell expeditiously.
Superb visuals and intense marketing to specific target audiences will make all the difference in finding the customer for this property and will contribute to an efficient time to close.
Sotheby’s International Realty is the only worldwide real estate firm and has a marketing reach that far exceeds all other real estate firms.
In this market, proper positioning of a property on the market and pricing is of highest importance, since there is a vast audience waiting to buy.


We will commission a portfolio of photographs by an architectural photographer. The goal is to curate a carefully orchestrated series of images the most interesting angles, the ideal time of day, the most compelling features all dsigned to show the estate at its very best. This portfolio enriches the viewer’s experience and will be the centerpiece of our marketing efforts, both in print and online.
The property will be measured by a professional for floor plans to be used on the web, for the property’s brochure, e-brochures, and oversized postcards.
Detailed description of the property and the neighborhood will accompany the photos and floor plans on the web.
A 4-sided, color customized sales brochure printed on heavy stock with photographs and floor plans highlighting the distinctive features of the property will be created. The brochure will be:
• Displayed at Sotheby’s New York auction house at the real estate desk
• Distribution to, and displayed at, select major domestic and worldwide Sotheby’s International Realty brokerage offices
• Displayed at Sotheby’s International Realty corporate office on Madison Avenue
• Distributed to customers and brokers at showings of the townhouse
(8.5” X 5.5”)
• Mailed to Forbes Magazine’s 400 Billionaire List, and Fortune Magazine’s Executives of 500 Largest Corporations
Electronic brochures with all color photos, text and floor plans are sent via e-mail to all Manhattan brokers once per week, and to Sotheby’s International Realty’s proprietary list of art and real estate clientele.

The photos, text and floor plans of the property are placed on Sotheby’s International Realty’s website and are linked to every broker’s computer. Each and every Manhattan broker and their buyers will be immediately informed of the availability of the townhouse, and will have access to pertinent information regarding the property.
An exclusive agreement means that you have chosen a brokerage firm to represent your property to the brokerage community and to the public. And, in the case of Sotheby’s International Realty, to market your townhouse in the highest quality fashion to the local, national, and international brokerage communities and to prospective purchasers.
Open house notices are emailed to all brokerage firms in Manhattan (approximately 10 brokers attend over a 1 hour period).

The following is an example of proposed advertising placement should Louise Beit of Sotheby’s International Realty be retained to exclusively list the property. A confirmed schedule of insertion dates will be provided once photography is complete. Other publications may become available during the listing term with local, national, and/ or international exposure. We will continue to consider your property for all opportunities as they arise.

The New York Times
Wall Street Journal
Barron’s
Avenue Magazine
Quest Magazine
Scene
Luxe Magazine
Bloomberg Magazine
Forbes Life
Gotham Magazine
Manhattan Magazine
New York Magazine
Los Angeles Times
Travel and Leisure
Winter Antiques Show Catalogue
Architectural Digest - On the Market
Robb Report Homes and Style
Robb Report Collection
Time Out New York
Haute Residence
Women’s Wear Daily
NYCurbed
Mansion Global
Off The MRKT
ABC Worldwide Stone
The International New York Times
Financial Times (UK)
Country Life (UK)
Yue Magazine (Asia-Pacific)
Luxury Properties (Asia-Pacific)
Daily Globe and Mail (Canada)
South China Morning Post
Die Welt (Germany)
Reside Europe
The Sunday Times (UK)
Monaco Yacht Show - September 23rd to 26th, 2020
Dubai International Film Festival - December 2021
London Int’l Horse Show - December 15th to 21st, 2020
New York Fashion Week - February 6th to 13th, 2020
Cannes Film Festival - May 12th to 23rd, 2020
Wimbledon - Postponed to 2021
The New York Times - New Property Column (Robin Finn)
The New York Times - Sunday Edition
The Wall Street Journal - House of the Day
The Real Deal Magazine - Jackie Bischof/Josh Barbanel
Architectural Digest - Mitch Owens
Architectural Digest - AD DesignFile
Photo Gallery of Interior Design
Sotheby’s International Realty - Extraordinary Living

The listing will be submitted to Sotheby’s International Realty’s corporate PR department for any special features on sothebysrealty.com and sothebyshomes.com, as well as upcoming press opportunities reaching local and global markets.
National & International News Outlets: Barron’s
Boston Sunday Herald
Boston Globe
Financial Times
The International Herald Tribune
Los Angeles Times
The New York Times - Sunday Edition
Robin Finn’s Column
New Properties coming on the market
San Francisco Chronicle
The Sunday Times (UK)
The Wall Street Journal
Jackie Bischof/Josh Barbanel Column
House of the Day
Architectural Digest Avenue Billboard
Connecticut Cottages & Gardens
Country Life (UK)
Departures
Florida Design
Forbes Life
Gotham Magazinea
Greenwich Magazine
Hamptons Cottages & Gardens
Hamptons Magazine
Haute Living House & Garden (UK)
International Property
Los Angeles Confidential
Luxe
Manhattan Magazine New York Magazine
New York Cottages & Gardens
Ocean Home
Palm Beach The Island
Quest
Robb Report Collection
Robb Report Exceptional Properties
Robb Report Vacation Homes
Travel and Leisure
Unique Homes
The Week

There is more wealth in the world today than at any other time in history. The creation of new ultra high net worth individuals has been largely driven by emerging global markets. As such, identifying, reaching and connecting in meaningful ways with this geographically diverse and impossible-to-reach client base is highly complex. There is no more efficient solution to reach the world’s most desirable customers than through our co-marketing relationship with Sotheby’s auction house.
Clients Include:
• 68 of the Forbes’ 100 Richest People
• 136 of the Forbes’ 400 Richest Americans
• 57 of the Forbes’ 100 Richest Americans
• 164 of the Forbes’ Top 500 CEOs
• All 10 of the Forbes’ Top 10 Billionaire Art Collectors
• 169 of the Art News’ Top 200 Collectors
Sotheby’s Art and Home
Sotheby’s Preferred
Sotheby’s New York City Style
Sotheby’s Magazine
BROCHURES
The brochure will be displayed at the real estate desk of Sotheby’s auction house on York Avenue, and distributed to select Sotheby’s auction houses worldwide.
Sotheby’s International Realty is the exclusive sponsor of highly important sales at Sotheby’s each season. Prior sponsorships include the sale of Impressionist and Modern Art, reaching core American collectors, a week-long series of sales in Hong Kong, reaching affluent Mainland Chinese and other Asian investors, and the sale of Latin American Art, reaching emerging markets in South and Latin America. Property brochures are presented at these sales at the dedicated Sotheby’s International Realty desk.

The Sotheby’s International Realty brand was established to connect the finest real estate to the most prestigious clientele in the world. Today, the network boasts more than 26,500 independent sales associates, located in approximately 1,100 offices in 83 countries and territories worldwide.
In addition to making the property information available to our entire international network of offices, we will send personal communication and property brochures to the local brokerage executives in specific key markets. We will request that the property be presented at any upcoming sales meetings, as well as distributed via email.
• New York City
• Greenwich
• The Hamptons
• Cape Cod
• Palm Beach
• Beverly Hills
• Los Angeles
• Santa Barbara
• Carmel
• San Francisco
• Sonoma/Napa Valley
• Seattle
• Dallas
• Miami
• Aspen
• Washington
• Boston
• Naples
• London
• Paris
• Rome
• Beijing
• Tokyo
• Dubai
• Doha
• Geneva
• Monte Carlo
• São Paulo

SOTHEBY’S INTERNATIONAL REALTY WOULD TARGET THE FOLLOWING MARKETS:
· Wall Street financiers, investment bankers, hedge fund owners, corporate executives, and entrepreneurs.
· International purchasers, including those from Canada, China, India, Brazil, the Euro-zone and Australia
· Established real estate families, celebrities, star athletes, performing artists.
· The Forbes 400 list of richest Americans.
· Wealthy individuals listed on the “Rich Register”.
· Affluent families with children attending the private schools.
· Affluent families presently living in Upper East Side townhouses.
· Sotheby's auction house subscriber base, a worldwide community of high net worth individuals, local and international art collectors, interna- tional celebrity artists, celebrity fashion designers, etc.
· Sotheby's International Realty's private banking community network representing high net worth individuals.
· Our network of previous customers who have viewed our townhouse properties.
· Diplomatic posts in the United States, including consulates and Missions to the United Nations.
· Wide general audience on the local, national, and international level to find those customers interested in rare offering of an exquisite Neo-Georgian townhouse meticulously renovated, with extraordinary curb appeal located two blocks from Central Park, off Park Avenue, on one of the most charming tree-lined streets on the Upper East Side, with approximately 9,000 sq. ft. spanning 7 levels, plus garden, terrace, and landscaped rooftop terrace, 16 rooms, 6 bedrooms, staff room, 6 baths, 2 powder rooms, beautiful light, grand scaled rooms, 5 fireplaces, high ceilings, and near private schools, museums, shopping, and restaurants.

DETAILS OF THE SELLING PROCESS ARE AS FOLLOWS, AND I OR MY ASSISTANT WOULD BE PERSONALLY AVAILABLE TO ACCOMPLISH THE FOLLOWING:
• I and/or my assistant will be present each time the townhouse is shown, guide the customer through the property, and give the color brochure with description and floor plan to co-brokers and customers at each visit.
• I will email you each time a showing is requested, and include the customer ’s name and a short bio.
• Submit progress reports to you concerning marketing, customer reactions and comments, number of customers and brokers who have seen the townhouse, and comments about the real estate market.
• Inform you of changing conditions in the residential market so that you will have information upon which to make a decision.
• Use my negotiating skills to get the best possible price during the negotiation process, including pointing out to brokers and purchasers why 30 east 73rd Street is unique compared to what is available on the market.
• Gather all the pertinent information on the building requested by a prospective purchaser.
• Assist in gathering the necessary documents for both the seller’s and buyer’s attorneys for their review during the contract drawing period.
• Keep the process moving smoothly to a successful closing.
• I will do the before-closing walk through with the buyer and resolve any last minute problems to keep the closing on track.

Sotheby’s International Realty is the only international real estate firm, with 1,100 real estate offices in 83 countries, and 26,500 sales associates worldwide. A key differentiator is our ability to connect buyers and sellers globally. Our referral system boasts hundreds of connections per month coming from two channels, realty and auction. With the only name recognized internationally by affluent individuals searching for fine property, both artwork and real estate, Sotheby’s International Realty is able to help unite thousands of buyers with the properties our international network represents.
Where will the buyer for your townhouse be found? Today, the market for property is increasingly global, and New York City in particular is attracting international purchasers at unprecedented rates. This is where we offer tremendous advantages. As part of the Sotheby’s International Realty network, we can attract interest for your property from far beyond your local market. Even if the buyer for your property is just around the corner, the broad exposure we offer creates a sense of urgency that prompts the best local offers.
Your property’s marketing brochure can be an essential tool in attracting buyers locally, nationally, and globally. Through our exclusive global distribution program, copies will be distributed to hundreds of offices within our real estate network as well as to Sotheby’s auction houses globally. No other real estate company has the ability to provide this level of exposure for the property.
A survey conducted by the Luxury Institute named Sotheby’s International Realty the most prestigious real estate brand, attracting the high-end buyer on a global scale, unmatched by any other firm.

• My fee will be 2% paid upon closing of the townhouse
• If I sell the townhouse directly to my own customer, Sotheby’s International Realty’s fee will be 3%.



Date:
Re:
Dear, ____________
This agreement (“Agreement”) sets forth the terms under which you engage our firm, Sotheby's International Realty, a licensed real estate broker (sometimes herein referred to as "SIR"), to act as brokerage agent in the sale of the referenced premises (the "Premises").
1. (a) You authorize SIR to offer the premises for sale at a price of $ (or such lesser price as you may indicate to SIR, orally or in writing, from time to time) during the period commencing on and ending on (the "Listing Term"), provided however, if you enter into a contract of sale for the Premises, all rights and obligations under this Agreement shall automatically extend through the date of the actual closing of the Premises.
(b) In addition, the annual real estate taxes are $____________.
2. We will arrange showings by prospective purchasers and you will facilitate these showings in an appropriate manner. We will submit to you all purchase offers and will act in accordance with your instructions with respect to each such offer. SIR will use its own advertising and public relations staff to advertise and promote the Premises through exposure in appropriate publications and/or digital venues.
3. You have advised us that the Premises are not now the subject of a listing Agreement with any other broker and you agree that you will not advertise the sale of the Premises or list the Premises with any other broker during the Listing Term. You will refer to us promptly all inquiries concerning the Premises which you may receive.
4. You shall pay a commission as set forth below (the "Commission"). If during the Listing Term a contract is signed to sell the Premises to any person and a closing of the sale of the Premises (a “Closing”) occurs at any time with such person, then the Commission will be payable to us at that Closing.
(a) SIR’s Commission as the listing firm: % of the final sales price of the Premises.
(b) Buyer’s Broker Commission: % of the final sales price of the Premises shall be paid to the brokerage firm representing the buyer (“Buyer’s Broker”), which may include SIR if the buyer is represented by another agent associated with SIR. This offer may only be modified in writing as agreed upon by the buyer and Buyer’s Broker. Buyer’s Broker is an intended third party beneficiary of this Section 4(b) of this Agreement.
(c) Where [INSERT LISTING AGENT NAME] is the only agent involved in the transaction, SIR’s Commission as the listing firm shall be % of the final sales price of the Premises.
(d) The Commission shall be due and payable at the Closing, including whether the Premises are sold to (i) an independent third party; or (ii) to a current lessee of the Premises. Unless and until a Closing shall occur, you will not be obligated to pay us any Commission, provided, however, that if a Closing does not occur or is delayed by reason of your willful default under a fully executed contract of sale then you shall nevertheless pay to us on demand the Commission as if the Closing had occurred and provided, further, that if you retain, or become legally entitled to retain (whether or not you do in fact



New York State law requires real estate licensees who are acting as agents of buyers or sellers of property to advise the potential buyers or sellers with whom they work of the nature of their agency relationship and the rights and obligations it creates. This disclosure will help you to make informed choices about your relationship with the real estate broker and its sales agents.
Throughout the transaction you may receive more than one disclosure form. The law may require each agent assisting in the transaction to present you with this disclosure form. A real estate agent is a person qualified to advise about real estate.
If you need legal, tax or other advice, consult with a professional in that field.
A seller’s agent is an agent who is engaged by a seller to represent the seller’s interests. The seller’s agent does this by securing a buyer for the seller’s home at a price and on terms acceptable to the seller. A seller’s agent has, without limitation, the following fiduciary duties to the seller: reasonable care, undivided loyalty, confidentiality, full disclosure, obedience and duty to account. A seller’s agent does not represent the interests of the buyer. The obligations of a seller’s agent are also subject to any specific provisions set forth in an agreement between the agent and the seller. In dealings with the buyer, a seller’s agent should (a) exercise reasonable skill and care in performance of the agent’s duties; (b) deal honestly, fairly and in good faith; and (c) disclose all facts known to the agent materially affecting the value or desirability of property, except as otherwise provided by law.
A buyer’s agent is an agent who is engaged by a buyer to represent the buyer’s interest. The buyer’s agent does this by negotiating the purchase of a home at a price and on terms acceptable to the buyer. A buyer’s agent has, without limitation, the following fiduciary duties to the buyer: reasonable care, undivided loyalty, confidentiality, full disclosure, obedience and duty to account. A buyer’s agent does not represent the interest of the seller. The obligations of a buyer’s agent are also subject to any specific provisions set forth in an agreement between the agent and the buyer. In dealings with the seller, a buyer’s agent should (a) exercise reasonable skill and care in performance of the
agent’s duties; (b) deal honestly, fairly and in good faith; and (c) disclose all facts known to the agent materially affecting the buyer’s ability and/or willingness to perform a contract to acquire seller’s property that are not consistent with the agent’s fiduciary duties to the buyer.
A broker’s agent is an agent that cooperates or is engaged by a listing agent or a buyer’s agent (but does not work for the same firm as the listing agent or buyer’s agent) to assist the listing agent or buyer’s agent in locating a property to sell or buy, respectively, for the listing agent’s seller or the buyer agent’s buyer. The broker’s agent does not have a direct relationship with the buyer or seller and the buyer or seller cannot provide instructions or direction directly to the broker’s agent. The buyer and the seller therefore do not have vicarious liability for the acts of the broker’s agent. The listing agent or buyer’s agent do provide direction and instruction to the broker’s agent and therefore the listing agent or buyer’s agent will have liability for the acts of the broker’s agent.
A real estate broker may represent both the buyer and the seller if both the buyer and seller give their informed consent in writing. In such a dual agency situation, the agent will not be able to provide the full range of fiduciary duties to the buyer and seller. The obligations of an agent are also subject to any specific provisions set forth in an agreement between the agent, and the buyer and seller. An agent acting as a dual agent must explain carefully to both the buyer and seller that the agent is acting for the other party as well. The agent should also explain the possible effects of dual representation, including that by consenting to the dual agency relationship the buyer and seller are giving up their right to undivided loyalty. A buyer or seller should carefully consider the possible consequences of a dual agency relationship before agreeing to such representation. A seller or buyer may provide advance informed consent to dual agency by indicating the same on this form.
If the buyer and seller provide their informed consent in writing, the principals and the real estate broker who represents both parties as a dual agent may designate a sales agent to represent the buyer and another sales agent to represent the seller. A sales agent works under the supervision of the real estate broker. With the informed consent of the buyer and the seller in writing, the designated sales agent for the buyer will function as the buyer’s agent representing the interests of and advocating on behalf of the buyer and the designated sales agent for the seller will
function as the seller’s agent representing the interests of and advocating on behalf of the seller in the negotiations between the buyer and seller. A designated sales agent cannot provide the full range of fiduciary duties to the landlord or tenant. A designated sales agent cannot provide full range of fiduciary duties to the buyer or seller. The designated sales agent must explain that like the dual agent
under whose supervision they function, they cannot provide undivided loyalty. A buyer or seller should carefully consider the possible consequences of a dual agency relationship with designated sales agents before agreeing to such representation. A seller or buyer provide advance informed consent to dual agency with designated sales agents by indicating the same on this form.
Louise C. Beit
This form was provided to me by of (Print Name of Licensee)
a licensed real estate broker acting in the interest of the:
Seller as a (check relationship below)
Seller’s Agent
Broker’s Agent
Sotheby's International
Realty
(Print Name of Company, Firm or Brokerage)
Buyer as a (check relationship below)
Buyer’s Agent
Broker’s Agent
Dual Agent
Dual Agent with Designated Sales Agent
For advance informed consent to either dual agency or dual agency with designated sales agents complete section below:
Advance Informed Consent Dual Agency
Advance Informed Consent to Dual Agency with Designated Sales Agents
If dual agent with designated sales agents is indicated above: is appointed to represent the buyer; and is appointed to represent the seller in this transaction.
(I) (We)
Signature of Buyer(s) and/or Seller(s):
acknowledge receipt of a copy of this disclosure form:
Date:
Date:

Senior Global Real Estate Advisor, Associate Broker
Manhattan Brokerage Sotheby’s International Realty
650 Madison Avenue | New York, New York 10022
M 917.544.5515
louise.beit@sothebys.realty
A Senior Global Real Estate Advisor and Associate Broker with Sotheby’s International Realty, and one of Manhattan’s most dynamic and successful brokers, Louise has sold over $1 billion in sales. Louise was ranked in The Wall Street Journal as one of the top 50 brokers across the United States, as well as in The Real Deal’s top 26 Manhattan agents, and is one of the top 5 performing brokers in her firm. Louise also holds an impres¬sive sales record, including the sale of two townhouses totaling over $44,000,000 within 10 days, achieving the highest price per square foot for one of the townhouses. Additional sales highlights include the sale of a Park Avenue apartment for $21,000,000; the sale of a townhouse for $32,000,000 to a celebrity, which was the highest sale price in Manhattan that year for a townhouse; the sale of the Paul Mellon townhouse for $37,000,000, which was also the highest sale price in Manhattan the year the townhouse was sold. In March 2019, Louise sold 11 East 82nd Street in four months for $30,139,360, which was the highest priced transaction in New York City in March. In June 2019, Louise sold the townhouse at 36-38 East 74th Street for $25,500,000, which had a contract out after just 26 days on the market. In September 2021, Louise closed on Apartment 36B in the new Robert A.M. Stern development, 220 Central Park South, for $23,000,000, and also sold the townhouse at 9 East 68th Street for $24,500,000 in 2021.
In the coming weeks, Louise will put on the market a townhouse between Fifth and Madison Avenues on the Upper East Side with an asking price of $45,000,000. Louise’s past sales include to Madonna; Woody Allen; Richard Prince, the American artist; Rudolf Stingel, the contemporary artist; Jim Clarke, the billionaire founder of Netscape; Howard Kagan, Broadway producer; a billionaire European family, and also to one of the most important real estate families in the city.
Louise represents and sells premier properties, including ultra-luxury pre-war cooperatives such as 960 Fifth Avenue and 770 Park Avenue, luxury condominiums in buildings such as 988 Fifth Avenue and extraordinary townhouses, which she has hosted on WNBC, CNBC’s High Net Worth and NBC’s Open House NYC. She has represented the seller and purchaser for important apartments at the Pierre Hotel, prime investment properties including buildings in Tribeca and the Upper East Side, and the rental of a 12,000 square-foot apartment with swimming pool at Olympic Tower. Her transactions and exclusive listings have been in The New York Times, The Wall Street Journal, W Magazine, Vanity Fair, The New York Post, The New York Observer, New York Magazine, Avenue Magazine, CBS Money Watch, US News & World Report, Access Hollywood and Elle Canada.
One of the city’s outstanding negotiators, Louise is also known for her expertise in preparing co-op board pre¬sentations and marketing her clients’ properties. Her clients include affluent families worldwide, the financial community, corporations and celebrities. Louise is known for her in-depth knowledge of the real estate market, her professionalism and discretion. She is a member of the Real Estate Board of New York.
Louise is involved in a variety of charitable activities. Her many interests include architecture, music, film, theater and literature. Louise’s daughter is a graduate of Yale University and Harvard University School of Public Health.
Louise Beit represented the buyer and/or the seller in the list of selected sold properties below.
• 9 EAST 68TH STREET
• 17 SUTTON PLACE
• 36-38 EAST 74TH STREET
• 11 EAST 82ND STREET
• 301 EAST 61ST STREET
• 125 EAST 65TH STREET
• 118 EAST 70TH STREET (twice)
• 125 EAST 70TH STREET (twice)
• 120 EAST 71ST STREET
• 132 EAST 71ST STREET
• 138 EAST 71ST STREET
• 7 EAST 96TH STREET
• 167 EAST 79TH STREET
• 150-152 EAST 81ST STREET
• 164 EAST 83RD STREET
• 210 EAST 72ND STREET
• 34 EAST 74TH STREET
• 57 EAST 78TH STREET
• 16 EAST 81ST STREET
• 166 EAST 83RD STREET
• 16 EAST 85TH STREET
• 438 EAST 87TH STREET
• 92 WARREN STREET
• 84 WHITE STREET
• 84 WHITE STREET
• 92 WARREN STREET
• 301 EAST 61ST STREET
• 609-611 WEST 46TH STREET
• 613 WEST 46TH STREET
• 615 WEST 46TH STREET
• 610 WEST 47TH STREET
• 624-636 WEST 47TH STREET
Louise Beit represented the buyer and/or the seller in the list of selected sold properties below.
• 14 EAST 75TH STREET, PH12A
• 260 PARK AVENUE SOUTH, PHA
• 575 PARK AVENUE APT 206-208
• 160 EAST 72ND STREET FL 11 (SECOND TIME)
• 220 CENTRAL PARK SOUTH APT 36B (SECOND TIME)
• 220 CENTRAL PARK SOUTH APT 36B (FIRST TIME)
• 502 PARK AVNEUE APT 19D
• 575 PARK AVENUE APT 1501
• 575 PARK AVENUE APT 807
• 15 CENTRAL PARK WEST APT 2E
• 2 BEEKMAN PLACE APT 15/16C
• 1965 BROADWAY APT 18A
• 1 CENTRAL PARK SOUTH APT 607
• 1 CENTRAL PARK SOUTH APT 906
• 1 CENTRAL PARK SOUTH APT 1608
• 1 CENTRAL PARK WEST APT 38D
• 15 CENTRAL PARK WEST APT 9M
• 435 EAST 52ND STREET APT 8B
• 411 EAST 53RD STREET APT 2H
• 400 EAST 56TH STREET APT 38J
• 117 EAST 57TH STREET APT 45E
• 304 EAST 65TH STREET APT 6B
• 131 EAST 66TH STREET APT 10/11B
• 169 EAST 69TH STREET APT 11A
• 2 EAST 70TH STREET APT 12A
• 33 EAST 70TH STREET APT 4C
• 155 EAST 72ND STREET APT 9/10B
• 23 EAST 22ND STREET FL 11
• 325 EAST 72ND STREET APT 3C
• 135 EAST 74TH STREET APT 3A
• 120 EAST 75TH STREET APT 7CE
• 65 EAST 76TH STREET APT 10B
• 3 EAST 77TH STREET APT 12A/B
• 3 EAST 77TH STREET APT 14C 40
EAST 84TH STREET APT 4A
• 205 EAST 85TH STREET APT 18E
• 205 EAST 85TH STREET APT 18F
• 50 EAST 89TH STREET APT PHC
• 50 EAST 89TH STREET APT 32E
• 1 EAST END AVENUE APT 8A
• 120 EAST END AVENUE APT 15B
• 641 FIFTH AVENUE APT 46/47A
• 133 East 64th Street APT 400
• 812 FIFTH AVENUE FL 18
• 825 FIFTH AVENUE APT 2A
• 825 FIFTH AVENUE APT 21A
• 857 FIFTH AVENUE APT 8 FLOOR
• 880 FIFTH AVENUE APT 11C
• 907 FIFTH AVENUE APT 5A
• 923 FIFTH AVENUE APT 19A
• 923 FIFTH AVENUE APT 19B
• 955 FIFTH AVENUE APT 2B
• 960 FIFTH AVENUE APT 10A
• 960 FIFTH AVENUE APT 11A
• 988 FIFTH AVENUE FL 10
• 988 FIFTH AVENUE FL 11
• 988 FIFTH AVENUE FL 14
• 993 FIFTH AVENUE APT 5A
• 1035 FIFTH AVENUE APT 10C
• 1107 FIFTH AVENUE APT 7N
• 1120 FIFTH AVENUE APT 6A
• 10 PARK AVENUE APT 27J
• 30 PARK AVENUE APT 4/5C
• 77 PARK AVENUE APT 9E
• 480 PARK AVENUE APT 20A
• 575 PARK AVENUE APT 107
• 575 PARK AVENUE APT 207/208
• 575 PARK AVENUE APT 301
• 575 PARK AVENUE APT 409
• 575 PARK AVENUE APT 507
• 575 PARK AVENUE APT 1408-09
• 700 PARK AVENUE APT 20A
• 730 PARK AVENUE APT 17/18A
• 770 PARK AVENUE APT 16/17D
• 784 PARK AVENUE APT 7B
• 785 PARK AVENUE APT 4C
• 785 PARK AVENUE APT 19C
• 829 PARK AVENUE APT 9/10A
• 830 PARK AVENUE APT 4/5C
• 840 PARK AVENUE APT 11B
• 863 PARK AVENUE APT 5E
• 925 PARK AVENUE APT 11/12
• 925 PARK AVENUE APT 13/14
• 930 PARK AVENUE APT 12N
• 1075 PARK AVENUE APT 8B
• 1088 PARK AVENUE APT 9D
• 25 SUTTON PLACE APT 7A
• 30 SUTTON PLACE APT 11A
• 146 WEST 57TH STREET APT 66/67D
• 101 WEST 67TH STREET APT 44
• 145 WEST 86TH STREET APT 7B
• 685 WEST END AVENUE PH17B

November 1, 2024
October 29, 2024
September 26, 2024
July 26, 2024
July 13, 2024
Elle Decor, "This Palatial Gilded Age Mansion Has a Fashionable Jackie Kennedy Connection"
The New York Post, "Gilded Age Mansion — a ‘Glistening Survivor’"
NBC Open House, "A BEYOND Spectacular Gilded Age Townhouse on the Upper East Side"
The Spaces, "Opulent Gilded Age Mansion on NYC’s Upper East Side Lists for $65M"
Business Insider, "One of New York City's Last Surviving Gilded Age Mansions Is for Sale for $65 Million"
July 8, 2024 House & Garden, "One of the Last Remaining Gilded Age Mansions in New York City Just Listed..."
June 17, 2024
The New York Post, "Rare Gilded Age Mansion on Upper East Side Hits Market for 65 Million
June 26, 2024 Robb Report, “Home of the Week: One of New York’s Grandest Gilded Age Mansions Listes for $65 Million”
June 24, 2024
February 15 2023
January 3, 2023
December 1, 2022
May 24, 2022
Apil 3, 2022
Cottages&Gardens, “One of Manhattan’s Finest Gilded Age Mansions Maintained as a Residence”
Gotham, “These are the 10 Hottest Listings on the Market in New York Right Now”
Dirt, “In NYC’s Fabled Plaza, a Super Glam Duplex Penthouse Boasts Great Views
The New York Post, “Apparel honcho Eric Adjimi snags a $16,84M NYC duplex”
Dirt, “Apparel Mogul Relists Elegant New York Townhouse at Reduced Pric”e
The New York Post, “Price Slashed on Harry Winston’s Former Fifth Avenue Mansion to $31M”
January 13, 2022 Dirt, “Park Avenue Duplex Fit for a Francophile Offers $27.5 Million of Stately Elegance”
September 16, 2021
June 3, 2021
May 25, 2021
Newsweek, “The 26 Most Expensive Penthouses in New York City”
Town & Country, “Harry Winston’s Fifth Avenue Penthouse is for Sale (and it’s a Gem)”
Cottages & Gardens, “Harry Winston Once Called This $32.5M Upper East Side Gem Home”
May 25, 2021 Robb Report, “Home of the Week: Jeweler Harry Winston’s Dazzling Manhattan Apartment Lists”
May 21, 2021
May 21, 2021
May 21, 2021
April 18, 2021
February 11, 2021
March 31, 2020
November 1, 2019
August 19, 2019
August 7, 2019
August 2, 2019
July 3, 2019
July 3, 2019
April 24, 2019
April 5, 2019
February 13, 2019
January 4, 2019
October 16, 2017
August 11, 2017
April 26, 2017
July 1, 2016
April 26, 2016
January 18, 2016
Galerie, “Harry Winston’s New York City Apartment Hits the Market for $32.5M”
Veranda, “Harry Winston’s Former Fifth Avenue Home Just Hit the Market for $32.5 Million”
Yahoo!, “Harry Winston’s Former Fifth Avenue Home Just Hit the Market for $32.5 Million”
Newsweek, “The Most Expensive Homes on the Market in New York City Right Now”
The Wall Street Journal, “A Prewar Gem in New York City”
The Real Deal, “Pricey listings including UES townhouse, Central Park Tower condos go live”
Mansion Global, “With New York Townhouse Prices Down, Now Is a Good Time for Buyers to Re-Enter the Market”
The Real Deal, “These resi brokers killed it during a historic month for NYC luxury real estate”
The Wall Street Journal, “Tax Dodging Made June a Record Month for Luxury Real Estate”
The New York Times, “A Breather After the Rush to Beat the New ‘Mansion Tax’”
The Wall Street Journal, “Decorator Show Houses are Designed to Sell”
The Wall Street Journal, “Tips for Turning Your Home Into a Show House”
Curbed New York, “Stately Neo-Federal Upper East Side Townhouse Seeks $28.7M”
The New York Times, “Spruced-Up Manhattan Townhouses Sell for Big Discounts”
The New York Post, “Broadway producers find buyer for $30M East Side mansion”
6sqft, “Upper East Side Gilded Age mansion with Broadway cachet and a big money past tries again at $29.5M”
6sqft, “$6.5M home in The Carlyle comes with valet, room service, and IT support”
Curbed New York, “Manhattan’s 10 Largest Homes for Sale”
The New York Times, “Decorators on Display at the Kips Bay Show House”
The Real Deal, “Top 75 Brokers in Manhattan”
The Real Deal, “Hedge funder Edmond Safra pays $20M for landmarked UES townhouse”
The Real Deal, “Former China Institute townhouse asks $38M”
December 29, 2015 Curbed, “Everything About This Hell’s Kitchen Garage Sale Is a Mystery”
December 29, 2015
December 20, 2015
December 16, 2015
The Real Deal, “Hell’s Kitchen development site sells for $37M”
The New York Post, “ The Hidden Kingdoms of New York City’s Ultra-Rich”
The New York Observer, “They’re the Top: The Biggest Residential Real Estate Deals of 2015”



“Real estate agent Louise Beit welcomes #OpenHouseTV for a look around 15 East 63rd Street: a distinguished 8-level Gilded Age townhouse on the Upper East Side. Built in 1901 by architect John H. Duncan and located just off of Fifth Avenue and Central Park, this home boasts 7 bedrooms, 12 bathrooms, 4 half-baths, soaring ceilings, and 18000 square feet of unparalleled craftsmanship and sophisticated details. From a limestone facade adorned with delicate floral garlands and arched French windows to a spectacular entry with a white marble floor, curved staircase, and plenty of space to display your art collection, this rare treasure of a home captures the lavish splendor and exuberance of the era while also providing luxurious upgrades for modern living.
Other stunning amenities include: an easy-flowing parlor floor that features an exquisite gallery, private library with 17ft ceilings, sumptuous wood paneling, and larger-than-life mirror, and drawing room ornamented with a one-of-a-kind fireplace and moldings “that include cartouche in each corner of the ceiling; a unique circular dining room with its herringbone floor and fireplace to a drawing room that features moldings with a cartouche in each corner; and a primary suite that’s actually a duplex penthouse with its own double-height living room, cozy bedroom, and multiple outdoor spaces that offer sweeping views of NYC.”







So many parts of New York City are filled with history, but there isn’t a time period quite like the Gilded Age. Names like the Vanderbilts, the Astors, and the Rockefellers come to mind, embodying the sheer opulence of the era. This townhome presents the rare chance to live in a Manhattan mansion like those families did, but be prepared to shell out $65 million.
The Gilded Age was a time of booming economic growth, innovation, and status, especially in New York City. And, homes were one of the finest things to come out of this controversial yet pivotal era. The Newport summer “cottages,” for example, attract crowds and eager visitors to this day. However, much like the Newport estates, many Gilded Age mansions in New York City no longer serve as residences. Some are embassies or museums and some have been torn down. That’s what makes this ornate townhouse on East 63rd stand out. It has been meticulously preserved and is still a single-family home.
Prepare to feel like royalty entering this Beaux Arts manse from the days of balls and promenading. Its walls and ceilings adorned by intricate moldings and woodwork impress throughout, as do its substantial staircases destined for show-stopping, high society moments. Arched French windows, a copper mansard roof, three terraces, and glistening chandeliers are a few more details that transport you to the bygone era.
Built in 1901 for Elias Aisel, a financier and philanthropist, architect John H. Duncan made sure no detail was overlooked. The townhome spans across six above-ground floors with two lower levels as well, all connected by a stunning

The Plaza is one of Manhattan’s most iconic buildings. Across from Central Park, at the nexus of the world at the corner of Fifth Avenue and Central Park South, the hotel was built in the French Renaissance chateau style in 1905 by Henry J. Hardenberg; over the years, guests have included everyone from the Beatles and Christian Dior to Frank Lloyd Wright. In 2005, the 21-story building closed for three years, for a $400 million redesign that incorporated refreshed hotel rooms, plus 181 new condos.
And this luxurious duplex penthouse is, of course, one of those private residences. Resplendent on the top two floors of the Plaza, the condo offers epic views of Manhattan and a 40-foot-long terrace. Spanning 2,900 square feet, the unit is owned by Goya foods heiress Maribel Unanue McVicar and offers three bedrooms, three full baths, two powder rooms and two wood-burning fireplaces. It’s asking $14.5 million via Louise C. Beit at Sotheby’s International Realty. There’s what appears to be a genuine Giacometti in the great room, which is stuffed with design classics such as Bibendum chairs. McVicar and her designer seem to have stuck to white as a soothing contrast to the frenetic city below, and the condo is additionally enlightened by an unusual slanted skylight that runs the entire width of the main floor, offering beautiful east light and also brightening the main floor bedroom suite.
That enchanting great room also includes a wood-burning fireplace, a herringbone floor, and views of the tops of the Pierre Hotel and the Sherry Netherland. Off the great room, the kitchen flaunts top of the line appliances including a Viking stove, Viking refrigerator/freezer, Miele dishwasher, and wine refrigerator. The junior primary bedroom also has glorious views, a large ensuite bathroom, and dressing area surrounded by a fitted walk-in closet.
On the second floor, access to the terrace is offered from three rooms, and epic views of the unsurpassable Manhattan skyline with its most iconic buildings in full view. The luxurious primary bedroom suite is an oasis of calm, with wood-burning fireplace, windows overlooking the terrace, and double doors to the terrace,. Adjacent is a windowed dressing room with fitted closets, and huge en-suite marble bath with double vanity sinks, soaking tub, separate walk-in shower, and a window. Across the landing, is the third bedroom, also opening to the terrace, and with en-suite windowed bath.
The terrace, situated between two huge turrets crowned with intricate wrought iron grillwork synonymous with images of the Plaza, exhibits the most extraordinary views of the city from a rare and privileged vantage point. Of course, the Plaza offers residents a luxurious lifestyle including a 24 hour doorman, concierge, landmarked lobby exclsively for condo residents, and European inspired Plaza gardens with a fountain and reflecting pools. Ownership may access to all the five-star services of the Plaza Hotel, including the Oak Room, Oak Bar, Palm Court, Guerlain Spa, health club, Rose Club, Champagne Bar, Warren-Tricomi salon, Grand Ballroom, Terrace Room and luxury retail shops.

Eric Adjmi, CEO of Adjmi Apparel Group — which manufactures and distributes brands like Champion, Danskin and Fila — just picked up a duplex home for $16.84 million at the Leyton, a new development on the Upper East Side.
Located at 1059 Third Ave., it’s not exactly Park or Fifth, but the building does come with its own brandy room. The 36-story tower was built last year, designed by architect Manuel Glas with interiors by Frampton Co. and Champalimaud Design.
The condo, when combined, will be 6,132 square feet.
Originally listed for $18.1 million, Adjmi got a slight deal, according to property records, but he’s still taking a hit on his 19th-century Upper East Side townhouse. Adjmi bought that 20-foot-wide home, at 161 E. 63rd St., for $11.75 million in 2016. It’s now on the market for $11.25 million — down from its 2017 asking price of $14.75 million.
Adjmi’s neo-Greco Italianite-style townhouse, meanwhile, is almost as big. At 6,000 square feet, the six-story renovated home — built in 1870 — comes with six bedrooms, five bathrooms, three powder rooms and 1,798 square feet of outdoor space. There’s also a garden with white hydrangeas and a limestone patio — and a roof terrace with pear trees and an outdoor shower.
Original townhouse details include six fireplaces, herringbone parquet floors, crown moldings and 11-foot-high ceilings in the living room and library. The home opens with a staircase and a black-and-white marbled floor foyer that leads to a dining room, with double doors that open to the garden. There’s also a chef’s kitchen and, on the parlor level, a large living room with a fireplace, a coffered ceiling and a floor-to-ceiling casement window overlooking the garden.
The main bedroom takes up the third floor and comes with a fireplace and a landscaped terrace. Additional bedrooms are on the fourth and fifth floors.
Downstairs, the basement features a gym, a rec room, a temperature controlled wine room and storage.
Louise C. Beit of Sotheby’s International Realty has that listing.

A picturesque garden and a roof terrace are just two of the many talking points for an elegant townhouse on New York’s posh Upper East Side that’s returned to market with a discounted price of $11.25 million.
The seller, Eric Adjmi, CEO of Adjmi Apparel Group, which manufactures and distributes brands such as Champion, Danskin and Fila, has had the property on and off the market several times over the past few years, initially in 2017 with a too-high price of $14.75 million. While $11.25 million is a lot of money by just about any standard, unfortunately for Adjmi, the current ask is $500,000 less than he paid in 2016.
The gracious house boasts over 6,900 square feet of living space across six levels, as well as an additional 1,050 square feet of outdoor space bursting with white hydrangeas. The listing his held by Louise C. Beit at Sotheby’s International Realty .
Built in 1870, the recently renovated townhouse has generously scaled interiors, with major rooms spanning the full width of the 20-foot-wide residence. Original architectural details include six fireplaces, herringbone parquet floors, crown moldings, and 11-foot ceilings on the parlor level.
Inside are a total of six bedrooms and five full bathrooms, plus a trio of powder rooms, while outdoor spaces include a balcony outside the primary suite, an 800-square-foot roof terrace, and a 37-foot-deep garden with limestone patio.
Entry is at the garden level via a foyer with a classic black and white marble floor and a walk-in coat closet. Behind the foyer, the sparely appointed dining room boasts large double doors opening to the garden, while the glossy open-plan kitchen showcases marble countertops and crimson cabinets. One flight up, the parlor floor comprises a large living room with fireplace and coffered ceiling, as well as a library, also with a fireplace, and a small room for games, puzzles, or quiet reading.
The primary suite takes up the entire third level and includes a fireplace, a roomy dressing room/walk-in closet, and a spacious bath replete with a free-standing soaking tub dramatically placed in front of a fireplace.
There are two large en-suite bedrooms and a laundry room on the fourth floor, while the fifth floor is suitable for guests and/or staff. In addition to an en-suite bedroom with fireplace, a two-bedroom suite is complete with a bathroom and kitchenette.
The basement houses a gym with en-suite bathroom, a recreation room, a wine room, and a storage room, but the home’s crowning glory is the 20’ x 40roof deck, which offers sweeping views of Midtown and the Upper East Side, along with several seating and dining areas, and an outdoor shower.
And of course the townhouse’s location is superb, right in the middle of world-class cultural institutions, museums, and great schools.

diamonds aren’t forever…
The Fifth Avenue apartment that once belonged to king of bling Harry Winston is now more affordable than ever. After sitting on the market at $32.5 million since May, this six-bedroom, five-bathroom elegant abode can now be yours for just $31.25 million.
That sounds like a bundle but it’s actually a massive price drop considering the home at 927 Fifth Avenue originally hit the market in 2018 at $39.5 million.
“This listing exemplifies the best of everything in New York,” said listing agent Louise Beit of Sotheby’s Interna-
Speaking of George Washington, the seller – former TV executive and art collector Judith Hernstadt – has furnished the full-floor apartment with a massive collection of art and antiques, including a table where the first president once sat and played cards.
The table doesn’t come with the apartment. However, the dining room’s chandelier and sconces that once belonged to Winston are available at an additional cost. Hernstadt purchased the apartment from Winston in 1980, two years before he died.
The son of Ukrainian immigrants who would grow up to become the “jeweler to the stars,” Winston purchased and renovated the 9th-floor apartment in 1950. It takes up the entire floor and is located in a pre-war building designed by Warren & Wetmore – the team of architects behind Grand Central Terminal. Since it was built in 1917, the building’s 12 units have always attracted A-listers. Those approved by the picky (or clique-y depending on who you ask) co-op board include Paula Kahn, Kenneth Cole and Mary Tyler Moore. Several sources say Barbra Streisand didn’t get in.
It’s a shame because Babs probably would have appreciated the privacy the building affords. According to the listing’s description, Winston was known to carry “priceless jewels” (hopefully, not the Hope Diamond which he donated to the Smithsonian in 1958) in his pockets. Security was of the utmost importance to the man who reportedly refused to show his face in public. That said, it didn’t stop Winston from throwing lavish parties with upwards of 100 guests in the nearly 6,000-square-feet of space.
The dining room alone can seat 36 people. The double master bedroom is just as big.
It features three closets, a marble en-suite and one of the apartment’s four wood-burning fireplaces. When it comes to windows, the buyer better buy stock in Windex because the apartment boasts 27 oversized windows (there’s even one in the butler’s pantry).
For a building that prides itself on privacy and security, it’s no doubt a peeping Tom’s dream home.



While many New York City penthouses are all about stark minimalism, there is also a faction of folks for whom more is more when it comes to the finer things in life. Many of these folks live on Park Avenue, where this sumptuous flat is located.
The condo’s previous owners engaged super- Francophile decorator Juan Pablo Molyneux to give the penthouse that je ne sais quoi. The 5,000-square-foot duplex has four bedrooms and four full bathrooms, plus a couple of powder rooms, and the sale also includes a 653-squarefoot guest or staff penthouse on a lower floor, as well as a private wine cellar and two storage rooms in the basement. The unit is repped by Louise Beit at Sotheby’s International Realty.
The building was only completed in 1998, but it was built in the old-fashioned style, with a handsome limestone and beige-brick exterior and all manner of white gloves services that people who pay tens of millions of dollars for an penthouse want. Past residents of the slim 43-story tower include L.A. Reid and Francois Pinault, while Alice Walton — yes, the Wal-Mart heiress — paid $25 million for her duplex condo back in 2014. Amenities available to residents include: full-time concierge and valet services, a windowed private sitting room off the lobby, a fitness center, a dining salon with catering kitchen, a conference room, and 24-hour security.
Visitors to the high-floor penthouse are greeted with floors of marble and onyx in the entry. Then they’ll enjoy the 11’5” ceilings and huge windows that frame fantastic views of Park Avenue, the Manhattan skyline and, beyond Central Park, the George Washington Bridge.
The 30’ x 20’ living room was designed in the elegant French Moderne style, with parquet de Versailles flooring, Venetian plaster walls, and a 19th century French scagliola wood-burning fireplace as a centerpiece. Off the living room is a corner library, and then there is a 20’ formal dining room with more parquet de Versailles and windows with views to the Pierre Hotel and the park beyond.
The kitchen is huge by Manhattan standards, and offers a marble floor, center island, marble counters, a breakfast area and a staff bathroom. Upstairs are four bedrooms, including the large master, with views of Central Park. The en-suite master bath is lined with luxurious onyx, while there are two walk-in closets for the penthouse’s owners. Don’t worry, the other en-suite bathrooms are kitted out in onyx as well.
Asking price for all this luxury? $27.5 million. Considering the place last sold five years ago for just over $22 million, that doesn’t sound out of the ballpark. Well, that’s assuming the new owner likes a lot, and we mean a lot of onyx.


The lavish Fifth Avenue penthouse once owned by legendary jeweler Harry Winston has hit the market for $32.5 million. Perched in a classic prewar building, the full-floor unit comes with six bedrooms and 55 feet of direct Central Park views overlooking the Conservatory Pond. The current owner—a collector of rare European decorative arts—purchased the 5,700-square-foot aerie directly from the King of Diamonds himself, who reportedly held swanky dinner parties with upwards of 100 guests within the palatial spread. Winston, who launched his namesake jewelry business in 1932 and is known for donating the Hope Diamond to the Smithsonian Institution, passed away in 1978.
Boasting four exposures, the ninth-floor abode is brimming with evocative architectural details, among them original 1917 moldings, herringbone floors, four fireplaces, and soaring ceilings. Glamorous rooms include a sunshine-yellow formal dining room, wood-paneled library, and a private entry gallery perfect for displaying works of art.
The boutique limestone building will be familiar to bird-watchers as the home of a special red-tailed hawk dubbed Pale Male, who was profiled by the New York Times and whose much-watched nest is perched on the ornamented building façade.
The home is listed with Louise Beit of Sotheby’s International Realty—East Side Manhattan Brokerage and John Burger of Brown Harris Stevens. See more photos below.

Harry Winston, the “King of Diamonds,” was given that illustrious title for a reason. The renowned jeweler owned famous gems such as the Hope Diamond in his lifetime and designed some of the most exquisite pieces in the world. Along the way, he also found real estate treasures. At least, one that we can see. This majestic, full-floor Upper East Side penthouse once belonged to Harry Winston. Listed for $32.5 million, its staggering price could instead buy many sparkling things. But, it’s all about priorities.
As classic as a diamond, the home’s traditional style and Central Park views exude a timeless New York City feel. The current seller purchased the abode from Winston, so it has been cherished for many years. It has also been a prime place to display the seller’s extensive collection of American artwork and furnishings, including a table where George Washington played cards.
Though these unique items don’t come with the 5,740-square-foot spread, four exposures do. Encompassing the entire 9th floor, the storied Manhattan home offers complete privacy and peace with far-reaching city views. Whether you are in the library, living room, eat-in kitchen, or one of the six gracious bedrooms, Manhattan’s glistening buildings make a beautiful backdrop.
The circa-1917 building it sits in, located at 927 Fifth Avenue, also has a New York story to tell. A hawk known as Pale Male famously made a nest on the facade.
Representing all this history, Louise Beit, Sotheby’s International Realty – East Side Manhattan Brokerage and John Burger of Brown Harris Steven have the listing.

You would expect nothing less than 24-carat luxury in a sprawling 5,470-square-foot “jewel” of an penthouse on New York’s tony Fifth Avenue, once owned by jeweler to the stars, Harry Winston.
Taking-up the entire ninth floor of the landmark 927 Fifth Avenue building overlooking New York’s Central Park, this sprawling, 14-room residence was home to Mr. Winston for more than 26 years.
Louise C. Beit, listing broker with Sotheby’s International Realty, tells Robb Report that Winston purchased the penthouse in 1950 and spent a year renovating it before moving in the following year.
Then in 1976, two years before his death, Winston sold the home to prominent New York art collector, and current owner, Judith Hernstadt.
“It is truly a unique property, being one of the largest on Fifth Avenue and situated in one of the best-of-the-best locations. With only 12 penthouses in the building, naturally it’s rare that one ever becomes available,” she explains.
Winston bought the penthouse at the height of his illustrious career as the undisputed “King of Diamonds.” A year earlier, in 1949, he had acquired the most famous diamond of all, the 45.5-carat Hope Diamond. The heart-shaped blue stone, originally mined in India, dates back to the mid-1600s.
In 1958, Winston donated the gem to the Smithsonian Institution in Washington, DC for permanent display. Infamously, he posted it to the museum via registered US Mail, in a box wrapped in brown paper.
The limestone-clad 927 Fifth Avenue building dates back to 1917, being designed by famed New York City architects Warren & Wetmore, also known for the city’s Grand Central Terminal and New York Yacht Club.
Over the years, 927 Fifth has been home to some of New York’s wealthiest and most-prominent figures. Owners have included the late investment banker Bruce Wasserstein, shoe purveyor Kenneth Cole, leveraged buyout billionaire Marc Rowan, and Belco Oil founder Robert Belfer.
While the building’s co-op board tends to shun high-profile celebs—Barbra Streisand’s application to buy an penthouse was one of the rejects—927 Fifth has been home to the likes of Mary Tyler Moore and former CNN anchor Paula Zahn.
An equally high-profile wannabe resident infamously shunned by the board was none other than Pale Male, and his partner Lola. Back in 1993, this pair of red-tailed hawks had the audacity to build their love nest on a 12-floor window ledge. When the board evicted the pair by jettisoning their nest, bird lovers the world over protested.
A private elevator opens into the penthouse’s grand foyer. Steps away is that vast living room, adjoining formal dining room and wood-paneled library, each with its own wood-burning fireplace. Doors off the long gallery open to a large master suite, five additional bedrooms and staff quarters.
According to Sotheby’s Louise Beit, Floor Nine’s current owner, Ms. Hernstadt, has used the unit’s considerable space to exhibit her impressive collection of American and European art.
“One of the home’s true highlights is its 64-foot-long gallery, which is perfect for displaying artwork. That, and the grand corner living room, overlooking Fifth Avenue, that measures 33 feet by 18. It’s here where Ms. Hernstadt displays one of her prized pieces, the table George Washington used for playing cards,” she explains.
And throughout the penthouse are fine architectural details, like herringbone hardwood flooring, original plaster moldings and sash windows.
“This penthouse almost defines the expression “Location, location, location” adds Beit. “With Madison Avenue, Park Avenue, and of course the flagship Harry Winston store, being close by, there’s access to some of the best shopping and restaurants New York has to offer.”

Iconic jewelry designer Harry Winston’s former Fifth Avenue home just hit the market for $32.5 million, and it is an absolute dream. This home exudes all the glamour and views one desires in a pre-war penthouse on the Upper East Side. Boasting 5,740 square feet, exquisite architectural details, soaring ceilings, original moldings, and herringbone floors, it’s truly a crown jewel of the Avenue’s Gold Coast.
With six bedrooms and five bathrooms, this residence features a masterfully configured floor plan that allows for privacy when needed and plenty of openness for hosting cocktail parties and holiday celebrations. Plus, it’s ideal for entertaining, as it features 55 feet of frontage on Central Park, allowing its owners and guests to watch the sunset over the iconic New York landmark every evening through its oversize windows.
The home’s public rooms are accessible through a private elevator in the elegant limestone building to a sprawling living room and library, each with a fireplace. There’s also an eat-in kitchen, well-equipped butler’s pantry, and laundry room.
The private quarters of this spectacular residence feature a long gallery to display artworks and furnishings. The owner who purchased the penthouse from Winston owns an acclaimed collection of American paintings and furniture, including the table where George Washington played cards, as well as a collection of rare European decorative arts.
This wing also houses a double owner’s suite with all the amenities one could need and five other bedroom suites with lovely views of the area. This listing is held by Louise Beit of Sotheby’s International Realty - East Side Manhattan Brokerage and John Burger of Brown Harris Stevens and is located on the ninth floor of a gorgeous limestone building with just 11 other floor-through penthouses.




June was the best month for New York City’s luxury market in… maybe ever! Over 600 homes traded at over $2 million during the month, as buyers and sellers rushed to complete deals before a series of new taxes kicked in on July 1. To determine which brokers worked around the clock and made a killing, The Real Deal crunched the numbers on the 25 biggest resi deals to close during the month.
Based on TRD’s analysis of public records, the largest 25 transactions by dollar amount ranged from $18 million to $79 million, and all took place in Manhattan. Condominium sales dominated the list, though townhouses accounted for about a third of the transactions. The absence of co-ops on Park Avenue in particular struck appraiser Jonathan Miller as a further blow to the submarket, long associated with luxury living.
“They are no longer the market leaders in the high-end space, as the past five years have seen them lose significant ground to condos,” he said.
The dealmakers on the sell-side were largely agents from major brokerages and developers’ in-house sales teams. (There is no available public record to ascertain the buy-side broker, so buyers’ representatives are excluded from this analysis unless previously reported by TRD.)
Compass’ Leonard Steinberg appeared three times on the list. Steinberg’s sell-side deals alongside other Compass listing agents — including Clayton Orrigo, Kyle Blackmon and Herve Senequier — ranged from $18.5 million to nearly $20 million, for a total of $57.9 million. Compass brokers were the listing agents on five of the 25 biggest deals to close in June.
In light of past criticism of Compass’ new development chops and ability to cater to ultra-high-net-worth clients, Steinberg said the brokerage’s performance was “a moment to celebrate.”
But he said he’s not basking in the afterglow of June’s successes: “There is no finish line in real estate, it’s the never-ending race,” he said. “I’m nervous until the checks clear. Then I’m nervous about where the next check will come [from]. That is the life of an agent, it’s eternal anxiety.”
Meanwhile, Adam Modlin’s boutique firm, Modlin Group, handled three of the top deals, including the month’s second biggest transaction, the record sale of financier Philip Falcone’s Upper East Side townhouse, at $77 million. Modlin also teamed up with Douglas Elliman’s Oren and Tal Alexander on one of the deals. All told, the dollar value of sales Modlin worked on within TRD’s top 25 ranking totaled a whopping $125 million — the highest of any individual broker.
Modlin described his firm’s approach as a “curated, bespoke, family office for real estate,” where he’s involved in each transaction and maintains close relationships with his clients.
“Ultra high-net worth individuals are all going towards a family office model and that’s what Modlin Group represents in the marketplace,” he said.
Another boutique shop, Prime Manhattan Residential, also made it into the upper tranche of month’s transactions with a $19 million townhouse sale.


June was the best month for New York City’s luxury market in… maybe ever! Over 600 homes traded at over $2 million during the month, as buyers and sellers rushed to complete deals before a series of new taxes kicked in on July 1. To determine which brokers worked around the clock and made a killing, The Real Deal crunched the numbers on the 25 biggest resi deals to close during the month.
Based on TRD’s analysis of public records, the largest 25 transactions by dollar amount ranged from $18 million to $79 million, and all took place in Manhattan. Condominium sales dominated the list, though townhouses accounted for about a third of the transactions. The absence of co-ops on Park Avenue in particular struck appraiser Jonathan Miller as a further blow to the submarket, long associated with luxury living.
“They are no longer the market leaders in the high-end space, as the past five years have seen them lose significant ground to condos,” he said.
The dealmakers on the sell-side were largely agents from major brokerages and developers’ in-house sales teams. (There is no available public record to ascertain the buy-side broker, so buyers’ representatives are excluded from this analysis unless previously reported by TRD.)
Compass’ Leonard Steinberg appeared three times on the list. Steinberg’s sell-side deals alongside other Compass listing agents — including Clayton Orrigo, Kyle Blackmon and Herve Senequier — ranged from $18.5 million to nearly $20 million, for a total of $57.9 million. Compass brokers were the listing agents on five of the 25 biggest deals to close in June.
In light of past criticism of Compass’ new development chops and ability to cater to ultra-high-net-worth clients, Steinberg said the brokerage’s performance was “a moment to celebrate.”
But he said he’s not basking in the afterglow of June’s successes: “There is no finish line in real estate, it’s the never-ending race,” he said. “I’m nervous until the checks clear. Then I’m nervous about where the next check will come [from]. That is the life of an agent, it’s eternal anxiety.”
Meanwhile, Adam Modlin’s boutique firm, Modlin Group, handled three of the top deals, including the month’s second biggest transaction, the record sale of financier Philip Falcone’s Upper East Side townhouse, at $77 million. Modlin also teamed up with Douglas Elliman’s Oren and Tal Alexander on one of the deals. All told, the dollar value of sales Modlin worked on within TRD’s top 25 ranking totaled a whopping $125 million — the highest of any individual broker.
Modlin described his firm’s approach as a “curated, bespoke, family office for real estate,” where he’s involved in each transaction and maintains close relationships with his clients.
“Ultra high-net worth individuals are all going towards a family office model and that’s what Modlin Group represents in the marketplace,” he said.
Another boutique shop, Prime Manhattan Residential, also made it into the upper tranche of month’s transactions with a $19 million townhouse sale.
Modlin described his firm’s approach as a “curated, bespoke, family office for real estate,” where he’s involved in each transaction and maintains close relationships with his clients.
“Ultra high-net worth individuals are all going towards a family office model and that’s what Modlin Group represents in the marketplace,” he said.
Another boutique shop, Prime Manhattan Residential, also made it into the upper tranche of month’s transactions with a $19 million townhouse sale.
Of the larger brokerages, agents from Douglas Elliman exclusively listed four of the top deals, while The Corcoran Group agents solely listed three. Specialty new development firms, Corcoran Sunshine Marketing Group and Zeckendorf Marketing each handled two deals within the top 25 ranking. Sotheby’s International Realty’s agents handled three of the month’s top transactions. Take a look through the slideshow below to see the top deals closed in June and who was behind each transaction. A full list appears below.
12 – 36-38 East 74th Street $25.5 million Seller: Charles Huangbunsamrit
Seller’s representative: Louise Beit of Sotheby’s International Realty

June was the biggest month ever for sales of luxury residential real estate in New York City, as a loom-ing July 1 tax increase sent hundreds of buyers scrambling to close deals. By nearly any measure, the month’s sales activity eclipsed all previous marks, according to a Wall Street Journal analysis of proper-ty records. It set a record for the most sales above $2million, sales above $10 million and even sales above $25 million.In all, more than $4.8 billion in property changed hands. That was the highest month-ly amount since at least 2003 when the city began logging all individual townhouse and home sales in its online database.
As the deadline to beat the tax increase neared, the buying frenzy only intensified. Of the 673 June transactions of at least $2 million, 351 closed in the final seven days. That week alone accounted for more luxury closings than all but 10 individual months on record.
The cascade of deals suggests that even the behavior of very affluent New Yorkers can be influenced by the lure of a modest tax savings. The new transfer tax—a one-time payment on any property selling for more than $2 million—isn’t huge. It ranges from 0.25%, or $5,000, on a $2 million sale, to 3.15% on sales of $25 million or more.
Yet they were high enough to briefly transform the market, which had been in a slump for several years of falling sales, price cuts and rising inventory. “A sense of urgency is the one thing that has been missing from New York City real estate for years,” said Ryan Serhant, a broker at Nest Seekers International. He said his team had its best month ever, racking up nearly $160 million in sales. “All of a sudden, there was a sprint to close.”
The second-biggest month for overall dollar value of sales and high-end sales for $10 million or more was also tax-related. In December 2012, sellers scrambled to close deals before the new year, when higher rates on capital gains, including gains on real-estate transactions, went into effect for higher-income taxpayers.
But there was a greater rush this time, brokers and lawyers said. The new taxes—on both buyers and sellers—were an unexpected last-minute addition to the New York state budget adopted by Gov. An-drew Cuomo and the State Legislature, where both houses were controlled by Democrats for the first time in years.
Raphael De Niro, a broker at brokerage Douglas Elliman, said his team’s sales also soared to their high-est in years. “Everybody at the top of the food chain knocked it out of the park,” he said.
Some buyers didn’t make the deadline. Scott Claman, a real-estate lawyer who scheduled backto-back closings, said his buyer was looking to close on the purchase of a two-bedroom, twobath townhouse in a glass tower in Tribeca for just under $3 million.
But at the last minute, the buyer’s bank discovered that the condo hadn’t updated its flood insurance to reflect new flood maps. By the time the problem was fixed, it was too late, he said. The deal closed on July 15.
Ben Shaoul, president of Magnum Real Estate Group, which developed the century-old art deco build-ing known as 100 Barclay, said he would help buyers who missed the deadline byreimbursing them the cost of the tax.
A number of millionaires and billionaires, who faced the steepest increase in transfer taxes under the new law, rushed to buy. Sixteen transactions closed for $25 million or more in June, more than in any other month and about seven times that of an average month.
Five of these big sales closed in the last week in June, including a 40-foot-wide mansion on East 67th Street that sold for $25.5 million on June 28, the last business day before the start of the new tax. It went into contract the same day. The June sales included a $51.6 million purchased by Amazon.com Inc. Chief Executive Jeff Bezos, and the most expensive townhouse sale in Manhattan, a $77.1 million mansion on East 67th Street sold by hedge-fund manager Philip Falcone. The buyer saved more than $2.2 million by closing before July 1.
A report by real-estate listing site Streeteasy.com found that despite the spike in high-end closings, sales of lower-priced townhouses, where taxes didn’t change, fell by 5.8% in June.
Once the transfer tax took effect, sales of the most expensive townhouses faltered. Donna Olshan, a bro-ker who tracks sales of more than $4 million, found that only one contract for an townhouse listed for $10 million or more was signed during the following four weeks.

The biggest sale in July was a sprawling at 220 Central Park South purchased by Sting.
By Vivian Marino
Luxury home sales in Manhattan slowed in July from the dizzying pace of the previous month, when buyers rushed to avoid New York State’s higher “mansion tax.” But remnants of the brisk activity were still around, and this included a $65.8 million purchased by the British rocker Sting.
A number of recorded transactions managed to miss the increase in the property transfer tax that took effect July 1. The reasons were purely technical: The closing documents were either time-stamped in June when filed with the New York City Registrar or else the sales contracts were grandfathered in.
“Who wouldn’t want to save a few percent on a substantial sale by moving the closing date before the July 1 deadline,” said Jonathan J. Miller, a real estate appraiser, noting that the sales of homes priced from $2 million to $5 million jumped 37 percent in the second quar-ter, compared with the same period in 2018. Previously, all residences selling for $1 million or more were subject to a flat 1 percent tax on the purchase price; it now rises incrementally, up to 3.9 percent for sales of $25 million or more.
Many of the July’s biggest recorded purchases made the old-tax deadline, like a triplex at 220 Central Park South that was bought by Sting, using his real name, Gordon Sumner. Also making the cut was a $34.2 million triplex sale at 11 East 68th Street, along with two townhouses at 160 East 72nd Street, one that sold for $30.5 million and one for $26 million, and a high-floor unit at 160 East 72nd Street that closed at $29.5 million.
The month’s other notable transactions included the sale of Barbra Streisand’s former townhouse on Central Park West and the former townhouse owned by the Greek shipping tycoon Aristotle Onassis on the Far East Side.
Georgina Bloomberg, the youngest daughter of Michael Bloomberg, the former New York City mayor, bought an townhouse on Central Park West, while Alexander von Furstenberg, the son of the fashion designer Diane von Furstenberg and the Swiss-born aristocrat Egon von Furstenberg, sold one on Park Avenue.
James Catherwood Hormel, the former United States ambassador to Luxembourg, bought a condo in TriBeCa, and Alan Blinken, who served as ambassador to Belgium, sold a co-op in Turtle Bay. Also, the actor J.K. Simmons and his wife, Michelle Schumacher, a pro-ducer and director, acquired a Greenwich Village townhouse.
Sting’s new triplex is in the 18-story, 10-unit villa building of the limestone-clad 220 Central Park South complex, designed by Robert A.M. Stern Architects; it directly faces the park, with the main 65-floor tower rising behind it.
The townhouse, which had a $70 million asking price, has 5,800 square feet, and three bedrooms and five and a half baths, according to the listing with the Corcoran Group. The broker representing the sponsor, Deborah Kern, declined to comment on the transaction, as did the law firm, Fried, Frank, Harris, Shriver & Jacobson, which represented Sting. (Ms. Kern also listed townhouse No. 44B, which just sold for $26.8 million.)
Sting managed to circumvent the new mansion tax because he entered into a contract to buy the unit in June 2016. (The old rates were grandfathered in for contracts signed before April 1.) Last year he sold a at 15 Central Park West for $50 million.
The other triplex sale was at the Marquand, a condo conversion on East 68th Street and a quick stroll from Central Park. The unit had been listed for $36 million.
Known as East, the townhouse encompasses 7,000 square feet on the 11th through 13th floors and features several large terraces, as well as a solarium and an exercise pool and hot tub on the top level. The four main bedrooms, each with a connecting bath, are on the lower level, including an enormous master suite, which has a large walk-in closet and a dressing room. There are also four fireplaces.
At 520 Park, another limestone creation by Robert A.M. Stern, full-floor condominiums on the 35th and 31st floors sold. The more ex-pensive of the two, the unit on the higher floor, was initially listed for $35.6 million.
Each contains 4,628 square feet of space, with four bedrooms and five baths, along with spacious eat-in kitchens and family rooms. The identities of both buyers were shielded by limited liability companies.
Among the other top transactions was a six-story mansion at 2 North Moore Street in TriBeCa, with a rare three-car garage and an indoor heated pool and gym. It sold for $26.8 million, though the building was initially listed for $48 million when it re-entered the market five years ago. The sellers — reportedly the financier Mark Zittman and his wife, Noelle Zittman — had bought the home for $24.1 million in 2010.
The house, built in 2008, has 11,300 square feet, with six bedrooms, seven full baths, four powder rooms, an art studio and a staff townhouse. There are also 1,500 square feet of outdoor space that includes a dining atrium and terraces on the second and third levels.
On the Upper East Side, a townhouse at No. 36-38 74th Street sold for $25.5 million. It also has a garage (for two vehicles), along with a gym, and 1,500 square feet of outdoor space (in the rear garden). The house is 40 feet wide with 14,000 square feet of interior space over five levels. It has 12 bedrooms, eight baths and 10 fireplaces. The sellers were listed as Paul and Charles Huang.
A at 24 Leonard Street, a nine-story condominium with just seven townhouses, closed at $24 million. The townhouse sits on the top two floors and has 7,100 square feet with four bedrooms and four baths. It was sold by the hedge fund manager Harsh Padia. The former home of Ms. Streisand, a at 320 Central Park West, at 92nd Street, a.k.a. the Ardsley co-op building, sold for $10.5 million.
The sellers, Richard T. Prins, a lawyer, and Connie Steensma, a retired consultant, had a much easier time securing a buyer than Ms. Streisand did. Their deal closed just two months after the unit was listed for $11.25 million. On the other hand, Ms. Streisand saw the townhouse linger for four years when she was selling, after the co-op board repeatedly rejected potential buyers, reportedly including Mariah Carey. Mr. Prins and Ms. Steensma bought the townhouse from Ms. Streisand for $4.25 million in 2002. Onassis’s former townhouse, overlooking the East River at 16 Sutton Square, sold for $13 million. He had lived in the four-story brick building with his first wife, Tina Onassis, in the early 1950s.
The most recent seller was the estate of John C. Whitehead, a banker and businessman who was the chairman of the Lower Manhattan Development Corporation, which led the rebuilding effort after 9/11.
The 4,400-square-foot house, which was fully renovated in the mid-1980s, has four bedrooms and four and a half baths, as well as an abundance of outdoor space, including an enormous, river-facing enclosed garden shared with 13 neighboring townhouses. Ms. Bloomberg, an equestrian and philanthropist, used a trust to buy a co-op at 101 Central Park West, between 70th and 71st Streets, for $10.2 million. She bought it from the estate of the socialite Sherry Bernstein, who died last year.
The 12th-floor townhouse, which has more than 3,100 square feet, offers stunning park views. It contains three bedrooms and three and a half baths, plus two staff bedrooms and a bath.
Mr. von Furstenberg, the founder and chief investment officer of Ranger Global Advisors, sold an townhouse on the 53rd floor of 520 Park. The price was $10.8 million, which was only slightly more than what he had paid for it last fall, also through a trust. The 1,789-square-foot unit, with expansive cityscape views, has two bedrooms and two and a half baths.
Mr. Hormel, the former ambassador to Luxembourg, paid $11.3 million for a 71st-floor townhouse of 30 Park Place, a.k.a. the Four Seasons Private Residences New York. The half-floor residence, extending 3,700 square feet, offers sweeping views of the Hudson River and Midtown. It contains four bedrooms and five and a half baths, plus a family room and laundry room.
Mr. Hormel, a philanthropist who served during the Clinton administration, was the nation’s first openly gay envoy. He was also a grandson of George Hormel, the founder of the Hormel Foods Corporation.
The former ambassador to Belgium, Mr. Blinken, and his wife, Melinda Blinken, sold a fourth-floor co-op at 450 East 52nd Street, a.k.a. the Campanile, for $5.5 million. Throughout the three-bedroom, three-and-a-half-bath home are stunning East River views. Mr. Blinken, a former investment banker, also served under President Bill Clinton.
Mr. Simmons and Ms. Michelle Schumacher bought a full-floor, 3,056-square-foot unit at 16 University Place, a new boutique condo just a block from Union Square. Their home has three bedrooms and three and a half baths and also comes with a storage room. The price was $6.3 million.

The first time Thu Lesher toured her future home, she couldn’t see past its dated look, with heavy furniture and draperies. She changed her mind two years later, when the antebellum home became the Charleston Symphony Orchestra League’s 2014 Designer Show House and received a sweeping face-lift, with fresh wall paint, custom-made curtains and new light fixtures.
In June of that year, Dr. Lesher, a professor at the College of Charleston, and her husband, Aaron Lesher, a pediatric surgeon, bought the six-bedroom property for $1.3 million. “It was absolutely transformed,” she says. “I needed someone to show me the potential of the house.”
At show houses across the country each year, interior designers work their magic on a lucky home (often a different design-er for each room). Designers shoulder the cost, with no charge to the homeowner, to get exposure for their work. Visitors pay an admission fee to tour the show house, with the proceeds usually benefiting a local charity. Removable items and de-cor used in the renovation are often removed after the show, although fixed items (wallpaper, paint) usually remain. Some homes are for sale. If the property is listed, sellers wager that foot traffic, media buzz and visual upgrades can expedite and improve a sale.
“This is staging on steroids,” says Margaret von Werssowetz, an agent with Handsome Properties in Charleston who is sell-ing this year’s Charleston Show House, a 1903 Victorian listed for $1.65 million.
At least 25% of the show houses in the 47-year history of the Kips Bay Decorator Show House event in New York City have sold within 12 months of the exhibit, says Daniel Quintero, executive director of the Kips Bay Boys & Girls Club, the event’s beneficiary. This year’s show house, a stately, 12-bedroom, eight-bathroom Upper East Side townhouse currently listed for $29 million, has been decked out with crown molding and fireplaces, hand-painted murals and crystal-encrusted chandeliers. The annual Decorator Show House in Wichita Falls, Texas, benefiting the Wichita Falls Faith Mission, which operates two local homeless shelters, has sold during or soon after the event nine times in its 11-year-history, according to Frances Anne Manning, director of development at the charitable organization. “Attracting buyers through this prestigious event and showing them a house decorated in this way can help them feel that it’s a high-end home worth the price,” says Allison Gray, a real-estate agent in Wichita Falls, located between Dallas and Oklahoma City.
In 2014, a five-bedroom near Midwestern State University had been for sale for two years before becoming that year ’s show house. Wichita Falls locals Britt and Kristi Milstead, who have three children, bought the 3,800-square-foot-property for $240,000 four months after the event. Real estate website Zillow now values it at $306,000. The show house improve-ments had made it attractive enough to buy, says Mr. Milstead, 47, but it needed more work. Floors had to be refinished, and kitchen and bathrooms required updating. But the Milsteads liked the living room, which show house designers had painted a light mint green with a darker green trim that was continued in the formal dining room. There, it was paired with wallpaper that had a medallion pattern. “Being a show house helped sell that house,” says Mr. Milstead, director of sales at a television station. ”It provided touches that needed to be done and that the seller wasn’t willing to make.”
In Topeka, Kansas, a 7,300-square-foot home was listed but not attracting any buyers when, in the spring of 2014, it became the Designers’ Show House for Child Care Aware of Eastern Kansas, a nonprofit helping parents with child care and education.
Local designers installed new kitchen cabinets, removed dated foliage-inspired wallpaper and repainted walls in a neutral palette. The house’s listing touted its fresh renovation and prominence as a show house. Kristina and John Dietrick bought the five-bedroom property four months after the show house event for $514,000. Today, Zillow estimates it is worth around $581,000. Without the upgrades, they would have balked. “It would have been too much work,” says Ms. Dietrick, owner of a human resources outsourcing firm. “The cool thing with a designer show house is that they do the heavy lift-ing.” Ms. Dietrick, 50, recalls liking 80% of the show house designs. She removed all of the window treatments, painted over stencil art on the dining room ceiling, and changed the kitchen cabinets from brown to a black that she felt would look better with the appliances and quartz countertops. “The kitchen cabinetry had a rustic look, while the rest of the house had more of a sleek, modern look,” she remembers.
In the 2014 Charleston Show House, the Leshers kept only burgundy-colored drapes in the study and bright pink valences with a matching pale pink bamboo wallpaper in the master bedroom. First to go after the show house ended: purple walls and ceilings. “The color of the year was purple—it was everywhere,” recalls Dr. Lesher, 42. The couple painted over the shade in every room but their daughter’s bedroom. They spent “at least half a million” dollars on additional, structural ren-ovations, says her husband, 42. The cosmetic changes for the show house, donated by participating designers, saved them as much as $30,000, he estimates. Zillow now values the 5,100-square-foot six-bedroom, 3 1/2-bathroom home at $1.99 million. But the Leshers have no plans of selling. “If we sold it today, we would be in good shape, but we’re not selling it,” says Dr. Lesher.
Not all show house redesigns have the desired marketing impact. If designs vary too much between rooms, real-estate agents say, they can hinder a sale. “The problem with designer showcase homes is they don’t flow,” says Topeka agent John Valley who sold the Dietricks their home. “One room looks this way, one room looks that way. It doesn’t have any continuity.” In Palm Springs, James Lee and Dominick Spatafora bought the midcentury modern show house that was part of the town’s 2014 Modernism Week shortly after the festival ended that year. Its look was coordinated by Christopher Kennedy, a local interior designer and prior owner of the home.
“I serve as the creative director,” says Mr. Kennedy, who has put together four show houses and describes his style as “combining Jet-Set nostalgia with California modernism.”
For the 2014 show house, he set a neutral color palette and ensured that permanent features, such as floors, tiles and bath-room fixtures would work together. Messrs. Lee and Spatafora say some of the whimsical designs took them out of their comfort zone, which they liked because it exposed them to cutting-edge décor they had not seen before. It included a gold ceiling in the TV room, a sink that lights up in a fluorescent blue in one bathroom and turquoise and black wallpaper with fish, paired with a black ceiling, in the powder room. One stretch too far: hand-painted zebra-patterned wallpaper in the master bedroom that they removed.
The couple, whose primary residence is in the Marina del Rey area of Los Angeles, bought the 3,000-square-foot, four-bedroom property for $1 million, slightly below the asking price of $1.1 million, which had been lowered from the initial price of $1.4 million. They still paid a premium to the average square-foot price in Palm Springs’ Indian Canyon neighbor-hood in 2014, says Ronald Scott Parks, a broker with Pacific Sotheby’s International Realty in Palm Springs. Mr. Parks estimates the home’s current value between $1.25 million and $1.3 million. Back in 2014, the couple spent less than $10,000 on additional improvements. After their purchase, they were taken aback when locals mentioned that they had been in their house, but they now enjoy its prominence.
“Initially, you feel so exposed,” says Mr. Spatafora. “But it’s actually fun to talk about it.”


An Upper East Side mansion that was home to the Broadway producers Howard and Janet Kagan for the last dec-ade finally sold after more than a year on the market and a hefty price reduction.
The elegant limestone structure, at 11 East 82nd Street, was acquired by an anonymous buyer for $30.1 million, making it New York City’s most expensive closing in March. The Kagans, whose productions include “Tuck Everlasting” and the revival of “Pippin,” bought the late-1890s house in 2009 for $24.5 million, then undertook a top-to-bottom renovation. When they put the 22-room home back on the market in 2017, they initially sought $44 million.
This wasn’t the only spruced-up townhouse to sell at a big discount last month. In Greenwich Village, a carriage house at 23 Cornelia Street, where the pop star Taylor Swift once lived, closed at $11.5 million, less than half its original $24.5 million price from two years ago.
A few blocks away, at the Greenwich Lane complex, a new townhouse fared better, selling for almost $22 mil-lion, nearer to its $25 million price tag.
Among the other notable March closings were four townhouses at 220 Central Park South, each for more than $20 million, including two three-bedroom units, on the 40th and 41st floors, which sold for around $23.4 million apiece. The luxury high-rise set the national record for the highest price paid for a single residence — $240 mil-lion for a four-level unit — in February.
Elsewhere on the Upper East Side, Lawrence Herbert, the creator of the Pantone Color Matching System, sold his fullfloor co-op at 778 Park Avenue, and at neighboring 740 Park, a longtime resident sold his . Also, two town-houses at the Plaza Residences at 484 Greenwich Street closed.
Downtown, the Oscar-winning filmmaker Paul Haggis found a buyer for his SoHo loft, and Ron and Michelle Saltz, owners of a large flower farm in Connecticut, bought the remaining at 160 East 72nd Street in TriBeCa.
The neo-Classical mansion sold by the Kagans is six stories high and 25 feet wide. It stands alongside other structures of similar size and grandeur between Fifth and Madison Avenues, a quick stroll from Central Park and the Metropolitan Museum of Art.
The building has 12,729 square feet inside, along with ample outdoor space that includes a gated front garden, a spacious rear garden, and a terrace on the parlor level and fourth and sixth floors. There is also a basement with a large wine cellar and storage rooms.
The townhouse contains nine bedrooms, seven full and two half baths, two eat-in kitchens, and a large recreation room and den. The master suite encompasses the third floor and features a separate library, plus two baths and an oversize dressing room.
Although the house was completely redone, with renovations led by the architect Stephen Wang, many original details from the turn of the last century remain. Among them: six marble fireplaces, inlaid wood flooring, intri-cate moldings, wrought iron and brass balustrade, and tall ionic columns that frame the drawing room.
Monthly taxes on the property are $15,910; Louise C. Beit of Sotheby’s International Realty was the listing bro-ker.

A townhouse owned by Broadway producers Janet and Howard Kagan is in contract.
It was last asking $29.5 million — down from its 2017 asking price of $44 million.
The Real Deal first reported the trade.
The 25-foot-wide property at 11 E. 82nd St. is 12,729 square feet and comes with nine bedrooms.
The six-story spread’s many tony features include three terraces and six marble fireplaces. The Kagans are known for producing “Natasha, Pierre & The Great Comet of 1812” and other hits on the Great White Way.
The listing broker is Louise C. Beit, of Sotheby’s International Realty.

Just over a year ago, The Real Deal reported that Tony Award-winning Broadway producers Janet and Howard Kagan (“Tuck Everlasting,” “Pippin”) had put the 25-foot-wide, 12,729-square-foot mansion at 11 East 82nd Street, purchased for $24.5 million in 2009, on the market, asking $44 million. The impressive Upper East Side limestone-and-brick town-house was also known for having previously belonged to financier Ron Perelman. The 1895 building in all its six-story, elevator-enhanced, Gilded Age glory has just been relisted for $29.5 million, a hefty haircut from last year’s ask.
Though historic, grand and glorious it may be, the rambling 22-room mansion isn’t glaring in its opulence. While it’s pos-sessed of every possible modern convenience including an elevator that services all levels plus the basement wine cellar and the top floor gym, central air conditioning, a sprinkler system, double pane windows with motorized treatments and smart home A/V, WiFi and security systems, the home’s interiors are beautifully decorated in a considered and understated style.
Situated on a townhouse block off Fifth Avenue, the home offers nine bedrooms, seven baths, three terraces, a garden, and 13-foot ceilings on the drawing room floor. A Neo-Classical limestone façade and gated garden forecourt were designed by architect Henry Andersen, inspired by the leading architectural firm of its time, McKim, Mead and White. The home’s most recent renovation was helmed by architect Steven Wang and interior designer Steven Gambrel. Turnof-the-century details have been preserved, including six marble fireplaces, inlaid flooring of various woods, intricate mold-ings, a wrought iron and brass balustrade and tall Ionic columns that frame the drawing room. The home’s garden floor opens to the grand entrance gallery featuring an inlaid marble and onyx floor, a sweeping staircase, a coat closet and a powder room.
To the rear, a perfectly curated and thoroughly modern chef’s kitchen is equipped with Miele, Sub-Zero and Wolf appli-ances including two dishwashers, three ovens and two sinks. An informal dining room is highlighted–and lit–by solarium windows. Off the dining room is a landscaped garden with seating areas for outdoor living in season.
The second floor offers an entertaining space of truly grand proportions with room for at least 100 party guests. Here you’ll find a south-facing drawing room, an opulent parlor with a grand piano and large formal dining room, all with fire-places and soaring ceilings. There’s also a bar, a butler’s pantry and another large terrace.
On the third floor is a paneled library with a fireplace and coffered ceiling. Also here is the gorgeous master bedroom suite, complete with fireplace and solarium, his-and-hers marble baths and two dressing rooms.
On the fourth floor is a children’s paradise with four bedrooms, plus two spacious baths, a laundry room and another large planted terrace.
On floor five is the home’s recreation/media room complete with a surround sound audio system, a ping pong room and a guest bedroom with an en suite bath.
At the mansion’s pinnacle is a bamboo-lined yoga terrace and a gym with solarium windows. Also up here–the ultimate convenience after a workout–is another kitchen with a dining area, living room, more bedrooms (we lost count at this point), a walk-in cedar closet and two baths.


By Chris Pomorski I 10/07/14
5:46pm
When Tony and Clare White bought Bunny Mellon’s townhouse at 125 East 70th Street for $22.5 million in 2006—officially from an LLC named for Mellon’s sprawling rural Virginia estate—one broker told us that she considered it “perfect for a Brit.” Mr. White, a successful Irish businessman, thus seemed to more or less fit the profile. “The rooms weren’t that large, but it had plenty of charm,” the broker continued. “It has a European feel to it. For the average New Yorker that wants to make a splash—grand rooms, high ceilings— they don’t understand that setup.”
High-rolling New Yorkers have not, by our reckoning, become any more subtle. But the Whites have apparently found someone to take the place, which was last listed for $41 million with Sotheby’s International Realty’s Louise Beit, off their hands—it’s just entered contract, according to the broker’s website. (Bunny, whose true and complete name was Rachel Lowe Lambert Lloyd Mellon, passed away in March at the age of 103; her former husband, Paul Mellon, relation of Andrew, died in 1999 at an entirely respectable 91.)
Then again, there’s not exactly a shortage of overseas bucks in town, which perhaps goes some way toward explaining the considerable appreciation the home—and its already well-funded sellers—has enjoyed. Alas, the couple initially hoped to taken in $46 million on the resale. But call us callous, we’re having a tough time mustering too much sympathy on account of the apparent shortfall.

At 11,100 square feet and a whopping 40-feet wide, the townhouse seems an odd thing to fault for lacking in grandeur. (Only in New York?) It has eight bedrooms and seemingly innumerable sets of French doors and windows. It is maybe this, in part, that lends it “the charm of the French countryside.” There are a wine room and an elevator, walls painted vibrantly—and attractively—in soft pastels and deep blue. A horticulturalist by both training and passion, Bunny Mellon, a friend of Jacqueline Kennedy Onassis, famously designed the White House Rose Garden. And a verdantly planted stone courtyard with a lily pad-speckled pond appears to retain the benefits of her expert eye.
Is all this truly something only a Brit could love? Only time, and a hawkish watch on property records, will tell.
Read more at http://observer.com/2014/10/thats-the-money-mellon-bunnys-old-townhouse-priced-at-41-mfindsa-buyer/#ixzz3W02TijLG

By Chris Pomorski I 03/13/15 2:00pm
From behind the windows of their Georgian-style home on the south side of East 70th Street, between Park and Lexington Avenues, the Irish businessman and his wife always admired the place across the way, a townhouse newer than theirs and twice as wide. It also boasted a white-balustraded terrace on the third floor, so that the rooms above took light through eastern windows, a near-unheard-of rarity in a mid-block Manhattan home.
Anthony White had made a mint in the data-collection business and his wife, Clare, had a way with antiques. But the couple across the street, who’d had their house designed in the mid 1960s, were of a different order: Paul Mellon, heir to the banking fortune, and his socialite-par-excellence wife, Bunny.
A longtime friend of the Kennedys, Ms. Mellon was an expert horticulturist, and had brought her talents to bear on the White House Rose Garden, as well as on the rear garden of the townhouse, which had a reflecting pool and a gazebo, and which was overlooked by the library, where Mr. Mellon displayed selections from his world-class collection of English paintings.
Mr. Mellon died in 1999, at the age of 91, and when Ms. Mellon felt ready to sell the place, in 2006, Louise Beit, a broker with Sotheby’s International Realty, helped arrange for the Whites to move in, at a cost of $22.5 million.

The Whites had made not-insubstantial alterations to the Mellons’ vision when they enlisted Ms. Beit once more last year, putting the townhouse on the market for $41 million. But when it came time to market the home, it was for the Mellon name that Ms. Beit reached.
“I think any broker would have realized the value of a provenance like the Mellons and gone straight for that,” Ms. Beit told the Observer. “The home was built for them, and so it shows their lifestyle, their particular way of living. The house was built to reflect their passions. And, of course, they could have afforded anything.”
The home’s lineage, Ms. Beit said, helped to attract potential buyers from around the world. “That’s one of the things that we ask when we are determining the value of a property: How unique is it?”
The home’s lineage, Ms. Beit said, helped to attract potential buyers from around the world. “That’s one of the things that we ask when we are determining the value of a property: How unique is it?”
That a home built for beacons of wealth and taste of the Mellons stature would exert enduring allure is perhaps unsurprising. (It eventually sold for $37 million to Jim Clark, a co-founder of Netscape.) But in a town famous for both real estate obsession and official indifference to celebrity, the precise appealand monetary valuef prop-erty connected to bold-faced names can be difficult to suss out.
Pay more for an townhouse just because so-and-so lived there? one broker sniffed. I t think people do that anymore. Maybe if we were talking about Beverly Hills it would be more of a factorhey care more there about saying they live in so-and-so’s house
Others aren’t quite so dismissive. “When it comes to real estate, there are bona fide legends, A-list celebrities and then there’s everybody else,” said Karla Carrington, a broker with Bond New York. “There are people who will buy John Wayne’s house just because it’s John Wayne’s, just to take a bath where John Wayne took a bath. If Be-yonce’s moving out, people are going to flock.”
Ms. Carrington estimates that an owner falling into one of those categories from which “everybody else” is ex-cluded might get a 20 to 50 percent premium on the sale of her home. But that represents a perhaps excessively enthusiastic appraisal, particularly in this, our era of the Wall Street superstar. “Will people spend more on Jay Z’s townhouse?” wondered Karla Saladino, a managing partner at Mirador Real Estate. “Probably. But honestly, New York is so finance-based now. I haven’t seen too many examples where celebrity owners push the price up that much.”
To wit, Ms. Saladino recalledwith lingering frustrationtrying to rent an townhouse where David Bowie and Iman once lived. It dit move, really, because there were cheaper things in the building she said. It was nov-el. There was her dressing room, and this and that. But people would say, Well, yeah. But theres a view availa-ble [in another unit] Indeed, city records are dense with deeds for celebrity homes whose closing prices fell well below the hoped-for figures.
Read more at http://observer.com/2015 03/homes-of-notables-often-list-for-top-dollar-but-their-sale-pricesare-another-matter/#ixzz3VzY481MT


By JOSH BARBANEL
Published: June 26, 2009
EVERYTHING about Madonna is larger than life, from her record sales to her glittery costumes, to her recent legal battle to adopt a child in Malawi, to the price she paid for a 57-foot-wide town house on the outer fringes of the Upper East Side.
Brokers scoffed at her foolishness when it was reported that she was in contract to buy a sprawling Georgian- style town house in the sticks, a k a far East 81st Street, for $40 million. The place was nowhere near the elite homes of Fifth Avenue, beyond the lower-status Lexington Avenue and many blocks from the hallowed soil of Central Park.
But last week, when she closed on the purchase, it turned out the hard-working Material Girl, sweating her way through another world tour at age 50, had not lost her street smarts. The rock star, born Madonna Louise Ciccone of Bay City, Mich., actually received a significant discount. She paid only $32.5 million, according to brokers briefed on the transaction.
The final purchase price works out to a 28 percent discount from the $45 million price tag of the original listing, by Louise Beit of Sotheby’s International Real Estate. The property was listed last October, after the death of the long-time owner, Louise H. Saurel.
Wendy Maitland, a broker at Brown Harris Stevens who has represented Madonna in the past, declined to discuss the transaction.
The sale would still make it the highest town house sale in the anemic first half of 2009, but not out of line with re-cent sales of much smaller town houses in that neighborhood.
Last year at the peak of the market, a 19-foot-wide town house on far East 78th Street sold for $9.5 million, or about $2,750 a square foot. The price per square foot paid by Madonna in a weaker market was about the same, but one could argue she got a lot more in the deal.
With 57 feet of street frontage, her new mansion is one of the widest town houses in Manhattan, combining what appear to have once been three separate town houses. According to the listing, the house has 26 rooms, including a 38-footwide drawing room and 13 bedrooms. There are 9 fireplaces, 11-foot ceilings and, in the rear, a 3,000-square-foot garden. Who needs Central Park when your backyard is park size?
If the house isn’t big enough, its size can be doubled under current zoning, and unlike those precious buildings on Fifth Avenue, it is situated beyond the purview of the New York City Landmarks Preservation Commission. In any event, with a two-car garage on the premises, the new owner could whisk her children to the park by limousine in about as much time as it would take to go by elevator from a Fifth Avenue to the lobby.
http://www.nytimes.com/2009/06/28/realestate/28deal1.html?_r=1&adxnnl=1&adxnnlx=1427896443XPOUmPZw3XWW28c3xXBiQw

Madonna buys $40 million townhouse
April 14, 2009 02:19PM
Madonna has purchased a $40 million townhouse at 152 East 81st Street on the Upper East Side. The four-story townhouse has 12,000 square feet of living space and a 3,000- square-foot garden. The home has 13 bedrooms, 14 baths, nine fireplaces, an elevator, wine cellar and a parking garage. Sotheby’s International Realty’s Louise Beit had the listing.
http://therealdeal.com/blog/2009/04/14/madonna-buys-40million-townhouse/


By Staff I
01/19/06 2:19pm
Fresh off his critical success with Match Point, director Woody Allen is treating himself to a $25.9 million townhouse, according to a source with knowledge of the deal.
Last week, the acclaimed filmmaker signed a contract for a 20-foot-wide, Georgian-style townhouse on East 70th Street, which had been listed with broker Louise Beit, of Sotheby’s International Realty.
Designed by Trowbridge & Livingston in 1901, the stunning 16-room home includes 11-foot ceilings, ornate moldings, 10 fireplaces, and a Georgian staircase. In addition, there are five bedrooms, formal dining room, library, family room, media room, staff room, and a garden.
Certainly, Mr. Allen is no stranger to exquisite Manhattan properties.
In 1999, he paid $17.7 million for a 40-foot-wide mansion on East 92nd Street. The palatial home measured in excess of 15,000 square feet. About five years later, he sold the Carnegie Hill townhouse to former Goldman Sachs executive Barry Volpert, for $24.5 million.
However, the years spent in Carnegie Hill were not completely idyllic. Mr. Allen and some of his well-heeled neighbors (including Sony chief Howard Stringer and author Peggy Noonan) attempted to block the construction of a 10-story luxury condominium nearby. However, the state’s highest court ruled against them.
Since moving out, Mr. Allen has searched for an Upper East Side home, albeit smaller than the mansion he owned previously, according to real estate sources. In July 2004, Mr. Allen was reportedly under contract for a different East 70th Street townhouse; however, it was later reported in September that the deal fell through. In the meantime, Mr. Allen has been reportedly renting a single-family residence at Madison and 85th Street for $25,000 a month.
Representatives for Mr. Allen did not offer any comment, as of this morning. Ms. Beit declined to comment on the listing.
-Michael Calderone
Read more at http://observer.com/2006/01/woody-buys-259-m-townhouse/#ixzz3W09gyydt

By Michael Calderone I 01/30/06 12:00am
In Husbands and Wives, Mia Farrow’s character memorably tells her husband, played by Woody Allen, that he isn’t serious about moving to Europe, because he “couldn’t survive off the island of Manhattan for more than 48 hours.” Nevertheless, it has been rumored from time to time that the acclaimed director might someday go through with the move across the pond.
Most recently, such speculation was fueled by the fact that the 70-year-old auteur used London as the location for two feature films, the critically acclaimed Match Point, released last December, and the forthcoming Scoop. Although Mr. Allen temporarily took up residence during shooting in a ritzy neighborhood near Hyde Park, he won’t be giving up on New York just yet: The ink just dried on his $25.9 million townhouse contract, as The Observer reported on Jan. 19.
Whether or not the real-estate market is slowing down “dramatically” (says Mayor Bloomberg) or simply has cooled a bit, there are very few trophy homes to go around for the most discriminating buyers. So, despite the fears of a bursting bubble, such properties have still been moving. Since last fall, five townhouses have sold for above $20 million, with three on East 64th Street alone.
Although Mr. Alle deal certainly w b reak the overall record price paid for a townhousehe $40 million dropped on the Duke Semans mansiohere is little doubt that it will smash the current townhouse record for price per square foot.
In early November, Louise Beit, of Sotheby International Realty, listed the 20-foot-wide townhouse for $25.9 million. (Ms. Beit declined to comment on the listing). At that considerable price, the luxurious residencemeasuring 6,400 square feet, according to city recordss asking $4,047 a foot.
While several ritzy developments (such as 484 Greenwich Street and the Richard Meier towers) have yielded sales at that lofty price point, the previous townhouse record for price per square foot was $2,471. That record was set last October, when Prudential Douglas Elliman broker Linda Schlesinger and her husband sold their 20-foot-wide home on East 64th Street for $21.5 million.
Sure, the final selling price on Mr. Alle future home is still unknown, but several luxury brokers offered their expert esti-mates to The Observer, with the prevailing opinion being that it will most likely sell for below asking somewhere in the $20 million to $22 million range.
While the deal may or may not break Ms. Schlesinger’s record for the sale for a 20-foot-wide townhouse, even with the low-ball estimate of around $20 million, Mr. Allen would easily smash the record price per square foot, at a whopping $3,125.
Although such inventory is in short supply, Mr. Allen isn’t considered to be getting a steal at that price. However, taking into account this townhouse’s provenance, and East 70th Street’s reputation as the finest townhouse block in the city, Mr. Allen may still have made a very sound investment in the long run.
Built in 1901 by Trowbridge & Livingston, the five-story townhouse was first owned by Grace Luling, according to ap-praisal records. Next, Emily Baker Kellogg, wife of Leonard Kellogg, purchased the property. In June 1943, Ms. Kel-logg sold the townhouse to the late Dr. Ernest Kulka, a renowned gynecologist, who resided there for over four decades and is still remembered fondly.
“It was my dream house,” said luxury specialist Bridget Restivo, of Alice F. Mason Ltd. An architectural expert, Ms. Restivo was enthralled with the 16-room townhouse.
“Personally, I think it is the finest Georgian house I’ve seen of that size,” she said. “It is one of those houses that can be a 20-footer, but seems much grander.”
Some exquisite features of the limestone-clad townhouse include ornate plaster moldings, a grand staircase, 10 fireplac-es, French doors and herringbone floors. There is also an English basement, a formal dining room, library, media room and staff rooms. On the third floor, there are two master bedrooms-one in front and one in the back. One floor above, there are two bedrooms, with a sitting room and kitchen in the rear of the house. Originally used as servants’ quarters, the fifth floor includes a trunk room with a ladder to the roof.
However, one of the property’s most notable features is the sun-lit garden, which faces out onto the double-wide townhouse that formerly housed the Jim Henson Company, located on 69th Street. It features an outdoor bench, plentiful shrubbery and a fountain with permanent plumbing lines.
Although Ms. Restivo had a contract out, the deal (in the $3 million range) never took place. In May 1988, Justine Comp-ton-Wentworth purchased it for $3.8 million. A few years later, Ms. Compton-Wentworth put it on the market for $9 mil-lion, but the house refused to budge. Eventually, in 1998, it was sold for $6.05 million to the current owners, Martin A. White and his wife, Clare, an antiques dealer. Mr. White didn’t return calls for comment.
A year after Mr. White purchased Mr. Allen’s future digs (pending a closed deal), the acclaimed director was also in a buying mood further uptown. In 1999, Mr. Allen and his wife, Soon-Yi, purchased a 40-foot-wide Carnegie Hill mansion for $17.7 million. Located on East 92nd Street, the massive residence was approximately 14,400 square feet. In July 2004, after a very public dispute with developers building a nearby condominium tower, Mr. Allen sold the man-sion for $24.5 million to former Goldman Sachs executive Barry Volpert. That deal broke the record sales price for sin-gle-family homes, trading hands at about $1,700 per square foot. So it’s not surprising that Mr. Allen recently told Vanity Fair, “I made more money in real estate than I’ve ever made from movies.”
Since then, Mr. Allen has been reportedly spending about $25,000 a month on a single-family rental at Madison and 85th Street.
Despite rumors that he might relocate abroad, Upper East Side brokers were well aware that Mr. Allen was still in the market to buy-however, there were a few new specifications. Mr. Allen now preferred a much smaller home than the palatial mansion he previously occupied, and he also desired a superb garden, according to multiple real- estate sources. In the same month that he sold his Carnegie Hill residence, the New York Post reported that Mr. Allen was buying a dif-ferent East 70th Street propertyhe Rothschild Mansior $15 million. Despite an accepted offer at the time, the deal for the 11,000-square-foot townhouse eventually fell through, as reported two months later. (In the 16 months since Mr. Allen passed on the building, the Neo-Georgian style mansion, with a 33-foot-deep garden, has only increased in price. Currently, it on the market for $25 million, listed with Paula Del Nunzio of Brown Harris Stevens).
So if it that townhouse apparently met Mr. Allen’s specs, why did the deal fall through? For one thing, the Century Foundation, the building’s current owner, needed ample time to relocate their offices. Secondly, Mr. Allen would’ve had to undertake a massive renovation to transform the 11,000-square-foot building into a single-family dream home. It can be as-sumed that such an undertaking for a director and screenwriter already busy overseas would be difficult. (Mr Allen didn’t respond to several calls for comment.)
Because of the costly and time-consuming renovation, one high-end broker isn’t surprised that Mr. Allen was willing to spend a record amount on this townhouse.
“He paid more than anyone else when he bought the house on 92nd Street,” said Jed Garfield of Leslie J. Garfield Real-ty. Well versed in catering to the whims of upscale clients, Mr. Garfield recently represented Tamir Sapir, the Russian oil magnate who purchased the Duke Semans mansion on Fifth Avenue.
“[Mr. Allen] wanted something done perfectly, and he wanted it to a certain taste,” said Mr. Garfield. “Even if he did pay a premium of some kind, it’s well worth it to avoid the brain damage of a renovation.”
Its pre-existing configuration as a single-family home is one huge plus, but the location makes another difference. Mr. Allen’s new townhouse is further down East 70th Street, in the middle of a much-coveted block between Park and Lex-ington avenues. And just around the corner are three of the city’s grand co-op buildings: 720, 730, and 740 Park. “Some consider it the best street in New York,” said Laurance Kaiser IV, president of Key-Ventures Realty. “It is pretty from the Frick museum [on Fifth Avenue] on down to Third Avenue.”
“It has been considered for years to be the finest block on the Upper East Side,” said Ms. Restivo. “The houses are set back, so there is more light.”
In addition to the $25.9 million listing, there are two other properties on the same block between Park and Lexington that could receive a boost-both from the celebrity cachet and, arguably more important, from the premium price spent on the townhouse.
Anchoring the block is the 40-foot-wide townhouse that formerly housed the late philanthropist Paul Mellon, currently on the market for $24.5 million. Now residing in Virginia, Rachel (Bunny) Lambert Mellon, his widow, has listed the 9,400-square-foot building with brokers Kirk Henckels and Jo Hardin of Stribling and Associates. Inside, there are two master suites, three smaller bedrooms and five staff rooms. While the frontage of the Mellon House makes it a very unique property, some modern renovations will be needed, according to one broker. “The Mellons were so secure that they could live any way they chose,” said Mr. Kaiser, referring to the relatively small rooms on the lower floors and the lack of a grand staircase. “If someone wanted to put in $15 million, they would have the most spectacular house around.”
More recently, another nearby townhouse entered the luxury market, this one only four houses down from Mr. Allen’s, on the south side of the street. Priced at $17 million, the 8,000-square-foot residence came on the market about one month ago, listed with broker Suzanne Sealy of Prudential Douglas Elliman. Ms. Sealy declined to comment. With three houses currently on the market on this East 70th Street block alone, some very big deals could close in 2006. Last year, three townhouses sold for more than $20 million on a block rivaling it: East 64th Street between Fifth and Madi-son avenues. The late Gianni Versace’s palace sold for $30 million; Roberto and Joanne de Guardiola’s five-story mansion sold for $26.25 million; and the aforementioned 20-footer belonging to Ms. Schlesinger went for $21.5 million.
“Those two are considered the best blocks, from a pure snob-appeal real-estate perspective,” Mr. Garfield noted. Read more at http://observer.com/2006/01/woody-9829-new-york/#ixzz3W0ARYcg9

Artist buys $11.5M UES home
July 24, 2009 09:14AM
Artist Richard Prince has purchased an Upper East Side mansion at 57 East 78th Street for $11.5 million. According to the listing, the six-bedroom home, built in 1869, has a landscaped garden and wine storage. Broker Louise Beit of Sotheby’s International Realty listed the home for $15 million.
http://therealdeal.com/blog/2009/07/24/artist-richard-prince-buys-11-5m-upper-east-side-home/

© MMXXI Sotheby’s International Realty, Inc. All Rights Reserved. This material is based upon information which we consider reliable but because it has been supplied by third parties, we cannot represent that it is accu-rate or complete and it should not be relied upon as such. This offering is subject to errors, omissions, changes including price or withdrawal without notice. If your property is listed with a real estate broker, please disre-gard. It is not our intention to solicit the offerings of other real estate brokers. We are happy to work with them and cooperate fully. Sotheby’s International Realty and Sotheby’s International Realty logo are registered (or unregistered) service marks used with permission. Operated by Sotheby’s International Realty, Inc. Real estate agents affiliated with Sotheby’s International Realty, Inc. are independent contractor sales associates and are not employees of Sotheby’s International Realty, Inc. Equal housing opportunity.
