The RUMIHUACA castle

Page 1

THE RUMIHUACA CASTLE

LOCATED IN THE SOUTHERN PART OF THE MUNICIPALITY OF ANAPOIMA.

castle, was a writer, playwright, educator and sociologist. who loved Colombian middle climates. In this area, predominantly a coffee-growing region, he noticed that the farmers only worked during two short periods every year (during the harvest). He saw an opportunity of labor potential and, taking advantage of the abundance of stone in the region, he taught the neighbors how to carve blocks out of this material. Thus he began the construction in 1947. From that day on, he could not contain the impulse and added, without taking a break, bedrooms, galleries and all kinds of environments until his death in 1966.

Approximate size of the property

44,200 Sq. meters

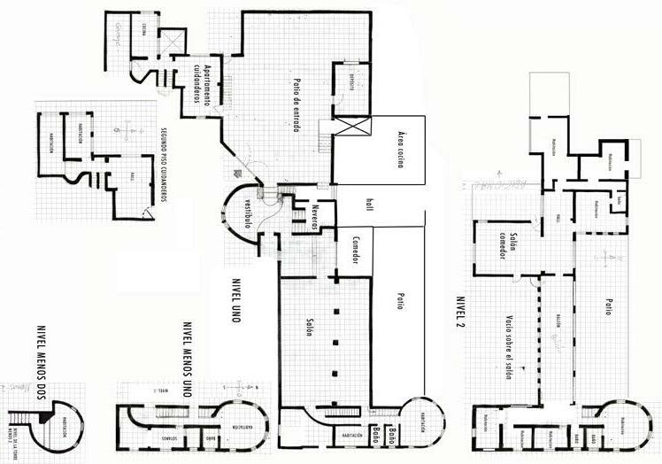
Approximate construction area: 1,367.86 Sq meters

The property is surrounded by a beautiful stream that, in turn, feeds the natural swimming pools. and you can always take a walk along beautiful trails surrounded by wild nature.

VIDEOS:

https://youtu.be/GOK23a4HpG4

https://youtu.be/2wnv2ZHS1uk

https://youtu.be/nvCKXjiGSL8

https://youtu.be/nvCKXjiGSL8

PRECOLUMBIAN
STONE ENGRAVINGS

Turn static files into dynamic content formats.

Create a flipbook
Issuu converts static files into: digital portfolios, online yearbooks, online catalogs, digital photo albums and more. Sign up and create your flipbook.