Lorenz Cobico - Architecture Portfolio

Page 1

selected works

Architecture Portfolio.
2016-2023
Lorenz Michael T. Cobico

01

03

Vacation House: Lucban

Schematic - Design Development Phase

Two-Storey Residential: Alfonso, Cavite

Schematic - Conceptual Phase

04

05

Performance Center

Undergraduate Design Exercise, Conceptual Phase

Manila Airport Terminal 4

Undergraduate Design Exercise, Conceptual Phase

06

09

Redevelopment of Sta. Cruz Public Market

Undergraduate Thesis: Research - Design Development

Bettersteps Mental Health Clinic: Pasig City

Schematic - Conceptual - Design Development Phase

Ayala Mall Manila Bay Proposed Chapel

Schematic - Conceptual - Design Development Phase

Proposed Alaminos City Hall

Schematic - Conceptual - Design Development - Construction Phase

Three-storey Residential: Don Antonio, Quezon City

Schematic - Conceptual - Design Development - Construction Phase

Contents.
10 11 13

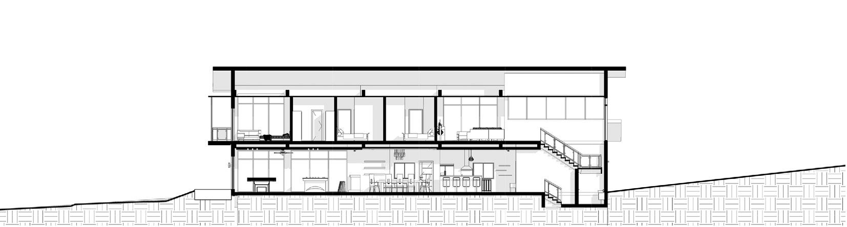
Vacation House: Lucban

Schematic - Design Development Phase

Design concept.

Inside Out;

The main consideration of the design is to integrate the exterior space with the interior space, thus, the longest side of the house was oriented towards the exterior features. Glass sliding doors were used to separate the main spaces.

01
02
Vacation House: Lucban Schematic - Design Development Phase
03
Schematic - Conceptual Phase
Two-Storey Residential: Alfonso, Cavite
04 Performance Center Undergraduate Design Exercise
05 Manila Airport Terminal 4 Undergraduate Design Exercise, Conceptual Phase

Redevelopment of Sta. Cruz Public Market

Undergraduate Thesis: Research - Design Development

06
07
Sta. Cruz Public
Research
Redevelopment of
Market Undergraduate Thesis:
- Design Development

Redevelopment of Sta. Cruz Public Market

Undergraduate Thesis: Research - Design Development

08
09 Bettersteps Mental Health Clinic: Pasig City Schematic - Conceptual - Design Development Phase
10
Ayala Mall Manila Bay Proposed Chapel Schematic - Conceptual - Design Development Phase Project in collaboration with SNG DESIGN ENTERPRISE
11
Proposed Alaminos City Hall Schematic - Conceptual - Design Development - Construction Phase Project in collaboration with SNG DESIGN ENTERPRISE

Project Brief

The project site is located within an exclusive R-1 zone with a lot area of 600 square meters. The extension was deemed necessary to occupy the empty lot beside the existing house.

13
Residential:
Antonio,
City Schematic - Conceptual - Design Development - Construction Phase
Three-storey
Don
Quezon
Actual Photo of the project
14
Three-storey Residential: Don Antonio, Quezon City Schematic - Conceptual - Design Development - Construction Phase

Turn static files into dynamic content formats.

Create a flipbook
Issuu converts static files into: digital portfolios, online yearbooks, online catalogs, digital photo albums and more. Sign up and create your flipbook.
Lorenz Cobico - Architecture Portfolio by Lorenz Michael Cobico - Issuu