Portfolio BIM

Page 1

PORTFOLIO BIM+

LORENA DANTAS ARCHITECTE D.E MBA EN TRANSPORTS ET AUTOROUTES MASTER RECHERCHE À L’ENSA MARSEILLE Architecte BIM Manager Certificaton Graphisoft

Ce portfolio représente deux années passés au sein du cabinet CANEL.

Je remercie vivement M. Canel et M. Nicolas pour la confiance qu’ils m’ont accordé.

SOMMAIRE

Palais de Festivités d’Evian 8

Bâtiment Implenia - Oceanis 10 Hotel Beau-regard 14

Immeuble « Le Corelia » 16 Bâtiment Enedis 18

Le Presbytère 20 Maison à Sciez 22

SCI Link 24 Manoir des Tours 26 Ecole de Neydens 28 Mairie de Châtel 30 Ferme à Massongy* 32 Eglise de Margencel 34

SOMMAIRE ILLUSTRE
Page 14
Palais de Festivités d’Evian Page 8 Bâtiment Implenia - Oceanis Hotel Beau-regard Page 10
Immeuble « Le Corelia » Page 16 Bâtiment
Le
Page 18 Page 20
Enedis
Presbytère
SOMMAIRE ILLUSTRE
Page 22 SCI Link Manoir des Tours Page 24 Page 26
Maison
à Sciez
28
Ecole de Neydens Page
30 Page 32
Mairie de Châtel Ferme à Massongy* Page

Palais de Festivités d’Evian

8
2022 Coupe axonométrique E 1 : 500 0 17.07 14.38 3.97 3.35 -1.35 RDC N 1 : 750 0 20 m 10 2,5 5 Façade Nord E 1 : 500 Façade Sud - Caserne de pompiers adjacente E 1 : 500
Zone non relevé 3.91 4.59 7.12 11.85 14.30 16.99 14.16 14.38 3.95 -69 0 0 -1.90 -1.45 Place peintre Charles Cottet 13.46 14.01 22.61 25.44 25.44 22.61 19.78 16.94 28.55 28.55 Skydome 12.50 12.52 12.53 Passerelles *Complexe sol / plafond *Complexe sol / plafond *Complexe sol / plafond : épaisseurs des composants non relevés Bd Jean Jaurès 9 Coupe longitudinale E 1 : 500 Vue 3D Façade Nord-Est 1 500 0 15 m 5 10 Détail habillage poteau béton Coupe axonométrique sur scene

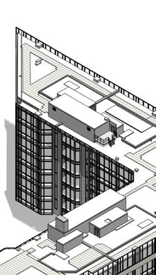
Bâtiment Implenia - Oceanis

Archamps (2022)

Vue 3D Façade principale

10
1-4 E 1 : 750
Etage type

Vue 3D

Façade arrière

Vue 3D

Coupe sur bâtiment - Façade arrière

1
750 0 20 m 10 2,5 5 11
:
Etage type 5-7 E 1 : 750

Poteau mur-rideau RH 80x80x2 [1]

Toit 1

+25 51 m

+22 79 m NIVEAU 8

+19 79 m NIVEAU 7

+16 47 m NIVEAU 6

+13 18 m NIVEAU 5

+9 88 m NIVEAU 4

+6 60 m NIVEAU 3

+3 30 m NIVEAU 2

+0 00 m NIVEAU 1

Joint de dilatation [6] Trémie [4] Mur-rideau [2] [3] Placage en pierre [9]

Murs béton 18 cm [7]

Réserves [5]

12
1 Poteaux murs-rideaux RH 80x80x2 2 Mur-rideaux 3 Accrochage mur-rideau et dalle 4 Trémie 5 Réserves 6 Joint de dilatation 7 Murs béton - cotés joint 8 Dimensions mur / joint 9 Habillage façade - placage en pierre 13
12 m Ech : RDC 1 1 : 400 0 12 m 4 8 1 : 400 0 12 m 4 8 Ech : 1 : 400 RDC 1 Ech : 1 : 400 RDC 2 1 : 400 0 12 4 8 Hotel Beau-regard Morzine (2021) RDC 1 E 1 : 400 Vue 3D Façade principale RDC 2 E 1 : 400 N

Façade Est Copie 1

Façade Est Copie 1

Ech : 1 : 400

Ech : 1 : 400

Ech : 1 : 400

Façade

Façade

Ech : 1 : 400

Façade Est E 1 : 400

Façade

Ech : 1 : 400

Façade Est Copie 1 Ech : 1 : 400

Façade Nord Copie 1 Ech : 1 : 400

Façade Nord Copie 1

Façade Nord Copie 1 Façade Sud Copie 1

Façade Sud Copie 1

Façade Nord Copie 1 Façade Sud Copie 1

Façade Nord Copie 1

Copie

Copie

15
Ech : 1 : 400 Niveau 2 Ech : 1 : 400
Façade Sud
1 Ech : 1 : 400 Niveau 2 Niveau 3
Façade Sud
1 Ech : 1 : 400 Niveau 2 Ech : 1 : 400
Ouest Copie 1 Ech : 1 : 400 Niveau 2 Ech : 1 : 400 Niveau 3 Ech : Grenier
Ouest Copie 1 Ech : 1 : 400 Niveau 2 Ech : 1 : 400 Niveau 3 Ech : 1 : 400 Grenier Ech : 1 : 400
12
Ouest Copie 1 1 : 400 0
m 4 8
Façade Ouest E 1 : 400 Façade Sud E 1 : 400 Grenier E 1 : 400 Niveau 3 E 1 : 400 Niveau 2 E 1 : 400
Façade Nord E 1 : 400 N
Surfaces Bureau SynoptiqueNiveau 4 Copie 1 9.25 7.74 9.98 12.51 13.64 5.74 8.10 8.10 Façade Est Façade Sud F a ç a d e O u e s Façade Nord Intérieur Nord Intérieur Sud I n t é r e u E s t Intérieur Ouest 16 Immeuble « Le Corelia » Saint-Cloud (2021) Ech : Vue Nord-Ouest Copie 1 RDC E 1 : 750 Vue Sud-Ouest Niveau 1 E 1 : 750 1 : 750 0 20 m 10 2,5 5 1 : 750 0 20 m 10 2,5 5 N N

Façade Nord Avenue Engénie

Ech : 1 : 500

Façade Nord - Avenue Engénie

Ech : 1 : 500 Façade Est Quai Carnot

Ech : 1 : 500

Façade Est - Quai Carnot E 1 : 500

Quai Carnot Rue Dantan Rue Dantan Quai Carnot

Intérieur 25 Bâtiment Nord

Ech : 1 : 500

: 1 : 500 Façade Est Quai Carnot : Façade Nord Avenue Engénie : 1 : 500 Façade Sud

Intérieur 25 Bâtiment Nord

Façade Nord - Avenue Eugénie

Ech : 1 : 500 Façade Sud

Avenue Eugénie Quai Carnot Rue Dantan

Ech : 1 : 500 Façade Nord Avenue Engénie Ech : 1 : 500 Façade Sud

E 1 : 500

Avenue Eugénie Quai Carnot

Façade Nord

Intérieur 25 - Bâtiment Nord E 1 : 500

Avenue Eugénie Rue Dantan Quai Carnot

Ech : 1 : 500 Façade Sud

Niveau 2 E 1 : 750

Niveau 3 E 1 : 750

Surfaces Bureau Circulation Cuisine Sanitaire Sous-sol Technique

Ech : 1 : 500

Façade Est intérieure 24 bis bâtiment central E 1 : 500

Rue Dantan Quai Carnot

Façade Sud E 1 : 500

Ech : 1 : 500 Façade Sud

Niveau 4 Copie 1

Intérieur Sud - 24 Bat Sud E 1 : 500

1 : 500 0 15 m 5 10

Ech : 1 : 500 Intérieur Est 24 bis Bâtiment Central Ech : 1 : 500 Intérieur 25 Bâtiment Nord

Intérieur Sud 24 Bâtiment Sud

Ech : 1 : 500

Intérieur Est 24 bis Bâtiment Central Ech : 1 : 500 Intérieur 25 Bâtiment Nord Ech : 1 : 500 Intérieur Sud 24 Bâtiment Sud

 Modélisation du palais et de la caserne de pompiers adjacente ;  Création des familles de portes et fenêtres exclusives pour le projet :

Ech : 1 : 750 SynoptiqueNiveau 3 Copie 1

Ech : 1 : 500 Intérieur Sud - 24 Bâtiment Sud

24 bis Bâtiment Central Ech : 1 : 500 Intérieur 25 Bâtiment Nord Ech : 1 : 500 Intérieur Sud 24 Bâtiment Sud

Ech : 1 : 750 SynoptiqueNiveau 4 Copie 1

Niveau 4 E 1 : 750

17

Bâtiment Enedis

18
Arras (2020) RDC E 1 : 1000 Sous-sol E 1 : 1000 Façade Sud E 1 : 500 Façade Nord E 1 : 500
Axonométrie Nord-Ouest
E
Axonométrie Sud-Est Niveau 1
1 : 1000
19 Surfaces comptabilisées Bureau Circulation Sanitaire Toiture verte HAUT 1 : 1000 0 30 m 10 20 Façade Ouest E 1 : 500 Façade Est E 1 : 500 Vue 3D Sud Niveau 2 E 1 : 1000 Niveau 3 E 1 : 1000 N 1 : 500 0 15 m 5 10
Dépôt Salle associations Escalier Cave Bibliothèque -bâtiment existant à demolir 20
E
RDC E
Vue
Vue
Le Presbytère Montriond (2021) Façade Ouest E 1 : 250 Façade Nord E 1 : 250 Sous-sol
1 : 250
1 : 250
3D
3D Charpente
Contreventement Contreventement coupé Chevrons Pare-neige Chambre Cuisine Chambre Chambre Sdb 957.48 950.22 Panne faitière WC Salon Cuisine Grenier Chapelle Hall Salle associations Cave Cave Salle associations Cave voutée Dépôt / Cave Salon Salle Escalier Chambre 941.73 944.32 943.58 947.53 944.40 Grenier 950.22 Chaufferie 21 N 1 : 250 0 7.5 m 2.5 5 Façade Sud Niveau 1 E 1 : 250 Charpente E 1 : 250 Coupe axonométrique E 1 : 250 Coupe axonométrique E 1 : 250 Coupe axonométrique E 1 : 250
HAUT Cave 22
Sciez
N 1 : 250 0 7.5 m 2.5 5 Sous-sol E 1 : 250 Plan Masse E 1 : 250
Maison à Sciez
(2021)
Chambre 1 Chambre 2 Chambre 3 Circulation WC Sdb Sdb Balcon Balcon Chambre 4 Chambre 5 Comble HAUT Séjour Salon / Séjour Cuisine Circulation WC Terrasse 23 RDC E 1 : 250 Niveau 1 E 1 : 250 Combles E 1 : 250 Façade Est E 1 : 250 Façade Ouest E 1 : 250 Façade Nord E 1 : 250 Façade Sud E 1 : 250

SCI Link

Ris Orangis (2021)

Vue 3D de l’ensemble

Coupe axonométrique longitudinale

Coupe axonométrique transversale

24
92.67 85.19 85.66 88.77 84.58 92.67 94.50 85.66 85.19 81.24 81.83 85.39 88.77 80.67 25 N 1 : 750 0 20 m 10 2,5 5 Plan Masse E 1 : 750 Plan RDC E 1 : 750 Façade Nord E 1 : 500 Façade Sud E 1 : 500 1 : 500 0 15 m 5 10 88.77 81.84 92.67 94.50 92.05 87.09 85.19 85.66
26
Tours Evian
Façade Est E 1 : 250 Façade Est E 1 : 250 Façade Nord E 1 : 250 Façade Sud E 1 : 250 N 1 : 250 0 7.5 m 2.5 5
Manoir des
(2021)
Cave Cave Chambre 1Chambre 2 Chambre 3 Circulation WC Chambre 4 Pièce Chambre 5 Circulation Circulation WC Balcon Balcon Balcon Balcon N BAS Chambre 6Chambre 7Chambre 8 Chambre 10 Chambre 9 Sdb Circulation Chambre 11 Balcon Balcon Balcon WC Séjour 1 Séjour 2 Séjour 3 Hall d'entrée SDB Cuisine Buanderie Circulation Circulation Annexe Maison Garage WC Dépot 27 Niveau 1 E 1 : 250 Cave E 1 : 250 RDC E 1 : 250 Annexe E 1 : 250 Niveau 2 E 1 : 250 N
Salle Bibliothèque WC Salle Entrée Entrée Sanitaires Stockage Placard Salon Chambre Chambre Cuisine Salon Chambre Chambre Cuisine WC SDB WC SDB Salon Chambre 28 Ecole de Neydens Neydens (2021) N RDC E 1 : 400 Niveau 1 E 1 : 400 1 : 400 0 12 m 4 8

Façade Nord E 1 : 250

Façade Est E 1 : 250

Façade Ouest E 1 : 250

Façade

564.61 570.91 564.59 560.31 559.81 571.75 570.42 564.59 29 1 : 250 0 7.5 m 2.5 5
Sud E 1 : 250
BureauBureau Bureau Bureau Bureau Salle de Réunion WC Lavabo Bureau Circulation Circulation Escalier SAS Bureau Bureau Copies Dépôt Dépôt Accueil / Circulation Dépôt Technique WC WC Technique Coffre SAS Vestiaire Route de Vonnes RD22 Cuisine Bureau Pl Pl WC Accès OT Salle de Réunion Cuisine Bureau Bureau Bureau Circulation Bureau Combles Combles Combles N 30 Mairie de Châtel Chatel (2021) Niveau 1 E 1 : 250 Niveau 2 E 1 : 250 RDC E 1 : 250 N 1 : 250 0 7.5 m 2.5 5
1200.75 1188.95 1185.92 1186.71 1188.07 Office de Tourisme 1200.75 1189.38 1185.93 1199.08 1187.97 1200.75 1190.25 31 Façade Ouest E 1 : 250 Façade Nord E 1 : 250 Façade Sud E 1 : 250
Façade Nord F a ç a d e O u e s t Façade Sud Fa ç a d e E s t Chemin des Grands Prés Route de la Tour Chemin des Grands Prés Route de la Tour p = 3 0 ° p = 2 8 ° RDC 418.69 Niveau 1 420.45 Niveau 2 423.03 Niveau 3 425.91 Niveau 4 427.61 Faitage 432.28 Nouvelles fenêtres selon celle employées sur la façade Nord Nouvelles portes de garage avec portail Garde-corps vitré Echelle Feuille : Date : A gence : www.canel-geometre.com contact@canel-geometre.com GEOMETRE- E XPERT diplomé par le gouvernement N° 4438 CANEL 1 : 100 / 13 DP 5.3 Façade Ouest -Projet 29/07/2022 Thonon-les-Bains Stéphane Nicolas -Géomètre-Expert Ferme à Massongy 7 DP 32 Ferme à Massongy* Montriond (2021) N Façade Sud E 1 : 200 Coupe axonométrique transversale Coupe axonométrique longitudinale

*Modélisation du bâtiment et projet de modification de façade avec dépôt de DP (Demande Préalable)

33

Eglise de Margencel

Margencel (2021)

Relevé architectural de l'Eglise de Margencel lieux 1/50 e

architectural de l'Eglise de Margencel orthophoto - Choeur

Façade Coupe transversale E 1 : 250

Relevé architectural de l'Eglise de Margencel

CONSEILLER VALORISER GARANTIR CANEL GÉOMÈTRE - EXPERT

Etat des lieux

Façade Est Echelle : 1/50 e

Façade Est E 1 : 250

Etat des lieux

CONSEILLER VALORISER GARANTIR CANEL GÉOMÈTRE - EXPERT

Façade Ouest E 1 : 250

Façade Ouest - Entrée Echelle : 1/50 e

CANEL GÉOMÈTRE - EXPERT

CONSEILLER VALORISER GARANTIR

34
N

Relevé architectural de l'Eglise de Margencel

Etat des lieux

Coupe longitudinale

Relevé architectural de l'Eglise de Margencel

Coupe longitudinale E 1 : 250

Echelle : 1/50 e CONSEILLER VALORISER

Etat des lieux

Façade Nord

Echelle : 1/50 e

Façade Sud E 1 : 250 1 250 0 7.5 m 2.5 5

GARANTIR
EXPERT
CONSEILLER VALORISER
CANEL GÉOMÈTRE -
35
CANEL GÉOMÈTRE - EXPERT

Turn static files into dynamic content formats.

Create a flipbook
Issuu converts static files into: digital portfolios, online yearbooks, online catalogs, digital photo albums and more. Sign up and create your flipbook.