Portafolio Arq Lorena S. Tafur

Page 1

P o r t a f o l i o

A r q u i t e c t ó n i c o

L o r e n a S á n c h e z T a f u r

LORENA SÁNCHEZ TAFUR

Arquitecta con énasis en Urbanismo y Planeación. Educación complementaria en Diseño de la comunicación visual. Tecnólo a en Desarrollo de proyectos arquitectónicos.

Interesada en el campo de el trabajo social y cultural con comunidades. Ve la arquitectura como una herramienta parasolucionarproblemáticassociales.

FORMACIÓN ACADÉMICA:

2016 – 2020

2019

2013 - 2026

UNIVERSIDAD P. JAVERIANA

Arquitectura

UNIVERSIDAD IBERO MÉXICO

Placemakin yCiudadanías

SustentablesenBarriosPopulares deLatinoamérica

SENA CENTRO DE LA CONSTRUCCIÓN Tecnólo aenProyectosde ArquitecturaeIn eniería

o y e c t o s

C o n t e n i d o

Urbanización

San Nicolás

Casita Belén Fundación

Obeso Mejía

Placemaking y Ciudadanías Sustentables

Plan Maestro Buenaventura

P
r
02 03 Urbanismo Urbanismo
Urbanismo
04
Urbanismo

Jardín Botánico Cali

Entrada U. Javeriana

Concursos

Casa Minga Solar Decathlon

Concursos

Comfandi Calima

ArquitecturaIluminación

05 06 07
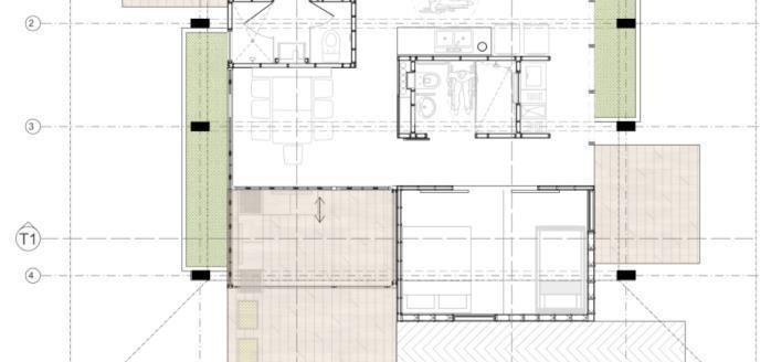
Casa LFZ San Antonio
08 Arquitectura
Hotel Lago Grande Cabañas Cristo Rey

01

Urbanización San Nicolás

Este proyecto ubicado en el barrio San Nicolás de Cali, conocido por su carácter industrial, busca reactivar la vida en el sector mediante viviendas,espaciopúblicoycomerciobarrial. Lasviviendasoptimizanluznaturalyventilación, mientras que el parque central orece un área verde para recreación. Las áreas comerciales estimulanlaeconomíalocal.

Trabajamos con achadas patrimoniales y bode as, revitalizando el patrimonio histórico delbarrio.Eldiseñomejoralacalidaddeviday promueve la cohesión social, respetando la identidadculturaldeSanNicolás.

02

Fundación Obeso Mejía

Esteproyectonacedelanecesidaddecrearun espacio público se uro y aco edor para niños de la primera inancia, en colaboración con la Fundación Obeso Mejía. Se empleó la metodolo ía de urbanismo táctico para desarrollarintervencionestemporalesyflexibles que permitieran una rápida implementación y adaptaciónalasnecesidadesdelacomunidad.

El proyecto se divide en dos etapas. La primera etapa consiste en el diseño de la ruta que los niñosdebense uirdesdelaentradadelaCasita Belénhastaelparque/canchadelacalle39.

La se unda etapa se enoca en el diseño adecuado del espacio destinado a la primera inancia, ase urando que sea un entorno estimulante y se uro para el desarrollo y la recreacióndelosniños.

03

Plan Maestro Buenaventura

Plan Maestro Inte ral para la ciudad de Buenaventura, enocado en la revitalización urbana sostenible y la no desplazamientodeloshabitantes.Esteproyectoincluyela optimización de inraestructuras urbanas, la promoción del crecimiento económico y la preservación de recursos naturales.

Elplanincorporasolucionesavanzadasparala estiónde residuosyelsuministrodeener íalimpia, arantizandola resilienciaurbana.Atravésdeunacolaboraciónestrecha conlasautoridadeslocalesylaparticipacióncomunitaria, el proyecto se alinea con las necesidades y aspiraciones de los residentes, ase urando un enoque inclusivo y equitativo.

Placemaking y Ciudadanías

Sustentables en Barrios

Populares de Latinoamérica

Durante un intersemestral en México, se realizó un proyecto de Placemakin con el objetivo de transormar los espacios públicos en lu ares de destino, encuentro y socialización. Este enoque práctico, basado en la participación comunitaria, empodera a la sociedad para revitalizar la vida pública y construir democracia local desdeelespaciourbano.

El proyecto omentó la colaboración entre diversos actores, incluyendo residentes, autoridades locales y rupos comunitarios, para identificar lu ares clave y desarrollar intervenciones creativas que mejoran la experiencia urbana y ortalecieron el sentido de pertenencia de la comunidad. Esta iniciativa no solo promoviólaparticipaciónciudadanayeldesarrollolocal, sinoquetambiénproporcionóunavaliosaexperienciaen diseño participativo y creación de espacios públicos inclusivosyvibrantes.

03

04

Primer puesto

Concurso 4to Taller Vertical

UbicadoenlaUniversidadJaverianadeCaliyesta propuestabuscarediseñarpartedelparqueadero y la entrada peatonal de la universidad. El diseño tieneencuentalasnecesidadesdelosestudiantes y las diversas actividades que se eneran tanto dentrocomo ueradelcampus.

El proyecto también incluye la creación de espacios públicos y servicios adicionales que beneficien a las personas que transitan por la comuna22.Elobjetivoesmejorarlaaccesibilidady uncionalidad de estas áreas, creando un entorno más aco edor y eficiente para estudiantes, personalyvisitantes.

Entrada U. Javeriana 04

Primer puesto

Concurso 5to Taller Vertical

Ubicado en el Jardín Botánico de Cali, esta propuesta busca orecer a los habitantes y visitantes un espacio de esparcimiento tranquilo, se uro y amiliar. El diseño está orientado a omentar el reconocimiento y la experiencia de valoresrelacionadosconelbuenvivir,atravésdel contactodirectoconlanaturaleza.

El objetivo principal es despertar en los visitantes uninterésproundoporelmundove etalyorecer una experiencia enriquecedora con la naturaleza. El proyecto incluye senderos educativos, áreas de descanso y zonas interactivas que invitan a explorar y apreciar la biodiversidad local, promoviendo una conexión más íntima y conscienteconelentornonatural.

05

Primer puesto

Concurso Internacional Solar Decathlon

En el marco del concurso Solar Decathlon Latin America, un equipo interdisciplinario unió uerzas para crear un prototipo de vivienda de interés social, ubicado principalmente en la ciudaddeBuenaventura.

Este prototipo, diseñado y construido por los propiosdiseñadores, uncionaalcienporciento con ener ía solar y está orientado a mejorar la calidaddevidadesushabitantes.

La casa inte ra tecnolo ías sostenibles y soluciones innovadoras, demostrando que es posibleorecerviviendasasequiblesyecoló icas que responden a las necesidades de las comunidadesvulnerables,promoviendounestilo devidamássostenibleyautosuficiente.

06

Eco Parque Cristo Rey

Arquitectura e iluminación

El Proyecto Eco Parque Cristo Rey representa una innovadora intervención urbana con un enoque holístico en diseño y sostenibilidad. Concebido como un espacio verde multiuncional, este proyecto se basaenprincipiosdeplanificaciónurbanaecoló ica ydiseñoambientalmenteconsciente.

El diseño del Eco Parque Cristo Rey se centra en la restauración de ecosistemas locales y la creación de hábitats naturales diversificados. Se implementan estrate ias de paisajismo para maximizar la biodiversidad y omentar la resiliencia ambiental. Además, se incorporan tecnolo ías de estión de recursos,comosistemasderecolecciónytratamiento de a uas pluviales, ener ía renovable y estión de residuos.

Comfandi Calima

Iluminación y arquitectura

06

El proyecto de iluminación y arquitectura en el Hotel Calima Lake Resort que se concibe como un lu ar para vivir una rata y tranquila experiencia en un entorno excepcional. La iluminación, coherente con esta línea, se diseñó para proporcionar las herramientas necesarias parapotenciarlarelajaciónyeldescansodelos huéspedes.

Atravésdeundiseñocuidadosoyunaselección adecuada de luminarias y controles, se creó un ambienteaco edory uncionalquecontribuyea mejorarlaexperienciadelosvisitantes,tantoen elinteriorcomoenelexteriordelhotel.

08

Casa LFZ

San Antonio

Esteproyectodediseñodeunacasaenelbarrio

San Antonio de Cali cumple con los parámetros establecidos por el Plan Especial de Protección del Patrimonio. Implementa empates volumétricos con las construcciones vecinas paramantenerlacoherenciaestéticayrespetar elcontextoarquitectónicodelbarrio.

Además, se confi uran aleros y zócalos que permiten una adecuada lectura del entorno, proporcionando continuidad de len uaje a los elementosarquitectónicospropiosdelazona.

El diseño se inspira en la identidad histórica y cultural del barrio San Antonio, buscando inte rarse armoniosamente con su entorno y contribuirasupreservaciónyvalorización.

Hotel Lago Grande Cabañas

EldiseñodecabañasparaelHotelLa oGrande Campestre se caracteriza por su enoque sostenible y respetuoso con el medio ambiente. Se utilizaron tecnolo ías renovables y sistemas de recolección de a uas para arantizar la eficienciaener ética.

El uso de paneles solares satisacer las necesidades ener éticas de las cabañas, mientras que el consumo inteli ente de ener ía contribuye a reducir el impacto ambiental y los costosoperativos.

08
Archivodi ital

Turn static files into dynamic content formats.

Create a flipbook
Issuu converts static files into: digital portfolios, online yearbooks, online catalogs, digital photo albums and more. Sign up and create your flipbook.
Portafolio Arq Lorena S. Tafur by Lorena Sánchez Tafur - Issuu