REFERENTES DE ALAMEDAS

Page 1

REFERENTES

ALAMEDAS

P A S E O F L U V I A L

A T O S G E N E R A L E S

Ubicación

HAMBURG,ALEMANIA 2019

Año de construcción Arquitecta

Zaha Hadid

D

O N C E P T O

PROTECCIÓN CONTRA INUNDACIONES

río Elba entre St. Pauli Landungsbrücken

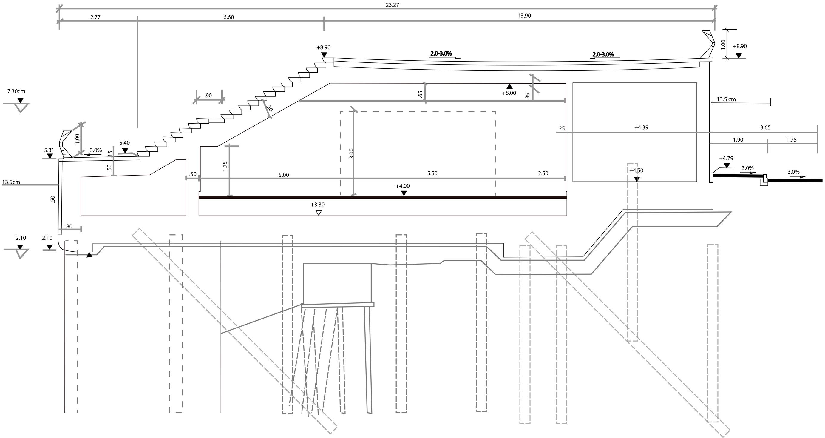
Ha raíz de las inundaciones por marejadas ciclónicas en febrero de 1962 que causaron 315 muertes y destruyeron las casas de 60.000 residentes, entre 1964 y 1968 Hamburgo construyó una barrera a orillas del Elba en Niederhafen para proteger la ciudad contra inundaciones hasta una altura de 7,20 m sobre el nivel del mar.

C
Baumwall

R C U L A C I Ó N

EXTERIOR A INTERIOR

C I
INTERIOR A EXTERIOR

A R A C T E R I S T I C A S Y M O V I L I A R I O S

La estructura lineal está a 8,60 m sobre el nivel del mar en su sección este y 8,90 m sobre el nivel del mar en su sección oeste para proteger a la ciudad de las máximas marejadas invernales y las mareas altas extremas.

MOBILIARIOS

SECCIÓN ESTE

MOVILIARIOS

SECCIÓN OESTE

Amplias escaleras que se asemejan a pequeños anfiteatros están talladas dentro de la barrera de protección contra inundaciones en los puntos donde las calles de los barrios adyacentes se encuentran con la estructura;

C

SECCIÓN ESTE

A R A C T E R I S T I C A S Y E Q U I P A M I E N T O

EQUIPAMINETO

ANFITEATRO

Al este, el puerto deportivo del puerto crea una atmósfera más íntima con una larga rampa junto al anfiteatro que conduce a los visitantes hasta la orilla del agua.

EQUIPAMIENTO

SECCIÓN O

el puerto deportivo crea una atmósfera más íntima con una larga rampa junto al anfiteatro que conduce a los visitantes hasta la orilla del agua.

RESTAURANTE

a zona al oeste tiene una escala mayor y ofrece amplias vistas río abajo de toda la actividad de navegación en el río.

Un restaurante de tres pisos y dos quioscos de comida están integrados dentro de la estructura de protección contra inundaciones. El último piso del restaurante se eleva sobre la escalera adyacente y ofrece a los comensales vistas panorámicas del Elba.

C

L A N T A Y C O R T E S

P

N A M I E N T O

N C I

La alameda tiene una función principal que es evitar las inundaciones, pero tambien está integrada con la ciudad, por lo que sirve como estacionamiento ya que en sus alrededores podemos encontrar empresas de trabjo como fabricas y residencias

F U
O

C T I V I D A D E S

En las actividades podemos encontrar :

disfrutar de la vista caminata comer socializar

A

P A S O P E A T O N A L

R T E C O N S T R U C T I V O

C O
P A R Q U E L I T T L E I S L A N D

Ubicación

NEWYORK,ESTADOSUNIDOS

A T O S G E N E R A L E S

Año de construcción Arquitectos

Heatherwick Studio

D
2021

O N C E P T O

TULIPANES

El concepto de parque-muelle se inspiró en las pilas de madera sobre el agua. Y el diseño de “las macetas” simula las formas que se generan cuando el hielo las cubre.

C

parque flotante sostenido por 132 pilotes de e tulipanes.

A R A C T E R I S T I C A S

C
” . El paisajista imaginó a Little Island como “ una hoja sobre el agua ” .

C C E S O S

El acceso es a través de dos 'pasarelas' accesibles y está orientado en una continuación de la cuadrícula de la calle.

A
ACCESO ACCESO

R C U L A C I Ó N

En el interior, los caminos serpentean a través de los árboles y las áreas de descanso cubiertas de hierba hacia vistas ocultas e inesperadas

CIRCULACIÓN OCULTA CIRCULACIÓN GENERAL C I
01 EL PATIO GENERAL CESPED PEINCIPAL ANFITEATRO MIRADOR NOROESTE MIRADOR SUROESTE EL GLANDE MIRADOR DUROESTE 1. 2. 3. 4. 5. 6. 7. 02 03 04 05 06 07 05 01 02 03 04 06 07 LEYENDA CIRCULACIÓN OCULTA E S P A C I O S
01 02 03 04 05 06 07 05 01 02 03 04 06 07 FERIA YVENTA DE DULCES ENTRE OTROS PICNIC TEATRO MIRADOR MIRADOR JUEGOS PASEO 1. 2. 3. 4. 5. 6. 7. LEYENDA CIRCULACIÓN OCULTA A C T I V I D A D E S

R O C E S O

P

R O C E S O

P

L A N T A

P

A

R T

PUENTE SUR

01 C O
E A -
02 03 04
El patio de la escuela instalaciones de apoyo a los actores : vista del suroeste 1. 2. 3. 4.
01 02 03 04 C O R T E BB EL AMP MIRADOR NOROESTE MIRADOR SUROESTE SÓTANO 1. 2. 3. 4.

L Z A D O

A

E T A L L E S C O N S T R U C T I V O S

D

O S

T I P
V I C T O R I A S T R E E T H A C I A E L R I O

A T O S G E N E R A L E S

Ubicación

HAMILTON,NUEVAZELANDA 2018

Año de construcción Arquitectos

Edwards White Architects

D

O N C E P T O

INTERACCIÓN

el diseño busca establecer un parque que tenga dos funciones. En primer lugar, como un destino donde la gente puede detenerse, interactuar y disfrutar de las vistas del río. En segundo lugar, como un elemento que une los diferentes niveles de la ruta del río inferior, el paseo marítimo superior y la calle principal.

C

El parque atrae cuidadosamente al usuario desde la calle Victoria de arriba y atraviesa la diferencia de nivel de 28 metros para conectarse con la ruta del río inferior.

C A R A C T E R I S T I C A S

Un anfiteatro en terrazas ha sido cuidadosamente calculado para asegurar un gradiente de menos de 1:20 evitando la necesidad de pasamanos.

Los descansos de las rampas se integran como asientos en las terrazas proporcionando lugares para que el público se siente y disfrute del río desde diferentes puntos de vista.

R C U L A C I Ó N

C I

R E A S V E R D E R

Á

A C T I V I D A D E S

Las activiadades que se realizan

es:

socializar venta de comida siembra de vegetales ferias

A L R R E D E D O R E S

Se encuentra con un Hotel, el HOTEL HAMILTON , QUE CUENTA CON UN RESTAURANT INTERNO

L A N T A

P

O V I L I A R I O

M

Turn static files into dynamic content formats.

Create a flipbook
Issuu converts static files into: digital portfolios, online yearbooks, online catalogs, digital photo albums and more. Sign up and create your flipbook.