Lohith_Architectural Portfolio_2023

Page 1


folio 2023

Walk through link

The shape or configuration of a building. Form and its opposite, space, constitute primary elements of architecture. The reciprocal relationship is essential, given the intention of architecture

The placement of a building form in relation to its immediate site and neighboring buildings is another crucial aspect of this form/space relationship.

Buildings are proportioned according to the industry standard unit size of the primary mass-produced building materials employed.

The idea was to create a modern concept of Urban Markets rooted in all the ideologies of traditional concepts of design. The nature state of system changes overtime.

Aerial View

Master Plan

Drive-in
Theatre
Massing
Southern Elevation

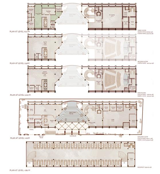
Building Drawings

Resolution and transmitting behaviour : 6069 pixels (total active façade areas: 2550 m2

High resolution areas: 1750 m2

Low resolution areas: 800 m2)

Luminace : High used under twilight conditions and at night

Visualizations

Interconnection of Tower and mall

Site surrounding

South: Elephant gate street

North: Tamil Nadu board

East: Railway lines

West: Housing Board

Concept design

Plaza is derived from mapping of the pattern of growth 01 02 03 04

Transit Oriented Development

Growth pattern

Built form is derived from the arrangement of golden ratio

Circulation Through Site

1. Overall veicles flow

2. Spince Vehicles flow

3. Pedestrians flow

4. Tower vehicles flow

5. Mall vehicles flow

6. Terminal Vehicles flow

Spine Garden

Second Level

Third Level

Mall has two entries one from ground floor and other through fly over bridge to the second floor. The roof of terminal serves its pupose as cycle track and also skylight for the terminal.

Northern Elevation
Eastern Elevation

Site Sectional Isometric

Section Through Spine Netweork Sections

Spine garden with gallery and bicycle stations
Spine subway to terminal drop o
Spince gardens and terminal entrance/Exit
Spine subway to terminal-Parking drop o

01 Site

7,500 sq.ft

02 Volume

Proposed G+2 volume to reponds vasthu

03 Concept

Modular openings according to the vasthu

04 Design

Structural elements transforms to design elements.

05 Fenestration

Fenestration are designed so as to facilitate direct sunlight and vantilationinto the structure.

House

Section & Elevation

Concept design & Massing Study

Self healing concrete
Green roof 01. Vegetation
Growing Medium
Filter membrance
Drainage
Root barrier
Formular XPS
Waterproof membrance
Gemini Fly over

Proffessional

Zone

State: Telangana

City: Khajaguda , Hyderabad

Country: India

Landuse Development

Future Vision

Urban Interventions

3D Walk Through link: https://www.linkedin.com/feed/update/urn:li:activity:6982746757650673664/

Design Evolution

Structure Concepts

Turn static files into dynamic content formats.

Create a flipbook
Issuu converts static files into: digital portfolios, online yearbooks, online catalogs, digital photo albums and more. Sign up and create your flipbook.