Portfolio - Lohane MONNIER

Page 1

PORTFOLIO

4ème année en Architecture Intérieur, Scénographie d’Exposition/Théâtre et Décor de Cinéma.

MON CV

Lohane MONNIER

75017 - Paris

07 86 40 26 26

lohanemonnier2@gmail.com

FORMATION

- Travail en équipe

- Créative

- Rigoureuse

ÉCOLE HOURDÉ / ESAT - PARIS ( École Supérieure des Arts et Techniques)

4ème année en Architecture Intérieure, Scénographie d’Exposition, Théâtre et Décor de Cinéma

Cursus en 5 ans

Titre Préparé : Architecte d’Intérieur - Designer d’Espace

Inscrit au RNCP (Répertoire National des Certifications Professionnelles) - Niv II Reconnue par le CFAI (Conseil Français des Architectes d’Intérieur)

LYCÉE JEAN MONNET - SAINT-ÉTIENNE (42)

CONCOURS

Concours inter-écoles pour la scénographie de la pièce «collette B.» de Joséphine Serre, en partenariat avec La CollineThéâtre National.

COMPÉTENCES LINGUISTIQUES

- Anglais : Niv. B1

- Espagnol : Niv. A2

CENTRES D’INTÉRÊT

- Street-art

- La couture

- Le dessin : fusain/bic/feutre...

- Peinture : peinture a l’huile/ acrylique

- Le cirque : acrobatie/jonglage

- Les voyages : Vietnam/Etat-Unis/ Canada/Tanzanie/Espagne/Portugal...

MES +

BAFA : spécialité 3 - 5 ans

2022

BAC STD2A - Mention assez bien

EXPÉRIENCES PROFESSIONNELLES

LIVE NATION - PARIS Contrat saisonnier / 3 jours

Staff Contrôle d’accès - Entrée Public

MINH INVEST - PARIS Stage / 2 mois

Aménagement et rénovation d’intérieur. Création de plans et de visuel 3D Suivi de chantier

LECLERC - FIRMINY (42)

CDD / 5 mois

Préparatrice de commandes au Drive.

ACCUEIL DE LOISIRS - FRAISSES (42)

CDD / Vacances scolaires + Mercredi

Animatrice (enfants de 3 à 10 ans).

BABY-SITTING / AIDE AUX DEVOIRS / FILLE AU PAIR

CDD

Baby-sitter (enfants de 6 mois à 13 ans) / Aide aux devoirs niveau primaire et 6ème.

VERONICA GAGLIO / ARTISTE PEINTRE - SAINT-JUST-MALMONT (43)

Stage / une semaine

Découverte et observation du métier artiste peintre / Initiation à la peinture et à la poterie.

PROPYPLAST - RETOURNAC (43)

CDD / 1 mois

Employé polyvalent : Test des produits au laboratoire / classement.

COMPÉTENCES INFORMATIQUES

- Archicad

- Autocad

- Sketchup

- Lumion

- Twinmotion

- Indesign

- Premiere pro

- Illustrator

- Photoshop

Depuis 2020 2017 2021
Depuis 2017 2016
2021-2022 2019-2021
- Pack Office
21 ans / Permis B/ Permis bateau fluvial

PARTIE 1

SCÉNOGRAPHIE

- Mauvaises Filles !

- Apocalypse

- Vitrine d’une assemblée chrétienne

PARTIE 2

ARCHITECTURE D’INTÉRIEUR

- La source de l’artisanat

- Frip’show

PARTIE 3

DÉCOR CINÉMA

- Les trésors du pharaon

- Clip vidéo

SOMMAIRE

SCÉNOGRAPHIE

PARTIE
1

MAUVAISES FILLES !

Dans les années 50, années après-guerre, la plupart des enfants cherchent à vivre leur enfance perdue : danser, courir, sortir… afin de vivre à nouveau pleinement leur vie. Mais quand les filles ont commencé à adhérer à ces mouvements de liberté, cela ne plaisait pas, et surtout pas à leur père. Pour les « remettre dans le droit chemin », la seule parole d’un père suffisait alors à les faire enfermer dans des couvents. Désignées comme des DÉVERGONDÉES, DÉLINQUANTES, DÉVIANTES, DÉBAUCHÉES, FUGUEUSES, INDOMPTÉES, INSOUMISES, INSOLENTES, INNÉDUCABLES, INCORRIGIBLES, INDISCIPLINÉES, IRRÉCUPÉRABLES, PERDUES, PERVERSES, PROSTITUÉES, REBELLES, RÉVOLTÉES, SCANDALEUSES, VICIEUSES, VOLEUSES, VIOLENTES, ces filles étaient enfermées pour qu’on en fasse de bonnes personnes, à savoir de bonnes épouses, de bonnes mères et de bonnes travailleuses.

De nos jours, les méthodes de réinsertion ne semblent pas avoir évolué. L’agencement d’un couvent et d’un centre éducatif fermé reste similaire comme si les filles des années 50 à nos jours avaient été enfermées entre les mêmes murs et les mêmes grillages. Dans la pièce («Mauvaises filles» de Sonia Chiambretto), un mur est décrit, un mur sur lequel toutes les filles « emprisonnées » ont gravé leur nom. Ce mur empêche ces filles d’avancer et de suivre leur chemin. Elles se retrouvent bloquées par ce seul et même mur qui les prive de liberté. Une fois hors de ces murs, ces filles cherchent via la vitesse (que ce soit à cheval, en voiture ou tout simplement en courant) à fuir leur souffrance. Elles suivent l’horizon pour en trouver l’infini.

Dans ces centres éducatifs, les filles sont traitées comme des poupées miniatures que la société cherche à manipuler pour en faire des filles dites «normales». La perte de confiance de leur famille, le rejet de toute la société et la méchanceté des éducateurs et des religieuses contribuent à ce que, pour elles, toute personne extérieure devient un cauchemar. Elles se retrouvent ainsi dans des situations insurmontables où tout leur semble démesuré de par leur taille d’enfant, mais aussi de par le nombre de personnes qui essaient de les contrôler et de supprimer leur liberté. Les oppresseurs sont alors disproportionnés par rapport aux comédiennes pour accentuer l’effet de soumission et de contrôle, que ce soit physique ou mental.

Les filles peuvent jouer et interagir entre elles. Au fur et à mesure qu’elles gagnent en puissance, les mains des oppresseurs vont être amenées à rétrécir jusqu’à être à la même échelle que les filles.

Photo maquette : 1/100 TROISIÈME SCÈNE (P 9) QUATRIÈME SCÈNE (P 13-14) DERNIÈRE SCÈNE (P 45) Dessin

Lien vidéo : https://www.youtube.com/watch?v=yWR1Td-iIDg

L’un des plus grands stylistes de notre époque est Marc Jacobs ayant la réputation de casser les codes par ses tenues non genrées sans distinction de sexe et où les accessoires principalement utilisés par les femmes sont portés par les hommes. Ayant occupé la fonction de Directeur Artistique chez Louis Vitton pendant des années, il est aussi un styliste ayant une renommée internationale. Marc Jacobs est une personne décrite comme joyeuse, décontractée et chic.

Sa dernière collection était en rapport avec notre façon de nous vêtir après le Covid. En effet, le Covid avec ses successions de confinement a entraîné un changement de nos tenues, plus orientées vers le confort. Cette collection se concentrait sur cette notion de confort par des manteaux larges et réhaussés d’imprimés et d’amples capuches, le tout non genré. La scénographie du défilé devait nous ramener dans le premier confinement qui a plongé Paris dans un désert total et où la nature a repris ses droits. Le décor que nous avons imaginé est un mélange entre le métro parisien (l’un des plus gros moyens de mobilité à Paris) et le désert. Les mannequins débutent leur défilé par un escalier mécanique qui les amène sur les quais du métro. Quatre chemins se présentent alors à eux avec des directions rappelant celles du métro parisien. Des dunes entourent le podium pour immerger le défilé dans un désert.

Lien vidéo : https://youtu.be/E3mpi-0r0rA

LA VITRINE

L’assemblée chrétienne des Épinettes est une association évangélique qui se situe au 12 rue des Épinettes dans le 17ème arrondissement de Paris. Les stations de métro les plus proches sont Guy Mocquet et Brochant avec un accès au tram T3b, ce qui rend ce lieu facilement accessible. L’assemblée chrétienne accueille une centaine de personnes par semaine. C’est une salle ouverte destinée à l’accueil et à l’enseignement. Ce lieu n’est ouvert que les après-midis et le dimanche matin lors de la messe.

Cet endroit est la colonne vertébrale de la communauté.

Les membres de l’assemblée chrétienne souhaitent rendre leur lieu plus interactif et convivial pour favoriser les liens avec les riverains et leur apporter plus d’unité et de soutien. Refaire la vitrine de l’association permettrait d’améliorer la vie du quartier mais surtout de donner envie d’en savoir plus sur ce lieu et de faire découvrir les livres qui s’y trouvent.

Ce lieu se divise en deux espaces : la partie de gauche ouverte à tous pour discuter et s’entraider et la partie de droite plus confidentielle et intime. La partie gauche de la vitrine changera au fil des saisons tandis que la partie droite sera permanente.

ETAT DES LIEUX

PROPOSITION CHOISIE :

PROJET ABOUTI :

- Le bois donne un côté chaleureux et convivial - Le blanc illumine la vitrine - Les plantes rappellent la maison pour se sentir comme chez soi

PARTIE ARCHITECTURE D’INTERIEUR

2

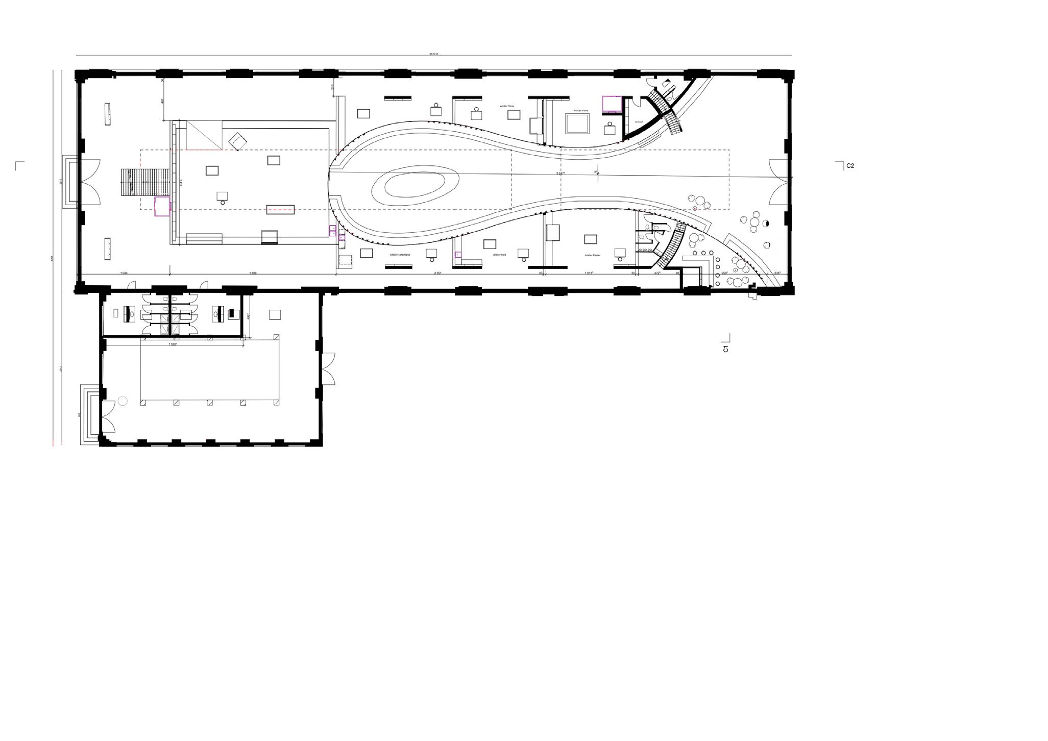
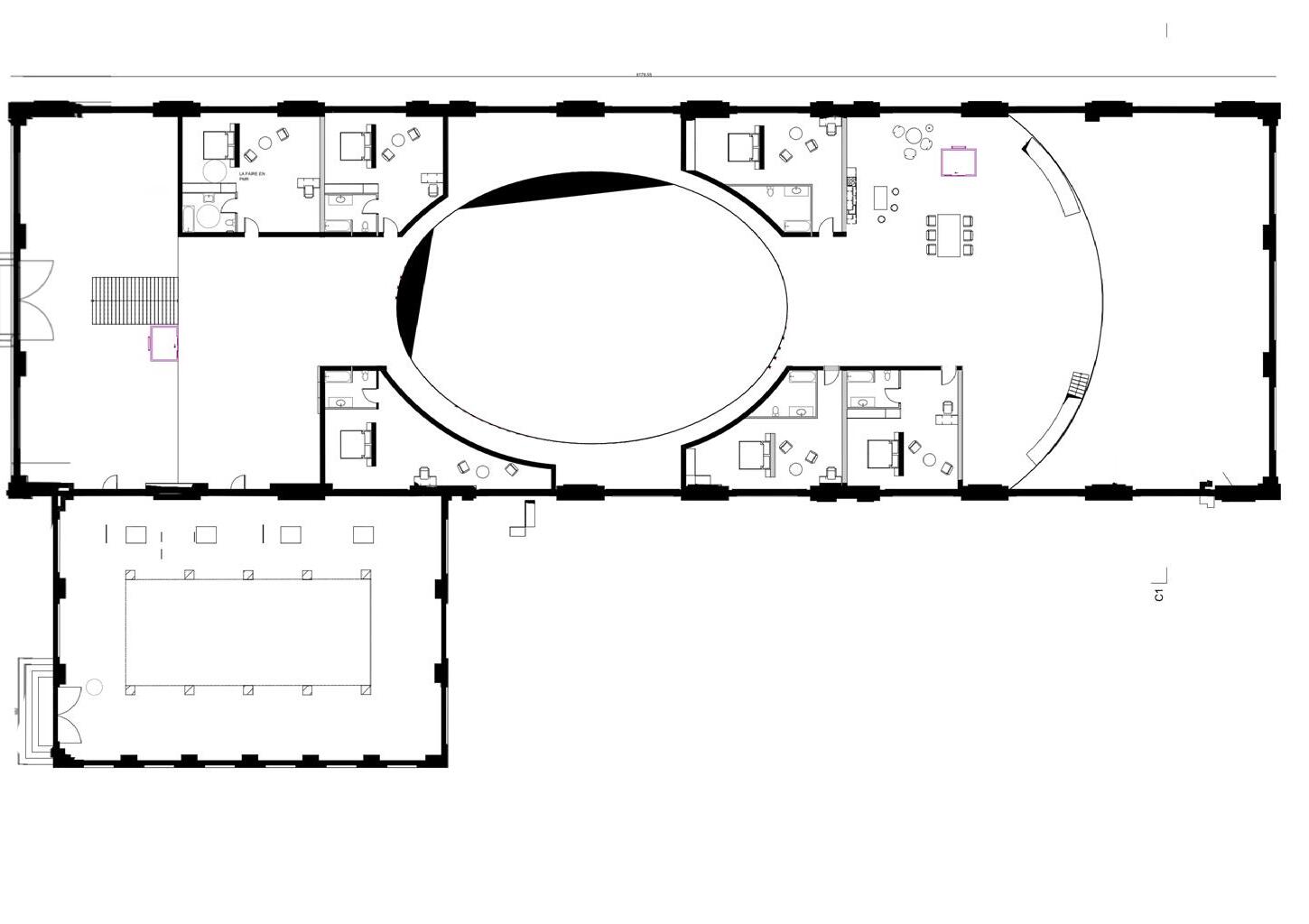
LA SOURCE DE L’ARTISANT

Ce projet porte sur la réhabilitation de l’ancienne réserve d’eau potable : Ivry I en atelier d’artisans avec résidences et showroom, L’objectif principal est de conserver l’essence de cet édifice tout en le transformant en un lieu de vie et de création artistique. L’’inspiration principale vient de l’eau et des effets qu’elle peut produire. L’eau est un élément naturellement, elle peut être apaisante, dynamique, rafraîchissante. Ce projet exploite les effets de l’eau pour créer un espace unique.

Premièrement, le rez-de-chaussée presente un showroom d’artisans locaux. Les visiteurs pourront découvrir et acheter des créations artisanales de qualité tout en profitant de l’architecture unique de l’endroit. L’espace sera constitué avec des formes organiques et fluides, inspirées de l’eau. Les meubles seront conçus avec des matériaux naturels tels que le bois, et le verre, pour créer une ambiance chaleureuse et accueillante. Le showroom sera spacieux et bien éclairé pour mettre en valeur les produits exposés.

Ensuite, Les artisans pourront travailler dans plusieur atelier qui leur sont proposé, tout en ayant la possibilité de rencontrer des clients potentiels dans le showroom situé à moins 80cm des ateliers. Les cloisons en verre créent une sensation d’ouverture et de luminosité, rappelant la transparence de l’eau.

Les matériaux naturels et organiques, la couleur bleue de l’eau, les jeux de lumière, les formes fluides et les cloisons en verre sont autant d’éléments qui créent une ambiance apaisante et dynamique pour les résidents et les visiteurs

Plan R+1
Plan RDC
40 Étage 3 90 1 R 1 Étage
rCoupe C1
R+1
rCoupe C2 VUE
R+1 VUE
VUE RDC

Aujourd’hui, en France, 60% des Français ont des vêtements qu’ils n’ont jamais portés...

On estime que 17 à 20% de la pollution mondiale des eaux sont dus à l’industrie textile. De plus, le tissu est l’un des seuls matériaux qui ne peut pas être recyclé.

Nous avons donc envisagé de créer un lieu de vente de vêtements de seconde main pour essayer de réduire l’impact écologique de cette industrie. Malheureusement, lorsque nous pensons à «friperie», nous imaginons de grands portants encombrés et débordant de vêtements, des bacs en vrac, des lieux restreints et désorganisés où les potentiels acheteurs sont collés les uns aux autres et ne trouvent jamais rien.

Notre idée est de créer un lieu à la fois chic et vendeur de vêtements de seconde main tout en répondant aux besoins de nos deux commanditaires (Emmaüs et Marine Serre, deux leaders de la prise de conscience écologique) et permettant d’allier luxe, upcycling, chic et vêtements de second main. Notre boutique serait un lieu de rencontre entre : Vêtements d’occasion et chics Défilés et jeunes créateurs.

Le tout en proposant des ateliers permettant d’initier le grand public à l’upcycling. Pour ce faire, nous choisissons de nous implanter dans les anciens locaux de Weber Métaux se trouvant au 66 rue de Turenne dans le 3ème arrondissement de Paris. La taille des locaux, la charpente et le toit vitré sont les principaux éléments qui nous ont fait apprécier cet endroit. Nous avons cherché à créer un lieu fait de courbes et de formes organiques pour représenter la souplesse des tissus. Le podium du défilé fera le lien entre tous les espaces de ce lieu. Le visiteur ira de la friperie au stand des créateurs et à l’atelier de custom, en passant par le photocall et terminant par les cabines d’essayages.

Le coin des créateurs sera un lieu de rencontre et d’inspiration pour le public. Il permettra de mettre en lumière de jeunes créateurs qui ont pour principe l’upcycling.

Pour l’éclairage, nous avons cherché à jouer avec les opacités et les transparences des tissus, en plus d’un éclairage venant souligner la courbe du défilé. Le faux plafond sera réalisé en tissu (type tulle) pour laisser passer la lumière. Une lune en tissu opaque se trouvera au centre de ce faux plafond et permettra de laisser une ombre qui se déplacera en fonction du soleil donnant l’impression que ‘‘Le soleil joue avec la lune’’.

RDC COULOIR DECOMPRESSION ENTREE PUBLIC CABINES FAUX-PLAFOND BALCONS HABITATIONS PRIVEES +1,5m VESTIAIRES PERSONNEL ENTREE PUBLIC FRIPERIE D C D C A B A B
COUPE AA SALLE D'ARCHIVES 3.5 2.4 HSP +3,5m HSFP +3,9m HSP +3,4m 5.0 2.4 0.5 6.7 NGF +0m HSP +2,5m COUPE BB SALLE RESTAURANT VESTIAIRES PERSONNEL HABITATIONS COUPE AA 5.0 25.1 ENTREE STOCK FRIPERIE COUPE CC

PARTIE

DÉCOR DE CINÉMA

3

Les trésors Perdus du pharaon

Décor pour la représentation cinématographique de la bande dessinée «La fille du professeur» d’Emmanuel Guibert et Joann Star.

Touthmosis, Méphitée, Alcala sont trois enfants qui n’ont pas vu leur père Imothep IV depuis trente siècles. Un jour alors qu’Imothep avait bu trop de thé, il s’évanouit et ils se retrouvèrent tous ensemble, le tout dans un décor coincé entre deux époques : égyptienne et victorienne. On va donc mélanger : Salon victorien et chambre mortuaire égyptienne

Parquet et calcaire

Canapé NAPOLÉON IIl et hiéroglyphes

Un canapé se trouvera au centre de la pièce sur une tournette offrant ainsi un point du vue à 360° dans le but de créer un mouvement en arrière plan des personnages. Sur les murs, on pourra lire l’histoire d’Imothep lV comme un hommage à sa vie antérieure.

Photo maquette : 1/100

CLIP VIDÉO

Dans une locomotive, un jeune cheminot entouré de ses collègues dépose sa pelle et interpelle son patron. Quittant la locomotive, il se retrouve ensuite à flâner à travers les wagons du train qui sont en réalité de petits théâtres de notre quotidien. Le premier est un espace vert, le second un bar, une salle de concert et un bal de promo et le troisième une chambre. Au fil de ces théâtres, il sera suivi par ses amis, ses amours et surtout ses emmerdes... Contraint par la pression, notre homme sautera par l’arrière du train pensant pouvoir quitter ce dernier. Il n’en est rien. Il atterrit dans la locomotive qu’il a quittée plus tôt. Comprenant que tout n’est que cycle, il se lance de nouveau dans la traversée du train, plus rapide. Une fois de plus, retour à la locomotive. Comprenant qu’il est condamné à demeurer dans ce train, il entreprend alors de le ralentir en tirant de toutes ses forces sur un grand levier.

Ce qui est mis en scène ici, c’est la fuite en arrière et en contre-courant d’un jeune homme face à la fuite en avant des hommes, ceci via la métaphore du train. Il n’est pas question de savoir où le train (notre société) va, mais plutôt de voir que son rythme effréné ne convient pas à tout le monde et surtout pas à notre héros. Refusant de faire avancer la machine, notre homme n’a pour autant pas l’intention d’enrayer cette dernière, mais seulement de se laisser vivre en jouissant des divertissements de chaque wagon. Mais la contrainte le rattrape. Tentant de la fuir, il comprend qu’il est enfermé dans une boucle le ramenant sans cesse à la besogne. Nous sommes contraints d’échanger notre temps contre un salaire, lequel nous permet de profiter de la vie. La boucle du train symbolise la richesse la plus convoitée : le temps. Comme les aiguilles d’une montre, ce dernier nous ramène, à la fin de journée, au point de départ et nous voilà repartis pour une autre boucle. Entreprenant, si ce n’est d’enrayer, au moins de freiner la machine, ce geste lui est fatal. Pour se libérer du travail, la seule solution est donc de se libérer de son corps.

75017 - Paris 07 86 40 26 26 lohanemonnier2@gmail.com

Turn static files into dynamic content formats.

Create a flipbook
Issuu converts static files into: digital portfolios, online yearbooks, online catalogs, digital photo albums and more. Sign up and create your flipbook.