

![]()



KELLER WILLIAMS OF PRINCETON NEEDED A NEW FUNCTIONAL WORK ENVIRONMENT TO CALL HOME. TO BE ABLE TO CULTIVATE AN ENVIRONMENT THAT MADE THEIR CLIENTS FEEL AT PEACE WITH DECIDING THEIR DREAM HOME.
PROJECT SCOPE: TWO FLOORS
FIRST FLOOR RECEPTION ROOM MEETING ROOM
SECOND FLOOR QUITE OFFICE COLLABORATIVE

























TUCKED IN THE WOODS OF PRINCETON NJ THERE IS A GARDEN HOME WITH LUSH BLOSSOMS. INCORPORATED THE NATURAL ELEMENTS OF THE GARDENS INTO THE INTERIORS OF THE HOME. I DESIGNED THE BREAKFAST NOOK WITH FLOOR TO CEILING WINDOWS OFF THE KITCHEN, WITH A HAND CRAFTED WALL PAPER AND NATURAL FIBERS.
BREAKFAST NOOK, FULL SCOPE PAINT SCHEDULE

CONSTRUCTION MANAGEMENT

PHOTO RENDER OF SPECIFIED WALLPAPER









IN THE HEART OF NEW HOPE PA IS A MIGHTY HOME WITH TWO KINGS THAT OWN THE TOWN, KING LOUIE AND KING GEORGE.... THE POODLES. A NEW BUILD FOR THE GLAMOROUS KINGS AND THEIR OWNERS. THIS PALACE IS FILLED WITH GLAMOUR AND MODERN DESIGN.
SCOPE:
WALL COVERINGS
WINDOW TREATMENTS
CUSTOM CABINETRY
LIGHTING DESIGN
CONSTRUCTION SPECIFICATION BOOK

COUTURE CLOSET, A SPACE FOR OUR CLIENT TO FEEL PAMPERED AND GLAMOROUS.















A COMBINATION OF TIMELESS MATERIALS WITH A MODERN FORM.










NYC NATIVES MOVED TO THE QUAINT TOWN OF LAMBERTVILLE, NJ WITH A BOLD OUTLOOK ON LIFE. THE COUPLE IS NOT SHY OF COLOR AND TEXTURE. THE PROJECT IS IN THE DESIGN DEVELOPMENT PHASE.
LOUNGING LIVING ROOM
SNACKING NOOK DINING SPACE
BAR CONVERSATIONS AT 3RD FLOOR BAR







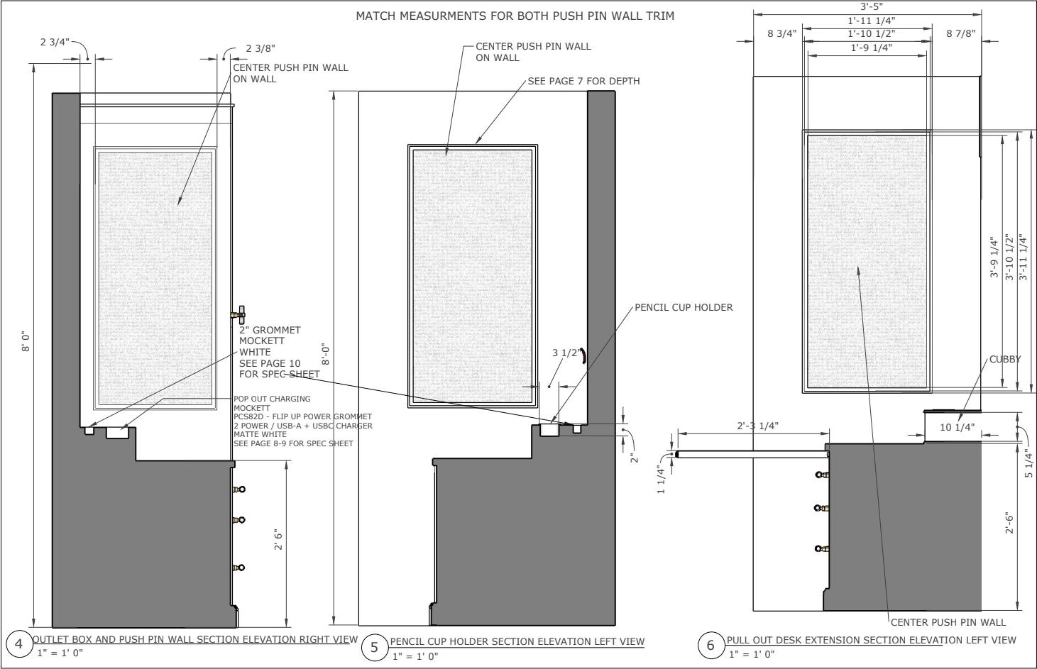
CEO TAKES REMOTE WORKING TO THE NEXT LEVEL WITH A CUSTOM BUILT IN.
SCOPE:
DEN CUSTOM BUILT IN DESK









FALLING IN LOVE WITH FABRICS AND TEXTURES IN MY DESIGNS, I DISCOVERED THE ART OF WEAVING ON A FLOOR LOOM DURING MY SENIOR YEAR OF COLLEGE. IN THIS CLASS, WE EXPLORED VARIOUS STYLES AND PATTERNS. FOR MY FINAL PROJECT, I CREATED A 30”W X 5’L PASHMINA, USING A VINTAGE OVERSHOT PATTERN AS MY GUIDE.




OVERSHOT PATTERN





BEGINNING AS MUD IN THE EARTH AND TRANSFORMING THE CLAY INTO FUNCTIONAL BEAUTY. THROWN ON THE WHEEL, THE CLAY BECOMES A FORM OF SELF-MEDITATION, CREATING SHAPES AND FUNCTIONAL ART. CERAMICS HAS TAUGHT ME THE IMPORTANCE OF NEGATIVE SPACE ALLOWING EACH PIECE TO EXPRESS ITS OWN STORY.







