Urban Planning and Design Portfolio

Page 1


LOGAN VAUGHN

URBAN PLANNING + DESIGN

CONTACT

+513-535-7839

vaughnln@mail.uc.edu

EDUCATION

UNIVERSITY OF CINCINNATI

CINCINNATI, OH

Class of 2026

- Bachelor of Urban Planning

- GPA: 3.9

- Dean’s List (2021-2024)

TAYLOR HIGH SCHOOL

CLEVES, OH

Class of 2021

- GED

- GPA: 3.8

- National Honors Society

- Cheviot Charitable Foundation Scholarship

SKILLS

- Adobe Creative Suite

- ArcGIS Pro

- AutoCad

- Sketch-Up

- Microsoft Office Suite

- Project Management

- Data Research / Analysis

- Effective Communication

- Critical Thinking

- Leadership

PROFILE

I am an ambitious and driven student with hands-on experience in Urban Planning and Design. Through various professional opportunities, I’ve gained valuable insights into working with multidisciplinary teams, including planners, architects, community development and engineers. My passion lies in creating sustainable and well-regulated communities, with a particular interest in public sector work. I am eager to contribute my skills to innovative projects that promote economic development and enhance the quality of life in cities.

WORK EXPERIENCE

City of Kettering

Planning and Development Co-Op

JANUARY 2023 - AUGUST 2024

• Assisted in reviewing and amending the city’s zoning code to align with evolving community needs and regulatory requirements through research, analyzing, and identifying areas for improvement

• Worked with property maintenance to research on body cameras for field inspectors, leading to the department securing the body cameras

• Assisted in administering the CDBG-funded Micro-enterprise Loan Forgiveness Program and Emergency Rental Assistance, working closely with local businesses and residents affected by economic hardship

• Responsible for reviewing and inspecting sign permits and landscape site plans to ensure compliance with zoning regulations and municipal design standards

• Assisted developers facing challenges with their project by creating a conceptual landscape site plan that aligned with zoning requirements and aesthetic goals

• Performed comprehensive data analysis and research to provide community development with a foundation for new grant programs

Vaughn Duebber Farm LLC

Supervisor

JANUARY 2023 - AUGUST 2024

• Oversee the daily activities of the farm, managing a team responsible for planting, harvesting, and maintaining crops

• Coordinated schedules, ensured efficient workflow, and monitored the health and progress of crops to meet production goals

• Responsible for overseeing the maintenance and operation of farm machinery, ensuring all equipment was in top condition for optimal productivity

• Coordinated routine checks and repairs, and implemented preventive maintenance strategies to minimize downtime and extend the lifespan of machinery

• Oversee the daily care and management of the farm’s cattle herd, ensuring their health, nutrition, and overall wellbeing

1 | SOUTH FAIRMOUNT

Neighborhood Study

South Fairmount

South Fairmount will be a vibrant, sustainable community with diverse residents and fostering connectivity, becoming a model of mixed-use development, supporting local businesses and innovation while enhancing neighborhood quality.

VALUES

Equity:

• Access

• Services

• Economic opportunities

Community Connection:

• Social interaction

• Collaboration

• Sense of identity

GOALS

Mixed-use Vibrancy:

• Encourage walkability

• Create Social interaction

Green Infrastructure:

• Manage stormwater

• Promote biodiversity

OBJECTIVES

Placemaking:

• Public spaces

• Creating identity

• Improved streetscapes

Green Roof Requirement:

• Mitigate urban heat island

• Improve stormwater

The Focus Area in South Fairmount is approx. 23.70 acres of land redevelopment along the Mill Creek. This site has the potential in providing many benefits and opportunities for both the community of South Fairmount and the City of Cincinnati.

• Manage stormwater

• Promote biodiversity

• Improve air quality

• Encourage walkability

• Reduce car dependency

• Diversify transportation

• Create Social interaction

• Increase Affordable Housing

• Promote Connection to the Mill Creek

FARMER’S MARKET

2

| COLLEGE HILL Neighborhood Study

College Hill

The Hamilton Avenue BRT will be supported through the densification of the corridor, while simultaneously strengthening the diverse and vibrant communities.

Strategies

Infill:

Development of vacant or underutilized land within a built-up area. Increasing density without expanding the urban footprint into natural land

Upzone:

Decreasing setbacks and adding floors to existing buildings. This is best suited for area’s with a preexisting urban fabric.

Gradate:

Sloping of density from a core area. Areas with gradate development have dense nodes that naturally decrease as they get further from transit

3 D’s

Design (Intentional):

• Improve pedestrian experience

• Unique neighborhood skylines and building makeup

• Infill brown field and greenfield lots

Diversity (Building):

• Allow for non-conforming uses

• Allow more multi-family building structures

Destination (Businesses):

• Improve aesthetics of business districts

• Increase residential density near BRT line

• Encourage small businesses

Understanding The Corridor

FOOTPRINT AMENITIES BLOCK SIZE

The blue and green zones on the map indicates majority of parcels are designated exclusively for residential or commercial purposes

Amenities and services are concentrated in Downtown and seems to weaken more North you travel.

Smaller block sizes are seen throughout the corridor and centered around neighborhood business districts

Credit: Max Adams
Credit: Max Adams

Any barren lots without a demand for development should be green space

A block should have a perimeter no longer than +/- 2,000 feet.

Parcels along Hamilton Ave. should have a high Building Coverage Ratio

18% of housing adjacent to Hamilton Avenue will have >50 units

Rezone residential parcels from single-family to residential-mix

2,200 to 4,000 housing units needed to support the neighborhoods

Eliminate parking requirements around transit stops

Maintain a uniform population density across census blocks

Parcels along Hamilton Avenue should have a Floor-Area ratio of over 1

DESIGN (INTENTIONAL) Creating a pedestrian scaled-space

Using BRT lanes as a pseudo barrier between traffic and pedestrians

Light protected cross-walks

Bi-Directional Model where sidewalk width thins out

DIVERSITY (BUILDING) Allow for horizontal and vertical mix

Constructing high density, mid-rise condominiums on pre-existing structures

DESTINATION

Utilizing alleyways and other disused areas for community driven use

Upzone Single Family homes to Residential Mix

Minimize setbacks along Hamilton Avenue

(BUSINESSES) Taking advantage of available space

Encourage business in the Uptown and Midtown areas

STRENGTHS

- Existing Form Based Code

- College Hill Urban Redevelopment Council

- Main Street and Multi-Family Zone along Hamilton Ave.

- Low Dwelling-Until Vacancy Rate

WEAKNESSES

- Inconsistent Block Sizes

- Large Amount of Surface Parking

- Transportation Costs Constitute a High Income

- No Bike Lanes

OPPORTUNITIES

- Connections to Other Communities

- Growing Population

- Development of a Business District

- Close to Children’s Hospital

THREATS

- Single Family Zoning

CROSSROADS | MASTER PLAN

The Crossroads District of College Hill will be centered by the redevelopment of College Hill Station. Setting a marking point to the start of a more sustainable College Hill.

• 19 Townhomes

• Improved Parking Sites

• 280+ Apartment Space

• 19,000 SF of Retail

• Sidewalk and Roadway Improvements

• BRT Station and BRT Designated Lanes

• Elimination of Street Parking

• Pedestrian Traffic Lights and Increased

Pedestrian Safety

BRT ROUTE

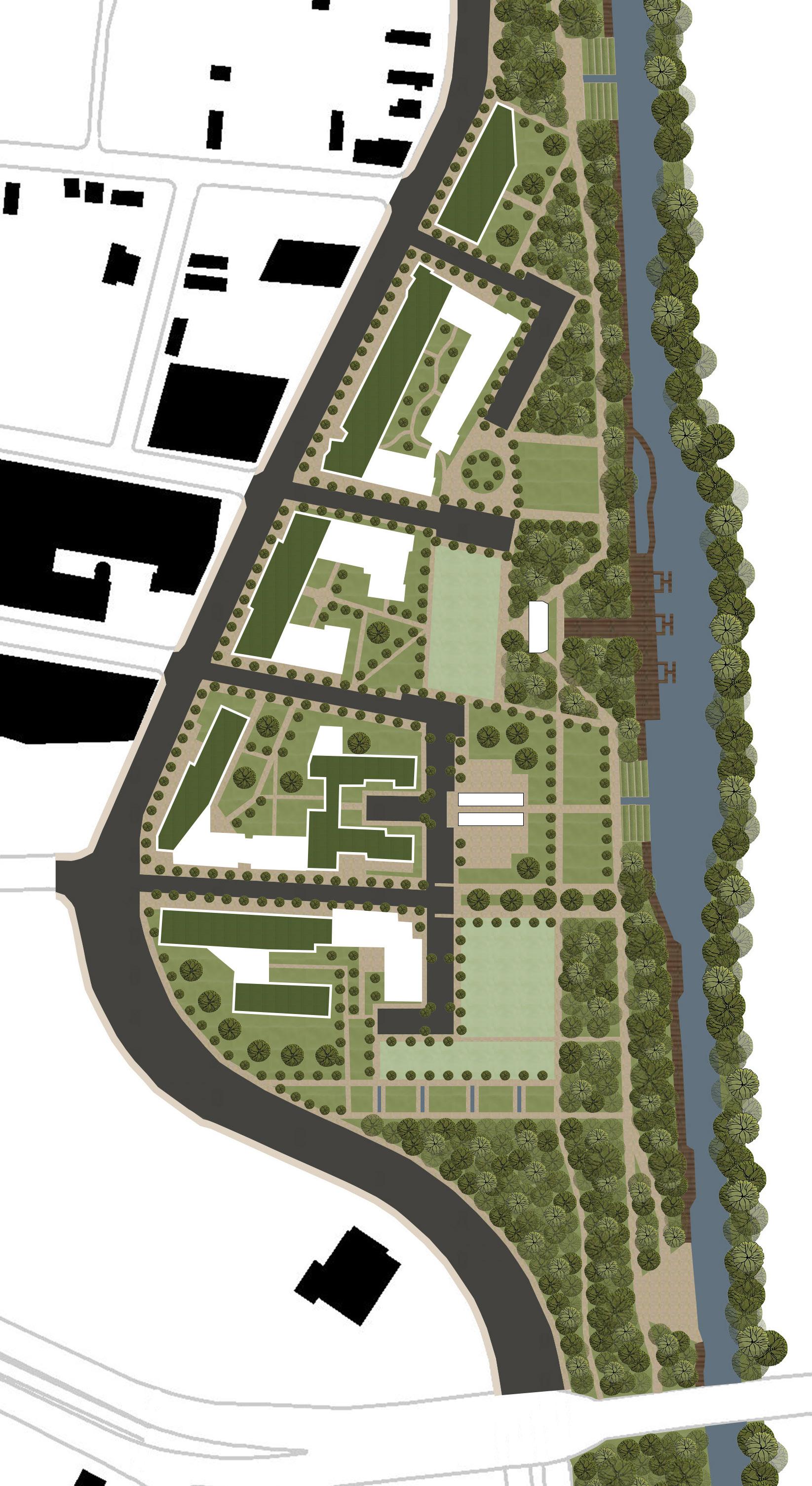
3 | THE BANKS Neighborhood Study

The Banks

The main objective is to explore urban scenarios of streetcar corridors that rethink existing buildings, streets, and public spaces as a connective pedestrian realm focused in the Downtown Riverfront area. With this, the team and I came up with the question on what would happen if we transformed this site into a Green Corridor.

Strategies

Site Analysis & Context

• Evaluate land use and connectivity to nearby parks, riverfront, and neighborhoods

• Enhance links for pedestrians, cyclists, and public transit Sustainable Design Features

• Incorporate green infrastructure: permeable pavements, bioswales, and green roofs

• Reduce urban heat islands and promote stormwater management

• Design open spaces for recreation and community activities Environmental Resilience

• Implement flood mitigation strategies

• Develop climate-resilient spaces Mobility & Accessibility

• Create a network of walkable, bike-friendly paths that enhance connectivity

• Prioritize public space for active transportation and public transit integration

SITE LOCATION

The Riverfront Park is designed as a multi-functional space where nature, community, and recreation come together and will serve as a destination for all members of the community. Offering diverse amenities for relaxation and family-friendly activities. The park’s thoughtful layout and connection to the river create a seamless urban retreat while promoting ecological sustainability.

4 | UNIVERSITY OF CINCINNATI Campus Study

University of Cincinnati

The University of Cincinnati Campus currently has two predominate light fixtures around their campus. That being the Round-Bulb and Flat-Head fixtures. These two lights are culprits to the production of light pollution, known for brightening the night sky caused by street lights and other man-made sources, creating a disruptive effect on natural cycles and inhibits the observation of stars and planets. Lights provide three different types of pollutants:

(1) Wasted Light

(2) Productive Light

(3) Glaring Light

Currently, The University of Cincinnati campus has a light ratio of 5:4 between the Round-bulb fixture and Flat-head fixture

"Courtesy: National Science Foundation" for this great representation of light pollution

The round-bulb fixture produces a significant amount of wasted light, with 45% as wasted and 10% in glare, leaving only 45% of the light as productive. This inefficiency necessitates closer spacing of fixtures to achieve adequate illumination levels.

FLAT-HEAD

University At Night

When looking at the two light fixtures. The Flat-Head is seen to give off 0% Wasted Light, 5% Glared Light, and 95% Productive Light, whereas the Round-Bulb gives off 45% Wasted Light, 10% Glared Light, and 45% Productive Light. Comparing the two, it’s imperative that The University of Cincinnati replace the majority of its Round-Bulbs around the campus with FlatHead fixtures, allowing for the disruption of Wasted Light production and being one step closer to reducing Light Pollution.

The flat-head fixture delivers 95% productive light, with no wasted light and only 5% glare, making it highly efficient. Its optimized design allows for wider spacing between fixtures without sacrificing illumination quality reducing the need for additional fixtures.

vaughnln@mail.uc.edu

(513)535-7839

Cincinnati, OH

https://www.linkedin.com/in/logan-vaughn

Turn static files into dynamic content formats.

Create a flipbook
Issuu converts static files into: digital portfolios, online yearbooks, online catalogs, digital photo albums and more. Sign up and create your flipbook.