HAIDUONG COMPLEX

Page 1

KHU

TỔ HỢP

DỊCH VỤ THƯƠNG MẠI, KHÁCH SẠN

THÀNH PHỐ HẢI DƯƠNG

CONCEPT DESIGN

ARCHITECTURE STUDIO 01 - VNCC

THÀNH PHỐ HẢI DƯƠNG, TỈNH HẢI DƯƠNG
01 02 03
DỰ ÁN
TỔNG QUAN
PHƯƠNG ÁN
THÔNG SỐ
KẾ
PHƯƠNG ÁN THIẾT

TỔNG QUAN DỰ ÁN

01. Nội dung

+ Tổng quan

+ Tổng quan hiện trạng

+ Cơ hội phát triển

+ Tổng quan khu đất

+ Cơ hội phát triển

+ Tiềm năng phát triển

Tổng

quan

+Hải Dương=Mặt trời đại dương, tượng trưng cho sự dồi dào và lạc quan bất tận.

+ Cái nôi văn hóa Việt Nam, mảnh đất thiêng liêng với những danh nhân.

+ Trung tâm vùng đồng bằng sông Hồng và bao quanh bởi 6 tỉnh (Hưng Yên, Bắc Ninh, Bắc Giang, Quảng Ninh, Hải Phòng, Thái Bình).

+ Trung tâm trọng điểm của Vùng phát triển kinh tế phía Bắc với hơn 19 khu công nghiệp trên địa bàn Tỉnh. Tập trung mạnh vào sản xuất nông nghiệp và công nghiệp.

+ Mạng lưới giao thông tốt.

+ Tài nguyên thiên nhiên dồi dào và lực lượng lao động trẻ.

+ Đô thị cấp 2.

+ Trung tâm kinh tế - xã hội, chính trị, văn hóa của tỉnh Hải Dương.

+ Điều kiện phát triển thuận lợi và có khả năng nâng cấp lên đô thị loại 1.

Bắc Giang

Quảng Ninh

Bắc Ninh

Hải Phòng Thái Bình Hưng Yên

Hiện trạng dự án

+Thiếu cơ sở lưu trú, cơ sở vật chất và dịch vụ tiêu chuẩn quốc tế để thu hút du khách quốc tế dù là ngắn hạn hay dài hạn.

+ Thiếu công trình biểu tượng để quảng bá tới cộng đồng quốc tế Hải Dương là địa điểm đầu tư, du lịch hấp dẫn.

+ Thiếu công trình điểm nhấn trong khu vực.

+Vị trí khu đất

+Trung tâm hành chính

+Siêu thị

+Bệnh viện

Khu đất xây dựng

+Diện tích khu đất : 2,817.3M2

+Hướng nhìn trực tiếp ra phía hồ Bạch Đằng.

+Hướng đất đẹp, với cạnh dài theo hướng Bắc - Nam.

Hồ

Đường Canh Nông
Đường Thanh Niên
Văn
Bạch Đằng
Đường Chu
An

Cơ hội phát triển

+ Cung cấp chỗ ở, cơ sở vật chất và dịch vụ quốc tế 5 sao đáp ứng nhu cầu của du khách quốc tế, cả ngắn hạn và dài hạn.

+Nâng tầm dịch vụ lên đẳng cấp Quốc tế bằng việc thu hút các thương hiệu Quốc tế.

+Mở rộng mạng lưới quốc tế để quảng bá Hải Dương là điểm đến đầu tư và giải trí.

+ Nâng cấp lực lượng lao động thông qua sự tham gia và tiếp xúc quốc tế.

+ Tạo dựng không gian sống hiện đại, sang trọng.

+ Xây dựng một Landmark trong khu vực - niềm tự hào của Hải Dương.

Tiềm năng phát triển

+Không có công trình mang tính điểm nhấn nào ở phạm vi xung quanh dự án.

+ Vị trí lý tưởng để xây dựng tòa nhà mang tính biểu tượng.

+Dấu mốc là niềm tự hào của Hải Dương, tượng trưng cho sự phát triển kinh tế của Hải Dương và khát vọng trở thành đô thị loại 1.

+ Cột mốc nâng tầm hình ảnh Hải Dương trở thành Thành phố Quốc tế quan trọng.

PHƯƠNG ÁN THIẾT KẾ

02. Nội dung

+ Ý tưởng hình khối

+ Cảm hứng thiết kế

+ Lối tiếp cận

+ Phối cảnh phương án

+ Mặt bằng tổng thể

+ Mặt bằng các tầng

+ Mặt đứng

+ Mặt cắt

Ý tưởng hình khối

+Khi lên ý tưởng cho hình khối dự án kiến trúc này, một số cân nhắc chính sẽ được đưa ra để đảm bảo một thiết kế thành công và hấp dẫn.

Kết hợp khối công năng Từ nhiệm vụ thiết kế đưa ra ban đầu, hình thành nên các khối chức năng phù hợp với diện tích tính toán, bước đầu hình thành nên khối cơ bản cho công trình.

Kiến tạo hình khối

Với hình khối cơ bản được đưa ra, đẩy thêm chi tiết của từng không gian, tạo ra các không gian ngoài trời, sân hiên, ban công logia để tạo ra hình thức đa dạng, tạo sự hấp dẫn cho hình dáng tòa nhà.

Xử lý kiến trúc mặt đứng Thử nghiệm với các vật liệu, kết cấu và hoa văn mặt tiền khác nhau để tăng thêm sự phong phú về mặt hình ảnh. Sử dụng ánh sáng và bóng đổ tự nhiên để nâng cao chiều sâu và tính ba chiều của ngoại thất tòa nhà.

1 2 3

Cảm hứng thiết kế

+Nằm trên vị trí đắc địa, có hướng nhìn trực tiếp tới hồ Bạch Đằng, thiết kế mặt đứng công trình lựa chọn hướng đến hình ảnh những gợn sóng nước trên mặt hồ.

+Phương án thiết kế mặt đứng công trình lấy cảm hứng từ yếu tố Sóng. Hình thức này mang đến cho công trình sự uyển chuyển, linh hoạt, tạo được chất cảm về sự chuyển động, kích thích thị giác của người đi đường khi hướng tới công trình.

+Đường Thanh Niên

+Đường Canh Nông

+Đường Chu Văn An

Lối tiếp
cận

01. Khối đế thương mại

+Tầng 1 - 2 : Ballroom - Phòng họp - Sảnh đón tiếp

+Tầng 3 : GYM - Fitness - bể bơi

+Tầng 4 : Thương mại - Dịch vụ - Văn phòng

02. Khối phòng ở

1 2 3
03. Sky bar

KHOẢNG LÙI XÂY DỰNG KHỐI THÁP

KHOẢNG LÙI XÂY DỰNG KHỐI ĐẾ

CHỈ GIỚI ĐƯỜNG ĐỎ

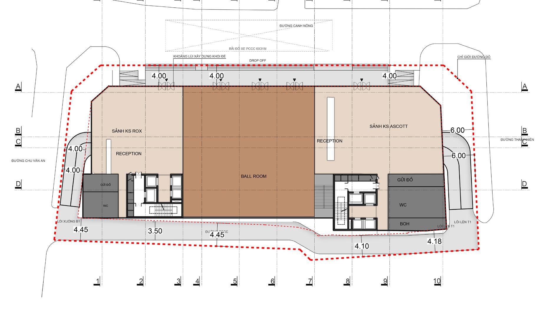
Mặt bằng tổng thể
Lối xuống hầm Khối khách sạn Lối lên hầm
Drop-off
2 4 1 1 2 3 4 3 0 3 6 9 12M

Mặt bằng hầm B2

+ Diện tích : 2817,3 m2

Mặt bằng hầm B1

+ Diện tích: 2817,3 m2

Mặt bằng tầng 1

+ Diện tích : 1754,3 m2

Mặt bằng tầng 2

+ Diện tích : 1754,3 m2

Mặt bằng tầng 3

+ Diện tích : 1754,3 m2

Mặt bằng tầng 4

+ Diện tích : 1754,3 m2

Mặt bằng tầng 5 - 19

+ Diện tích : 1245,4 m2

Mặt bằng tầng mái

+ Diện tích : 401,7 m2

Mặt đứng 10

+Phương án thiết kế mặt đứng công trình lấy cảm hứng từ yếu tố Sóng. Hình thức này mang đến cho công trình sự uyển chuyển, linh hoạt, tạo được chất cảm về sự chuyển động, kích thích thị giác của người đi đường khi hướng tới công trình

-
1

Mặt đứng 1 - 10

+Phương án thiết kế mặt đứng công trình lấy cảm hứng từ yếu tố Sóng. Hình thức này mang đến cho công trình sự uyển chuyển, linh hoạt, tạo được chất cảm về sự chuyển động, kích thích thị giác của người đi đường khi hướng tới công trình

Mặt đứng A - D

+Phương án thiết kế mặt đứng công trình lấy cảm hứng từ yếu tố Sóng. Hình thức này mang đến cho công trình sự uyển chuyển, linh hoạt, tạo được chất cảm về sự chuyển động, kích thích thị giác của người đi đường khi hướng tới công trình

Mặt đứng D - A

+Phương án thiết kế mặt đứng công trình lấy cảm hứng từ yếu tố Sóng. Hình thức này mang đến cho công trình sự uyển chuyển, linh hoạt, tạo được chất cảm về sự chuyển động, kích thích thị giác của người đi đường khi hướng tới công trình

Mặt cắt

+Phương án thiết kế mặt đứng công trình lấy cảm hứng từ yếu tố Sóng. Hình thức này mang đến cho công trình sự uyển chuyển, linh hoạt, tạo được chất cảm về sự chuyển động, kích thích thị giác của người đi đường khi hướng tới công trình

THÔNG SỐ PHƯƠNG ÁN

03. Nội dung

+ Bảng thống kê

Bảng thống kê

+Bảng thống kê cho thấy được chi tiết về các nội dung thiết kế, dễ dàng so sánh giữa chỉ tiêu thiết kế với chỉ tiêu theo Quyết định của Nhà nước, từ đó có được cái nhìn khách quan về sự phù hợp của phương án thiết kế của bên tư vấn đưa ra.

CONCEPT DESIGN

Architecture Studio 01

Turn static files into dynamic content formats.

Create a flipbook
HAIDUONG COMPLEX by Long Bùi Duy - Issuu