RESORT HOTEL

Page 1

QUẢNG TRƯỜNG THỜI ĐẠI

TỔ HỢP

KHÁCH SẠN HỒ TRÊN NÚI

MỘC CHÂU

CONCEPT DESIGN ARCHITECTURE STUDIO 01 - VNCC

PHÂN TÍCH

ĐÁNH GIÁ

HIỆN TRẠNG

02

PHƯƠNG ÁN THIẾT KẾ

03

PHỐI CẢNH

PHƯƠNG ÁN

01
01
PHÂN TÍCH
.

Phương án giao thông

nội khu - PA1

Ưu : Giao thông sử dụng độc lập trước khi xây dựng đường quy hoạch

Phương án giao thông

nội khu - PA2

Ưu : Giảm lượng giao thông di chuyển tại khu vực ngã ba

Phương án giao thông

nội khu - PA3

Ưu : Giảm diện tích giao thông, giao thông tập trung, không gian chức năng không bị phân tán Nhược : Không gian chức năng trong dự án bị phân tách

Nhược : Không gian chức năng trong dự án bị phân tách, chưa xác định được thời điểm xây dựng đường quy hoạch

=> Tối ưu nhất

HƯỚNG BẮC

View nhìn tốt : Hướng về phía đồi núi xung quang

=> Cần tận dụng tối đa hướng nhìn từ phía này cho khu vực khách sạn, mini hotel

TÂY BẮC

View nhìn tốt : Hướng về phía đồi núi xung quang, cảnh quan hồ lân cận

=> Cần tận dụng tối đa hướng nhìn từ phía này cho khu vực khách sạn, mini hotel

Hướng về phía dân cư , đường Lê Thanh Nghị, đường quy hoạch , bị hạn chế một phần bời khu dân cư

Hướng về phía dân cư , đường Lê Thanh Nghị, bị hạn chế một phần bởi khu dân cư

View nhìn tốt : Hướng về phía đồi núi xung quang

=> Cần tận dụng tối đa hướng nhìn từ phía này cho khu vực khách sạn, mini hotel

Hướng nhìn bị hạn chế một phần bời khu dân cư

Hướng về phía dân cư , đường Lê Thanh Nghị

Hướng về phía dân cư , đường Lê Thanh Nghị
HƯỚNG ĐÔNG BẮC HƯỚNG ĐÔNG HƯỚNG ĐÔNG NAM
ĐÁNH GIÁ HƯỚNG NHÌN TỪ KHU ĐẤT
HƯỚNG NAM HƯỚNG TÂY NAM HƯỚNG TÂY HƯỚNG

PHƯƠNG ÁN THIẾT KẾ

02
.

MẶT BẰNG TỔNG THỂ

Lối vào khách sạn

Bãi đỗ xe ngoài trời

Kỹ thuật phụ trợ

Vị trí xuống hầm

Sảnh chính

Khối mini hotel

Lối vào mini hotel

Không gian cafe ngoài trời

Quảng trường Vườn cảnh quan

Phố ẩm thực

Rừng mai anh đào

Hồ cảnh quan

Nhạc nước

Vườn chè

Đường dạo dưới rừng mận

0 8 16 24 30M
1 1 3 3 5 5 7 7 9 9 11 13 12 14 2 2 4 4 6 6 8 8 10 10 12 14 11 13
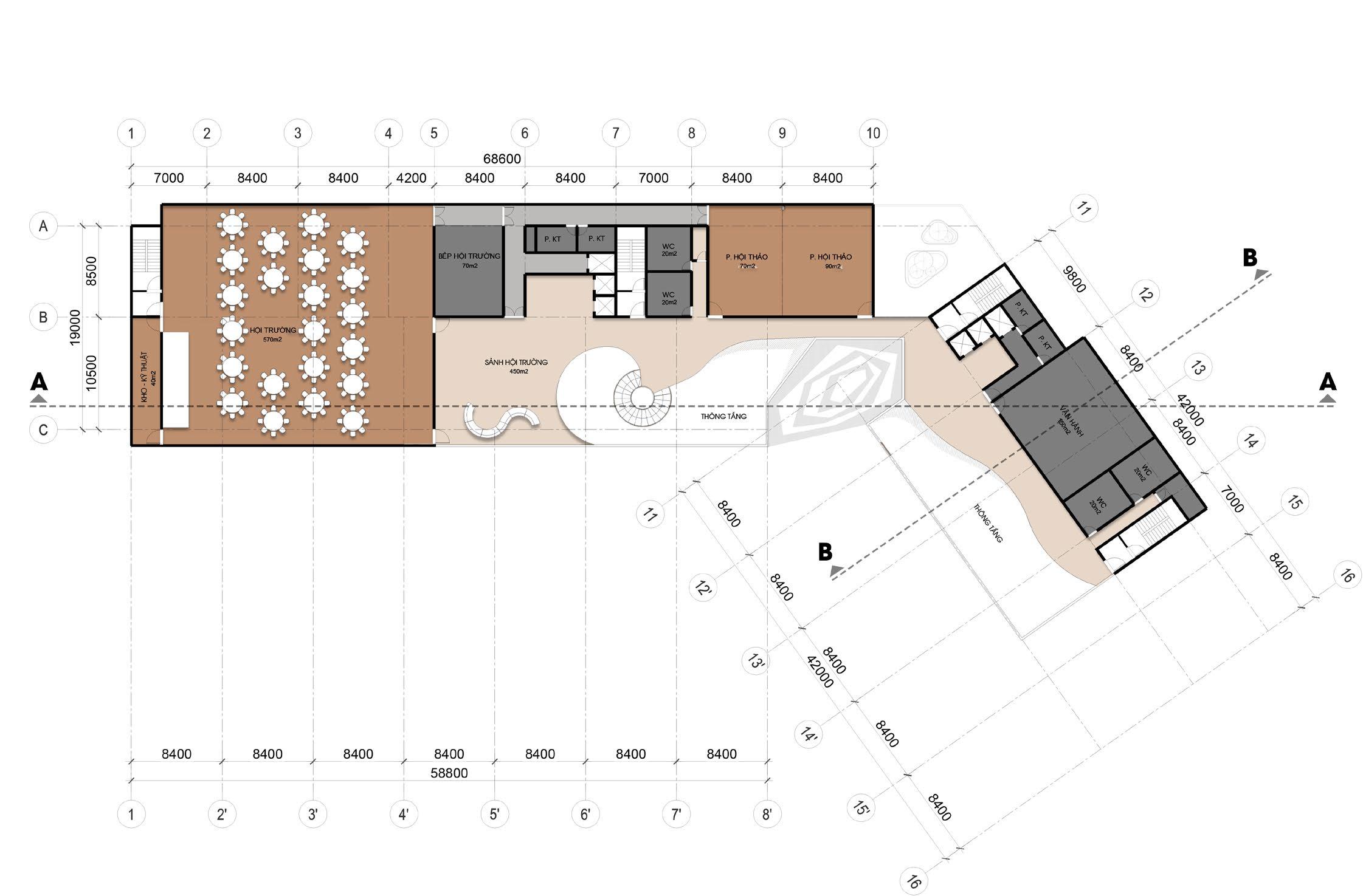
MẶT BẰNG HẦM
MẶT BẰNG TẦNG 1
MẶT BẰNG TẦNG 2

Handicap rooms / 2 phòng ( 1% )

King rooms / 100 phòng ( 60% )

Twin rooms / 68 phòng ( 40% )

MẶT BẰNG TẦNG 3
MẶT BẰNG TẦNG 4 - 6
King rooms / 100 phòng ( 60% ) Twin rooms / 68 phòng ( 40% )
MẶT BẰNG TẦNG 7
MẶT ĐỨNG A-A
MẶT CẮT A-A
MẶT ĐỨNG B-B
MẶT CẮT B-B

MỘC CHÂU ‘S NATURE

Lấy cảm hứng từ thiên nhiên tại Mộc Châu, những đường nét kiến trúc thể hiện hình ảnh những dãy núi nhấp nhô ẩn hiện dưới những tầng mây, mang lại sự gần gũi và hài hòa với môi trường xung quanh. Bằng cách sử dụng các yếu tố tự nhiên như cây cỏ, đồi núi, hoặc sông suối, công trình tạo ra không gian nghỉ dưỡng độc đáo, mang đến cảm giác thư giãn và yên bình . Đồng thời, việc áp dụng các nguyên tắc bền vững trong thiết kế cũng giúp bảo vệ và tôn trọng thiên nhiên, góp phần vào việc bảo vệ môi trường.

ĐỈNH PHA LUÔNG - MỘC CHÂU
CẢM HỨNG THIẾT KẾ : THIÊN NHIÊN MỘC CHÂU

LOOK AND FEEL

BẢNG THÔNG SỐ THIẾT KẾ

THANK YOU

Turn static files into dynamic content formats.

Create a flipbook