Arq. Gonzalo Lobon | Portfolio

Page 1


ARQUITECTO GONZALO LOBON PORTFOLIO

Arquitecto egresado en 2025 de la Facultad de Arquitectura Diseño y Urbanismo, de la Universidad de la República.

lobongonzalo@gmail.com | +598 97 437 296

El presente trabajo reúne una selección de proyectos desarrollados a lo largo de mi formación como Arquitecto en la Universidad de la República. Cada uno de ellos re eja distintos momentos del proceso académico, abordando temáticas variadas y escalas diversas, desde lo conceptual hasta lo técnico.

Mi intención con esta recopilación es transmitir no solo los conocimientos adquiridos, sino también la evolución de mi mirada proyectual, mi compromiso con la arquitectura y el entusiasmo que me impulsa a seguir aprendiendo y creciendo en el ámbito profesional.

Agradezco la oportunidad de compartir parte de este camino y quedo a disposición para ampliar cualquier información que se considere pertinente.

1 2 3

HABITAR COLECTIVO

P | TALLER SCHEPS

VIVIENDA COLECTIVA LIBERTADOR PEB | TALLER SCHELOTTO

CIUDAD UNIVERSITARIA DE ROSARIO | UNR PUB | TALLER SCHEPS

HÍBRIDO COLECTIVO PEA | TALLER SCHELOTTO

CENTRO DE RESIDENCIAS ARTÍSTICAS PTE | TALLER HECTOR BERIO

ESCUELA DE ARTE MAUÁ TFC | TALLER VELÁZQUEZ

Ubicado en el barrio de Cordón, en Montevideo, este proyecto se emplaza en la combinación de múltiples padrones, dos de los cuales cuentan con una altura máxima construible, permitida por normativa, de veintisiete metros. Esto da lugar a la cinta que envuelve un claustro y posteriormente escala en altura.

Estas diferencias altimétricas traen consigo también los diferentes programas del edi cio, donde la torre cuenta con las unidades de vivienda, mientras que el bloque más bajo satisface la necesidad de residencias estudiantiles. Esta obra está pensada para dar lugar a espacios de relacionamiento e intercambio intergeneracional entre residentes de uno y otro bloque.

El sector para estudiantes está enriquecido con una calle corredor que balconea al patio central, propiciando el intercambio entre estudiantes que se apropien de dicho espacio como extensión de las unidades.

Se proyectan además núcleos duros de servicio que representan el centro de las unidades, en torno a los cuales el resto de la unidad es modulado de acuerdo a la necesidad de sus residentes, con mucha mayor exibilidad.

La plaza inerna es de acceso público, permitiendo el ingreso del barrio a la unidad habitacional, mientras que la cubierta verde, sobre el bloque más bajo, es de acceso privado para habiantes del edi cio del edi cio.

En este caso se proyecta un edi cio de vivienda colectiva en el padrón contiguo al colegio Sagrada Familia, sobre la Avenida del Libertador, en Montevideo, con las puntualidades normativas que éste tiene, donde no se permite, sino que se obliga a alcanzar una altura de veintisiete metros por parte de las construcciones.

Con ese contexto se plantea la construcción de dos torres en altura en forma de “L” (aprovechando la profundidad del predio), conformando un patio central en planta baja, recorrible en los siguientes niveles a través de una calle corredor que da lugar al intercambio entre residentes, buscando diluir el anonimáto típico de las unidades habitacionales en altura.

La planta baja además está constituida por los accesos a ambas torres, accesos vehiculares y locales comerciales que sirvan no solo al edi cio, sino al barrio en su conjunto. Por otro lado, en el primer nivel

La Ciudad Universitaria de Rosario (Universidad Nacional de Rosario, Argentina) se emplaza sobre la costa del Río Paraná, dándole la espalda a éste, en un predio parcialmente absorbido por asentamientos irregulares y con los edi cios de las diferentes facultades poco vinculados entre sí.

En este proyecto se plantea una nueva red de caminería circular, que no solo interconecte los edi cios del campus, sino que también otorgue espacios que faciliten y enriquezcan el intercambio entre los universitarios de las diversas ramas, invitando la permanencia de las personas en los espacios de esparcimiento que se generan.

La nueva trama rompe con la cuadrícula de la ciudad, invitando a ser recorrida y arrojando nuevas vistas del Río.

Entre las nuevas edi caciones, se plantean viviendas para los estudiantes, espacios polideportivos, parkings, parques (en las conjunciones de los círculos de caminería) y un espacio de estudio + trabajo, con vista al Río, que integre a toda la comunidad de la Ciudad Universitaria aprovechando la topografía, siendo este semienterrado.

Este proyecto busca consolidar la zona a partir de la generación de espacios de uso comercial, espacios de o cina, servicios barriales y viviendas capaces de adaptarse a diferentes conformaciones familiares, de manera que la familia de na su vivienda y no que la vivienda de na la familia que debe vivir en ella.

El aspecto híbrido del edi cio en sí mismo juega un papel importante en la revitalización de este sector de la ciudad, pero además busca hacerlo atractivo atrayendo futuras inversiones.

Se plantea una implantación de forma tal que la plaza formada por el edi cio en “U” sea una continuación de la plaza ya existente en el predio contiguo.

La cubierta verde, toma una pendiente tal que da lugar a niveles más bajos sobre la cara norte, favoreciendo un correcto asoleamiento y dando lugar a un vínculo más armonioso con la Ciudad Vieja, aumentando la altura hacia la rambla y no hacia la ciudad.

Por un lado se idea colocar locales comerciales y de o cina en el bloque más bajo, mientras que el resto del edi cio es meramente de vivienda, con espacios de uso común insertos en la cuadrícula de apartamentos. Las unidades de planta baja tienen un patio semi-enterrado que busca generar un vínculo interesante y no tan directo con la calle, resolviendo la complejidad típica de la planta baja. La gran mayoría de las viviendas está dotada de la capacidad de ser exibles por su planta libre de elementos estructurales.

La mayoría de las unidades son en dúplex, lo que ayuda a tener una menor área de circulación horizontal, ya que el diseño permite tener un solo corredor cada 3 niveles de vivienda. Se aprovecha el espacio superior e inferior a la circulación para ubicar el núcleo duro de dichas viviendas, permitiendo que estas sean completamente pasantes en uno de los dos niveles que conforman el dúplex.

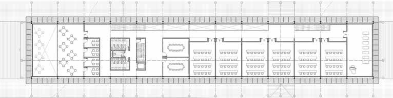
Este anteproyecto consiste en el reciclaje del antiguo edi cio de la Asociación de Empleados Civiles de la Nación (Arq. Lucas Ríos), emplazado en la calle Mercedes de nuestra capital. El edi cio se concibe originalmente como una planta completamente libre, en once niveles, hoy abandonado.

Es así que se plantea un abordaje del proyecto identi cando diferentes niveles de permeabilidad con respecto a la vía pública, siendo los niveles inferiores los más “públicos”, escalando a programás de habitar colectivo y servicios de índole privada.

Estos gestos se consiguen dando lugar a un espacio de an teatro multiuso, con gradas retráctiles, semi-enterrado, y una plaza elevada sobre este último, espacios a los que se accede directamente desde la calle.

Los siguientes cuatro niveles corresponden al habitar colectivo de los residentes, con dormitorios y servicios higiénicos.

En los últimos niveles de la construcción se emplazan las áreas de esparcimiento, de cocina, estudio y trabajo de los futuros habitantes, contando también con espacios exteriores de uso privado.

En fachada se plantean parasoles plegables como solución a la incidencia norte del Sol.

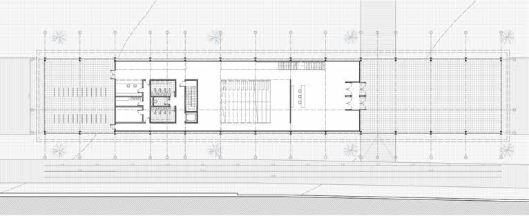
El proyecto se emplaza en el Dique Mauá, una estructura portuaria construida a nales del siglo XIX como parte del proceso de modernización del puerto de Montevideo. Si bien la propuesta arquitectónica no establece un vínculo proyectual directo con las preexistencias del sitio, su presencia y emplazamiento están intrínsecamente conectados con la memoria del lugar.

Se busca una integración respetuosa mediante una materialidad sobria y una volumetría clara, minimizando el impacto visual sobre el entorno inmediato. La continuación de la rambla y la incorporación de un pasaje hacia una de las estructuras existentes refuerzan la relación entre el nuevo equipamiento y el tejido urbano circundante. El desarrollo del proyecto responde a la necesidad manifestada por la comunidad local en distintos censos y encuestas, donde se ha expresado un gran interés en la creación de un espacio cultural y educativo en esta zona.

A esto se sumó el factor “tiempo”, cuyo transcurso puede dar lugar a nuevas necesidades en sus usuarios. Esto lleva a que los elementos estructurales y constructivos sean concebidos desde la búsqueda de la exibilidad de los espacios y su adaptación con la menor cantidad de modi caciones posibles, evitando así la obsolescencia que actualmente afecta al predio, por justamente, su imposibilidad de adaptación a las necesidades actuales.

El trabajo completo puede visitarse en https://drive.google.com/ le/d/1iKJcqebzGL5G7ZJ6LcLPvrzTTyA8EvmV/view?usp=sharing

GRACIAS

Turn static files into dynamic content formats.

Create a flipbook
Issuu converts static files into: digital portfolios, online yearbooks, online catalogs, digital photo albums and more. Sign up and create your flipbook.
Arq. Gonzalo Lobon | Portfolio by lobongonzalo - Issuu