Skip to main content

PORTFOLIO_ZH

Page 1


selected works | Portfolio | hanzhi zou

Hello ! I’m Hanzi, I used be ......

For me,

I find immense joy in continually exploring my capabilities and pushing the boundaries of my mind across diverse fields of work.

An Early Childhood Teacher

Help parents see and appreciate their toddlers’ behavior through the child’s eyes, fostering respect and understanding in the art and play class.

A Storefront Designer

Designed 17 high-end showrooms for home appliances, aiming to elevate the product display experience. The brands I served include Siemens, Bosch, and Gaggenau.

A Brand Manager

Assisted forming and marketing for the first five commercial skydiving bases in China from zero.

It was a revelation to discover that architecture could be a profound vessel where I could pour all my experiences and knowledge, transforming them into innovative inspiration.

Through visiting many architectural sites, I’ve concluded that nature provides the most potent energy to enliven a building, enhancing the well-being of its occupants.

In addition to scuba diving, I also have a strong passion for reading and writing short science fiction stories.

CONTENTS: THE WAY FOLLOW NATURE

Creating nature-inspiring spaces with empathy toward the interconnection between environment and well-being

Foresight in architectural education 1. The Verdant City

The Verdant City

Can we re-intertwine people’s relationships like the roots of a mangrove forest?

Time: 07.2023

Type: Architect design

Location: Newcastle , Australia

Role: Single work

The Newcastle plans to transform into a smart, liveable and sustainable global city. In forecast, the city population will reach to 195,530 by the year 2036.The local government will require an additional 54,850 dwellings by 2036 to meet growing demand. The design brief outlines a plan for a 3,000-person model “city within the city” to be built on the site of the former BHP administration at Mayfield North.

Design Process

Uncultivated Land

ⅰ Site condition

ⅱ.Regulating lines as Green corridor Industrial District

3,000 residents

200 residents X 15 clusters

ⅶ.Site layout

ⅲ.Create Distinct blocks

ⅳ.Buildings inter-connected

ⅵ.200 residents X 15 clusters

v.Buildings inter-connected,outconnected with block border

Industrial District
Morandoo Freight Yard
Circulation Flow Diagram
Program of Corridors & Austrim
Austrim

.Reflection Area

b.Activity Hub (Reading Room on level 3)

Study Terrace

c.Storage Space

The Live View of the Atrium with Residents of the Scheme

d.Refreshment Lounge

The rest area (gray) faces the flow of people, with activity areas (green) on both sides. Seats are provided for users to reflect.

The height and position of the shade are designed to prevent its shadow from falling on the skylight

Shadow Study

Type A is the smallest living unit optimise to accommodate single resident. Maximum capacity is 2 people with a double-size bed.

Type B : 2 Bedroom Apartment

Type B is suitble for small families or single-parent households. It offers additional areas perfect for work or entertainment.

Type A (30 - 32m2)

Type B (87 - 90m2)

Type C (120-140m2)

Type D (138 -142m2)

x11 + + +

x 2 x 3 x 3

Totle occupacy : 39 ~ 70 people/level = 19 units

Type C : Co-living Apartment

Type C is designed for students seeking an affordable co-living experience. The living space and kitchen areas are equally shared.Maximum capacity is 6 people.

Type D :4 Bedroom Apartment

Type D is designed for families of up to six members. The layout includes a bedroom that can be combined with the living room, offering flexible space for various family needs.

Type A : Single Studio

DetailCallout

Structural Axonometry

330mm

Cross Laminated Timber Ceiling

Floor covering 20 mm

Cement or anhydride screed, 50 mm, separating layer

Mineral fibre footfall sound insulation, 30 mm

Crushed stone infill, 80 mm

Cross laminated timber, C24 150 mm

210mm

CLT Interior Wall Panels (double-sided plasterboard finish)

400x400x4000mm

GLT Columns

330 mm

CLT Exterior Wall Panel:

Factory-Installed Windows

340 mm

Steel-reinforced Concrete Slab:

Prefabricated Weather Resistant Panels

Ventilation Louvres

1.Floor covering 20 mm

2.Cement or anhydride screed 50 mm, separating layer

3.Mineral fibre footfall sound insulation, 30 mm

4.Additional mineral fibre insulation, 40 mm

5.Steel-reinforced concrete, 200 mm

1.GLT Column

2.Long Threaded Rods Glued

3.Steel Plate

4.Hollow Structural Steel

5.Cast- in -place H.D.G. Anchor Bolts With Nuts Washer Nut

6.Steel Plate

7. Leveling Nuts

8. Cast- in -place Concrete Slab

1.GLT Column

2.Epoxy Relief Holes

3.Threaded Rods Epoxied

4.Steel Plate

5.16mm Diameter Threaded Rods

6.Round HSS 127 x 13 THK. Stub

350W

7.5-layer Cross Laminated Timber (CLT) Floor Panel

1. Plant

2. Stainless Steel Metal Edging

3. Plend E Growing

4. Fine Water Permeable Gravel

5.Floradrain, Fill With Fine Water Permeable Gravel

6.Separation Membrane

7.Extruded Polystyrene Insulation

8.Drainage Mat

9.Resin With Reinforcing Fleece

10. Existing 5-layer CLT panel

Over View

The NUarch School

How can we broaden architecture education perspectives for more innovation?

Time: 10.2023

Type: Architect design

Location: Newcastle , Australia

Role: Single work

The University of Newcastle seeks to transform architectural education by revitalizing Newcastle’s inner city. The School of Architecture and Built Environment (SABE) is launching The NUarch School project, which aims to innovate and enhance current teaching methods, creating a unique architectural identity.

This initiative provides a dynamic and stimulating environment for students, patrons, guests, staff, and the community, fostering growth and new opportunities.

Basic concept:

Elevate the block to leave a sunken space to attract foot traffic flow in.

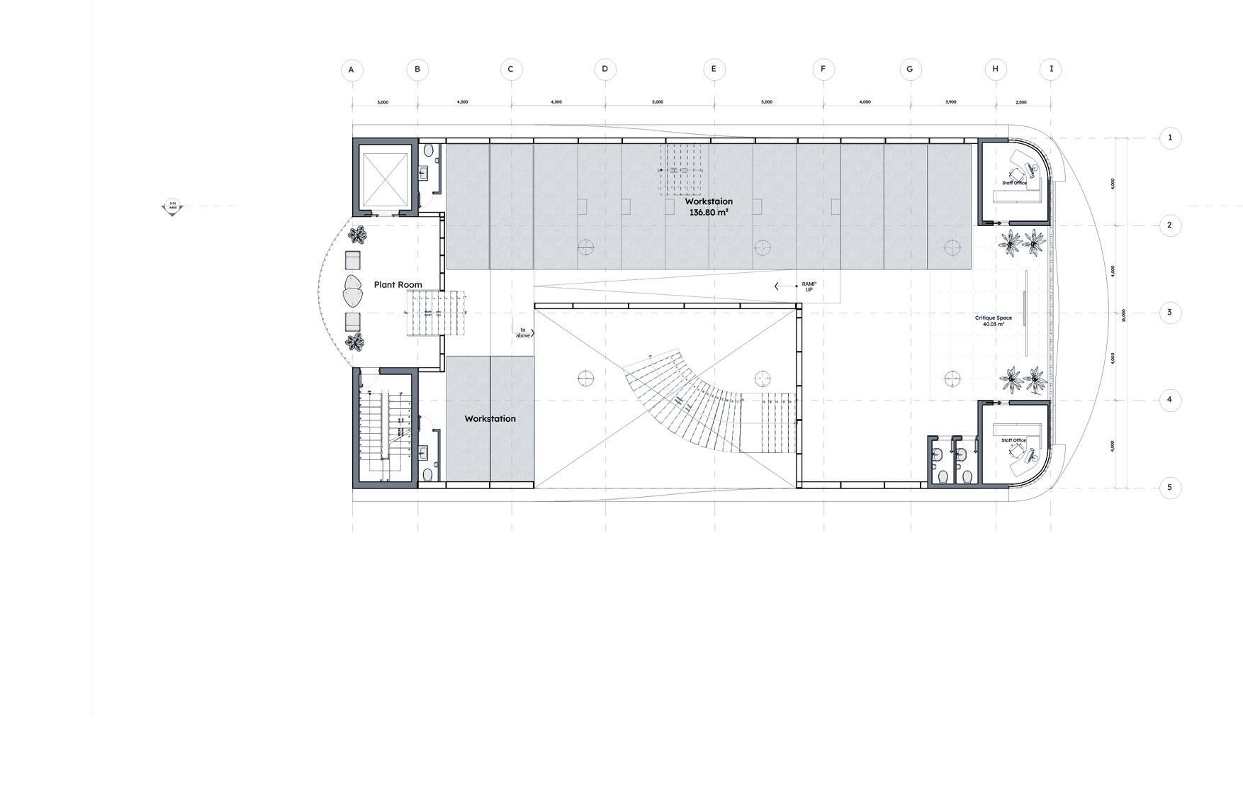
Section I : Public Service

This section is the public interface between the NUarch and the public. The dining hall area is to serve as a social and gathering focal point and common area for guests, visitors, staff and students.

The bicycle storage aims to serve this function and add to the pedestrianisation of the inner CBD and surrounds.

The Entry Lobby area creates a powerful spatial experience for guests seeking directions, information, assistance, or simply a place to linger.

Dining Hall
Main Entrance
Dining Hall (acommondated to event)
Level G Level 1
-1

Steven Bingler and Martin C. Pedersen wrote: “We’ve taught generations of architects to speak out as artists, but we haven’t taught them how to listen.”

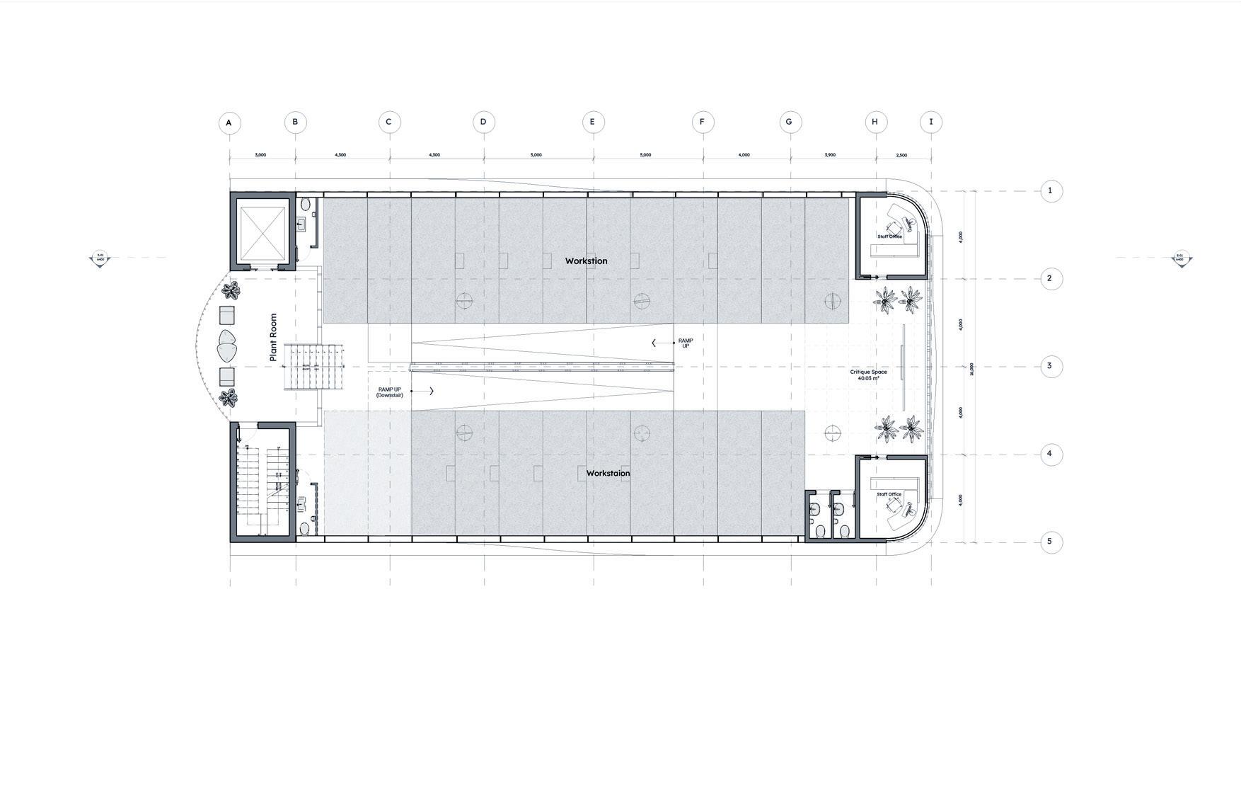
Section II : Education

The design aims to provide a platform where students can gain practical problem-solving experience by engaging with feedback from visitors, including engineers, construction managers, real estate developers, materials suppliers, building code consultants, and the project’s target users.

Academic Communication flow: the forum serves as a tutorial space for education and an introductory space for exhibition

* Brady, R 2020, ‘Architecture School Is Broken. Here’s How We Should Fix It.’ - Architizer, Journal.

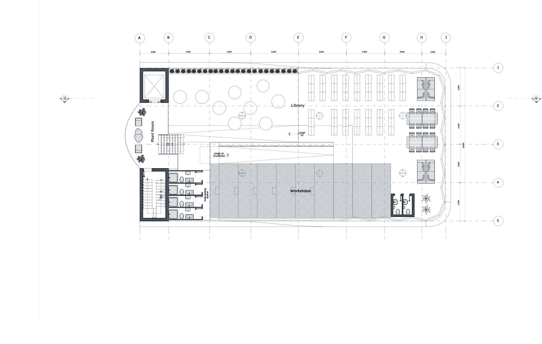
Section III: Student Living

The garden design employs the classic Japanese “one heart” layout, using the shape of the Chinese character “心” to divide the area into several independent spaces.

These spaces emphasize solitude and reflection rather than communal interaction, offering visual, spatial, and atmospheric relief from adjacent spaces.

A visual barrier that protects the tranquility of the garden and Zen-like atmosphere.

The design ensures that all reflection spaces are kept separate from pedestrian flow.

Viewing Deck 1 to historical Port Hunter
The letter HEART in Chinese Charactor
Viewing Deck 2 to Nobbys Lighthouse

Ventilation Louvre

Detail

Ventilation Louvre
Solar Shading:
Solar Photovoltaic
Glass Curtain Wall
Plant Room
Nature Ventilation
Sun Light

LEVEL -1

LEVEL 0

LEVEL 2

LEVEL 1

LEVEL 3-6

LEVEL 7

ZEN Roof Garden

Medi-Centor On Mars

How we organize a medical center depends on the theoretical environment of Mars

Time: 06.2022

Type: Architect design

Location: Newcastle , Australia

Role: Single work

Establishing a colony on Mars will present unforeseen challenges to the health of its residents, with gravity and radiation being the primary medical risks. In this project, Under the Dome, addressing potential hazards and unexpected issues is crucial to ensure the mission’s safety. This involves the development of a medical center to support a community of 100 residents

VisitorFlow

Visitor Airlock (Registration)

Surgical Department

Staff Airlock (Emergency Entrance)

Diagnostic Tower

Diagnostic Department

Intensive Inpatient Care Area

Equipment Storage

General Inpatient Care Area

Thickness Concrete Roof (minimize health risks from space radiation)

Intensive Inpatient Capsule

1.Retractable films: enclose diagnostic area for privacy, ; radiation barrier for imaging equipment

2. Elevated platform : a clear view of all patients’ capsule

3 Central column structure to support the roof

Intensive Inpatient Capsule

1.a larger space to accommodate more medical equipment

2. inflatable mats on the medical chairs to reduce pressure on injured patients.

Genral Inpatient Capsule

1.Safety glass films with an independent breathing system

2. The medical chairs are adjustable for staff to perform procedures and for patients to recover comfortably

Genral Inpatient Capsule

Solar Panels
Skylight

Selected Extras

1. The conceptual sketch of a coastal building with an artificial lagoon beneath the structure

2.The pedestrian bridge design above the newcastle Inner-City Bypass

3. Runcheng district 6 scheme design (Intern)

Turn static files into dynamic content formats.

Create a flipbook