Julie Lo's Professional Portfolio

Page 1

PORTFOLIO Julie Lo
Comerica – Standard Size Offices (p.3) Comerica – Larger Offices (p.10) Confidential Technology Client – Fitness center (p.12) Confidential Technology Client – Workplace (p.16) School Work – Aviate (p.22) 2023 Julie Lo’s Portfolio 2
CONTEXTS

COMERICA BANK –STANDARD OFFICE SIZE

2023 Julie Lo’s Portfolio 3

STANDARD SIZE OFFICE FINISHES

FINISHES ESTABLISH VISUAL IDENTITY AND BRAND GUIDELNES

CARPET ACCENT CARPET RUG LUXURY VINYL 2023 JULIE LO’S PORTFOLIO 4
WALLCOVERING
FELT WALLCOVER FELT WALLCOVER PAINT 1 PAINT 2
SOLID SURFACE

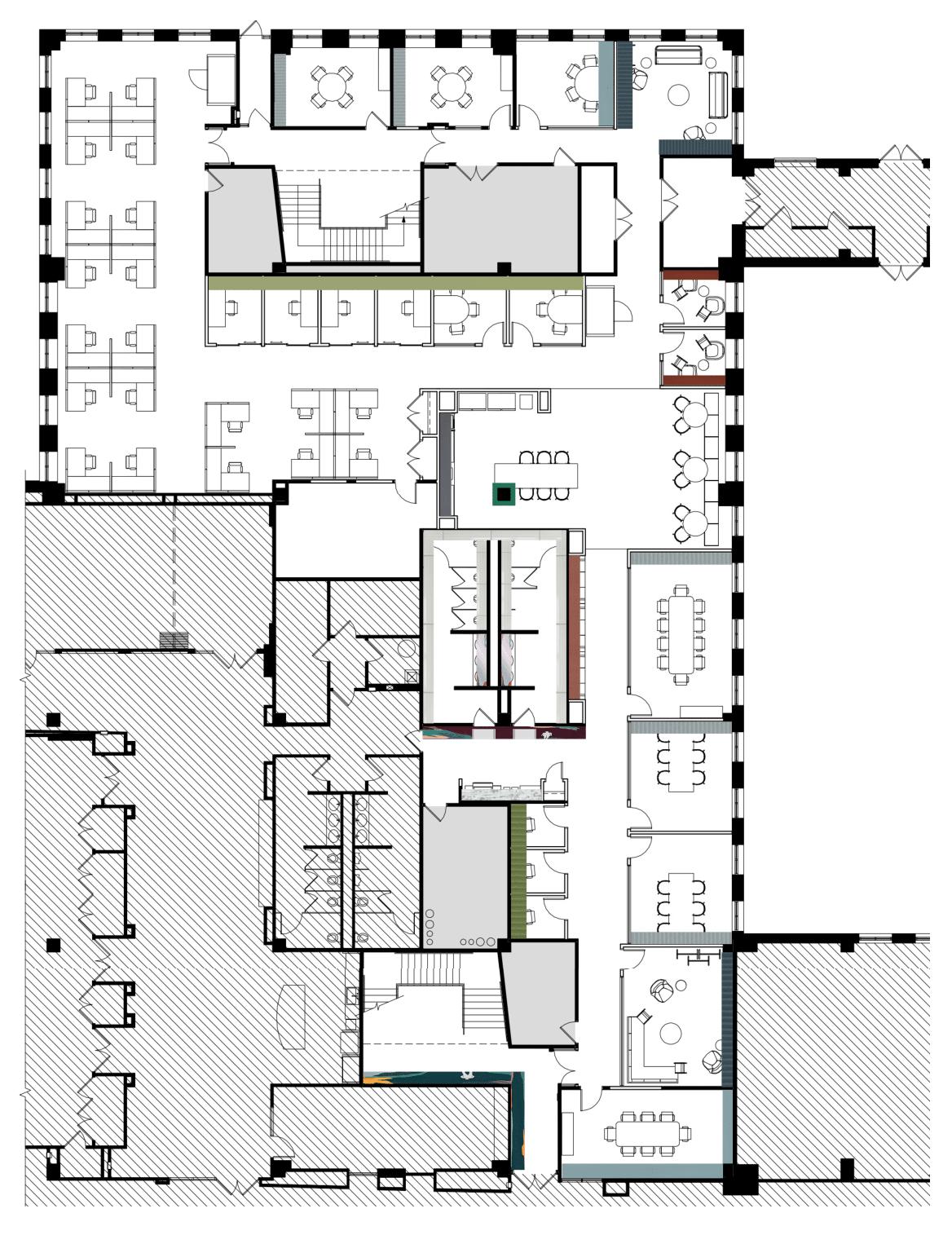
COMERICA STANDARD OFFICE SIZE | FLOOR FINISHES

EXAMPLE

2023 JULIE LO’S PORTFOLIO 5 OFAD OFAD THINK TANK LG CONF MED CONF BREAK RM STOR. DEN CLOSET
SIZE FIT PLAN
OF STANDARD

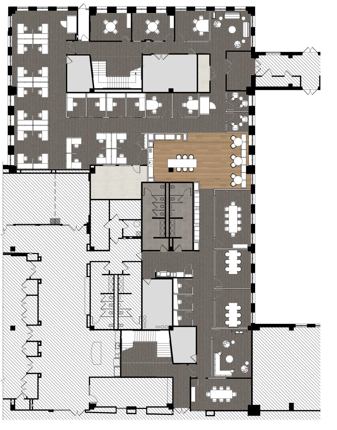
COMERICA STANDARD OFFICE SIZE | WALL FINISHES

EXAMPLE

2023 JULIE LO’S PORTFOLIO 6 OFAD OFAD THINK TANK LG CONF MED CONF BREAK RM STOR. DEN CLOSET
SIZE FIT PLAN
OF STANDARD
2023 JULIE LO’S PORTFOLIO 7
COMERICA STANDARD OFFICE SIZE | FINISH CD

COMERICA STANDARD OFFICE SIZE | ELEVATIONS CD

2023 JULIE LO’S PORTFOLIO 8

COMERICA STANDARD OFFICE

SIZE | FINAL PHOTOS

2023 JULIE LO’S PORTFOLIO 9

COMERICA BANK –LARGER

2023 Julie Lo’s Portfolio 10
OFFICES

COMERICA LARGER OFFICE | WORKPLACE

EXAMPLE OF MY LARGER FLOOR PLATES

2023 JULIE LO’S PORTFOLIO 11
2023 Julie Lo’s Portfolio 12
CONFIDENTIAL TECHNOLOGY CLIENT – FITNESS CENTER

TECHNOLOGY CLIENT | FITNESS CENTER FINISHES

ENERGETIC AND TRANQUIL DESIGN ELEMENTS, CREATING A HARMONIOUS AND DYNAMIC ENVIRONMENT

2023 JULIE LO’S PORTFOLIO 13

TECHNOLOGY CLIENT | FLOOR FINISHES

UTILIZING EXISTING STRUCTURE WITH NEW FINISHES

2023 JULIE LO’S PORTFOLIO 14
FITNESS CENTER 1 FITNESS CENTER 2
WOMEN’S LOCKER STORAGE
OPEN FITNESS CENTER MEN’S LOCKER RECEPTION OFFICE EVAL. RUBBER FLOOR
LUXURY VINYL TILE
2023 JULIE LO’S PORTFOLIO 15 FITNESS CENTER 1 FITNESS CENTER 2
LOCKER OPEN FITNESS CENTER MEN’S LOCKER STORAGE RECEPTION OFFICE EVAL.
TECHNOLOGY CLIENT | WALL FINISHES
WOMEN’S
EXISTING STRUCTURE WITH NEW FINISHES
PAINT PAINT WALL TILE UTILIZING

CONFIDENTIAL TECHNOLOGY CLIENT – WORKPLACE

2023 Julie Lo’s Portfolio 16

TECHNOLOGY CLIENT | WORKPLACE FINISHES

CREATING A LIVELY AND DYNAMIC ATMOSPHERE THAT INSPIRES PRODUCTIVITY AND CREATIVITY

2023 JULIE LO’S PORTFOLIO 17

CARPET ACCENT CARPET

TECHNOLOGY CLIENT | FLOOR FINISHES | FLOOR 1

UTILIZING EXISTING STRUCTURE WITH NEW FINISHES AND ARRANGING TO FIT PROGRAM

ACCENT CARPET

LUXURY VINYL

TILE

RUG

2023 JULIE LO’S PORTFOLIO 18 OFFICE
CONF
CONNECTOR CONF CONF CONF CONF COLLAB RESTROOM COPY/PRINT
OFFICE HUDDLE BREAKROOM
CONF HUDDLE LOUNGE

GREEN ZONES

BLUE ZONES

TECHNOLOGY CLIENT | WALL FINISHES | FLOOR 1

UTILIZING EXISTING STRUCTURE WITH NEW FINISHES AND ARRANGING TO FIT PROGRAM

ORANGE ZONES

WOOD SLATS

2023 JULIE LO’S PORTFOLIO 19 OFFICE
BREAKROOM CONF CONF HUDDLE LOUNGE CONNECTOR CONF CONF CONF CONF COLLAB RESTROOM COPY/PRINT
OFFICE HUDDLE

TECHNOLOGY CLIENT | FLOOR FINISHES | FLOOR 2

UTILIZING EXISTING STRUCTURE WITH NEW FINISHES AND ARRANGING TO FIT PROGRAM

LUXURY VINYL TILE ACCENT CARPET RUG

CARPET ACCENT CARPET

2023 JULIE LO’S PORTFOLIO 20 BREAKROOM / GAME ROOM KITHCEN LIBRARY LG CONF LG CONF LG CONF COLLAB RESTROOMS CONF COLLAB COLLAB LG CONF CONF CONF CONF CONF LOUNGE CONF COLLAB FOCUS COLLAB CONF OFFICES CONF CONF COLLAB FOCUS COLLAB COLLAB OFFICES FOCUS COLLAB STOR. COLLAB CONF BOOTHS CONF COLLAB WELLNESS FOCUS COLLAB COLLAB OFFICES OFFICES OFFICE CONF CONF CONF CONF COLLAB OFFICES COLLAB CONF COLLAB HUDDLE OFFICES CONF CONF CONF CONF COLLAB FOCUS FOCUS STOR. CONFERENCE

GREEN ZONES BLUE ZONES

TECHNOLOGY CLIENT | FLOOR FINISHES | FLOOR 2

UTILIZING EXISTING STRUCTURE WITH NEW FINISHES AND ARRANGING TO FIT PROGRAM

ORANGE ZONES

WOOD SLATS

2023 JULIE LO’S PORTFOLIO 21 BREAKROOM / GAME ROOM KITHCEN LIBRARY LG CONF LG CONF LG CONF COLLAB RESTROOMS CONF COLLAB COLLAB LG CONF CONF CONF CONF CONF LOUNGE CONF COLLAB FOCUS CONFERENCE COLLAB CONF OFFICES CONF CONF COLLAB FOCUS COLLAB OFFICES FOCUS COLLAB STOR. COLLAB CONF BOOTHS CONF COLLAB WELLNESS FOCUS COLLAB COLLAB OFFICES OFFICES OFFICE CONF CONF CONF CONF COLLAB OFFICES COLLAB CONF COLLAB HUDDLE OFFICES CONF CONF CONF CONF COLLAB FOCUS FOCUS STOR.

SCHOOL WORKAVIATE

2023 Julie Lo’s Portfolio 22

AVIATE | BRANDING DIRECTION

INSPIRED BY THE ICONIC DESIGN ELEMENTS OF THE UNITED STATES PASSPORT

2023 JULIE LO’S PORTFOLIO 23

AVIATE | VISUAL INSPIRATION

2023 JULIE LO’S PORTFOLIO 24

AVIATE | DIAGRAMS & SKETCHES

2023 JULIE LO’S PORTFOLIO 25

AVIATE | 1ST FLOOR (BELONG)

This floor consists of community areas, daycare for immigrants to utilize and classrooms. The community area is an interactive area to make them feel they belong within the community.

FLOOR RENDER

2023 JULIE LO’S PORTFOLIO 26
RCP

AVIATE | 2ND FLOOR (EXPLORE)

Explore floor is the location of the main entrance, café, museum, and tourism. The museum is the main feature, used to help immigrants explore the history of other immigrant cultures and allowing them to loop back to their culture.

FLOOR RENDER

2023 JULIE LO’S PORTFOLIO 27
RCP

FLOOR RENDER

AVIATE | 3RD FLOOR (SUPPORT)

2023 JULIE LO’S PORTFOLIO 28
RCP
The third-floor level is for support. It consists of translation service, job & house search services and English classes.

AVIATE | RENDERS & ELEVATIONS | 1 ST FLOOR (BELONG)

COMMUNITY LEARNING STAIRS

DAYCARE

RESTROOM ELEVATION

COMMON AREA LOUNGE

2023 JULIE LO’S PORTFOLIO 29

AVIATE | RENDERS & ELEVATIONS | 2 ND FLOOR (EXPLORE)

RECEPTION DESK

RECEPTION DETAIL CUT

FIREPLACE

BOOTH LOUNGE

2023 JULIE LO’S PORTFOLIO 30

AVIATE | RENDERS & ELEVATIONS | 2 ND FLOOR (EXPLORE)

BOOTH LOUNGE ELEVATION

AREA

2023 JULIE LO’S PORTFOLIO 31
CAFE TOURISM
OPEN MUSEUM

AVIATE | RENDERS & ELEVATIONS | 3 RD FLOOR (SUPPORT)

CLASSROOM

2023 JULIE LO’S PORTFOLIO 32
TOUCH DOWN LOUNGE TRANSLATION AREA
THANK YOU Julie Lo Lo.julie07@gmail.com 612-987-8471

Turn static files into dynamic content formats.

Create a flipbook
Issuu converts static files into: digital portfolios, online yearbooks, online catalogs, digital photo albums and more. Sign up and create your flipbook.
Julie Lo's Professional Portfolio by lo.julie07 - Issuu