Lauren McGibbon Architecture Portfolio 2025|Drexel University

Page 1


McGibbon portfolio. selected works

Lauren

Table of Contents

1

2

3

4

5 The Terrarium Mixed-Use Library and Apartments

The Community Canvas Reuse Project Mental Health/Maker Space

Stagger House Rowhouse Intergenerational Living

Bartram’s Bikescape Landscape Architecture Bike Infastructure A Better Logan Master Planning Community and Residential

6 Miscellaneous Multiple Mediums

THE TERRARIUM

During the site analysis process, it was discovered that there was a lack of gathering space for the teens and children in the area where the branch library and apartment building were to be constructed. During the precedent research visit to the Logan Library, one of the original Carnegie libraries, they communicated a desire for outdoor space to be included in their programming. To address these issues, the project focuses greatly on integrating greenspace and seating areas into the library program, connection to Francisville park across the street as well as the nearby row houses. The library’s greenscape terrain roof introduces a new type of urban park, offering views of center city and the courtyard spaces on the ground floor of the library extending the library seating capacity. Care was taken to incorporate varying levels of transparency into the building’s facades to enhance the connection between the main library and the two annex buildings used for children’s library and conference spaces. The interior courtyard areas were fully transparent, while the exterior facades utilized semi-private frosted glass to allow passersby to experience the movement inside the space before entering. The theme of community and connection was central to the design.

typical apartment floor

terrainscape level

section perspective through the site

A BETTER LOGAN

The Logan Neighborhood faces a critical need for spaces that sustain and enhance the lives of its residents, particularly the younger generations. The youth in this area lack access to economic and recreational opportunities. This project seeks to address this disparity by creating a design centered on improving the quality of life for the youth of Logan Triangle. By empowering the youth to explore and cultivate their individual talents and interests, this project will not only enrich their current lives but also pave the way for a brighter and more equitable future for the entire Logan community.

connection points (top left), plaza paths (bottom left), circulation(right)

roosevelt blvd streetscape

ROOSEVELT BLVD
300’ RIGHT OF WAY
PEDESTRIAN

EQUITABLE EDUCATION OPPORTUNITES

PUBLIC SAFETY INFRASTRUCTURE

AFFORDABLE HOME OWNERSHIP

A BETTER LOGAN

RETAIL/ SMALL BUSINESS OPPORTUNITES

BETTER PHYSICAL HEALTH

COMMUNAL GARDENS/ RECREATIONAL GREENSPACE

floor area ratio calculation(left), the gap(right)

wyomming ave streetscape

site plan (program)

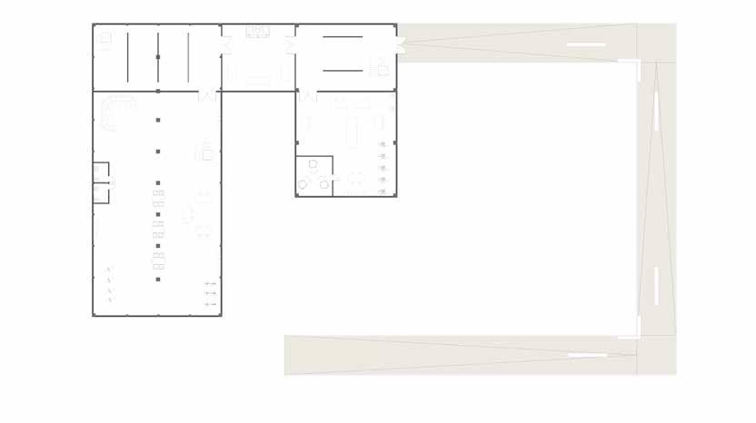
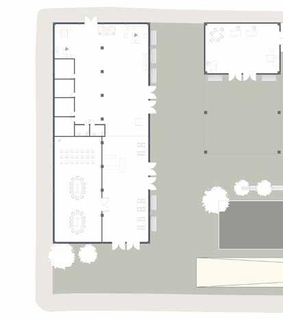
THE COMMUNITY CANVAS

The Community Canvas is a reuse project repurposing the old Samuel Powel School. It functions as a hybrid wellness center and maker space, focused on teenagers and young adults experiencing anxiety and other mental health challenges. Its purpose is to provide them with a place to unwind and socialize with individuals facing similar struggles. The main building’s ground floor is dedicated to various forms of therapy, while the upper two floors are dedicated to fiber arts and traditional art mediums. The annex to the building is exclusively focused on pottery, a craft known for its natural reuse of materials and its capacity to reduce stress and increase happiness. The top two floors house pottery studios, with the highest floor also serving as a gallery space connecting both buildings together.

concept diagrams

courtyard view
lobby view

longitudinal site section facing north

transverse section facing west

STAGGER HOUSE

In designing an intergenerational typology, the main focus was on creating a connection throughout the spaces while also providing individual spaces for each family member. To achieve this, the bedrooms were staggered on each floor, and the stairs and communal spaces were aligned on all floors. The ground floor was designated as the grandparent’s suite, the top floor for the parents, and the middle floor for the children making them easily accessible to both grandparents and parents.

Another key consideration in the design was the access to natural light, as the row house was located in the center of the block. This was achieved by incorporating an outdoor courtyard area on the second floor to serve as a secondary gathering space and allow light into the center of the building. A skylight was added to the floor to enable light to penetrate all the way to the first floor, and another skylight was installed at the top of the stairs.

To maintain privacy on the public facade, the glass walls on the front facade were covered with brise soleil. The stagger motif was carried through to the back facade with partial glass walls. This design creates a harmonious intergenerational living space with ample natural light while still maintaining privacy in its urban environment.

section perspective of building

BARTRAM’S BIKESCAPE

Bartram’s Bikescape is a bike rental shop positioned at the entry of Bartram’s North. The shop provides bike rentals and repairs, a snack station, and restrooms for the public. This project embodies the seamless blend of adventure and relaxation within Bartram’s North. Enveloping the tranquil courtyard is a versatile ramp scape that caters to both pedestrians and cyclists while offering varying viewpoints of the site and Schuylkill River.

building section facing southeast
site section facing southwest

building plan w/site context

MISCELLANIOUS

In this miscellaneous section, you will find some of my artwork from high school, spanning various mediums. This section also includes various college projects, including an Arduinoprogrammed music box and a luminaire that I designed for the IES Philadelphia Design with Light competition.

“Flamingo on the Beach” in marker (18x24)

arduino-programmed music box

DESIGN WITH LIGHT THE ART OF FORGETTING

This luminaire is named after the album and tour of this concert “The Art of Forgetting” by Caroline Rose (2023). The album is about cherished memories and loss but also healing and love. I want the luminaire to evoke a sense of awe and tranquility like beloved memories washing over you like waves. Throughout the concert, the sound of waves are layered over audio clips and homevideos of past loved ones creating this feeling of nostalgia.

The bottom lighting source is a single LED bulb positioned to cast direct illumination onto the innermost layer of matboard and vellum, creating contrast and emphasizing the form. Surrounding this core, a secondary layer of LED strip lighting at the top of the luminaire provides accent color, enhancing the depth and dimensionality of the layered pattern. The two parallel light sources will combine together to make a uni ed and cohesive visual e ect. Since LED light sources are being utilized, there is a variety of lighting e ects using one or both to create di erent moods.

Lauren McGibbon|Drexel 2+4 program, B.Arch

Turn static files into dynamic content formats.

Create a flipbook
Issuu converts static files into: digital portfolios, online yearbooks, online catalogs, digital photo albums and more. Sign up and create your flipbook.