portf_lmaquera

Page 1

L i z b e t h F r e c i a M a q u e r a Q u e n a y a P O R T A F O L I O ANÁLISIS ARQUITECTÓNICO U N I V E R S I D A D N A C I O N A L J O R G E B A S A D R E B R O H M A N N E S C U E L A P R O F E S I O N A L D E A R Q U I T E C T U R A I Y I I U N I D A D
04 05 La Arquitectura. Conceptos Ciencia y Arte 01 02 03 06 Teoría de la creatividad en el diseño y la arquitectura. Métodos de diseño arquitectónico. Elementos fundamentales de la Arquitectura. Elementos variables de la Arquitectura Elementos que cumplen más de una función. Las preexistencias ambientales. CONTENIDO P O R T A F O L I O 10 11 La geometría en la Arquitectura 07 08 09 El Espacio y la Forma en Arquitectura La función en la arquitectura El Análisis Arquitectónico
IUNIDAD IIUNIDAD 1 A N Á L I S I S A R Q U I T E C T Ó N I C O
Conceptualización

LA ARQUITECTURA ES

UNA EXPRESIÓN DE VALORES. LA FORMA EN QUE CONSTRUIMOS ES

UN REFLEJO DE NUESTRA

FORMA DE VIVIR.

2 P O R T A F O L I O
A N Á L I S I S A R Q U I T E C T Ó N I C O
Norman Foster

1. ARQUITECTURA

La Arquitectura.
P O R T A F O L I O A N Á L I S I S A R Q U I T E C T Ó N I C O 3
Conceptos Ciencia y Arte

¿Qué es la arquitectura?

“Es el arte de crear formas, espacios para ser habitadas que generen sensaciones, también para satisfacer las necesidades de la comunidad y ser perdurables en el tiempo siendo así nuestra huella en el mundo, utilizando los recursos naturales.

4 A N Á L I S I S A R Q U I T E C T Ó N I C O P O R T A F O L I O

FRASE

"La Arquitectura es una ciencia adornada de otras muchas disciplinas y conocimientos, descansa sobre tres principios básicos, la Venustas (belleza), la Firmitas (firmeza) y la Utilitas (utilidad), siendo finalmente la arquitectura, un equilibrio entre estas tres variables y la ausencia de una de ellas, haría que la obra no pudiera ser considerada como tal".

"La arquitectura debe estar basada en la sencillez, la proporción y la integración en el paisaje”.

“La arquitectura debía manifestar, desde el exterior, a través de su forma, a qué se dedicaba el edificio o el personal que habitaba en él”.

“La experiencia demuestra que el dibujo no es lo único que hay que enseñar a los alumnos; se les tiene que invitar al arte de construir”.

“La arquitectura es el arte de levantar y de decorar los

edificios construidos por el hombre, cualquiera que sea su destino, de modo que su aspecto contribuya a lasalud, alafuerzayal placerdelespíritu”.

5 John
Claudio LABROUSTE X X ARTE CIENCIA X O X CONSTRUIR
POLIÓN , Marco LEDOUX,
HABITAR
, Henri
X
X O O X
RUSKIN, VITRUBIO PALLADIO X
X
A N Á L I S I S A R Q U I T E C T Ó N I C O P O R T A F O L I O X X X SOCIAL X O

"La arquitectura es el arte de construir. Se compone de dos partes, la teoría y la práctica. La teoría comprende: el arte propiamente dicho, las reglas sugeridas por el gusto, derivadas de la tradición, y la ciencia, que se funda sobre fórmulas constantes y absolutas. La práctica eslaaplicación de lateoría a las necesidades; es la práctica la que pliega el arte y la ciencia a la naturaleza de los materiales, al clima, a las costumbres de unaépoca, alas necesidadesdeun periodo".

“La arquitectura se está convirtiendo de nuevo en parte integral de nuestra existencia en algo dinámico y no estático. Vive, cambia, expresa lo intangible a través de lo tangible. Da vida a materiales inertes al relacionarlos con el ser humano. Concebida así,su creación esunactodeamor”.

Walte r espíritudelaépocaenquesedesarrolla”.

“Siempre he creído que la arquitectura no debe guiarse por la invención de formas inéditas ni por gustos individuales. La arquitectura, para mí, es un arte objetivo y debe regirse por el

“La arquitectura debe de ser laexpresión de nuestro tiempo y no un plagio de las culturas pasadas”

“La arquitectura es el juego maestro, correcto y magnífico de los volúmenesbajolaluz”.

“La arquitecturaesla madredelarte”.

“La arquitectura es la vida; la vida misma tomando forma tal como fue vivida enelmundo deayer, talcomo se vive hoyen día, o sevivirá”.

6 E C T Ó N I C O P O R T A F O L I O ARTE X CIENCIA CONSTRUIR X HABITAR O SOCIAL FRASE , LE DUC, V i o llet Le Corbusier Van Der Rohe, Mies GROPIUS, O X X X X X O O X X O X X X X

VALORACIÓN DIFICULTAD EXIGENCIA

MOTIVACIÓN

APORTE EN MI FORMACIÓN

Es importante saber como estudiantes de arquitectura la definición de lo que es la arquitectura, en esta clase pude conocer los diferentes enfoques de la arquitectura de algunos arquitectos que hicieron historia.

AGRADO R E F L E X I Ó N
7 A N Á L I S I S A R Q U I T E C T Ó N I C O P O R T A F O L I O

2. CREATIVIDAD

Teoría de la creatividad en el diseño y la arquitectura.

A N Á L I S I S A R Q U I T E C T Ó N I C O P O R T A F O L I O

Teoría del diseño C A S A

P R I N C I P I O S O R D E N A D O R E S

I N V I S I B L E

ANALISIS DE VIVIENDA DATOS GENERALES

DISEÑADO POR: Tomas Osinsk y el productor de cine Chris Hanley

UBICACIÓN: Parque Nacional Joshua Tree, en California, EEUU

DISTRIBUCIÓN DE LOS ESPACIO: 4 habitaciones, 5 baños y una piscina de 30 metros de largo

Eje y simetría. Se observa como una línea recta destaca en la casa así como una simetría alrededor de esta

R E L A C I Ó N

E S P A C I A L

Los espacios en la casa invisible se encuentran uno tras del otro para aprovechar la forma rectangular que tiene su planta, por lo que la relación espacial presente es la Yuxtaposición (los espacios se multiplican y comunican entre ellos, se generando espacios encadenados).

I L U M I N A C I Ó N

Se aprovecha la luz natural a través del uso de puertas corredizas de vidrio que van del piso al techo

R A D O D E

Al estar recubierta de cristal templado mantiene una buena relación con el exterior. Desde su interior se puede apreciar todo el paisaje natural que presenta la zona.

J

E R A R Q U Í A

El espacio más grande de la casa es la piscina de 30 metros de largo que recorre el salón, que a su vez crea un ambiente mas elegante , rígido y fresco, contrastando con el paisaje desértico del exterior

E S T I L O

El estilo minimalista que se integra perfectamente con el paisaje, el suelo es de cemento y los techos dejan ver las vigas de la estructura industrial.

A N Á L I S I S A R Q U I T E C T Ó N I C O P O R T A F O L I O
C E R R
G
A M I E N T O
9

Fue interesante analizar una edificación en medio del desierto, y ver como se aprovechó los materiales y la distribución de los espacios en un solo lugar integrado.

9 9 A N Á L I S I S A R Q U I T E C T Ó N I C O P O R T A F O L I O 10
APORTE EN MI FORMACIÓN AGRADO R E F L E X I Ó N
VALORACIÓN DIFICULTAD EXIGENCIA MOTIVACIÓN

3. MÉTODODE DISEÑO

Método de diseño arquitectónico

A N Á L I S I S A R Q U I T E C T Ó N I C O P O R T A F O L I O

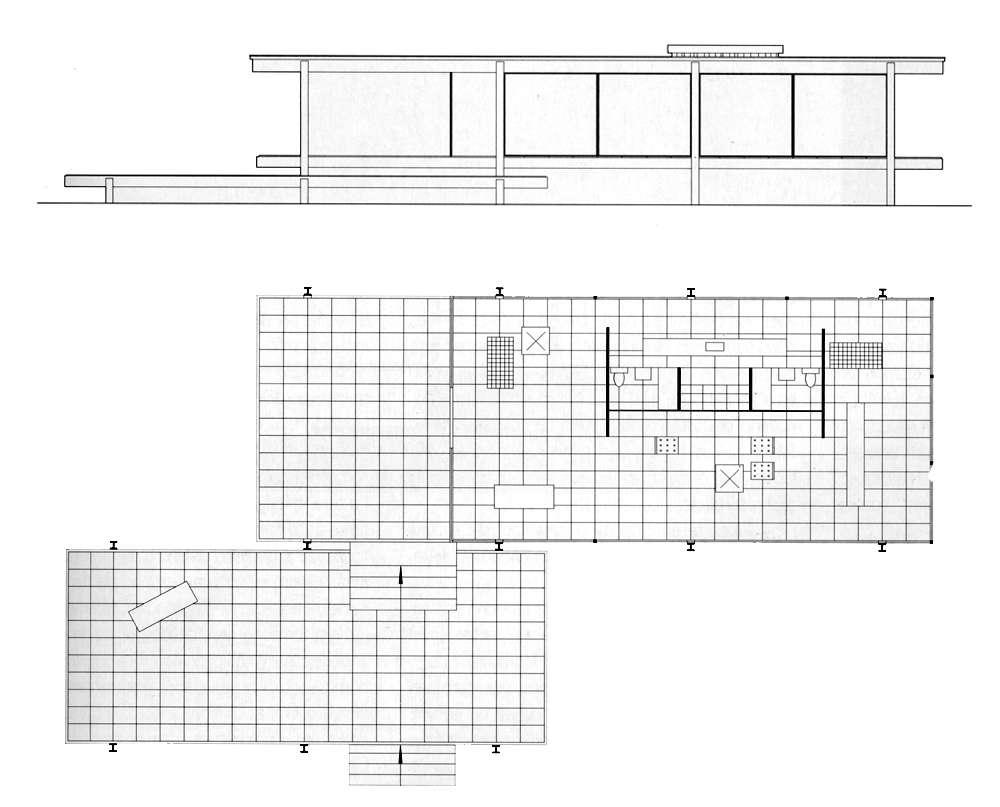
Casa Farnsworth

MIES VAN DER ROHE

DESCRIPCIÓN GENERAL

CONCEPTO

La transparencia permite que desde el interior se tenga plena conciencia del paisaje, pero también actúa a la inversa, al incorporar el espacio interior de la casa al enclave de modo radical.

El pabellón vidriado parece flotar y presenta una fuerte relación con su entorno, mostrando la esencia de la simplicidad en su volumen de forma pura.

Mies estudia cuidadosamente cada elemento en función de su repercusión en el nuevo sitio que así se ordena.

MÉTODO DE DISEÑO ARQUITECTÓNICO

LÍNEAS

DISEÑADO POR: Arq. Mies van der Rohe

UBICACIÓN: Plano, Ilinois, Estados Unidos

AÑO PROYECTO: 1946-1950

Área Proyecto: 206 m2

SIMETRÍA/ ASIMETRÍA

RITMO Y REPETICIÓN

MÉTODO DE DISEÑO

Arquitectónico

DISEÑO CANÓNICO

FORMA GEOMÉTRICA

Simplicidad en su volumen de forma pura, predominando el plano rectangular

RESALTA LA FORMA

GEOMÉTRICA DEL EDIFICIO

SISTEMA DE PROPORCIONALIDAD

Uniformidad a todo el conjunto Continuidad de la secuencia espacial

Planos horizontales

Planos verticales

Plataformas

Determinan la relación entre interior y exterior

A N Á L I S I S A R Q U I T E C T Ó N I C O P O R T A F O L I O

VALORACIÓN

Las construcciones más famosas se distinguen y al analizarlas se pudo identificar los distintos tipos de métodos de diseño arquitectónico empleado, esto hace que la arquitectura resalte y sea interesante.

9 9 A N Á L I S I S A R Q U I T E C T Ó N I C O P O R T A F O L I O 13
APORTE EN MI FORMACIÓN AGRADO R E F L E X I Ó N
DIFICULTAD EXIGENCIA MOTIVACIÓN

4. ELEMENTOS

Elementos fundamentales de la Arquitectura.

Elementos variables de la Arquitectura

A N Á L I S I S A R Q U I T E C T Ó N I C O P O R T A F O L I O

Elementos fundamentales

A N Á L I S I S A R Q U I T E C T Ó N I C O P O R T A F O L I O E L P A B E L L Ó N D E B A R C E L O N A
15

Elementos fundamentales

A N Á L I S I S A R Q U I T E C T Ó N I C O P O R T A F O L I O E L P A B E L L Ó N D E
16
B A R C E L O N A

Elementos variables

E L P A B E L L Ó N D E B A R C E L O N A
A N Á L I S I S A R Q U I T E C T Ó N I C O P O R T A F O L I O 17

Elementos variables

E L P A B E L L Ó N D E B A R C E L O N A
A N Á L I S I S A R Q U I T E C T Ó N I C O P O R T A F O L I O 18

En esta clase aprendimos a identificar los distintos elementos de la arquitectura, esto me ayuda a poder proponer en mis diseños elementos que sobresalgan, así estaré aplicando lo aprendido.

9 9 A N Á L I S I S A R Q U I T E C T Ó N I C O P O R T A F O L I O 19
MOTIVACIÓN APORTE EN MI FORMACIÓN AGRADO R E F L E X I Ó N
VALORACIÓN DIFICULTAD EXIGENCIA

5. MÁS DE UNA FUNCIÓN

Elementos que cumplen más de una función.

A N Á L I S I S A R Q U I T E C T Ó N I C O P O R T A F O L I O

R E C O N O C E R L O S

E L E M E N T O S Q U E C U M P L E N

M Á S D E U N A F U N C I Ó N E N

M I P R O Y E C T O D E L C U R S O

D E T A L L E R I

R E S I D E N C I A

P O L I F U N C I O N A L

E l t r a b a j o c o n s i s t i ó e n r e a l i z a r u n a r e s i d e n c i a e s t u d i a n t i l u b i c a d o e n M o k a r a - T a r a t a .

L a p r o p u e s t a d e l d i s e ñ o r e s p o n d e a l a s n e c e s i d a d e s d e l o s e s t u d i a n t e s , i n v e s t i g a d o r e s y p e r s o n a l d e l a U N J B G , d e s a r r o l l a n d o e s p a c i o s s e g ú n t i p o d e u s u a r i o , e s p a c i o s f l e x i b l e s , m ó d u l o s d e d o r m i t o r i o s p a r a e s t u d i a n t e s y d o c e n t e s .

A N Á L I S I S A
P O R T A F O L I O 21
R Q U I T E C T Ó N I C O

Gracias a esta clase me di cuenta que aún me falta incorporar más elementos en mi diseño de Taller que cumplan más funciones, Así mismo, el poder identificar más elementos en otros proyectos me ayudó bastante.

9 9 A N Á L I S I S A R Q U I T E C T Ó N I C O P O R T A F O L I O 22
MOTIVACIÓN APORTE EN MI FORMACIÓN AGRADO R E F L E X I Ó N
VALORACIÓN DIFICULTAD EXIGENCIA

6. PREEXISTENCIAS AMBIENTALES

Las preexistencias ambientales.

A N Á L I S I S A R Q U I T E C T Ó N I C O P O R T A F O L I O
A N Á L I S I S A R Q U I T E C T Ó N I C O P O R T A F O L I O 24
A N Á L I S I S A R Q U I T E C T Ó N I C O P O R T A F O L I O 25

Preservar los elementos naturales preexistentes del lugar es una manera de respetar el sitio en el que se construirá, Esto lo podemos aprovechar en nuestros diseños, y no verlo como un problema, sino como una oportunidad de incluirlo en el diseño.

9 9 A N Á L I S I S A R Q U I T E C T Ó N I C O P O R T A F O L I O 26
APORTE EN MI FORMACIÓN AGRADO R E F L E X I Ó N
VALORACIÓN DIFICULTAD EXIGENCIA MOTIVACIÓN

7. GEOMETRÍA

La geometría en la Arquitectura

A N Á L I S I S A R Q U I T E C T Ó N I C O P O R T A F O L I O

CentroHeydarAliyev

Es un edificio diseñado por la arquitecta Zaha Hadid. Situado cerca del centro de la ciudad, el sitio tiene un papel fundamental en la reurbanización de Bakú, República de Azerbaiyán, en la costa occidental del Mar Caspio.

Expresar la sensibilidad de la cultura azerí y el optimismo de una nación que mira al futuro.

La geometría de la superficie obligó a adoptar soluciones estructurales no convencionales, tales como la introducción de las columnas de arranque curvas.

Sehaaprovechadolaladeranaturalparatrazarunasenda enzig-zagenlavegetación.

¿Elpartidoarquitectónicoseenlaza coneltipodeedificación?

El proyecto se compone por una sucesión de planos ondulados, en donde no se utiliza ni una sola línea recta.

Formas orgánicas asimetría

DISEÑO PARAMÉTRICO

El paisaje emerge para mezclarse con el edificio formando montículos de tierra, mientras que el edificio se mezcla con el entorno.

El edificio establece una relación continua y fluida entre la plaza y el interior del edificio. Por lo que podemos decir que si guarda relación el partido con el tipo de edificación.

Se trata de un edificio con un diseño paramétrico, por lo que no tiene límites, es atrevido y dinámico. Se centra en configuraciones orgánicas, continuas, fluidas y armónicas.

A N Á L I S I S A R Q U I T E C T Ó N I C O P O R T A F O L I O 28
EJEPRINCIPAL
CARACTERÍSTICAS
Pliegues Inflexión

Socar&Wissol RestStop

La organización de las lineal de acuerdo al eje se ven como volumenes

Intersecciones de volúmenes

Intersecciones redondeadas

EJEPRINCIPAL

Mediante lo volúmenes se espe no ocupar el medio, decir construir s destruir parte de vegetación.

Unificación de los volumenes con las formas curvas creando un sólido

Los volúmenes están intersectados en distintas direcciones lo cual genera que la forma sea muy interesante y orgánica.

A N Á L I S I S A R Q U I T E C T Ó N I C O 29

FORMA

La forma que presenta la gasolinera está dada por la intersección de prismas rectangulares, los cuales generan formas abiertas, es por eso que las interseciones crean la cobertura y el soporte.

¿Elpartidoarquitectónicoseenlaza coneltipodeedificación?

El partido arquitectónico que tiene es por modelado de envolvente gemétrico. Las estaciones que se se presentan cuentan con una misma tipología dada por su organización formal, es decir que estas toman una forma geométrica determinada como molde el cual sirvió para desarrollar las edificaciones, tomando volúmenes intersectados para acoplarse a un molde rectangular, pero sin perder dinamísmo. Es por eso que se enlaza con el tipo de edificación.

A N Á L I S I S A R Q U I T E C T Ó N I C O P O R T A F O L I O 30

Facultaddeestudios islámicosdeQatar

Facultad de Estudios Islámicos de Qatar, diseñado por Mangera Yvars Architects, Ali Mangera, Ada Yvars Bravo, se encuentra en Ciudad de la Educación, AlRayyan, Doha, Qatar.

Es la única universidad autóctona qatarí emplazada en el campus llamado Education City. El esquema brinda espacio para la enseñanza de nivel mundial y para el cuerpo docente, un centro de investigación y la mezquita del campus.

La forma general del edificio se inspiró en el sello evocando un partido con formas compuestas

ZONASVERDES SEAPRECIANFORMAS ORGÁNICAS

A N Á L I S I S A R Q U I T E C T Ó N I C O P O R T A F O L I O 31
EJE COMPOSITIVO INTERIOR

Al momento de diseñar es importante considerar la organización de las formas en el espacio, tomar en consideración que nuestro diseño debe estar regido por un orden reticular, que responda a las condiciones del lugar, Obteniendo un orden y sentido, para evitar generar ruidos visuales

9 9 A N Á L I S I S A R Q U I T E C T Ó N I C O P O R T A F O L I O 32
APORTE EN MI FORMACIÓN AGRADO R E F L E X I Ó N
VALORACIÓN DIFICULTAD EXIGENCIA MOTIVACIÓN

8. ESPACIO Y FORMA

A N Á L I S I S A R Q U I T E C T Ó N I C O P O R T A F O L I O
El Espacio y la Forma en Arquitectura

ESPACIO Y FORMA

MODELADO ESPACIAL

ESPACIOS MÚLTIPLE POR TRANSPARENCIA

ESPACIOS DE PERCEPCIÓN DE UNIDAD DIRECCIONADO

Formas del espacio

Laformaenvolventedel espacioesuncilindro

ESPACIOS EXTERIORES

El volumen celeste sustraído es el espacio contenido en esta composición. El vacio tiene una forma geométrica definida.

ESPACIO DE PERCEPCIÓN MÚLTIPLE POR TRANSPARENCIA

Indicaciones de movimiento fisicovisual nos conducen en una dirección determinada.

ESPACIO MULTIPLE POR ARTICULACIÓN

Por medio de movimientoarticulaciones- en los planos de pisos se puede generar espacios diferenciados. Se percibe espacios contigüos, los que nos permiten movernos hacia ellos.

TRANSPARENCIA

ESPACIOS MÚLTIPLE

A N Á L I S I S A R Q U I T E C T Ó N I C O P O R T A F O L I O
34
Drecrz Drectrz

Es importante reconocer los elementos, las formas en que se componen una edificación y las sensaciones que nos generan, Tanto en el espacio interior, como en el exterior, ya que tendrán un impacto en las personas, Poder incorporar estos conocimientos a nuestras entregas de taller nos ayuda a mejorar y entender la arquitectura,

9 9 A N Á L I S I S A R Q U I T E C T Ó N I C O P O R T A F O L I O 35
APORTE EN MI FORMACIÓN AGRADO R E F L E X I Ó N
VALORACIÓN DIFICULTAD EXIGENCIA MOTIVACIÓN

9. FUNCIÓN

La función en la arquitectura

A N Á L I S I S A R Q U I T E C T Ó N I C O P O R T A F O L I O

RESIDENCIA POLIFUNCIONAL ANALISIS FUNCIONAL

Á Ó P O R T A F O L I O
37 PLANIMETRÍA GENERAL
MÓDULO
MÓDULO - ESTUDIANTES
- DOCENTES

ESPACIO FLEXIBLE

MIRADOR

A N Á L I S I S A R Q U I T E C T Ó N I C O
A N Á L I S I S A R Q U I T E C T Ó N I C O P O R T A F O L I O 39

La función en la arquitectura es importante, ya que un edificio o espacio arquitectónico debe cumplir y satisfacer las necesidades de las personas, esto debe estar relacionado con la forma y espacios que permita el adecuado desarrollo de sus actividades y necesidades.

9 9 A N Á L I S I S A R Q U I T E C T Ó N I C O P O R T A F O L I O 40
MOTIVACIÓN APORTE EN MI FORMACIÓN AGRADO R E F L E X I Ó N
VALORACIÓN DIFICULTAD EXIGENCIA

10. ANÁLISIS

El Análisis Arquitectónico

A N Á L I S I S A R Q U I T E C T Ó N I C O P O R T A F O L I O

Ubicac ón del emp azam ento

De o general a lo particular

Tomar en cuenta a topograf a del lugar

Croqu s y anotaciones

Recorrer el lugar

Captar part cular dades Investigar a h stor a del emplazam ento

Entender a vo untad del ugar para formar parte de ella. Tomar conc encia de emplazam ento en re ación con el contexto

GENIUSLOCI

Cada ser tiene un espíritu de vida:

-pueblos, lugares -esencia del ser

"La historia del lugar es su auto-realizac ón"

ZONASVERDES

La arqu tectura sostenib e viene desde sus n cios y esta mal conceptuada como algo rec ente V truvio en 27 a C hac endo referencia a la e ección de parajes sanos para fundar as ciudades

Anál sis historico

Aná s s de flujos e ntens dad

Autos peatones, motos bicic etas etc

Sentidos, Jerarquía Ritmo

Elementos de reposo-movimiento

Bancos cafés mirador etc

Será necesar o que el proyecto en relac ón a su contexto genere estabil dad en las zonas dest nadas a sus habitantes

MOVIMIENTOQUIETUD

Sedebeintegrar el reposo yel movimiento. Unlugarde sosiego, produciendo unlugarde quietud para admirar.

METODOLOGÍA DE ANÁLISIS DEL CONTEXTO

V suales y colores predominantes

Ru dos

O ores

Texturas

Recorrido de sol y la luna

Clima

Temperatura y vientos

Uso de suelo y puntos de nterés

Cortes sign ficat vos entre el emplazam ento y el contexto

Alturas de edif cac ones ex stentes

Relac ón entre los llenos y vac os

Estud o de fachadas próximos.

Es mportante tener presente nuestro propio cuerpo como "lugar de a percepción"

ANALISIS SENSORIAL

Al ponerse en movimiento producen un estímulo en losórganos sensoriales que conducen ala percepciónde colores, sonidos,etc.

Aproximacióninterdisciplinar

ESTUDIO ETNOGRÁFICO

Perm te obtenernformación de forma d recta de las fuentes primarias, involucrando a las personas, lugar y t empo

Son válvu a de escape desde el ámb to fís co y v sua .

Forman m croclimas donde se destaca la luz favoreciendo a a vent lac ón y la humedad necesar as

Ayuda a comprender e funcionamiento de un barrio y conocer sus neces dades

ITEMS PARA OBSERVACIÓN

Ob et vos de la observac ón: Se ref exiona obre os n ereses

Observac ón: Reconoc m ento de contexto se dent ca persona es sus comportam entos para ndagar mas en a fase de entrev sta

Entrev stas Se destaca tres pun os c ave a ndagar Caracter zac ón e uso del espac o y op nión Reg stro de datos observados

Aná sis de datos

Elaboración de nforme etnográf co

SÍNTESIS

A través de estos items se un diálogo con el barrio con el fin de fundir el proyecto arquitectónico en el contexto.

El v nculo con el otro o los otros, haciendo especial hincapié en a d mens ón humana

Para obtener propuestas que estén relacionadas con el contexto que se van a desarro ar

Será necesar o conocer en detalle e contexto y saber identificar y relac onar dist ntos elementos para tener una percepción c ara

CELEMENTOS EONSTRUIDOS XISTENTES

El lugar es lo que acompaña al ser humano

"El lugar es un constante y triple encuentro entre el medio exterior, nosotros y los demás"

CONCLUSIONES

Esfundamentalunanálisisen

profundidaddelsectora intervenirparapoder adentrarnosensus problemáticas,sus necesidadesy sus posibilidades.

Este método otorga una actitud crít ca que perm te tener una mayor fundamentación de los proyectos

Existe un mayor vínculo entre el proyecto arqu tectón co, sus habitantes y e tejido urbano teniendo mayor concienc a de emplazamiento sus signif cados, neces dades y su relación con la ciudad

A N Á L I S I S A R Q U I T E C T Ó N I C O P O R T A F O L I O 42

VALORACIÓN

El artículo resumido, nos da pautas y consideraciones para un análisis arquitectónico minucioso, esto nos ayuda a poder tener base de lo que vamos a diseñar. Y para eso es fundamental un análisis en profundidad del sector a intervenir para poder adentrarnos en sus problemáticas, sus necesidades y posibilidades.

A N Á L I S I S A R Q U I T E C T Ó N I C O P O R T A F O L I O 43
R E F L E X I Ó N
DIFICULTAD EXIGENCIA MOTIVACIÓN APORTE EN MI FORMACIÓN AGRADO

11. CONCEPTO

Conceptualización A N Á L I S I S A R Q U I T E C T Ó N I C O P O R T A F O L I O

CONCEPTO

POR ANALOGÍA A LA NATURALEZA

PRINCIPAL INSPIRACIÓN:

La forma cilíndrica toma su mientras que sus espacio elementos tradicionales de como los mojinetes de sus prismáticas de sus edificios e

Cerro Baúl, hito de Moquegua por geografía e historia

CERROBAÚL

GEOMETRIZACIÓN DE LA FORMA

Bocetos conceptuales de los arquitectos del proyecto

Se toman elementos tradicionales de la arquitectura en el sur del país, como los mojinetes de sus casas y las formas puras y prismáticas de sus edificios emblemáticos.

A N Á L I S I S A R Q U I T E C T Ó N I C O P O R T A F O L I O
CASAS MOJINETEEN MOQUEGUA CASAS MOJINETEEN MOQUEGUA
45

La conceptualización es la esencia de un proyecto, una guía y a través de sus formas nos comunica lo que quiere transmitir. Al investigar el proyecto de la Sede de Moquegua, fue interesante estudiar el concepto propuesto por los arquitectos, una idea que integra lo cultural y elementos tradicionales de Moquegua en formas geométricas simples.

9 9 A N Á L I S I S A R Q U I T E C T Ó N I C O P O R T A F O L I O 46
MOTIVACIÓN APORTE EN MI FORMACIÓN AGRADO R E F L E X I Ó N
VALORACIÓN DIFICULTAD EXIGENCIA

PROGRAMA DE ESTUDIO: Arquitectura

AÑO ACADÉMICO / CICLO: 2023-I

SEMESTRE DE ESTUDIO: Tercer

DOCENTE : Arq. Esther Chambe Vega - sección B

PERFIL DEL CURSO SUMILLA

2.1. Naturaleza: Asignatura del Área de Estudios Específicos y de Especialidad, de la subárea de Teorías e Historias.

2.2. Propósito: Promover el entendimiento del aspecto funcional; así como la importancia determinante del contexto dentro del proceso de diseño.

2.3. Contenido:

Unidad I: La arquitectura, teoría y análisis. Aspectos formales y espaciales.

Unidad II: La forma y el espacio. Análisis Arquitectónico

COMPETENCIAS

4.1. Competencia genérica: Reflexiona sobre la diversidad de territorios y el respeto sobre la protección a los diversos ecosistemas.

4.2. Competencias específicas: Desarrolla propuestas arquitectónicas y urbano arquitectónicas aplicando el método de diseño, normatividad vigente para resolver las necesidades de equipamiento de la sociedad.

Infiere los procesos de análisis, desarrollo y formulación de propuestas de diseño viables en respuesta a las necesidades de un contexto determinado

A N Á L I S I S A R Q U I T E C T Ó N I C O P O R T A F O L I O

PERFIL DEL ESTUDIANTE

PASATIEMPOS Dibujar Música Leer LIZBETH FRECIA MAQUERA QUENAYA Asoc. Vista Alegre Mz. 31 Lte. 14 - G.A.L. 959 700 147 lmaqueraque@unjbg.edu.pe
FORMACIÓN ACADÉMICA
2022 - actualidad
UNIVERSIDAD NACIONAL JORGE BASADRE GROHMANN (Tacna) UNJBG Tercer semestre
A N Á L I S I S A R Q U I T E C T Ó N I C O P O R T A F O L I O

L. Maquera

Turn static files into dynamic content formats.

Create a flipbook
Issuu converts static files into: digital portfolios, online yearbooks, online catalogs, digital photo albums and more. Sign up and create your flipbook.
portf_lmaquera by Lizbeth Frecia Maquera Quenaya - Issuu