P o r t a f o l i o
L i z b e t h B a u t i s t a L ó p e z
![]()
P o r t a f o l i o
L i z b e t h B a u t i s t a L ó p e z
PERFIL PERSONAL
Ingeniera Arquitecta con tres años de experiencia en el campo de la arquitectura, con experiencia en proyectos de retail, vivienda y remodelaciones
He participado en proyectos desde la elaboración conceptual y ejecutiva hasta la ejecución de obra.
Con facilidad para el uso de herramientas de dibujo y representación gráfica digital
Destaco por mi organización, responsabilidad, compromiso, creatividad y capacidad para trabajar en equipo.
Inglés Nivel B2
SOFTWARE
• Paquetería Office
• Sketch Up
• Revit
• Autocad
CONTACTO
• Enscape
• Twin Motion
• V-Ray
• Photoshop


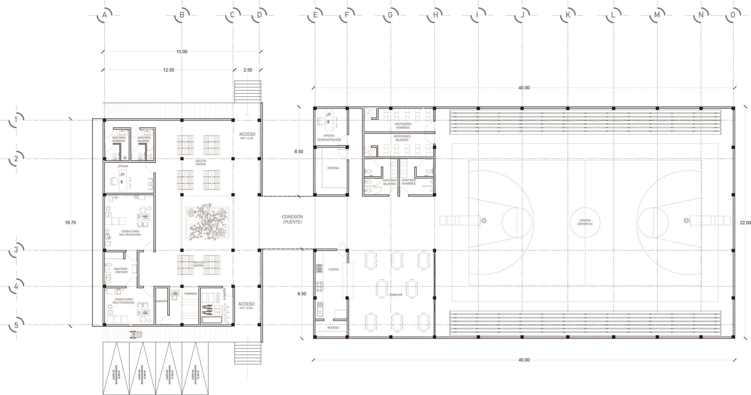
PROPUESTA DE ANTEPROYECTO ARQUITECTÓNICO PROPUESTO EN NACAJUCA, CHIAPAS
CONFORMADO POR UNA CLÍNICA DE SALUD Y UN CENTRO DEPORTIVO RESUELTO CON DOS VOLÚMENES UNIDOS POR UN PUENTE DE ACERO Y TAMBIÉN AMBOS ENTRADAS INDEPENDIENTES.




“JUÁREZ”
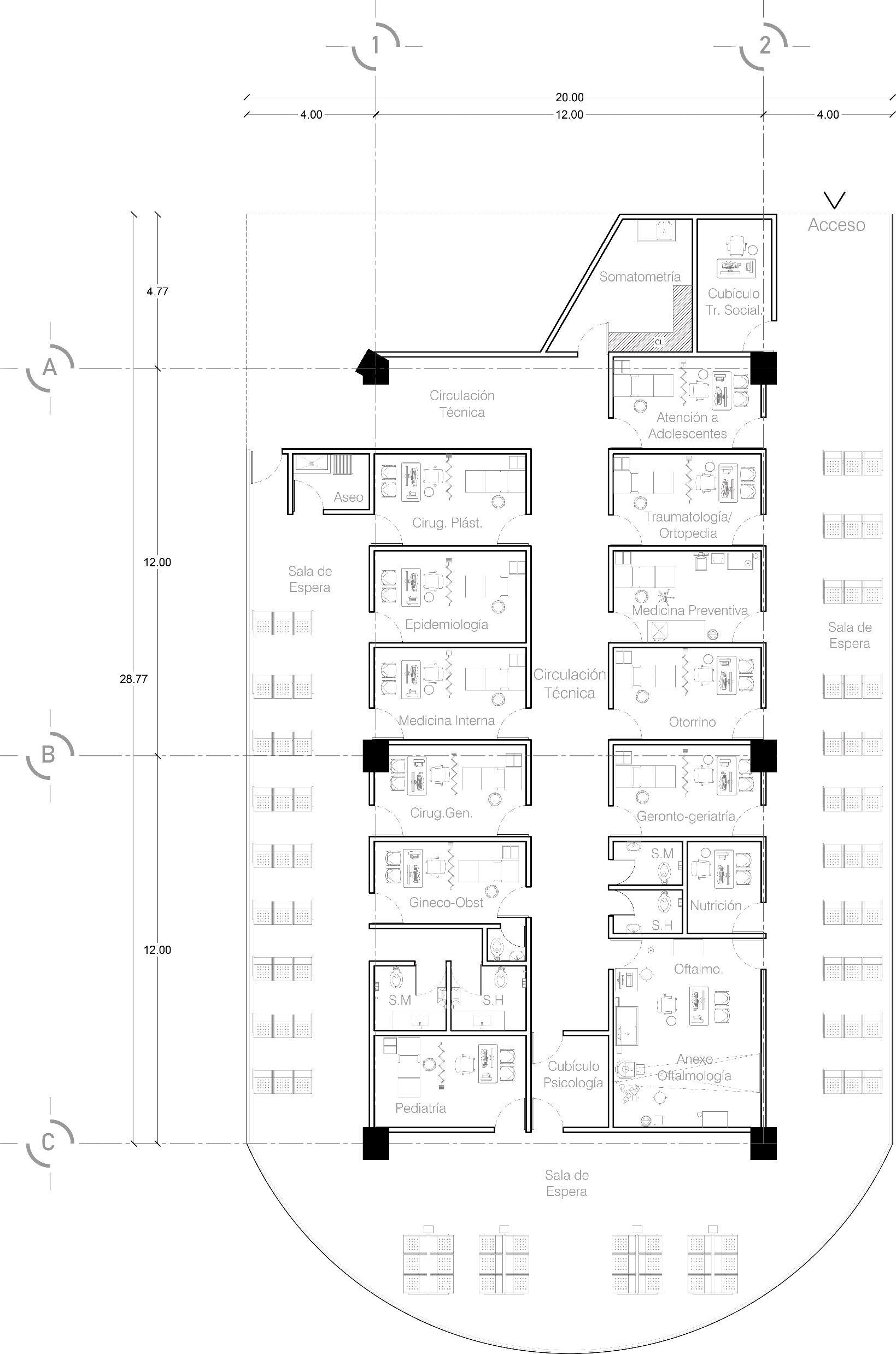
PROPUESTA DE PROYECTO ARQUITECTÓNICO ENFOCADO EN EL ESTUDIO DE EDIFICIOS TIPOLOGÍA SALUD.
EL PROYECTO ES UN HOSPITAL GENERAL QUE SE PROPONE EN CD. JUAREZ, CHIHUAHUA.
SE TRABAJARON PLANTAS ARQUITECTÓNICAS DANDO ENFÁSIS EN EL ESTUDIO DE PROPUESTA VOLUMÉTRICA SINGULAR


Planta Arquitectónica S/E
Zona de Consulta Externa




SE DESARROLLÓ UNA PROPUESTA ARQUITECTÓNICA PARA RESOLVER UN PROYECTO DE CASA-HABITACIÓN EN ATIZAPÁN, ESTADO DE MÉXICO
AQUÍ TRABAJÉ TANTO EL DIBUJO DE PLANOS EN AUTOCAD COMO PRINCIPALMENTE LA REPRESENTACIÓN
DIGITAL DE PLANTAS ARQUITECTÓNICAS, FACHADAS Y RENDERS INTERIORES DE LOS ESPACIOS PRINCIPALES QUE CONFORMAN EL PROYECTO COMO LO SON LA COCINA, RECÁMARAS, SALA Y COMEDOR
FINALMENTE UNIENDO TODO EN UN BOOKLET DIGITAL PARA LA EXPOSICIÓN DEL PROYECTO




Planta Arquitectónica Primer Nivel S/E


Planta Arquitectónica Azotea S/E
Proyecto Profesional | V-Ray
Plantas Arquitectónicas

Proyecto Profesional | V-Ray


Proyecto Profesional | V-Ray

EN ESTE PROYECTO TRABAJÉ EN EL DISEÑO DE INTERIORES DE UNA VIVIENDA EN OBRA GRIS DONDE SE COMENZÓ POR LA SALA PRINCIPAL
SE TRABAJARON PROPUESTAS ATEMPORALES Y MODERNAS, PUES SE BUSCABA UNA PALETA CON MADERAS OSCURAS, COLORES CLAROS EN MUROS Y MOBILIARIO DISCRETO PERO CON CARÁCTER.
EN EL ESPACIO SE BUSCO GENERAR AMPLITUD JUGANDO PRINCIPALMENTE CON EL MURO FRONTAL, CREANDO UN PUNTO FOCAL INTERESANTE A TRÁVES DE UN MUEBLE QUE ABARCARA TODA LA LONGITUD QUE DE IGUAL FORMA ERA UN REQUERIMIENTO DE LOS CLIENTES








Proyecto Profesional | V-Ray



bautistalopezlizbeth11@gmail.com