Liwei's Work Sample

Page 1

E-mail: wangliweitina.dalian@gmail.com

Mobile: +86 158 0052 2506

LIWEI WANG

8yrs experience who specialize in Project Management/Integrated Design/Geometry Optimization/BIM Delivery/ Innovative Materials WORK

RFR, Project Manager/Architect [2021-2023]

Shanghai

+ Project Manager for Hermes SLT, responsible for the whole process of curtain wall and structural technical cooperation in SD-TD phase; avoiding risks in the early design stage, providing solutions to the most difficult problems, team learder to complete the delivery of high-quality curtain wall packages.

+ Provided professional suggestions for the owner through multi-interface coordination with structural, lighting, E&M, green building, interior and contractor.

+ Design and report façade approval documents.

+ Bid review of curtain wall construction contractors, coordination and supervision of on-site construction.

+ Develop and track scope, schedule, and cost plans.

+ Collaborated with UHPC manufacturers to develop and exhibit curtain wall units.

+ Organized three large EXPOs and designing related materials.

EDUCATION

Gensler, Designer [2018-2021]

Shanghai

+ Produced strong innovative Conceptual Design documents of highrise and mixed-use buildings.

+ Delivered comprehensive SD/DD Package; VMU/Facade Tender Drawings of Zhangjiang Cultural Science Twin Tower in compliance with building codes and regulations.

+ Curtain wall design, Geometry Optimization, Panelization using parametric method.

+ Material Selection/Rhino-Revit workflow/Revit Template setup/BIM model management

AECOM, Designer [2016-2018]

Orlando, Shanghai

+ Delivered SD-CD Package and Color Boards of Universal Beijing Resort Project

+ Deliver using Revit and BIM Model

+ Generated Clash reports/Schedule using BIM tool.

University of Illinois at Urbana-Champaign (UIUC) [2014-2016]

Master of Architecture, GPA: 3.81/4.0

Dalian University of Technology (DUT) [2009-2014]

Bachelor of Architecture, Excelent Graduates,Ranking: 3/60, GPA: 3.86/4.0

PROJECTS

Highrise/Mixed-Use

Zhangjiang Science City 320m Twin Tower [2019-2021]

Shenyang Lenccy Plaza 230m [2018]

Evergrande Zhengzhou Center 280m [2019]

Entertainment/Sports

Wuhan Media Group Center [2023]

Shenzhen Sports Center Renovation [2021-2022]

Universal Beijing Resort [2016-2017]

Tianjin Binhai Cultural Center [2015]

Boutique Shop

Hermes SLT Beijing [2021-2023]

Curtain Wall Prototype

Innovative UHPC Curtain Wall Prototype Desgin [2022-2023]

CERTIFICATES & EXPERIENCES

Class 1 Registered Architet; Intermediate Grade Certificates [2023]

LEED Green Associate [2017]

Material Library/Design Topic/Rendering Template organization [2023]

Smart Tool Kit Research of High-rise Building [2019-2020]

BIM software tutorial and Lunch&Learn sharing [2019]

Volunteer as the session monitor of AIA 2017 Conference [2017]

SKILLS

3D Software: Rhinoceros/Grasshopper

REVIT/Dynamo

Sketch-up

Rendering:  Enscape, V-ray, Lumion

2D Software: AutoCAD, Adobe Creative Suite

Languages: Mandarin (native), English (fluent)

ORGANIZE 管理

|

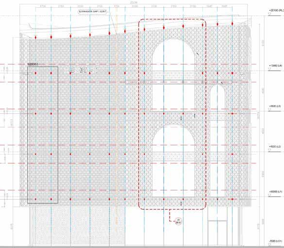
Hermès Beijing SLT

北京三里屯爱马仕旗舰店

MAJOR DUTY: Project management; Coordinate and slove technical issues and develope the design and deliver the facade tender package

TYPE: Luxury Store

PHASE: SD-TD

SIZE: 2,400 m² ( Facade 3,100m² )

LOCATION: Beijing, China

TIME: Sep. 2021-2023

PORTFOLIO OF LIWEI WANG

PANEL SUPPORT

板块支撑方式

FAÇADE PANELIZATION

立面分板

Panel 1/3/4 are suspended at L4

Gravity+Wind Support

Out-of-Plane Support

Panel 2 is ground supported

Outer façade module follows the module of the inner glass panels. The limit on outer façade width is set at 2.5m due to PVD limit. Vertical splicing joint is located at moment-zero point

每个L型板块遵循内幕墙模数分板和镀钛尺寸限制2.5m形成模数,

竖向分板在反弯点最小处

Gravity+Wind support Lateral Stabilizer

Moment-zero Point

Panel Separation Line (Horizontal)

Panel Separation Line (Vertical)

5m 0.85m Var Var 2m 3m 2m 2m 2m 3m 1.85m
Moment-bending Diagram 4.5m 4.5m
1 2 3 4 1 2 3 4 PORTFOLIO OF LIWEI WANG
REFL VLT SHGC Uvalue U值 Support 支撑方式 Weight 重量 Thickness 总厚度 Glass configuration 玻璃配置 Location NO. 19% 50% 0.32 1 2 Sides 对边 150kg/㎡ 78mm 10HS+1.52SGP+10HS (Low-e #4)+12Ar+10TP+12Ar+10HS+1.52SGP+10HS Typical Level GL-1 19% 49% 0.31 0.99 2 Sides 对边 165kg/㎡ 82mm 10HS+1.52SGP+10HS (Low-e #4)+12Ar+10TP+12Ar+12HS+1.52SGP+12HS L4 GL-2 Need Test 实测 Need Test 实测 0.32 1 2 Sides 对边 150kg/㎡ 78mm 10HS+1.52SGP+10HS(Low-e #4)+12Ar+10TP+12Ar+10HS+1.52SGP+10HS Ground Level (Low Reflection) GL-3 - - -3 Sides 三边 48kg/㎡ 16mm 8HS+1.52SGP+8HS Terrace Handrail GL-4 18% 46% 0.31 1.05 2 Sides 对边 135kg/㎡ 77mm 15TP (Low-e #2)++16Ar+15TP+16Ar+15TP Rescue Window GL-5 GLASS CONFIGURATION
• 1. All Glass are Low-Iron with Warm Edge • 2. Parameter values are provided by glass manufacture subjected to be changed with different samples Façade Cleaning 幕墙清洗 Rail Concealed in Soffit Reference Maintenance Distance 800mm Location limiting rope Lifting rope Decorative metal capping (Depends on Architects’ Drawing) 装饰金属盖板(见建筑师图纸) Upper Glass Clamper 玻璃上固定槽 Down Glass Clamper 玻璃下固定槽 PORTFOLIO OF LIWEI WANG
玻璃配置
PORTFOLIO OF LIWEI WANG

|

Hermès Taichung FE21

台中爱马仕旗舰店

PORTFOLIO OF LIWEI WANG
PORTFOLIO OF LIWEI WANG

DELIVERY 交付

| Universal Beijing Resort

北京环球影城度假区

MAJOR DUTY: REVIT Model Building, MEP Coordination, Clash Detection, Color Boards

PHASE: SD-DD-CD

SIZE: 6,000 m²

LOCATION: Beijing, China

TIME: July 2016-Nov. 2017

Decepticoaster

Theme Park and Resort

Queue and Roller Coaster Ride Building composed of two main buildings connected by an enclosed tube and open-air queue bridge. The entry building is designed as a steel frame, concentrically supported structure with decorative themed perforated metal panel over insulated metal panel enclosure. The exit building is designed as a reinforced concrete frame structure with stucco over mineral wool insulation exterior building enclosure. The approximate average roof height for both buildings and the bridge is 8m to 10m. The building is fully sprinklered.

The overall length of the building is 28 meters.

The overall width of the building is 27.2 meters.

The maximum span of the structural members is approximately 15 meters.

Total Allowable Occupancy : 2483

Gross Floor Area Level 1 : 1146m2; Level 2 : 1106m2

Queue: 1153m2

[COORDINATION]

Exterior
+ Architectural Components in BIM + Structural Components in BIM + Plumping Components in BIM + Mechanical Components in BIM
PORTFOLIO OF LIWEI WANG

[Decepticoaster Queue Building]

Using REVIT as an efficient BIM tool, we are able to easily conducting coordination among Structure, MEP, Technical Lighting and Interior; bringing models from vendors in the architectural model and doing clash reports in a 3D environment. These processes guarantee the quality of construction drawings on the later phase and facilitate the collaboration among different disciplines.

[LIFE SAFETY PLAN]

UP UP UP UP UP UP UP UP UP UP UP 105 PWR AVG.'G EQUIP. RM. 功率平均房 设备 101 PHOTO CAPTURE RETAIL 相片采集零售处 108 ELEV. MACHINE ROOM 梯机房电 1MECH1 MECH. 空机房 调 ELEC. 配电间 107 SERVICE AREA 服区 务 ELEV01 ELEVATOR 1 梯电 Q02 EXIT QUEUE 排出口 队 Q01 QUEUE 排区 队 111 LOCKERS 存物柜 普通通道:米 STAND‐BY LANE 286 LM 286 排容量 队 OCC. LOAD: 572 572 人通道单 :米 SINGLE RIDER LANE 70 LM 70 排容量 队 OCC. LOAD: 140 140 快速通道:米 EXPRESS LANE 158 LM 158 排容量 队 : OCC. LOAD: 316 316 110 INSPECTION ROOM 室检查 109 INSPECTION ROOM 室检查 103 FIRE ROOM 消防间 ELEV02 ELEVATOR 2 梯电 212 48 FHC FHC 130 42 13 16 14 2 9 疏散路径 TRAVELPATH 15.23 m 疏散路径 TRAVELPATH 13.56 m 疏散路径 TRAVELPATH 17.28 m 疏散路径 TRAVELPATH 18.59 m 疏散路径 TRAVELPATH 23.29 m 疏散路径 TRAVELPATH 27.75 m 疏散路径 TRAVELPATH 26.36 m 疏散路径 TRAVELPATH 25.08 m 疏散路径 TRAVELPATH 14.19 m 疏散路径 TRAVELPATH 18.87 m 疏散路径 TRAVELPATH 25.86 m 疏散路径 TRAVELPATH 7.38 m 疏散路径 TRAVELPATH 25.82 m 疏散路径 TRAVELPATH 27.52 m 106 297 276 188 99 116 127 57 193 疏散路径 TRAVELPATH 24.00 m FHC FHC FHC A B C D E F G G.1 H J J.1 K L M N CA CB 1 2 3 4 5 6 7 8 9 10 11 12 13 15 16 17 LC7 LC5 LC4 LC3 LC2 LC1 LC6 2000 1880 2140 2490 980 1760 2040 800 3180 800 2140 2110 650 3870 26840 4800 3900 1050 2950 3320 880 1200 1300 2500 1040 1780 530 3450 2060 1660 32420 疏散路径 TRAVELPATH 3.68 m 106 CABLE CHASE ROOM 引入室电缆 104 ELEVATOR LOBBY 梯电 大厅 FHC 4 102 PHOTO CAPTURE OFFICE 照片采集公室 办 6 疏散路径 TRAVELPATH 20.89 m 疏散路径 TRAVELPATH 15.34 m 疏散路径 TRAVELPATH 21.58 m 疏散路径 TRAVELPATH 23.26 m 疏散路径 TRAVELPATH 19.58 m 疏散路径 TRAVELPATH 21.18 m 疏散路径 TRAVELPATH 17.77 m 疏散路径 TRAVELPATH 15.55 m 疏散路径 TRAVELPATH 27.39 m 疏散路径: 疏散路径: TRAVELPATH 26.70 m 疏散路径: TRAVELPATH 13.14 m 疏散路径: TRAVELPATH 18.28 m 疏散路径 TRAVELPATH 26.08 m 疏散路径 TRAVELPATH 24.52 m 疏散路径 TRAVELPATH 26.26 m 疏散路径 TRAVELPATH 27.02 m 疏散路径 疏散路径 TRAVELPATH 26.13 m 疏散路径 TRAVELPATH 14.70 m 疏散路径: TRAVELPATH 17.00m 疏散路径: TRAVELPATH 19.32 m 疏散路径: TRAVELPATH 29.33 m 疏散路径: TRAVELPATH 26.13 m 疏散路径 TRAVELPATH 9.09 m 疏散路径: TRAVELPATH 18.28 m 疏散路径: TRAVELPATH 18.28 m 疏散路径 TRAVELPATH 7.97 m 疏散路径: TRAVELPATH 12.46 m 疏散路径: 疏散路径: TRAVELPATH 25.32 m 疏散路径: TRAVELPATH 26.17 m 疏散路径: TRAVELPATH 29.80 m 疏散路径 TRAVELPATH 8.59 m 疏散路径 TRAVELPATH 10.93 m 疏散路径: TRAVELPATH 25.98 m 疏散路径: TRAVELPATH 9.40 m 疏散路径: TRAVELPATH 9.40 m 疏散路径: TRAVELPATH 17.84 m 疏散路径: TRAVELPATH 6.10 m 疏散路径: TRAVELPATH 37.26 m 3300 人数: CAPACITY 38 人数: CAPACITY 26 人数: CAPACITY 26 人数: CAPACITY 26 人数: CAPACITY 26 人数: CAPACITY 35 人数: CAPACITY 40 人数: CAPACITY 45 人数: CAPACITY 38 人数: CAPACITY 21 人数: CAPACITY 38 人数: CAPACITY 35 人数: CAPACITY 18 人数: CAPACITY 29 人数: CAPACITY 22 人数: CAPACITY 22 人数: CAPACITY 22 人数: CAPACITY 22 人数: CAPACITY 22 人数: CAPACITY 21 人数: CAPACITY 18 人数: CAPACITY 24 人数: CAPACITY 31 疏散路径: TRAVELPATH 21.42 m 人数: CAPACITY 14 人数: CAPACITY 41 人数: CAPACITY 39 人数: CAPACITY 39 人数: CAPACITY 36 人数: CAPACITY 17 人数: CAPACITY 28 人数: CAPACITY 20 人数: CAPACITY 25 人数: CAPACITY 25 人数: CAPACITY 38 人数: CAPACITY 36 人数: CAPACITY 51 人数: CAPACITY 22 人数: CAPACITY 50 人数: CAPACITY 50 人数: CAPACITY 31 疏散路径: TRAVELPATH 26.16 m 人数: CAPACITY 12 疏散路径: TRAVELPATH 12.34 m 人数: CAPACITY 47 人数: CAPACITY 20 人数: CAPACITY 17 人数: CAPACITY 14 人数: CAPACITY 16 人数: CAPACITY 13 人数: CAPACITY 32 人数: CAPACITY 25 人数: CAPACITY 36 人数: CAPACITY 42 人数: CAPACITY 53 人数: CAPACITY 50 人数: CAPACITY 30 人数: CAPACITY 16 人数: CAPACITY 30 人数: CAPACITY 30 人数: CAPACITY 15 人数: CAPACITY 15 疏散路径: TRAVELPATH 24.90m 疏散路径: TRAVELPATH 25.69 m 疏散路径: TRAVELPATH 10.54 m 人数: CAPACITY 14 疏散路径: TRAVELPATH 9.62 m 疏散路径 TRAVELPATH 4.50 m 疏散路径 TRAVELPATH 4.07 m 疏散路径 TRAVELPATH 2.10 m QC01 COVERED QUEUE 遮排区带挡队 QU01 OVERFLOW QUEUE 超量排区 队 Q1 Q2 Q3 Q4 Q5 QF QE QD QC QB QA EXIT PATH 出口路径 2000 2000 2560 3660 1640 5300 2560 15720 0.5 HOUR FIRE RATING 小耐火极限 时 0.5 2 HOUR FIRE RATING 小耐火极限 时 2 3 HOUR FIRE RATING 小耐火极限 时 3 EXIT ACCESS TRAVEL DISTANCE 出口通道的疏散距离 DEAD END DISTANCE 尽端距离 EXIT LIGHT FIXTURE WALL MOUNTED (DARKENED AREA INDICATES FACE, ARROW INDICATES DIRECTION OF EGRESS) 出口指示灯壁挂式(涂黑区域 ‐指示面 墙 ,箭指示出口方向 头 ) FIRE HYDRANT CABINET 火器箱灭 EMERGENCY EYEWASH 急洗眼站紧 EMERGENCY SHOWER 急淋浴站紧 EXIT LIGHT FIXTURE CEILING MOUNTED (DARKENED AREA INDICATES FACE, ARROW INDICATES DIRECTION OF 出口指示灯天花板 EGRESS) 嵌入式(涂黑区域指示面 墙 箭指示出口方向 头 ) LIFE SAFETY LEGEND 疏散分析 例图 EXIT WITH EGRESS CAPACITY (NUMBER OF PERSONS) 出口疏散人数 1 HOUR FIRE RATING 小耐火极限 时 1 建筑专业负责人 结构专业负责人 Mechanical 动力专业负责人 Plumbing 给排水专业负责人 Confirmation 会 签 Layout Landscape 景观专业负责人 Approved by Designed by 设 计 人 Signature| 设计签字 Verification | 验证签字 Discipline Project. Mgr. 项目经理 审 核 人 Checked by 校 对 人 邮编: 中国 上海 宝庆路 21号 BAOQING RD., ‐ ‐ ‐‐ ‐ ‐‐ info@haisum.com 打印日期: 文件路径: rights product property rights belonging Media, and/or (collectively, “Universal”). extremely damaging disclosure, reproduction may prior Universal. Unauthorized disclosure, duplication of any of the information contained herein may result liability under applicable laws. Universal Studios Plaza Promenade Building Orlando, Florida 32819 商标及版权 2 1 归环球影城所有 保留所有权利 本文件是集约型创造性劳动的成果,并含有属于NBC环球传媒有限 责任公司以及/或者其子公司(统称“环球”)的商业机密信息和 知识产权。未经授权披露本文件中包含的材料可能会对环球造成极 其严重的损害。未事先获得环球书面授权,不得披露、发送或复制 本材料。未经授权而使用、披露、传播或复制此文件包含的任何信 息可能导致相关法律责任。 Drawn 项目: Bldg./Attraction | Sheet Name: Project Locator | Rev.| Approved ISSUED FOR INFORMATION ONLY, NOT FOR CONSTRUCTION | 图纸名称: 仅为提供信息而发布,不得用于施工 修订版次: 建筑物/景点名称: Project 绘图人: 批准人: Date| Drawing No. 图号: 原始大小图纸 Original Sheet Size A1 项目定位码 Issue Date Issue Name 布日期发 布名称发 History | 2016‐09‐02 初步设计 100% SD 100% 2016‐11‐07 初 扩设计 40% DD 40% 2017‐01‐05 初 扩设计 75% DD 75% 2017‐02‐24 初 扩设计 100% DD 100% 2017‐04‐19 最终 初 扩设计 FINAL 100% DD 100% Revision History 修订历史 暖通专业负责人 601 KEY PLAN | 索引图 ‐‐‐LIFE SAFETY FLOOR PLAN LEVEL 1 GS101 716 LW 2017/04/19 601 DP 疏散分析示意图 1 层 716601202 北 NORTH 0 3000 6000 1500 SCALE: 1 150 (mm) SCALE: 1 150 GS101 1 LIFE SAFETY FLOOR PLAN LEVEL 1 | 疏散分析示意图层 1 修版次 订 日期 修史 订历 Life Safety Plan including Exit Path design for the Exterior Queue and Interior Queue Area, People capacity calculation, Fire rated walls layout, Door width check and Exit Lights Layout PORTFOLIO OF LIWEI WANG
楼层 Level 1 1 0 B.O. DECK(EXIT LOW ROOF) 屋板底面 顶 (出口区低屋面 较 ) 8210 105 PWR AVG.'G EQUIP. RM. 功率平均房 设备 101 PHOTO CAPTURE RETAIL 相片采集零售处 203 BABY SWAP 等待区 6E-164 ELEV02 ELEVATOR 2 梯电 Q02 EXIT QUEUE 排出口 队 104 ELEVATOR LOBBY 梯电 大厅 客平台 载层 LEVEL 2 LOADING PLATFORM 3510 乘控制骑层 RIDE CONTROL 6550 204 RIDE CONTROL 乘控制室 驰 7000 6E-139 22900 地基面 顶 T.O FOUNDATION ‐1000 1 2 3 4 5 6 7 8 9 10 11 12 13 15 16 17 4800 3900 1050 2950 3320 880 1200 1300 2500 1040 1780 530 3450 2060 1660 601‐208 6P-119 1 0 1912 7010 2 0 6C-122 6E-111 9106 6P-106 6P-106 6P-124 6P-106 6E-177 1524 762 601‐124 ‐1600 6P-177 6P-180 6P-180 LAUNCH TUBE YOKE 射管支撑架发 室外完成面高 标 FINISH GRADE -6 6E-139 A-301 2 A‐301 8 3% 8 3% 4266 B.O. DECK(EXIT HIGH ROOF) 屋板底面 顶 (出口区高屋面 较 ) 10120 女儿面 墙顶 T.O. PARAPET 11173 女儿面 墙顶 9106 6P-180 1 2 3 5 0 1 1 7 1 5 0 4 9 6 1 6 3 4 3 1 601‐205 6E-165 6E-172 6P-153 楼层 Level 1 1 0 1 1 ‐301 DECK(EXIT ROOF) 屋板底面 顶 (出口区低屋面 较 ) 8210 客平台 载层 LEVEL 2 LOADING PLATFORM 3510 乘控制骑层 RIDE CONTROL 6550 A B C D E F G G.1 H J J.1 K L M N B.O. DECK(EXIT HIGH ROOF) 屋板底面 顶 (出口区高屋面 较 ) 10120 女儿面 墙顶 T.O. PARAPET 11173 女儿面 墙顶 T.O.PARAPET 9106 6E-172 6P-150 2 0 0 6P-109 6P-125 6P-120 6P-119 6E-199 6E-199 6E-200 6E-116 Q04 QUEUE 排区 队 QC01 COVERED QUEUE 遮排区带挡队 201 LOADING 客区载 107 SERVICE AREA 服区 务 202 UNLOADING 落客区 203 BABY SWAP 等待区 2PSER1 PSER ROOM 园区室 设备 103 FIRE ROOM 消防间 104 ELEVATOR LOBBY 梯电 大厅 106 CABLE CHASE ROOM 引入室电缆 601‐W03 601‐W03 601‐W02 6E-149 6E-139 6P-119 8822 6C-122 6C-124 6P-104 6P-129 6P-129 6P-121 6E-199 0 3 1 1 9 1 6 3 4 3 1 1 1 7 9 1 2 室外完成面高 标 FINISH GRADE -6 22900 6E-101 1 6% 3870 650 2110 2140 800 3180 800 2040 1760 980 2490 2140 1880 2000 26840 结构专业负责人 动力专业负责人 Plumbing Confirmation 会 签 G.I. Layout Electrical 电气专业负责人 景观专业负责人 Approved by Designed by 设 计 人 Signature| 设计签字 Verification 验证签字 Project 设计总负责人 Project. Mgr. 项目经理 审 核 人 校 对 人 邮编: 中国 上海 宝庆路 21号 200031 21 BAOQING RD., SHANGHAI CHINA ‐ ‐ ‐FAX: 0086‐21‐6433‐4045 ‐MAIL: info@haisum.com INTERNET:http://www.haisum.com 打印日期: 文件路径: TM & © 2017 Universal Studios. All rights reserved. This document is the product of intensive creative efforts and contains confidential trade secret information and property rights belonging Media, and/or (collectively, “Universal”). extremely damaging disclosure, reproduction may prior use, disclosure, duplication any may liability applicable Promenade Building Orlando, Florida 32819 商标及版权 1 归环球影城所有 保留所有权利 本文件是集约型创造性劳动的成果,并含有属于NBC环球传媒有限 责任公司以及/或者其子公司(统称“环球”)的商业机密信息和 知识产权。未经授权披露本文件中包含的材料可能会对环球造成极 其严重的损害。未事先获得环球书面授权,不得披露、发送或复制 本材料。未经授权而使用、披露、传播或复制此文件包含的任何信 息可能导致相关法律责任。 Drawn 日期: 项目: Bldg./Attraction Sheet Project Locator | Rev.| Approved | ISSUED FOR INFORMATION ONLY, NOT FOR CONSTRUCTION | 图纸名称: 仅为提供信息而发布,不得用于施工 修订版次: 建筑物/景点名称: Project 阶段: 绘图人: 批准人: Date| Drawing No. 图号: 原始大小图纸 Original Sheet Size A1 项目定位码 Issue Date Issue Name 布日期发 布名称发 发布历史 History | 2016‐06‐27 初步设计 50% SD 50% 2016‐09‐02 初步设计 100% SD 100% 2016‐11‐07 初 扩设计 40% DD 40% 2017‐01‐05 初 扩设计 75% DD 75% 2017‐02‐24 初 扩设计 100% DD 100% 2017‐04‐19 最终 初 扩设计 FINAL 100% DD 100% Revision History 修订历史 601 KEY PLAN | 索引图 U W ‐‐‐BUILDING SECTIONS A‐301 716 LW 2017/04/19 601 DP 建筑剖面图 716601202 SCALE: 1 150 (mm) SCALE: 1 150 A‐301 1 EAST‐WEST BUILDING SECTION 西向切剖面 东图 0 3000 6000 1500 SCALE: 1 150 (mm) KEYNOTE LEGEND KEY # KEY DESCRIPTION 6C‐122MECHANICAL DUCTWORK, REFER TO 暖通管道系统 MECHANICAL DRAWINGS 参考暖通图纸 6C‐124 防火管道 FIRE PROTECTION PIPES 6E‐101PREFINSHED INSULATED METAL PANELS 制隔金属板材预热 6E‐111MOTORIZED OVERHEAD COILING DOOR 卷帘 电动门 6E‐116THEMED PERFORATED GUARDRAIL 主穿孔板材和杆 题护栏栏 HANDRAIL 6E‐139 伸缩缝 EXPANSION JOINT 6E‐149RIDE TRACK BY SHOW AND RIDE VENDOR 由乘演出供商提供的乘道 驰设备应驰轨 6E‐164 生配件卫间 TOILET ACCESSORIES 6E‐165 儿尿布台婴换 BABY CHANGING STATION 6E‐172ELECTRIC DRINKING FOUNTAIN 自水器电动动饮 6E‐177PAINTED CONCRETE LOW WALL 涂漆混凝土矮墙 6E‐199ARTISTIC PERFORATED METAL PANELS ON STRUCTURAL FRAMING, TYPE 1 型穿孔金属面板附构框架上艺术 载结 类 型1 6E‐200ARTISTIC PERFORATED METAL PANELS ON STRUCTURAL FRAMING, TYPE 2 型穿孔金属面板附构框架上艺术 载结 类 型2 6P‐104 屋溢出排水 顶 OVERFLOW ROOF DRAIN 6P‐106 排水管 DOWNSPOUT 6P‐109 金属屋修梯 顶检 METAL ROOF ACCESS LADDER 6P‐119ROOF EXHAUST FAN, REFER TO MECHANICAL DRAWINGS FOR MORE INFORMATION 屋排扇 顶风 更多信息参考暖通图纸 6P‐120AIR HANDLING UNIT, REFER TO MECHANICAL DRAWINGS FOR MORE INFORMATION 空气理机处组 更多信息参考暖通图纸 6P‐121 固定金属爬梯 FIXED METAL LADDER 6P‐124TRANSLUCENT CANOPY PANELS 半透明遮篷板材 6P‐125PREFINISHED PARAPET METAL COPING CAP 制女儿金属盖预墙顶 6P‐129ALUMINUM SKYLIGHT 框有色天窗铝 6P‐150AREA DEVELOPMENT THEMED WALL 区域展主发题墙 6P‐153 不锈钢护栏 STAINLESS STEEL GUARDRAIL 6P‐177FIRE HOSE CABIINET, REFER TO FIRE PROTECTION DRAWINGS 消防栓柜,参考消防图纸 6P‐180FAN COIL UNIT, REFER TO MECHANICAL DRAWINGS FOR MORE INFORMATION 机管机 风盘组,更多信息参考暖通图纸 修版次 订 日期 修史 订历 SCALE: 1 150 A‐301 2 NORTH‐SOUTH BUILDING SECTION 南北向切剖面图 楼层 Level 1 1 0 楼层 排区 队 Level 2(QUEUE ) 2 () 3660 Q E Q 8 7 0 7 6 9 4 2 1 Q01 QUEUE 排区 队 601‐W05 6E-102 601‐122 2ER1 ELECTRICAL ROOM 配电间 22900 6E-120 6E-111 QF QE QD 屋板底面 顶 (排区 队 ) B.O. DECK (QUEUE) 8595 女儿面 墙顶 (排区 队 ) T.O. PARAPET(QUEUE) 9975 6P-104 6P-110 4 0 7 0 3 0 4 3 3 6 楼层 Level 1 1 0 楼层 排区 队 Level 2(QUEUE ) 2 () 3660 601‐114 1150 1220 1220 1220 1220 900 6E-101 6E-101 6P-155 2ER1 ELECTRICAL ROOM 配电间 Q01 QUEUE 排区 队 6E-116 2 1 8 0 3 1 4 0 601‐115 601‐122 6E-111 6P-177 Sim 4 A‐521 Q4 Q5 屋板底面 顶 (排区 队 ) B.O. DECK (QUEUE) 8595 女儿面 墙顶 (排区 队 ) T.O. PARAPET(QUEUE) 9975 6E-153 3 0 4 3 3 6 Architect 建筑专业负责人 Plumbing 给排水专业负责人 | 会 签 总图 Electrical 电气专业负责人 景观专业负责人 Approved by 审 定 人 Signature| 设计签字 Verification | 验证签字 Discipline 专业负责人 Project 设计总负责人 Project. Mgr. 项目经理 by 校 对 人 邮编: 中国 上海 宝庆路 21号 21 BAOQING RD., SHANGHAI CHINA ZIP: 200031 ‐ ‐ ‐‐ ‐ ‐‐MAIL: info@haisum.com INTERNET:http://www.haisum.com PRINT DATE 打印日期: FILE PATH 文件路径: TM & © 2017 Universal Studios. All rights reserved. This document is the product of intensive creative efforts and contains confidential trade secret information and intellectual property rights belonging to NBCUniversal Media, LLC and/or its subsidiaries (collectively, “Universal”). Unauthorized release of material contained in this document could be extremely damaging to Universal. No disclosure, distribution or reproduction of this material may be made without prior written authorization from Universal. Unauthorized use, disclosure, dissemination or duplication of any of the information contained herein may result in liability under applicable laws. 1000 Universal Studios Plaza Promenade Building Orlando, 商标及版权 归环球影城所有 保留所有权利 本文件是集约型创造性劳动的成果,并含有属于NBC环球传媒有限 责任公司以及/或者其子公司(统称“环球”)的商业机密信息和 知识产权。未经授权披露本文件中包含的材料可能会对环球造成极 其严重的损害。未事先获得环球书面授权,不得披露、发送或复制 本材料。未经授权而使用、披露、传播或复制此文件包含的任何信 息可能导致相关法律责任。 Drawn 日期: 项目: Bldg./Attraction | | Phase Rev.| Approved ISSUED FOR INFORMATION ONLY, NOT FOR CONSTRUCTION | 图纸名称: 仅为提供信息而发布,不得用于施工 修订版次: 建筑物/景点名称: Project | 阶段: 绘图人: 批准人: Date| Drawing 图号: 项目定位码 Issue Date Issue Name 布日期发 布名称发 发布历史 Issue History 2016‐09‐02 初步设计 100% SD 100% 2016‐11‐07 初 扩设计 40% DD 40% 2017‐01‐05 初 扩设计 75% DD 75% 2017‐02‐24 初 扩设计 100% DD 100% 2017‐04‐19 最终 初 扩设计 FINAL 100% DD 100% History 601 KEY PLAN | 索引图 M ‐‐‐WALL SECTIONS A‐321 716 LW FINAL 100% DESIGN 2017/04/19 601 DP 墙体剖面图 716601202 SCALE: 1 30 A‐321 1 SECTION @ ENTRANCE 1 入口剖面处图1 SCALE: 1 30 A‐321 2 SECTION @ ENTRANCE 2 入口剖面处图2 600 1200 300 SCALE: 1 30 (mm) 0 600 1200 300 SCALE: 1 30 (mm) KEYNOTE LEGEND KEY # KEY DESCRIPTION 6E‐101PREFINSHED INSULATED METAL PANELS 制隔金属板材预热 6E‐102THEMED TEMPERED GLASS PANEL GUARDRAIL WITH 主化玻璃板材和杆 题钢护栏栏 HANDRAIL 6E‐111 卷帘 电动门 MOTORIZED OVERHEAD COILING DOOR 6E‐116THEMED PERFORATED PANEL GUARDRAIL WITH 主穿孔板材和杆 题护栏栏 HANDRAIL 6E‐120 金属百叶窗 METAL LOUVER 6E‐153 金属探器 测 DETECTOR 6P‐104 屋溢出排水 顶 OVERFLOW ROOF DRAIN 6P‐110 屋行走路顶垫 ROOF WALKWAY PADS 6P‐155 嵌入式蹭脚垫 RECESSED WALK‐OFF FLOOR MAT 6P‐177FIRE HOSE CABIINET, REFER TO FIRE PROTECTION 消防栓柜,参考消防图纸 DRAWINGS GENERAL WALL SECTION NOTES 体 明 墙 说 1.REFER TO STRUCTURAL DRAWINGS FOR STRUCTURAL COMPONENTS, INCLUDING MASONRY, STEEL FRAMING AND FOUNDATION REQUIREMENTS. COMPLY WITH ARCHITECTURAL DRAWINGS FOR OPENING LOCATIONS AND COORDINATION WIT ENVELOPE SYSTEM. 构部件结 ,包括砌体,制框架和地基要求参考构 钢 结图纸。开洞位置需遵循建筑并且与外图纸墙围 系行 护统进协调 2. REFER TO AREA DEVELOPMENT DRAWINGS FOR ADDITIONAL SITE GRADING INFORMATION. 外的地区整地信息参考区域展额 发图纸 3. REFER TO ROOM FINISH SCHEDULE ON SHEET A‐611 FOR CEILING, WALL AND FLOOR FINISH INFORMATION. 天花板,体和地板表面理信息参考 墙 处图纸 的房表面材料列表 间 A‐611 4. REFER TO ELECTRICAL, MECHANICAL AND PLUMBING DRAWINGS FOR ADDITIONAL EQUIPMENT AND DEVICE INFORMATION. 外的和器械信息参考气额设备 电 ,暖通和排水给图纸 修版次 订 日期 修史 订历 PORTFOLIO OF LIWEI WANG
25 1800 MAX EQUAL SPACED 1 1 0 9 1 1 5 1200 1 1 0 9 1 1 5 板片栏夹 PANEL CLIP PERFORATED MEDAL INFILL PANEL WITH 25 MM DIAMETER 穿孔金属板填充有 带 直径孔 HOLES 25mm 12MM φ ROPE ATTACH AT AFFIXED COILS AT STANCHION TOPS VIA UNIVERSAL STANDARD ATTACHMENT SYSTEM. INSTALLED BY SPECIALTY CONTRACTOR 直径接通球准接系 连绳过环标连 12MM 接在立柱上方的固定上 统环 。由特定 承包商安装 51φ O.D. X 3 STAINLESS STEEL 直径不立柱 锈钢 STANCHION 51MM CONCRETE SLAB,THICKENED AT 混凝土板,立柱加 线 STANCHION LINE. 厚 NO SHRINK GROUT AT STANCHION BASE OR SLEEVED CONNECTION PER DETAIL. 根据在立柱底部或套管接填 细节 连处 充不收薄泥缩浆 51φ O.D. X 3 STAINLESS STEEL STANCHION 直径不立柱 锈钢 51MM 60φ O.D. X 3 STAINLESS STEEL ROUND 直径不管 锈钢圆 TUBE 60MM CONCRETE SLAB 混凝土板 NO SHRINK GROUT 不收薄泥缩浆 100MMφ CORE DRILLED RECESS IN CONCRETE SLAB 直径孔 钻 混凝土板上100MM, 0 T P SEAMLESS, STAINLESS BAR, SQUARE 12MM X 12MM 无不的缝锈闩,方形 12MM X12MM 1800 MAX 1200 CLR / MAX 1 1 0 接 连绳 ROPE CONNECTION 接条连链 CHAIN CONNECTION Architect 建筑专业负责人 Structural 结构专业负责人 Power 动力专业负责人 Plumbing 给排水专业负责人 Confirmation | 会 签 G.I. Layout 总图 Electrical 电气专业负责人 Landscape 审 定 人 Designed by 设 计 人 Signature| 设计签字 验证签字 Discipline Arch. Verifier 审 核 人 Checked by 校 对 人 邮编: 中国 上海 宝庆路 21号 200031 21 BAOQING RD., SHANGHAI CHINA ZIP: 200031 ‐ ‐ ‐FAX: 0086‐21‐6433‐4045 ‐MAIL: info@haisum.com INTERNET:http://www.haisum.com TM & © 2017 Universal Studios. All rights reserved. This document is the product of intensive creative efforts and contains confidential trade secret information and intellectual rights belonging NBCUniversal Media, LLC and/or its subsidiaries (collectively, “Universal”). Unauthorized release of material contained in this document could be extremely damaging Universal. disclosure, distribution reproduction of this material may be made without prior authorization from use, disclosure, duplication any may liability applicable 1000 Universal Studios Plaza Promenade Building Orlando, Florida 商标及版权 归环球影城所有 保留所有权利 本文件是集约型创造性劳动的成果,并含有属于NBC环球传媒有限 责任公司以及/或者其子公司(统称“环球”)的商业机密信息和 知识产权。未经授权披露本文件中包含的材料可能会对环球造成极 其严重的损害。未事先获得环球书面授权,不得披露、发送或复制 本材料。未经授权而使用、披露、传播或复制此文件包含的任何信 息可能导致相关法律责任。 Drawn 日期: 项目: Sheet Project Locator Phase Approved FOR INFORMATION ONLY, NOT FOR CONSTRUCTION | 图纸名称: 仅为提供信息而发布,不得用于施工 Project | 阶段: 绘图人: 批准人: Date| 项目定位码 Issue Date Issue Name 布日期发 布名称发 发布历史 History 2017‐02‐24 初 扩设计 100% DD 100% 2017‐04‐19 最终 初 扩设计 FINAL 100% DD 100% History 修订历史 暖通专业负责人 ‐‐‐DETAILS OF RAILING STANCHION AND EXIT GATE 716 Author FINAL 100% DESIGN 2017/04/19 Checker 栏杆, 立柱及疏散门细节详图 SCALE: 1 20 A‐563 1 RAILING WITH INFILL PANEL AND EXIT GATE DETAIL | 杆板杆及疏散 带栏栏闸门细节 SCALE: 1 10 A‐563 3 典型立柱细节 TYPICAL STANCHION DETAIL | SCALE: 1 5 A‐563 4 TYPICAL STANCHION SLEEVE SETAIL | 典型立柱套管细节 SCALE: 1 20 A‐563 2 立柱部 细 STANCHION DETAIL | SCALE: 1 20 (mm) SCALE: 1 20 (mm) 0 200 400 100 SCALE: 1 10 (mm) 100 200 50 SCALE: 1 5 (mm) Rev. No. 修版次 订 Rev. Date 日期 Revision 修史 订历 TYPE A DOOR TYPES TYPE S1 DOOR FRAME TYPES TYPE S2 TYPE B TYPE C TYPE D 型门类 框 型 门 类 TYPE E 2 0 2 0 1 8 1 8 VARIES V A E DOOR SCHEDULE LEGENDS DOOR & FRAME MATERIAL LEGEND 及框材料索引门门 AL 制铝 ALUMINUM GL 玻璃 GLASS HM 中空金属 HOLLOW METAL M 金属 METAL WD 木制 WOOD PT 涂漆 PAINT CS 透明密封 CLEAR SEAL 明 表索引 门 细 DOOR & FRAME LABEL LEGEND 及框注索引门门标 A 1‐1/2 HR. UL "A" LABEL 耐火等级 小时级标识1.5:UL"A" B 1 HR. UL "B" LABEL 耐火等级 小时级标识1:UL"B" C 1/2 HR. UL "C" LABEL 耐火等级 小时级标识0.5:UL"C" WINDOW SCHEDULE LEGENDS WINDOW FRAME MATERIAL LEGEND AL ALUMINUM HM HOLLOW METAL 窗 目 示 细 图 601‐W01 WINDOW TYPES 窗 型类 601‐W02 601‐W03 601‐W06 8210 601‐W04 2550 4 9 601‐W05 800 8 0 2 3 4 1950 1375 3 0 0 3 4836 2 9 601‐W07 601‐W08 601‐W09 1400 4 0 1880 9 1 3760 6 6 结构专业负责人 动力专业负责人 Plumbing Confirmation 会 签 G.I. Layout Electrical 电气专业负责人 景观专业负责人 Approved by Designed by 设 计 人 Signature| 设计签字 Verification 验证签字 Project 设计总负责人 Project. Mgr. 项目经理 审 核 人 校 对 人 邮编: 中国 上海 宝庆路 21号 200031 21 BAOQING RD., SHANGHAI CHINA ‐ ‐ ‐FAX: 0086‐21‐6433‐4045 ‐MAIL: info@haisum.com INTERNET:http://www.haisum.com PRINT DATE 打印日期: FILE PATH 文件路径: TM & © 2017 Universal Studios. All rights reserved. This document is the product of intensive creative efforts and contains confidential trade secret information and property rights belonging Media, and/or (collectively, “Universal”). extremely damaging disclosure, reproduction may prior use, disclosure, duplication any may liability applicable Promenade Building Orlando, Florida 32819 商标及版权 归环球影城所有 保留所有权利 本文件是集约型创造性劳动的成果,并含有属于NBC环球传媒有限 责任公司以及/或者其子公司(统称“环球”)的商业机密信息和 知识产权。未经授权披露本文件中包含的材料可能会对环球造成极 其严重的损害。未事先获得环球书面授权,不得披露、发送或复制 本材料。未经授权而使用、披露、传播或复制此文件包含的任何信 息可能导致相关法律责任。 Drawn 日期: 项目: Bldg./Attraction Sheet Project Locator | Rev.| Approved | ISSUED FOR INFORMATION ONLY, NOT FOR CONSTRUCTION | 图纸名称: 仅为提供信息而发布,不得用于施工 修订版次: 建筑物/景点名称: Project 阶段: 绘图人: 批准人: Date| Drawing No. | 图号: 原始大小图纸 Original Sheet Size A1 项目定位码 Issue Date Issue Name 布日期发 布名称发 发布历史 History 2016‐09‐02 初步设计 100% SD 100% 2016‐11‐07 初 扩设计 40% DD 40% 2017‐01‐05 初 扩设计 75% DD 75% 2017‐02‐24 初 扩设计 100% DD 100% 2017‐04‐19 最终 初 扩设计 FINAL 100% DD 100% Revision History | 修订历史 M U W ‐‐‐1 DOOR AND WINDOW SCHEDULES A‐611 716 LW 2017/04/19 601 DP 门窗细目表 716601202 窗目表 户细 WINDOW SCHEDULE WINDOW MARK 窗型 户类 度宽 WIDTH HEIGHT 高度 窗框 FRAME 玻璃 GLAZING COMMENTS 注备 MATERIAL 材料 FINISH 窗框装面 饰 厚度 THICKNESS 型类 TYPE 601-W0113753600AL WTLOUVER 601-W022448471AL WT 601-W03 2000AL WT 601-W0448362000AL WTSKYLIGHT 601-W05800800AL WTLOUVER 601-W0682103500AL WT 601-W071400460AL WT 601-W083760660AL WT 601-W091880910AL WT 及框架 目表 门 细 DOOR AND FRAME SCHEDULE DOOR NO. 号门编 Room Name 房名称 间 Translation 中文 LEAF TYPE 扇 门类 型 门 DOOR 框门 FRAME FIRE RATING 防火 型类 ACOUS TICAL RATING 隔音 等级 ACCESS DEVICE 禁控门 制 HW SET# 五金 配件 号 REMA RKS 注备 TYPE 型门类 尺寸 SIZE DOOR MATERI AL 材料门 FINISH 装 门饰 面 DOOR GLAZING 玻璃门 FRAME MATER IAL 框门 材料 FRAME FINISH 框装门 面饰 细节图 DETAILS FRAM E TYPE 框门 型类 WIDTH 度宽 HEIGHT 高度 THICKN ESS 厚度 GLAZIN G TYPE 玻璃类 型 GLAZING THICKNES S 玻璃厚度 JAMB 框边 HEAD 上框 SILL 下框 楼层 Level 1 1 601‐101PHOTO CAPTURE RETAIL 相片采集零售处 SINGLEA 900210051HM HM S1 601‐102ELEVATOR LOBBY 梯电 大厅 SINGLEA 900210051HM HM S11HRCLASS C 601‐103ELEVATOR LOBBY 梯电 大厅 SINGLEA 900210051HM HM S11.5HRCLASS B 601‐104PWR AVG.'G EQUIP. RM. 功率平均房 设备 ROLLINGE 2800360051M M 601‐105PWR AVG.'G EQUIP. RM. 功率平均房 设备 ROLLINGE 2800360051M M 601‐106PWR AVG.'G EQUIP. RM. 功率平均房 设备 ROLLINGE 2800360051M M 601‐107PWR AVG.'G EQUIP. RM. 功率平均房 设备 ROLLINGE 2800360051M M 601‐108PWR AVG.'G EQUIP. RM. 功率平均房 设备 DOUBLEB 1829213450HM HM S2 CLASS C 601‐109SERVICE AREA 服区 务 SINGLEA 870207051HM HM S1 601‐111ELEV. MACHINE ROOM 梯机房电 SINGLEA 900210050HM HM S1 CLASS C 601‐112MECH. 空机房 调 DOUBLEB 1829213450HM HM S2 CLASS C 601‐113ELEC. 配电间 SINGLEA 900210050HM HM S10.5HRCLASS C 601‐114QUEUE 排区 队 SINGLEA 900210051HM HM S1 CLASS C 601‐115COVERED QUEUE 遮排区带挡队 ROLLINGE 900275051M M S1 601‐116QUEUE 排区 队 DOUBLED 1400210050HM HM S2 601‐117QUEUE 排区 队 DOUBLED 1400210050HM HM S2 601‐118QUEUE 排区 队 DOUBLED 1400210050HM HM S2 601‐119QUEUE 排区 队 DOUBLED 1400210050HM HM S2 601‐120QUEUE 排区 队 ROLLINGE 900275051M M S1 601‐121QUEUE 排区 队 SINGLEA 900210051HM HM S1 CLASS C 601‐122QUEUE 排区 队 ROLLINGE 4330255051M M ‐RETAIL 相片采集零售处 601‐124PHOTO CAPTURE RETAIL 相片采集零售处 ROLLINGE 2100300051M M 601‐125COVERED QUEUE 遮排区带挡队 DOUBLED 1400210050 S21HR 601‐126 SINGLEA 900210051 S1 601‐127INSPECTION ROOM 室检查 SINGLEA 900210051 S1 601‐128INSPECTION ROOM 室检查 SINGLEA 900210051 S1 客平台 载层 LEVEL 2 LOADING PLATFORM 601‐201 SINGLEA 900210051HM HM S1 601‐202LOADING 客区载 DOUBLED 1400210050 S21HR 601‐205MECH. CHASE 空管井 调 SINGLEA 900210051 S1 601‐206ELECTRICAL ROOM 配电间 DOUBLEA 900210051HM HM S1 楼层 排区 队 Level 2(QUEUE 2 () ‐601‐204UNLOADING 落客区 SINGLEC 997210051AL/GL AL S20.5HR 601‐207 SINGLEA 900210051HM HM S1 CLASS C 601‐208UNLOADING 落客区 SINGLEA 915213451HM HM S1 601‐210 DOUBLED 1400210050HM HM S21HRCLASS C 601‐211 DOUBLED 1400210050HM HM S21HR 乘控制骑层 RIDE CONTROL 601‐205PSER ROOM 园区室 设备 DOUBLEA 900210051HM HM S11HR 601‐206 SINGLEA 900210051HM HM S11HRCLASS C 601‐207RIDE CONTROL 乘控制室 驰 ROLLINGE 2100254051M M 2HR 601‐208 SINGLEA 900210051HM HM S11HRCLASS C GENERAL DOOR NOTES 明门说 1.DOOR SCHEDULE IS PART OF AN OVERALL DOOR SYSTEM; COORDINATE DOOR SCHEDULE WITH HARDWARE SCHEDULE, 明表属于体系的一 门细总门统 ACCESS CONTROL, SECURITY AND ELECTRICAL. PROVIDE COMPLETE AND OPERATING SYSTEM. 部分,需明表和五金明表 协调门细细 ,禁控制 门 ,安全系和气等方面 统电 。提供完整可操控的系统 2.COORDINATE ELECTRIFIED DEVICES WITH ALL DISCIPLINES. PROVIDE ALL NECESSARY POWER, COMPONENTS AND 与其他好子的系 专业协调电设备联 。提供所有需要的力 电 ,配件和基 INFRASTRUCTURE FOR COMPLETE AND OPERABLE SYSTEM. 施来形成完整可操控的系础设 统 3.DIMENSIONS SHOWN ARE TO ROUGH OPENINGS. GC IS RESPONSIBLE FOR FEILD VERIFICATION OF ACTUAL OPENING AND 示的尺寸开显为 COORDINATION OF ALL COMPONENTS INCLUDING BUT NOT LIMITED TO BLOCKING, SEALANT AND SUBSILL. 洞尺寸。承包商要真开洞的地并所有的配件包括并不限于阻隔塞 总负责实实验证协调 仅 ,密封塞和充件 补 4.ALUMINUM EXTRUSIONS ADJACENT TO WINDOWS TO BE PROVIDED BY WINDOW MANUFACTURER; EXTRUSION TO HAVE SAME 窗制造商需提供窗相的制件 户 户邻铝挤压 ;件需与近系一的材料 挤压邻统选择样 MATERIAL AND FINISH AS ADJACENT SYSTEM. 和表面理 处 靠近窗附近的金属需截断 并匹配近系的材料和表面理 邻统处 1950 4090 修版次 订 日期 修史 订历 PORTFOLIO OF LIWEI WANG

FACTORY INSULATED WALL PANEL 制岩棉金属心板系 夹 预统

[Decepticoaster Wall Sections] [IMP Wall Base Detail] [Launch Tube and Locker Detail]

The Lockers Canopy is designed as a semi-transparent Kalwall panels above the steel structure. The canopy is sloped to better accommodate the geography of the Queue Building and also show the strength of the transformers.

The Queue Building has “Double Skin” as show the image of “Transformers” The Perforated Metal Panel is attached on metal frame and then connected on the structural framing behind the Themed Insulated Metal Panel(IMP).

管钢 STEEL TUBE

构见结 图纸 SEESTRUCT

GYPSUM BOARD 未来石膏板

PRE FINISHED ALUMINUM METAL FLASHING 制金属泛水件预铝 FLUID APPLIED WEATHER BARRIER OVER 12 MM CEMENT BOARD + SHIM SPACE TYP. 液抹涂防水透气膜在 态 水泥板12mm

STRUCTURAL STEEL STUD  100 mm 构骨结轻钢龙 100mm

BACKER ROD & SEALANT 棒及密封胶垫 密封件SEALANT  金属泛水件METAL FLASHING

FINISH GRADE 室外地面完成面高 标

85mm MINERAL WOOL INSULATION 岩棉保温板85MM

GYPSUM BOARD 未来石膏板

CONCRETE CURB BEYOND 混凝土翻边

100

NON‐BULGY CEMENT BASE FIRE RETARDANT COATING 2.5H FIRE RESISTANCE 非膨型水泥基防火涂料 胀 达到耐火极限 2.5h

150

2000MM LENGTH XPS INSULATION BOARD 长 保温板2000MM  XPS 灰土分夯层实 POROUS FILL

100MM DEEP CORRUGATED ROOF SCENIC METAL PANELS PROVIDED BY SCENIC VENDOR 由道具供应商提供的

40MM ROOF DECK, SEE STRUCTURAL DRAWINGS 40MM 厚屋顶金属板,参考结构图纸

RIDE TRACK BY SHOW AND RIDE

楼层 Level 1 1 0 楼层 排区 队 Level 2(QUEUE 2 () 3660 客平台 载层 LEVEL 2 LOADING PLATFORM 3510 1% 1 5 0 3 5 1 0 3 6 6 0 22900 75 3600 360 6P-124 PAINTED STEEL SEE STRUCTURAL 1 8 2 9 楼层 Level 1 1 0 客平台 载层 LEVEL 2 LOADING PLATFORM 3510 1% 22900 3 5 1 0 4080 15 0 75 200 150 100 180 670 3 0 0 2 5 0 0 1 8 2 9 2520 1200 360 135 600 6P-124 PAINTED STEEL SEE STRUCTURAL 430 4 1 5 建筑专业负责人 Structural 结构专业负责人 Mechanical Power 动力专业负责人 Plumbing 给排水专业负责人 Confirmation | 会 签 G.I. Layout 总图 Electrical 电气专业负责人 Landscape 景观专业负责人 Approved by 审 定 人 Designed by 设 计 人 Signature| 设计签字 Verification | 验证签字 Discipline 专业负责人 Project 设计总负责人 Project. Mgr. 项目经理 审 核 人 Checked by 校 对 人 邮编: 中国 上海 宝庆路 21号 200031 BAOQING RD., ZIP: 200031 ‐ ‐ ‐FAX: 0086‐21‐6433‐4045 ‐ info@haisum.com INTERNET:http://www.haisum.com TM & © 2017 Universal Studios. All rights reserved. This document is the product of intensive efforts and contains confidential trade secret information and intellectual property rights belonging NBCUniversal Media, and/or its subsidiaries (collectively, “Universal”). Unauthorized of material contained in this document could be extremely damaging to Universal. No disclosure, distribution or reproduction of this material may be made without prior written authorization from Universal. Unauthorized use, disclosure, dissemination duplication of any of the information contained herein may result in liability applicable laws. 1000 Universal Studios Plaza Promenade Building Orlando, Florida 32819 商标及版权 2017归环球影城所有 保留所有权利 本文件是集约型创造性劳动的成果,并含有属于NBC环球传媒有限 责任公司以及/或者其子公司(统称“环球”)的商业机密信息和 知识产权。未经授权披露本文件中包含的材料可能会对环球造成极 其严重的损害。未事先获得环球书面授权,不得披露、发送或复制 本材料。未经授权而使用、披露、传播或复制此文件包含的任何信 息可能导致相关法律责任。 Drawn | 日期: 项目: Bldg./Attraction | Sheet Name: Project Locator | Phase | Rev.| Approved | ISSUED FOR INFORMATION ONLY, NOT FOR CONSTRUCTION | 图纸名称: 仅为提供信息而发布,不得用于施工 修订版次: 建筑物/景点名称: Project | 阶段: 绘图人: 批准人: Date| Drawing No. | 图号: 原始大小图纸 Original Sheet Size  ● A1 项目定位码 Issue Date Issue Name 布日期发 布名称发 发布历史 Issue History | 2016‐11‐07 初 扩设计 40% DD 40% 2017‐01‐05 初 扩设计 75% DD 75% 2017‐02‐24 初 扩设计 100% DD 100% 2017‐04‐19 最终 初 扩设计 FINAL 100% DD 100% History | 修订历史 暖通专业负责人 601 KEY PLAN | 索引图 LOCKER SECTIONS A‐327 716 LW FINAL 100% DESIGN DEVELOPMENT 2017/04/19 601 DP 存物柜剖面图 716601202 SCALE: 1 30 A‐327 1 SECTION @ LOCKERS 存物柜剖面图 0 600 1200 300 SCALE: 1 30 (mm) SCALE: 1 30 A‐327 2 SECTION @ LOCKERS 存物柜剖面图 0 600 1200 300 SCALE: 1 30 (mm) KEYNOTE LEGEND KEY # KEY DESCRIPTION 6P‐124TRANSLUCENT CANOPY PANELS 半透明遮篷板材 GENERAL WALL SECTION NOTES 体 明 墙 说 1.REFER TO STRUCTURAL DRAWINGS FOR STRUCTURAL COMPONENTS, INCLUDING MASONRY, STEEL FRAMING AND FOUNDATION REQUIREMENTS. COMPLY WITH ARCHITECTURAL DRAWINGS FOR OPENING LOCATIONS AND COORDINATION WIT ENVELOPE SYSTEM. 构部件结 ,包括砌体,制框架和地基要求参考构 钢 结图 纸。开洞位置需遵循建筑并且与外系行 图纸墙围护统进协 调 2. REFER TO AREA DEVELOPMENT DRAWINGS FOR ADDITIONAL SITE GRADING INFORMATION. 外的地区整地信息参考区域展额 发图纸 3. REFER TO ROOM FINISH SCHEDULE ON SHEET A‐611 FOR CEILING, WALL AND FLOOR FINISH INFORMATION. 天花板,体和地板表面理信息参考 墙 处图纸 的房间 A‐611 表面材料列表。 4. REFER TO ELECTRICAL, MECHANICAL AND PLUMBING DRAWINGS FOR ADDITIONAL EQUIPMENT AND DEVICE INFORMATION. 外的和器械信息参考气额设备 电 ,暖通和排水给图纸。 Rev. No. 修版次 订 Rev. Date 日期 Revision 修史 订历
COL EL. 0
LEVEL 1 一平面
100
上和典型片厚度垫层
100MM 高波纹状道具金属板 WATERPROOFING MEMBTANE OVER 15MM CEMENTITIOUS BOARD 防水空气层在15MM 水泥板上 PERFORATED METAL PANEL ON 25MM HAT CHANNELS @ 400MM O.C. 穿孔金属板附在25MM 厚龙骨,400MM 间隔
VENDOR 由乘驰演出设备供应商提供的乘驰轨道 LAUNCH TUBE CLADDING BY SHOW AND RIDE VENDOR 由乘驰演出设备供应商提供的发射管道覆盖板材 RIDE TRACK SUPPORT COLUMNS BY SHOW AND RIDE VENDOR 由乘驰演出设备供应商提供的轨道支撑柱 STEEL STRUCTURE MEMBERS, SEE STRUCTURAL DRAWINGS FOR SIZES 钢结构部件,参考结构图纸 INTERIOR PERFORATED METAL PANEL PROVIDED BY SCENICN VENDOR 由道具供应商提供的室内穿孔金属板 INTERIOR SCENIC CLADDING BY SCENIC VENDOR 由道具供应商提供的室内道具覆板 50MM DIA. STAINLESS STEEL FACILITY HANDRAILS 直径50MM 的设施不锈钢扶手 RIDE VEHICLE REACH ENVELOPE 乘骑车辆可触及范围线 16GA FORMED SMOOTH SHEET METAL SECURED TO VERTICAL 25MM HAT CHANNELS @ 400MM O.C. 16GA 成型光滑金属板附在25MM 厚龙骨,400MM 间隔 STEEL STRUCTURE MEMBERS, SEE STRUCTURAL DRAWINGS FOR SIZES 钢结构部件,参考结构图纸 2535 楼层 Level 1 1 0 楼层 排区 队 Level 2(QUEUE ) 2 () 3660 Q01 QUEUE 排区 队 1 1 0 6P-137 6E-116 6P-124 Sim 3 A‐521 4 ‐521 QF 屋板底面 顶 (排区 队 ) B.O. DECK (QUEUE) 8595 1 3 8 0 4 9 3 5 3 6 0 女儿面 墙顶 (排区 队 ) T.O. PARAPET(QUEUE) 9975 Structural 结构专业负责人 Mechanical Power 动力专业负责人 Plumbing Confirmation 会 签 Layout 总图 电气专业负责人 Landscape 景观专业负责人 Approved by 审 定 人 Designed by 设 计 人 Signature| 设计签字 | 验证签字 Discipline 专业负责人 Project 设计总负责人 Project. Mgr. 审 核 人 by 校 对 人 邮编: 中国 上海 宝庆路 21号 21 BAOQING RD., SHANGHAI CHINA ZIP: 200031 ‐ ‐ ‐‐ ‐ ‐‐MAIL: info@haisum.com INTERNET:http://www.haisum.com TM & © 2017 Universal Studios. All rights reserved. This document is the product of intensive creative efforts and contains confidential trade information and intellectual property rights belonging to NBCUniversal Media, LLC and/or its subsidiaries (collectively, “Universal”). Unauthorized release of material contained in this document could be extremely damaging to Universal. No disclosure, distribution reproduction of this material may be made without prior written authorization from Universal. Unauthorized disclosure, dissemination duplication of any of information may liability applicable laws. 1000 Universal Studios Plaza Promenade Building Orlando, Florida 32819 商标及版权©201 归环球影城所有 保留所有权利 本文件是集约型创造性劳动的成果,并含有属于NBC环球传媒有限 责任公司以及/或者其子公司(统称“环球”)的商业机密信息和 知识产权。未经授权披露本文件中包含的材料可能会对环球造成极 其严重的损害。未事先获得环球书面授权,不得披露、发送或复制 本材料。未经授权而使用、披露、传播或复制此文件包含的任何信 息可能导致相关法律责任。 Drawn 日期: 项目: Bldg./Attraction | Sheet Name: Project Locator Phase Rev.| Approved | ISSUED FOR INFORMATION ONLY, NOT FOR CONSTRUCTION | 图纸名称: 仅为提供信息而发布,不得用于施工 修订版次: 建筑物/景点名称: Project | 阶段: 绘图人: 批准人: Date| Drawing No. | 图号: 原始大小图纸 Original Sheet Size A1 项目定位码 Issue Date Issue Name 布日期发 布名称发 发布历史 Issue History 2016‐09‐02 初步设计 100% SD 100% 2016‐11‐07 初 扩设计 40% DD 40% 2017‐01‐05 初 扩设计 75% DD 75% 2017‐02‐24 初 扩设计 100% DD 100% 2017‐04‐19 最终 初 扩设计 FINAL 100% DD 100% Revision History | 修订历史 暖通专业负责人 601 KEY PLAN | 索引图 WALL SECTIONS A‐323 716 LW FINAL 100% DESIGN DEVELOPMENT 2017/04/19 601 DP 墙体剖面图 716601202 0 600 1200 300 SCALE: 1 30 (mm) 1200 KEYNOTE LEGEND KEY # KEY DESCRIPTION 6E‐116THEMED PERFORATED PANEL GUARDRAIL WITH 主穿孔板材和杆 题护栏栏 HANDRAIL 6P‐124TRANSLUCENT CANOPY PANELS 半透明遮篷板材 6P‐137CLOSED RISER METAL STAIR 封起步板金属楼梯 闭 6P‐153 不锈钢护栏 STAINLESS STEEL GUARDRAIL DRAWINGS FOR OPENING LOCATIONS AND COORDINATION WIT 修版次 订 日期 修史 订历 SCALE: 1 30 A‐323 1 WALL SECTION 体剖面 墙图
PORTFOLIO OF LIWEI WANG

[Bumblebee Boogie 3D Model and Color Board]

608 Bumblebee Boogie

The Bumblebee Boogie facility is composed of a circular ride attraction, queue area and maintenance pit covered by an open dome structure.

The 39.8m diameter building is designed as a steel superstructure supported by a mat foundation. Six dome supports with circular openings at the base will serve as the main supports for the structure and designed as a tapered truss with the bottom chord extending to a compression ring on the 8.4m high roof. Scenic steel elements will be used as part of the dome support structure. Scenic metallic GFRC cladding for the dome will be mechanically fastened to the curved dome members. The structure IS NOT sprinklered.

The diameter of the building is 39.8 meters.

Gross Floor Area: 663m2

Total Allowable Occupancy: 718

| : BUILDING BEIJING RESORT | PROJECT No: | AECOM GFA CONFIRMATION TRANSFORMERS BASE | 716 716 0 3000 6000 1500 SCALE: 1 150 (mm) 608 Round Ride Southwest 2-point Perspective 608 Bumblebee Boogie Facade - Color Palette Color Palette References Bumblebee Pose Bumblebee Car (Front View) 1 2 3 4 4 5 8 9 6 7 7 --- April 20th 1 8. RED DETAIL PMS 185 C 1. BASE COLOR YELLOW PAINT · AUTOMOTIVE SEMI-GLOSS SMOOTH · PMS 123 C 2. YELLOW DETAIL · R 255 G 230 B 61 · PMS 114 C 4. LIGHT GRAY PMS 421 C 5. GRAY PMS 425 C 3. SHINY DOME ROOF SURFACE: · BRUSHED METAL COLOR: PLATINUM OR CHAMPAGNE · MATTHEWS/MPC MP23469 HOTORO BASECOAT LRV 51.7 · or MP41254 TOUCH O BRONZE METALLIC LRV 36 · or PMS 8002 C 9. CHICKEN HEAD DISH CENTER · RADIAL BRUSHED GOLD SURFACE · MATTHEWS MPC MP30584 POWDER GOLD METALLIC LRV 37.4 · or PMS 8005C GOLD/SILVER · or MANN BROS: PEARLITE EXT GOLD 90.136 · or MODERN MASTERS: OLYMPIC GOLD ME 659 N Sun Path Key Plan 10:00 AM Sep. 20th 7. CHARCOAL PMS 440 C 6. DARK STEEL ACCENTS · BRUSHED METAL COLOR · MATTHEWS/MPC MP20305 LRV 14.2 · or PMS 8424 C Architect 建筑专业负责人 Structural 结构专业负责人 Mechanical Power 动力专业负责人 Plumbing 给排水专业负责人 Confirmation | 会 签 G.I. Layout 总图 Electrical 电气专业负责人 Landscape 景观专业负责人 Approved by 审 定 人 Designed by 设 计 人 Signature| 设计签字 Verification | Discipline 专业负责人 Project Arch. 设计总负责人 Project. Mgr. 项目经理 Verifier 审 核 人 Checked by 校 对 人 邮编: 中国 上海 宝庆路 21号 200031 21 BAOQING RD., SHANGHAI CHINA ZIP: 200031 TEL: 0086‐21‐6437‐0093 FAX: 0086‐21‐6433‐4045 E‐MAIL: info@haisum.com INTERNET:http://www.haisum.com TM & © 2017 Universal Studios. All rights reserved. This document is the product of intensive efforts and contains confidential trade secret information intellectual property rights belonging to NBCUniversal Media, and/or its subsidiaries (collectively, “Universal”). Unauthorized of material contained in this document could be extremely to Universal. No disclosure, distribution or reproduction material may be made without prior written authorization Universal. Unauthorized use, disclosure, dissemination or of any of the information contained herein may result in applicable laws. 1000 Universal Studios Plaza Promenade Building Orlando, Florida 32819 商标及版权©2017归环球影城所有 保留所有权利 本文件是集约型创造性劳动的成果,并含有属于NBC环球传媒有限 责任公司以及/或者其子公司(统称“环球”)的商业机密信息和 知识产权。未经授权披露本文件中包含的材料可能会对环球造成极 其严重的损害。未事先获得环球书面授权,不得披露、发送或复制 本材料。未经授权而使用、披露、传播或复制此文件包含的任何信 息可能导致相关法律责任。 Drawn | 日期: 项目: Bldg./Attraction | Sheet Name: Project Locator | Phase | Rev.| Approved | ISSUED FOR INFORMATION ONLY, NOT FOR CONSTRUCTION | 图纸名称: 仅为提供信息而发布,不得用于施工 建筑物/景点名称: Project | 阶段: 绘图人: 批准人: Date| Drawing No. | 图号: 原始大小图纸 Original Sheet Size  ● A1 项目定位码 Issue Date Issue Name 布日期发 布名称发 发布历史 Issue History | 2016‐06‐27 初步设计 50% SD 50% 2016‐09‐02 初步设计 100% SD 100% 2016‐11‐07 初 扩设计 40% DD 40% 2017‐01‐05 初 扩设计 75% DD 75% 2017‐02‐24 初 扩设计 100% DD 100% 2017‐04‐19 最终 初 扩设计 FINAL 100% DD 100% Revision History | 修订历史 暖通专业负责人 608 KEY PLAN | 索引图 3D VIEWS A‐701 716 LW FINAL 100% DESIGN DEVELOPMENT 2017/04/19 608 D.P. 3D视角 716608203 SCALE: A‐701 1 3D QUEUE ENTRY VIEW 排区入口透队视图 3D VIEW Rev. No. 修版次 订 Rev. Date 日期 Revision 修史 订历
PORTFOLIO OF LIWEI WANG

| Zhangjiang Science City 320m Twin Tower 张江双子塔 320m

4PT Adaptive CW Family 6PT Adaptive CW Family
[REVIT IMPORT]
PORTFOLIO OF LIWEI WANG VARIES VARIES VARIES VARIES 1 1 1 1 2 2 2 2 3 3 3 3 4 5 6 4 4 4 1 2 3 4 1 2 3 4 5 6
RHINO REVIT

4. 陶管几何定位平面(C)与陶管几何控制体量(D)相交得到陶管几何控制线(E) 80

陶管几何控制线生成逻辑:

1. 每个幕墙模数的屋顶+850/二层/一层几何定位线(A) 等分得到等分点;除特殊注明均为每个幕墙分割模数内为8个等分间距。详见图A1.P113~A1.P114标注

2. 等分点相连得到幕墙单元内等分线(B);

3.幕墙单元内等分线向幕墙平面垂直方向 挤出得到陶管几何定位平面(C)

3# 工作点1@屋顶+850 3# 工作点12@屋顶+850 3# 工作点2@屋顶+850 3# 工作点3@屋顶+850 3# 工作点4@屋顶+850 3# 工作点5@屋顶+850 3# 工作点6@屋顶+850 3# 工作点7@屋顶+850 3# 工作点8@屋顶+850 3# 工作点9@屋顶+850 3# 工作点10@屋顶+850 3# 工作点11@屋顶+850 3# LEVEL 02 12.500 3# LEVEL 04 3-1-7 3-1-6 3-1-5 3-1-4 3-1-3 3-1-2 3-1-1 30002500150012002800150012002800150012004650 三角形几何面9-10B,端点 工作点10 @屋顶+850 工作点9 @屋顶+850 工作点9 @L2 三角形几何面9-10A,端点: 工作点10 @屋顶+850 工作点9 @L2 工作点10 @L2 7000 5500 5500 5000850 10500 10500 10500 12000 10500 5000 3# 工作点12@屋顶+850 3# 工作点11@屋顶+850 3# 工作点10@屋顶+850 3# 工作点9@屋顶+850 3# 工作点8@屋顶+850 3# 工作点7@屋顶+850 3# 工作点6@屋顶+850 3# 工作点10@L2 3# 工作点9@L2 3# 工作点7@屋顶+850 3# 工作点6@屋顶+850 3# 工作点9@屋顶+850 3# 工作点5@屋顶+850 3# 工作点4@屋顶+850 3# 工作点3@屋顶+850 3# 工作点2@屋顶+850 3# 工作点1@屋顶+850 3# 工作点12@屋顶+850 3# 工作点10@屋顶+850 3# 工作点11@屋顶+850 3# 工作点8@屋顶+850 乔伟 曹亦洵 曹亦洵 申珊珊 叶琪卿 苗什 幕墙 比例 专业 设计人 日期 设计总负责人 日期 设计证书甲级编号 A 3 0 0 0 1 华东建筑设计研究院有限公司 华东建筑设计研究总院 结构会签 日期 150 3#裙房几何示意图 A1.P101 幕墙招标 张江中区单元57-01地块项目 裙房 2020-12.31 上海翌久置业有限公司 SCALE: 3#裙房3D几何示意图1 1 SCALE:
2 SCALE: 3#裙房3D几何示意图2 3 宽 块 几何控制线@L4 宽 等宽板块x4 等宽板块x12 板 等 块 板 板 宽 等板 内退垂直墙控制线@L4 几何控制线@L4 工作点 工作点 工作点3@L4 工作点 设计证书甲级编号 华东建筑设计研究院有限公司 华东建筑设计研究总院 3#裙房四层平面几何示意图 幕墙招标 张江中区单元57-01地块项目 裙房 上海翌久置业有限公司 3#裙房四层平面几何示意图 1 屋顶板边线@23000 分 等 等 等 格栅截面种类B 屋顶格栅定位线@23000 工作点 工作点 @28.100 工作点 工作点 工作点 @28.100 工作点 工作点 @28.100 工作点 标注中“等分x数字”意为等分格栅几何控制线 3# 3#裙房屋顶格栅几何示意图 幕墙招标 张江中区单元57-01地块项目 裙房 上海翌久置业有限公司 3#裙房屋顶格栅几何形体示意图 1
1 150 3#裙房几何示意南立面图
M1意指幕墙板块分割模数,定位图详见A1.P101~A1.P107
1500
1500
7000
80
80
1500
1500 1500 1500VARIES
1500
500
1500 1500120028002700280010031681 1500VARIES1200280027002800VARIESVARIES 40002700280010031681 500VARIES1500 1500VARIES500 120 120 立面转折线 1500 VARIES VARIESVARIES VARIES1500 立面转折线 500VARIESVARIES1500 1500VARIES VARIES VARIES500 立面转折线 1500 VARIES VARIES VARIES 1500 立面转折线 15002500VARIESVARIES2800VARIES1500 立面转折线 立面转折线 1500 VARIES VARIES VARIESVARIES VARIES 1500 15002500120028005500 VARIES1500 立面转折线 注: 图纸比例1:200 VARIES 部分为尺寸变化段,详见立面A1.P111~A1.P112标注 除特别标注陶管向内折距离幕墙距离为80mm,一般距离为600mm 幕墙单元内等分线 陶管几何控制线 EQEQ 100 陶管截面 陶管几何控制线(E) 70 立面转折线 1500 1500 1500VARIES500VARIES500VARIES1500 乔伟 曹亦洵 曹亦洵 申珊珊 叶琪卿 苗什 日期 SCALE 比例 工程编号 图号 DISCIPLINE 专业 阶段 图名 项目名称 CLIENT 建设单位 设计人 日期 CHECKED BY/DATE 设计人 日期 AUDITED BY/DATE 审核人 日期 设计总负责人 日期 AUTORIZED FIR ISSUE BY/DATE CO-OPERATED WITH 幕墙合作设计顾问 CO-OPERATED WITH 建筑合作设计单位 设计证书甲级编号 A 华东建筑设计研究院有限公司 华东建筑设计研究总院 Copyright 2017 ECADI CONFIRMED BY /DATE 给排水会签 日期 CONFIRMED /DATE 电气会签 日期 CONFIRMED BY /DATE 暖动会签 日期 CONFIRMED BY /DATE 结构会签 日期 CONFIRMED BY /DATE 建筑会签 日期 盖章 序号 修改内容 As indicated 3#裙房陶管生成逻辑及截面种类图 张江中区单元57-01地块项目 2020-12.31 上海翌久置业有限公司 幕墙屋顶+850几何定位线(A) 幕墙平面几何定位线法线方向 陶管几何定位平面(C) 陶管几何控制线(E) 陶管几何控制体量(D) 幕墙一层几何定位线(A) 幕墙二层几何定位线(A) 幕墙单元内等分线(B) TYPE A TYPE A-1 TYPE B TYPE B-1 TYPE B-2 TYPE B-3 TYPE B-4 TYPE C TYPE D TYPE E TYPE E-1 TYPE E-2 TYPE E-3 TYPE F TYPE F-1 TYPE F-2 TYPE F-3 L2@7.000 L1@0.000 女儿墙@23.850 L2@7.000 L1@0.000 女儿墙@23.850 L2@7.000 L1@0.000 女儿墙@23.850 L2@7.000 L1@0.000 女儿墙@23.850 幕墙单元内等分线(B) 陶管几何控制线(E) 注:陶管几何控制线为陶管截面的外中心线 PORTFOLIO OF LIWEI WANG [DELIVERY]
VARIES
VARIES
600
600
80 7000 400015006684
15350
VARIES
500
VARIES VARIES VARIES

1: 150 3#裙房陶管几何示意图 A1.P112 幕墙招标 张江中区单元57-01地块项目 裙房 2020-12.31 上海翌久置业有限公司 SCALE: 1 150 3#裙房陶管几何示意南立面图 1

SCALE: 1:150 3#裙房陶管几何示意北立面图 2

0.000 3# LEVEL 01 7.000 3# LEVEL 02 12.500 3# LEVEL 03 23.000 3# ROOF 3-1-6 3-1-5 3-1-4 3-1-3 3-1-2 3-1-1 2000 2300 1200 7000 5500 5195004481 186750019831500 3# 工作点10@屋顶+850 3# 工作点11@屋顶+850 10500 10500 10500 12000 10500 3# 工作点9@屋顶+850 3# 工作点8@屋顶+850 3# 工作点7@屋顶+850 3# 工作点6@屋顶+850 1500 1014 1500 7000 5500 5500 5000 23000 1200180013501500 3023477 300015002500 2511 6000 1517 4972 17254388 3470 3489 1181 500 1452530 0.000 3# LEVEL 01 12.500 3# LEVEL 03 18.000 3# LEVEL 04 3# ROOF 3-3-4 3-3-3 3-3-2 3-3-1 3-3-6 3-3-5 5500 5500 5500 5375 12000 12000 9000 10500 8500 3# 工作点2@屋顶+850 3# 工作点3@屋顶+850 3# 工作点1@屋顶+850 3# 工作点12@屋顶+850 40001500 9850 1500 1500 7000 5500 5500 5000 23000 10015003900 2969 2612 2325 2137 5165 5464 乔伟 曹亦洵 曹亦洵 申珊珊 叶琪卿 苗什 幕墙 日期 比例 图号 专业 图名 项目名称 建设单位 设计人 日期 CHECKEDBY/DATE DISCIPLINE RESPONSIBLEBY/DATE 设计人 日期 审核人 日期 设计总负责人 日期 审定人 日期 幕墙合作设计顾问 FACADEDESIGN CONSULTANTUNIT CO-OPERATED WITH 建筑合作设计单位 设计证书甲级编号 A1 31 0 0 4 0 3 1 华东建筑设计研究院有限公司 华东建筑设计研究总院 Copyright2017 ECADI CONFIRMEDBY /DATE 给排水会签 日期 CONFIRMEDBY /DATE 电气会签 日期 CONFIRMED BYM /DATE 暖动会签 日期 CONFIRMEDBY /DATE 结构会签 日期 CONFIRMED BYA/DATE 建筑会签 日期 档案号 SEAL NO. 盖章 序号 DESCRIPTION 修改内容 DATE 日期
3-3-d 3-1-a 3-1-2 3-3-1 3-1-9 3-3-5 A1.P109 1 A1.P109 A1.P109 6 A1.P109 5 A1.P109 7 A1.P111 1 3# 工作点1@屋顶+850
工作点12@屋顶+850
工作点1@L2
工作点12@L2
2 A1.P112 1 A1.P111 2 3# 工作点2@屋顶+850 3# 工作点3@屋顶+850 3# 工作点2@L2 3# 工作点3@L2 3# 工作点4@L2 3# 工作点5@L2
工作点5@屋顶+850
工作点4@屋顶+850 3# 工作点6@屋顶+850 3# 工作点7@屋顶+850 3# 工作点6@L2 3# 工作点7@L2 3# 工作点8@L2 3# 工作点9@L2 3# 工作点9@屋顶+850 3# 工作点8@屋顶+850 3# 工作点10@屋顶+850 3# 工作点11@屋顶+850 3# 工作点10@L2 3# 工作点11@L2 TYPEB2 TYPEB4 与TYPEB2 转换 TYPEB4 TYPEB4 与TYPEB1 转换 TYPEB1 TYPE E TYPE E-2 TYPE E-1 TYP E-3 TYPE F-2 TYP F TYPE F-1 TYPE F-3 TYPEC TYPE TYPE B-3 TYPE D TYPE A-1与TYPE D转换区 TYPE A-1 TYPEA-1 TYPEA TYPEA TYPEB TYPEB-2 TYPE B2 TYPEB-1 等分x7 TYPEC TYPEC TYPEA1 等分x10 TYPE A 乔伟 曹亦洵 曹亦洵 申珊珊 叶琪卿 苗什 幕墙 DATE 日期 比例 工程编号 DRAWINGNO. 图号 专业 阶段 DRQWING TITLE 图名 PROJECT 项目名称 CLIENT 建设单位 设计人 日期 校对人 日期 设计人 日期 AUDITED BY/DATE 审核人 DESIGNCHIEF/DATE 设计总负责人 日期 审定人 日期 CO-OPERATED WITH 建筑合作设计单位 ARCHITECTURALDESIGNCONSULTANTUNIT 设计证书甲级编号 A1 31 0 0 4 0 3 1 华东建筑设计研究院有限公司 华东建筑设计研究总院 Copyright2017 ECADI CONFIRMEDBY /DATE 给排水会签 日期 CONFIRMEDBY /DATE 电气会签 日期 CONFIRMEDBY M /DATE 暖动会签 日期 CONFIRMEDBY /DATE 结构会签 日期 CONFIRMED BYA/DATE 建筑会签 日期 档案号 序号 修改内容 日期 3# 1: 150 3#裙房陶管平面几何示意图 A1.P113 幕墙招标 张江中区单元57-01地块项目 裙房 2020-12.31 上海翌久置业有限公司 SCALE: 1 150 3#裙房二至四层陶管几何示意图 2 PORTFOLIO OF LIWEI WANG
3#
3#
3#
A1.P112
3#
3#

1 50 3#裙房 西侧雨篷平面图-1

3-3-c 3-3-b 3-3-1 SS-201 AL-201 量变 1500 1500 1500 1500 1500 1500` 1500 1500 1500 1500` 1500` 1500 量变 0.000 3# LEVEL 01 3-3-c 3-3-b SS-201 GL-201 A5.P108 3 A5.P108 3000 1000 1500 7000 18 A1.P110 0.000 3# LEVEL 01 -0.150 室内外高差 3-3-1 7000 GL-201 GL-203 SS-201 1 A6.2A.28 SS-201 3000 1000 1500 1500 32 3 0 1 A6.2L1.02 雨篷排水沟 雨篷排水沟 3-3-c 3-3-b 3-3-1 3210 1664 1582 1500 645855 1500 1500 1500 1500 1500 1500 1500 1500 1594 AL-202 AL-201 MP-201 TR-201 雨篷排水沟 乔伟 曹亦洵 曹亦洵 申珊珊 叶琪卿 苗什 幕墙 日期 比例 工程编号 图号 专业 阶段 DRQWING TITLE PROJECT 建设单位 设计人 日期 校对人 日期 设计人 日期 AUDITED BY/DATE DESIGN CHIEF/DATE 设计总负责人 日期 AUTORIZED FIR ISSUE BY/DATE 审定人 日期 CO-OPERATED WITH 幕墙合作设计顾问 建筑合作设计单位 ARCHITECTURAL DESIGN CONSULTANT UNIT ESEARCH INSTITUTE CO., LTD 设计证书甲级编号 A 1 3 1 0 0 4 0 3 1 华东建筑设计研究院有限公司 华东建筑设计研究总院 Copyright 2017 ECADI CONFIRMED /DATE 给排水会签 日期 CONFIRMED /DATE 电气会签 日期 CONFIRMED /DATE 暖动会签 日期 CONFIRMED /DATE 结构会签 日期 CONFIRMED /DATE 建筑会签 日期 SEAL 盖章 序号 修改内容 日期 50 3#裙房 西雨篷大样图 A5.P108 幕墙招标
2020-12.31 上海翌久置业有限公司 SCALE:
2 SCALE: 1 50 3#裙房 西入口立面图 1 SCALE: 1 50 3#裙房 西侧雨篷剖面图 4 SCALE: 1 50 3#裙房 西侧雨篷局部平面图 3 0.000 2# LEVEL 01 7.000 2# LEVEL02 14.000 2# LEVEL 03 2# LEVEL 04 2-1-4 2-1-5 2 A5.P202 TR-201 A5.P202A A5.P202A A5.P202A 850 9000 7000 7000 GL-201 MP-201 AL-204 MP-201 AL-204 MP-201 AL-201 AL-204 GL-201 AL-201 GL-203 850 3100 4700 1200 2100 1900 1800 1200 1500 1500 1000 3000 自行车坡道入口 0.000 2# LEVEL 01 7.000 2# LEVEL02 14.000 2# LEVEL 03 2# LEVEL 04 2-f 9000 7000 7000 TR-01 AL-203 AL-203 AL-203 GL-208 SS-202 GL-203 GL-201 500 VARIES 650850 500 VARIES 1200 3000 1000 1500 1500 1200 130 ST-02 AL-201 GL-201 1 A6.2A.41 1 A6.2A.40 A6.2A.41 1 A6.2A.24 1 A6.2A.24 A06.2B.05 1 A06.2A.46 裙房门中空玻璃 PODIUM DOOR INSULATING GLASS 玻璃 GLASS 裙房阴影盒背衬铝板玻璃 PODIUM SPANDREL GLASS GL-204 GL-201 裙房中空夹胶玻璃 PODIUM INSULATING LAMINATED GLASS GL-203 GL-202 裙房转角弯弧中空夹胶玻璃 PODIUM CORNER FILLET INSULATING LAMINATED GLASS GL-205 裙房救援窗或门中空玻璃 PODIUM RESCUE WINDOW INSULATING GLASS GL-206 裙房雨篷夹胶玻璃 PODIUM CANOPY LAMINATED GLASS 金属材料 METAL MP-202 裙房吊顶板 PODIUM SOFFIT SCREEN 裙房雨篷不锈钢 PODIUM CANOPY STAINLESS STEEL AL-204 裙房铝板-内 PODIUM ALUMINUM INTERIOR AL-201 裙房竖向装饰条 PODIUM VERTICAL MULLIONS AL-203 GL-208 外廊栏杆夹胶玻璃 裙房扶手不锈钢 PODIUM RAILING STAINLESS STEEL AL-205 MP-201 裙房铝板-外 PODIUM ALUMINUM EXTERIOR GL-207 裙房天窗中空夹胶玻璃 PODIUM SKYLIGHT INSULATING LAMINATED GLASS 石材 STONE ST-201 灰色石材 GREY GRANITE 其他 OTHERS TR-201 陶棍 裙房天窗不锈钢 PODIUM SKYLIGHT STAINLESS STEEL 裙房装饰百叶 PODIUM DECORATIVE LOUVER 裙房屋顶机房格栅 PODIUM ROOF MEP SCREEN SS-201 SS-202 SS-203 AL-202 裙房室内型材 PODIUM ALUMINUM EXTRUSION INTERIOR ST-202 石材铺地 MP-203 SYMBOLS 救援窗或救援门 楼梯排烟窗 STAIR SMOKE EXHAUST 下沉广场吊顶 SUNKEN PLAZA CELLING PANEL MP-204 从幕墙挑出支撑陶管系统的钢件 SUPPORTING THE TERRACOTTA SYSTEM FS-01 STR-01 FS 外围止火系统 PERMIETER FIRE CONTAINMENT SYSTEM 参考结构图纸 GL-209 外廊转角栏杆夹胶玻璃 TERRACE CORNER RAILING LAMINATED GLASS GL-210 裙房立面彩釉玻璃 乔伟 曹亦洵 曹亦洵 申珊珊 叶琪卿 苗什 幕墙 DATE SCALE 比例 JOB NO. 工程编号 DRAWING NO. DISCIPLINE 专业 STATUS 阶段 图名 项目名称 建设单位 设计人 日期 CHECKED BY/DATE DISCIPLINE RESPONSIBLE BY/DATE 设计人 日期 审核人 日期 设计总负责人 日期 审定人 日期 CO-OPERATED WITH 建筑合作设计单位 ARCHITECTURAL DESIGN CONSULTANT UNIT 设计证书甲级编号 A 1 3 1 0 0 4 0 3 1 华东建筑设计研究院有限公司 华东建筑设计研究总院 Copyright 2017 ECADI CONFIRMED /DATE 给排水会签 日期 CONFIRMED /DATE 电气会签 日期 CONFIRMED BY /DATE 暖动会签 日期 CONFIRMED BY /DATE 结构会签 日期 CONFIRMED BY /DATE 建筑会签 日期 盖章 序号 修改内容 日期 As indicated 2#裙房 幕墙北侧大样图2 A5.P202 幕墙招标 张江中区单元57-01地块项目 裙房 2020-12.31 上海翌久置业有限公司 SCALE: 1 50 2#裙房 北立面放大图 1 SCALE: 1 50 2#裙房 北立面墙身大样图 2 PORTFOLIO OF LIWEI WANG
张江中区单元57-01地块项目 裙房
EXPO 展览

[广州阿尔法建筑大会]

[深圳C3未来建筑大会]

[上海静安设计节]

PORTFOLIO OF LIWEI WANG
PORTFOLIO OF LIWEI WANG

CONCEPT 方案

FLUID WALL (Innovative UHPC

Curtain Wall Prototype Design)

UHPC创新幕墙单元原型设计

· Free Form 自由形态

· Outer Frame 外框架结构

· Precast 预制

· Passive energy saving:被动式节能设计

· Increasing Thermal performance(envelope material)高热工性能材料

· Solar shading 外遮阳

· Natural ventilation 自然通风器

· Integrated lighting 整合灯光

Target Building/Market

|
Office 办公 Building Type 建筑类型 Beijing 北京 Location 地址
需要自然采光
Fluid Wall Product Name 产品名称
Need Natural light/Energy save
UHPC慕墙单元 铝框幕墙单元 自由 受限 Free Form 自由形态 1.3 20-40 Thermal Conductivity 热传导性能 优 优 Fire Resistance 防火性能 良 优 Self-Clean 自洁性能 抗拉強度:3-10 Mpa 抗压强度:120Mpa 抗拉強度:124–290 Mpa 抗压强度:120170Mpa Structural properties 结构性能 0.14 CO2/kg 8.24 CO2/kg CO2 Footprint 二氧化碳足迹 PORTFOLIO OF LIWEI WANG
Interior Use 室内功能 Metal materials Curtain Wall 金属幕墙 Counter part 对标 [CONCEPT]

[EXTERIOR/INTERIOR RENDERING]

[DETAIL]

UHPC 预浇铸单元 铝框 调节挂件 悬挂钢板带
PORTFOLIO OF LIWEI WANG

SLS下拉应力分布(壳体顶部) 4.31MPa≤4.375MPa,ok

SLS下拉应力分布(壳体底部) 4.16MPa≤4.375MPa,ok

有限元计算结果 截面分布

星港国际中心 框架反做 幕墙典型节点

支撑条件

Uf =3.69 W/m2K

With external shading the whole year solar radiation can reduce 21% 拥有外遮阳玻璃面全年热辐射降低21%

UHPC 典型节点 温度

Uf =3.40 W/m2K

Total Solar Radiation with shading(350mm)

23,368,300 KWh/㎡

Total Solar Radiation without shading

[ANALYSIS] PORTFOLIO OF LIWEI WANG
[DESIGN]
PORTFOLIO OF LIWEI WANG
[RECORD] [BUILD]

|

Zhangjiang Science City 320m Twin Tower 张江双子塔 320m

MAJOR DUTY: Competition ConceptDesign,Optimization,Rhino/GH Model Building,REVIT Drawing Pakage Delivery, LDI Consultant Coordination

TYPE: Highrise/Mixed-Use

PHASE: Competition-SD-DD-CA

SIZE: 400,000 m²

LOCATION: Shanghai, China

TIME: Sep. 2019-2021

[CONCEPT]

Ascending control curve bring the tower from ground to the sky and form the Gate Symbol.

Podium using double facade to create semi transparent “Halo” effect to show the merge of technology and dynamic fashion.

PORTFOLIO OF LIWEI WANG

[PROGRAM LAYOUT]

MULTI-LEVEL GROUND CONNECTION CREATE DYNAMIC ARRIVING ENVIRONMENT 低层多层次连接营造出充满活力的到达层环境

CONNECTIVITY WITHIN AND BEYOND 连接云社区

MULTI-LEVEL GROUND CONNECTION

CREATE DYNAMIC ARRIVING ENVIRONMENT

低层多层次连接营造出充满活力的到达层环境

58

57

CONNECTIVITY
INTERNAL CONNECTIVITY NEIGHBOURHOOD CONNECTIONS CONNECTIONS TO NATURE 中央活动区 外高桥保税区 区域位置 张江-下一个城市副中心 ! ZHANGJIANG, THE NEXT SUB-CITY CENTER 区域位置 车30分 DRIVING 区域位置 基地区位优越,位于中环线以内,到陆家嘴、前滩、金桥、迪士尼,以及各大交通枢纽都在30分钟 左右车程。 Disney and other Transportation hubs. 区域位置 南北科技创新走廊 WAIGAOQIAO 区域位置 张江-下一个城市副中心 ! ZHANGJIANG, THE NEXT SUB-CITY CENTER 区域位置 车30分 RIVING 基地 SITE The site is located in the mid ring road, within about 30 minutes drive to Lujiazui, Front Bund, Jinqiao, Disney and other Transportation hubs. 总体功能
办公
商业
餐饮
文化相关
公寓式酒店
地块BLOCK
地块BLOCK
交易中心
酒店配套
会议 MEETING 四层平面
一层平面 1st floor 二层平面 2nd floor 三层平面 3rd floor
LAYOUT 功能排布 CONNECT THE GREEN BELTS AND ENPHACIZE THE CENTRAL GREEN AXIS 连接两端绿带,强调绿色中轴线 ISLAND FORM OVER THE RIVERSIDE WITH HIGH FLEXIBILITY AND DIVERSITY 滨水岛屿式形态,保持灵活性与多样性 NODES TO CONNECT, INTERACT AND FOSTER COMMUNICATION 节点展开,连接,促进联系性 MULTI-LEVEL GROUND CONNECTION CREATE DYNAMIC ARRIVING ENVIRONMENT 低层多层次连接营造出充满活力的到达层环境
NODES
CONNECT, INTERACT
FOSTER COMMUNICATION 节点展开,连接,促进联系性 MULTI-LEVEL GROUND CONNECTION CREATE DYNAMIC ARRIVING ENVIRONMENT 低层多层次连接营造出充满活力的到达层环境
MASTER PLAN 总平概念分析
WITHIN AND BEYOND 连接云社区
TOTAL PROGRAM
OFFICE
RETAIL
F&B
CULTURE
APARTMENT HOTEL FUNTIONAL LAYOUT 功能排布
TRADE CENTER
HOTEL AMENITY
4th floor
FUNTIONAL
ENPHACIZE
TO
AND
CONCEPT
CONNECTIVITY NEIGHBOURHOOD CONNECTIONS CONNECTIONS TO NATURE PORTFOLIO OF LIWEI WANG
INTERNAL
[SITE]

[SOUTH PODIUM]

[FLOOR PLANS] [NORTH PODIUM]

Matching function layout with facade design concept. Optimizing the louver position and double height corner to result the best facade expression.

Using the same design language for the North Podium.

-
PORTFOLIO OF LIWEI WANG + 1F + 2F + 3F 12.500 18.000 23.500 7.000 0.000 + 4F + RF Commercial Traffic
Relaxing lounge 躺椅 Program 功能分析 Second Level Plaza 桥面广场 Glass
Ceiling 玻璃采光顶
Podium Balcony 裙房挑台 Bar Table 酒吧桌
Art
截面类型 A 截面类型 B 截面类型 C [BRIDGE] PORTFOLIO OF LIWEI WANG
Sunken Plaza 下沉广场
Space 艺术空间

MAJOR DUTY: Concept,Design Options, Facade, Programing, Plans

TYPE: Highrise/Mixed-Use

PHASE: Concept-SD

SIZE: 150,376 m²

LOCATION: Shenyang, China

TIME: July 2018-Nov. 2018

[DESIGN STRATEGY]

Q&A 1 HOTEL STRATEGY | Shenyang Lenccy Plaza 230m 沈阳灵溪中心 230m

[SITE STRATEGY]

[PROGRAM AND AREA CALCULATION]

问答1 酒店策略

A.酒店2.1W+塔冠酒店附属设施(泳池+康体约3200M2) +6W公寓(这方案须把塔冠面积增加到计容面积)

B.酒店2.5W(包含避难层上方泳池+康体)+塔冠会所(1476m2)+5.6W公寓

基地 Site 完整的城市展示界面 Continious Main Urban Frontage 错落有致的城市天际线 Urban Skyline 城市绿地 Urban Green Space
基地 Site 完整的城市展示界面 Continious Main Urban Frontage 错落有致的城市天际线 Urban Skyline 城市绿地 Urban Green Space
基地 Site 完整的城市展示界面 Continious Main Urban Frontage 错落有致的城市天际线 Urban Skyline 城市绿地 Urban Green Space
基地 Site 完整的城市展示界面 Continious Main Urban Frontage 错落有致的城市天际线 Urban Skyline 城市绿地 Urban Green Space M M M M M 基地 SITE 2号线 工业展馆站 Line 2 2号线 青年大街站 Line 2 2号线 市图书馆站 Line 2 区域位置 REGIONAL CONTEXT 一号线 LINE 1 二号线 LINE 2 公交站 BUS STATION NEARBY 图例LEGEND
设计策略 DESIGN STRATEGY
设计策略 DESIGN STRATEGY
设计策略 DESIGN STRATEGY
设计策略 DESIGN STRATEGY
酒店配套 HOTEL AMENITIES 酒店 HOTEL 酒店式公寓 SERVICE APARTMENT 企业总部 HEADQUATER 办公 OFFICE 银行 BANK 方案A OPTION A
3200㎡ (EXCLUDE FROM FAR) HOTEL AMENITIES 3200㎡ 酒店附属设施(宴会厅/餐厅) 6010㎡ HOTEL AMENITIES (TOTAL) 6010㎡ 酒店总面积 21000+3200㎡ HOTEL TOTAL AREA 21000+3200㎡ 公寓总面积 60000㎡ APT TOTAL AREA 60000㎡ 酒店客房 15120㎡ HOTEL TYPICAL FLOOR 15120㎡
HOTEL ROOM 20X8=160 KEYS
(未计容)酒店附属设施
共有客房20X8=160间
未计容 EXCLUDE FROM FAR
PORTFOLIO OF LIWEI WANG
提取 ABSTRACT 演变 DEVELOPE 形体生成 提取 ABSTRACT 演变 DEVELOPE 形体生成 MASSING DEVELOPMENT PORTFOLIO OF LIWEI WANG

[OTHER WORKS]

Climber’s House 2015 Shenzhen Evergrande Opera Theater 2019 Shenyang Lingxi Plaza 2018 Hubei Real Estate Investment Headquarters 2019
PORTFOLIO OF LIWEI WANG
Contemporary Museum 2012 Residential Complex 2015 Urban Design 2013 Shopping Mall 2014 Landscape Revitalization 2014 TOD Streetscape Design 2015
MUSEUM STUDENTS PUBLIC ARTISTS
Art
[CONTEMPORARY ART STUDY] [PROGRAM] ART
PORTFOLIO OF LIWEI WANG
The contemporary art works have more interactions with visitors. The exhibition shows bigger in scale and more experimental. In addition, most of the contemporary art works are three dimensional which also need different space to exhibit them.
PORTFOLIO OF LIWEI WANG
[MODELS]

[Gouache Work]

[ARTWORKS]

PORTFOLIO OF LIWEI WANG
[Studio Pop-Up/Grapgic Design]

Turn static files into dynamic content formats.

Create a flipbook
Issuu converts static files into: digital portfolios, online yearbooks, online catalogs, digital photo albums and more. Sign up and create your flipbook.