Olivia Roach Portfolio

Page 1


Olivia roach

interior design portfolio

UNIVERSITY OF GEORGIA SPRING 2025

oliviaroach2@gmail.com

(404)884-0155

907GrandviewWayNW,Acworth,GA30101

www.linkedin.com/in/olivia-roach-42385b230

I am currently pursuing my Bachelor of Fine Arts in Interior Design with a minor in Business at The University of Georgia and will graduate in May 2025. Through my coursework, I have developed a strong foundation in design principles, further enhanced by hands-on industry experience.

As an interiors intern at Croft & Associates for the past two years, I have collaborated with architects and engineers, gaining practical skills in designing floor plans, finish plans, lighting plans, finish schedules, and 3D renderings. My role has also included attending job site visits, meeting with industry representatives, and utilizing software such as Revit, AutoCAD, Enscape, Bluebeam, and Adobe InDesign.

I am excited to enter the workforce as a motivated designer with a passion for creating inspiring spaces and bringing ideas to life. I believe spaces should be both beautiful and functional, enhancing the way people live and work. My goal is to design environments that positively impact lives and support well-being. I thrive in collaborative environments and love working as part of a team, where I can contribute creatively while learning from others. My strong work ethic, adaptability, and communication skills allow me to work seamlessly with clients, colleagues, and industry professionals. I am eager to make a positive impact wherever I work while continuing to grow as a designer.

01 SHINJUKU GRAND HOTEL

AUGUST 2024-DECEMBER 2024

For the Fall 2024 semester, our studio class undertook our first group design project: conceptualizing a 30story, five-star hotel. The design included four restaurants, a spa, a gym, and a variety of guest rooms, all crafted to deliver a personalized and immersive experience for the modern traveler. The Shinjuku Grand Hotel, set in the vibrant district of Shinjuku, Japan, was envisioned as a sanctuary of wellness and comfort. Each space was thoughtfully designed to promote rejuvenation while embracing Japanese cultural influences, particularly the wabi-sabi philosophy. Our goal was to redefine the five-star hotel experience by seamlessly integrating luxury, holistic well-being, and exceptional dining opportunities.

Skills: AutoCAD, Revit, 3ds Max, Adobe InDesign, Adobe Illustrator, Adobe Photoshop

MOOD BOARD

ambiance & nature

level 1-4 floor plans

LEVEL ONE

RECEPTION

BAR INTERNETCAFE RETAIL

CHATEAUD’AMOUR FLEXSEATING ELEVATORLOBBY

LEVEL TWO

FITNESSCENTER RETAIL MEDITATIONROOM

UMAMI-RESTAURANT

SIAMAKARA-RESTAURANT

ELEVATORLOBBY

LEVEL THREE

BANQUETHALL MEETINGROOMS

BREAKFASTROOM FLEXSEATING ELEVATORLOBBY

LEVEL FOUR

SPA

BEAUTYSALON POOL

MEDITATION/YOGA ELEVATORLOBBY

SIAMAKARA

LEVEL2RESTAURANT

Siamakara is a 5-star Thai restaurant offering authentic Thai cuisine in an elegant ambiance. For my design, I selected a neutral color palette, natural materials like teak and bamboo, and design elements inspired by Thailand’s rich architectural heritage. The sophisticated space combines traditional details with modern luxury, creating a serene and inviting atmosphere for an unforgettable dining experience.

CHANDELIER

RECESSED

SPRINKLER

PENDANT

ENTRY/RECEPTION PUBLICDINING

SHINJUKU SPA

LOUNGESPACE

My goal in designing the spa lounge was to create a serene moody ambiance carefully crafted to promote deep relaxation through soft lighting and tranquil surroundings. Hot and cold plunge pools, complemented by gentle waterfalls, offer a peaceful sanctuary where guests can unwind and rejuvenate.

SHINJUKU SPA

PERSONAL SUITES

My design for each bungalow suite offers a luxurious retreat, incorporating a comfortable day bed, a stand-alone Jacuzzi tub, and stairs leading into a warm pool with breathtaking views of the Shinjuku skyline. I intentionally designed the space to provide ultimate relaxation while seamlessly integrating the surrounding scenery for an unforgettable experience.

executive suite LEVEL 26-27

I designed the Executive Suite A&B as a tranquil oasis, seamlessly blending comfort with Japanese design elements. It features a spacious bedroom, a well-appointed bathroom, a cozy living area, and a functional desk, creating a serene yet practical retreat for guests.

CHANDELIER

RECESSED

SPRINKLER

PENDANT

ENTRY

LIVINGSPACE

BATHROOM

BEDROOM

DELUXE suite LEVEL

28

I designed the Deluxe Suite as a step up from the Executive Suite, offering an elevated level of space and luxury. It features two spacious bedrooms, two bathrooms, and a generous living area with stunning views of the Shinjuku skyline. To enhance both comfort and functionality, I incorporated a dedicated desk and a stylish bar area, creating a refined retreat for guests.

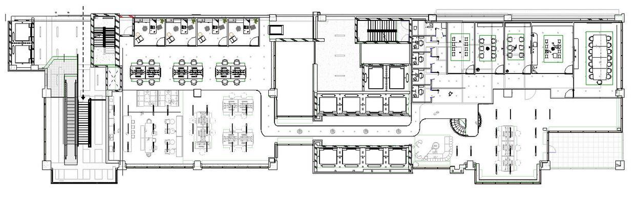
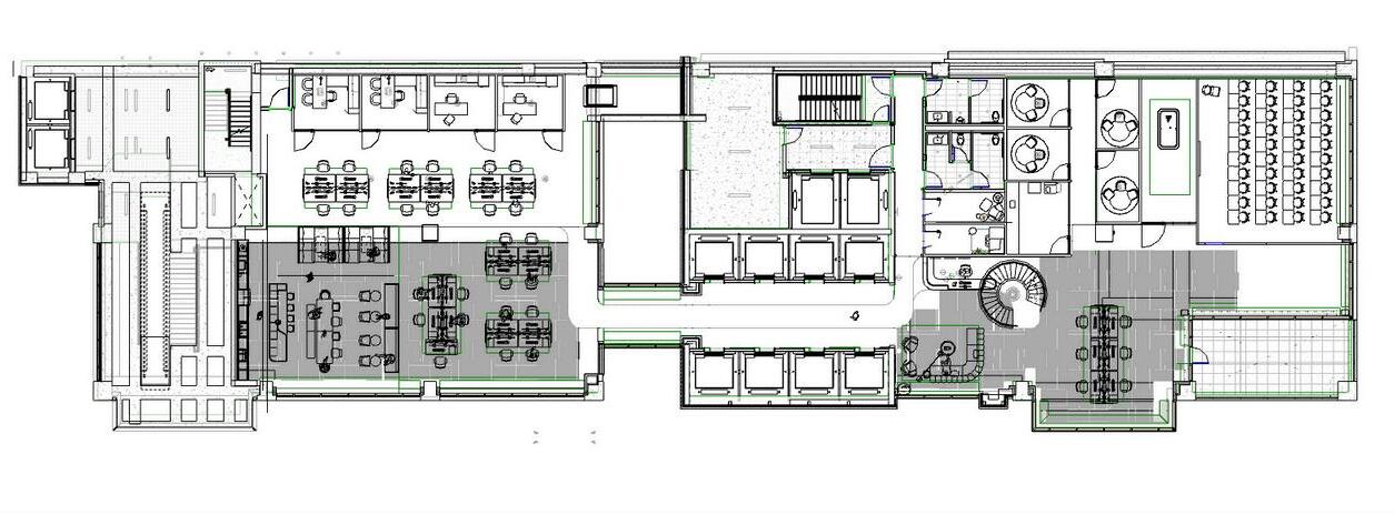
02

AUGUST 2023-DECEMBER 2023

During the fall 2023 semester, our studio class participated in the 11th Annual Steelcase NEXT Student Design Competition, focusing on creating an innovative hybrid workplace. My design prioritized a diverse range of spaces and integrated technological solutions to seamlessly support various modes of collaboration. The competition challenged us to design an 11,000 SF office environment that adapts to evolving workplace behaviors and expectations. This project, embedded in our curriculum, emphasized dynamic workplace design and inclusive principles to meet the future needs of hybrid work. For our year, the office was to be located in Dallas, Texas, so I drew inspiration from the city's vibrant culture, architectural influences, and natural landscapes, incorporating warm, earthy tones, rich textures, and dynamic lighting to reflect its modern yet rooted character.

Skills: AutoCAD, Revit, Enscape, Adobe Photoshop

design concept

Embracing the vibrant spirit of Dallas, my office design is a fusion of modern sophistication and Texan warmth.

Inspired by the city's dynamic energy and diverse culture, our space harmonizes sleek design elements with nods to local heritage. From the sweeping skyline views to the infusion of rustic textures and contemporary art, every corner echoes the spirit of innovation and resilience that defines Dallas. Our office embodies the spirit of this thriving metropolis, fostering collaboration, creativity, and a sense of community that celebrates both our global vision and deep roots in the heart of Texas.

MOODBOARD

FIRSTFLOOR

MEZZANINELEVEL

RECEPTION

FIRST FLOOR

WORK CAFé

DESIGN LIBRARY

FIRSTFLOOR

03 BEND, RESID

JANUARY 2023-MAY 2023

This project was my first experience using Revit to develop the floor plans I designed. I began by hand drafting my plans before translating them into Revit, and then I self-taught Enscape to generate 3D renderings for the first time. This project holds significance for me as it serves as a benchmark for my growth, highlighting the progress I have made in both technical and digital design skills.

My focus was on exploring the relationship between public and private areas within a home, as well as the influence of topography on design. Situated in Bend, Oregon, the project presented unique challenges and opportunities, particularly its proximity to natural elements. Integrating these elements into the home was essential, leading to the incorporation of outdoor seating areas and roof structures. By leveraging the site’s southern light and natural topography, I designed this home to be a comfortable retreat that harmonizes with its surroundings.

Skills: Revit, Enscape, Hand Drafting

PRIMARY BEDROOM

SECONDFLOOR

LIVING ROOM

FIRST FLOOR

DINING AREA

FIRSTFLOOR

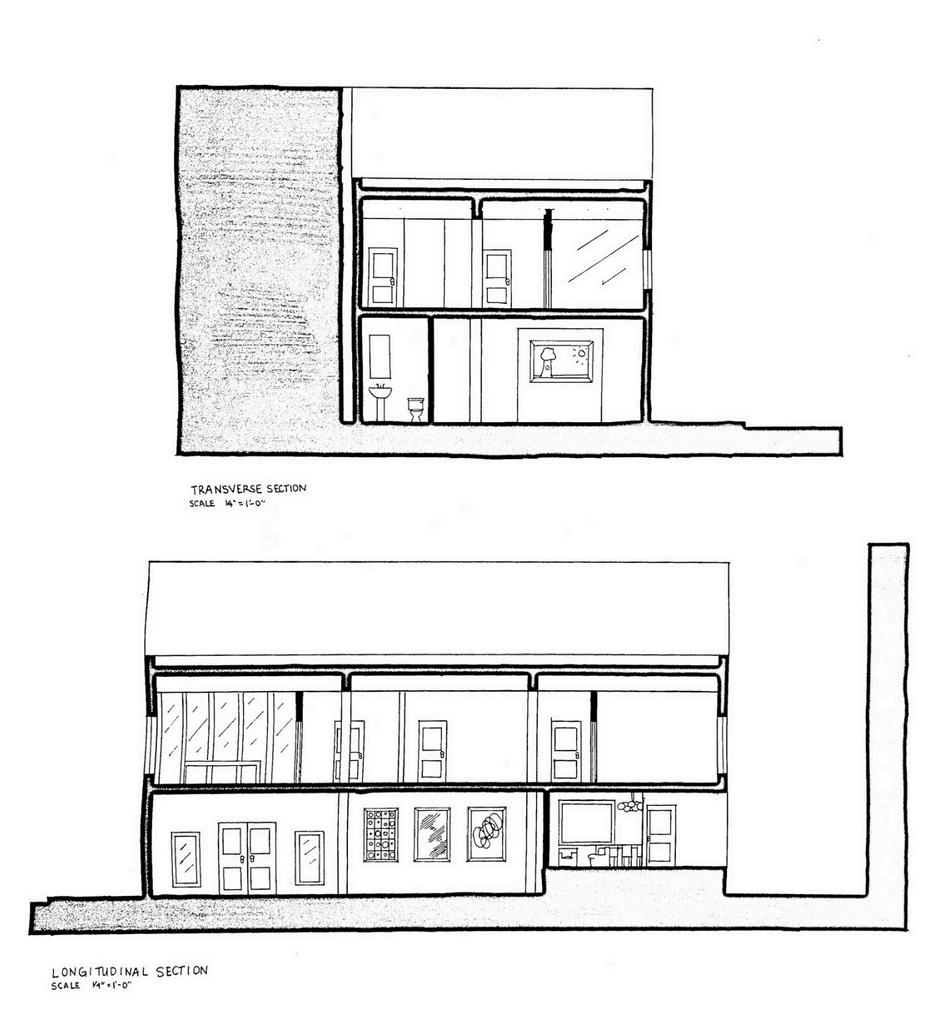
wall sectionS

AspartofourBend,OregonHouseproject, weweretaskedwithcreatingadetailed wallsectioninAutoCAD.Myapproachto homedesignisrootedinadeep understandingoftherelationshipbetween architecture,nature,andhumanbehavior. Throughtheexplorationofbuilding systems,Ihavegainedvaluableinsightinto thestructuralcomponentsthatsupporta home,enablingmetocreatedesignsthat arebotharchitecturallysoundand structurallyprecise.

AUTOCAD

04 CORTONA, I WORK

MAY 2024-AUGUST 2024

Lastsummer,IstudiedinteriordesignthroughUGA’sCortona StudyAbroadPrograminCortona,Italy.Aspartofourstudio class,Icollaboratedonapartnerprojecttorenovatea commercialspaceonthetown’smainstreet,transformingitinto anewbusinessofourchoice.MypartnerandIcreatedCortona Carmella,awhimsicalandcharmingcandyshopdesignedto welcomebothlocalsandtourists.

Ourdesignprocessinvolvedhand-draftingplans,elevations,and perspectivesontracepaper,whichwethentransferredonto tonedpaperusingcarbonpaper.Wetracedourdrawingswithink andbroughtthemtolifewithwatercolor.Additionally,Itookmy firstfurnituredesignclass,whereIindividuallydesignedtwo custompiecesfortheshop:acandydisplayandaplayfultakeon acaféchair.Thesedesignsfollowedthesamemeticuloushandrenderingprocess,furtherdevelopingmyskillsintraditional draftingandpresentationtechniques.

Skills: Hand Drafting

BOARD ONE - CORTONA CARMELLA BOARD TWO - FURNITURE DESIGN

Materials:Ink&WatercoloronTonedPaper

CHURCH SKETCHES

ITALY

Beyondcreatingdesignboards,ourclassalsopracticed quickarchitecturalsketching,capturingchurchesincities acrossItaly,includingMilan,Florence,andNaples.This wasanewskillforme,andIlearnedtocompletesketches injustafewminutes startingwithlargeshapesto establishproportionsbeforerefiningdetailswithinthe giventime.Thisexperienceenhancedmysketching abilitiesandimprovedmyabilitytoquicklyand accuratelytranslatereal-lifearchitectureontopaper.

05 3DS MAX BEDROOM

SPRING 2024

InmyTime-BasedMediaclass,Iutilized 3dsMaxtodesignaresidential bedroom,focusingondigitalspace creationandvisualization.Thisproject allowedmetodevelopmy3Dmodeling andrenderingskillswhilegaining proficiencyinthesoftware.Through thisprocess,Iexploredlighting, materialapplication,andspatial composition,enhancingmy understandingofdigitaldesign workflowsandtheirapplicationsin interiorenvironments.

Skills: 3ds Max

06 HAND DRAFTING

AUGUST 2022-MAY 2023

MyfirstinteriordesignstudiocoursesatUGAtaughthand drafting,providingastrongfoundationindesignprinciples.

Inmyfirststudio,Single-FamilyResidentialDesign,I dedicatedtimetolearningandrefiningmydrafting techniqueswhileexploringspatialorganizationandindustry fundamentals.Thisexperiencewasinstrumentalin understandinganddevelopingessentialskills,including pocheing,lineweights,angles,andprecisioninlinework.

UsingdraftingtablesandT-squares,Igainedadeep understandingofthecraft,ensuringaccuracyandclarityin mydrawings.

Igainedexpertiseindraftingfloorplansandperspective drawingsusingagrid,elevations,andplanobliquesby hand.Masteringthesefoundationalskillsthrough traditionalmethodsgavemeastrongunderstandingof designprinciples,allowingmetoconfidentlytransitionto digitaldraftinginRevitandAutoCAD.

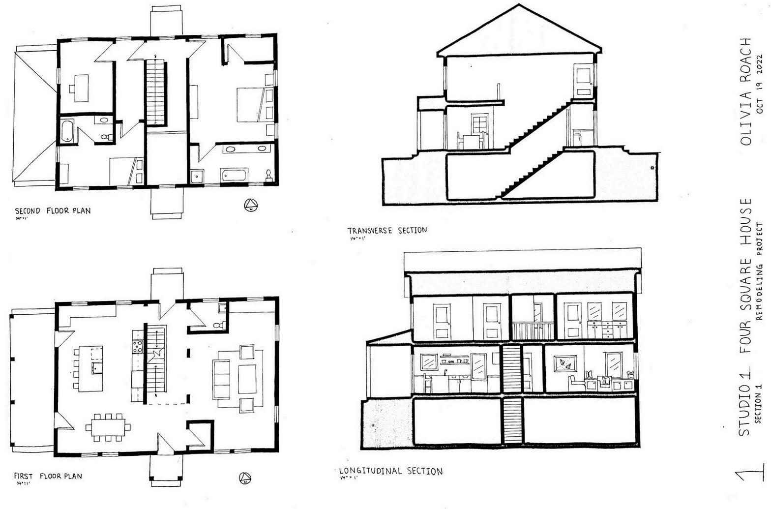
four square house

AUGUST2022-DECEMBER2022

In Single-Family Residential Design, my first project, the Four Square House assignment, introduced me to the concept of design problems. The challenge was to create a singlefamily residential plan within the constraints of a standard four-square layout. My design emphasized seamless movement between spaces, with careful consideration of lighting, window placement, and essential living functions to enhance both functionality and comfort.

ENTRYWAY PERSPECTIVE

KITCHEN PERSPECTIVE

LIVING ROOM PERSPECTIVE

PRIMARY BEDROOM PERSPECTIVE

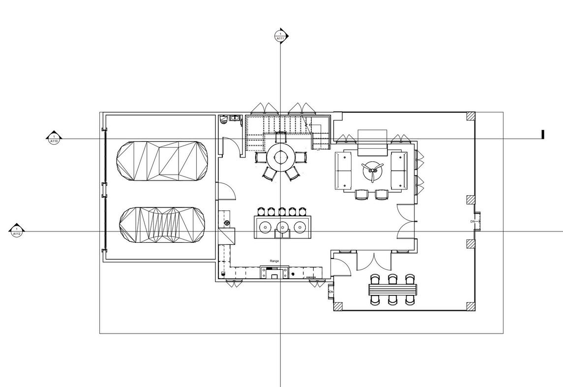
home & office gallery

JANUARY2023-MAY2023

Mysecondhand-draftingprojectfocusedondesigningamixed-useresidencethat seamlesslyintegratedahome,anartgallery,andofficespace.Situatedinanurban setting,theprojectpresentedchallengesrelatedtoprivacy,security,anda confinedsitefootprint.Withresidentialquartersspanningbothlevels,Iexplored solutionsforachievingaharmoniouswork-lifebalancewithoutonefunction infringingontheother.

Keydesignrequirementsincludedanartgallery,atwo-volumespace,officeand meetingareas,ADA-compliantaccessibility,andessentiallivingspacesforasmall family.Thesplit-levellayoutallowedforclearseparationbetweenworkandliving areaswhilemaintainingopennessandconnectivity.Thisprojectstrengthenedmy abilitytodesignfunctional,efficient,andaestheticallycohesivespaceswithin complexconstraints.

EXPLODED PLAN OBLIQUE

TRANSVERSE & LONGITUDINAL SECTIONS

THANK YOU!

Turn static files into dynamic content formats.

Create a flipbook
Issuu converts static files into: digital portfolios, online yearbooks, online catalogs, digital photo albums and more. Sign up and create your flipbook.