刘思文景观作品集_Siwen Liu Portfolio

Page 1

P O R T F O L I O

Selected Work 2018-2022

Liu Siwen

01 02 03 04

SLOW TRAFFIC SYSTEM LOOP LINE OF YUZHONG PENINSULA

POSTWAR RESTORATION AL NOURI MOSQUE IN MOSUL

URBAN ECOSPHERE

STORMWATER AND FLOOD MANAGEMENT IN THE SUBWAY

TABLE OF CONTENTS

System

SLOW TRAFFIC SYSTEM LOOP LINE OF YUZHONG PENINSULA

Duration: 12 Weeks

Academic: Year 4 (2021.9.10-12.05)

Location: Chongqing, China

Peninsula

Tutor: Li Chunmei, 0571-88982529 2655976503@qq.com

Address: Room B504, Building of Agriculture & Ecology Group

Type: Individual

Yuzhong Peninsula has a strong 3-dimensional traffic system. And the diverse applications of rail, cable car, and elevators really facilitate the residents' daily life. However, walking and cycling are neglected in this mountainous city due to the inconveniences of the varied terrain.

Given the health problems caused by car dependence, slow traffic should be the best form of transportation for every city. Also, transport systems are an important part of the urban experience. Therefore, a slow traffic system should emerge for variable mountain environments, providing diverse travel options, which are both convenient and environmentally friendly.

Traffic
TOPOGRAPHIC CONTOUR SCENIC SPOTS DISTRIBUTION MAP HEAT MAPCONTOUR LAND USE MAP

SETTLEMENTS MAP

The settlements are mainly on the west side of the peninsula.

GREEN SPACE MAP

The green space is unevenly distributed, mainly in the west. The green ground on the east side is smaller but much more used.

SITE ANALYIS

BUILDING PLAN

The base image shows the general distribution of buildings, the buildings in the red box are extremely dense areas or have special functions.

SLOW SYSTEM R OADMAP

The slow system combines terrain, hot spots, tourists' preference and people' habits, and creates new channels on necessary occasions under the premise of following original road.

BASIC ANALYSIS OF GENERATING THE LOOP

LOOP LINE

All the different types of elements make up the loop. The single loop above shows the vertical design in a more three-dimensional way by expressing the relationship with the corresponding building/terrain. Some go deep into residential areas, some traverse commercial centers, and some offer shortcuts between green spaces and highways, designed to solve the problems of mountain cities. For tourists and local residents, the design is reflected in all aspects of life.

山城步道
Vertical Traffic Diverse Reuse Riverside Streets For Local

In The Corner Of The Street

In The Corner Of The Street

At ground level, the streets are landscaped and casualised, and traffic is optimised by placing stations and riding lanes in the middle; A pedestrian bridge will be set up at the height of 2-3 floors to disperse people and relieve road congestion; At the height of 7-8 floors of residential buildings, each roof is connected by roads, and the original private roofs are turned into shared gardens. In addition, stairs, elevators and other facilities inside the building are used to achieve the connection between the ground surface and the roof.

The Yuzhong Peninsula

SLOW SYSTEM Connection

Terrain

Walking systerm

PICTURE

10 meters

VERTICAL TRAFFIC

High-rise

Through the obstacles

DIFFERENCE DIVERSE REUSE

Neighboorhood park

40 meters

Residential building rise

Street landscaping

Relationships

Slope protection

Low-rise

Station

Spcae under the bridge

Mountain cable car

Connection types

Interactive facilities

Place for a short stay

Riverside Vertical Traffic Internet Celebrities Punch In
Overpass For Bikes
STREETS FOR LOCAL HIGH

RENDERING

When embarking on the mountain slow walking system in Chongqing Yuzhong Peninsula with means in the vertical direction, I designed different section for different people. Visitors have a simple, quick and easy way to reach the landscape area. Residents can choose a transportation system based on cycling and walking to enjoy the city scenery. For native porters, I inserted elevators inside the buildings to avoid going over the hills, which also made the private space become public. In carrying out these projects, I never forget my original intention - to provide a more safe and resilient environment for the living meanwhile make peace with history and culture.

Vertical traffic Slope protection Low-rise 3 Low-rise 4 Residential building rise High-rise 25 floors High-rise 33 floors High-rise 74 floors Bay bridge 20m Internal channel Elevator River path Water riding
Hongyadong

POST WAR RESTORATION AL NOURI MOSQUE IN MOSUL

Duration: 12 Weeks

Academic: Year 3 (2020.9.1-11.10)

Location: Mosul, Iraq

Tutor: Xie Yuting, +86 18368152652, xieyuting@zju.edu.cn

Address: Room B504, Building of Agriculture & Ecology Group

Type: Individual

When the battle for Mosul ended, the Al-Nuri Mosque was bombed and the city was reduced to rubble, leaving thousands homeless. Life needs to go on. How to rebuild Nuri Mosque as an important religious building of Islam?

The design is divided into three time stages, which meet the needs of local residents in different periods from different perspectives such as functionality, aesthetics, sustainability and secularization.In 2025, the site will be economically and sustainably restored, in 2035 it will be a combination of religious and functional, and in 2050, the mosque will become more inclusive and secular.

?
PLANE 2025 WALL 2025 2035 2050 2035 2035 2050 WATER 2025 2050 GROOVE 2025 2035 2050

FLOOR PLAN 2025

DESIGN CONCEPT

Functional partition Streamline analysis Site plant preservation

FLOOR PLAN 2035

DESIGN CONCEPT

Vegetation analysis Streamline analysis Functional partition

FLOOR PLAN 2050

DESIGN CONCEPT

Functional partition Daily streamline analysis Streamline analysis on religious holidays Vegetation analysis

REFUGEE CAMP

OUTDOOR TEACHING

Blackboard Is A Classroom.
Life Needs To Go On. A

COMMUNITY PARK AT ORDINARY TIMES

In 2050, the mosque will open as a community park during non-religious holidays, providing a place for residents to relax. The empty square ensures the needs of the festival gathering, and the seats scattered provide a space for residents to chat; Visitors can also stop here and enjoy the beautiful mosque.

More Open

More Secular

URBAN ECOSPHERE

During the outbreak of urbanization, people’s longing for nature was further amplified. On the other hand, animals' habitat is shrinking rapidly. Some animals have no choice but to adapt to the city environment. Because of the continuous expansion of cities, the earth's land is becoming more and more scarce. The concept of the urban ecosphere is based on the adaptability of animals and people’s desire to interact with animals. The distribution of habitats in green space ensures the survival of animals. And the establishment of human-animal interaction facilities provides people with the opportunity to interact with them.

Location: Hangzhou, China

URBAN ECOSPHERE

URBAN ECOSPHERE

URBAN ECOSPHERE

Duration: 16 Weeks,Year 3 (2020.5.12-8.18)

Tutor: Wu Jiayu, +86 13758188248, wujiayula@zju.edu.cn

Address: Room A124, Building of Agriculture

Type: Individual

External Traffic Analysis

Internal Traffic Analysis

Green Space Distribution

China, Hangzhou

Green Space Distribution

Land Type Distribution

CHAIN

CHAIN

Land Type Distribution

Commuting Range Analysis

Commuting Range Analysis

Commuting Range Analysis

Land Type Distribution

Land Type Distribution

Land Type Distribution

Land Type Distribution CHAIN

, Internal Traffic Analysis
Animals and Humans
) ,
( )
and Humans ,
Animals
( )
2
A-A Feeding Place 1 C-C Feeding Place 2 E-E River Bend G-G Tower B-B Oxygen tank D-D Flexible board F-F Observing through pipe

Forest

It can be only appreciated distantly

Animal movements are designed to be observed and not disturbed to facilitate human-animal interaction.

River Bend+Migration Bridege + Wetland:

STORMWATER & FLOOD MANAGEMENT IN THE SUBWAY

Duration: 10 Weeks

Academic: Year 4 (2021.4.24-6.30 )

Location: Zhengzhou, China

Tutor: Deng Yunlan, +86 13516828768, yldeng@zju.edu.cn

Address: Room B504, Building of Agriculture & Ecology Group

Type: Individual

Heavy rain on July 20, 2011, in Zhengzhou, Henan province, caused a flood even effected the subway, trapping passengers in subway cars and causing casualties. Extreme weather, such as heavy rain, is a growing challenge in the world. Similar flood case can be seen in New York and Germany. Underground subways are especially dangerous if they are flooded. Stormwater management in the subway is of significant necessity, not only creating water system for daily maintenance but also offering high level emergency system.

Lack of drainage channels: Low-lying: The station was sited in wrong place. Rain was pouring in from everywhere. Typhoon fireworks: Travel options for pedestrians: Extreme weather: Between subway stations: Main cause of subways flooding: A blown tree Subway water inlet: Shakou station Haitansi station
Lack of rest device Boring landscape { { Civil air defence works Connect underground space Leisure place Firm facilities Large volume of people Lake and river Synthesis Collect + discharge Humanized space Low-lying Cross train station Poor infrastructure Subway track flooding Emergent aquatic plant Blown down trees Transit zone Green space flooded Plants are dead Underground plants Landscape + plants Water-tolerrance Storefront shops were flooded The underground mall was flooded Leisure facilities Street Roof leak Large passenger traffic The bottom is connected to the subway Railway station Homogenization of landscape Inadequate guidance of the crowds
Outside the station the Station the Station Inside the station Inside the station Inside the Station Inside the Subway IN
THE SUBWAY

WATER CIRCULATION MANAGEMENT FROM GROUND TO BOTTOM

In addition to the traditional ground stormwater management, the design focuses on the treatment of the rainwater in the subway and the nearby domestic sewage, and is committed to solving the flood disaster caused by the massive inflow of rainwater.

From the moment the water falls, the stormwater management system operates, filtering, purifying, collecting, and eventually discharging to the ocean or returning to use through a series of pipes and installations.

infiltration the Exterior of the Subway ground landscape Skip the Filter
of Rain +Domestic Water
Operation Input of Rain Ground Subway layer 1 Subway layer 2 Water Storage Entrance Waterproofing Entrance Landscape Reinfusion Spiral Pipe:Aesthetic + function
Layer 2: Further purification Sewage Purification 2 Underground River: 、 Sewage Purification 1
of Extreme Weather Prevent Inflow In Time Drainage w n d ow
Input
Daily
Subway
Occurrence

What Is Landscape To Me?

WATERFRONT ACTIVITY SPACE

二、前期分析+选址 前期分析: 我对江南古典园林的理解:

江南的古典园林以私家园林为主,以环形为主, 用曲折的廊连接,有闭合的意味,在曲折中营 造一个小世界,是内省的空间。

应用:在校园中,这种形式应当更加开放。

ANALYSIS+DESIGN CONCEPT

前期分析: 我对江南古典园林的理解: 江南的古典园林以私家园林为主,以环形为主, 用曲折的廊连接,有闭合的意味,在曲折中营 造一个小世界,是内省的空间。

FLOOR PLAN

Duration: 2 Weeks

Academic: Year 3 (2020)

Location: Hangzhou, China

Type: Individual

Analysis of classical gardens: Classical gardens are mainly private gardens, mostly ringed, connected by zigzag corridors, with a sense of closure, creating a small world in zigzag, a space for introspection. And our design application on campus, the architectural form should be more open and inclusive.

应用:在校园中,这种形式应当更加开放。

EAST ELEVATION

Through the combination of wall and column, the twists and turns of solid wall often produce dramatic effect, while the juxtaposition of column produces blurred sense of space.

NORTH ELEVATION

Different slopes with different heights and orientations are used to create an open and inclusive space. Different from the circular structure of classical gardens, the curving corridor of buildings facing the water suddenly opens up, giving people a pleasant and relaxed atmosphere.

11 10 东立面图
二、前期分析+选址

CAMPUS LANDSCAPE RENEWAL DESIGN

Duration: 8 Weeks

Academic: Year 4 (2021)

Location: Hazngzhou, China

Type: Group

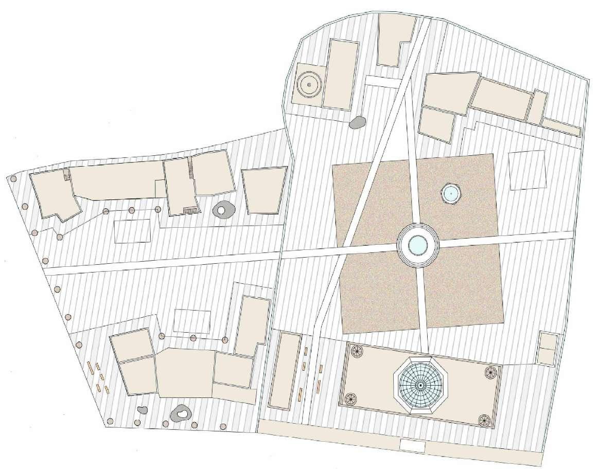
FLOOR PLAN

This site is located in the central courtyard of College of Agriculture, which was desolate and neglected. The site aims to become the central garden, where teachers and students can rest and communicate.

EFFECT

Considering

DESIGN CONCEPT

Through investigation of courtyard satisfaction, the establishment of communication space between teachers and students is the key to be considered.

As a landscape renewal project, this project not only focuses on landscape reconstruction, but also strives to preserve the original site design content. Through the path and the main road interspersed, strengthen and strengthen the original field texture. And planting the characteristic plants of the college of agriculture, as the field landscape display, express the characteristics of the discipline.

PICTURE
Modify road streamline Orient gazing direction Proportion of green space Determine road proportion Total flat Original road streamline
the characteristics of the college, the field landscape will be used throughout the design, and plants will be used to create unique seasonal changes in the four seasons.

Traditional Chinese Painting

Academic: Year 3(2020) Sketch

Academic: Year 1(2018) - Year 4(2021)

During my college years, I kept observing classical Chinese landscape. I used painting to record my feelings of them, and tried two different expression methods of sketch and Chinese painting. Finally, I measured the parts of the building to feel the classical beauty exactly.

Lily 30cm×40cm
Trees 80cm×50cm Scenery 80cm×50cm Tile and drip tile Detailed measure drawing of ancient Chinese architecture, including eaves tile and crosstie

Turn static files into dynamic content formats.

Create a flipbook
Issuu converts static files into: digital portfolios, online yearbooks, online catalogs, digital photo albums and more. Sign up and create your flipbook.