ENTREGA FINAL DIGITAL III

Page 1

USO DE REVIT EN PROYECTO DE VIVIENDA MULTIFAMILIAR ARQUITECTURA DIGITAL ARQ. MONICA AMELIA FUENTES ROCHA NAVARRO HUARCAYA LISBETH PONCE AGUILAR FIORELLA CENTENO ORELLANO JHONATTAN U20208997 U19308176 U20100184 DOCENTE ESTUDIANTE

PLANTAS ARQUITECTONICAS

arriba AB - - ---1 1 9 9 D D B B C C 2 2 6 6 4 4 8 8 7 7 5 5 3 3 10 10 A A TERRAZA PROY. VACÍO SALA COMEDOR CUARTO DIVERSO DORMITORIO CUARTO SERVICIO COCINA LAVANDERÍA BAÑO BAÑO BAÑO DORMITORIO PRINCIPAL DORMITORIO PRINCIPAL DORMITORIO PRINCIPAL SALA SALA PROY. SEGUNDO NIVEL COCINA COCINA DORMITORIO DORMITORIO COMEDOR COMEDOR ESTAR BAÑO BAÑO BAÑO DPTO. 101 DPTO. 102 BAÑO ESTAR TERRAZA TERRAZA PROY. VACÍO PROY. VACÍO Ducto Ducto Ducto Ducto 5.70 8.100.150.00 5.582.805.57 13.95 3.73 0.40 4.00 2.70 5.75 0.15 4.75 5.05 0.50 5.95 4.00 9.37 2.70 5.00 6.35 3.48 35.98 0.153.207.220.203.020.15 3.202.372.805.57 13.95 0.152.855.950.505.055.300.154.00 8.05 3.830.15 4.00 6.73 2.65 2.70 5.00 6.35 3.48 2.07 3.00 35.98 HALL LAVANDERIA CUARTO DE SERVICIO CUARTO DE SERVICIO BAÑO BAÑO LAVANDERIA -A1041.50 1.50 1.50 1.50 1.50 1.50 1.50 1.50 1.50 1.50 1.50 1.50 1.50 1.50 1.50 1.50 1.50 1.50 1.50 1.50 1.50 3.002.07 35.98 35.98 - - ---1 1 9 9 D D B B C C 2 2 6 6 4 4 8 8 7 5 5 3 3 10 10 ESTACIONAMIENTO EN RAMPA ESTACIONAMIENTO Proy. primer piso ESTAR RECEPCIÓN BAÑO CORREDOR PRINCIPAL ESTACIONAMIENTO CUARTO DE MAQ. HALL DEP. DE BASURA INGRESO VEREDA Proy.Vacío Proy.Vacío 0.155.55 8.100.15 5.582.805.57 14.00 0.159.700.154.800.204.403.100.202.450.206.354.120.1 5 2.40 4.00 6.73 2.65 2.70 5.00 6.35 3.48 2.07 3.00 36.00 1.50 1.50 4.00 6.73 2.65 2.70 5.00 6.35 3.48 2.07 3.00 36.00 0.153.020.207.200.203.020.15 14.00 PROYECCIÓN DE CISTERNA PROYECCIÓN DE CISTERNA PROYECCIÓN DE CISTERNA Proy. primer piso Proy. primer piso Proy. primer piso Proy. primer piso Proy. primer piso DEP. N.P.T 0.00 A A RAMPA (S=15%) N.T.P. -1.20 5.582.805.57 N.T.P. -1.20 JUNTA DE DILATACIÓN 1¨ N.T.P. -1.20 N.T.P. -1.20 N.T.P. -1.20 N.T.P. -1.20 -JUNTA DE DILATACIÓN 1¨ PISTA PAVIMENTADA INGRESO VEHICULAR 0.18 3.82 6.65 0.151.700.15 3.40 4.95 0.20 4.80 0.150.900.80 3.03 0.10 3.52 1.350.15 JUNTA DE DILATACIÓN 1¨ JUNTA DE DILATACIÓN 1¨Escala Fecha PLANTA ARQUITECTONICA SOTANO - 1 ER PISO 1 75 ARQUITECTURA DIGITAL 25/06/2023 A101 ESTUDIANTES MONICA AMELIA FUENTES ROCHA PONCE AGUILAR FIORELLA NAVARRO HUARCAYA LISBETH CENTENO ORELLANO JHONATTAN DOCENTE VIVIENDA MULTIFAMILIAR DE 5 PISOS + SOTANO PLANTA SOTANO
ESCALA 1/75 PLANTA PRIMER PISO ESCALA 1/75
-- ---1 1 9 9 D D B B C C 2 2 6 6 4 8 8 7 7 5 5 3 3 10 10 A A SALACOMEDOR CUARTODIVERSO DORMITORIO CUARTO SERVICIO COCINA LAVANDERÍA BAÑO BAÑOBAÑODORMITORIO PRINCIPAL DORMITORIO PRINCIPAL DORMITORIO PRINCIPAL SALASALA COCINACOCINA DORMITORIO DORMITORIO COMEDORCOMEDOR ESTAR BAÑO BAÑO BAÑO DPTO. 101 DPTO. 102 BAÑO ESTAR TERRAZATERRAZA PROY.VACÍO PROY.VACÍO 2.805.57 13.95 0.40 4.00 2.70 10.65 5.05 0.50 5.95 2.805.57 13.95 5.950.505.059.458.05 6.73 2.65 2.70 5.00 6.35 3.48 2.07 28.98 HALL LAVANDERIA CUARTODE SERVICIO CUARTODE SERVICIOBAÑOBAÑO LAVANDERIA 4.154.15 4.15 4.15 4.154.154.15 4.15 4.15 4.15 4.15 4.154.15 4.15 4.15 4.15 4.15 4.15 4.15 4.15 4.15 4.15 4.15 4.154.15 4.15 4.15 4.15 4.154.154.15 4.15 4.15 5.58 0.150.500.651.880.203.430.293.480.101.970.650.500.15 28.98 0.10 4.35 0.15 0.80 0.10 1.50 0.15 10.65 0.15 3.75 0.15 0.90 0.75 1.40 0.15 0.60 3.50 0.40 5.58 0.150.504.800.132.680.254.150.650.500.08 --Ducto DuctoDucto Ducto -- ---PROY.VACÍO PROY.VACÍO HALL 1 1 9 9 D D B B C C 2 2 6 6 4 4 8 8 7 7 5 5 3 3 10 10 A A SALACOMEDOR CUARTODIVERSO DORMITORIO CUARTO SERVICIO COCINA LAVANDERÍA BAÑO BAÑOBAÑODORMITORIO PRINCIPAL DORMITORIO PRINCIPAL DORMITORIO PRINCIPAL SALASALA COCINACOCINA DORMITORIODORMITORIO COMEDORCOMEDOR DEPOSITO BAÑO BAÑO BAÑO DPTO. 300 DPTO. 302 BAÑO DEPOSITO LAVANDERIA CUARTODE SERVICIO CUARTODE SERVICIOBAÑOBAÑO LAVANDERIA 0.155.300.252.550.251.672.980.150.500.08 5.582.805.57 13.95 0.650.150.501.880.203.473.933.020.15 5.582.805.57 13.95 6.806.806.80 6.80 6.80 6.80 6.80 6.806.80 6.806.80 6.80 6.806.80 6.80 6.80 6.80 6.80 6.806.80 6.80 6.80 6.80 6.80 6.80 6.80 6.806.80 6.80 6.80 6.80 6.80 6.80 6.80 DPTO. 301 --Ducto DuctoDuctoDucto5.950.505.059.458.05 6.73 2.65 2.70 5.00 6.35 3.48 2.07 28.98 0.40 4.00 2.70 10.65 5.05 0.50 5.95 28.98 0.10 4.35 0.15 0.80 0.10 1.50 0.15 10.65 0.15 3.75 0.15 0.90 0.75 1.40 0.15 0.60 3.50 0.40 Escala Fecha PLANTAARQUITECTONICA SOTANO-1ERPISO 175 PLANOS ARQUITECTURA DIGITAL 25/06/2023 A-02 ESTUDIANTES MONICAAMELIA FUENTESROCHA PONCEAGUILAR FIORELLA NAVARROHUARCAYA LISBETH CENTENOORELLANO JHONATTAN DOCENTE VIVIENDA MULTIFAMILIARDE 5PISOS+SOTANO 1/75 PLANTASEGUNDOPISO ESCALA1/75 PLANTATERCERPISO ESCALA1/75
-- ---1 1 9 D D B B C C 2 2 6 6 4 4 8 8 7 7 5 5 3 3 10 10 A A PROY.VACÍO PROY.VACÍO HALL SALACOMEDOR CUARTODIVERSO DORMITORIO CUARTO SERVICIO COCINA LAVANDERÍA BAÑO BAÑOBAÑODORMITORIO PRINCIPAL DORMITORIO PRINCIPAL DORMITORIO PRINCIPAL SALASALA COCINACOCINA DORMITORIODORMITORIO COMEDORCOMEDOR DEPOSITO BAÑO BAÑO BAÑO DPTO. 301 DPTO. 302 BAÑO DEPOSITO LAVANDERIA CUARTODE SERVICIO CUARTODE SERVICIOBAÑOBAÑO LAVANDERIA 0.155.300.252.550.251.822.000.830.150.500.08 5.582.805.57 13.95 0.10 7.05 2.50 8.15 5.05 0.50 0.08 2.23
0.40 0.20 1.80 1.75 4.80 0.50 5.05 0.50 2.30 3.90 3.486.355.002.702.656.7328.98 0.65 0.150.50 1.880.203.300.170.253.300.382.001.020.15 5.582.805.57 13.95 9.45 9.459.459.45 9.45 9.45 9.459.45 9.45 9.45 9.45 9.459.459.45 9.45 9.45 9.45 9.459.45 9.459.45 9.45 9.45 9.45 9.459.45 9.45 9.45 9.45 9.459.45 9.45 9.45 --Ducto DuctoDucto Ducto -- ---1 1 9 9 D D B B C C 2 2 6 6 4 4 8 8 7 7 5 5 3 3 10 10 A A PROY.VACÍO PROY.VACÍO HALL SALACOMEDOR CUARTODIVERSO DORMITORIO CUARTO SERVICIO COCINA LAVANDERÍA BAÑO BAÑOBAÑODORMITORIO PRINCIPAL DORMITORIO PRINCIPAL DORMITORIO PRINCIPAL SALASALA COCINACOCINA DORMITORIODORMITORIO COMEDORCOMEDOR DEPOSITO BAÑO BAÑO BAÑO DPTO. 301 DPTO. 302 BAÑO DEPOSITO HALL LAVANDERIA CUARTODE SERVICIO CUARTODE SERVICIOBAÑOBAÑO LAVANDERIA 0.155.300.252.550.251.822.000.830.150.500.08 5.582.805.57 13.95 12.1012.1012.10 12.10 12.10 12.10 12.10 12.1012.10 12.1012.10 12.10 12.1012.10 12.10 12.10 12.10 12.10 12.1012.10 12.10 12.10 12.10 12.10 12.10 12.10 12.1012.10 12.10 12.10 12.10 12.10 12.10 12.10 --Ducto DuctoDucto Ducto 0.10 7.05 2.50 8.15 5.05 0.50 0.08 2.23 28.980.252.073.486.355.002.702.656.733.908.05 0.40 0.20 1.80 1.75 4.80 0.50 5.05 0.50 2.30 3.90 3.486.355.002.702.656.7328.98 0.65 0.150.50 1.880.203.300.170.253.300.382.001.020.15 5.582.805.57 13.95 Escala Fecha PLANTAARQUITECTONICA SOTANO-1ERPISO 175 PLANOS ARQUITECTURA DIGITAL 25/06/2023 A-03 ESTUDIANTES MONICAAMELIA FUENTESROCHA PONCEAGUILAR FIORELLA NAVARROHUARCAYA LISBETH CENTENOORELLANO JHONATTAN DOCENTE VIVIENDA MULTIFAMILIARDE 5PISOS+SOTANO 1/75 PLANTASEGUNDOPISO ESCALA1/75 PLANTATERCERPISO ESCALA1/75
28.980.252.073.486.355.002.702.656.733.908.05

CORTES ARQUITECTÓNICOS

-1.42Nivel_SS 1.28Nivel 3.93Nivel 6.58Nivel 9.23Nivel 11.88Nivel 14.53Nivel DABC -2.62NIVELDECIMIENTO DORMITORIO PRINCIPAL COMEDORSALADORMITORIO DORMITORIO PRINCIPAL COMEDORSALADORMITORIO DORMITORIO PRINCIPAL COMEDORSALADORMITORIO DORMITORIO PRINCIPAL COMEDORSALADORMITORIO DORMITORIO PRINCIPAL COMEDORSALADORMITORIO ESTACIONAMIENTOESTACIONAMIENTOESTACIONAMIENTO CIRCULACION 0.30 2.35 0.30 2.35 0.30 2.35 0.30 2.35 0.30 2.35 0.30 2.40 0.30 2.95 2.65 2.65 2.65 2.65 2.70 16.25 PISOCIMIETOS -1.42Nivel_SS 1.28Nivel 3.93Nivel 6.58Nivel 9.23Nivel 11.88Nivel 14.53Nivel 1 9 2 6 4 78 35 10 -2.62NIVELDECIMIENTO SALABAÑOBAÑODORMITORIOPRINCIPAL DEESTAR SALABAÑOBAÑODORMITORIOPRINCIPAL DEESTAR DORMITORIOBAÑOBAÑODORMITORIOPRINCIPAL DORMITORIOBAÑOBAÑODORMITORIOPRINCIPAL DORMITORIOBAÑOBAÑODORMITORIOPRINCIPAL NUCLEODE ESCALERAS CUARTODE SALASERVICIOTERRAZA-COMEDORBAÑO CUARTODE SALASERVICIO -COMEDORBAÑO CUARTODE SALASERVICIO -COMEDORBAÑO CUARTODE SALASERVICIO -COMEDORBAÑO CUARTODE SALABAÑOSERVICIO -COMEDOR BALCONMETALICOCON VIDRIOTEMPLADO BALCONMETALICOCON VIDRIOTEMPLADO BALCONMETALICOCON VIDRIOTEMPLADO BALCONMETALICOCON VIDRIOTEMPLADO BALCONMETALICOCON VIDRIOTEMPLADO BALCONMETALICOCON VIDRIOTEMPLADO BALCONMETALICOCON VIDRIOTEMPLADO BALCONMETALICOCON VIDRIOTEMPLADO BALCONMETALICOCON VIDRIOTEMPLADO VENTANACORREDIZA DOBLEHOJAMARCODE ALUMINIO VENTANACORREDIZA DOBLEHOJAMARCODE ALUMINIO VENTANACORREDIZA DOBLEHOJAMARCODE ALUMINIO VENTANACORREDIZA DOBLEHOJAMARCODE ALUMINIO VENTANACORREDIZA DOBLEHOJAMARCODE ALUMINIO ESTACIONAMIENTO ESTACIONAMIENTOESTACIONAMIENTO RAMPAVEHICULAR12% PISOYCIMIETOS 0.30 2.35 0.30 2.35 0.30 2.35 0.30 2.35 0.30 2.35 2.70 0.30 2.65 2.65 2.65 2.65 2.65 2.70 15.95 BARANDILLADEACERO INOXIDABLE BARANDILLADEACERO INOXIDABLE BARANDILLADEACERO INOXIDABLE Escala Fecha 175 CORTES ARQUITECTURA DIGITAL 25/06/2023 A-04 ESTUDIANTES MONICAAMELIA FUENTESROCHA PONCEAGUILAR FIORELLA NAVARROHUARCAYA LISBETH CENTENOORELLANO JHONATTAN DOCENTE VIVIENDA MULTIFAMILIARDE 5PISOS+SOTANO 1/75 CORTETRANSVERSALA-A ESCALA1/75 CORTELONGITUDINALB-B ESCALA1/75

ELEVACIONES ARQUITECTÓNICAS

Nivel-1.42 _SS Nivel1.28 Nivel3.93 Nivel6.58 Nivel9.23 Nivel11.88 Nivel14.53 DCBA NIVEL-2.62 DECIMIENTO -1.42Nivel_SS 1.28Nivel 3.93Nivel 6.58Nivel 9.23Nivel 11.88Nivel 14.53Nivel DABC -2.62NIVELDECIMIENTO -1.42Nivel_SS 1.28Nivel1 3.93Nivel2 6.58Nivel3 9.23Nivel4 11.88Nivel5 14.53Nivel6 1 9 2 6 4 78 35 10 -2.62NIVELDECIMIENTO Nivel-1.42 _SS Nivel1.28 Nivel3.93 Nivel6.58 Nivel9.23 Nivel11.88 Nivel14.53 1 9 2 6 4 87 53 10 NIVEL-2.62 DECIMIENTO N.P.T.+20.00 Escala Fecha 175 ELEVACIONES ARQUITECTURA DIGITAL 25/06/2023 A-05 ESTUDIANTES MONICAAMELIA FUENTESROCHA PONCEAGUILAR FIORELLA NAVARROHUARCAYA LISBETH CENTENOORELLANO JHONATTAN DOCENTE VIVIENDA MULTIFAMILIARDE 5PISOS+SOTANO 1/75 ELEVACIONFRONTAL ESCALA1/75 ELEVACIONPOSTERIOR ESCALA1/75 ELEVACIONPOSTERIOR ESCALA1/75 ELEVACIONPOSTERIOR ESCALA1/75

PLANOS DE DETALLE

Nivel1.50 1.50Nivel1 Nivel4.15 4.15Nivel2 9 8 7 0.30 0.35 1.27 0.56 0.17 0.30 0.30 2.35 0.30 2.95 COMEDOR CIRCULAR TEAKTOP SILLADE COMEDOR CENSOCHAIR SILLONDENMAK CUADRODECORATICO120X 1.00 SOFASPORMING MESADECENTRO CIRCULARTOP LAMPARAFUTUREBLANCO PUERTACORREDIZADEVIDRIOTEMPLADO MARCODEMETALACEROINOX. BARANDILLADEVIDRIOTEMPLADO ESPEJOS DECORATIVOS REDONDOS SILLONDENMAK SOFASPORMING MESADECENTRO CIRCULARTOP LAMPARAFUTUREBLANCO PUERTACORREDIZADE VIDRIOTEMPLADOMARCODE METALACEROINOX. BARANDILLADEVIDRIO TEMPLADO COMEDOR CIRCULAR TEAKTOP SILLADE COMEDOR CENSOCHAIR ESPEJOS DECORATIVOS REDONDOS Nivel1.50 1.50Nivel 4.15Nivel C C D. D. SILLONDENMAK TELEVISIONPLASMA60" SOFASPORMING SOFAFORNITURE MESALATERALFOOKOFFICE PUERTACORREDIZADEVIDRIO TEMPLADOMARCODEMETALACERO INOX. LAMPARAFUTUREBLANCO 9 9 C C 8 8 7 7 D. D. COMEDOR SALADESTAR 1.50 1.50 PORCELANATOGRIS60X60 INICODEENCHAPE COMEDOR CIRCULAR TEAKTOP SILLADE COMEDOR CENSOCHAIR SILLONDENMAK TELEVISIONPLASMA60" SOFASPORMING MESADECENTRO CIRCULARTOP SOFAFORNITURE PORCELANATOGRIS60X60 LAMPARAFUTUREBLANCO MESALATERALFOOKOFFICE 2.25 3.80 0.60 0.60 7.22 PUERTACORREDIZADEVIDRIOTEMPLADOMARCO DEMETALACEROINOX. 1 1 2 2 BARANDILLADEVIDRIOTEMPLADO 0.250.351.421.280.420.21 0.253.300.180.20 3.93 0.251.971.500.20 3.92 0.100.15 0.17 1.993.000.800.250.161.993.000.80 Escala Fecha ESTUDIANTES MONICAAMELIA FUENTESROCHA PONCEAGUILAR FIORELLA NAVARROHUARCAYA LISBETH CENTENOORELLANO JHONATTAN DOCENTE VIVIENDA
5PISOS+SOTANO 125 PLANODE DETALLE ARQUITECTURA DIGITAL 25/06/23 D-01 PRIMERNIVEL PLANODEDETALLERSALA-COMEDORDPT.101 ESCALA1/25 PRIMERNIVEL ISOMETRIASALA-COMEDORDPT.101 ESCALA1/25 PRIMERNIVEL CORTEB-B ESCALA1/25 PRIMERNIVEL CORTEA-A ESCALA1/25
MULTIFAMILIARDE

2.950.300.900.500.600.350.30COCINA0.302.100.250.302.951.50

? B B 6 6 3 3 2 2 0.800.15 0.151.530.42 0.200.610.801.250.151.60 2.10 4.554.60 0.152.851.40COCINA 0.15 0.151.00 2.10 N.T.P.1.50 P1 Tableroen MDFRH ReposterossuperioresenMDF 0.802.10 P2 0.802.10 V1 1.401.20 1.10 PisodeCerámico de30cmx30cm Nivel1.5011.50Nivel Nivel4.1524.15Nivel
Nivel11.50Nivel Nivel4.1524.15Nivel COCINA 0.30 0.35 0.60 0.50 0.90 0.30 2.95 0.30 0.25 2.10 0.30 2.95 Escala Fecha ESTUDIANTES MONICAAMELIA FUENTESROCHA PONCEAGUILAR FIORELLA NAVARROHUARCAYA LISBETH CENTENOORELLANO JHONATTAN DOCENTE VIVIENDA MULTIFAMILIARDE 5PISOS+SOTANO 125 PLANODE DETALLE VIVIENDA MULTIFAMILIAR 25/06/2023 D-02. CORTEA-A CORTEB-B ISÓMETRIA PLANTA PrimerNivel-DPTO.101 RefrigeradorFroonFree Electrolux454Lt. CampanaExtractora TUR85CO SoleRecirculacióny ductoenacero inoxidabke PuertademaderaPino barnizado conpaneldevidrio. GriferíaVentanadeAluminiodoblehoja. urbande cocina bronce colornegro Muebledecocinaalto deMDFcolorblanco CampanaExtractora TUR85CO SoleRecirculación ductoenacero inoxidabke VentanadeAluminio doblehoja. RefrigeradorFroonFree Electrolux454Lt. Grifería urbande cocina bronce colornegro Muebles bajosen MDFRH termofundido Cocinade hornillas gasSilver look SAMSUNG Mueblesaltos enMDFRH termofundido Muebles bajosen MDFRH termofundido Mueblesaltos enMDFRH termofundido Muebles bajosen MDFRH termofundido PuertademaderaPino barnizado conpaneldevidrio. Grifería urbande cocina bronce colornegro CampanaExtractora TUR85CO SoleRecirculación ductoenacero inoxidabke
A A BAÑO Cerámico 0.40 x0.60m N.P.T 1.50 Inicio de piso Muro pintado tarrajeado Lavadero 0.150.500.100.900.15 0.150.500.100.90 0.15 1.80 3 0.15 0.80 0.710.15 1.80 0.100.360.670.400.10 0.101.430.100.80 0.250.50 0.250.50 2.38 0.150.600.100.370.650.400.10 0.152.120.10 2.38 Mampara de vidrio 0.03 mm Inodoro Ducha P a o ducha u trafla acri 0 90x0 70 m One Piece Vainsa B anco Bow Bari Vainsa Blanco Espejo 0 90x0 70m Mampara vidrio 1.80x2.00m Cabeza de ducha fija Cotto Puerta madera cedro 0 80x2 00m Llave de ducha empotrab e 1.50 Nivel 1.50 Nivel 4.15 Nivel 4.15 Nivel A A 0.302.100.250.30 0.302.350.30 2.95 Espejo 0 90x0.70m Bowl Bari Vainsa Blanco Cabezal de ducha fija Cotto Llave de ducha empotrable Mampara vidrio 1.80x2.00m Plato ducha ultrafla acri 0.90x0.70 m One Piece Vainsa Blanco 1.50 Nivel 1.50 Nivel 4.15 Nivel 4.15 Nivel 0.30 2.35 0.30 2.95 0.301.000.900.450.30 Cabezal de ducha fija Cotto Mampara vidrio 1.80x2.00m One Piece Vainsa Blanco Espejo 0 90x0.70m PRIMER NIVEL Detalle de baño -Departamento 101 1:25 PRIMER NIVEL Isometría de baño -Departamento 101 1:25 PRIMER NIVEL Corte 4 -4 1:25 PRIMER NIVEL Corte 3 -3 1:25 Escala Fecha 1 25
DE DETALLE
DIGITAL 25/06/2023 D
MONICA AMELIA FUENTES ROCHA
AGUILAR FIORELLA
HUARCAYA LISBETH CENTENO ORELLANO JHONATTAN DOCENTE VIVIENDA MULTIFAMILIAR DE 5 PISOS + SOTANO
PLANO
ARQUITECTURA
-03 ESTUDIANTES
PONCE
NAVARRO

SECTORES

ARQUITECTURA DIGITAL

DOCENTE

MONICAAMELIA FUENTESROCHA

ESTUDIANTES

PONCEAGUILAR FIORELLA

NAVARROHUARCAYA LISBETH

CENTENOORELLANO JHONATTAN

VIVIENDA

MULTIFAMILIARDE 5PISOS+SOTANO

SECTORES PORZONA

A-06

SECTORA SECTORB Escala Fecha
25/06/2023
SECTORESPORZONA 1:50 1:50
1.70 .25.25 .401.20.40 .25.201.60 .60 .25.25.50 .20 1.701.40 .25 .60.60 .25.25.25 .25.20 .60 1.60 .20 .85 .20 .25 .60.60 .20.25.25 .25.20 .25 .25 .20 1.60 .202.40 2.902.902.252.25 2.252.25 PLACA(SoloSemisotano) SeP-1ReduceC-1 PLACA(SoloSemisotano)SeP-1ReduceC-1(SoloSemisotano) PLACAP-2SeReduceP-2'(SoloSemisotano) PLACAP-3SeReduceP-3'(SoloSemisotano) PLACAP-6 6∅5/8"SeReduceC-6 Rsto@.15c/extr. 8∅5/8"3/8",1@.05,9@.10, 3/8"@.25 3/8"@.2514∅5/8"3/8"@.2514∅5/8"3/8"@.253/8"@.2514∅5/8"3/8"@.2514∅5/8"3/8"@.25 8∅5/8"23/8"@.2520∅5/8"3/8"@.2520∅5/8"3/8"@.258∅5/8"3/8"@.258∅5/8"3/8"@.253/8"@.2514∅5/8"3/8"@.2514∅5/8"3/8"@.2510∅5/8"3/8"@.25 8∅5/8"10∅5/8" 20∅5/8"3/8"@.2510∅5/8"10∅5/8"3/8"@.258∅5/8"3/8"@.25 3/8"@.25 3/8"@.258∅5/8"3/8"@.258∅5/8"3/8"@.25 8∅5/8" 3/8"@.253/8"@.253/8"@.253/8"@.253/8"@.253/8"@.253/8"@.253/8"@.254∅5/8"3/8"@.25 4∅5/8"3/8"@.253/8"@.253/8"@.25 20∅5/8"3/8"@.25 3/8"@.25 6∅5/8"Rsto@.15c/extr. 6∅5/8"3/8",1@.05,9@.10, Rsto@.15c/extr. 3/8",1@.05,9@.10,6∅5/8"Rsto@.15c/extr.∅3/8"@.253/8",1@.05,9@.10,∅1/4''3/8"@.25 3/8"@.253/8"@.25 3/8"@.25 3/8"@.25∅3/8"@.25∅1/4'' C-1C-1C-1P-1P-1 P-1 P-1P-1P-1C-6P-2P-3P-4C-1C-1C-1C-1P-1P-1C-3 C-3' C-1'C-2P-6C-1C-3'C-3P-2a C-1'P-7C-1C-1 C-1C-1 C-1'C-1' C-1'C-1'C-b C-a P-7'C-bP-4P-7 AB12345678910 C DAB C Junta3.0cms.Sismica5.0cms.JuntaSismica5.0cms. 5.0JuntaSismica cms. Escala Fecha SECTORES POR NIVELES ARQUITECTURA DIGITAL 25/06/2023 A-07 ESTUDIANTES MONICAAMELIA FUENTESROCHA PONCEAGUILAR FIORELLA NAVARROHUARCAYA LISBETH CENTENOORELLANO JHONATTAN DOCENTE VIVIENDA MULTIFAMILIARDE 5PISOS+SOTANO 1:50 SECTORESPORNIVELES 1:50

CENTENOORELLANO JHONATTAN

DOCENTE VIVIENDA MULTIFAMILIARDE 5PISOS+SOTANO

Escala Fecha
DETALLE ARQUITECTURA DIGITAL 25/06/2023 A-08
PLANODE
ESTUDIANTES MONICAAMELIA FUENTESROCHA PONCEAGUILAR FIORELLA NAVARROHUARCAYA LISBETH
TIPOSDECONCRETO 1:50 210KG/CM2 55KG/CM2 245KG/CM2 1:50

METRADOS

METRADO DE COLUMNAS

Nivel base Familia y tipo Volumen Nivel 0 _SS Pilar rectangular hormigón: 0.20 x0.20 0.17 m³ Nivel 0 _SS Pilar rectangular hormigón: 0.20 x0.20 0.17 m³ Nivel 0 _SS Pilar rectangular hormigón: 0.20 x 0.60 0.40 m³ Nivel 0 _SS Pilar rectangular hormigón: 0.20 x 0.60 0.40 m³ Nivel 0 _SS Pilar rectangular hormigón: 0.20 x 0.60 0.40 m³ Nivel 0 _SS Pilar rectangular hormigón: 0.20 x 0.60 0.40 m³ Nivel 0 _SS Pilar rectangular hormigón: 0.20 x 0.60 0.40 m³ Nivel 0 _SS Pilar rectangular hormigón: 0.20 x 0.85 0.56 m³ Nivel 0 _SS Pilar rectangular hormigón: 0.20 x 0.85 0.56 m³ Nivel 0 _SS Pilar rectangular hormigón: 0.20 x 0.85 0.56 m³ Nivel 0 _SS Pilar rectangular hormigón: 0.20 x 0.4520 0.28 m³ Nivel 0 _SS Pilar rectangular hormigón: 0.20 x 1.425 0.94 m³ Nivel 0 _SS Pilar rectangular hormigón: 0.20 x 1.425 0.94 m³ Nivel 0 _SS Pilar rectangular hormigón: 0.25 x0.60 cm 0.50 m³ Nivel 0 _SS Pilar rectangular hormigón: 0.25 x0.60 cm 0.50 m³ Nivel 0 _SS Pilar rectangular hormigón: 0.25 x0.60 cm 0.50 m³ Nivel 0 _SS Pilar rectangular hormigón: 0.25 x0.60 cm 0.50 m³ Nivel 0 _SS Pilar rectangular hormigón: 0.25 x0.60 cm 0.50 m³ Nivel 0 _SS Pilar rectangular hormigón: 0.25 x0.60 cm 0.50 m³ Nivel 0 _SS Pilar rectangular hormigón: 0.25 x0.60 cm 0.50 m³ Nivel 0 _SS Pilar rectangular hormigón: 0.25 x0.60 cm 0.50 m³ Nivel 0 _SS Pilar rectangular hormigón: 0.25 x0.60 cm 0.50 m³ Nivel 0 _SS Pilar rectangular hormigón: 0.25 x0.60 cm 0.50 m³ Nivel 0 _SS Pilar rectangular hormigón: 0.25 x0.60 cm 0.50 m³ Nivel 0 _SS Pilar rectangular hormigón: 0.25 x0.60 cm 0.50 m³ Nivel 0 _SS Pilar rectangular hormigón: 0.25 x0.60 cm 0.50 m³ Nivel 0 _SS Pilar rectangular hormigón: 0.25 x0.60 cm 0.50 m³ Nivel 0 _SS Pilar rectangular hormigón: 0.25 x0.60 cm 0.50 m³ Nivel 0 _SS Pilar rectangular hormigón: 0.25 x0.80 cm 0.66 m³ Nivel 0 _SS Pilar rectangular hormigón: 0.25 x0.80 cm 0.66 m³ Nivel 0 _SS Pilar rectangular hormigón: 1.2 x 0.25 0.99 m³ Nivel 0 _SS Pilar rectangular hormigón: 1.2 x 0.25 0.99 m³ Nivel 0 _SS Pilar rectangular hormigón: 1.2 x 0.25 0.99 m³ Nivel 0 _SS Pilar rectangular hormigón: 1.2 x 0.25 0.99 m³
Nivel 0 _SS Pilar rectangular hormigón: 1.2 x 0.25 0.99 m³ Nivel 0 _SS Pilar rectangular hormigón: 1.2 x 0.25 0.99 m³ Nivel 0 _SS Pilar rectangular hormigón: 1.2 x 0.25 0.99 m³ Nivel 0 _SS Pilar rectangular hormigón: 1.8*0.2 1.32 m³ Nivel 0 _SS Pilar rectangular hormigón: 1.8*0.2 1.32 m³ Nivel 0 _SS Pilar rectangular hormigón: 1.60 x 20 1.06 m³ Nivel 0 _SS Pilar rectangular hormigón: 2.1 x0.2 1.39 m³ Nivel 0 _SS Pilar rectangular hormigón: 20*80cn 0.53 m³ Nivel 0 _SS Pilar rectangular hormigón: 20*80cn 0.52 m³ 27.96 m³ Nivel 1 Pilar rectangular hormigón: 0.20 x0.20 0.13 m³ Nivel 1 Pilar rectangular hormigón: 0.20 x0.20 0.13 m³ Nivel 1 Pilar rectangular hormigón: 0.20 x0.20 0.13 m³ Nivel 1 Pilar rectangular hormigón: 0.20 x0.20 0.13 m³ Nivel 1 Pilar rectangular hormigón: 0.20 x 0.60 0.32 m³ Nivel 1 Pilar rectangular hormigón: 0.20 x 0.60 0.32 m³ Nivel 1 Pilar rectangular hormigón: 0.20 x 0.85 0.45 m³ Nivel 1 Pilar rectangular hormigón: 0.20 x 0.85 0.45 m³ Nivel 1 Pilar rectangular hormigón: 0.20 x 0.85 0.45 m³ Nivel 1 Pilar rectangular hormigón: 0.20 x 0.4520 0.23 m³ Nivel 1 Pilar rectangular hormigón: 0.20 x 1.425 0.76 m³ Nivel 1 Pilar rectangular hormigón: 0.20 x 1.425 0.76 m³ Nivel 1 Pilar rectangular hormigón: 0.25 x0.60 cm 0.40 m³ Nivel 1 Pilar rectangular hormigón: 0.25 x0.60 cm 0.40 m³ Nivel 1 Pilar rectangular hormigón: 0.25 x0.60 cm 0.40 m³ Nivel 1 Pilar rectangular hormigón: 0.25 x0.60 cm 0.40 m³ Nivel 1 Pilar rectangular hormigón: 0.25 x0.60 cm 0.40 m³ Nivel 1 Pilar rectangular hormigón: 0.25 x0.60 cm 0.40 m³ Nivel 1 Pilar rectangular hormigón: 0.25 x0.60 cm 0.40 m³ Nivel 1 Pilar rectangular hormigón: 0.25 x0.60 cm 0.40 m³ Nivel 1 Pilar rectangular hormigón: 0.25 x0.60 cm 0.40 m³ Nivel 1 Pilar rectangular hormigón: 0.25 x0.60 cm 0.40 m³ Nivel 1 Pilar rectangular hormigón: 0.25 x0.60 cm 0.40 m³ Nivel 1 Pilar rectangular hormigón: 0.25 x0.60 cm 0.40 m³ Nivel 1 Pilar rectangular hormigón: 0.25 x0.60 cm 0.40 m³ Nivel 1 Pilar rectangular hormigón: 0.25 x0.60 cm 0.40 m³ Nivel 1 Pilar rectangular hormigón: 0.25 x0.60 cm 0.40 m³ TOTAL NIVEL SEMISOTANO
Nivel 1 Pilar rectangular hormigón: 0.25 x0.60 cm 0.40 m³ Nivel 1 Pilar rectangular hormigón: 0.25 x0.60 cm 0.40 m³ Nivel 1 Pilar rectangular hormigón: 0.25 x0.60 cm 0.40 m³ Nivel 1 Pilar rectangular hormigón: 0.25 x0.60 cm 0.40 m³ Nivel 1 Pilar rectangular hormigón: 0.25 x0.80 cm 0.53 m³ Nivel 1 Pilar rectangular hormigón: 0.25 x0.80 cm 0.53 m³ Nivel 1 Pilar rectangular hormigón: 1.2 x 0.25 0.80 m³ Nivel 1 Pilar rectangular hormigón: 1.2 x 0.25 0.80 m³ Nivel 1 Pilar rectangular hormigón: 1.2 x 0.25 0.80 m³ Nivel 1 Pilar rectangular hormigón: 1.2 x 0.25 0.80 m³ Nivel 1 Pilar rectangular hormigón: 1.8*0.2 1.06 m³ Nivel 1 Pilar rectangular hormigón: 1.8*0.2 1.06 m³ Nivel 1 Pilar rectangular hormigón: 1.60 x 20 0.85 m³ Nivel 1 Pilar rectangular hormigón: 2.1 x0.2 1.11 m³ Nivel 1 Pilar rectangular hormigón: 20*80cn 0.42 m³ Nivel 1 Pilar rectangular hormigón: 20*80cn 0.42 m³ 20.97 m³ Nivel 2 Pilar rectangular hormigón: 0.20 x0.20 0.13 m³ Nivel 2 Pilar rectangular hormigón: 0.20 x0.20 0.13 m³ Nivel 2 Pilar rectangular hormigón: 0.20 x 0.60 0.32 m³ Nivel 2 Pilar rectangular hormigón: 0.20 x 0.60 0.32 m³ Nivel 2 Pilar rectangular hormigón: 0.20 x 0.4520 0.23 m³ Nivel 2 Pilar rectangular hormigón: 0.20 x 1.425 0.76 m³ Nivel 2 Pilar rectangular hormigón: 0.20 x 1.425 0.76 m³ Nivel 2 Pilar rectangular hormigón: 0.25 x0.60 cm 0.40 m³ Nivel 2 Pilar rectangular hormigón: 0.25 x0.60 cm 0.40 m³ Nivel 2 Pilar rectangular hormigón: 0.25 x0.60 cm 0.40 m³ Nivel 2 Pilar rectangular hormigón: 0.25 x0.60 cm 0.40 m³ Nivel 2 Pilar rectangular hormigón: 0.25 x0.60 cm 0.40 m³ Nivel 2 Pilar rectangular hormigón: 0.25 x0.60 cm 0.40 m³ Nivel 2 Pilar rectangular hormigón: 0.25 x0.60 cm 0.40 m³ Nivel 2 Pilar rectangular hormigón: 0.25 x0.60 cm 0.40 m³ Nivel 2 Pilar rectangular hormigón: 0.25 x0.60 cm 0.40 m³ Nivel 2 Pilar rectangular hormigón: 0.25 x0.60 cm 0.40 m³ Nivel 2 Pilar rectangular hormigón: 0.25 x0.60 cm 0.40 m³ Nivel 2 Pilar rectangular hormigón: 0.25 x0.60 cm 0.40 m³ Nivel 2 Pilar rectangular hormigón: 0.25 x0.60 cm 0.40 m³
NIVEL 1
TOTAL
Nivel 2 Pilar rectangular hormigón: 0.25 x0.80 cm 0.53 m³ Nivel 2 Pilar rectangular hormigón: 0.25 x0.80 cm 0.53 m³ Nivel 2 Pilar rectangular hormigón: 1.2 x 0.25 0.80 m³ Nivel 2 Pilar rectangular hormigón: 1.2 x 0.25 0.80 m³ Nivel 2 Pilar rectangular hormigón: 1.8*0.2 1.06 m³ Nivel 2 Pilar rectangular hormigón: 1.8*0.2 1.06 m³ Nivel 2 Pilar rectangular hormigón: 1.60 x 20 0.85 m³ Nivel 2 Pilar rectangular hormigón: 2.1 x0.2 1.11 m³ Nivel 2 Pilar rectangular hormigón: 20*80cn 0.42 m³ Nivel 2 Pilar rectangular hormigón: 20*80cn 0.42 m³ 15.38 m³ Nivel 3 Pilar rectangular hormigón: 0.20 x0.20 0.13 m³ Nivel 3 Pilar rectangular hormigón: 0.20 x0.20 0.13 m³ Nivel 3 Pilar rectangular hormigón: 0.20 x 0.60 0.32 m³ Nivel 3 Pilar rectangular hormigón: 0.20 x 0.60 0.32 m³ Nivel 3 Pilar rectangular hormigón: 0.20 x 0.85 0.45 m³ Nivel 3 Pilar rectangular hormigón: 0.20 x 0.85 0.45 m³ Nivel 3 Pilar rectangular hormigón: 0.20 x 0.85 0.45 m³ Nivel 3 Pilar rectangular hormigón: 0.20 x 0.4520 0.23 m³ Nivel 3 Pilar rectangular hormigón: 0.20 x 1.425 0.76 m³ Nivel 3 Pilar rectangular hormigón: 0.20 x 1.425 0.76 m³ Nivel 3 Pilar rectangular hormigón: 0.25 x0.60 cm 0.40 m³ Nivel 3 Pilar rectangular hormigón: 0.25 x0.60 cm 0.40 m³ Nivel 3 Pilar rectangular hormigón: 0.25 x0.60 cm 0.40 m³ Nivel 3 Pilar rectangular hormigón: 0.25 x0.60 cm 0.40 m³ Nivel 3 Pilar rectangular hormigón: 0.25 x0.60 cm 0.40 m³ Nivel 3 Pilar rectangular hormigón: 0.25 x0.60 cm 0.40 m³ Nivel 3 Pilar rectangular hormigón: 0.25 x0.60 cm 0.40 m³ Nivel 3 Pilar rectangular hormigón: 0.25 x0.60 cm 0.40 m³ Nivel 3 Pilar rectangular hormigón: 0.25 x0.60 cm 0.40 m³ Nivel 3 Pilar rectangular hormigón: 0.25 x0.60 cm 0.40 m³ Nivel 3 Pilar rectangular hormigón: 0.25 x0.60 cm 0.40 m³ Nivel 3 Pilar rectangular hormigón: 0.25 x0.60 cm 0.40 m³ Nivel 3 Pilar rectangular hormigón: 0.25 x0.80 cm 0.53 m³ Nivel 3 Pilar rectangular hormigón: 0.25 x0.80 cm 0.53 m³ Nivel 3 Pilar rectangular hormigón: 1.2 x 0.25 0.80 m³ Nivel 3 Pilar rectangular hormigón: 1.2 x 0.25 0.80 m³
NIVEL
TOTAL
2
Nivel 3 Pilar rectangular hormigón: 1.8*0.2 1.06 m³ Nivel 3 Pilar rectangular hormigón: 1.8*0.2 1.06 m³ Nivel 3 Pilar rectangular hormigón: 1.60 x 20 0.85 m³ Nivel 3 Pilar rectangular hormigón: 2.1 x0.2 1.11 m³ Nivel 3 Pilar rectangular hormigón: 20*80cn 0.42 m³ Nivel 3 Pilar rectangular hormigón: 20*80cn 0.42 m³ 16.34 m³ Nivel 4 Pilar rectangular hormigón: 0.20 x0.20 0.13 m³ Nivel 4 Pilar rectangular hormigón: 0.20 x0.20 0.13 m³ Nivel 4 Pilar rectangular hormigón: 0.20 x 0.60 0.32 m³ Nivel 4 Pilar rectangular hormigón: 0.20 x 0.60 0.32 m³ Nivel 4 Pilar rectangular hormigón: 0.20 x 0.85 0.45 m³ Nivel 4 Pilar rectangular hormigón: 0.20 x 0.85 0.45 m³ Nivel 4 Pilar rectangular hormigón: 0.20 x 0.85 0.45 m³ Nivel 4 Pilar rectangular hormigón: 0.20 x 0.4520 0.23 m³ Nivel 4 Pilar rectangular hormigón: 0.20 x 1.425 0.76 m³ Nivel 4 Pilar rectangular hormigón: 0.20 x 1.425 0.76 m³ Nivel 4 Pilar rectangular hormigón: 0.25 x0.60 cm 0.40 m³ Nivel 4 Pilar rectangular hormigón: 0.25 x0.60 cm 0.40 m³ Nivel 4 Pilar rectangular hormigón: 0.25 x0.60 cm 0.40 m³ Nivel 4 Pilar rectangular hormigón: 0.25 x0.60 cm 0.40 m³ Nivel 4 Pilar rectangular hormigón: 0.25 x0.60 cm 0.40 m³ Nivel 4 Pilar rectangular hormigón: 0.25 x0.60 cm 0.40 m³ Nivel 4 Pilar rectangular hormigón: 0.25 x0.60 cm 0.40 m³ Nivel 4 Pilar rectangular hormigón: 0.25 x0.60 cm 0.40 m³ Nivel 4 Pilar rectangular hormigón: 0.25 x0.60 cm 0.40 m³ Nivel 4 Pilar rectangular hormigón: 0.25 x0.60 cm 0.40 m³ Nivel 4 Pilar rectangular hormigón: 0.25 x0.60 cm 0.40 m³ Nivel 4 Pilar rectangular hormigón: 0.25 x0.60 cm 0.40 m³ Nivel 4 Pilar rectangular hormigón: 0.25 x0.80 cm 0.53 m³ Nivel 4 Pilar rectangular hormigón: 0.25 x0.80 cm 0.53 m³ Nivel 4 Pilar rectangular hormigón: 1.2 x 0.25 0.80 m³ Nivel 4 Pilar rectangular hormigón: 1.2 x 0.25 0.80 m³ Nivel 4 Pilar rectangular hormigón: 2.1 x0.2 1.11 m³ Nivel 4 Pilar rectangular hormigón: 20*80cn 0.42 m³ Nivel 4 Pilar rectangular hormigón: 20*80cn 0.42 m³ 13.37 m³ TOTAL NIVEL 4
NIVEL 3
TOTAL
Nivel 5 Pilar rectangular hormigón: 0.20 x0.20 0.13 m³ Nivel 5 Pilar rectangular hormigón: 0.20 x0.20 0.13 m³ Nivel 5 Pilar rectangular hormigón: 0.20 x 0.60 0.32 m³ Nivel 5 Pilar rectangular hormigón: 0.20 x 0.60 0.32 m³ Nivel 5 Pilar rectangular hormigón: 0.20 x 0.85 0.45 m³ Nivel 5 Pilar rectangular hormigón: 0.20 x 0.85 0.45 m³ Nivel 5 Pilar rectangular hormigón: 0.20 x 0.85 0.45 m³ Nivel 5 Pilar rectangular hormigón: 0.20 x 0.4520 0.23 m³ Nivel 5 Pilar rectangular hormigón: 0.20 x 1.425 0.76 m³ Nivel 5 Pilar rectangular hormigón: 0.20 x 1.425 0.76 m³ Nivel 5 Pilar rectangular hormigón: 0.25 x0.60 cm 0.40 m³ Nivel 5 Pilar rectangular hormigón: 0.25 x0.60 cm 0.40 m³ Nivel 5 Pilar rectangular hormigón: 0.25 x0.60 cm 0.40 m³ Nivel 5 Pilar rectangular hormigón: 0.25 x0.60 cm 0.40 m³ Nivel 5 Pilar rectangular hormigón: 0.25 x0.60 cm 0.40 m³ Nivel 5 Pilar rectangular hormigón: 0.25 x0.60 cm 0.40 m³ Nivel 5 Pilar rectangular hormigón: 0.25 x0.60 cm 0.40 m³ Nivel 5 Pilar rectangular hormigón: 0.25 x0.60 cm 0.40 m³ Nivel 5 Pilar rectangular hormigón: 0.25 x0.60 cm 0.40 m³ Nivel 5 Pilar rectangular hormigón: 0.25 x0.60 cm 0.40 m³ Nivel 5 Pilar rectangular hormigón: 0.25 x0.60 cm 0.40 m³ Nivel 5 Pilar rectangular hormigón: 0.25 x0.60 cm 0.40 m³ Nivel 5 Pilar rectangular hormigón: 0.25 x0.80 cm 0.53 m³ Nivel 5 Pilar rectangular hormigón: 0.25 x0.80 cm 0.53 m³ Nivel 5 Pilar rectangular hormigón: 1.2 x 0.25 0.80 m³ Nivel 5 Pilar rectangular hormigón: 1.2 x 0.25 0.80 m³ Nivel 5 Pilar rectangular hormigón: 1.8*0.2 1.06 m³ Nivel 5 Pilar rectangular hormigón: 1.8*0.2 1.06 m³ Nivel 5 Pilar rectangular hormigón: 1.60 x 20 0.85 m³ Nivel 5 Pilar rectangular hormigón: 2.1 x0.2 1.11 m³ Nivel 5 Pilar rectangular hormigón: 20*80cn 0.42 m³ Nivel 5 Pilar rectangular hormigón: 20*80cn 0.42 m³ 16.34 m³ 110.36 m³ TOTAL TOTAL NIVEL 5

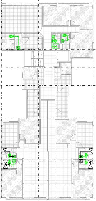
INSTALACIONES ELÉCTRICAS INSTALACIONES SANITARIAS

SIMBOLOGIA ELECTRICA

ESCALA 1/75

SIMBOLOGIA ELECTRICA

INSTALACIONES ELECTRICAS PLANTA TIPÍCA

ESCALA 1/75

INSTALACIONES ELECTRICAS VISTA ISOMÉTRICA

ESCALA 1/75

DOCENTE

MONICA AMELIA FUENTES ROCHA

ESTUDIANTES

PONCE AGUILAR FIORELLA

NAVARRO HUARCAYA LISBETH

CENTENO ORELLANO JHONATT AN

ARQUITECTURA DIGITAL VIVIENDA

MULTIFAMILIAR DE 5 PISOS + SOTANO

PLANTAS TIPICAS DE I.E

PLANTA INSTALACIONES ELECTRICAS

Fecha 15/07/2023

IE-01

Escala

: 75
1

ARQUITECTURA DIGITAL

DOCENTE

MONICA AMELIA FUENTES ROCHA

SIMBOLOGIA SANITARIA

ESCALA 1/75

ESTUDIANTES

PONCE AGUILAR FIORELLA NAVARRO HUARCAYA LISBETH

CENTENO ORELLANO JHONATT AN

INSTALACIONES SANITARIAS PLANTA TIPÍCA

ESCALA 1/75

INSTALACIONES SANITARIA VISTA ISOMÉTRICA

ESCALA 1/75

VIVIENDA

PLANTAS TIPICAS DE I.S

PLANTA INSTALACIONES ELECTRICAS

Fecha 1507/2023

MULTIFAMILIAR DE 5 PISOS + SOTANO IS-01

Escala
1 : 75

REPORTE DE INFERENCIAS

IMAGEN CONSULTA

ALINEACIÓN DE COLUMNAS CON LOS EJES PREDOMINANTES

TUBOS DE PVC ELÉCTRICOS

TUBOS DE PVC ELÉCTRICOS CRUZAN POR COLUMNAS ESTRUCTURALES INFERENCIA ENTRE ELEMENTOS GRAVE ING. ELECTRICO NEW

4ALTASESIÓN

TUBOS DE PVC ELÉCTRICOS CRUZAN POR VIGAS ESTRUCTURALES INFERENCIA ENTRE ELEMENTOS GRAVE ING. ELECTRICO NEW 5ALTASESIÓN

,4,5 EJE 3-3

VERIFICAR TIPO DE MURO, NO ESPECIFICA DETALLE EN PLANOS FALTA DE INFORMACIÓN GRAVE ARQUITECTO

6ALTASESIÓN ICE 1 12/07/2023ARQ. SEMISOTANO C-5

VERIFICAR LONGITUD DE MURO CONSULTA MODERADOARQUITECTO NEW

7ALTASESIÓN ICE 1 12/07/2023ARQ. SEMISOTANO A -10

NO SE ENCUENTRA DETALLE DE COLUMNETA EN PLANOS FALTA DE INFORMACIÓN MODERADO ARQUITECTO

8ALTASESIÓN ICE 1 12/07/2023I E NIVEL 2,3 Y4 EJE 3-3

TUBOS DE ELÉCTRICOS DE PVC FUERA DE LA EDIFICACIÓN INFERENCIA ENTRE ELEMENTOS MODERADO ING. ELECTRICO

STADO DE LA CONSULTA NEW ACTIVE ELABORACIÓN PROPUESTA SOLUCIÓN PENDIENTE APROBACIÓN APPROVED RESOLVED ITEMPRIORIDAD AGENDASESIONFECHA ESPECIALID AD
PISO
LÁMINA EJES
REFERENCI CONSULTATIPO DE CONSULTAIMPORTANCIARESPONSABLERESPUESTA (S)ESTADO 1ALTASESIÓN ICE 1 12/07/2023 ARQ TIPICO 1,2,3 ,4,5 .ENTRE LOS EJES B-7 Y C-7
/
/
/
INFERENCIA
ESTRUCTURALES GRAVEING. ESTRUCTURAL NEW
ICE 1 12/07/2023I ENIVEL 3EJE 6-6
DE ELEMENTOS
2ALTASESIÓN
CRUZAN
ESTRUCTURALES INFERENCIA ENTRE ELEMENTOS GRAVE ING. ELÉCTRICO NEW
ICE 1 12/07/2023I ENIVEL 2A-6
POR VIGAS
3ALTASESIÓN
ICE 1 12/07/2023I ENIVEL 5EJE 5- 5
ICE 1
TIPICO 1,2,3
12/07/2023ARQ.
NEW
NEW
NEW
INFORMACIÓN DEL PROJECTO VIVIENDA MULTIFAMILIAR J.C.G.
INMOBILIARIA E.I.R.L. SAN BORJA - LIMA NOMBRE DEL PROYECTO NOMBRE DEL CLIENTE DIRECCION DE PROYECTO
SESIÓN ICE Semana 15 Excel - Plantilla Reporte de Interferencias Página 1 de 6
PROMOTORA

INFERENCIA 1

ESPECIALIDAD : ESTRUCTURA

IMPORTANCIA: GRAVE

INFERENCIA DE ELEMENTOS ESTRUCTURALES

ANÁLISIS DE LA INTERFERENCIA:

Se puede visualizar que las columnas no están siguiendo un eje. De esta manera, la vigas no transferirán correctamente las cargas lo que podría causar fallas y daños a largo plazo.

PROPUESTA DE SOLUCIÓN:

-Lo recomendable hubiera sido que las columnas esten alineadas desde un principio en los dos ejes . Sin embargo, como la edificación ya está construida, la solución ante esta interferencia es amarrar las columas que si están en el mismo eje con una viga peraltada (de gran importancia) con un mayor peralte por la gran luz para que que soporte las cargas transferidas en ese punto

MONICA AMELIA FUENTES ROCHA

PONCE AGUILAR FIORELLA NAVARRO HUARCAYA LISBETH CENTENO ORELLANO JHONATT AN

VIVIENDA

MULTIFAMILIAR DE 5 PISOS + SOTANO

REPORTE DE INFERENCIA

Escala Fecha 21/07/2023 1 : 75
ESTUDIANTES
DOCENTE
ARQUITECTURA DIGITAL
I-01
EJE EJE

INFERENCIA 2

ARQUITECTURA DIGITAL

ESPECIALIDAD :

ESTRUCTURA - I .E.

IMPORTANCIA: GRAVE

INFERENCIA DE ELEMENTOS ESTRUCTURALES

ANÁLISIS DE LA INTERFERENCIA:

Se puede visualizar que el tubo Pvc de inst. elect. esta intersectando a la viga estructural, esto ocasiona daños a corto plazo a la estructura en general del piso 5.

PROPUESTA DE SOLUCION

INTERSECION ENTRE VIGA Y TUBO PVC

DEBILITACIÓN DEL SISTEMA

ESTRUCTURAL DE LA EDIFICACIÓN

TUBO PVC

COLUMNAS ESTRUCTURALES

Se tomo como solución el adosamiento del tubo Pvc en la parte de la viga estructural, para que de esa manera no dañe la estructura.

VIGA ESTRUCTURAL

VIGA

PROYECION DE TUBO PVC ADOSADO

PROYECION DE TUBO PVC DE 2"

ADOSADO PARA NO DANAR

ESTRUCTURA

COLUMNA ESTRUCTURAL

MONICA AMELIA FUENTES ROCHA

DOCENTE ESTUDIANTES

PONCE AGUILAR FIORELLA NAVARRO HUARCAYA LISBETH

CENTENO ORELLANO JHONATT AN

REPORTE DE INFERENCIA

Fecha 21/07/2023

VIVIENDA MULTIFAMILIAR DE 5 PISOS + SOTANO I-02

Escala
1 : 75

INFERENCIA 3

ESPECIALIDAD : ARQUITECTURA

IMPORTANCIA: GRAVE

INFERENCIA ESTRUCTURAL - FALTA DE INFORMACIÓN

PLACA

ARQUITECTURA DIGITAL

ANÁLISIS DE LA INTERFERENCIA:

NO HAY DETALLE DE MURO O VANO

CONSIDERADO ENTRE LA PLACA , ESTO

PERJUDICA A LA ESTRUCTURA; YA QUE NO SE

ESPECIFICA EL TIPO DE REFUERZO QUE

TENDRA EL VANO O MURO .

PROPUESTA DE SOLUCIÓN:

SE DECIDIÓ CONSIDERAR COMO

VANO CON REFUERZO DE ACERO A

LOS LATERALES PARA

PROPORCIONAR VENTILACIÓN E

ILUMINACIÓN A LA COCINA SIN

AFECTAR LA PLACA ESTRUCTURAL..

MONICA AMELIA FUENTES ROCHA

DOCENTE ESTUDIANTES

PONCE AGUILAR FIORELLA NAVARRO HUARCAYA LISBETH CENTENO ORELLANO JHONATT AN

VIVIENDA

MULTIFAMILIAR DE 5 PISOS + SOTANO I-03

REPORTE DE INFERENCIA

Escala
1 : 75
Fecha 21/07/2023

MASA CONCEPTUAL Y RENDER CON IA

PROCESO DE MODELADO DE MASA EN REVIT 2021 RENDER DE FACHADA

MASA CONCEPTUAL

ESCALA 1/75

VISTA SUPERIOR

VISTA FRONTAL

ARQUITECTURA DIGITAL

DOCENTE

MONICA AMELIA FUENTES ROCHA

ESTUDIANTES

PONCE AGUILAR FIORELLA NAVARRO HUARCAYA LISBETH CENTENO ORELLANO JHONATT AN

VIVIENDA

MULTIFAMILIAR DE 5 PISOS + SOTANO

MASA CONCEPTUAL

VOLUMETRIA CONCEPTUAL EN REVIT Fecha 25/06/2023

MC-01

Escala
1 : 75

ARQUITECTURA DIGITAL

DOCENTE

MONICA AMELIA FUENTES ROCHA

ESTUDIANTES

PONCE AGUILAR FIORELLA NAVARRO HUARCAYA LISBETH CENTENO ORELLANO JHONATT AN

EVOLVELAB _ VISTA 1

RENDER CON INTEGENCIA ARTIFICIAL

VIVIENDA

MULTIFAMILIAR DE 5 PISOS + SOTANO

MASA CONCEPTUAL

VOLUMETRIA CONCEPTUAL EN REVIT Fecha 25/06/2023

MC-02

Escala
1 : 75

ARQUITECTURA DIGITAL

DOCENTE

MONICA AMELIA FUENTES ROCHA

ESTUDIANTES

PONCE AGUILAR FIORELLA NAVARRO HUARCAYA LISBETH CENTENO ORELLANO JHONATT AN

EVOLVELAB _ VISTA 2

RENDER CON INTEGENCIA ARTIFICIAL

ESCALA 1/75

VIVIENDA MULTIFAMILIAR DE 5 PISOS + SOTANO

MASA CONCEPTUAL

VOLUMETRIA CONCEPTUAL EN REVIT Fecha 25/06/2023

MC-03

Escala
1 : 75

PROCESO DE MODELADO DE MASA EN REVIT 2021

RENDER DE FACHADA

ARQUITECTURA DIGITAL

DOCENTE

ESTUDIANTES

PONCE AGUILAR FIORELLA NAVARRO HUARCAYA LISBETH CENTENO ORELLANO JHONATT AN

MASA CONCEPTUAL

ESCALA 1/75

VIVIENDA

MULTIFAMILIAR DE 5 PISOS + SOTANO

MASA CONCEPTUAL

VOLUMETRIA CONCEPTUAL EN REVIT Fecha 25/06/2023

MC-04

Escala
1 : 75
MONICA AMELIA FUENTES ROCHA VISTA LATERAL DERECHA VISTA FRONTAL VISTA POSTERIOR VISTA LATERAL DERECHA

ARQUITECTURA DIGITAL

DOCENTE

ROCHA

ESTUDIANTES

PONCE AGUILAR FIORELLA NAVARRO HUARCAYA LISBETH CENTENO ORELLANO JHONATT AN

EVOLVELAB _ VISTA 1

RENDER CON INTEGENCIA ARTIFICIAL

PALABRAS ULTILIZADAS

ECOSUSTENTABLE VEGETACION EN TECHO

MODERNO CURVILINEO ECOAMIGABLE CULTURAL

VIVIENDA MULTIFAMILIAR DE 5 PISOS + SOTANO

USO DEL EVOLVELAB

VOLUMETRIA CONCEPTUAL EN REVIT Fecha 25/06/2023

MC-05

Escala
1 : 75
MONICA AMELIA FUENTES

ARQUITECTURA DIGITAL

DOCENTE

ESTUDIANTES

PONCE AGUILAR FIORELLA NAVARRO HUARCAYA LISBETH CENTENO ORELLANO JHONATT AN

EVOLVELAB _ VISTA 2

RENDER CON INTEGENCIA ARTIFICIAL

PALABRAS ULTILIZADAS

MUROS VERDES

TERRAZAS VERDES

CONCRETO JARDINES VERTICALES

MUROS CORTINA

FORMAS ORGANICAS

VIVIENDA MULTIFAMILIAR DE 5 PISOS + SOTANO

USO DEL EVOLVELAB

VOLUMETRIA CONCEPTUAL EN REVIT Fecha 25/06/2023

MC-06

Escala
1 : 75
MONICA AMELIA FUENTES ROCHA

PROCESO DE MODELADO DE MASA EN REVIT 2021

RENDER DE FACHADA

ARQUITECTURA DIGITAL

DOCENTE

ESTUDIANTES

PONCE AGUILAR FIORELLA NAVARRO HUARCAYA LISBETH

CENTENO ORELLANO JHONATT AN

MASA CONCEPTUAL

ESCALA 1/75

VIVIENDA

MULTIFAMILIAR DE 5 PISOS + SOTANO

USO DEL EVOLVELAB

VOLUMETRIA CONCEPTUAL EN REVIT

Fecha 25/06/2023

Escala
1 : 75
MC-07 MONICA AMELIA FUENTES ROCHA VISTA LATERAL DERECHA VISTA FRONTAL VISTA POSTERIOR VISTA LATERAL DERECHA

ARQUITECTURA DIGITAL

DOCENTE

MONICA AMELIA FUENTES ROCHA

ESTUDIANTES

PONCE AGUILAR FIORELLA NAVARRO HUARCAYA LISBETH CENTENO ORELLANO JHONATT AN

EVOLVELAB _ VISTA 1

RENDER CON INTEGENCIA ARTIFICIAL

VIVIENDA MULTIFAMILIAR DE 5 PISOS + SOTANO

USO DEL EVOLVELAB

VOLUMETRIA CONCEPTUAL EN REVIT Fecha 25/06/2023

MC-08

Escala
1 : 75

ARQUITECTURA DIGITAL

DOCENTE

MONICA AMELIA FUENTES ROCHA

ESTUDIANTES

PONCE AGUILAR FIORELLA NAVARRO HUARCAYA LISBETH CENTENO ORELLANO JHONATT AN

EVOLVELAB _ VISTA 2

RENDER CON INTEGENCIA ARTIFICIAL

VIVIENDA

MULTIFAMILIAR DE 5 PISOS + SOTANO

USO DEL EVOLVELAB

VOLUMETRIA CONCEPTUAL EN REVIT Fecha 25/06/2023

MC-09

Escala
1 : 75

SIMULACIÓN 4D

UTILIZANDO EL NAVISWORKS -

https://youtu.be/o7eCZn1z6XM Escala LINK DEL VIDEO Fecha 25/06/2023 1 : 75 DOCENTE ESTUDIANTES ARQUITECTURA DIGITAL VIVIENDA MULTIFAMILIAR DE 5 PISOS + SOTANO MC-02 MONICA AMELIA FUENTES ROCHA PONCE AGUILAR FIORELLA NAVARRO HUARCAYA LISBETH CENTENO ORELLANO JHONATT AN USO DEL NAVISWORKS LINK DEL VIDEO QR DEL VIDEO

GRACIAS

Turn static files into dynamic content formats.

Create a flipbook
Issuu converts static files into: digital portfolios, online yearbooks, online catalogs, digital photo albums and more. Sign up and create your flipbook.