Portfolio

Page 1


lisaandreanord@gmail.com

https://nordnordnordarkitektur.se/

Jag är en utbildad arkitekt med en masterexamen i arkitektur och stadsbyggnad från Chalmers tekniska högskola. Jag har tidigare arbetat som arkitekt på Sweco i Danmark och söker nu efter nya möjligheter. Under min tid på Sweco hade jag varierande arbetsuppgifter, från tidiga skeden med koncept och analys till skissning, modellbygge samt leverans. Ett av projekten var en renoveringen av en skola med en läckande pool där det krävdes både tekniska och kreativa lösningar.

Jag är stolt över att, tillsammans med mina två kollegor, vara mottagare av Student Design Awards i AfH Student Design Awards 2023. Tävlingen har som mål att främja framstående design och inspirera nästa generation att prioritera högkvalitativ design inom hälso- och socialvårdsmiljöer. Motiveringen av juryn lyder:

- You have clearly considered the impact of the recent pandemic and how this has changed the thinking of healthcare to be able to isolate specific areas to prevent outbreaks. Sensitive scheme that responds well to the context. The individual clusters are very successful with subtle shifts in form creating interesting spaces and places along the circulation routes. The apartments are very successful with good zoning of living and sleeping areas and a manageable balcony. The roof forms provide good space without being out of proportion. The wider masterplan which is made up of repeating elements creates interest while still maintaining the simple form. I like the presentation style and the integration with the landscape is very pleasing to see. The central social gardens are a great idea especially supplemented with the private balcony gardens.

Utbildning och kurser

2024 En introduktion till projektering, Sveriges arkitekter

2024 Steget till eget, Sveriges arkitekter

2023-2024 Stockholms universitet, Danska - baskurs 1

2021-2023 Chalmers tekniska högskola, MSc i arkitektur och stadsbyggnad Universität Stuttgart via Erasmus+ utbytesprogram

2022-2023 Linköpings universitet, kurs, Tyska: språk och yrkeskommunikation

2018-2021 Chalmers tekniska högskola, kandidatexamen i arkitektur

2017-2018 Handelshögskolan Göteborg, kurs, Ledning och organisation

2014 NTI Gymnasiet, Design och media

2010-2014 The English School of Gothenburg

Tävlingar

2024 Look Up, Terraviva Competitions, placerade som finalist

2023 Lövträdgården, Student Design Awards, honorable mentions

Arbetslivserfarenhet

2024-nu Skadehandläggare på Trygg-hansa

2024-nu Fristående samarbete med arkitekt

2023-2024 Arkitektpraktikant på Sweco Arkitekter

2019-2023 Skadehandläggare på If försäkringsbolag

2018 Praktikant på reklambyrån Business Club Royale

Program

Autocad

Revit*

Adobe CC (Photoshop, InDesign, Illustrator)

Rhino

Enscape

Lumion

Twinmotion

*Certified Revit Professional in Architectural Design

Språk

Svenska modersmål

Engelska flytande

Danska goda kunskaper

Tyska goda kunskaper

Lisa Nord

Chalmers tekniska högskola

Utvalda projekt

Innehållsförteckning

2024 Tävlingsprojekt: Mötesplats för unga nära vattnet 3-6

2023 Tävlingsprojekt: Vad kommer bli av Refshaleøen? 7-8

2023 Bostadsprojekt med fokus på äldre personer med demens 9-14

SITUATIONSPLAN 1:1000

Look Up

Ohrid

Tävling, Terraviva

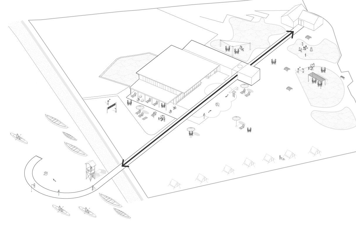
Tävlingen Nautical Club Ohrid, som anordnades av TerraViva Competitions, gick ut på att återanvända och omvandla den övergivna modernistiska byggnaden Youth Union Summer Retreat i Ohrid, Nordmakedonien. Syftet var att ta fram kreativa och hållbara arkitektoniska idéer för att ge nytt liv åt platsen – som en nautisk och social mötesplats för både lokalbefolkningen och besökare.

Förslaget tar inspiration från den makedonske arkitekten Boris Chipan och fokuserar på att främja utomhusaktiviteter, bevara områdets unika karaktär och skapa sociala mötesplatser. Byggnaden utformas med stora fönster, öppna ytor och balkonger som bjuder in naturen, samtidigt som långa havspanoraman lyfts fram.

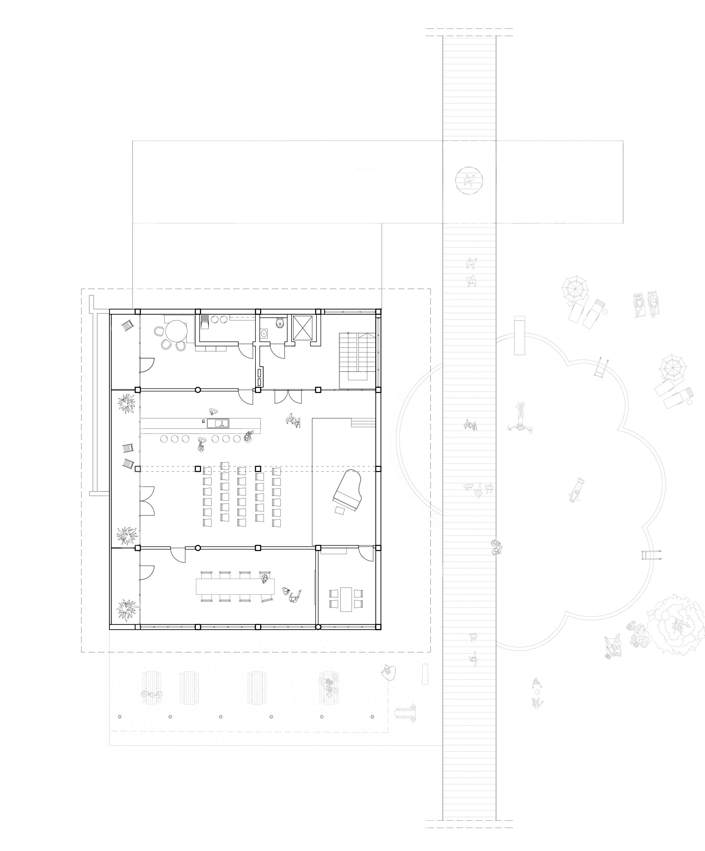
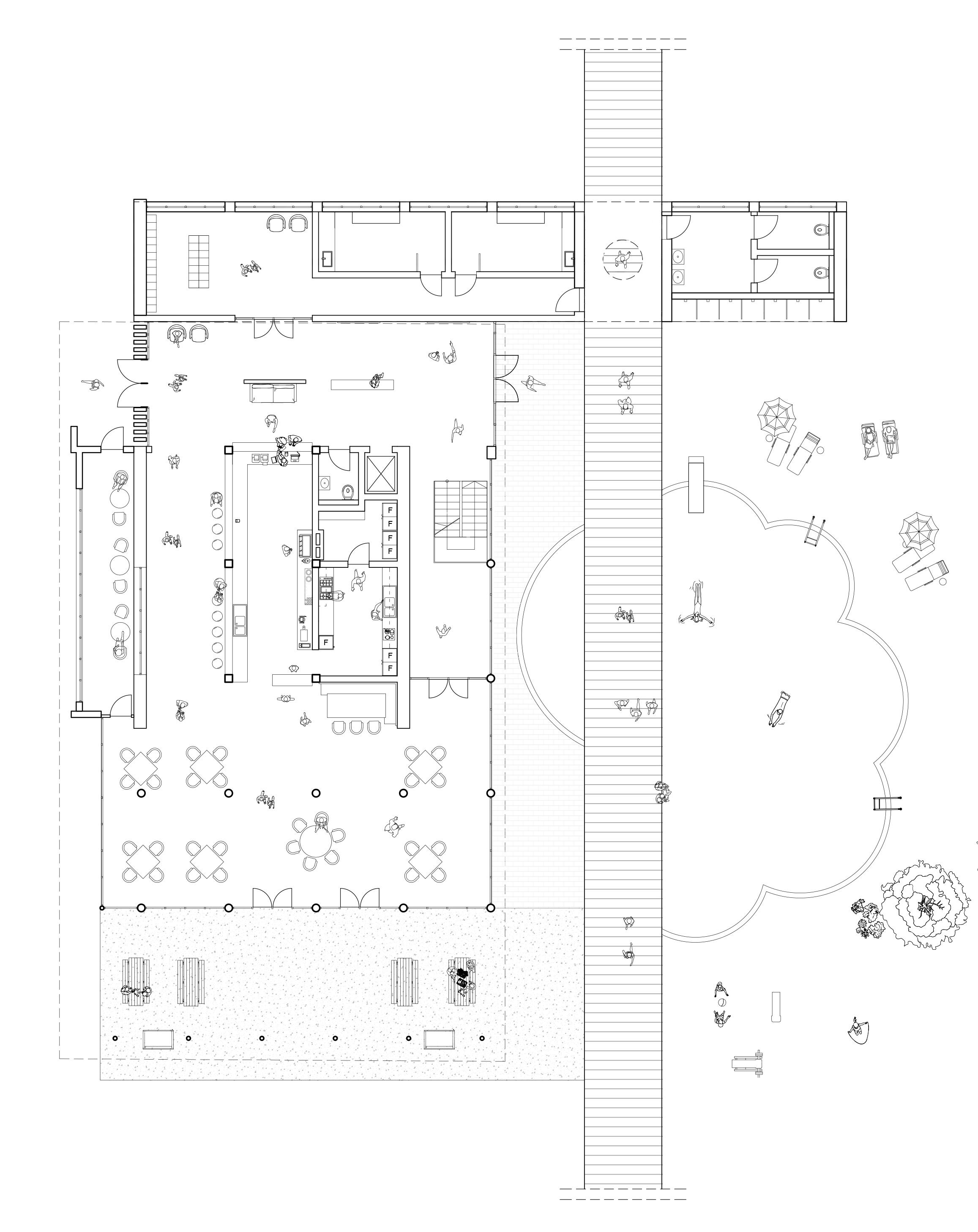
Entréplanet har en öppen lobby med reception, medan övervåningen rymmer mötesrum, personalutrymmen och en scen för evenemang. Utomhusmiljön prioriteras med fokus på gångoch cykelvänlighet, ett stort utomhuspoolområde och en halvcirkelformad brygga för bad och vila.

Projektet främjar hållbarhet, välmående och socialt liv genom gröna ytor, trädgårdar, lekplatser och möjligheten att övernatta i tält i parken – allt för att stärka bandet mellan människor, plats och natur.

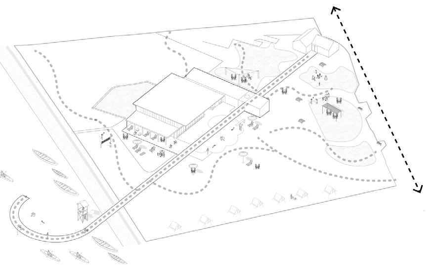
Flöde – fotgängare, cyklar och bilar Aktivitetområden

Grönområden Siktlinje mot vattnet

SEKTION A-A 1:200 ÉNTREPLAN 1:200

KARTA ÖVER ÖNSKNINGAR FÖR REFSHALEØEN

Idékonkurrencen for Refshaleøen

Köpenhamn

Sweco Danmark, tävling Jag deltog i ett tävlingsprojekt tillsammans med fyra andra gruppmedlemmar. Min roll omfattade research kring tävlingens krav och riktlinjer samt intervjuer med lokalbefolkningen. Jag tog fram lösningsförslag och visualiserade dagligen idéer på planscher som presenterades för gruppen för vidare utveckling.

Idékonkurrensen om Refshaleøen, som presenterades i augusti 2023, syftade till att samla nytänkande förslag för områdets framtida utveckling. Totalt inkom 75 bidrag inom fem teman: vidareutveckling av den kreativa miljön, omvandling av befintliga byggnader, utveckling av stadens natur och biologiska mångfald, skapandet av en blandad stadsdel samt en öppen kategori.

Utomhusaktiviteter

Stigar och slingor

Lugnande vyer av lokal natur

KONCEPTUELL ORGANISATIONSKARTA ÖVER GÅRDEN OCH DET BEBYGGDA

Lövträdgården

Göteborg

Chalmers tekniska högskola

Future visions for healthcare, housing and work 1: Residential healthcarehousing for seniors

Höstterminen 2021

Examinator Morgan Andersson

Grupprojekt med medlemmarna Lisa Nord, Nina Parot och Akshaya Gopalakrishnan.

Åldersrelaterade sjukdomar ökar i Sverige i takt med att befolkningen åldras. Syftet är att bygga ett stödboende i Utby, Göteborg samt att förstå mer om hur demenssjukdom kan påverka upplevelser i hemmet.

Återvändsgränder, förbryllande reflexer, oframkomliga vägar och brist på olikheter är exempel på ogynnsamma miljöer för äldre med demenssjukdom. Om miljön utförs på rätt sätt kan den dock erbjuda empati, trygghet och stimulans.

Skapa ett grannskap

Skapa mångfald och ge valmöjligheter

Design med naturliga kvaliteter

SITUATIONSPLAN 1:1000

Areor:

Area för området: 22 640 kvm

BTA: 32762 kvm

Antal lägenheter: 80

Lägenhetens storlek: 33 kvm

- balkong och förvaring: 9,5 kvm

Reception, administration, kontor, personal omklädningsrum och enheter 1-2

Plan + 41.5m

Restaurang, kommunikation och enhet 3

Plan + 38.5m

Enheter 4-6 och tekniska utrymmen
Enheter 7-8, flexrum och teknikrum

Vardagsrum

TV-rum

Matsal med kök

Gemensam balkong

Städ

Förvaringsutrymmen

Extra förråd

Elrum

Personaltoalett

Flexrum

Tyst uppehållsrum

Utomhusterrass

Soprum

Turn static files into dynamic content formats.

Create a flipbook
Issuu converts static files into: digital portfolios, online yearbooks, online catalogs, digital photo albums and more. Sign up and create your flipbook.
Portfolio by Lisa Nord - Issuu