Portfolio

Page 1

portfolio lisa leonard 2017-2022

2022 2021 2020 2019 2018

Les grandes maisons La fabrique à vent A park in a belt

Low Carbon : towards a sustainable mobility

Le Cohabitat d’artistes Le Hall sportif

L’école des matériaux Dessins par-ci, par-là

17
39
59 71 05 81
29
49

lES GRANDES MAISONS

Juin 2022, master 2

Digue du canal, Anderlecht

5

Au départ de ce projet, l’idée qu’il existe à Bruxelles, un nombre restreint de centres d’accueil pour migrant.e.s.

En relation avec plusieurs acteurs et actrices de terrain, l’idée nait qu’il serait possible que cet accueil ne se fasse plus dans des bâtiments à grande échelle accueillant des centaines de migrant.e.s mais plutôt dans une multitude de bâtiments de type maisons bruxelloises ou petits bureaux. Ceux-ci seront appelés «petites maisons» et seront dédiés au logement.

Moins nombreuses mais également dispersées sur le territoire bruxellois, les «grandes maisons» seront dédiées à l’accueil de jour, rassemblant des services psycho-médicosociaux mais aussi diverses activités culturelles, sportives et sociales ouvertes également aux personnes fréquantant le quartier environnant.

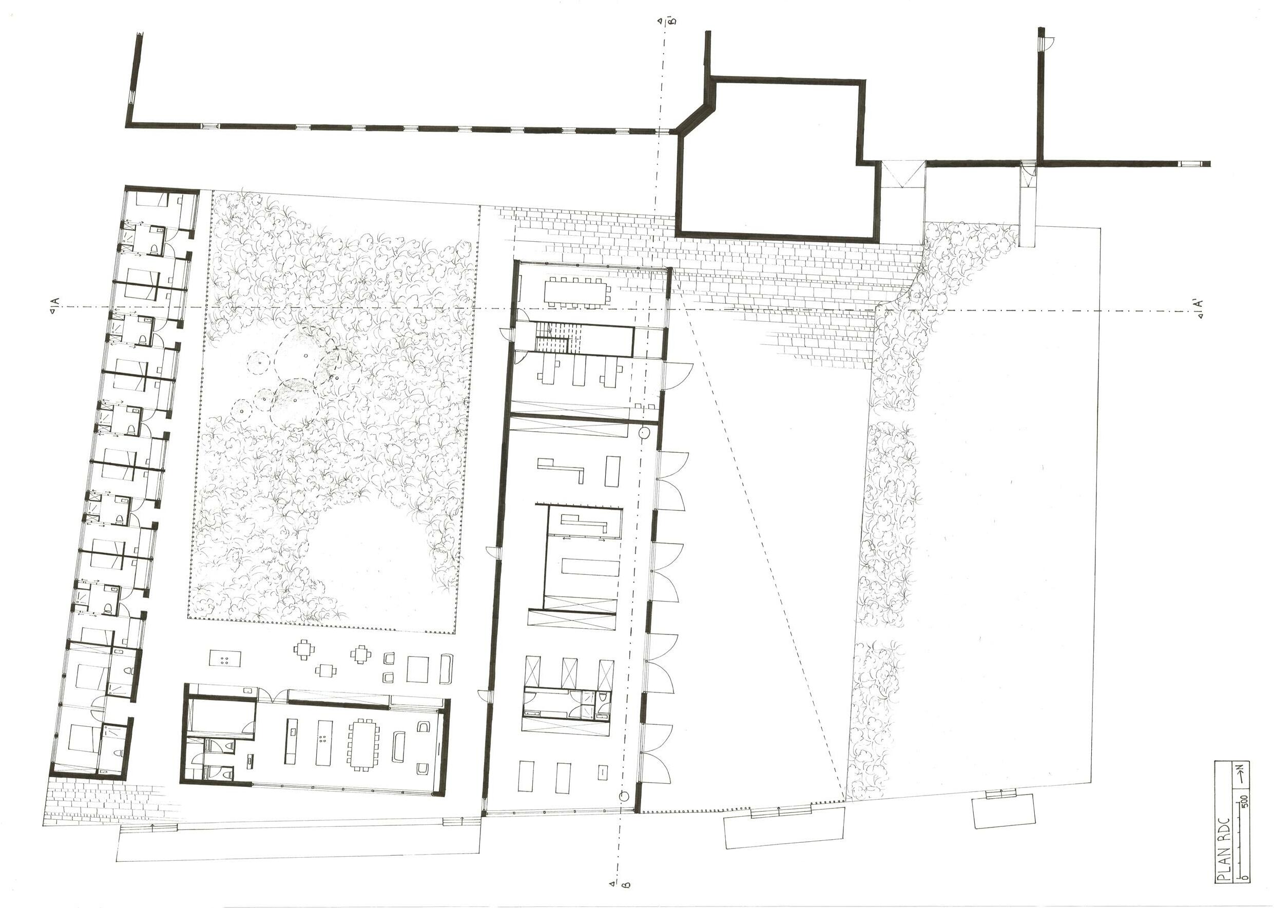
A titre d’exemple, le projet qui suit, se situe sur le territoire du Biestebroeck à Anderlecht. Il se divise en trois bâtiments accueillant séparément, les hommes, les femmes et les familles.

Cette division de genre résulte de l’analyse de terrain qui a été menée dans les centres d’accueil actuels et qui nous montre que le sentiment de sécurité des usagers et usagères au sein des centres en dépend.

Les trois grandes maisons du Biestebroeck sont ainsi destinées à accueillir les mirgant.e.s des petites maisons aux alentours afin qu’ils puissent y trouver les services nécessaires et se rassembler quand ils et elles le souhaitent. Plus ou moins ouverts sur la ville et ce de façon contrôlée, la rencontre avec les habitant.e.s du quartier se fait autour d’activités diverses.

Centres d’accueil actuels

Scénario

La grande maison pour les familles prend place sous la toiture de l’ancien batiment industriel du CDS sur la tête du canal et non loin du parc aménagé. Le batiment devait être démoli pour laisser place au projet Key West.

0 5 10 15m

La grande maison pour les hommes connecte quatre anciens batiments : garages et ateliers, particiapents au caractère industriel du front bâti du canal.

0 5m

La grande maison pour les femmes se tient dans les anciens établissements de la Cantillana le long du canal, profitant de son grand jardin et de l’accès facile aux transports.

0 5 10 15m

la fabrique à vent

Juin 2021, master 1 Commune de Berchem-Sainte-Agathe, Bruxelles Avec Lauranne Janssens et Estelle De Vos

17

Le projet réalisé en juin 2021 se concentre sur la volonté opportuniste de s’acquitter du vent comme source d’inspiration à la conception architecturale. A partir d’une recherche élargie sur les différents dispositifs architecturaux et productifs liés à la ressource du vent, nous avons pris le concours de conception d’une ferme agroécologique sur le site du Zavelenberg, à la frontière de Ganshoren et Berchem-Sainte-Agathe, comme prétexte à projet pour la création d’une ferme à échelle locale et dont la consommation en énergie serait amoindrie grâce à la participation du vent.

La Basilique de Koekelberg a remplacé l’ancien moulin, repère dans la ville et preuve de la forte présence du vent sur le site.

La vallée du Molenbeek, illustrée à travers les marais, la cascade et le hilltop

Comment le vent circule-t-il sur le site?

0 5 10 15m

Recherche par le dessin

A park in a belt

Décembre 2021, master 1 Plateau du Heysel, Bruxelles Avec Alexis Tribel et Hector Vanhufflen Garnier

29

Le plateau du Heysel représente indéniablement la Belgique à l’échelle internationale sur les plans sportif, culturel et touristique. Pour autant, l’aménagement de celui-ci n’en fait pas un lieux enclin au délassement.

Le projet «A park in a belt» vise à faire de l’entièreté du plateau un espace vert mais cependant aménagé, servant aux habitants du quartier comme aux touristes voulant visiter la région. La ceinture dessinant les limites du parc se veut dense pour ainsi répondre à la demande accrue en logement dans la capitale tout en libérant l’espace du parc.

Liens vers les vidéos

LOW CARBON TOWARDS A SUSTAINABLE MOBILITY

Juin 2020, bachelier 3 Marchienne-au-Pont, Charleroi Phase d’urbanisme avec Lauranne Janssens et Louisa Contipelli

2020
29

A Marchienne-au-Pont, la priorité est clairement donnée à la voiture et la venue du nouveau stade de football de Charleroi ne va faire qu’accroitre sa présence. Cependant c’est aussi l’opportunité pour le quartier de revoir ses aménagements en terme de mobilité.

La phase d’urbanisme du projet tend d’abord à relier les différents «hotspots» de la ville par des trajectoires dédiées à la mobilité douce. Le hotspot du stade sur lequel je me suis penchée vise alors à devenir une plaque tournante de mobilité tout en tenant compte de la variabilité des flux amenée par des événements tels que sont les matchs de football.

Phase d’urbanisme

La dominance de la voiture, en gris. La présence d’aménagements cyclables en rouge.

Lors des jours de match, le parking est occupé par les cars alors que plusieurs parkings plus éloignés accueillent les voitures. En semaine, il devient un parking de délestage dans lequel on dépose sa voiture avant de prendre les transports en commun.

le cohabitat d’artistes

Décembre 2019, bachelier 3 Quartier du Pandreitje, Bruges

41

Le projet du cohabitât se dessine en coupe à travers un ensemble de doubles hauteurs offrants vues transversales, lumière et intimité souhaitée aux artistes y habitant. Au sein du quartier du Pandreitje, l’exercice avait pour but de libérer une place au sein d’un ensemble de rues sinueuses du quartier.

Au rez-de-chaussée, le café-exposition accueille les passant désireux de découvrir les oeuvres des habitants du cohabitât. En mezzanine, l’atelier permet aux habitants de se retrouver pour produire ensemble. Chaque logement est capable de s’ouvrir avers les communs au gré des envies de chacun.

R+1 RDC 0 2 4 8m
R+2 R+3
0 2 4 8m

le Hall sportif

Juin 2019, bachelier 2 Molenbeek, Bruxelles

2020
51

Au rez-de -chaussée, le projet se dessine à partir d’un terrain entièrement bâti dans lequel on est venu creuser. Un axe central traverse le rez de la route au parc et sépare la cour de la salle de sport. Les parois vitrées peuvent entièrement s’ouvrir afin de former un seul espace par beau temps.

En retrait de la rue et se détachant de la façade, l’entrée des logements demande en premier lieu d’emprunter les escaliers avant d’arriver sur la coursive au-dessus de l’axe traversant et donnant sur la cour.

0 2 4 8m
0 2 4 8m

l’école des matériaux

Juin 2018, Bachelier 1 Ile du Lazzaretto Vecchio, Venise, Italie

2020
63

Sur la petite île du Lazzaretto Vecchio doit s’installer une école du travail de matériaux. Bois, fer, brique, les étudiants apprendront, travailleront et logeront sur place. Au coeur de la lagune de Venise, le bâtiment s’implante en «U» sur la moitié de l’île, laissant l’autre moitié en friche, et propose deux expérience différentes. Depuis l’intérieur des bâtiments, la vue se dégage entièrement sur la lagune. Tandis que depuis la coursive qui désert les trois bâtiments, la vue se tourne vers un jardin paysager, intimiste, presque inaccessible.

0 4 8 12m

2020 dessins par-ci, par-là

81

Proposition de projet lors de mon stage accadémique chez Epoc en juillet 2022

Visuel de communication pour les étudiant.e.s de la faculté d’architecture La Cambre-Horta

Affiche événementielle
lisa.leonard@ulb.be 0495/15.78.61
Lisa Léonard

Turn static files into dynamic content formats.

Create a flipbook
Issuu converts static files into: digital portfolios, online yearbooks, online catalogs, digital photo albums and more. Sign up and create your flipbook.
Portfolio by lisa.leonard - Issuu