Earth Care Mixed - Use Residence: Floating Gardens

Page 1

SITE LOCATION, AREA & CONTEXT

• The site is on Rama III road, Bang Phong Phang sub-district, Yannawa District, Bangkok.

• East site area –

3277 square meter

• West site area –

3131 square meter

VEHICULAR & PEDESTRIAN CIRCULATION

• Tourists sometimes hop across the river to Lat Pho Park for cycling.

• Currently most people are using private cars and taxis for transportation.

• Bus Line number 89 and 205.

• BRT: from Sathorn to Ratchaphruek

BTS Grey line (Future Extension)

Taxi Parking

Bus-Stop

BRT Line

Zebra-crossing

Cross-over Bridge

Main Roads

N
N

TARGET USER GROUP

Office workers

Singles

Family

Couple

CONCEPT

FLOATING GARDENS

THE CONCEPT IS THE FLOATING GARDENS. WHEN THIS AREA USED TO BE GARDENS EVERYWHERE, THEY WERE WELL KNOWN FOR THEIR ELEVATED GARDENS. IN THIS DESIGN,

FLOATING GARDENS ARE CREATED AGAIN IN THIS HABITAT NOT ONLY TO SHOW THE IDENTITY OF WHAT THIS AREA USED TO HAVE, A WONDERFUL IDENTITY. THESE FLOATING GARDENS WOULD AGAIN CREATE A SENSE OF TOGETHERNESS AMONG RESIDENTS.

1917

SUN ANALYSIS WITH MASSING APRIL

SUN ANALYSIS WITH IMPROVED DESIGN

It is seemed that the building gets more direct sun hours from East and West in this area. As the design is aimed to reduce heat, enhance thermal comfort and to get biophilic atmosphere, we see that after adding the gardens and façade, the building is improved to get shades, remove thermal heat.

JUNE
DECEMBER
JUNE
APRIL
DECEMBER
SUN ANALYSIS BEFORE DESIGN

DESIGN DEVELOPMENT

SEPARATE RESIDENTIAL & RENTAL UNITS

PROGRAMS

RESIDENTIAL UNITS

INSERT THE ELEVATED

THE GARDEN

RENTAL UNITS

AMENITIES

CAR PARKING

COMMERCIAL OFFICES, RESTAURANTS, FOOD COURT AND MARKET

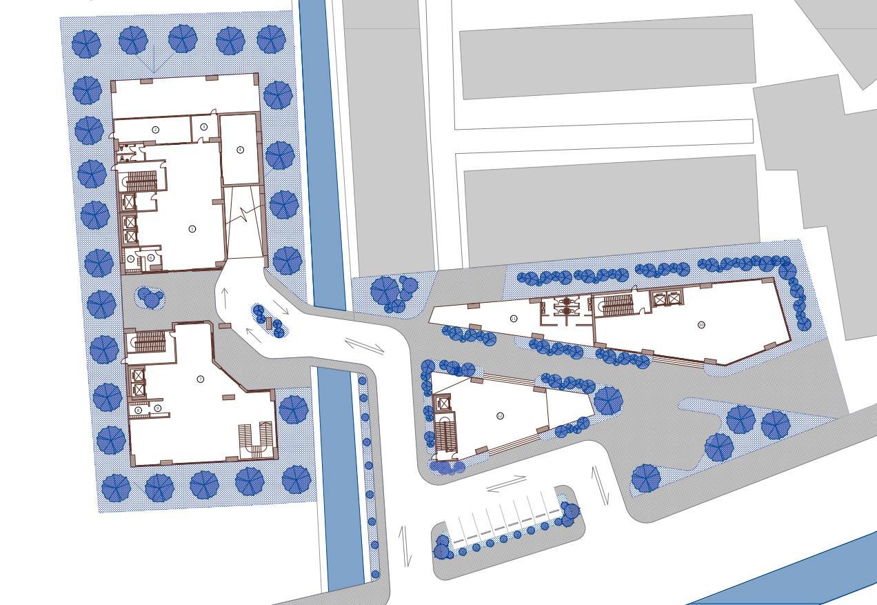
SITE PLAN

N LEGEND 1. Lobby ( Residential units) 2. Office 3. Security control room 4. Laundry room 5. Mail room 6. Parcel room 7. Lobby ( Rental units) 8. Mail room 9. Parcel room 10. Office lobby 11. Common area + pedestrian 12. Common area + pedestrian

FLOOR PLANS

ELEVATIONS

ELEVATIONS

SECTIONS

STRUCTURAL DIAGRAM

0.6 x 1.6 m reinforced concrete columns

Shear wall core

Reinforced concrete floor plates

0.8 x 1.6 m reinforced concrete columns

EE ROOM ON EACH FLOOR DISTRIBUTION LINE

WATER COLLECTION ROOM FROM CPU UNITS FOR

PLANTATION

RAINWATER COLLECTION AND WATER STORAGE AREAS

MDB ROOM

PERSPECTIVES

MODEL
MODEL
MODEL

MODEL

Turn static files into dynamic content formats.

Create a flipbook
Issuu converts static files into: digital portfolios, online yearbooks, online catalogs, digital photo albums and more. Sign up and create your flipbook.
Earth Care Mixed - Use Residence: Floating Gardens by linthadatun - Issuu